Floors and ceiling of buildings and structures. Installation thermal insulation and flame-retardant coat. Guideline for installation. Audit of installation result 

Информационная система
«Ёшкин Кот»

XXXecatmenu

НАЦИОНАЛЬНОЕ ОБЪЕДИНЕНИЕ СТРОИТЕЛЕЙ

Стандарт организации

Защита строительных конструкций,
трубопроводов и оборудования

ПЕРЕКРЫТИЯ ЗДАНИЙ И СООРУЖЕНИЙ.

МОНТАЖ ПОКРЫТИЯ ТЕПЛОИЗОЛЯЦИОННОГО
И ОГНЕЗАЩИТНОГО

Правила производства работ. Требования к результатам
и система контроля выполненных работ

СТО НОСТРОЙ 2.12.97-2013

Москва 2013

Предисловие

1 РАЗРАБОТАН

ООО «ЦНИОМТП»

2 ПРЕДСТАВЛЕН НА УТВЕРЖДЕНИЕ

Комитетом по промышленному строительству Национального объединения строителей, протокол от 14 июня 2013 г. № 23

3 УТВЕРЖДЕН И ВВЕДЕН В ДЕЙСТВИЕ

Решением Совета Национального объединения строителей, протокол от 24 июня 2013 г. № 43

4 ВВЕДЕН

ВПЕРВЫЕ

СОДЕРЖАНИЕ

Введение. 2

1 Область применения. 3

2 Нормативные ссылки. 3

3 Термины и определения. 5

4 Особенности выполнения покрытия теплоизоляционного перекрытия зданий и сооружений и монтажа защитного слоя. 6

5 Подготовительные работы по монтажу покрытия теплоизоляционного и огнезащитного. 12

6 Правила выполнения работ по монтажу покрытия теплоизоляционного и огнезащитного. 16

6.1 Монтаж теплоизоляционного покрытия из насыпных материалов. 16

6.2 Монтаж покрытия теплоизоляционного из пенополиуретана. 17

6.3 Монтаж теплоизоляционного и огнезащитного покрытия из плит теплоизоляционных и огнезащитных на железобетонное перекрытие с использованием анкеров. 18

6.4 Монтаж покрытия теплоизоляционного и огнезащитного из теплоизоляционных плит на перекрытия с использованием клеевых составов. 23

6.5 Комбинированный монтаж покрытия теплоизоляционного и огнезащитного из теплоизоляционных плит с использованием клея и крепежных элементов. 25

6.6 Монтаж покрытия огнезащитного и теплоизоляционного из плит теплоизоляционных и плит защитных на металлическом каркасе. 25

6.7 Защита покрытия теплоизоляционного и огнезащитного штукатурным слоем с последующей окраской. 26

7 Контроль покрытия теплоизоляционного и огнезащитного на этапе сдачи-приемки. 27

8 Техника безопасности. 28

Приложение А. (справочное) Общие положения о применении покрытия теплоизоляционного и огнезащитного и их классификация. 28

Приложение Б. (справочное) Принципы расчета теплоизоляции перекрытий с применением теплоизоляционных плит. 32

Приложение В. (рекомендуемое) Рекомендуемая минимальная толщина покрытия теплоизоляционного, выполненного из плит теплоизоляционных в конструкции чердачного перекрытия из железобетонной сплошной плиты и многопустотного настила или перекрытия над неотапливаемым подвалом.. 34

Приложение Г. (рекомендуемое) Нормируемые показатели пожарной безопасности. 34

Приложение Д. (рекомендуемое) Форма акта приемки выполненных работ. 35

Приложение Е. (рекомендуемое) Форма предписания контроля качества. 36

Библиография. 37

Введение

Настоящий стандарт организации разработан в целях реализации приоритетных направлений деятельности и задач Национального объединения строителей, утвержденных на Всероссийском съезде саморегулируемых организаций, основанных на членстве лиц, осуществляющих строительство, реконструкцию, капитальный ремонт объектов капитального строительства (протокол № 2 от 15.04.2010 г.).

Настоящий стандарт направлен на реализацию в Национальном объединении строителей целей и принципов стандартизации в Российской Федерации, установленных Федеральным законом «О техническом регулировании», Федеральным законом «Технический регламент о безопасности зданий и сооружений», Федеральным законом «О саморегулируемых организациях», Градостроительным кодексом Российской Федерации.

Настоящий стандарт по организации и правилам выполнения работ обеспечивает единство подхода к выполнению работ, оказывающих влияние на безопасность объекта капитального строительства.

Авторский коллектив: докт. техн. наук, проф. П.П. Олейник (ООО «Центр научных исследований организации, механизации, технологии строительного производства»), Д.М. Абрамов (ЗАО «ПАРОК»), А.В. Фадеев (НП «Производители современной минеральной изоляции «Росизол»).

СТАНДАРТ НАЦИОНАЛЬНОГО ОБЪЕДИНЕНИЯ СТРОИТЕЛЕЙ

Защита строительных конструкций, трубопроводов и оборудования

ПЕРЕКРЫТИЯ ЗДАНИЙ И СООРУЖЕНИЙ.
МОНТАЖ ПОКРЫТИЯ ТЕПЛОИЗОЛЯЦИОННОГО
И ОГНЕЗАЩИТНОГО

Правила производства работ. Требования к результатам
и система контроля выполненных работ

Floors and ceiling of buildings and structures.

Installation thermal insulation and flame-retardant coat.

Guideline for installation. Audit of installation result.

1 Область применения

1.1 Настоящий стандарт распространяется на работы по монтажу покрытий теплоизоляционных и огнезащитных, монтируемых на железобетонных перекрытиях (возводимых из сборных или монолитных железобетонных плит) жилых, общественных или промышленных зданий и сооружений.

1.2 Настоящий стандарт устанавливает требования к исходным материалам, условиям монтажа, контролю за выполнением работ и правилам приемки работ.

1.3 В настоящем стандарте под перекрытиями понимаются горизонтальные ограждающие конструкции по ГОСТ 12767, ГОСТ 26434, ГОСТ 9561, ГОСТ 27215, ГОСТ 28042 зданий и сооружений, изготовленные из тяжелого, легкого и плотного силикатного железобетона, разделяющие этажи зданий, сооружений различного назначения, а также расположенные над не отапливаемыми помещениями, подвалами или сквозными проездами и проходами.

1.4 В случае использования в конструктивных решениях перекрытий балок, изготовленных из материалов, отличных от железобетона, монтаж покрытия теплоизоляционного и огнезащитного выполняется на части конструкции, выполненной из железобетона.

1.5 В данном стандарте не рассматриваются огнезащитная обработка и комбинированные способы огнезащиты.

1.6 Общие положения о применении покрытия теплоизоляционного и огнезащитного и их классификация дана в Приложении А к настоящему стандарту.

2 Нормативные ссылки

В настоящем стандарте использованы нормативные ссылки на следующие стандарты:

ГОСТ 12.1.005-88* ССБТ. Общие санитарно-гигиенические требования к воздуху рабочей зоны

ГОСТ 12.1.033-81* Пожарная безопасность. Термины и определения

ГОСТ 427-75 Линейки измерительные металлические. Технические условия

ГОСТ 6266-97 Листы гипсокартонные. Технические условия

ГОСТ 7502-98 Рулетки измерительные металлические. Технические условия

ГОСТ 9416-83 Уровни строительные

ГОСТ 9533-81 Кельмы, лопатки и отрезовки. Технические условия

ГОСТ 9561-91 Плиты перекрытий железобетонные многопустотные для зданий и сооружений

ГОСТ 10597-87 Кисти и щетки малярные. Технические условия

ГОСТ 10778-83 Шпатели. Технические условия

ГОСТ 10831-87 Валики малярные. Технические условия

ГОСТ 12767-94 Плиты перекрытий железобетонные сплошные для крупнопанельных зданий. Общие технические условия

ГОСТ 17370-71 Пластмассы ячеистые жесткие. Метод испытания на растяжение

ГОСТ 24258-88 Средства подмащивания. Общие технические условия

ГОСТ 25015-81 Пластмассы ячеистые и пенорезины. Метод измерения линейных размеров

ГОСТ 25782-90 Правила, терки и полутерки. Технические условия

ГОСТ 26215-84 Ножовки по дереву. Технические условия

ГОСТ 26434-85 Плиты перекрытий железобетонные для общественных и жилых зданий. Типы и основные параметры

ГОСТ 27215-87 Плиты перекрытий железобетонные ребристые высотой 400 мм для производственных зданий промышленных предприятий

ГОСТ 27321-87 Леса стоечные приставные для строительно-монтажных работ. Технические условия

ГОСТ 28013-98 Растворы строительные. Общие технические условия

ГОСТ 28042-89 Плиты покрытий железобетонные для зданий предприятий. Технические условия

ГОСТ 28498-90 Термометры жидкостные стеклянные. Общие технические требования. Методы испытаний

ГОСТ 28638-90 Изделия щетинно-щеточные бытового назначения. Общие технические условия

ГОСТ 30247.0-94 Конструкции строительные. Методы испытаний на огнестойкость. Общие требования

ГОСТ 30247.1-94 Конструкции строительные. Методы испытаний на огнестойкость. Несущие и ограждающие конструкции

ГОСТ 30693-2000 Мастики кровельные и гидроизоляционные. Общие технические условия

ГОСТ 31189-2003 Смеси сухие строительные. Классификация

ГОСТ 31913-2011 (EN ISO 9229:2007) Материалы и изделия теплоизоляционные. Термины и определения

ГОСТ Р 21.1101-2009 Система проектной документации для строительства. Основные требования к проектной и рабочей документации

ГОСТ Р 51829-2001 Листы гипсоволокнистые. Технические условия

ГОСТ Р 53786-2010 Системы фасадные теплоизоляционные композиционные с наружными штукатурными слоями. Термины и определения

СП 2.13130.2009 «Системы противопожарной защиты. Обеспечение огнестойкости объектов защиты»

СП 44.13330.2011 «СНиП 2.09.04-87* Административные и бытовые здания»

СП 48.13330.2011 «СНиП 12-01-2004 Организация строительства»

СП 50.13330.2012 «СНиП 23-02-2003 Тепловая защита зданий»

СП 54.13330.2011 «СНиП 31-01-2003 Здания жилые многоквартирные»

СП 56.13330.2011 «СНиП 31-03-2001 Производственные здания»

СП 70.13330.2012 «СНиП 3.03.01-87* Несущие и ограждающие конструкции»

СП 118.13330.2012 «СНиП 31-06-2009 Общественные здания и сооружения»

СП 131.13330.2012 «СНиП 23-01-99 Строительная климатология»

СТО НОСТРОЙ 2.33.51-2011 Организация строительного производства. Подготовка и производство строительных и монтажных работ

СТО НОСТРОЙ 2.33.52-2011 Организация строительного производства. Организация строительной площадки. Новое строительство

Примечание - При пользовании настоящим стандартом целесообразно проверять действие ссылочных стандартов в информационной системе общего пользования - на официальном сайте национального органа Российской Федерации по стандартизации НОСТРОЙ в сети Интернет или по ежегодно издаваемому информационному указателю «Национальные стандарты», который опубликован по состоянию на 1 января текущего года, и по соответствующим ежемесячно издаваемым информационным указателям, опубликованным в текущем году. Если ссылочный стандарт заменен (изменен), то при пользовании настоящим стандартом следует руководствоваться заменяющим (измененным) стандартом. Если ссылочный стандарт отменен без замены, то положение, в котором дана ссылка на него, применяется в части, не затрагивающей эту ссылку.

3 Термины и определения

В настоящем стандарте применены термины в соответствии с Градостроительным кодексом Российской Федерации [1], Федеральным законом «О техническом регулировании» [2], Федеральным законом «Технический регламент о безопасности зданий и сооружений» [3], с ГОСТ 12.1.033, ГОСТ 31189, ГОСТ 31913, ГОСТ Р 53786, СП 2.13130.2012, а также следующие термины с соответствующими определениями.

3.1 антипирен: Вещества или смеси, добавляемые в материал (вещество) органического происхождения для снижения его горючести.

[ГОСТ 12.1.033-81]

 

3.2 застройщик: Физическое или юридическое лицо, обеспечивающее на принадлежащем ему земельном участке строительство, реконструкцию, капитальный ремонт объектов капитального строительства, а также выполнение инженерных изысканий, подготовку проектной документации для их строительства, реконструкции, капитального ремонта.

[Градостроительный кодекс Российской Федерации, статья 1 пункт 16]

3.3 плита кашированная: Плита минераловатная, с покрытием из плотного материала (например, фольги алюминиевой, стеклоткани) с одной или двух сторон.

3.4 комбинированный способ огнезащиты: Сочетания различных способов огнезащитной обработки.

3.5 конструктивная огнезащита: Способ огнезащиты строительных конструкций, основанный на создании на обогреваемой поверхности конструкции теплоизоляционного слоя средства огнезащиты. К конструктивной огнезащите относятся толстослойные напыляемые составы, огнезащитные обмазки, штукатурки, облицовка плитными, листовыми и другими огнезащитными материалами, в том числе на каркасе, с воздушными прослойками, а также комбинации данных материалов, в том числе с тонкослойными вспучивающимися покрытиями. Способ нанесения (крепления) огнезащиты должен соответствовать способу, описанному в протоколе испытаний на огнестойкость и в проекте огнезащиты.

[СП 2.13130.2012 Системы противопожарной защиты. Обеспечение огнестойкости объектов защиты]

3.6 лицо, осуществляющее строительство, реконструкцию объекта капитального строительства: Застройщик либо привлекаемое застройщиком или заказчиком на основании договора физическое или юридическое лицо (по Градостроительному кодексу Российской Федерации, статья 52).

3.7 объект огнезащиты: Конструкция или изделие, подвергаемые обработке средством огнезащиты в целях снижения их пожарной опасности и (или) повышения огнестойкости.

3.8 огнезащита: Снижение пожарной опасности материалов и конструкции путем специальной обработки или нанесения покрытия (слоя).

[ГОСТ 12.1.033-81]

3.9 огнезащитная обработка: Нанесение огнезащитного состава на поверхность объекта огнезащиты (окраска, обмазка, напыление и т.п.)

3.10 огнезащитное покрытие: Слой, полученный в результате нанесения (монтажа) средства огнезащиты на поверхность объекта огнезащиты.

[ГОСТ 12.1.033-81]

3.11 огнезащитный состав: Вещество или смесь веществ, обладающих огнезащитной эффективностью и предназначенных для огнезащиты различных объектов.

3.12 основание строительное (или основание): Внешняя поверхность перекрытий существующих или вновь возводимых зданий и сооружений, на которых производится монтаж или нанесение покрытия теплоизоляционного и огнезащитного.

3.13 перекрытие: Горизонтальный элемент здания, сооружения, разделяющий внутреннее его пространство на этажи, воспринимающий и передающий статические и динамические нагрузки от собственного веса, людей и оборудования на стены, ригели и колонны.

3.14 покрытие теплоизоляционное и огнезащитное: Материал или изделие, закрепленные на конструкции перекрытия здания или сооружения, полностью закрывающие защищаемую поверхность и сокращающие или прекращающие перенос тепла и обеспечивающие огнезащиту перекрытия.

3.15 смеси сухие теплоизоляционные: Смеси, предназначенные для тепловой изоляции конструкций зданий и сооружений.

[ГОСТ 31189-2003]

 

3.16 смеси сухие огнезащитные: Смеси, предназначенные для устройства защитных покрытий на поверхности строительных конструкций для повышения их огнестойкости и (или) повышения пожарной безопасности.

[ГОСТ 31189-2003]

 

3.17 теплоизоляционная плита: Теплоизоляционное изделие прямоугольной формы, с прямоугольным поперечным сечением, толщина которого существенно меньше других размеров и неизменна по всему изделию.

[ГОСТ 31913-2011]

 

3.18 теплоизоляция: Общий термин, применяемый для описания процесса уменьшения теплопереноса через систему или для описания изделия, элементов системы, которые выполняют эту функцию.

[ГОСТ 31913-2011]

3.19 технологический комплект (нормокомплект): Комплект средств малой механизации, ручного и механизированного инструмента, приспособлений, инвентаря, контрольно-измерительных приборов, подобранный в соответствии с применяемой технологией и оптимальным составом бригады.

4 Особенности выполнения покрытия теплоизоляционного перекрытия зданий и сооружений и монтажа защитного слоя

4.1 Теплоизоляцию чердачных перекрытий холодного чердака или перекрытий над холодным подвалом или сквозным проездом выполняют в соответствии с СП 50.13330. В конструкции крыши с холодным чердаком утепляется только чердачное перекрытие.

4.2 Перекрытия балочного и плитного типа применяют в зданиях различного назначения.

В перекрытиях балочного типа, где несущую функцию выполняют балки из дерева, металла или железобетона, уложенные на несущие стены или колонны теплоизоляционным материалом заполняют пространство между балками. В случае монтажа покрытия огнезащитного выполняют защиту перекрытия и защиту балок, в зависимости от материала, из которого они изготовлены.

В перекрытиях плитного типа несущей конструкцией является плита, которая одновременно служит основанием для укладки теплоизоляционных материалов.

Примечание - Для обеспечения теплозащитных качеств чердачных перекрытий, исключения значительных потерь тепла и конденсации влаги в зимнее время, а также исключения перегрева помещений в теплый период года применяется теплоизоляция чердачных перекрытий.

Теплоизоляция чердачных перекрытий позволяет обеспечить благоприятный микроклимат в помещениях за счет повышения температуры внутренней поверхности перекрытия (потолка пли пола) и уменьшения перепада температур воздуха внутри помещения и внутренней поверхности ограждения.

4.3 Теплоизоляции подлежат перекрытия над неотапливаемыми подвалами и сквозными проездами, полы жилых домов, расположенные в непосредственной близости от грунта, находящиеся в контакте с наружным воздухом либо отделяющие отапливаемые помещения от неотапливаемых .

4.4 Перекрытия первых этажей над подвальными помещениями, выполненные из сплошных железобетонных плит или многопустотного настила теплоизолируются путем укладки теплоизоляционных плит на перекрытие сверху или монтажа теплоизоляционных плит со стороны подвала.

4.5 При теплоизоляции чердачных перекрытий на основание (железобетонная плита, многопустотный настил) рекомендуется устанавливать пароизоляционный слой, поверх которого укладывать теплоизоляционный слой из плит теплоизоляционных.

Примечание - Пароизоляционный слой предотвращает диффузию пара из помещения к холодной наружной поверхности и защищает теплоизоляцию от увлажнения.

4.6 Укладка пароизоляционного слоя должна обеспечивать герметичность.

Примечание - Нарушение герметичности пароизоляционного слоя влечет за собой увлажнение теплоизоляции и, как следствие, снижение теплозащитных свойств перекрытия.

Требуемое сопротивление паропроницанию пароизоляционного слоя определяется в соответствии с требованиями СП 50.13330 и с учетом направления теплового потока «снизу-вверх», сопротивления паропроницанию отдельных слоев конструкции утепленного перекрытия и параметров среды (наружных и внутренних) на основании результатов расчета влажностного режима конструкции.

4.7 Рекомендации по расчету теплоизоляции перекрытий с применением теплоизоляционных плит приведены в Приложении Б.

4.8 В конструкциях теплоизоляции перекрытий первого этажа над холодным подвалом (пол) или сквозным проездом пароизоляционный слой рекомендуется располагать над теплоизоляцией (с теплой стороны помещения).

4.9 При устройстве цементно-песчаной или бетонной стяжки пароизоляционный слой располагать под стяжкой над теплоизоляцией.

4.10 При теплоизоляции перекрытия снизу пароизоляционный слой следует располагать на поверхности перекрытия под теплоизоляционным слоем. В этих случаях в качестве пароизоляционного слоя рекомендуется применять обмазку битумом или битумными мастиками (например, по ГОСТ 30693).

Примечания

1 Железобетонные перекрытия обладают низким коэффициентом паропрооницаемости, поэтому при расположении теплоизоляции снизу (с холодной стороны) при наличии вентиляции установка отдельного пароизоляционного слоя не требуется.

2 В конструкции теплоизоляции междуэтажных перекрытий пароизоляционный слой не устанавливается, но может быть предусмотрена гидроизоляция для предотвращения протечек на нижние этажи.

4.11 Для теплоизоляции чердачных перекрытий и перекрытий над холодным подвалом, или сквозным проездом рекомендуется применять легкие плиты (плотностью до 100 кгм3) с устройством ходовых мостиков или пола по несущим лагам.

Примечание - С увеличением плотности применяемых плит увеличивается долговечность теплоизоляции перекрытия.

4.12 В конструкциях чердачных перекрытий с использованием легких плит (плотностью до 100 кг м3) теплоизоляция укладывается поверх перекрытия на пароизоляционный слой между элементами несущего каркаса деревянного настила, предохраняющего теплоизоляцию от внешних механических воздействий при обслуживании чердачного помещения (рисунок 4.1).

4.13 На необслуживаемых чердаках для предохранения теплоизоляции от выветривания поверх теплоизоляции укладывают паропроницаемый ветрозащитный материал.

Примечание - В качестве паропроницаемого ветрозащитного материала предлагается использовать ветравлагозащитные мембраны.

1 - деревянный настил; 2 - плита теплоизоляционная; 3 - пароизоляционная пленка;
4 - плита перекрытия; 5 - потолок (штукатурка); 6 - лага

Рисунок 4.1

4.14 При теплоизоляции чердачных обслуживаемых помещений с устройством по теплоизоляционному слою бетонной стяжки или стяжки из цементно-песчаного раствора рекомендуется применять жесткие плиты (прочность на сжатие при 10 %-ной деформации не менее 0,100 МПа) (рисунок 4.2).

1 - плита перекрытия; 2 - пароизоляционная пленка; 3 - плита теплоизоляционная;
4 - армированная цементно-песчаная или бетонная стяжка; 5 - клеевой состав

Рисунок 4.2

Примечание - Материалы, предназначенные для теплоизоляции полов, устраиваемых по бетонной или цементной стяжке, подвергаются воздействию повышенных нагрузок, поэтому они должны иметь прочность на сжатие при 10 %-ной деформации не менее 0,100 МПа и сжимаемость не более 5 %.

4.15 Для теплоизоляции перекрытий над неотапливаемыми помещениями, холодным подвалом, сквозным проездом, а также для теплоизоляции межэтажных перекрытий рекомендуется применять теплоизоляционные плиты с устройством бетонной или цементной стяжки (с армированием или без армирования). Поверх стяжки устраивается пол (рисунок 4.3).

1 - плита перекрытия; 2 - плита теплоизоляционная; 3 - пароизоляционная пленка;
4 - цементно-песчаная стяжка; 5 - мастика клеющая; 6 - пол

Рисунок 4.3

4.16 В конструкции теплоизоляции перекрытия первого этажа над холодным подвалом с устройством пола по лагам, где теплоизоляция не подвергается сжимающим нагрузкам), рекомендуется применять легкие плиты плотностью до 100 кг/м3.

4.17 При устройстве пола по лагам рекомендуется предусматривать воздушную прослойку между полом и теплоизоляцией (над пароизоляцией) (рисунок 4.4).

1 - покрытие пола; 2 - черновой пол; 3 - лага; 4 - плита теплоизоляционная;
5 - пароизоляционная пленка; 6 - гидроизоляция; 7 - плита перекрытия

Рисунок 4.4

Примечание - Лаги могут быть деревянными или из пластика. Современным решением являются полы по регулируемым лагам, между которыми легко укладывается легкие теплоизоляционные плиты. Шаг лаг определяется видом покрытия пола (паркет, паркетная доска, половая доска, линолеум).

4.18 При теплоизоляции перекрытия первого этажа со стороны необслуживаемого подвала пароизоляционный слой рекомендуется устанавливать со стороны помещения первого этажа на перекрытие под стяжку, поверх которой укладывается покрытие пола. Пароизоляционный слой может быть установлен со стороны подвала на потолок под плиты теплоизоляции.

4.19 Теплоизоляционные плиты укладываются снизу между обрешеткой и закрываются листами из гипсокартона по ГОСТ 6266. Могут быть использованы другие виды обшивочного материала (рисунок 4.5).

1 - покрытие пола; 2 - цементная стяжка; 3 - пароизоляционная пленка;
4 - плита перекрытия; 5 - плита теплоизоляционная; 6 - дюбель тарельчатый;
7 - ветрозащитная мембрана

Рисунок 4.5

4.20 При теплоизоляции перекрытия из железобетонной плиты или многопустотного настила над обслуживаемым подвалом со стороны подвала пароизоляционный слой не устанавливается (рисунок 4.6).

4.21 При устройстве утепленного пола по уплотненному грунту, по грунту устанавливают гидроизоляционный слой в соответствии с требованиями, указанными в проекте устройства пола, и выполняют бетонную (или цементную) стяжку. Затем последовательно укладывают теплоизоляционные плиты и пароизоляционный слой (рисунок 4.7).

4.22 В качестве пароизоляции рекомендуется применять пароизоляционную пленку (мембрану). Швы пароизоляционного слоя должны быть герметизированы. Для проклейки швов и возможных мест повреждения пароизоляционного слоя при монтаже следует использовать самоклеящиеся ленты.

1 - покрытие пола; 2 - цементная стяжка; 3 - плита перекрытия;
4 - плита теплоизоляционная; 5 - обрешетка; 6 - гипсоволокнистые листы

Рисунок 4.6

1 - покрытие пола; 2 - цементная стяжка; 3 - армированная бетонная стяжка;
4 - пароизоляционная пленка; 5 - плита теплоизоляционная; 6 - гравийная засыпка;
7 - гидроизоляция; 8 - уплотненный грунт

Рисунок 4.7

4.23 Рекомендуемая расчетная толщина ненагруженного теплоизоляционного слоя в конструкциях теплоизоляции железобетонных чердачных перекрытий толщиной 100 мм или перекрытий из многопустотного настила толщиной 250 мм для холодного чердака, а также над неотапливаемым подвалом для различных климатических зон России приведена в Приложении В.

4.24 Нормируемые показатели пожарной безопасности перекрытий зданий и сооружений приведены в Приложении Г.

4.25 Для обеспечения функции огнезащиты одновременно с теплозащитой с нижней стороны перекрытия рекомендуется устанавливать плиты минераловатные, предназначенные для выполнения функции огнезащиты и имеющие класс пожарной опасности: КМ0, которые крепятся специальными металлическими анкерами.

4.26 При монтаже покрытия теплозащитного и огнезащитного облицовочный слой не устанавливается. В качестве защитного слоя используются минераловатные плиты каптированные алюминиевой фольгой. В случае наличия кашировки, для защиты мест установки анкеров и стыков между плитами используется алюминиевая клейкая лента (алюминиевый скотч) (рисунок 4.8).

1 - покрытие пола; 2 - цементная стяжка; 3 - плита перекрытия;
4 - плита теплоизоляционная; 5 - обрешетка; 6 - гипсоволокнистые листы

Рисунок 4.8

4.27 При выполнении покрытия огнезащитного может быть использована конструкция, в которой плиты минераловатные размещены внутри обрешетки, выполненной из негорючих материалов, и закрыты специальными плитами, обладающими свойствами огнезащиты (например, листами гипсокартонными огнестойкими по ГОСТ 6266, листами гипсоволокнистыми по ГОСТ Р 51829) (рисунок 4.9).

1 - плита перекрытия; 2 - обрешетка; 3 - плита минераловатная; 4 - плиты огнезащитные

Рисунок 4.9

5 Подготовительные работы по монтажу покрытия теплоизоляционного и огнезащитного

5.1 Подготовку к работам по монтажу покрытия, выполнение работ и контроль проводят с учетом СП 48.13330, СТО НОСТРОЙ 2.33.51, СТО НОСТРОЙ 2.33.52. Работы по монтажу покрытия теплоизоляционного и огнезащитного следует производить специализированными организациями, имеющими допуск на их выполнение, полученный в установленном порядке по утвержденному проекту производства работ (далее - ППР).

Примечание - В соответствии с Приказом Министерства регионального развития Российской Федерации от 30 декабря 2009 г. № 624 [4], определены виды работ по которым выдается допуск на право выполнения указанных работ.

5.2 Работы по выполнению монтажа покрытия делятся на следующие этапы: подготовительный этап; основной этап монтажа; завершающий этап.

5.2.1 Подготовительный этап включает в себя:

- организационно-технические мероприятия по приемке, проверке и анализу необходимой документации;

- подготовку и приемку основания под покрытие теплоизоляционное и огнезащитное;

- приемку и входной контроль изделий и материалов, складирование изделий и материалов.

5.2.2 Основной этап монтажа включает в себя организационно-технические мероприятия и непосредственно работы по монтажу покрытия и операционному контролю.

5.2.3 Завершающий этап включает в себя организационно-технические мероприятия по выходному контролю и сдаче-приемке выполненных работ.

5.3 В состав документации, представляемой застройщиком (заказчиком) лицу, осуществляющему строительство, должны входить:

- проектная документация на объект капитального строительства, прошедшая экспертизу с выдачей положительного заключения;

- спецификация на применяемые материалы, изделия и комплектующие.

Рабочая документация на покрытие теплоизоляционное и огнезащитное должна отвечать требованиям ГОСТ Р 21.1101.

5.4 Лицо, осуществляющее строительство, проверяет качество и наличие исполнительной документации на выполнение предшествующих теплоизоляции работ (отметки опорных поверхностей; отклонение размеров перекрытия, допущенные при монтаже).

5.5 Все материалы и изделия, применяемые в теплоизоляционных и огнезащитных покрытиях, должны иметь маркировку и (или) сопроводительную документацию, содержащую следующую информацию:

- знак обращения на рынке;

- информацию о назначении (области применения) данной продукции;

- основные потребительские свойства или характеристики;

- правила и условия безопасной эксплуатации или использования;

- правила и условия хранения, перевозки, монтажа и утилизации (при необходимости - установление требований к ним);

- информацию о мерах, которые следует предпринимать при обнаружении неисправности этой продукции;

- местонахождение изготовителя, информацию для связи с ним;

- наименование и местонахождение уполномоченного представителя изготовителя, импортера для связи с ним;

- дату изготовления;

- копию сертификата или декларации о соответствия требованиям Технических Регламентов.

Примечание - Если покрытие выполняет функции огнезащиты, то для него используют материалы класса пожарной опасности КМ0 (например, плиты минераловатные) и металлические анкера, основой конструкции которого является специальным образом свернутый стальной оцинкованный лист, образующий пружину в поперечном сечении (рисунок 5.1).

Рисунок 5.1 - Анкер металлический для монтажа покрытия огнезащитного из минеральной ваты

5.6 Порядок поставки и приемки материалов и изделий покрытия определяют условиями договора между лицом, осуществляющим строительство, и лицом, поставляющим материалы и изделия.

Комплектность материалов и изделий покрытия контролируется лицом, осуществляющим строительство, по спецификациям, входящим в состав рабочей документации.

Проверяют комплектность элементов покрытия и соответствие их параметров рабочей документации.

5.7 При входном контроле лицо, осуществляющее строительство, устанавливает соответствие параметров материалов, изделий и комплектующих технической документации.

5.8 При входном контроле поставляемых плит теплоизоляционных и огнезащитных устанавливается их пригодность к монтажу. Упаковка не должна иметь повреждений, приводящих к повреждению плит. Плиты не должны иметь изломов, поверхностных повреждений, дефектов поверхности. С использованием линейки металлической ГОСТ 427 контролируется соответствие заявленных линейных размеров всех плит.

Плиты с кашированной поверхностью проверяют на сохранность поверхностного алюминиевого покрытия.. Использование плит с поврежденным поверхностным покрытием не допускается.

Примечание - Измерения линейных размеров нестандартными средствами измерений требуют при необходимости последующего подтверждения результатов методами, указанными в стандарте или в технических условиях на изделие.

5.9 Тара для материалов, поставляемых в жидком виде (вяжущие, клеевые составы, мастики) не должна быть повреждена и сохранять герметичность.

Не начатые в использовании материалы должны сохранять заводскую упаковку. Во время перерыва в работе должно быть обеспечено герметичное закрытие тары.

Материалы, герметичная тара которых была нарушена, и при работе с которыми был перерыв, после возобновления работ должны быть проверены на отсутствие посторонних включений в составе материала, а также на отсутствие пленок или иных следов естественного высыхания материала.

5.10 Упаковка материалов, поставляемых в сухом виде, должна быть не повреждена (мешки, пакеты). Должны отсутствовать следы воды и/или иных жидкостей.

5.11 Складирование изделий и материалов следует выполнять в соответствии с условиями хранения, которые указаны в сопроводительной документации на конкретный вид изделий и материалов и прописаны в проекте производства работ.

5.12 Для производства работ по монтажу покрытия теплоизоляционного и огнезащитного в ППР или в технологической карте монтажной организацией разрабатывается технологический комплект (нормокомплект) инструментов, оборудования, средств измерения и контроля, а также средств индивидуальной защиты в зависимости от типа покрытия теплоизоляционного и огнезащитного и объема выполняемых работ (таблица 5.1).

Таблица 5.1 - Перечень инструментов, оборудования, средств измерения и контроля

Наименование

Тип, марка

Назначение

Основные технические характеристики

Валик малярный

ГОСТ 10831

Нанесение краски

Ширина ≥ 250 мм

Ведро пластмассовое

-

Тара для подачи раствора

Объем ≥ 15 л

Дрель электрическая

-

Размешивание раствора

Мощность ≥ 700 Вт

Емкость полиэтиленовая

-

Тара для перемешивания раствора

Объем ≥ 40 л

Кельма для отделочных работ

ГОСТ 9533

Штукатурные работы

-

Кисть-макловица малярная

ГОСТ 10597

Обеспыливание, огрунтовка, окраска

Размер 195×65 мм

Линейка измерительная металлическая

ГОСТ 427

Измерение линейных размеров

-

Молоток с резиновым наконечником

-

Монтаж забивных дюбелей

-

Молоток стальной

-

Монтаж забивных стальных дюбелей

-

Насадка для смешивания

-

Подготовка клея из сухих строительных смесей

-

Нож строительный

-

Резка плит теплоизоляционных

-

Ножницы по металлу

-

Резка металлических и пластиковых профилей

-

Пила ручная (ножовка)

ГОСТ 26215

Резка плит теплоизоляционных

-

Пила циркулярная ручная

-

Резка плит теплоизоляционных

-

Полутерок стальной

ГОСТ 25782

Штукатурные работы

Ширина 140 мм

Длина 280 - 500 мм

Растворосмеситель

-

Перемешивание раствора

Мощность ≥1,2 кВт; объем ≥ 50 л

Рулетка измерительная металлическая

ГОСТ 7502

Измерение линейных размеров

-

Сверла для перфоратора

-

-

Для выполнения отверстий диаметром 6, 8, 10 мм

Терка пластиковая

ГОСТ 25782

Затирание декоративных составов

Размер 140×280 мм

Терка шлифовальная

-

Шлифовка стыков, неровностей

-

Термометр жидкостный стеклянный

ГОСТ 28498

Измерение температуры окружающего воздуха и температуры основания

-

Уровень строительный

ГОСТ 9416

-

Длина 2 м

Шпатель, шпатель зубчатый

ГОСТ 10778

Разравнивание клея

-

Шуруповерт

-

Монтаж винтовых дюбелей

Мощность ≥ 400 Вт

Щетка металлическая ручная

-

Очистка основания

-

Щетка-сметка

ГОСТ 28638

Очистка основания

-

Электролебедка

-

Подача материалов

Грузоподъемность

≥ 60 кг

Электромешалка ручная

-

Перемешивание раствора

Мощность ≥ 700 Вт

Частота вращения

400 - 800 об/мин

Перфоратор электрический

-

Сверление отверстий

Мощность ≥ 700 Вт

Респиратор ШБ-1 «Лепесток»

-

Защита органов дыхания

-

Ящик для инструментов

-

Тара для хранения инструмента

-

Леса строительные

Например, по ГОСТ 27321

Средства подмащивания

-

Навес стальной

-

Защита проходов в опасной зоне

-

Подмостки сборно-разборные

Например, по ГОСТ 24258

Средства подмащивания

Нагрузка 200 кгс/м2; высота до 16 м

5.12 Монтаж покрытия теплоизоляционного и огнезащитного осуществляют, как правило, со строительных лесов.

Сборка конструкции строительных лесов ведется по технологии, разработанной заводом-изготовителем лесов. Приемка лесов осуществляется по акту приемки.

В случае невозможности установки строительных лесов допускается проводить монтаж покрытия с лестниц, стремянок и/или строительных подъемников. Указание на данный тип монтажа приводят в ППР.

5.13 Приемка строительного основания

5.13.1 Для предотвращения повреждения покрытия рекомендуется монтаж покрытия начинать после завершения следующих работ:

- монтажа перекрытия;

- монтажа кровельного покрытия;

- монтажа оконных и дверных блоков;

- внутренних отделочных работ, связанных с использованием большого количества воды: штукатурных работ, устройства стяжки и т.п.

В ППР необходимо предусмотреть меры для предотвращения попадания воды на поверхность основания и на поверхность покрытия во время монтажа.

5.13.2 Проверка основания производится 2-х метровым уровнем (ГОСТ 9416). Неровности основания не должны превышать по горизонтали ±5 мм и по вертикали от минус 5 до +10 мм на 2 м длины (по приложению Ц СП 70.13330).

5.13.3 Механическую очистку основания от остатков строительного раствора, загрязнений (пыли, мела и т.д.) проводят щеткой металлической ручной, выступающие участки удаляют механическим способом (шлифовка). Удаление высолов, цементных и известковых налетов, ржавчины проводят щеткой металлической ручной и/или с использованием специальных растворов.

Удаление грибков, лишайников, мхов, плесени проводят механически с помощью щетки металлической ручной и последующей обработки пораженных участков противогрибковым средством. Проводят механическое удаление щеткой металлической ручной осыпающихся и непрочных участков основания.

Устранение дефектов (выбоины, трещины, сколы) поверхности основания глубиной более 10 мм заполняются ремонтными штукатурными составами, рекомендованными для данного типа основания.

5.13.4 При нанесении покрытия теплоизоляционного из пенополиуретана контролируется влажность поверхностей перекрытия, которая не должна превышать для бетонных оснований 4 %.

Измерение проводят инструментальным методом, проводя не менее 5 измерений равномерно на каждые 50 - 70 м2 основания или на участке меньшей площади.

5.14 Приемка гидроизоляционного и пароизоляционного слоя (слоев) покрытия теплоизоляционного

5.14.1 Если в проекте предусмотрены гидроизоляционный и/или пароизоляционный слои они должны быть выполнены до начала монтажа покрытия теплоизоляционного.

Проверка целостности гидроизоляционного и/или пароизоляционного слоев осуществляется визуально.

5.14.2 Если слой (слои) выполнен нанесением мастик, то он не должен содержать разрывов и повреждений. В случае наличия сколов, трещин, пузырей или иных повреждений целостности слоя, требуется очистить поверхность и нанести новый слой мастики в соответствии с требованиями, установленными для данного типа мастик.

5.14.3 Если слой (слои) выполнен пленкой или специальной мембраной, то проверяют целостность пленки или мембраны, отсутствие в ней проколов и разрывов, которые приведут к утрате слоем своих свойств. При наличии разрывов, проколов, иных повреждений целостности следует заменить ту часть пленки или мембраны, которая подлежит замене, для сохранения свойств гидроизоляционного и/или пароизоляционного слоя.

5.14.4 В случае использования комбинированного гидроизоляционного и/или пароизоляционного слоя с использованием мастик и пленок или мембран, проверку проводят последовательно в соответствии с 5.14.2 и 5.14.3.

5.15 Операционный контроль в процессе выполнения покрытия теплоизоляционного и огнезащитного

5.15.1 Технологические решения по производству работ при выполнении покрытия приводятся в ППР, входящем в состав проектной документации. ППР должен соответствовать требованиям СП 48.13330 (подпункт 5.5).

На всех этапах выполнения работ по устройству покрытия должен осуществляться операционный контроль.

5.15.2 При операционном контроле в процессе монтажных работ проверяют:

- соответствие рабочим чертежам установленных элементов покрытия теплоизоляционного и огнезащитного;

- соответствие рабочим чертежам деталей, обеспечивающих крепление изделия к перекрытиям здания и сооружения;

- соблюдение технологии выполнения строительно-монтажных работ;

- соответствие результата выполняемых работ требованиям рабочей и нормативной документации, оцениваемое с использованием контрольно-измерительных инструментов.

5.15.3 Результаты операционного контроля на всех этапах монтажа фиксируются в журнале производства работ и актах скрытых работ.

6 Правила выполнения работ по монтажу покрытия теплоизоляционного и огнезащитного

6.1 Монтаж теплоизоляционного покрытия из насыпных материалов

6.1.1 Для монтажа теплоизоляционного покрытия из насыпных материалов могут использоваться 2 способа:

- автоматизированный - характеризуется укладкой теплоизоляционного слоя, при которой используется специализированное компрессорно-шнековое оборудование, подающее теплоизоляцию на перекрытие;

- механический - характеризуется укладкой материала вручную.

6.1.2 На основание наносится слой насыпной изоляции. Материал должен заполнять все пустоты и равномерно заполнять все предназначенное для него пространство. Материал укладывается между элементами конструкций (например, между лагами в конструкции пола). В ППР должны быть указаны элементы конструкций, между которыми укладывается насыпная изоляция.

6.1.3 После укладки всего материала он равномерно распределяется по всему перекрытию для обеспечения равной толщины покрытия теплоизоляционного по всей площади перекрытия.

6.1.4 После приемки покрытия в соответствии с разделом 6 настоящего стандарта проводятся работы по устройству полов, указанные в проекте.

6.2 Монтаж покрытия теплоизоляционного из пенополиуретана

6.2.1 Перед монтажом покрытия влажные поверхности должны быть просушены сжатым воздухом, а при температуре воздуха ниже +5 °С - теплым сжатым воздухом. Влажность основания для нанесения пенополиуретана не должна превышать значений, приведенных в 5.13.4.

Места, на которые не допускается попадание пенополиуретана, необходимо защищать полиэтиленовой пленкой или плотной бумагой.

Хранение компонентов и пенопластов и все работы с ними должны проводиться в соответствии с требованиями безопасности, изложенными в документации на их поставку. Помещения, где проводятся работы с пенопластами, должны быть оборудованы приточно-вытяжной вентиляцией.

6.2.2 Пенополиуретаны жесткие, напыляемые и заливочные получаются при соединении жидких компонентов:

- компонент «А»;

- компонент «Б».

Компоненты «А» и «Б» поставляются готовые к применению в жидком состоянии в специальных маркированных емкостях. Компоненты должны использоваться в установленные гарантийные сроки. По истечении гарантийного срока хранения исходные материалы должны быть проверены на соответствие нормативным документам. При положительных результатах испытаний допускается продление срока использования смесей на половину первоначального срока.

Оптимальная температура компонентов во время напыления должна быть от 20 °С до 25 °С.

Компоненты «А» и «Б» перед применением необходимо тщательно перемешать. При наличии осадка в компоненте «Б» допускается нагрев его до температуры 65 + 5 °С при перемешивании.

6.2.3 Для устройства теплоизоляции из пенополиуретана должны использоваться установки (пеногенераторы), работающие по двухкомпонентной схеме, позволяющие получать соотношение компонентов от 1:1 до 1:1,7.

Пеногенератор должен обеспечивать нанесение изоляции методом напыления или заливки в помещении и на открытом воздухе при температуре окружающего воздуха не ниже минус 10 °С. Пеногенератор должен иметь две мешалки или систему рециркуляции на сосудах для компонентов «А» и «Б» и допускать переработку смесей с вязкостью до 2000 мПа с. Производительность установок, применяемых для устройства изоляции пенополиуретаном методом напыления, должна быть в пределах от 0,1 до 4,0 кг/мин, методом заливки - в пределах от 2,0 до 50,0 кг/мин.

Подвод сжатого воздуха осуществляется от индивидуального компрессора.

6.2.4 Для подготовки пеногенератора после длительного перерыва в работе после консервации необходимо:

- слить консервант из баков, насосов и шлангов и залить в баки растворитель (хлористый метилен);

- при закрытом пистолете и включенных насосах растворитель через редукционные клапаны прокачать обратно в баки;

- через 1 - 2 минуты открыть кран на пистолете и промыть всю систему растворителем;

- продуть всю систему (шланги, пистолет, насосы, баки) воздухом. При перерыве в работе от 1 до 20 часов допускается не вырабатывать компоненты, систему при этом можно оставлять под давлением до следующего ввода в работу.

6.2.5 Перед применением новой партии компонентов, а также перед началом работы по теплоизоляции методом напыления или заливки необходимо сделать технологическую пробу на вспенивание.

6.2.6 Марка полиуретана, толщина слоя теплоизоляционного покрытия и технология его устройства должны соответствовать требованиям проектной документации и ППР.

6.2.7 Устройство теплоизоляции необходимо производить захватками. Размеры захватки должны назначаться из условий архитектурно-планировочных решений и технических возможностей оборудования и приспособлений и указываться в ППР.

6.2.8 При напылении или заливке необходимо обеспечивать равномерное покрытие изолируемой поверхности толщиной в соответствии с проектом покрытия.

6.2.9 Перед нанесением теплоизоляции методом напыления или заливки на захватке устанавливаются маяки из пенополиуретана, высотой, равной толщине слоя теплоизоляции. Места, на которые не должен попадать пенополиуретан и которые расположены в непосредственной близости от мест напыления, необходимо закрывать анти адгезионным материалом (бумага, полиэтиленовая пленка).

6.2.10 Устройство теплоизоляции из пенополиуретановых плит производится на подготовленное основание. Приклейка плит между собой и к основанию должна осуществляться пенополиуретановыми или уретановыми клеями.

Примечание - Например, АДВ-46 (полиуретановый), НЕОМЕР-ФП03М и другие.

6.2.11 Теплоизоляция с дефектами, обнаруженными при проведении визуального и инструментального контроля, подлежит исправлению.

При наличии дефектов в виде трещин и расслоений необходимо вырезать дефектный участок, а затем доработать методом заливки или напыления. Допускается производить ремонт дефектных мест площадью до 10 см2 с помощью вкладышей из пенополиуретана, установленных с помощью уретановых клеев или опыления пенополиуретаном.

При недостаточной толщине теплоизоляции необходимо произвести напыление до требуемой толщины.

Дефекты в виде раковин можно ремонтировать с помощью шпатлевки, состоящей из крошки пенопласта и уретанового клея.

6.2.12 Механическую обработку пенополиуретана при ремонтных работах допускается производить не ранее чем через 2 часа с момента изготовления.

6.2.13 Контроль толщины нанесенной теплоизоляции производится без нарушения покрытия с помощью щупа измерительного прибора типа 2030 ТН-100 (ГОСТ 25015) с точностью 1,0 мм. Количество мест, в которых проводится измерение, должно быть не менее 5 на помещение (четыре измерения по углам и одно в центре).

6.2.14 Сцепление напыляемого покрытия с материалом перекрытия проверяется на образцах из этого материала с нанесенным пенополиуретановым покрытием. Испытание проводится прибором, позволяющим производить отрыв материала с регистрацией усилия по методике ГОСТ 17370 во время отрыва. Цена деления прибора должна быть не более 0,1 мПа. Площадь, по которой произошел отрыв, следует измерять металлической линейкой с ценой деления 1 мм.

Определение предела прочности при отрыве теплоизоляции от материала утепляемой конструкции необходимо производить в соответствии с требованиями технических условии на пенополиуретан.

6.2.15 Устройство полов по пенополиуретановой теплоизоляции необходимо выполнять в соответствии с требованиями проекта и нормативной документацией на полы.

6.3 Монтаж теплоизоляционного и огнезащитного покрытия из плит теплоизоляционных и огнезащитных на железобетонное перекрытие с использованием анкеров

6.3.1 Плиты крепятся к железобетонному перекрытию при помощи крепежных элементов - анкеров.

6.3.2 Используемый инструмент:

- линейка металлическая или рулетка металлическая для измерения линейных размеров плит покрытия теплоизоляционного и огнезащитного;

- ножовка, нож строительный или пила циркулярная ручная для отрезки плит теплоизоляционных и огнезащитных;

- перфоратор для бурения отверстий;

- молоток резиновый или металлический в зависимости от материала анкера для забивания крепежных элементов.

6.3.3 Подготовка к монтажу плит теплоизоляционных включает в себя раскрой плит в соответствии с требуемыми размерами.

Раскрой плит производится с помощью пилы циркулярной ручной, ножовки ручной (рисунок 6.1) или ножа строительного. Размеры плит теплоизоляционных определены в рабочей документации на покрытие.

Подготовленные раскроенные плиты должны обеспечивать закрытие всей защищаемого основания перекрытия.

Рисунок 6.1 - Раскрой теплоизоляционных плит с использованием ножовки ручной

Допускается в начале работ выполнение монтажа целыми плитами на плоских поверхностях, имеющих большие линейные размеры. Затем следует произвести раскрой плит по фактическим размерам оставшихся криволинейных и угловых поверхностей. Затем осуществляется монтаж раскроенных плит на защищаемые поверхности.

Если количество и расположение крепежных элементов не указано в рабочей документации для крепления плиты теплоизоляционной используют следующее количество крепежных элементов:

- при размере плит до 600×1000 - не менее 5 на одну плиту;

- при размерах плиты свыше 600×1000 мм не менее 9 отверстий на одну плиту.

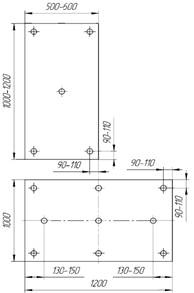
Минимальные расстояния от оси отверстий до края изоляционной плиты должны быть 90 - 110 мм (см. рисунок 6.2).

6.3.3.5 На плитах теплоизоляционных вырезанных для изоляции криволинейных и угловых поверхностей допускается установка меньшего количества крепежных элементов, с учетом минимального расстояния от оси отверстий до края изоляционной плиты, которое должно быть равным 90 - 110 мм.

Если указанные отступы от края плиты не могут быть выполнены, то необходимо установить как минимум один крепежный элемент на один фрагмент теплоизоляционной плиты.

Рисунок 6.2 - Схема расположения центров отверстий крепежных элементов на плите теплоизоляционной

6.3.3.6 Схема расположения анкера представлена на рисунке 6.3

Рисунок 6.3 - Схема расположения анкера

Подбор длины анкера для крепления покрытия огнезащитного осуществляется в зависимости от толщины покрытия. Длина анкера должна быть больше толщины покрытия огнезащитного не менее чем на 30 мм.

6.3.4 Плиту приложить и плотно прижать к защищаемой поверхности и к краям других плит или краю защищаемой поверхности. После чего выполняется отверстие в центре плиты с помощью перфоратора. Если данную операцию невозможно выполнить одному работнику, то ее выполняют двое работников. При этом один работник держит плиту, а второй выполняет отверстие (рисунки 6.4 и 6.5). Закрепить плиту анкером.

Рисунок 6.4 - Установка теплоизоляционной плиты к месту монтажа

Рисунок 6.5 - Подготовка отверстия для установки анкера с использованием перфоратора

Установку анкеров выполняют следующим образом:

- сверлят отверстие под анкер глубиной от поверхности плиты теплоизоляционной на 10 - 15 мм больше длины анкера;

- в отверстие с усилием «от руки» вставляют анкер;

- с использованием молотка забивают распорный анкер так, чтобы тарельчатый диск был на одном уровне с поверхностью плиты.

Порядок установки анкера представлен на рисунке 6.6.

Рисунок 6.6 - Последовательность действий по установке анкера

При забивании анкера следует исключить возможность повреждения анкера и плиты. Анкер должен плотно фиксировать огнезащитное покрытие, но не проминать его более чем на 1 мм.

Рисунок 6.7 - Монтаж анкера с использованием молотка металлического

Примечание - Рекомендуется при работе с пластмассовыми анкерами использовать молоток с резиновым бойком или забивать анкер через деревянную прокладку. Поврежденный анкер должен быть заменен.

Подготовку отверстий и крепление анкеров проводить в соответствии со схемой, представленной в проекте или на рисунке 6.2.

Анкер должен плотно фиксировать огнезащитное покрытие, но не проминать его более чем на 1 мм.

После установки контролируется прочность установки анкера методом выдергивания.

6.3.5 Установка плит должна осуществляться вплотную друг к другу, без зазоров.

Плиты крепят рядами, с перевязкой швов в каждом ряду, при этом на внешних и внутренних углах следует выполнять зубчатое зацепление плит, которое должно быть предусмотрено при раскрое (рисунок 6.8).

В случае если после установки плит остаются зазоры шириной более 2 мм, их необходимо заполнить материалом плит.

Отклонения от вертикали и горизонтали допускаются не более чем на ±2 мм. Измерение ширины швов и отклонений плоскости производится рулеткой по ГОСТ 7502 и уровнем/правилом длиной 2 м по ГОСТ 25782.

1 - плита перекрытия; 2 - плита теплоизоляционная и/или огнезащитная

Рисунок 6.8 - Пример выполнения зубчатого зацепления плит теплоизоляционных на внешнем угле

6.3.6 После установки анкеров с тарельчатым дюбелем поверхность теплоизоляционных плит, при наличии перепадов между стыками, следует обработать абразивной теркой. Образовавшуюся после обработки крошку необходимо удалить с поверхности щеткой-сметкой.

6.3.7 Защищенную поверхность можно впоследствии оштукатурить (см. 6.6) или облицевать отделочными материалами.

При использовании фольгированной плиты места крепления (диски крепежных элементов) необходимо заклеить алюминиевым скотчем без последующей отделки. Также металлическим скотчем проклеиваются стыки теплоизоляционных плит.

Примечание - Материалы, каптированные алюминиевой фольгой, применяются только в покрытиях теплоизоляционных, так как, как правило, они соответствуют классу пожарной опасности КМ1 и имеют группу горючести Г1 и не применимы в целях огнезащиты.

6.4 Монтаж покрытия теплоизоляционного и огнезащитного из теплоизоляционных плит на перекрытия с использованием клеевых составов

6.4.1 Для крепления плит теплоизоляционных используются клеевые составы, тип которых определяется производителем данных теплоизоляционных материалов.

В качестве клеевых составов используются готовые к применению клеи или клеи, приготовляемые из специальной сухой строительной смеси. Применения клеевого состава указывается в ППР. Готовые клеи, использующие цементные связующие должны соответствовать ГОСТ 28013.

6.4.2 Используемый инструмент:

- линейка металлическая или рулетка металлическая для измерения линейных размеров плит покрытия теплоизоляционного и огнезащитного;

- ножовка, нож строительный или пила циркулярная ручная для отрезки плит теплоизоляционных;

- дрель-миксер или перфоратор с насадкой для смешивания для подготовки клея;

- кельма, шпатель, шпатель зубчатый для нанесения клея.

6.4.3 Клеевые составы приготавливают в соответствии с технической документацией, указанной на упаковке клеевого состава или в сопровождающей документации к сухой строительной смеси.

После вскрытия упаковки клея необходимо убедиться, что материал сохранил сыпучесть, в его составе отсутствуют комки, уплотнения, свидетельствующие о проникновении влаги или иной жидкости внутрь упаковки.

Для перемешивания клеевых составов используются электрические дрели или перфораторы, включаемые в режиме дрели, со специальными насадками.

6.4.4 Нанесение клеевого состава на монтируемые плиты осуществляется с помощью кельмы ровным слоем по всей поверхности плит.

Поверхность плиты из минеральной ваты перед нанесением клеевого состава рекомендуется загрунтовать тонким слоем подготовленного клеевого состава. Допускается также механизированное нанесение клеевого состава.

После нанесения тонким слоем грунтового состава на поверхность плиты, наносится основной слой клеевого состава толщиной не менее 2 мм (рисунок 6.9) и разравнивается шпателем по всей ее поверхности. Излишки клея удаляются шпателем зубчатым с поверхности плит (рисунок 6.10). Плита сразу после нанесения клеевого состава устанавливается в проектное положение и прижимается. Излишки клея, выступившие из швов, удаляются.

6.4.5 Установка плит должна осуществляться вплотную друг к другу.

Плиты крепят рядами, с перевязкой швов в каждом ряду, при этом на внешних и внутренних углах следует выполнять зубчатое зацепление плит (рисунок 6.8).

В случае если после установки плит остаются зазоры шириной более 2 мм, их необходимо заполнить материалом плит.

Отклонения линейных размеров от вертикали и горизонтали допускаются не более чем на ±2 мм. Измерение ширины швов и отклонений плоскости производится рулеткой по ГОСТ 7502 и уровнем/правилом длиной 2 м по ГОСТ 25782.

Рисунок 6.11 - Установка плит теплоизоляционных на перекрытие

6.4.6 Если после монтажа плит в проектное положение в стыках последних имеются значительные перепады высот, стыки обрабатываются абразивной теркой, а образовавшуюся после обработки крошку удаляют с поверхности плит щеткой-сметалкой.

Поверхности покрытия теплоизоляционного и огнезащитного либо оштукатуривают, либо покрывают отделочными материалами (в соответствии с требованиями проекта).

6.4.7 При использовании плиты, кашированной алюминиевой фольгой, стыки теплоизоляционных плит необходимо заклеить алюминиевым скотчем без последующей отделки.

6.4.8 При использовании плиты со специальной поверхностью, готовой для последующей окраски без дополнительной обработки, поверхность покрытия теплоизоляционного и огнезащитного окрашивают ручным или механическим способом.

6.4.9 Инструмент, используемый для работы с клеевыми составами, после окончания работ промыть водой и высушить.

6.4.10 По окончанию монтажа плит теплоизоляционных и до выполнения оштукатуривания или облицовки конструкции визуально проверить стыки плит на отсутствие щелей. В случае наличия щелей их необходимо заполнить материалом плит в соответствии с 6.3.5.

6.5 Комбинированный монтаж покрытия теплоизоляционного и огнезащитного из теплоизоляционных плит с использованием клея и крепежных элементов

6.5.1 При комбинированном монтаже работы проводят в следующем порядке:

- проводят установку плит теплоизоляционных с использованием клеевых составов в соответствии с 6.4.1 - 6.4.5.

- не дожидаясь высыхания клея, устанавливают крепежные элементы в соответствии с 6.3.4.

Затем продолжают работы в соответствии с 6.4.6 - 6.4.10.

6.6 Монтаж покрытия огнезащитного и теплоизоляционного из плит теплоизоляционных и плит защитных на металлическом каркасе

6.6.1 В общем случае для покрытия теплоизоляционного используют плиты теплоизоляционные и плиты защитные без специальных требований в соответствии с проектом.

Если покрытие используется в качестве огнезащитного, то в качестве плит, выполняющих функцию огнезащиты, используют плиты минераловатные, а в качестве покрытия - специальные плиты (например, плиты гипсокартонные, плиты гипсоволоконные), имеющие указание в их технической документации на использование в качестве огнезащитных, в соответствие с проектом покрытия огнезащитного.

6.6.2. Разметку проектного положения элементов каркаса покрытия огнезащитного производят в соответствии с проектным решением согласно рабочим чертежам. Разметка установки элементов каркаса покрытия огнезащитного включает разметку на перекрытиях точек закрепления элементов каркаса, выноску в углах помещения отметок уровня несущих профилей каркаса, разметку уровня по периметру помещения.

Разметку производят с помощью линейки. Разметку больших помещений производят с помощью лазерного и оптического нивелира. Вначале на перекрытиях помещения с помощью нивелира и шнуроотбойного приспособления отбивают осевые линии строго по центру помещения (вдоль и поперек). Затем от этих линий производят разметку профилей каркаса. Шаг профилей указан в проекте. Расстояние от стен до ближайших к стенам помещения основных профилей должно быть не более 100 мм.

После этого производят разметку точек закрепления. Шаг точек закрепления указан в проекте. После разметки элементов каркаса покрытия огнезащитного на перекрытии по всему периметру помещения на стенах с помощью раздвижного устройства с измерительной шкалой и пузырьковым уровнем и шнуроотбойного приспособления проводят горизонтальную линию, которая должна совпадать с проектным уровнем стенок профилей каркаса.

6.6.3 Элементы каркаса покрытия крепят с помощью анкерных дюбелей с гвоздями к перекрытиям с нижней их стороны. Контроль за точностью установки собранной конструкции каркаса осуществляют с помощью нивелира или гидроуровня. На смонтированный в проектное положение каркас оформляют акт приемки на скрытые работы.

6.6.4 В решетку, образованную элементами каркаса укладывают плиты теплоизоляционные. Если плита теплоизоляционная требует подрезки, то ее выполняют в соответствии с 6.3.3 настоящего стандарта.

6.6.5. Установку плит облицовки в проектное положение производят с помощью телескопического подъемника, а при его отсутствии - вручную с лесов или средств подмащивания.

Листы облицовки располагают параллельно профилям так, чтобы поперечные стыки находились на профилях. Смещение стыков смежных листов должно составлять не менее 400 мм. Крепление листов облицовки к каркасу осуществляют самонарезающими винтами длиной 30 мм с зенкующей головкой с шагом 150 мм для листов облицовки толщиной 10 мм. Крепежные винты должны входить в лист под прямым углом и проникать в металлический профиль каркаса на глубину не менее 10 мм. Головки винтов должны быть утоплены в поверхность листа облицовки на глубину, позволяющую их зашпаклевать или закрыть иным образом в соответствии с проектом покрытия.

Изогнутые, неправильно завернутые винты удаляют и заменяют на новые, размещая их на расстоянии 50 мм от прежних.

6.6.6 Проводят окончательную отделку покрытия в соответствии с проектом покрытия.

6.7 Защита покрытия теплоизоляционного и огнезащитного штукатурным слоем с последующей окраской

6.7.1 Перед созданием армированного базового штукатурного слоя необходимо подготовить (нарезать) полотна армирующей сетки требуемого размера и в количестве, достаточном для укрытия всей плоскости поверхности теплоизоляционного слоя (с учетом нахлеста соседних полотен не менее 10 см).

6.7.2 С помощью гладкой стальной терки нанести на теплоизоляционный слой соответствующий виду теплоизоляции клеевой состав ровным слоем толщиной от 2 до 3 мм. Эта операция выполняется на ширину от 1,2 до 2,4 м. Перед нанесением клеевого состава поверхность теплоизоляционной плиты из минеральной ваты следует загрунтовать тонким слоем того же клеевого состава.

Приготовленный рулон сетки размотать на длину подготовленной поверхности, натянуть полотно сетки и прижать к теплоизоляционному слою с нанесенным клеевым составом, зафиксировать сетку в клеевом составе и установить второе полотно сетки с нахлестом не менее 10 см на предыдущее, прижать сетку предыдущего полотна к клеевому составу. Нанести второй слой клеевого состава толщиной до 3 мм, ровно разглаживая поверхность так, чтобы скрыть сетку под клеевым составом.

Примечание - Операции выполняются последовательно, без перерывов во времени.

6.7.3 Армирующую сетку запрещается укладывать непосредственно на теплоизоляционный слой. Сетка должна располагаться внутри клеевого слоя и не просматриваться на его поверхности.

Неровности на поверхности армированного базового штукатурного слоя следует удалять при помощи терки с наждачной бумагой и/или острым краем кельмы на следующий день после выполнения работ, описанных в 6.7.2.

6.7.4 К нанесению декоративно-защитного финишного слоя приступают после полного высыхания армированного базового штукатурного слоя.

6.7.5 Перед нанесением декоративно-защитного финишного слоя поверхность армированного базового штукатурного слоя необходимо загрунтовать адгезионной грунтовкой.

Примечание - Адгезионную грунтовку рекомендуется применять в цвете, близком к цвету используемой впоследствии декоративной штукатурки. Перед нанесением грунтовку необходимо тщательно перемешать.

6.7.6 Грунтовку наносят на поверхность армированного базового штукатурного слоя кистью равномерным слоем за один проход (возможно механизированное нанесение в соответствии с инструкцией изготовителя материала).

6.7.7 Декоративно-защитный финишный слой наносят после полного высыхания грунтовки.

6.7.8 Декоративную штукатурку наносят на основание механизировано или вручную при помощи терки из нержавеющей стали, при этом терку держат под углом около 60° к поверхности. Толщина наносимого слоя, как правило, должна соответствовать размеру зерна минерального заполнителя.

6.7.9 Работы по нанесению декоративной штукатурки на одной поверхности следует выполнять непрерывно.

Если необходимо прервать работу, вдоль линии, где заканчивается штукатурный слой, крепят самоклеящуюся малярную ленту. Затем следует нанести штукатурку, удалить малярную ленту вместе с остатками штукатурки до ее схватывания. При возобновлении работ край уже оштукатуренного участка, на котором работы были прерваны, закрывают малярной лентой. Ленту следует удалить сразу после формирования структуры на новом участке штукатурки до того, как декоративная штукатурка начнет схватываться.

6.7.10 Окраску стен производят при помощи колерованной краски, соответствующей типу имеющегося на фасаде защитного слоя:

- окраску минеральных защитных штукатурок проводят с применением наиболее подходящей краски на акриловой, силикатной или силиконовой основе;

- окраску полимерных защитных штукатурок и малярных покрытий проводят с применением наиболее подходящей краски на акриловой, силикатной или силиконовой основе.

6.7.11 Не предназначенные под покраску поверхности рекомендуется закрывать пленкой или бумагой.

6.7.12 Краски перед применением следует тщательно перемешать. Краску рекомендуется наносить не менее чем за два прохода. Первый слой краски или грунтовки наносят кистью. При нанесении первого слоя краску доводят до нужной консистенции, добавив чистой воды в соответствии с инструкцией изготовителя краски и повторно перемешав. Второй слой краски наносят не разбавляя. При этом необходимо визуально следить за равномерностью нанесения краски. Возможно механизированное нанесение краски в соответствии с инструкцией изготовителя краски.

7 Контроль покрытия теплоизоляционного и огнезащитного на этапе сдачи-приемки

7.1 После завершения работ по монтажу покрытия теплоизоляционного и огнезащитного проводится сдача работ.

7.2 Параметры, подлежащие проверке при контроле покрытия на этапе сдачи-приемки, их величины и основные требования приведены в таблице 7.1.

7.3 Отклонения от номинальных размеров зазоров между смонтированными элементами покрытия теплоизоляционного и огнезащитного определяют при помощи линейки по ГОСТ 7502.

7.4 Отклонение от вертикали между смежными элементами покрытия определяют путем приложения строительного уровня по ГОСТ 9416 к проверяемому элементу и замером наибольшего зазора между ними.

Таблица 7.1 - Параметры, подлежащие проверке при контроле

Контролируемые параметры

Предельная величина параметра, основные требования

Контроль (метод, объем, вид регистрации)

Отклонения от плоскости покрытия, мм

По горизонтали ±5 мм на 2 м основания.

По вертикали от минус 5 мм до +10 мм

Измерительный, журнал производства работ

Зазоры на лицевых поверхностях конструкций в местах соединения деталей, мм

0,3

Измерительный, каждый элемент, журнал производства работ

Целостность покрытия. Отсутствие пропусков покрытия

Соответствие участков с нанесенным покрытием проекту нанесения покрытия и проекту производства работ

Визуальный, журнал производства работ

7.5 Окончание монтажных работ должно подтверждаться подписанием акта сдачи-приемки покрытия теплоизоляционного и огнезащитного представителями авторского надзора (в случае, если подписан договор авторского надзора между заказчиком и проектной организацией на контроль за выполнением данных работ), технического надзора застройщика, генеральной подрядной организации и субподрядной организации (приложение Д).

7.6 Нарушения, выявленные представителями авторского надзора (проектной организации) или генеральной подрядной организации (Градостроительный кодекс Российской Федерации, ст. 53 п. 2 [1]) в ходе контроля за монтажом покрытия теплоизоляционного и огнезащитного, и рекомендуемые меры по их устранению фиксируются в форме предписания контроля качества в журнале производства работ и журнале авторского надзора (форма приведена в приложение Е настоящего стандарта).

7.7 До выполнения штукатурных или иных отделочных работ выполнение анкерных креплений покрытия теплоизоляционного и огнезащитного фиксируется актом на скрытые работы.

7.8 Последующие работы должны выполняться только после оформления актов на скрытые работы.

Скрытые работы на всех этапах монтажа подлежат освидетельствованию представителями авторского надзора (проектной организации), технического надзора застройщика, генеральной подрядной организации и субподрядной организации с составлением актов скрытых работ в соответствии с требованиями РД-11-02-2006 [5] (приложение № 3). Должны быть предоставлены акт приемки основания, акт приемки материалов покрытия (при необходимости).

8 Техника безопасности

8.1 В процессе производства строительно-монтажных работ должны соблюдаться нормативные требования по технике безопасности в строительстве, установленные системой стандартов безопасности труда.

8.2 К работе по монтажу покрытия теплоизоляционного из пенополиуретана должны допускаться лица, прошедшие инструктаж по работе с химическими и легковоспламеняющимися жидкостями.

Приложение А
(справочное)

Общие положения о применении покрытия теплоизоляционного
и огнезащитного и их классификация

А.1 Покрытие теплоизоляционное предназначено для снижения теплопереноса через ограждающую конструкцию здания, частью которой оно является. Параметры покрытия теплоизоляционного устанавливаются для каждой ограждающей конструкции и указываются в рабочей документации на покрытие.

В отдельных случаях функции теплоизоляции выполняют материалы или конструкции, предназначенные для выполнения других функций. Если конструкция не соответствует требованиям, предъявляемым к ней по теплотехническим показателям, то для их улучшения необходимо дополнительно включать в ее состав теплоизоляционный материал.

А.2. Покрытие огнезащитное предназначено для защиты конструкции в связи с достижением ею предельного состояния под огневым (температурным) воздействием.

Предел огнестойкости строительных конструкций устанавливается по времени (в минутах) наступления одного или последовательно нескольких, нормируемых для данной конструкции, признаков предельных состояний:

- несущей способности вследствие обрушения конструкции или возникновения предельных деформаций (R);

- целостности в результате образования в конструкциях сквозных трещин или отверстий через которые на не обогреваемую поверхность проникают продукты горения или пламя (Е);

- теплоизолирующей способности вследствие повышения температуры на не обогреваемой поверхности конструкции до предельных для данной конструкции значений (I).

Пределы огнестойкости строительных конструкций и их условные обозначения устанавливают по ГОСТ 30247.0 и ГОСТ 30247.1. Перекрытия по пределу огнестойкости нормируются по классификации REI. В этом случае они рассматриваются как противопожарные преграды.

Для достижения целей огнезащиты и теплоизоляции необходимо выполнение двух условий:

- сопротивление теплопередачи исходной конструкции и дополнительно применяемого слоя теплоизоляционного материала должно быть не менее значений, указанных в проекте на данную конструкцию;

- дополнительно применяемый теплоизоляционный материал должен соответствовать требования к теплоизоляционным материалам. К теплоизоляционным материалам относятся материалы и изделия, теплопроводность которых не превышает 0,15 Вт/(м°С) при 25 °С, плотностью не более 600 кг/м3, обладающие стабильными физико-механическими и теплотехническими свойствами.

А.3 Допустимое предельное значение миграции вредных веществ из теплоизоляционных и огнезащитных материалов в воздушную среду, мг/м3, определяется в соответствии с действующим законодательством.

А.4 Теплоизоляционные материалы имею различную структуру. По ГОСТ 31913 выделяют волокнистые и ячеистые материалы.

Волокнистый материал - теплоизоляционный материал, состоящий из природных или искусственно полученных волокон. К ним относятся минераловатные, стекловолокнистые, древесноволокнистые и т.п. в соответствии с ГОСТ 31913.

Ячеистый материал - теплоизоляционный материал, имеющий множество пор (открытых, закрытых или тех и других), распределенных по всему его объему. К ним относятся изделия из ячеистых бетонов, пеностекло, пенопласты в соответствии с ГОСТ 31913.

Примечание - К волокнистым относятся изделия в виде плит, получаемые из распушенных древесных или других растительных волокон (костра, солома, камыш и др.) путем формования и сушки, плиты, полуцилиндры, сегменты, получаемые из малоразложившегося торфа, цементно-фибролитовые плиты, а также плиты и другие изделия, получаемые из пробковой крошки и вяжущих.

К ячеистым органическим теплоизоляционным материалам относятся плиты, полуцилиндры и сегменты в виде газонаполненных пластмасс, получаемые вспениванием и формованием синтетических смол и полимеров (полистирольных, фенольных полиуретановых, поливинилхлоридных и карбамидных).

А.5 В зависимости от вида сырья теплоизоляционные материалы делят на органические и неорганические.

Органические теплоизоляционные материалы производят в виде штучных изделий из органического волокна или впученных пластмасс.

Неорганические теплоизоляционные материалы производят в виде плит различной степени жесткости, цилиндров, полуцилиндров и сегментов из минеральной ваты на синтетическом, битумном или крахмальном связующем, а также полужестких плит из стеклянного волокна - на синтетическом связующем.

Примечание - К неорганическим теплоизоляционным материалам относятся изделия в виде плит совелитовых плит, получаемые формованием и сушкой основного углекислого магния, углекислого кальция и асбеста; вулканитовые плиты, полуцилиндры и сегменты, получаемые из диатомита (трепела), извести и асбеста; известково-кремнеземистые изделия, изделия в виде кирпича, полуцилиндров, сегментов пенодиатомитовые и диатомитовые; асбестовермикулитовые, перлитоцементные, перлитокерамические и перлитофосфогелевые изделия, а также изделия из ячеистых бетонов на неорганических вяжущих и изделия из пеностекла.

А.6 В зависимости от плотности теплоизоляционные материалы делят на марки;

- особо легкие (ОЛ) с плотность до 100 кг/м3;

- легкие (Л) с плотность от 100 до 350 кг/м3;

- тяжелые (Т) с плотность от 350 до 600 кг/м3.

А.7 В зависимости от жесткости (относительной деформации сжатия) под удельной нагрузкой теплоизоляционные материалы делят на:

- мягкие (М) со сжимаемостью не более 30 %;

- полужесткие (П) со сжимаемостью 6 % - 30 %;

- жесткие (Ж) со сжимаемостью до 6 %.;

- повышенной жесткости (ПЖ);

- твердые (Т).

Величина относительного сжатия для изделий повышенной жесткости и твердых должна быть не более 10 % при удельной нагрузке соответственно 0,04 и 0,10 МПа.

А.8 Покрытия теплоизоляционные и огнезащитные (далее - покрытия) по технологии нанесения классифицируются на устраиваемые ручным или механизированным способами.

А.9 В зависимости от условий эксплуатации перекрытия с нанесенным на него покрытием подразделяются на предназначенные для:

- эксплуатации в сухих отапливаемых помещениях;

- эксплуатации в условиях повышенной влажности;

- эксплуатации условиях атмосферного воздействия;

- эксплуатации в специальных условиях (повышенная температура, воздействие паров различных материалов, циклическое изменение температуры и т.п).

А.10 Покрытия при нагревании могут увеличиваться в объеме в зависимости от свойств используемого состава наносимого покрытия. Такие покрытия подразделяются на вспучивающиеся (увеличиваются в объеме до 10 - 40 раз) и невспучивающиеся (не увеличивающиеся в объеме и не изменяют размеров или габаритов конструкции).

А.11 В зависимости от формы поставки изделия теплоизоляционные подразделяются на штучные, рулонные, шнуровые, сыпучие.

А.11.1 К штучным изделиям относят блоки, листы, плиты и т.п., выполненные из различного вида материалов.

А.11.2 К рулонным изделиям относят волокнистые изделия в виде матов из минерального и стеклянного волокна на синтетическом связующем или прошивные, а также холсты из ультра-супертонкого стеклянного или базальтового волокна, скрепленные между собой силами естественного сцепления.

А. 11.3 К шнуровым изделиям относят шнуры из минеральной ваты, асбеста или асбестомагнезиального сырья, а также стеклянный жгут.

А.11.4 К сыпучим изделиям относят совелит, вспученные перлит и вермикулит, асбестомагнезиальный порошок (ньювель), асбозурит и крошка диатомитовая или трепельная.

А. 12 В соответствии с требованиями пункта 1 статьи 35 Федерального закона 123-ФЗ [6] строительные конструкции по пожарной опасности подразделяются на четыре класса:

- К0 (непожароопасные);

- К1 (малопожароопасные);

- К2 (умереннопожароопасные);

- К3 (пожароопасные).

А.12.1 Для класса КО не допускается повреждение конструкций, наличие теплового эффекта от горения или термического разложения составляющих конструкцию материалов.

А.12.2 Для обеспечения требуемых классов пожарной опасности материалы теплоизоляционные по отношению к воздействию открытого пламени подразделяются на:

- негорючие (НГ);

- горючие (Г).

Негорючие покрытия не подвержены воздействию пламени.

Горючие строительные материалы подразделяются на четыре группы (Г1, Г2, Г3, Г4) в зависимости от степени реакции на воздействие пламени, причем материалы группы Г4 наиболее подвержены воздействию высоких температур и пламени.

А.13 Покрытия в зависимости от состава материала, наносимого покрытия и свойств огнезащиты подразделяются на:

- конструкции, состоящие из однослойного и/или многослойного покрытия, выполненные из штучных изделий.

- штукатурки огнезащитные, представляющие собой композиции, по содержанию компонентов аналогичные штукатуркам, но отличающиеся составом наполнителей и антипиренов, которые образуют на защищаемой поверхности слой покрытия большой толщины.

А.14 Для покрытия, которое помимо функции теплоизоляции выполняет функции огнезащиты, должны использоваться материалы, имеющие группу горючести НГ и в сопроводительной документации которых указано, что такие материалы специально предназначены для огнезащиты. Также такие материалы должны иметь соответствующие сертификаты и протоколы испытаний.

Если покрытие выполняет функции огнезащиты, то для него используют материалы класса пожарной безопасности НГ (например, плиты минераловатные) и металлические анкера.

А.15 Классификация плоских перекрытий

Железобетонные плоские перекрытия - наиболее распространенные конструкции, применяемые в строительстве промышленных и гражданских зданий и сооружений. Их широкому применению в строительстве способствуют высокая индустриальность, экономичность, жесткость, огнестойкость и долговечность.

По конструктивной схеме железобетонные перекрытия могут быть разделены на две основные группы: балочные и безбалочные.

Балочными называют перекрытия, в которых балки, расположенные в одном или в двух направлениях, работают совместно с опирающимися на них плитами перекрытий.

В безбалочных перекрытиях плита опирается непосредственно на колонны с уширениями, называемыми капителями.

По способу выполнения перекрытия могут быть сборными, монолитными и сборно-монолитными.

Конструктивные схемы перекрытий при сборном и монолитном выполнении различны. При классификации перекрытий по конструктивным признакам они подразделяются на: балочные сборные; ребристые монолитные с балочными плитами; ребристые монолитные с плитами, опертыми по контуру; балочные сборно-монолитные; безбалочные сборные; безбалочные монолитные; безбалочные сборно-монолитные.

По методам расчета плиты в составе конструкций перекрытия, в зависимости от условий опирания, могут быть:

- при отношении большей стороны к меньшей ≥ 2 балочными, работающими на изгиб в направлении меньшей стороны, при этом изгибающим моментом в направлении большей стороны ввиду его небольшой величины пренебрегают;

- при отношении большей стороны к меньшей ≤ 2 опертыми по контуру, работающими на изгиб в двух направлениях, с перекрестной рабочей арматурой.

Приложение Б
(справочное)

Принципы расчета теплоизоляции перекрытий с применением
теплоизоляционных плит

Б.1. Расчет тепловой защиты зданий и влажностных характеристик ограждающих конструкций зданий следует выполнять в соответствии с требованиями и по методикам, изложенным в СП 50.13330.

Необходимый уровень тепловой защиты наружных ограждений зданий определяется требованиями СП 50.13330 в зависимости от числа градусосуток отопительного периода (далее - ГСОП) (Dd, °Ссут). Расчетные параметры окружающей среды для различных регионов принимаются по СП 131.13330.

Расчетные параметры внутреннего воздуха принимаются по ГОСТ 12.1.005, с учетом требований СП 44.13330, СП 54.13330, СП 56.13330, СП 118.13330.

Приведенное сопротивление теплопередаче ограждающих конструкций определяется исходя из необходимости соблюдения санитарно-гигиенических требований, условий комфортности и требований энергосбережения.

Сопротивление теплопередаче многослойной ограждающей конструкции с последовательно расположенными однородными слоями определяется по формуле

Ro = 1/αi + R1 + R2 + ... + Rn + le,

(Б.1)

где αi - коэффициент теплоотдачи внутренней поверхности ограждающих конструкций, Вт/(м2°С);

R1, R2, Rn - термическое сопротивление отдельных слоев ограждающей конструкции, включая термическое сопротивление замкнутой воздушной прослойки, если таковая имеется, м2°С/Вт;

αe - коэффициент теплоотдачи от наружной поверхности ограждающей конструкции, Вт/(м2°С).

Слои конструкции, расположенные между вентилируемой прослойкой и наружной поверхностью ограждающей конструкции, в теплотехническом расчете не учитываются.

Коэффициент теплоотдачи поверхности, обращенной в сторону воздушной вентилируемой прослойки, принимается равным 10,8 Вт/(м2°С).

Термическое сопротивление отдельного однородного слоя многослойной ограждающей конструкции определяется по формуле

R = */8,

(Б.2)

где * - толщина слоя, м;

8 - расчетный коэффициент теплопроводности материала слоя, Вт/(м2°С).

Расчетный коэффициент теплопроводности каждого слоя конструкции принимается по СП 50.13330 (приложение Т).

Приведенное сопротивление теплопередаче  м2°С/Вт, неоднородной ограждающей конструкции или ее участка (фрагмента) определяется в соответствии с методикой СП 50.13330 (приложение Е).

Коэффициент теплотехнической однородности r фактически является отношением приведенного сопротивления теплопередаче к сопротивлению теплопередаче однородной конструкции (без теплопроводных включений).

Коэффициент теплотехнической однородности r определяется по методике СП 50.13330 (приложение Е).

Расчетная толщина теплоизоляционного слоя в составе перекрытия определена по глади многослойной конструкции ограждения с коэффициентом теплотехнической однородности 0,90 ≤ r ≤ 0,95 в зависимости от вида конструкции при расчетных значениях коэффициента теплопроводности.

Приведенные в таблицах значения расчетной толщины теплоизоляционных плит подлежат корректировке при проектировании конкретного объекта с учетом фактического коэффициента теплотехнической однородности r ограждающих конструкций и показателя нормируемого удельного расхода тепловой энергии на отопление и вентиляцию, позволяющего изменять величины теплозащитных свойств ограждающих конструкций с учетом выбора систем поддержания нормируемых показателей микроклимата.

Требуемое сопротивление паропроницанию ограждающей конструкции определяется исходя из условия недопустимости накопления влаги в ограждающей конструкции при расчете за годовой период эксплуатации и за период эксплуатации с отрицательными среднемесячными температурами наружного воздуха.

Методика расчета основана на определении материального баланса влаги в конструкции за расчетный период времени с учетом изменения температурно-влажностных параметров окружающей среды в зависимости от климатического района.

В связи с большим разнообразием конструктивных решений, свойств применяемых теплоизоляционных и строительных материалов и климатических условий для различных регионов страны, расчет влажностного режима конструкции следует выполнять при проектировании каждого конкретного объекта.

Расчет возможности выпадения и количества выпадающего в конструкции конденсата при стационарных условиях теплопередачи и диффузии водяного пара выполняется по принятой в практике проектирования инженерной методике, приведенной в СП 50.13330 и позволяющей с достаточной степенью достоверности установить возможность выпадения и накопления конденсата в конструкции в процессе ее эксплуатации.

Исходными данными при расчете являются температура и относительная влажность воздуха снаружи и внутри здания, термическое сопротивление и сопротивление паропроницанию отдельных слоев и конструкции в целом.

Распределение температур по толщине конструкции рассчитывается по формулам стационарной теплопередачи. По термодинамическим таблицам определяются значения максимальной упругости водяного пара при расчетных температурах в конструкции.

Изменение парциального давления по толщине конструкции рассчитывается по заданным значениям влажности воздуха внутри и снаружи здания и сопротивления паропроницанию отдельных слоев, входящих в состав ограждающей конструкции.

Если рассчитанное значение парциального давления пара в каком- либо сечении превышает значение максимальной упругости пара для этого сечения, то выпадение конденсата возможно.

В расчете определяется протяженность зоны выпадения конденсата и количество образующегося конденсата в единицу времени.

Температурно-влажностный режим рассчитывается для периода возможного выпадения конденсата (холодное время года) и для периода его сушки (теплое время года) при среднемесячных температурах и влажностях воздуха.

По результатам расчета определяется материальный баланс влаги в конструкции и возможность ее накопления в круглогодичном цикле.

Приложение В
(рекомендуемое)

Рекомендуемая минимальная толщина покрытия теплоизоляционного,
выполненного из плит теплоизоляционных в конструкции чердачного
перекрытия из железобетонной сплошной плиты и многопустотного
настила или перекрытия над неотапливаемым подвалом

Толщина покрытия плит теплоизоляционных для теплоизоляции перекрытия указана в проекте. Если в проекте толщина не указана, рекомендуется выбирать ее из таблицы В.1.

Таблица В.1

Тип здания

ГСОП

Толщина, мм

Жилое

До 1000

50

1000 - 2000

100

2000 - 3000

150

4000 - 5000

200

5000 - 6000

200

6000 - 7000

250

7000 - 8000

250

Свыше 9000

300

Общественное

До 1000

50

1000 - 2000

100

2000 - 3000

100

4000 - 5000

150

5000 - 6000

150

6000 - 7000

200

7000 - 8000

200

8000 - 9000

200

Свыше 9000

200

Приложение Г
(рекомендуемое)

Нормируемые показатели пожарной безопасности

Таблица Г.1 - Соответствие степени огнестойкости и предела огнестойкости перекрытий зданий, сооружений

Степень огнестойкости зданий, сооружений, строений и пожарных отсеков

Предел огнестойкости перекрытий междуэтажных (в том числе чердачных и над подвалами)

I

REI 60

II

REI 45

III

REI 45

IV

REI 15

V

не нормируется

Таблица Г.2 - Соответствие класса конструктивной пожарной опасности и класса пожарной опасности строительных конструкций зданий, сооружений и строений

Класс конструктивной пожарной опасности здания

Класс пожарной опасности перекрытий

С0

К0

С1

К1

С2

К2

С3

не нормируется

Таблица Г.3 - Пределы огнестойкости противопожарных преград

Наименование противопожарных преград

Тип противопожарных преград

Предел огнестойкости противопожарных преград

Перекрытия

1

REI 150

2

REI 60

3

REI 45

4

REI 15

Приложение Д
(рекомендуемое)

Форма акта приемки выполненных работ

АКТ
освидетельствования выполненных работ

г. _________

_______________________

(дата составления документа)

___________________________________________________________________________

(наименование работ)

на объекте _________________________________________________________________

(наименование здания, сооружения)

в осях _____________________________________________________________________

по адресу: __________________________________________________________________

(район застройки, квартал, улица, № дома и корпуса)

Комиссия в составе представителей (должность, наименование организации, Ф. И. О.):

Авторского надзора

____________________________________________________

(должность, наименование организации, Ф. И. О.)

____________________________________________________

(должность, наименование организации, Ф. И. О.)

Технического надзора

застройщика

____________________________________________________

(должность, наименование организации, Ф. И. О.)

____________________________________________________

(должность, наименование организации, Ф. И. О.)

Генеральной подрядной организации

____________________________________________________

(должность, наименование организации, Ф. И. О.)

____________________________________________________

(должность, наименование организации, Ф. И. О.)

Субподрядной организации

____________________________________________________

(должность, наименование организации, Ф. И. О.)

____________________________________________________

(должность, наименование организации, Ф. И. О.)

Произвела осмотр работ, выполненных _________________________________________

(наименование строительно-монтажной организации)

и составила настоящий акт о нижеследующем:

1. К освидетельствованию и приемке предъявлены следующие работы:

___________________________________________________________________________

(наименование скрытых работ)

2. Работы выполнены по проектно-сметной документации: ________________________

___________________________________________________________________________

(стандарт, проект серии, наименование проектной организации, номера чертежей и дата их составления)

3. При выполнении работ применены: __________________________________________

___________________________________________________________________________

___________________________________________________________________________

(наименование материалов, конструкций, изделий со ссылкой на документы, подтверждающие качество)

4. Работы выполнены в период с: ___________________ по ________________________

РЕШЕНИЕ КОМИССИИ

Работы выполнены в соответствии с проектно-сметной документацией, стандартами, строительными нормами и правилами и отвечают требованиям их приемки. С ЗАМЕЧАНИЯМИ /БЕЗ ЗАМЕЧАНИЙ (ненужное вычеркнуть)

___________________________________________________________________________

___________________________________________________________________________

(наименование работ и конструкций)

ПРЕДСТАВИТЕЛИ:

Авторского надзора

______________________

(подпись)

_______________________

(Ф. И. О.)

Технического надзора

застройщика

______________________

(подпись)

_______________________

(Ф. И. О.)

Генеральной подрядной

организации

______________________

(подпись)

_______________________

(Ф. И. О.)

Субподрядной

организации

______________________

(подпись)

_______________________

(Ф. И. О.)

Приложение Е
(рекомендуемое)

Форма предписания контроля качества

ПРЕДПИСАНИЕ

контроля качества строительно-монтажных работ

г. _________

_______________________

(дата составления документа)

на объекте _________________________________________________________________

(наименование здания, сооружения)

по адресу: __________________________________________________________________

(район застройки, квартал, улица, № дома и корпуса)

Технического надзора застройщика

Авторского надзора

Генеральной подрядной организации

(нужное подчеркнуть)

___________________________________________________________________________

(должность, наименование организации, Ф. И. О.):

Совместно с представителем подрядной организации:

___________________________________________________________________________

(должность, наименование организации, Ф. И. О.):

Произвел осмотр работ, выполненных __________________________________________

(наименование строительно-монтажной организации)

На основании проведенного осмотра предложены к выполнению следующие мероприятий:

№№ п/п

Наименование мероприятий

Срок исполнения

Отметки о выполнении

1

2

3

4

 

 

 

 

 

 

 

 

 

 

 

 

 

 

 

 

 

 

 

 

 

 

 

 

 

 

 

 

 

 

 

 

Ответственных исполнителей по выполнению перечисленных выше мероприятий, необходимо назначить приказом.

В случае несогласия с предлагаемыми мероприятиями или сроками, необходимо сообщить Представителю особое мнение в 5-ти дневный срок с момента получения настоящего предписания.

Работник составивший

предписание

______________________

(подпись)

_______________________

(Ф. И. О.)

Председатель подрядной

организации

______________________

(подпись)

_______________________

(Ф. И. О.)

Библиография

[1] Градостроительный кодекс Российской Федерации

[2] Федеральный закон РФ от 27 декабря 2002 г. № 184-ФЗ «О техническом регулировании»

[3] Федеральный закон РФ от 30 декабря 2009 г. № 384-ФЗ «Технический регламент о безопасности зданий и сооружений»

[4] Приказ Министерства регионального развития Российской Федерации от 30 декабря 2009 г № 624 «Об утверждении перечня видов работ по инженерным изысканиям, по подготовке проектной документации, по строительству, реконструкции, капитальному ремонту объектов капитального строительства, которые оказывают влияние на безопасность объектов капитального строительства»

[5] Руководящие документы РД-11-02-2006 «Требования к составу и порядку ведения исполнительной документации при строительстве, реконструкции, капитальном ремонте объектов капитального строительства и требования, предъявляемые к актам освидетельствования работ, конструкций, участков сетей инженерно-технического обеспечения» (утверждены приказом Федеральной службы по экологическому, технологическому и атомному надзору от 26 декабря 2006 г № 1128)

[6] Федеральный закон РФ от 22 июля 2008 г № 123-ФЗ «Технический регламент о требованиях пожарной безопасности»

Ключевые слова: стандарт организации, защита строительных конструкций, покрытия теплоизоляционные, покрытия огнезащитные, системы огнезащитные, перекрытия, правила выполнения, контроль выполнения

 



© 2013 Ёшкин Кот :-)