| |||||||||||||||||||||||||||||||||||||||||||||||||||||||||||||||||||||||||||||||||||||||||||||||||||||||||||||||||||||||||||||||||||||||||||||||||||||||||||||||||||||||||||||||||||||||||||||||||||||||||||||||||||||||||||||||||||||||||||||||||||||||||||||||||||||||||||||||||||||||||||||||||||||||||||||||||||||||||||||||||||||||||||||||||||||||||||||||||||||||||||||||||||||||||||||||||||||||||||||||||||||||||||||||||||||||||||||||||||||||||||||||||||||||||||||||||||||||||||||||||||||||||||||||||||||||||||||||||||||||||||||||||||||||||||||||||||||||||||||||||||||||||||||||||||||||||||||||||||||||||||||||||||||||||||||||||||||||||||||||||||||||||||||||||||||||||||||||||||||||||||||||||||||||||||||||||||||||||||||||||||||||||||||||||||||||||||||||||||||||||||||||||||||||||||||||||||||||||||||||||||||||||||||||||||||||||||||||||||||||||||||||||||||||||||||||||||||||||||||||||||||||||||||||||||||||||||||||||||||||||||||||||||||||||||||||||||||||||||||||||||||||||||||||||||||||||||||||||||||||
|
МИНИСТЕРСТВО КОММУНАЛЬНОГО ХОЗЯЙСТВА РСФСР УПРАВЛЕНИЕ ЖИЛИЩНОГО ХОЗЯЙСТВА ЛЕНИНГРАДСКИЙ НАУЧНО-ИССЛЕДОВАТЕЛЬСКИЙ ИНСТИТУТ
Утверждено Главный инженер Управления жилищного хозяйства МКХ РСФСР В. Михайловский 4 ноября 1964 г. РЕКОМЕНДАЦИИ Под редакцией канд. техн. наук С.Д. ХИМУНИНА
ИЗДАТЕЛЬСТВО ЛИТЕРАТУРЫ ПО СТРОИТЕЛЬСТВУ Ленинград 1965 Москва Рекомендации разработаны лабораторией капитального ремонта жилых домов ЛНИИ АКХ им. К.Д. Памфилова. Они составлены на основе изучения и анализа архитектурно-планировочных решений квартир и инженерного оборудования жилых домов старой застройки в Москве, Ленинграде, Горьком, Куйбышеве, Калинине и других городах; изучения и обобщения опыта проектирования капитального ремонта жилых домов старой застройки в институтах Мосжилпроект, Ленжилпроект и в других организациях. Рекомендации состоят из двух частей и приложения. В первой части приведены нормативы на перепланировку и повышение благоустройства жилых домов старой застройки; во второй - даны примеры перепланировки каменных жилых домов. Рекомендации предназначены для инженерно-технических работников ремонтно-строительных, проектно-сметных и жилищных организаций. ВВЕДЕНИЕКоммунистическая партия Советского Союза успешно решает одну из самых острых народнохозяйственных проблем - жилищную проблему. До 1970 г. в стране будет полностью ликвидирован недостаток в жилищах, а в итоге второго десятилетия (1971 -1980 гг.) каждая семья, включая молодоженов, будет иметь отдельную благоустроенную квартиру, соответствующую требованиям гигиены и культурного быта. Одновременно с возведением новых жилых домов серьезное внимание уделяется переустройству существующих жилищ. Разнотипный жилой фонд постройки дореволюционных лет составляет по Советскому Союзу около 180 млн. м2. В этом жилом фонде планировочные решения квартир, их инженерное и санитарно-техническое оборудование в большинстве случаев не отвечают современным требованиям гигиены и быта. Так, например, анализ планировочных решений жилых домов старой застройки городов по инвентаризационным чертежам показал, что в Москве, в отобранных для исследований домах, 61,8 % жилой площади составляют квартиры, имеющие 5 и более комнат, в Ленинграде - 42,1 %, Куйбышеве - 58,1 %, Калинине - 54,5 %, Калуге - 47,6 % и т.д. Необходимо также отметить, что многие крупные города в СССР, сложившиеся до Великой Октябрьской социалистической революции, имеют в своих центральных частях жилые районы с весьма плотной многоэтажной застройкой и тесными, часто лишенными света и воздуха дворами-«колодцами» (рис. 1), не удовлетворяющими современным санитарно-гигиеническим требованиям. Не все жилые дома, выстроенные в период предвоенных и первых послевоенных пятилеток, соответствуют возросшим современным требованиям гигиены и культурного быта, а уровень их инженерного благоустройства в ряде случаев недостаточен. Совет Министров СССР в решении № 322 от 25 марта 1959 г. и Совет Министров РСФСР в решении № 1170 от 6 июля 1959 г. «О мерах по улучшению эксплуатации и сохранению государственного жилого фонда» отметили, что основным видом капитального ремонта жилых домов является комплексный ремонт и что при капитальном ремонте разрешается выполнять работы, связанные с повышением благоустройства жилых домов. В настоящее время переустройство жилых домов с повышением благоустройства осуществляется, как правило, одновременно с комплексным капитальным ремонтом. Однако практика комплексного капитального ремонта жилых домов показала, что уровень повышения благоустройства капитально отремонтированных жилых домов старой застройки различен в разных городах, и это в значительной мере объясняется отсутствием каких-либо нормативных документов. Рис. 1. Типичная
застройка жилых кварталов центральных районов Настоящие «Рекомендации по перепланировке и повышению благоустройства жилых домов старой застройки городов» разработаны на основании: анализа планировок квартир и инженерного оборудования жилых домов старой застройки в Москве, Ленинграде, Горьком, Куйбышеве, Ростове-на-Дону, Туле, Калуге и Калинине; изучения и обобщения опыта проектирования капитального ремонта жилых домов старой застройки, выполненного проектными институтами Мосжилпроект и Ленжилпроект, а также проектно-сметными бюро Горкомхозов и Облкомхозов ряда городов; экспериментального проектирования комплексного капитального ремонта каменных жилых домов, выполненного лабораторией капитального ремонта жилых домов Ленинградского научно-исследовательского института АКХ им. Памфилова при участии проектных институтов Мосжилпроект и Ленжилпроект, а также проектно-сметных бюро Калининского и Калужского Облкомхозов. «Рекомендации» составлены в соответствии с утвержденной Управлением жилищного хозяйства МКХ РСФСР структурой и состоят из двух частей и приложения. В первой части приведены рекомендуемые нормативы на перепланировку и повышение благоустройства жилых домов старой застройки городов; во второй части даны примеры перепланировок каменных жилых домов, составленные лабораторией ЛНИИ АКХ и явившиеся результатом проведенного экспериментального проектирования. Приведенные примеры проектных решений являются иллюстрацией некоторых положений «Рекомендаций» и могут служить пособием при составлении проектной документации на капитальный ремонт жилых домов. В приложении приведены материалы обоснований рекомендуемых нормативов. «Рекомендации» подготовлены авторским коллективом в составе: руководителя лаборатории канд. техн. наук С.Д. Химунина, мл. научн. сотр. К.А. Шарлыгиной, ст. инж. А.Т. Волчковой. В сборе и обработке материалов и в составлении отдельных разделов принимали также участие инженеры Н.В. Попова, А.А. Бычкова, Т.Г. Скарбовичук, архитектор И.И. Вийра и ст. техник Т.М. Шейна. Все замечания и дополнения к «Рекомендациям по перепланировке и повышению благоустройства жилых домов старой застройки городов» просим направлять по адресу: Ленинград, С-19, Хрустальная 19, Ленинградскому научно-исследовательскому институту Академии коммунального хозяйства им. К.Д. Памфилова. Часть первая
| |||||||||||||||||||||||||||||||||||||||||||||||||||||||||||||||||||||||||||||||||||||||||||||||||||||||||||||||||||||||||||||||||||||||||||||||||||||||||||||||||||||||||||||||||||||||||||||||||||||||||||||||||||||||||||||||||||||||||||||||||||||||||||||||||||||||||||||||||||||||||||||||||||||||||||||||||||||||||||||||||||||||||||||||||||||||||||||||||||||||||||||||||||||||||||||||||||||||||||||||||||||||||||||||||||||||||||||||||||||||||||||||||||||||||||||||||||||||||||||||||||||||||||||||||||||||||||||||||||||||||||||||||||||||||||||||||||||||||||||||||||||||||||||||||||||||||||||||||||||||||||||||||||||||||||||||||||||||||||||||||||||||||||||||||||||||||||||||||||||||||||||||||||||||||||||||||||||||||||||||||||||||||||||||||||||||||||||||||||||||||||||||||||||||||||||||||||||||||||||||||||||||||||||||||||||||||||||||||||||||||||||||||||||||||||||||||||||||||||||||||||||||||||||||||||||||||||||||||||||||||||||||||||||||||||||||||||||||||||||||||||||||||||||||||||||||||||||||||||||||
|
Площадь застройки в м2 |
Минимальная степень огнестойкости |
||
|
дома с противопожарными стенами |
дома без противопожарных стен |
||
|
До 2000 |
До 1000 |
V |
|
|
I |
2000 - 2800 |
1000 - 1400 |
IV |
|
Свыше 2800 |
1400 - 1800 |
III |
|
|
- |
1800 - 2200 |
II |
|
|
До 1600 |
До 800 |
V |
|
|
II |
1600 - 2000 |
800 - 1000 |
IV |
|
Свыше 2000 |
1000 - 1800 |
III |
|
|
- |
1800 - 2200 |
II |
|
|
Любая |
До 1800 |
III |
|
|
III - V |
То же |
1800 - 2200 |
II |
|
Свыше V |
То же |
До 2200 |
II |
3-4. Лестницы, галереи и общие коридоры капитально отремонтированных и модернизированных домов должны отвечать требованиям, изложенным в СНиП II-Л.1-62 «Жилые здания. Нормы проектирования», пп. 1.35 - 1.38, 1.40 - 1.53.
Примечания: 1. Допускается сохранение или сооружение в габаритах существующих стен лестниц с уклонами 1:1,5.
2. Допускается в домах не выше четырех этажей сохранение существующих или сооружение новых лестничных клеток без окон в наружных стенах при условии устройства фонаря для верхнего естественного освещения и дымового люка размером не менее 1´1 м, открывающегося с уровня пола первого этажа.
3-5. В чердаках жилых зданий должен быть предусмотрен сквозной проход высотой не менее 1,6 м. При необходимости устройства в противопожарной стене проема, в последнем должна быть предусмотрена несгораемая или трудносгораемая дверь с пределом огнестойкости не менее 1,5 ч.
3-6. Противопожарные требования к нежилым помещениям, размещаемым в первых, цокольных или подвальных этажах модернизируемых домов, надлежит принимать в соответствии с указаниями СНиП II-Л.1-62 «Жилые здания». Нормы проектирования», пп. 1.55 - 1.60.
3-7. Вентиляционные каналы и ограждающие конструкции вентиляционных камер должны быть запроектированы из несгораемых материалов. В зданиях IV и V степеней огнестойкости допускается проектировать их из сгораемых материалов, защищаемых от огня несгораемыми материалами.
3-8. Шахты и помещения машинных отделений лифтов должны быть ограждены стенами и перекрытиями из несгораемых материалов с пределом огнестойкости не менее 1 ч.
Примечание. При расположении лифта между лестничными мартами допускается ограждение шахт металлическими каркасами с остеклением или с металлическими сетками. Навесные лифты ограждаются остекленными металлическими каркасами.
3-9. На крышах жилых зданий высотой в 10 м и более при уклоне крыши более 10° надлежит предусматривать несгораемые ограждения высотой не менее 0,6 м. При этом устройство глухих парапетов не допускается. Сохранять глухие парапеты разрешается только при ремонте ценных в архитектурно-художественном отношении зданий.
4-1. Инженерное оборудование капитально ремонтируемых и модернизируемых жилых домов следует проектировать в соответствии с требованиями СНиП II-Л.1-62 «Жилые здания. Нормы проектирования пп. 1.64 - 1.73, 1.76; 1.78; 1.79; 1.81 - 1.85.
4-2. Лифты и мусоропроводы следует устраивать в капитально ремонтируемых и модернизируемых жилых зданиях с отметкой пола верхнего этажа выше отметки тротуара или отмостки на 13 м и более.
5-1. При комплексном капитальном ремонте и модернизации жилых домов старой застройки надлежит предусматривать квартиры, предназначаемые для заселения одной семьей. Однокомнатные квартиры, рассчитанные на одиночек и семьи из двух человек, рекомендуется сосредотачивать, как правило, в специально намечаемых домах, конструктивные схемы, ориентация и расположение которых в квартале и районе делают целесообразным использование их после капитального ремонта и модернизации в качестве домов гостиничного типа. В этих домах следует предусматривать повышенный уровень санитарно-технического благоустройства, а также размещение учреждений бытового обслуживания с учетом существующей сохраняемой и вновь создаваемой сети их.
5-2. Набор помещений квартир при перепланировке жилых домов следует принимать в соответствии со СНиП II-Л.1-62 «Жилые дома. Нормы проектирования», п. 2.2, где предусматривается включение в состав квартир жилых помещений - общая комната, спальни и подсобных помещений - кухня, передняя, ванная (или душевая), уборная, хозяйственная кладовая или хозяйственный шкаф.
Примечания: 1. В однокомнатных квартирах жилой площадью до 27 м2 допускается устройство объединенного санитарного узла.
2. В квартирах деревянных и смешанных домов установка ванн (или душей) не обязательна.
5-3. Размеры квартир с различным числом комнат и площади их помещений следует принимать согласно данным табл. 3.
Таблица 3
Типы и основные размеры квартир в капитально отремонтированных и модернизированных домах старой застройки городов
Примечания: 1. В отдельных случаях допускается увеличение площадей квартир, но не более чем на 10 % против величин, указанных в таблице.
2. Как исключение допускается устройство в трехкомнатных квартирах двух спален площадью не менее 6 м2 каждая.
3. Объем кухонь, оборудованных газовыми плитами, должен быть не менее:
|
8 м2 |
- при установке плиты с |
2 конфорками; |
|
12 » |
» |
3» |
|
15 » |
» |
4» |
4. Объем ванных комнат или совмещенных санитарных узлов, оборудуемых газовыми водонагревательными приборами, должен быть не менее 7,5 м3.
5-4. Во всех строительно-климатических зонах, в корпусах, выходящих непосредственно на красные линии улиц с интенсивным транспортным движением (в особенности на улицы без озелененных полос между застройкой и проезжей частью) в целях улучшения санитарно-гигиенических качеств жилья рекомендуется организовывать квартиры со сквозным проветриванием. В III строительно-климатической зоне все квартиры должны быть обеспечены сквозным или угловым проветриванием.
Примечание. Допускается сквозное проветривание квартир через кухни, ванные комнаты (при условии отсутствия в них унитазов) и лестничные клетки.
5-5. При организации квартиры следует стремиться к сближению общей комнаты и передней; общей комнаты и кухни; кухни и передней.
5-6. Жилые комнаты должны иметь входы непосредственно из передней или коридора, а кухни и санитарные узлы - из передней, коридора или шлюза.
Примечания: 1. Допускается устройство входа в одну из спален из общей комнаты;
2. Кухня может иметь дополнительную дверь или окно в стене, отделяющей ее от общей комнаты.
3. Допускается устройство входа из кухни в ванную (душевую) при условии, что в последней нет унитаза.
4. При этом же условии ванная (душевая) может иметь дополнительный вход из спальни.
5-7. Минимальная ширина общей комнаты - 2,5 м; минимальная ширина спальни площадью до 9 м2 - 2 м; минимальная ширина остальных спален - 2,2 м.
Примечание. В квартирах из трех - пяти комнат допускается устройство одной спальни шириной не менее 1,8 м.
5-8. Минимальная ширина кухонь при односторонней расстановке оборудования 1,6 м, а при двухсторонней - 2,2 м. Габариты кухонь должны обеспечивать возможность удобной расстановки санитарно-технического оборудования и мебели.
Примечание. В кухнях с односторонней расстановкой оборудования допускается местное сужение до 1,3 м за счет приставных каналов при условии, что суженная часть помещения не используется для размещения стационарного оборудования.
5-9. В ванных комнатах (душевых) или в объединенных санитарных узлах рекомендуется предусматривать место для постановки стиральной машины.
5-10. Минимальные ширины передних и коридоров надлежит принимать в соответствии с требованиями СНиП II-Л.1-62 «Жилые здания. Нормы проектирования», пп. 2.13 - 2.15.
5-11. Встроенные хозяйственные шкафы и кладовые должны открываться в коридоры, шлюзы, передние или кухни. Открывание их в жилые комнаты не допускается. Один из хозяйственных шкафов должен иметь глубину не менее 0,6 м. Остальные хозяйственные шкафы и встроенные шкафы, предназначенные для хранения книг, посуды и белья, должны иметь глубину не менее 0,3 м (желательно 0,4 м). Минимальная глубина встроенных шкафов для одежды - 0,6 м. Минимальные габариты гардеробных в м определяются таким образом: ширина полосы, занятой одеждой, 0,6, глубина полок для белья 0,4, минимальные размеры свободного пространства 0,7´0,7. Минимальные размеры хозяйственной кладовой - 0,6´1,0 м.
5-12. Над коридорами и шлюзами рекомендуется устраивать антресоли. Минимальная высота антресолей - 0,5 м. Глубина антресолей при доступе к ним с одной стороны и высоте антресолей до 1,5 м не должна превышать 1,2 м, а при большей высоте антресолей - 2,5 м.
Составлению «Рекомендаций по перепланировке и повышению благоустройства жилых домов старой застройки городов» предшествовала большая исследовательская работа, частью которой явилось экспериментальное проектирование. Для составления экспериментальных проектов был отобран двадцать один каменный дом в различных городах Европейской части РСФСР, в том числе четыре дома в Москве, шесть в Ленинграде, один в Горьком, два в Куйбышеве, два в Ростове-на-Дону, три в Калинине, два в Калуге и один в Орле. Дома отбирались по признаку типичности для застройки соответствующих городов в отношении этажности, конфигурации планов, размеров квартир, уровня инженерного оборудования, интенсивности использования участка и т.д. Основанием для определения типичности послужил анализ старого жилого фонда перечисленных городов, данные которого приведены в приложении.
В настоящее время эти дома имеют различный и, как правило, низкий уровень благоустройства. Только семь из них отапливаются централизованно. Подавляющее большинство домов не газифицировано. В большинстве квартир отсутствуют ванные комнаты; кое-где нет и кухонь. Среди имеющихся кухонь - больше половины темных или проходных. Почти ни в одной из квартир нет встроенных шкафов и кладовых. Часть санитарных узлов расположена над жилыми комнатами.
Неудовлетворительны рассматриваемые дома и в санитарно-гигиеническом отношении. В ряде из них (Москва, Воротниковский пер., 3/10; Калинин, Советская ул., 59 и др.) для размещения жилья использованы цокольные и подвальные этажи. Многие жилые комнаты выходят в тесные дворы, плохо освещаются и не инсолируются; имеются жилые комнаты, освещаемые вторым светом через лестничные клетки.
Существеннейшим недостатком отобранных домов является неприспособленность их квартир к посемейному заселению. Значительная часть квартир велика по площади и многокомнатна.
Таблица 4
Технико-экономические показатели планировки домов экспериментального проектирования
(по 21-му проекту, выполненному ЛНИИ АКХ)
|
Адреса домов |
До перепланировки |
После перепланировки |
||||||||||||||||||||||
|
этажность |
жилая площадь в м2 |
полезная площадь в м2 |
количество квартир |
ванных комнат (душевых) |
кухонь |
этажность |
жилая площадь в м2 |
полезная площадь в м2 |
Количество квартир |
ванных комнат (душевых) |
кухонь |
|||||||||||||
|
всего |
в том числе |
шестикомнатных и более |
всего |
в том числе |
||||||||||||||||||||
|
однокомнатных |
двухкомнатных |
трехкомнатных |
четырехкомнатных |
пятикомнатных |
однокомнатных |
двухкомнатных |
трехкомнатных |
четырехкомнатных |
пятикомнатных |
|||||||||||||||
|
Москва |
Тверской бульвар, 7/2 |
3 - 4 |
4975 |
7118 |
42 |
6 |
6 |
6 |
4 |
2 |
18 |
32 |
58 |
4 |
3483 |
5992 |
120 |
48 |
33 |
35 |
4 |
- |
120 |
120 |
|
Воротниковский пер., 3/10 |
5 |
1692 |
2435 |
- |
- |
- |
- |
- |
- |
- |
16 |
34 |
5 |
1352 |
2204 |
30 |
- |
6 |
14 |
5 |
5 |
30 |
30 |
|
|
пер. М. Горького, 3/1 |
3 |
655 |
890 |
19 |
- |
6 |
10 |
3 |
- |
- |
- |
19 |
3 |
549 |
878 |
18 |
6 |
3 |
9 |
- |
- |
18 |
18 |
|
|
ул. Красина, 11 |
4 |
693 |
940 |
17 |
1 |
- |
7 |
9 |
- |
- |
17 |
4 |
665 |
984 |
16 |
- |
8 |
- |
4 |
4 |
16 |
16 |
||
|
Ленинград |
ул. Дзержинского, 54 |
2 - 3 - 4 |
1721 |
2452 |
32 |
3 |
6 |
10 |
6 |
- |
7 |
3 |
32 |
4 |
1327 |
1989 |
40 |
3 |
25 |
12 |
- |
- |
40 |
40 |
|
В/О; 7 линия, 6 |
3 - 5 |
1758 |
2687 |
27 |
- |
5 |
12 |
2 |
2 |
6 |
2 |
27 |
3 - 5 |
1525 |
2374 |
32 |
- |
- |
5 |
19 |
8 |
32 |
32 |
|
|
ул. П. Лаврова, 25 |
4 |
1488 |
2232 |
18 |
- |
2 |
2 |
8 |
4 |
2 |
10 |
18 |
4 |
860 |
1516 |
24 |
- |
10 |
14 |
- |
- |
24 |
24 |
|
|
ул. П. Лаврова, 23 |
4 |
1302 |
1973 |
16 |
- |
8 |
- |
1 |
- |
7 |
7 |
16 |
4 |
1042 |
1669 |
31 |
12 |
8 |
10 |
1 |
- |
31 |
31 |
|
|
пр. Чернышевского, 17 |
5 |
8758 |
11675 |
82 |
6 |
20 |
25 |
11 |
7 |
13 |
46 |
84 |
5 |
6591 |
11163 |
153 |
18 |
34 |
69 |
32 |
- |
153 |
153 |
|
|
ул. Салтыкова-Щедрина, 24 |
5 |
3828 |
5656 |
37 |
5 |
9 |
7 |
4 |
1 |
11 |
18 |
35 |
5 |
2392 |
3993 |
49 |
5 |
1 |
23 |
20 |
- |
49 |
49 |
|
|
Горький |
ул. Пискунова, 18 |
2 - 3 |
616 |
790 |
6 |
- |
- |
- |
2 |
- |
3 |
- |
6 |
3 |
574 |
916 |
18 |
3 |
9 |
6 |
- |
- |
18 |
18 |
|
Куйбышев |
ул. Куйбышева, 58 |
1 - 2 |
1935 |
3101 |
32 |
9 |
6 |
4 |
3 |
4 |
6 |
2 |
41 |
3 |
1474 |
2360 |
42 |
4 |
15 |
21 |
2 |
- |
42 |
42 |
|
ул. Куйбышева, 28 |
3 |
718 |
962 |
11 |
2 |
3 |
- |
2 |
1 |
3 |
3 |
11 |
3 |
560 |
887 |
15 |
6 |
3 |
- |
3 |
3 |
15 |
15 |
|
|
Ростов-на-Дону |
пер. Газетный, 3 |
3 |
406 |
466 |
10 |
3 |
3 |
- |
2 |
2 |
- |
- |
4 |
4 |
405 |
646 |
11 |
- |
6 |
1 |
4 |
- |
11 |
11 |
|
ул. Суворова, 7 |
3 |
716 |
1058 |
9 |
- |
1 |
1 |
1 |
3 |
3 |
8 |
9 |
3 |
532 |
850 |
15 |
1 |
6 |
8 |
- |
- |
15 |
15 |
|
|
Орел |
ул. Салтыкова-Щедрина, 25 - 27 |
1 - 2 |
323 |
391 |
7 |
- |
2 |
2 |
2 |
1 |
- |
- |
- |
3 |
600 |
958 |
18 |
- |
12 |
6 |
- |
- |
18 |
18 |
|
Калинин |
ул. Советская, 59 |
3 |
713 |
914 |
- |
- |
- |
- |
- |
- |
- |
- |
4 |
3 |
500 |
796 |
12 |
- |
2 |
10 |
- |
- |
12 |
12 |
|
ул. Радищева, 12 |
2 |
261 |
349 |
- |
- |
- |
- |
- |
- |
- |
- |
2 |
3 |
310 |
559 |
9 |
- |
3 |
6 |
- |
- |
9 |
9 |
|
|
ул. Крылова, 5 |
2 |
440 |
572 |
7 |
2 |
1 |
2 |
- |
- |
2 |
- |
5 |
3 |
508 |
828 |
15 |
1 |
- |
11 |
3 |
- |
15 |
15 |
|
|
Калуга |
ул. Кирова, 13 |
1 - 2 |
299 |
449 |
- |
- |
- |
- |
- |
- |
- |
- |
8 |
3 |
389 |
702 |
15 |
6 |
6 |
- |
3 |
- |
15 |
15 |
|
ул. Труда, 1 |
3 |
378 |
468 |
- |
- |
- |
- |
- |
- |
- |
- |
4 |
3 |
441 |
703 |
12 |
- |
6 |
6 |
- |
- |
12 |
12 |
|
|
Всего |
33675 |
47578 |
147 |
434 |
- |
26079 |
42967 |
695 |
113 |
196 |
266 |
100 |
20 |
695 |
695 |
|||||||||
В отдельных домах встречаются квартиры в 150 и более м2 жилой площади, с 8 - 10 комнатами или вообще отсутствует четкое деление площади дома на квартиры.
Отобранные дома, как правило, находятся в неудовлетворительном техническом состоянии, вследствие чего перепланировка их должна осуществляться одновременно с комплексным капитальным ремонтом, в процессе которого существующие деревянные конструкции перекрытий и крыш предполагается заменить сборными железобетонными, крутые лестницы с изношенным ступенями реконструировать и т.д.
Характеристика существующей планировки экспериментальных домов приведена в табл. 4 (левая часть).
Для каждого из отобранных домов были составлены проекты перепланировок, предусматривающие повышение уровня благоустройства.
Работа в каждом случае начиналась с изучения участка и составления проекта его перепланировки, предусматривающего расчистку территории и, в том числе, снос отдельных корпусов, позволяющий создать раскрытые дворы, могущие быть использованными для отдыха населения, прогулок с детьми и т.д. Одновременно снос улучшает освещение и инсоляцию помещений сохраняемых корпусов.
Перепланировка квартир проектировалась с учетом возможности использования тех улучшений, которые создавались реконструкцией участка. В результате подавляющее большинство жилых комнат вновь организованных квартир удовлетворительно освещено, а сами квартиры по условиям инсоляции соответствуют нормам, приведенным в предыдущей части «Рекомендаций».
Все квартиры рассчитаны на посемейное заселение. Число комнат поэтому ограничено пятью, как и в новом строительстве; при этом 64 % от общего числа составляют квартиры в 2 и 3 комнаты. Планировочное решение квартир также приспособлено для удобного использования их одной семьей. В каждой квартире четко выделены общая комната и спальни. Кухни, решенные всюду как непроходные кухни-столовые, как правило, сближены с общими комнатами.
Нет ни одной квартиры без ванн, а также без встроенных шкафов, гардеробных или кладовых, причем суммарная площадь последних, приходящаяся в среднем на одну квартиру, близка к рекомендуемым величинам.
Жилые и полезные площади квартир и размеры отдельных их помещений приняты максимально близкими к установленным в «Рекомендациях».
Проекты перепланировки каждого из экспериментальных домов содержат 2 - 3 варианта решений. В результате сравнения были отобраны относительно лучшие варианты, технико-экономические показатели которых приведены в правой части табл. 4.
Сравнение данных, характеризующих дома до и после перепланировки, показывает, что в процессе последней количество квартир существенно увеличилось, а уровень их благоустройства повысился.
Частичный снос, ликвидация жилья в подвалах, разукрупнение квартир и улучшение их планировочных качеств вызвали некоторую потерю жилой площади домов. Общее уменьшение ее по двадцати одному экспериментальному дому составило 5898 м2, или 18 % существовавшей жилой площади. В эту сумму входят потери, связанные с перечисленными выше причинами, а также некоторое увеличение жилой площади за счет пристроек и надстроек.
Для выявления изменений технико-экономических показателей, вызванных собственно перепланировкой и повышением благоустройства квартир, составлена табл. 5, данные которой подсчитаны для совпадающих частей зданий, без учета сноса, пристроек, надстроек и т.п. Из таблицы видно, что по некоторым домам (Москва, ул. Красина, 11; Ленинград, ул. Дзержинского, 54) жилая площадь даже увеличилась. Это произошло за счет ликвидации большого количества коридоров и нежилых помещений, сокращения площадей кухонь и т.д. и оказалось возможным в домах с относительно нешироким корпусом (10 - 11 м).
По другим объектам потери жилой площади, связанные с перепланировкой, колеблются в пределах от 7 % (Ростов-на-Дону, ул. Суворова, 7; Орел, ул. Салтыкова-Щедрина, 24) до 29 % (Куйбышев, ул. Куйбышева, 28). Большие потери характерны для домов с широким корпусом (14 - 15 м), со сложной конфигурацией плана или с низким уровнем благоустройства до перепланировки.
По указанию Министерства Коммунального хозяйства РСФСР в шести из перечисленных выше домов в разных городах намечено в порядке опыта осуществить в 1965 г. комплексный капитальный ремонт с полным благоустройством их и с применением наиболее прогрессивных сборных конструкций и новых синтетических материалов. Для этих домов лаборатория капитального ремонта ЛНИИ АКХ разработала расширенные технические задания на составление проектов комплексного капитального ремонта с повышением благоустройства. Местные проектные организации - Мосжилпроект, Ленжилпроект и проектно-сметные бюро Орла, Калинина и Калуги разрабатывают, на основании этих заданий и при участии сотрудников ЛНИИ, рабочие проекты.
Таблица 5
Технико-экономические показатели планировки домов экспериментального проектирования
(по совпадающим частям зданий)
|
Жилая площадь до ремонта в м2 |
Жилая площадь после ремонта в м2 |
Отношение жилой площади после ремонта к жилой площади до ремонта |
||
|
Москва |
Воротниковский пер., 3/10 |
1354 |
955 |
0,71 |
|
ул. Красина, 11 |
659 |
665 |
1,01 |
|
|
пер. М. Горького, 3/1 |
624 |
549 |
0,87 |
|
|
Тверской бульвар, 7/2 |
4351 |
3482 |
0,80 |
|
|
Ленинград |
В/О; 7 линия, 6 |
1581 |
1445 |
0,91 |
|
ул. Дзержинского, 54 |
1227 |
1239 |
1,01 |
|
|
ул. П. Лаврова, 25 |
1106 |
860 |
0,78 |
|
|
ул. П. Лаврова, 23 |
1302 |
1042 |
0,80 |
|
|
ул. Салтыкова-Щедрина, 24 |
3100 |
2392 |
0,77 |
|
|
пр. Чернышевского, 17 |
8632 |
6574 |
0,76 |
|
|
Горький |
ул. Пискунова, 18 |
559 |
410 |
0,73 |
|
Куйбышев |
ул. Куйбышева, 28 |
719 |
561 |
0,78 |
|
ул. Куйбышева, 58 |
1341 |
1093 |
0,82 |
|
|
Ростов |
пер. Газетный, 3 |
406 |
296 |
0,73 |
|
ул. Суворова, 7 |
566 |
532 |
0,93 |
|
|
Орел |
ул. Салтыкова-Щедрина, 25 - 27 |
242 |
224 |
0,93 |
|
Калинин |
ул. Крылова, 5 |
440 |
330 |
0,75 |
|
ул. Радищева, 12 |
261 |
207 |
0,79 |
|
|
ул. Советская, 59 |
628 |
500 |
0,80 |
|
|
Калуга |
ул. Кирова, 13 |
299 |
258 |
0,86 |
|
ул. Труда, 1 |
341 |
294 |
0,86 |
|
|
Всего |
29738 |
23908 |
0,80 |
|
Ниже приводятся краткие сведения с иллюстративными материалами по домам экспериментального проектирования, включая и дома опытного комплексного капитального ремонта.
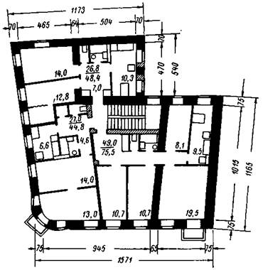
Москва, Тверской бульвар, 7/2
Дом отобран для эксперимента по согласованию с Мосжилуправлением и институтом Мосжилпроект. Намеченное к ремонту здание представляет собой 3 - 4-этажный каменный жилой дом с подвалом. Он расположен на углу Тверского бульвара и Малой Бронной улицы и имеет сложный по конфигурации план с внутренним замкнутым двором шириной в 6 - 10 м (рис. 2). От соседнего дома по Тверскому бульвару его отделяет узкий около 4 м проход, в который выходят окна части жилых комнат. Эти комнаты признаны по условиям освещения непригодными для использования их под постоянное жилье. Общий вид дома изображен на рис. 3.
Рис. 2. Москва, Тверской бульвар, 7/2. Существующая планировка участка
В прошлом здание служило гостиницей, а в настоящее время представляет собой квартирный жилой дом. Квартиры в доме, как правило, многокомнатные с коммунальным заселением; часть из них имеет темные и проходные кухни, количество ванных в доме сравнительно велико.
Рис. 3. Москва, Тверской бульвар, 7/2. Общий вид дома
|
Жилая площадь дома.................................. 4975 м2 |
|
Полезная площадь...................................... 7118 » |
Рис. 4. Москва, Тверской бульвар, 7/2. Существующая планировка III этажа
|
Количество квартир.............................. 42 |
|
» комнат................................ 274 |
|
В том числе темных............................... 8 |
|
Количество кухонь................................. 58 |
|
В том числе: |
|
темных............................................... 41 |
|
проходных......................................... 32 |
|
Количество ванных............................... 32 |
|
Средняя жилая площадь квартиры....... 118,4 м2 |
Дом оборудован водопроводом, канализацией и газифицирован. Отопление центральное. На рис. 4 показана существующая планировка III этажа.
Предварительное обследование технического состояния дома выявило необходимость частичного ремонта стен и полной смены междуэтажных перекрытий. По заданию, в соответствии с планом реконструкции района, 3-этажная часть дома, расположенная внутри домовой территории, предназначается к сносу.
Рис. 5. Москва, Тверской бульвар, 7/2. Новая планировка участка
Комплексный капитальный ремонт по заданию Мосжилпроекта предполагается провести с обезличиванием жилой площади; заселён дом после ремонта будет либо жильцами из других капитально ремонтируемых домов того же района Москвы, либо на тех же основаниях, на каких заселяются новые дома. Это условие позволяет свободно распоряжаться всей полезной площадью дома, экономично организуя новую его планировку.
Техническое задание на составление проекта экспериментального дома содержит три варианта перепланировки. Все они предполагают ликвидацию жилых квартир в подвале и снос 3-этажного флигеля, позволяющий организовать приемлемый по размерам двор, открытый во внутриквартальное пространство (рис. 5).
Рис. 6. Москва, Тверской бульвар, 7/2. Новая планировка типового этажа
На рис. 6 показана планировка типового этажа по варианту III. Его показатели:
|
жилая площадь дома.............................................. 3483 м2 |
|
полезная площадь................................................... 5992 » |
|
количество квартир................................................ 120 |
|
» комнат.................................................. 235 |
|
средняя жилая площадь квартиры........................ 29 м2 |
|
» площадь комнаты......................... 14,8 » |
По этому варианту предполагается устройство в корпусе, выходящем на бульвар, и в части корпуса, выходящего на Малую Бронную улицу, однокомнатных и небольших двухкомнатных квартир, объединенных коридором. Остальная площадь дома разделена на секции, обслуживаемые существующими и вновь создаваемыми лестницами. Число комнат в квартирах этих секций колеблется от 1 до 5. Затемненная площадь, освещаемая окнами, обращенными в узкий проход между домами, использована для размещения новой лестничной клетки, кухонь и жилых комнат двух квартир, которые предполагается использовать в качестве квартир маневренного жилого фонда.
Все остальные жилые комнаты дома освещены достаточно хорошо, и ориентация всех квартир отвечает требованиям СНиП. Две трети квартир не имеют проходных комнат, в остальных из общей комнаты организованы входы в одну спальню. Кухни всех квартир имеют размеры, достаточные для использования их в качестве кухонь-столовых. Все квартиры, кроме однокомнатных и восьми двухкомнатных квартир малой площади, имеют раздельные санитарные узлы с ванными комнатами, габариты которых позволяют поставить полноразмерную ванну и стиральную машину.
Несколько повышенный размер потерь жилой площади в доме вызван сносом части корпуса, а также связан с организацией в доме множества однокомнатных квартир (40 % от всего числа квартир), нужда в которых в Москве, как и в ряде других городов, очень велика.
Москва, Воротниковский пер., 3/10
Второй московский жилой дом, отобранный в качестве экспериментального, представляет собой 5-этажное здание с подвалом и одноэтажной пристройкой, расположенное на углу Старопименовского и Воротниковского переулков с отступом от красной линии последнего (рис. 7).
Угловое решение плана и небольшая высота пристройки обеспечивают сравнительно хорошие проветривание участка и освещение всех фасадов дома.
Рис. 7. Москва, Воротниковский пер., 3/10. Существующая планировка участка
В настоящее время дом имеет смешанную коридорно-квартирную планировку с покомнатным, как правило, заселением, с недостаточным числом кухонь, часть из которых лишена естественного освещения. Несколько квартир расположено в подвале.
|
Жилая площадь дома........................ 1692 м2 |
|
Полезная площадь............................. 2435 » |
|
Количество комнат........................... 114 |
|
» кухонь............................ 34 |
|
В том числе: |
|
темных......................................... 22 |
|
проходных................................... 15 |
|
Количество ванн............................... 16 |
|
Средняя площадь комнаты............... 14,8 м2 |
Дом оборудован водопроводом, канализацией, центральным отоплением и газифицирован (рис. 8).
Предварительное обследование технического состояния дома показало необходимость проведения частичного ремонта стен и полной смены междуэтажных перекрытий.
Рис. 8. Москва, Воротниковский пер., 3/10. Существующая планировка III этажа
В соответствии с проектом реконструкции района города одноэтажная пристройка предназначена к сносу. Это позволит озеленить и благоустроить участок (рис. 9).
Принцип обезличивания площади проведен и в этом проекте, как и в остальных проектах описываемых экспериментальных домов.
В настоящее время в доме имеется всего две лестницы, что явно недостаточно для деления его на секции, необходимого при упорядочении планировки. Поэтому все четыре варианта решений, составленные в процессе проектирования, предусматривают создание дополнительной лестничной клетки, размещенной примерно посередине между существующими. Другим, общим для всех вариантов, является предложение сделать пристройку к северному крылу дома, используя при этом большей частью существующие фундаменты. Такая пристройка улучшает общую компоновку дома и позволяет лучше загрузить существующую северную лестничную клетку, располагая у нее дополнительно более 100 м2 жилой площади.
Рис. 9. Москва, Воротниковский пер., 3/10. Новая планировка участка
По варианту IV, типовой этаж которого изображен на рис. 10, предполагается, кроме того, реконструкция юго-восточного крыла дома и увеличение количества площади, обслуживаемой расположенной здесь лестницей. В новой планировке план вытянут в юго-восточном направлении до границ, определяемых протяженностью соседнего 6-этажного жилого дома, что позволяет хорошо использовать участок и организовать компактный двор с простыми и ясными очертаниями в плане (см. рис. 9). Исходным положением при составлении варианта являлось стремление организовать в доме возможно большее число квартир, при возможно меньшей жилой площади каждой из них. Препятствиями в этом отношении являлись, во-первых, неудачное для квартирной планировки расположение существующих лестниц, на каждую из которых не может быть выведено более двух квартир, и, во-вторых, необходимость по условиям ориентации проектировать в корпусе, выходящем на Старопименовский пер., квартиры с двухсторонним освещением.
Рис. 10. Москва, Воротниковский пер., 3/10. Новая планировка типового этажа.
Проект предусматривает организацию квартир из 2 - 5 комнат; при этом около 60 % жилой площади дома сосредоточено в 2 - 3-комнатных квартирах. Ниже приводятся основные показатели новой планировки дома по принятому варианту IV:
|
жилая площадь дома........................... 1352 м2 |
|
полезная площадь................................ 2204 » |
|
количество квартир............................. 30 |
|
» комнат.............................. 99 |
|
средняя жилая площадь квартиры..... 45,1 м2 |
Уровень благоустройства квартир и условия проживания в них близки к уровню благоустройства и условиям проживания в квартирах жилых домов последних лет постройки.
Ленинград, ул. Дзержинского, 54
Намеченное для осуществления в нем опытного капитального ремонта здание представляет собой жилой дом, выходящий на красную линию ул. Дзержинского вблизи от пересечения последней с наб. Фонтанки. Периметр квартала, в котором расположен экспериментальный дом, обстроен чрезвычайно плотно; с северо-запада и с юго-востока к последнему вплотную примыкают многоэтажные жилые здания. Северо-восточная стена дома выходит в озелененное внутриквартальное пространство (рис. 11).
Здание имеет характерную для многих ленинградских домов конфигурацию плана с внутренним замкнутым двором, обстройку которого составляют 4-этажный лицевой двухпролетный корпус и более низкие, 2 - 3-этажные дворовые однопролетные корпуса.
Фотография уличного фасада дома приведена на рис. 12.
Величина квартир, расположенных в лицевом корпусе дома, значительно превышает величину квартир дворовых корпусов. Заселены те и другие в подавляющем большинстве коммунально, многие имеют темные или проходные кухни, почти во всех отсутствуют ванны (рис. 13).
Показатели по дому приведены ниже:
|
жилая площадь дома................................... 1721 м2 |
|
полезная площадь........................................ 2452 » |
|
количество квартир..................................... 32 |
|
» комнат............................................... 121 |
|
в том числе темных..................................... 3 |
|
количество кухонь....................................... 32 |
|
в том числе темных..................................... 10 |
|
проходных.................................................... 22 |
|
количество ванных..................................... 3 |
|
средняя жилая площадь квартиры............. 54,8 м2 |
|
» площадь комнаты.............. 14,1 » |
Дом оборудован водопроводом, канализацией и газифицирован. Отопление печное.
Произведенное обследование состояния конструкций дома показало, что фундаменты в ремонте не нуждаются; стены требуют частичного ремонта разрушенных и выветрившихся участков; деревянные междуэтажные перекрытия должны быть заменены полностью, так же как и перегородки и полы во всех квартирах.
Рис. 11. Ленинград, ул. Дзержинского, 54. Существующая планировка участка
Рис. 12. Ленинград, ул. Дзержинского, 54. Фасад дома
Дом № 54 входит в комплекс домов по ул. Дзержинского, намеченных к ремонту и реконструкции, причем одновременно предполагается провести работы по разуплотнению застройки в этой части квартала. Одним из мероприятий этого разуплотнения будет снос 3-этажного северо-восточного корпуса экспериментального дома, что обеспечит объединение его двора с озелененным внутриквартальным пространством. Потерю жилой площади, вызываемую этим сносом, предполагается отчасти компенсировать надстройкой на два этажа 2-этажного корпуса (рис. 14). Последний планировочно объединяется с примыкающим к нему корпусом дома № 56, этажность которого снижается.
Рис. 13. Ленинград, ул. Дзержинского, 54. Существующая планировка III этажа
Сравнительно небольшая глубина корпусов (максимальные пролеты не превышают 6,0 м) и возможность дополнительного их освещения, появляющаяся в результате осуществления намеченного сноса, облегчают условия перепланировки дома.
Рис. 14. Ленинград, ул. Дзержинского, 54. Новая планировка участка
Рис. 15. Ленинград, ул. Дзержинского, 54. Новая планировка типового этажа
На рис. 15 показано решение типового этажа дома, разработанное институтом Ленжилпроект на основании технического задания лаборатории капитального ремонта ЛНИИ АКХ.
Проект предусматривает ликвидацию жилья в первом этаже лицевого корпуса и размещение там, кроме булочной, приемного пункта механической прачечной, а также разборку существующих лестничных клеток и сооружение трех новых.
Новые квартиры содержат от одной до трех комнат и по площади близки к квартирам нового строительства. Большая их часть имеет сквозное проветривание, что особенно важно для жилых помещений, выходящих на шумную улицу Дзержинского.
Показатели проекта:
|
жилая площадь дома......................................... 1327 м2 |
|
полезная площадь.............................................. 1989 » |
|
количество квартир........................................... 40 |
|
» комнат............................................ 89 |
|
средняя жилая площадь квартиры................... 33,2 м2 |
|
» площадь комнаты................................ 14,9 « |
Орел, ул. Салтыкова-Щедрина, 27
Объектом экспериментального проектирования является застройка участка, занятого в настоящее время домами № 25 и 27. Оба дома представляют собой компактные объемы и отделены от соседних зданий на расстояние, достаточное для обеспечения нормального освещения и инсоляции участка (рис. 16, а).
Дом № 25 одноэтажный, кирпичный, с подвалом. Жилые помещения его сгруппированы в три квартиры без кухонь, передних, ванных и уборных. Дом № 27 двухэтажный, тоже кирпичный и тоже с подвалом. В каждом этаже расположено две неблагоустроенные квартиры (рис. 17). Оба дома имеют печное отопление, не газифицированы и лишены водопровода и канализации.
Ниже приведены показатели, характеризующие существующую планировку домов:
|
жилая площадь домов........................................ 323 м2 |
|
полезная площадь............................................... 391 » |
|
количество квартир............................................ 7 |
|
» комнат.............................................. 23 |
|
средняя жилая площадь квартиры.................... 46,1 м2 |
|
» площадь комнаты................................. 14 » |
Техническое задание на комплексный капитальный ремонт с реконструкцией предусматривает надстройку дома № 27 до трех этажей, снос дома № 25 и сооружение на его месте 3-этажной пристройки к дому № 27. Намечено благоустройство придомового участка - озеленение его, асфальтирование проездов, разборка деревянных надворных построек (рис. 16, б). Хозяйственные сараи для жильцов размещаются в подвале дома и пристройке. Здание подключается к сетям водоснабжения, канализации и центрального отопления. Капитальность его повышается в связи с заменой существующих деревянных перекрытий сборными железобетонными.
Рис. 16. Орел, ул. Салтыкова-Щедрина, 27. Планировка участка
а - существующее положение; б - проектное предложение; 1 - ремонтируемый дом; 2 - дом, предназначенный к сносу; 3 - пристройка
Рис. 17. Орел, ул. Салтыкова-Щедрина, 27. Существующая планировка второго этажа
Планировка дома № 27 изменяется коренным образом. Часть северо-восточной его стены разбирается; сооружение новой стены позволяет выровнять габариты дома, что улучшает условия освещения и инсоляции выходящих во двор помещений и создает предпосылки для организации компактных квартир.
Рис. 18. Орел, ул. Салтыкова-Щедрина, 27. Новая планировка типового этажа
Ширина корпуса пристройки принята равной ширине корпуса ремонтируемого дома, что позволяет применить при ремонте и строительстве однотипные конструкции перекрытий и крыши (рис. 18).
Дом № 27 и пристройка представляют собою две изолированные секции с тремя квартирами на этаж в каждой. Последнее позволяет создать в каждой квартире удовлетворительные условия инсоляции. Планировка большинства квартир схожа с планировками квартир нового строительства; проходных комнат в доме нет, все санитарные узлы раздельные, кухни, как правило, имеют площадь свыше 7 м2.
Показатели новой планировки:
Техническое задание предусматривает сохранение существующей высоты первого этажа дома № 27 (3,2 м), незначительное сокращение высоты второго (тоже до 3,2 м) и сооружение надстройки с высотой помещений в 2,5 м. Высоты этажей пристройки повторяют высоты этажей ремонтируемого дома. Окна последнего, за исключением одного на этаж, в связи с этим сохраняются без перебивки, что позволяет свести работы по реконструкции фасадов к стесыванию существующих пилястр и сбивке сандриков, необходимой для того, чтобы избежать повторения их на пристройке, а также к устройству балконов, предусмотренных в каждой квартире второго и третьего этажей.
Калинин, ул. Советская, 59
В качестве экспериментального дома комплексного капитального ремонта местными организациями города выделено 3-этажное здание. Оно имеет компактный прямоугольный план, входит в обстройку северного фронта ул. Советской и стоит по красной линии этой улицы, примыкая вплотную справа и слева к аналогичным каменным 2 - 3-этажным жилым домам старой постройки (рис. 19 и 20). В первом этаже расположены две коммунальные квартиры со своими кухнями и уборными. Жилые комнаты второго и третьего этажей обслуживаются поэтажно одной кухней и двумя уборными. Ванн в доме нет. Несколько жилых комнат расположено в подвале. На рис. 21 показана существующая планировка второго этажа.
Показатели существующей планировки дома:
|
жилая площадь............................................. 713 м2 |
|
полезная площадь........................................ 914 » |
|
количество комнат....................................... 36 |
|
количество кухонь........................................ 4 |
|
в том числе темных..................................... 1 |
|
средняя площадь комнаты........................... 19,8 м2 |
Рис. 19. Калинин, ул. Советская, 59. Существующая планировка участка
Рис. 20. Калинин, ул. Советская, 59. Фасад дома
Рис. 21. Калинин, ул. Советская, 59. Существующая планировка II этажа
Дом оборудован водопроводом и канализацией. В кухнях установлены огневые плиты. Отопление печное.
Фундаменты здания бутовые, стены кирпичные, уличный фасад оштукатурен; перекрытия по деревянным балкам, перегородки деревянные; кровля шиферная; лестницы заключены в капитальные стены и имеют железобетонные ступени.
По данным технического обследования фундаменты дома находятся в удовлетворительном состоянии, так же как и стены; междуэтажные перекрытия, балки которого большей частью загнили, перекрытия лестничных клеток, полы в жилых комнатах и большая часть заполнений оконных и дверных проемов требуют полной замены; в негодность пришли водопровод, канализация и электропроводка дома.
Перепланировка и благоустройство выбранного для эксперимента дома осложнены, во-первых, его широтной ориентацией, во-вторых, большой глубиной корпуса (пролеты в свету достигают 7,3 м) и, в-третьих, наличием проезда по первому этажу и двух лестничных клеток по обе его стороны. Ликвидация проезда и сооружение на его месте одной лестничной клетки дала бы возможность получить дополнительно значительное количество жилой площади. Однако существующее использование квартала, наличие сараев и других деревянных и капитальных построек по границам участка дома не дают возможности уже в ближайшее время объединить планировочно квартал и пользоваться для попадания во двор проездами соседних домов. Поэтому все четыре разработанные в техническом задании варианты перепланировок предполагают сохранение существующих проезда и лестничных клеток. В дальнейшем, при реконструкции соседних зданий и объединений участков, сохранение проезда в экспериментальном доме позволит, вероятно, ликвидировать часть проездов в других зданиях и получить, таким образом, дополнительную жилую площадь. На рис. 22 приведено благоустройство участка.
Рис. 22. Калинин, ул. Советская, 59. Новая планировка участка
На рис. 23 показана планировка типового этажа по варианту IV. По этому варианту предполагается создание, в основном, трехкомнатных квартир, половина из которых имеет двустороннее освещение, а остальные - южную ориентацию. Жилая площадь квартир относительно невелика; максимум ее составляет 47,5 м2.
Рис. 23. Калинин, ул. Советская, 59. Новая планировка типового этажа
Жилые комнаты, расположенные в подвальном помещении, ликвидируются.
Показатели проектного решения по принятому варианту:
|
жилая площадь дома.................................... 500 м2 |
|
полезная площадь......................................... 796 » |
|
количество квартир...................................... 12 |
|
» комнат....................................... 34 |
|
средняя жилая площадь квартиры.............. 41,7 м2 |
|
» площадь комнаты................ 14,7 » |
Калуга, ул. Кирова, 13
Техническое задание составлено для жилого дома, расположенного на углу улиц Кирова и Рылеева и представляющего собой свободностоящий дом с компактным планом.
В настоящее время в той части квартала, где находится рассматриваемое здание, существует еще два каменных жилых дома в 2 и 3 этажа. Одно из них, расположенное по ул. Кирова, примыкает почти вплотную к экспериментальному дому, другое, выходящее на ул. Рылеева, отстоит на значительном расстоянии. Свободное пространство застроено деревянными сараями (рис. 24).
Намеченное к ремонту здание имеет 2 этажа. В настоящее время дом не имеет выраженной квартирной планировки и его жилые комнаты, среди которых есть темные, группируются вокруг нескольких кухонь, частью проходных. Ванных в доме нет, и единственная уборная, расположенная на втором этаже, обслуживает всех жильцов дома (рис. 25).
Ниже приведены показатели, характеризующие существующую планировку дома:
|
жилая площадь дома....................................... 299 м2 |
|
полезная площадь............................................ 449 » |
|
количество жилых комнат.............................. 18 |
|
в том числе темных......................................... 1 |
|
количество кухонь........................................... 8 |
|
в том числе проходных................................... 6 |
|
средняя площадь комнаты.............................. 16,7 м2 |
Фундаменты здания бутовые, стены кирпичные, оштукатуренные, перекрытия и стропила - деревянные, кровля металлическая, лестницы деревянные и не заключены в капитальные стены.
По данным технического обследования, фундаменты дома находятся в хорошем состоянии; стены требуют частичного ремонта с заделкой незначительных трещин и перекладкой отдельных участков; междуэтажное и чердачное перекрытия должны быть заменены полностью, так же как и лестницы. Находятся в плохом состоянии и требуют замены полы, оконные переплеты и заполнения дверей.
Положение экспериментального дома на участке и существующая застройка последнего делают целесообразным надстройку дома до трех этажей и пристройку к нему корпуса по ул. Рылеева.
Имеющиеся данные о грунтах, большой срок существования здания и капитальность его стен дают основания предполагать, что надстройка дома может быть осуществлена без проведения каких-либо сложных мероприятий по усилению существующих конструкций фундаментов и стен. Пристройка к дому может быть выполнена по типовому проекту подходящей этажности и протяженности (рис. 26). Таким образом, вся рассматриваемая часть квартала, а впоследствии, вероятно, и весь квартал, окажется застроенным капитальными жилыми домами.
Рис. 24. Калуга, ул. Кирова, 13. Существующая планировка участка
Рис. 25. Калуга, ул. Кирова, 13. Существующая планировка II этажа
Близость одного из существующих домов, предполагаемая пристройка нового корпуса, а также компактный план в сочетании со сравнительно большим пятном застройки дома затрудняют освещение его жилых и подсобных помещений.
В этих условиях наиболее целесообразной является структура дома с центральной лестницей, освещенной сверху. Сейчас дом не имеет капитальных лестниц, и поэтому ничто не мешает принять указанную структуру, что и сделано в проекте перепланировки.
Техническое задание содержит три варианта решения перепланировки и благоустройства дома. На рис. 27 показан типовой этаж III, выбранный в качестве лучшего варианта.
Показатели этого варианта:
|
жилая площадь дома............................................ 389 м2 |
|
полезная площадь................................................ 702 » |
|
количество квартир............................................. 15 |
|
» комнат.............................................. 30 |
|
средняя жилая площадь квартиры..................... 25,9 м2 |
|
» площадь комнаты....................... 12,9 » |
Количество комнат в квартирах различно - от одной до четырех. Небольшие размеры квартир делают возможным их посемейное заселение уже в настоящее время.
Рекомендуемые для экспериментальных домов сборные конструкции, новые материалы и оборудование
Технические задания на составление проектов комплексного капитального ремонта содержат, кроме материала, о котором говорилось выше, еще и рекомендации по применению при ремонте прогрессивных конструкций, новых материалов и оборудования, адресованные тем проектным организациям, которые разрабатывают рабочие чертежи для экспериментальных домов.
В соответствии с этими рекомендациями перекрытия во всех домах следует проектировать сборными из предварительно напряженных железобетонных настилов типа КНП, УКН, КНПД и БП, разработанных Ленинградским научно-исследовательским институтом АКХ, а крыши - из предварительно напряженных ребристых панелей ПР, также разработанных ЛНИИ АКХ, с кровлей из рулонных материалов.
Для межкомнатных и межквартирных перегородок рекомендуется применять гипсобетонные стандартные плиты толщиной в 8 см; межквартирные перегородки должны осуществляться из двух рядов таких плит с воздушной прослойкой между ними в 4 - 5 см. Перегородки санитарных узлов предлагается проектировать из железобетонных сборных панелей по чертежам Ленжилпроекта (альбом 22-НТ) или из шлакобетонных плит заводского изготовления. Предусматриваются мероприятия по звукоизоляции перегородок в соответствии с разработками ЛНИИ АКХ.
Рис. 26. Калуга, ул. Кирова, 13. Новая планировка участка
1 - ремонтируемый и надстраиваемый дом; 2 - предполагаемая пристройка
Рис. 27. Калуга, ул. Кирова, 13. Новая планировка типового этажа
Полы жилых комнат, передних и коридоров предлагается выполнять из полихлорвиниловых плиток по теплому основанию, полы кухонь и санитарных узлов - бесшовными мастичными на поливинилацетатной мастике. Для полов санитарных узлов может также быть применен релин. Конструкции оснований под различные полы должны осуществляться по рекомендациям ЛНИИ АКХ.
Для лестничных поручней рекомендуется полихлорвинил, а для дверных ручек - аминопласт.
Для окраски стен жилых комнат предлагаются водно-эмульсионные синтетические краски различных колеров; для окраски потолков всех помещений - поливинилацетатные краски. Стены коридоров и передних должны быть оклеены влагостойкими обоями, панели в ванных, уборных и на кухнях - облицованы полистирольными плитками.
Окраску фасадов зданий рекомендовано производить перхлорвиниловыми или полистирольными красками.
Предусматривается монтаж внутридомовых водопроводных и канализационных сетей из винипластовых и полиэтиленовых труб и деталей, а монтаж систем центрального отопления вести из беззамерных заготовок индустриального изготовления.
Москва, ул. Красина, 11
Здание представляет собой достаточно типичный для старой застройки Москвы 4-этажный кирпичный дом, стоящий в глубине участка, в настоящее время мало благоустроенного (рис. 28).
Квартиры дома, в основном трех- и четырехкомнатные, не имеют ванных; большая часть жилых комнат и кухонь - проходные; некоторые кухни не имеют естественного освещения.
На рис. 29 показана существующая планировка третьего этажа.
Показатели по дому:
|
жилая площадь.................................. 693 м2 |
|
полезная площадь............................. 940 » |
|
количество квартир.......................... 17 |
|
» комнат........................... 58 |
Несмотря на сравнительно небольшой размер квартир (средняя жилая площадь их составляет 40,8 м2), они плохо приспособлены для посемейного заселения, так как их планировочная структура затрудняет деление жилых комнат по функциональному назначению.
Рис. 28. Москва, ул. Красина, 11. Существующая планировка участка
Рис. 30. Москва, ул. Красина, 11. Новая планировка участка
Рис. 29. Москва, ул. Красина, 11. Существующая планировка III этажа
Экспериментальный проект, выполненный в лаборатории ЛНИИ АКХ, предусматривает расчистку участка, благоустройство его (рис. 30), ликвидацию одной из лестниц, реконструкцию другой и коренную перепланировку квартир, превращающую их в благоустроенные, сходные с квартирами нового строительства. Из рис. 31 видно, что все они имеют ясно выраженные общие комнаты и спальни; в каждой из квартир есть встроенные шкафы; все комнаты хорошо освещены; количество проходных комнат сравнительно невелико - две на этаж. Показатели, характеризующие новое решение, приведены ниже:
|
жилая площадь дома.......................... 665 м3 |
|
полезная площадь дома...................... 984 » |
|
количество квартир............................ 16 |
|
» комнат............................. 52 |
Рис. 31. Москва, ул. Красина, 11. Новая планировка типового этажа
Сравнение приведенных данных показывает, что в домах, аналогичных рассматриваемому, существенное улучшение условий проживания может быть достигнуто при сравнительно небольших потерях жилой площади.
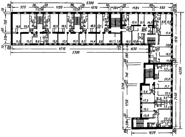
Ленинград, ул. Салтыкова-Щедрина, 24
Квартал, расположенный в Дзержинском районе и ограниченный ул. Салтыкова-Щедрина, пр. Чернышевского, ул. П. Лаврова и Литейным проспектом, характерен для застройки центральной части Ленинграда как в отношении размеров, так и в отношении плотности застройки (около 65 %). На рис. 32 изображена его восточная часть, где расположен дом № 24 по ул. Салтыкова-Щедрина.
Дом имеет 5 этажей и мансарду. Построен он незадолго до революции и находится в удовлетворительном техническом состоянии. Моральный износ его очень велик. Как видно из рис. 33 и табл. 4, в доме много квартир из шести и более комнат; площадь некоторых из комнат достигает 40 м2; велик процент проходных кухонь; ванны отсутствуют в половине квартир; часть жилья (около 500 м2) размещена в подвале.
Рис. 32. Ленинград. Существующая планировка участков домов № 24 по ул. Салтыкова-Щедрина и № 17 по пр. Чернышевского
Экспериментальный проект перепланировки был составлен для лицевого корпуса дома; показатели, характеризующие его существующую планировку, приведены ниже:
|
жилая площадь корпуса............................ 3828 м2 |
|
полезная площадь..................................... 5656 » |
|
количество квартир.................................. 37 |
|
» жилых комнат....................... 175 |
Корпус ориентирован по широте и поэтому в новой планировке одностороннее освещение допущено только в квартирах, обращенных на юг, восток и запад. Остальные квартиры освещаются с двух сторон и имеют сквозное проветривание. Пропорции ряда жилых комнат равны 1:2,2 и даже 1:2,5, что связано с большими пролетами корпуса и со стремлением выделить на его площади возможно большее число комнат (рис. 34).
Подавляющее большинство новых квартир содержит три или четыре жилые комнаты; пятикомнатных квартир в доме нет. Характерным для рассматриваемого проекта являются относительно большие жилые и, особенно, полезные площади квартир; главная причина этого - в упомянутой уже большой ширине корпуса, сложной его конфигурации и неблагоприятной ориентации.
Показатели проектной планировки:
|
жилая площадь корпуса............................ 2392 м2 |
|
полезная площадь..................................... 3993 » |
|
количество квартир.................................. 49 |
|
» комнат................................... 156 |
Рис. 33. Ленинград, ул. Салтыкова-Щедрина, 24. Существующая планировка III этажа лицевого корпуса
Ленинград, пр. Чернышевского, 17
Непосредственно к дому № 24 по ул. Салтыкова-Щедрина примыкает 5-этажный дом № 17 по ул. Чернышевского (рис. 32).
Первый этаж его почти полностью занят встроенными обслуживающими учреждениями: столовой, магазином, фотоателье и т.д. Второй, третий и четвертый этажи содержат квартиры с числом комнат от одной до двенадцати. Планировка этих квартир похожа на планировку квартир рассмотренного выше дома № 24 и характерна, вообще, для старого жилого фонда Ленинграда. В них много комнат с большой площадью, проходных кухонь, кухонь без естественного освещения и т.д. Ванные есть только в половине квартир.
Пятый этаж занят общежитием коридорной системы, планировка которого характеризуется чрезвычайно высоким значением коэффициента к1 (отношение жилой площади к полезной), что свидетельствует в данном случае о низком уровне благоустройства. На рис. 35 изображена существующая планировка III этажа северо-восточной части лицевого корпуса.
Рис. 34.
Ленинград, ул. Салтыкова-Щедрина, 24.
Новая планировка типового этажа лицевого корпуса
Показатели, приведенные ниже, подсчитаны для лицевых корпусов дома:
|
жилая площадь корпусов.......................... 8758 м2 |
|
полезная площадь...................................... 11675 » |
|
количество квартир................................... 82 плюс общежитие |
|
» комнат.................................... 388 |
Экспериментальный проект перепланировки составлен для той же части дома, для которой подсчитаны приведенные выше показатели. Разная ориентация корпусов позволила по-разному подойти к организации квартир в них. В корпусе с меридиональной ориентацией новые квартиры выходят на одну сторону, а в широтных корпусах имеют двустороннее освещение. В односторонних квартирах санитарные узлы отделены от кухонь и отнесены к средней стене корпуса. Такой прием позволил сократить глубину жилых комнат и, соответственно, получить сравнительно небольшие по площади квартиры из одной, двух и трех комнат. В квартирах, выходящих на две стороны, подобное размещение санитарных узлов нецелесообразно. Здесь они планировочно объединены с кухнями. В этой части дома большая часть площади сосредоточена в четырехкомнатных квартирах (рис. 36).
Показатели новой планировки:
|
жилая площадь корпусов.......................... 6591 м2 |
|
полезная площадь корпусов...................... 11163 » |
|
количество квартир................................... 153 |
|
» комнат.................................... 421 |
Горький, ул. Пискунова, 18
Экспериментальный дом состоит из 3-этажного лицевого корпуса и 2-этажной дворовой пристройки к нему. Он расположен на небольшом участке, плотно застроенном жилыми и нежилыми сооружениями (рис. 37, а). Часть жилых помещений расположена в подвале; остальной подвал и почти весь первый этаж заняты бытовой мастерской. Дом оборудован водопроводом и канализацией; отопление - печное.
Проект комплексного капитального ремонта с повышением благоустройства рассматриваемого дома выполнен проектно-сметным бюро Горжилуправления г. Горького. Проект предусматривает надстройку дворового корпуса на один этаж и центральное отопление. Существующая планировка дома оставлена почти без изменений; сохранена коридорная система, общие кухни и санитарные узлы без ванн. Только в дворовом корпусе запроектированы трехкомнатные квартиры с довольно низким уровнем благоустройства (рис. 38).
Рис. 35.
Ленинград, пр. Чернышевского, 17.
Существующая планировка III этажа
северо-восточной части лицевого корпуса
Рис. 36.
Ленинград, пр. Чернышевского, 17.
Новая планировка типового этажа северо-восточной части лицевого корпуса
Показатели проекта:
|
жилая площадь дома....................................... 616 м2 |
|
полезная площадь............................................ 790 » |
|
количество квартир......................................... 6 |
|
» комнат.......................................... 39 |
Некоторое увеличение площади и количества комнат по сравнению с существующим положением достигнуто в проекте за счет сокращения объема встроенных помещений.
Рис. 37. Горький, ул. Пискунова, 18. Планировка участка
а - существующее положение; б - проектное предложение
Экспериментальный проект, составленный лабораторией капитального ремонта ЛНИИ АКХ, предполагает расчистку и благоустройство участка дома (рис. 37, б), ликвидацию жилья в подвале, организацию квартир для посемейного заселения на всей площади дома, в том числе и в первом этаже, в помещениях, занимаемых до ремонта мастерскими.
На рис. 39 показан план типового этажа. Как видно из него, в доме организованы одно-, двух- и трехкомнатные квартиры с площадями, равными или близкими к площадям квартир такого типа в новом строительстве, что потребовало переноса существующей лестничной клетки и создания новой.
Показатели проекта:
|
жилая площадь дома.................................. 574 м2 |
|
полезная площадь....................................... 916 » |
|
количество квартир.................................... 18 |
|
» комнат..................................... 39 |
Как видно из сравнения цифр, потери жилой площади по дому значительны, что объясняется чрезвычайно низким уровнем благоустройства дома до ремонта.
Рис. 38. Горький,
ул. Пискунова, 18. Новая планировка типового этажа
(решение проектно-сметного бюро при Горжилуправлении)
Рис. 39. Горький, ул. Пискунова, 18. Новая планировка типового этажа
Куйбышев, ул. Куйбышева, 58
Одно- и двухэтажный жилой дом занимает угловой участок квартала в центре города. Конфигурация плана его сложна, участок неблагоустроен (рис. 40, а). В доме есть водопровод и канализация; кухни газифицированы; отопление центральное. Часть квартир объединена коридором и имеет общие санитарные узлы и кухни; дополнительные плиты установлены в передних этих квартир. В доме имеется всего две ванные комнаты (рис. 41).
Показатели существующей планировки:
|
жилая площадь дома................................... 1935 м2 |
|
полезная площадь........................................ 3101 » |
|
количество квартир..................................... 32 » |
|
» комнат...................................... 131 |
Экспериментальный проект предполагает снос дворовых корпусов дома и надстройку лицевых до трех этажей. Такое решение позволит благоустроить и озеленить участок (рис. 40, б) и обеспечить хорошее освещение и инсоляцию квартир. Сам дом приобретает секционную планировку, для чего оказалось необходимым прибавить к существующим двум лестницам четыре новых.
Рис. 40. Куйбышев, ул. Куйбышева, 58. Планировка участка
а - существующее положение; б - проектное предложение
Ориентация длинного корпуса не позволила организовать в нем квартиры только с односторонним освещением. Так решена лишь часть из них, обращенная во двор, на юго-запад. Остальные квартиры этого корпуса имеют двустороннее освещение, причем на северо-восточный фасад выходят окна кухонь и лестничные клетки. Ориентация короткого корпуса позволяет организовать в нем квартиры как с двусторонним, так и односторонним освещением.
Большая часть новых квартир - двух- и трехкомнатные, причем жилые площади их сравнительно невелики и мало отличаются от площадей аналогичных квартир в новом строительстве. Существенно больше здесь полезные площади; плоскостной коэффициент к1 равен, в среднем по дому, 0,63. Типовой этаж показан на рис. 42.
Рис. 41. Куйбышев, ул. Куйбышева, 58. Существующая планировка
Показатели по дому:
|
жилая площадь.......................................... 1474 м2 |
|
полезная площадь...................................... 2360 » |
|
количество квартир................................... 42 |
|
» комнат.................................... 105 |
Ростов, Газетный пер., 3
Здание, подлежащее капитальному ремонту, имеет 3 этажа. Лестничная клетка расположена в центральной части дома и лишена естественного освещения. Во всех квартирах нет ванн, квартиры первого этажа не имеют даже кухонь. На рис. 43 изображена существующая планировка второго этажа; из рисунка видно, что большинство комнат велико по площади и является проходными.
Рис. 42. Куйбышев, ул. Куйбышева, 58. Новая планировка типового этажа
Показатели по дому:
|
жилая площадь........................................... 406 м2 |
|
полезная площадь...................................... 466 » |
|
количество квартир................................... 10 |
|
» комнат..................................... 27 |
В основу предлагаемого варианта перепланировки, разработанного ЛНИИ АКХ, положено стремление по возможности сохранить существующее количество жилой площади. С этой целью намечена надстройка дома на один этаж, компенсирующая потери, неизбежные при повышении его благоустройства.
Проектом предусмотрена разборка стен старой лестничной клетки и сооружение новой, освещаемой естественным светом. Квартиры типового этажа имеют две и четыре жилых комнаты (рис. 44); на первом этаже образуется одна трехкомнатная квартира.
Площади всех квартир сравнительно невелики и лежат в пределах величин площадей квартир нового строительства.
Показатели новой планировки дома:
|
жилая площадь.................................. 405 м2 |
|
полезная площадь............................. 646 » |
|
количество квартир.......................... 11 |
|
» комнат........................... 31 |
Ростов, ул. Суворова, 7
Здание дома 3-этажное, кирпичное, с подвалом. Обслуживают дом три лестницы - центральная и две боковые. Габариты клеток последних малы и делают эти лестницы непригодными для дальнейшего использования.
Инженерное оборудование дома удовлетворительно. Он газифицирован, оборудован водопроводом и канализацией, отапливается централизованно. Все квартиры, кроме одной, имеют ванные комнаты.
Однако планировка квартир свидетельствует о моральном износе здания. Треть из них имеет шесть и более комнат, часть жилой площади (150 м2) расположена в подвале; много проходных комнат и есть темные (рис. 45).
Показатели существующей планировки дома:
|
жилая площадь.................................................. 716 м2 |
|
полезная площадь.............................................. 1058 » |
|
количество квартир........................................... 9 |
|
» комнат................................................. 43 |
Рис. 43. Ростов, Газетный пер., 3. Существующая планировка II этажа
Рис. 44. Ростов, Газетный пер., 3. Новая планировка типового этажа
Рис. 45. Ростов, ул. Суворова, 7. Существующая планировка II этажа
Рис. 46. Ростов, ул. Суворова, 7. Новая планировка типового этажа
Рис. 47. Калуга, ул. Труда, 1. Существующая планировка второго этажа.
Рис. 48. Калуга, ул. Труда, 1. Новая планировка типового этажа
Экспериментальный проект предполагает разборку боковых лестниц и сооружение новой в угловой части дома. С этих лестниц организуется на втором и третьем этажах вход в пять квартир из двух и трех комнат. На первом этаже возникает одна однокомнатная квартира. Жилье в подвале ликвидируется.
Площади почти всех комнат невелики, и площади квартир в связи с этим соизмеримы с площадями квартир таких типов в новом строительстве. Планировка квартир обеспечивает их удобное посемейное заселение (рис. 46).
Показатели новой планировки:
|
жилая площадь дома........................................... 532 м2 |
|
полезная площадь............................................... 850 » |
|
количество квартир............................................ 15 |
|
» комнат............................................. 37 |
Калуга, ул. Труда, 1
Рис. 49. Калуга, ул. Труда, 1. Новая планировка участка
Намеченное для экспериментального проектирования здание имеет простые очертания в плане. Высота его два этажа. Четкого деления на квартиры здесь нет, нет также санитарных узлов, так как в дом не введены ни водопровод, ни канализация.
Отопление печное; почти половина жилой площади сосредоточена в проходных комнатах (рис. 47).
Показатели существующей планировки дома:
|
жилая площадь............................................ 378 м2 |
|
полезная площадь........................................ 468 » |
|
количество комнат...................................... 35 |
Проект перепланировки предусматривает разборку дворовой пристройки, затеняющей соседние помещения (рис. 49), разборку существующей лестничной клетки и сооружение новой, занимающей более центральное положение в плане дома. С лестницы организуется вход в четыре квартиры на этаже - две трехкомнатные и две двухкомнатные (рис. 48). Уровень инженерного оборудования дома резко повышается, и это дает возможность сделать квартиры удобными и отвечающими современным требованиям к благоустроенному жилью.
Показатели новой планировки:
|
жилая площадь дома............................................ 441 м2 |
|
полезная площадь................................................. 703 » |
|
количество квартир.............................................. 12 |
|
» комнат................................................ 30 |
Ниже, на рис. 50 - 59, показаны планировки квартир с разным числом комнат, взятые в качестве примеров из экспериментальных проектов.
Однокомнатные квартиры
Однокомнатная квартира, близкая по размерам к однокомнатным квартирам нового строительства (рис. 50), расположена в торцовой части дворового флигеля дома 23 по ул. П. Лаврова (Ленинград).
Рис. 50. Однокомнатная квартира (Ленинград, ул. П. Лаврова, 23)
Рис. 51. Однокомнатная квартира (Москва, Тверской бульвар, 7/2)
Небольшая жилая площадь квартиры оправдывает объединение ее санитарного узла в одном помещении. Габариты последнего позволяют установить полноразмерную ванну, умывальник и унитаз и оставить место для стиральной машины. Достаточные размеры передней и кухни и наличие трех встроенных шкафов обеспечивают квартире комфортабельность.
Другая однокомнатная квартира изображена на рис. 51. Пример взят из экспериментального проекта перепланировки дома 7/2 по Тверскому бульвару (Москва). Вход в квартиру организован из общего коридора.
Планировка квартиры очень компактна. Двери всех помещений выходят непосредственно в переднюю хороших пропорций. Санитарный узел разделен. Большая площадь кухни-столовой и наличие алькова в общей комнате увеличивают удобства квартиры.
Двухкомнатные квартиры
Первая из них (Куйбышев, ул. Куйбышева, 28) показана на рис. 52. В процессе перепланировки оказалось необходимым заложить средний проем существующего тройного окна, что позволило на площади, занятой ранее двумя большими жилыми комнатами, организовать благоустроенную двухкомнатную квартиру с полным набором помещений. Вход в обе жилые комнаты организован из передней, а вход в кухню, уборную и ванную - из коридора.
Рис. 52. Двухкомнатная квартира (Куйбышев, ул. Куйбышева, 28)
Рис. 53. Двухкомнатная квартира (Москва, пер. М. Горького, 3/1)
Другая двухкомнатная квартира (рис. 53) занимает угловую часть дома 3/1 по пер. М. Горького (Москва).
Площадь его почти такая же, как у предыдущей. Одинакова и степень благоустройства квартир. Они имеют раздельные санитарные узлы, кухни, размеры которых позволяют удобно расставить все необходимое оборудование и самостоятельные входы в каждую жилую комнату. Особенностью рассматриваемой квартиры является скошенный коридор, ведущий в спальню. Устройство его позволяет избегнуть появления проходной общей комнаты.
Трехкомнатные квартиры
Одна из трехкомнатных квартир (рис. 54), приведенных в качестве примера, расположена в доме 27 по ул. Салтыкова-Щедрина (Орел).
Сложная конфигурация плана дома отразилась на структуре квартиры, главным образом на количестве подсобной площади. При организации квартиры оказалось необходимым заложить один из существующих оконных проемов и пробить другой для освещения спальни.
Рис. 54. Трехкомнатная квартира (Орел, ул. Салтыкова-Щедрина, 24)
Рис. 55. Трехкомнатная квартира (Москва, пер. М. Горького, 3/1)
Достоинством квартиры является двустороннее ее освещение и сквозное проветривание.
Второй пример решения трехкомнатной квартиры (рис. 55) взят из одного из вариантов перепланировок дома 3/1 по пер, М. Горького в Москве. Заданность ее габаритов заставила организовать вход в жилые комнаты не из передней, а из специального шлюза. Затрудненность связи между общей комнатой и кухней компенсируется наличием передаточного окна в разделяющей их перегородке. Площадь передней относительно невелика, что компенсируется наличием в ней одной стены без дверных проемов.
Четырехкомнатные квартиры
Квартира в доме № 28 по ул. Куйбышева (Куйбышев) имеет вытянутый план и вход с угла (рис. 56). В связи с этим коммуникационная часть квартиры (передняя и коридор, ведущий в изолированную спальню) оказалась довольно большой. Сократить ее можно было бы только за счет организации входов в обе спальни из общей комнаты. Однако такое решение было отвергнуто, так как существенно снизило бы эксплуатационные качества квартиры.
Характерной для условий перепланировки старых жилых домов является возникшая в данном случае необходимость закладки оконных проемов в угловой части здания.
Рис. 56. Четырехкомнатная квартира (Куйбышев, ул. Куйбышева, 28)
Рис. 57. Четырехкомнатная квартира (Москва, Тверской бульвар, 7/2)
Четырехкомнатная квартира дома № 7/2 по Тверскому бульвару (Москва) вписана в участок здания, имеющий неправильную форму. Соответственно неправильную форму получили две жилые комнаты и передняя квартиры (рис. 57).
Трехсторонняя ориентация квартиры позволила решить ее очень компактно. Здесь нет коридоров, и входы во все помещения связаны с передней непосредственно или через небольшие шлюзы.
Пятикомнатные квартиры
Оба примера решений пятикомнатных квартир взяты из экспериментальных проектов московских домов. Первый из них (рис. 58) - квартира в доме № 7/2 по Тверскому бульвару. Все жилые комнаты квартиры имеют изолированные входы из передней или коридора. Санитарный узел размещен в центральной части квартиры и не примыкает ни к одной из капитальных стен. Такой прием позволяет лучше использовать ширину корпуса этой части дома и не завышать глубины комнат квартиры.
Пятикомнатная квартира дома № 11 по ул. Красина (рис. 59) имеет существенно меньшие жилую и полезную площадь, чем предыдущая. Она очень компактна, что связано отчасти с наличием одной проходной комнаты в квартире. Размеры кухни (9,0 м), непосредственная связь ее с общей комнатой, наличие четырех спален в квартире относительно небольшой площади делают ее удобной для заселения многочленной семьей.
Рис. 58. Пятикомнатная квартира (Москва, Тверской бульвар, 7/2)
Рис. 59. Пятикомнатная квартира (Москва, ул. Красина, 11)
ОБЩИЕ ЗАМЕЧАНИЯ
Разработке «Рекомендаций по перепланировке и повышению благоустройства жилых домов старой застройки городов» предшествовала большая исследовательская работа по установлению общей характеристики жилищного фонда старой застройки, его архитектурно-планировочных решений, инженерного оборудования домов, а также по изучению опыта проектных организаций, составляющих проекты на капитальный ремонт жилых домов.
Кроме того, в институте проводилась работа по составлению экспериментальных проектов перепланировки жилых домов старой застройки.
Ниже приводятся краткие итоги этой исследовательской работы, позволившие подготовить приведенные в первой части «Рекомендаций по перепланировке и повышению благоустройства жилых домов старой застройки».
1. АНАЛИЗ СТАРЫХ ЖИЛЫХ ДОМОВ ГОРОДОВ РОССИЙСКОЙ ФЕДЕРАЦИИ
Сотрудниками лаборатории капитального ремонта ЛенНИИ АКХ было проведено обследование жилых домов старой застройки в восьми городах - Москве, Ленинграде, Горьком, Куйбышеве, Ростове-на-Дону, Туле, Калинине и Калуге были отобраны инвентарные чертежи 129 жилых домов, построенных до 1917 г., характерных по этажности, конфигурации планов, размерами и конструктивными параметрами для старого жилого фонда этих городов. Объем материала, подвергнутого изучению, виден из табл. 1.
Распределение жилой площади в домах по различным группам квартир и средние размеры квартир с указанием их удельного соотношения приведены на диаграммах по отдельным городам (рис. 60 - 71). Для общей наглядности здесь приведены также данные по проектам капитального ремонта, составленным проектными организациями тех же городов.
Таблица 1
Количество квартир и жилая площадь изучавшихся домов
(по инвентарным чертежам 129 домов)
|
Количество домов |
Количество квартир |
Жилая площадь домов в тыс. м2 |
|
|
Москва |
23 |
678 |
48,4 |
|
Ленинград |
36 |
1088 |
62,8 |
|
Горький |
18 |
285 |
12,4 |
|
Куйбышев |
7 |
45 |
2,9 |
|
Ростов-на-Дону |
9 |
135 |
9,2 |
|
Тула |
20 |
104 |
5,6 |
|
Калинин |
9 |
70 |
4,0 |
|
Калуга |
7 |
42 |
2,4 |
|
Итого |
129 |
2447 |
146,0 |
Рис. 60. Жилая площадь квартир обследованных жилых домов Москвы

Рис. 61. Средняя жилая площадь квартир обследованных жилых домов Москвы

Рис. 62. Жилая площадь квартир обследованных жилых домов Ленинграда

Рис. 63. Средняя жилая площадь квартир обследованных жилых домов Ленинграда

Рис. 64. Жилая площадь квартир обследованных жилых домов Куйбышева

Рис. 65. Средняя жилая площадь квартир обследованных жилых домов Куйбышева

Рис. 66. Жилая площадь квартир обследованных жилых домов Калинина

Рис. 67. Средняя жилая площадь квартир обследованных жилых домов Калинина

Рис. 68. Жилая площадь квартир обследованных жилых домов Горького

Рис. 69. Средняя жилая площадь квартир обследованных жилых домов Горького
Анализ технико-экономических показателей позволил установить характер распределения жилой площади по квартирам разных типов, средние размеры жилой площади квартир с разным числом комнат, средний размер кухонь, уровень инженерного оборудования квартир и характер их планировки. Результаты анализа сведены в табл. 2 - 5.
Из приведенных таблиц видно, что большая часть жилой площади в обследованных жилых домах сосредоточена в многокомнатных квартирах.

Рис. 70. Жилая площадь квартир обследованных жилых домов Калуги
Так, например, в Москве в квартирах из пяти и более комнат размещается 62,4 % всей жилой площади, в Ленинграде - 42,1 %, в Калинине - 54,5 %, в Куйбышеве - 58,1 %, в Калуге - 47,6 % и только в Горьком - 26,4 % (табл. 2).
Следует отметить, что в новом строительстве таких квартир почти нет и что именно многокомнатность квартир является первой причиной коммунального их заселения. Другая его причина - большие площади квартир и комнат. И в этом отношении старый фонд невыгодно отличается от новых домов. Например, средний размер жилой площади двухкомнатной квартиры в изучавшихся ленинградских домах составляет 34,4 м2, а трехкомнатной - 44,3 м2 (см. табл. 3). Такие же квартиры в домах постройки 1963 - 1964 гг. имеют жилую площадь в среднем, соответственно, в 28 и 38 м2.
Из табл. 4 видно, что и по уровню благоустройства и инженерного оборудования старые дома не отвечают современным требованиям к жилью. Водопроводом и канализацией оборудовано только 86 % обследованных квартир, центральным отоплением - 25 %, ванны отсутствуют в 80 % квартирах и даже кухни есть не везде.
Из табл. 5 видно, что размер кухонь в квартирах Ленинграда колеблется от 9,34 до 22,12 м2 в зависимости от количества комнат в квартирах и в 2 - 3 раза превышает размер кухонь в новых домах.
Результаты обследования показали существенное отличие старого жилого фонда от нового и в отношении габаритов зданий. В новом строительстве пролеты между капитальными стенами не превышают, как правило, 5,5 - 6,0 м, а в проанализированных ленинградских, например, домах 67 % площади сосредоточено в домах с пролетами свыше 6,0 м, в том числе около 4 % - в домах с пролетами в 8,0 м и более. Специфичны и конфигурации планов старых домов. Если в новом строительстве чаще всего приходится иметь дело с рядовыми секциями, то для старой застройки характерно обилие угловых секций, непрямоугольность планов и т.д.
Рис. 71. Средняя жилая площадь квартир обследованных жилых домов Калуги
Говоря о различиях старого и нового жилого фонда, нельзя не остановиться и на приемах застройки. Для сложившихся до революции центральных районов, особенно в крупных городах, характерно чрезвычайно интенсивное использование территории, узкие улицы и тесные дворы. Плотность застройки жилых кварталов достигает 60 - 70 %.
2. АНАЛИЗ ПРОЕКТОВ КАПИТАЛЬНОГО РЕМОНТА СТАРЫХ ЖИЛЫХ ДОМОВ
Как уже отмечалось, модернизация старого жилого фонда осуществляется в настоящее время в процессе комплексного капитального ремонта отдельных домов. Лаборатория капитального ремонта ЛНИИ АКХ изучила деятельность проектных организаций, обеспечивающих документацией ремонтно-строительные управления ряда городов. Было отобрано всего 117 проектов капитального ремонта, главным образом, тех же жилых домов, существующая планировка которых рассматривалась выше. Общая площадь этих домов после капитального ремонта составит 112,2 тыс. м2 (табл. 6 и рис. 60 - 71).
Таблица 2
Процентное распределение жилой площади старых домов по квартирам с разным числом комнат
(по инвентарным чертежам 100 домов)
|
Города |
Москва |
Ленинград |
Горький |
Куйбышев |
Калинин |
Калуга |
|
Однокомнатные |
1,0 |
2,4 |
20,6 |
8,0 |
4,1 |
4,1 |
|
Двухкомнатные |
4,3 |
12,4 |
23,1 |
12,2 |
9,6 |
11,0 |
|
Трехкомнатные |
16,8 |
23,9 |
13,9 |
6,7 |
17,4 |
12,6 |
|
Четырехкомнатные |
15,5 |
19,2 |
16,0 |
15,0 |
14,4 |
24,7 |
|
Пятикомнатные |
13,8 |
13,3 |
5,1 |
24,0 |
13,8 |
11,1 |
|
Шестикомнатные |
11,1 |
10,5 |
9,8 |
14,3 |
15,2 |
3,2 |
|
Семикомнатные |
5,6 |
7,6 |
- |
7,4 |
10,6 |
11,8 |
|
Восьмикомнатные |
6,8 |
5,4 |
2,8 |
5,9 |
- |
10,2 |
|
Девятикомнатные |
1,8 |
2,0 |
- |
- |
7,3 |
11,3 |
|
Десятикомнатные |
3,1 |
1,0 |
- |
- |
4,2 |
- |
|
Одинадцатикомнатные |
3,2 |
0,4 |
3,9 |
- |
3,4 |
- |
|
Двенадцатикомнатные |
3,4 |
0,8 |
- |
6,5 |
- |
- |
|
Тринадцатикомнатные |
6,2 |
0,3 |
- |
- |
- |
- |
|
Четырнадцатикомнатные и более |
7,4 |
0,8 |
4,8 |
|||
|
100 |
100 |
100 |
100 |
100 |
100 |
Средняя жилая площадь квартир с различным числом комнат в старых жилых домах в м2
(по инвентарным чертежам 129 домов)
|
Типы квартир |
Москва |
Ленинград |
Горький |
Куйбышев |
Ростов-на-Дону |
Тула |
Калинин |
Калуга |
Средняя площадь квартир |
|
Однокомнатные |
17,5 |
17,0 |
15,3 |
19,5 |
16,2 |
16,6 |
20,1 |
19,6 |
17,7 |
|
Двухкомнатные |
29,8 |
34,4 |
28,4 |
26,6 |
34,3 |
25,4 |
25,4 |
32,8 |
29,7 |
|
Трехкомнатные |
41,2 |
44,3 |
39,6 |
37,2 |
48,9 |
37,8 |
46,5 |
42,5 |
42,2 |
|
Четырехкомнатные |
50,6 |
61,0 |
58,1 |
47,3 |
60,9 |
49,1 |
63,9 |
53,3 |
55,5 |
|
Пятикомнатные |
79,8 |
81,7 |
55,1 |
75,2 |
70,3 |
69,8 |
69,7 |
87,3 |
73,6 |
|
Шестикомнатные |
94,8 |
115,0 |
89,3 |
78,4 |
97,7 |
89,8 |
88,4 |
76,4 |
91,1 |
|
Семикомнатные |
108,0 |
117,0 |
116,6 |
81,0 |
103,3 |
96,3 |
106,9 |
92,9 |
102,8 |
|
Восьмикомнатные |
148,5 |
140,1 |
134,4 |
129,1 |
126,2 |
91,2 |
- |
121,4 |
126,0 |
|
Девятикомнатные |
172,0 |
135,0 |
141,3 |
- |
129,3 |
148,9 |
144,7 |
134,6 |
143,7 |
|
Десятикомнатные |
188,5 |
203,6 |
167,3 |
- |
140,7 |
159,2 |
167,7 |
- |
171,0 |
Инженерное оборудование и благоустройство квартир в старых жилых домах
(по инвентарным чертежам 129 домов)
|
Количество квартир |
|||||||||||
|
Всего обследовано |
в том числе |
||||||||||
|
имеют отдельные кухни |
имеют ванные комнаты |
оборудованы водопроводом и канализацией |
отапливаются централизованно |
газифицированы |
|||||||
|
количество |
количество |
% |
количество |
% |
количество |
% |
количество |
% |
количество |
% |
|
|
Москва |
678 |
678 |
100 |
171 |
25 |
678 |
100 |
462 |
68 |
678 |
100 |
|
Ленинград |
1088 |
1088 |
100 |
272 |
25 |
1088 |
100 |
54 |
5 |
1088 |
100 |
|
Горький |
285 |
179 |
63 |
9 |
3 |
108 |
38 |
- |
- |
- |
- |
|
Куйбышев |
45 |
36 |
84 |
2 |
4 |
16 |
35 |
- |
- |
- |
- |
|
Ростов-на-Дону |
135 |
135 |
100 |
54 |
40 |
130 |
96 |
94 |
70 |
32 |
24 |
|
Тула |
104 |
79 |
76 |
- |
- |
33 |
32 |
- |
- |
21 |
20 |
|
Калинин |
70 |
51 |
73 |
- |
- |
44 |
63 |
- |
- |
- |
- |
|
Калуга |
42 |
32 |
76 |
2 |
5 |
11 |
26 |
- |
- |
42 |
100 |
|
Всего |
2447 |
2278 |
93 |
510 |
21 |
2108 |
86 |
610 |
25 |
1861 |
76 |
Средние размеры кухонь в различных квартирах Ленинграда
(по инвентаризационным чертежам)
|
До капитального ремонта |
|||
|
количество квартир |
общая площадь кухонь в м2 |
средняя площадь кухни в м2 |
|
|
Однокомнатные |
49 |
456,93 |
9,34 |
|
Двухкомнатные |
158 |
1675,68 |
10,60 |
|
Трехкомнатные |
218 |
2397,50 |
11,00 |
|
Четырехкомнатные |
137 |
1718,93 |
12,55 |
|
Пятикомнатные |
55 |
769,47 |
13,98 |
|
Шестикомнатные |
26 |
434,55 |
16,69 |
|
Семикомнатные |
14 |
300,86 |
21,50 |
|
Восьмикомнатные |
8 |
164,63 |
20,47 |
|
Девятикомнатные |
3 |
53,07 |
17,69 |
|
Двенадцатикомнатные |
2 |
44,23 |
22,12 |
|
Общежитие |
1 |
10,23 |
10,23 |
|
Итого |
670 |
8026,08 |
11,92 |
Таблица 6
Количество квартир и жилая площадь домов, прошедших капитальный ремонт
(по 117 проектам)
|
Количество домов |
Количество квартир |
Жилая площадь в тыс. м2 |
|
|
Москва |
23 |
860 |
40,6 |
|
Ленинград |
36 |
1132 |
52,2 |
|
Горький |
10 |
97 |
3,6 |
|
Куйбышев |
7 |
55 |
2,2 |
|
Ростов-на-Дону |
7 |
86 |
2,1 |
|
Тула |
20 |
104 |
5,6 |
|
Калинин |
7 |
60 |
2,8 |
|
Калуга |
7 |
68 |
2,4 |
|
Итого |
117 |
2462 |
112,2 |
Проекты подверглись анализу по тем же показателям, что и инвентарные чертежи. Результаты сведены в табл. 7 - 10.
Сравнение табл. 7 - 10 с табл. 2 - 5 показывает, что в процессе капитального ремонта происходит повышение уровня благоустройства квартир. Так, в Ленинграде и Калинине в результате перепланировки исчезли все многокомнатные квартиры, а в Москве и Калуге количество их сократилось. Существенно увеличился для Ленинграда и Москвы процент квартир с ванными, по всем городам увеличилось число квартир с центральным отоплением и т.д.
Таблица 7
Процентное распределение жилой площади капитально отремонтированных жилых домов по квартирам с разным числом комнат
(по 90 проектам)
|
Типы квартир |
Москва |
Ленинград |
Горький |
Куйбышев |
Калинин |
Калуга |
|
Однокомнатные |
8,2 |
1,6 |
10,0 |
11,0 |
0,7 |
9,1 |
|
Двухкомнатные |
24,2 |
30,2 |
21,6 |
25,0 |
35,5 |
42,0 |
|
Трехкомнатные |
21,8 |
39,8 |
16,4 |
7,5 |
35,5 |
20,1 |
|
Четырехкомнатные |
20,0 |
24,7 |
6,2 |
12,3 |
21,3 |
2,2 |
|
Пятикомнатные |
12,8 |
3,7 |
8,7 |
12,6 |
7,0 |
12,4 |
|
Шестикомнатные |
7,0 |
- |
6,7 |
10,0 |
- |
9,5 |
|
Семикомнатные |
3,4 |
- |
5,3 |
- |
- |
4,7 |
|
Восьмикомнатные |
2,1 |
- |
6,7 |
6,8 |
- |
- |
|
Девятикомнатные |
0,5 |
- |
- |
7,8 |
- |
- |
|
Десятикомнатные и более |
- |
- |
18,4 |
7,0 |
- |
- |
|
Итого |
100 |
100 |
100 |
100 |
100 |
100 |
Вместе с тем видно, что после капитального ремонта дома далеко не всегда становятся равными по благоустройству домам нового строительства. Так, в Москве, Куйбышеве, Горьком, Калуге (табл. 7) остались квартиры в 6 - 10 комнат, причем в Москве, например, в таких квартирах размещено 13 % обследованной площади, в Горьком - 37,1 %, в Куйбышеве - 31,6 %, в Калуге - 14,2 %.
Средняя жилая площадь квартир разных типов почти не изменилась, что свидетельствует о повторении большинством проектов старых планировок. Об этом же говорят и данные табл. 9 - ряд квартир в Ростове-на-Дону, Горьком, Туле остались и после капитального ремонта без кухонь. Что же касается ванн, то даже в Москве установка их запроектирована не повсеместно. В пяти городах из восьми (Москве, Горьком, Куйбышеве, Туле, Калуге) предусматривается организация квартир с жилой площадью свыше 100 м2. Размер кухонь в капитально отремонтированных домах по данным Ленжилпроекта колеблется от 8,10 до 12,28 м2 (табл. 10) для однокомнатных - пятикомнатных квартир, что свидетельствует о трудности довести размер кухонь в жилом фонде старой застройки до размеров кухонь нового жилищного строительства.
Международными нормами 1957 г. площади кухонь установлены в зависимости от количества комнат в квартире и численности семьи, проживающей в квартире. Эти нормы площади кухонь приведены в табл. 11, и они ближе к размерам площади кухонь в домах после капитального ремонта.
Перечисленные выше недостатки проектов делают очевидными, во-первых, малую приспособленность значительной части вновь организованных квартир к посемейному их заселению и, во-вторых, разный подход в городах к проблеме повышения уровня благоустройства квартир. И то и другое указывает на необходимость иметь нормы на перепланировку и повышение благоустройства жилых домов старой застройки городов.
3. ЭКСПЕРИМЕНТАЛЬНОЕ ПРОЕКТИРОВАНИЕ ЖИЛЫХ ДОМОВ СТАРОЙ ЗАСТРОЙКИ
Все нормы на перепланировку и повышение благоустройства старой застройки должны проверяться на экспериментальных объектах комплексного капитального ремонта жилых домов. По указанию Министерства коммунального хозяйства РСФСР в 1963 - 1964 гг. были отобраны шесть экспериментальных жилых домов старой застройки (два - в Москве, один - в Ленинграде и по одному в Калинине, Калуге и Орле) для проведения в них экспериментальных работ по улучшению архитектурно-планировочных и конструктивных решений и применению новых строительных материалов и изделий.
Таблица 8
Средняя жилая площадь квартир с различным числом комнат в капитально отремонтированных домах в м2
(по 117 проектам)
|
Города Типы квартир |
Москва |
Ленинград |
Горький |
Куйбышев |
Ростов-на-Дону |
Тула |
Калинин |
Калуга |
Средняя площадь квартир в м2 |
|
Однокомнатные |
21,5 |
21,3 |
14,4 |
17,7 |
15,4 |
16,6 |
21,6 |
15,8 |
18,0 |
|
Двухкомнатные |
34,4 |
37,2 |
21,0 |
24,0 |
24,1 |
25,4 |
34,2 |
30,0 |
29,1 |
|
Трехкомнатные |
52,0 |
55,2 |
38,8 |
47,4 |
35,0 |
37,8 |
55,4 |
45,0 |
45,8 |
|
Четырехкомнатные |
63,7 |
70,3 |
44,9 |
58,0 |
48,9 |
49,1 |
66,8 |
59,9 |
57,5 |
|
Пятикомнатные |
80,1 |
84,0 |
64,5 |
79.6 |
70,7 |
69,8 |
66,6 |
76,3 |
74,1 |
|
Шестикомнатные |
110,8 |
- |
82,1 |
95,4 |
87,0 |
89,8 |
- |
79,0 |
90,6 |
|
Семикомнатные |
110,2 |
- |
96,6 |
- |
- |
96,3 |
- |
119,3 |
105,6 |
|
Восьмикомнатные |
112,5 |
- |
121,5 |
128,7 |
- |
91,2 |
- |
- |
113,5 |
|
Девятикомнатные |
115,6 |
- |
- |
131,1 |
- |
148,9 |
- |
- |
131,9 |
|
Десятикомнатные |
- |
- |
129,2 |
132,2 |
- |
159,2 |
- |
- |
140,2 |
Инженерное оборудование и благоустройство квартир в капитально отремонтированных домах
(по 117 проектам)
|
Количество квартир |
|||||||||||
|
Всего обследовано |
в том числе |
||||||||||
|
имеют кухни |
имеют ванные комнаты |
оборудованы водопроводом и канализацией |
отапливаются централизованно |
газифицированы |
|||||||
|
количество |
% |
количество |
% |
количество |
% |
количество |
% |
количество |
% |
||
|
Москва |
860 |
860 |
100 |
716 |
83 |
860 |
100 |
860 |
100 |
860 |
100 |
|
Ленинград |
1132 |
1132 |
100 |
1112 |
98 |
1132 |
100 |
1132 |
100 |
1132 |
100 |
|
Горький |
97 |
91 |
95 |
- |
- |
97 |
100 |
25 |
26 |
- |
- |
|
Куйбышев |
55 |
55 |
100 |
6 |
11 |
55 |
100 |
6 |
11 |
4 |
7 |
|
Ростов-на-Дону |
86 |
56 |
65 |
12 |
14 |
86 |
100 |
52 |
60 |
47 |
55 |
|
Тула |
104 |
79 |
76 |
- |
- |
33 |
32 |
- |
- |
21 |
20 |
|
Калинин |
60 |
60 |
100 |
- |
- |
60 |
100 |
48 |
80 |
60 |
100 |
|
Калуга |
68 |
68 |
100 |
3 |
4 |
43 |
63 |
- |
- |
59 |
87 |
|
Всего |
2462 |
2401 |
97 |
1849 |
75 |
2366 |
96 |
2123 |
86 |
2183 |
89 |
Средние размеры кухонь в различных квартирах Ленинграда
(по проектным материалам Ленжилпроекта)
|
По проектам капитального ремонта |
|||
|
количество квартир |
общая площадь кухонь в м2 |
средняя площадь кухни в м2 |
|
|
Однокомнатные |
37 |
300,29 |
8,10 |
|
Двухкомнатные |
332 |
2655,53 |
8,00 |
|
Трехкомнатные |
220 |
1869,63 |
8,50 |
|
Четырехкомнатные |
114 |
1428,25 |
9,91 |
|
Пятикомнатные |
19 |
233,12 |
12,28 |
|
722 |
6487,00 |
8,98 |
|
Таблица 11
Международные нормы площади кухонь 1957 г.
|
Численность семьи |
Площадь кухни в м2 |
|
|
2 |
3 |
6 |
|
2 - 3 |
4 |
7 |
|
3 |
4 - 5 |
7 |
|
4 |
6 |
8 |
Для этих домов Ленинградским научно-исследовательским институтом АКХ разработаны расширенные технические задания на проектирование в них комплексного капитального ремонта с перепланировкой квартир и повышением их благоустройства в соответствии с требованиями к благоустроенным квартирам нового жилищного строительства.
В настоящее время для этих домов проектные организации разрабатывают рабочие чертежи и комплексный капитальный ремонт в этих домах предполагается осуществить в 1965 - 1966 гг.
В целях получения большего обоснования «Рекомендаций на перепланировку и повышение благоустройства жилых домов старой застройки городов», а также с целью получения наиболее целесообразных и экономичных архитектурно-планировочных решений проведено дополнительное экспериментальное проектирование комплексного капитального ремонта по 15 многоэтажным каменным жилым домам разных городов.
Таким образом, экспериментальное проектирование выполнено для 21 многоэтажного жилого дома восьми городов: Москвы, Ленинграда, Горького, Калуги, Калинина, Куйбышева, Орла и Ростова-на-Дону. По каждому дому составлялись по 3 - 4 варианта перепланировки квартир и предусматривались все виды инженерного оборудования. Во второй части настоящей работы по каждому дому приведены основные чертежи большинства из этих проектов принятого варианта.
Сводные показатели характеристики новой планировки квартир и их отдельных помещений по каждому дому, по группе городов и по всем городам в целом приведены в табл. 12 - 15.
Таблица 12
Характеристика новой планировки квартир старых жилых домов Москвы
(по четырем проектам, выполненным ЛНИИ АКХ)
|
Типы квартир |
|||||||||||||||||||||||
|
однокомнатные |
двухкомнатные |
трехкомнатные |
|||||||||||||||||||||
|
жилая площадь в м2 |
полезная площадь в м2 |
плоскостной коэффициент к1 |
площадь кухни в м2 |
площадь передней в м2 |
площадь шкафов, гардеробных, кладовых в м2 |
жилая площадь в м2 |
полезная площадь в м2 |
к1 |
площадь общей комнаты в м2 |
площадь спальни в м2 |
площадь кухни в м2 |
площадь передней в м2 |
площадь шкафов, гардеробных, кладовых в м2 |
жилая площадь в м2 |
полезная площадь в м2 |
к1 |
площадь общей комнаты в м2 |
площади спален в м2 |
площадь кухни в м2 |
площадь передней в м2 |
площадь шкафов, гардеробных, кладовых в м2 |
||
|
первой |
второй |
||||||||||||||||||||||
|
Москва |
|||||||||||||||||||||||
|
Воротниковский пер., 3/10 |
- |
- |
- |
- |
- |
- |
34,1 |
63,6 |
0,54 |
19,2 |
14,9 |
12,0 |
6,4 |
4,1 |
33,9 |
60,1 |
0,56 |
14,4 |
12,5 |
7,0 |
7,0 |
5,6 |
1,3 |
|
33,1 |
53,1 |
0,62 |
15,7 |
10,4 |
7,0 |
7,5 |
5,8 |
0,9 |
|||||||||||||||
|
- |
- |
- |
- |
- |
- |
- |
- |
- |
- |
- |
- |
- |
- |
55,4 |
89,2 |
0,62 |
30,3 |
13,8 |
11,3 |
7,3 |
6,4 |
3,5 |
|
|
пер. М. Горького, 3/1 |
- |
- |
- |
- |
- |
- |
- |
- |
- |
- |
- |
- |
- |
- |
39,8 |
61,5 |
0,65 |
17,6 |
12,6 |
9,6 |
7,3 |
3,5 |
1,3 |
|
- |
- |
- |
- |
- |
- |
- |
- |
- |
- |
- |
- |
- |
- |
- |
- |
- |
- |
- |
- |
- |
- |
- |
|
|
- |
- |
- |
- |
- |
- |
- |
- |
- |
- |
- |
- |
- |
- |
- |
- |
- |
- |
- |
- |
- |
- |
- |
|
|
ул. Красина, 11 |
- |
- |
- |
- |
- |
- |
29,3 |
48,7 |
0,60 |
18,6 |
10,7 |
6,7 |
4,5 |
0,7 |
- |
- |
- |
- |
- |
- |
- |
- |
- |
|
- |
- |
- |
- |
- |
- |
26,5 |
45,0 |
0,59 |
17,5 |
9,0 |
7,3 |
4,5 |
0,8 |
- |
- |
- |
- |
- |
- |
- |
- |
- |
|
|
Тверской бульвар, 7/2 |
21,3 |
39,5 |
0,53 |
9,7 |
3,8 |
1,4 |
24,7 |
42,5 |
0,58 |
15,7 |
9,0 |
8,4 |
4,4 |
0,5 |
45,5 |
65,5 |
0,69 |
18,4 |
17,1 |
10,0 |
8,0 |
5,5 |
0,7 |
|
22,2 |
37,0 |
0,60 |
7,8 |
3,8 |
0,8 |
22,4 |
42,6 |
0,52 |
14,1 |
8,3 |
8,8 |
5,1 |
3,0 |
43,1 |
61,8 |
0,64 |
19,3 |
15,6 |
8,2 |
7,4 |
6,0 |
1,7 |
|
|
- |
- |
- |
- |
- |
- |
30,4 |
49,0 |
0,62 |
18,9 |
11,5 |
7,3 |
5,0 |
2,8 |
38,3 |
57,4 |
0,66 |
15,4 |
12,0 |
10,9 |
7,3 |
4,4 |
0,9 |
|
|
19,3 |
34,2 |
0,53 |
7,5 |
3,6 |
1,2 |
26,5 |
43,3 |
0,61 |
15,6 |
10,9 |
7,4 |
5,1 |
0,8 |
- |
- |
- |
- |
- |
- |
- |
- |
- |
|
|
18,9 |
33,8 |
0,56 |
7,5 |
3,6 |
1,2 |
25,8 |
42,1 |
0,61 |
15,6 |
10,2 |
7,4 |
5,1 |
0,8 |
- |
- |
- |
- |
- |
- |
- |
- |
- |
|
|
19,4 |
34,3 |
0,56 |
7,5 |
3,8 |
1,0 |
28,5 |
46,0 |
0,61 |
14,8 |
13,7 |
8,9 |
4,5 |
0,6 |
38,6 |
70,2 |
0,55 |
16,3 |
12,3 |
10,0 |
12,4 |
12,4 |
7,9 |
|
|
19,4 |
34,3 |
0,56 |
7,5 |
3,8 |
1,0 |
29,3 |
47,6 |
0,62 |
16,1 |
13,2 |
9,8 |
3,6 |
0,4 |
37,2 |
62,4 |
0,59 |
15,9 |
12,7 |
8,6 |
11,6 |
11,6 |
6,4 |
|
|
18,7 |
33,3 |
0,56 |
7,5 |
3,8 |
0,7 |
27,4 |
52,9 |
0,52 |
16,2 |
11,2 |
8,8 |
7,0 |
1,4 |
37,9 |
68,3 |
0,55 |
16,1 |
11,2 |
10,5 |
11,4 |
11,4 |
5,7 |
|
|
26,3 |
50,0 |
0,53 |
9,0 |
4,1 |
3,0 |
- |
- |
- |
- |
- |
- |
- |
- |
39,2 |
60,9 |
0,64 |
18,1 |
12,9 |
8,2 |
7,3 |
7,3 |
8,5 |
|
|
15,4 |
26,8 |
0,57 |
5,5 |
2,7 |
0,3 |
- |
- |
- |
- |
- |
- |
- |
- |
- |
- |
- |
- |
- |
- |
- |
- |
- |
|
|
21,1 |
43,4 |
0,48 |
8,1 |
3,9 |
2,8 |
- |
- |
- |
- |
- |
- |
- |
- |
- |
- |
- |
- |
- |
- |
- |
- |
- |
|
|
18,4 |
33,7 |
0,54 |
6,9 |
4,5 |
0,9 |
- |
- |
- |
- |
- |
- |
- |
- |
- |
- |
- |
- |
- |
- |
- |
- |
||
|
Всего по Москве |
220,4 |
400,3 |
- |
84,5 |
41,4 |
14,3 |
304,9 |
523,3 |
- |
182,3 |
122,6 |
92,8 |
55,2 |
15,9 |
442,0 |
710,4 |
- |
197,5 |
143,1 |
101,4 |
123,6 |
65,7 |
26,3 |
|
Минимальный размер |
15,4 |
26,8 |
0,48 |
5,5 |
2,7 |
0,3 |
22,4 |
42,1 |
0,52 |
14,1 |
8,3 |
7,3 |
3,6 |
0,4 |
33,1 |
53,1 |
0,55 |
14,4 |
10,4 |
7,0 |
7,0 |
3,5 |
0,7 |
|
Максимальный» |
26,3 |
50,0 |
0,60 |
9,7 |
4,5 |
3,0 |
34,1 |
63,6 |
0,62 |
19,2 |
14,9 |
12,0 |
7,0 |
4,1 |
55,4 |
89,2 |
0,69 |
30,3 |
17,1 |
11,3 |
12,4 |
8,5 |
7,6 |
|
Средний» |
20,0 |
36,4 |
0,55 |
7,7 |
3,8 |
1,3 |
27,7 |
47,6 |
0,58 |
16,6 |
11,1 |
8,4 |
5,0 |
1,4 |
40,2 |
64,6 |
0,62 |
17,9 |
13,0 |
9,2 |
8,6 |
5,9 |
2,4 |
Продолжение
|
Типы квартир |
|||||||||||||||||||||
|
четырехкомнатные |
пятикомнатные |
||||||||||||||||||||
|
жилая площадь в м2 |
полезная площадь в м2 |
к1 |
площадь общей комнаты в м2 |
площади спален в м2 |
площадь кухни в м2 |
площадь передней в м2 |
площадь шкафов, гардеробных, кладовых в м2 |
жилая площадь в м2 |
полезная площадь в м2 |
к1 |
площадь общей комнаты в м2 |
площади спален в м2 |
площадь кухни в м2 |
площадь передней в м2 |
площадь шкафов, гардеробных, кладовых в м2 |
||||||
|
первой |
второй |
третьей |
первой |
второй |
третьей |
четвертой |
|||||||||||||||
|
Москва |
|||||||||||||||||||||
|
Воротниковский пер., 3/10 |
60,2 |
88,0 |
0,68 |
18,0 |
15,0 |
13,6 |
13,6 |
9,2 |
5,5 |
3,4 |
56,5 |
89,7 |
0,63 |
25,8 |
12,2 |
10,4 |
9,5 |
9,0 |
9,0 |
6,7 |
2,2 |
|
- |
- |
- |
- |
- |
- |
- |
- |
- |
- |
- |
- |
- |
- |
- |
- |
- |
- |
- |
- |
- |
|
|
- |
- |
- |
- |
- |
- |
- |
- |
- |
- |
- |
- |
- |
- |
- |
- |
- |
- |
- |
- |
- |
|
|
пер. М. Горького, 3/1 |
52,5 |
74,6 |
0,70 |
17,0 |
13,7 |
12,2 |
9,6 |
8,5 |
7,0 |
1,1 |
- |
- |
- |
- |
- |
- |
- |
- |
- |
- |
- |
|
57,0 |
86,0 |
0,66 |
20,8 |
14,5 |
13,9 |
7,8 |
10,6 |
5,4 |
3,2 |
- |
- |
- |
- |
- |
- |
- |
- |
- |
- |
- |
|
|
55,3 |
86,0 |
0,64 |
18,6 |
16,3 |
12,8 |
7,6 |
13,1 |
9,4 |
0,7 |
- |
- |
- |
- |
- |
- |
- |
- |
- |
- |
- |
|
|
ул. Красина, 11 |
54,0 |
72,9 |
0,74 |
19,9 |
14,3 |
10,9 |
8,9 |
7,5 |
4,8 |
0,5 |
56,5 |
79,5 |
0,71 |
19,1 |
11,5 |
10,3 |
8,2 |
7,3 |
9,0 |
6,0 |
2,2 |
|
- |
- |
- |
- |
- |
- |
- |
- |
- |
- |
- |
- |
- |
- |
- |
- |
- |
- |
- |
- |
- |
|
|
Тверской бульвар, 7/2 |
49,8 |
93,7 |
0,53 |
17,4 |
13,3 |
12,3 |
6,8 |
10,2 |
6,8 |
11,3 |
- |
- |
- |
- |
- |
- |
- |
- |
- |
- |
- |
|
- |
- |
- |
- |
- |
- |
- |
- |
- |
- |
- |
- |
- |
- |
- |
- |
- |
- |
- |
- |
- |
|
|
- |
- |
- |
- |
- |
- |
- |
- |
- |
- |
- |
- |
- |
- |
- |
- |
- |
- |
- |
- |
- |
|
|
- |
- |
- |
- |
- |
- |
- |
- |
- |
- |
- |
- |
- |
- |
- |
- |
- |
- |
- |
- |
- |
|
|
- |
- |
- |
- |
- |
- |
- |
- |
- |
- |
- |
- |
- |
- |
- |
- |
- |
- |
- |
- |
- |
|
|
3,8 |
- |
- |
- |
- |
- |
- |
- |
- |
- |
- |
- |
- |
- |
- |
- |
- |
- |
- |
- |
- |
|
|
2,2 |
- |
- |
- |
- |
- |
- |
- |
- |
- |
- |
- |
- |
- |
- |
- |
- |
- |
- |
- |
- |
|
|
7,6 |
- |
- |
- |
- |
- |
- |
- |
- |
- |
- |
- |
- |
- |
- |
- |
- |
- |
- |
- |
- |
|
|
2,4 |
- |
- |
- |
- |
- |
- |
- |
- |
- |
- |
- |
- |
- |
- |
- |
- |
- |
- |
- |
- |
|
|
- |
- |
- |
- |
- |
- |
- |
- |
- |
- |
- |
- |
- |
- |
- |
- |
- |
- |
- |
- |
- |
|
|
- |
- |
- |
- |
- |
- |
- |
- |
- |
- |
- |
- |
- |
- |
- |
- |
- |
- |
- |
- |
- |
|
|
Всего по Москве |
328,8 |
501,2 |
- |
111,7 |
87,1 |
75,7 |
54,3 |
59,1 |
38,9 |
20,2 |
113,0 |
169,2 |
- |
44,9 |
23,7 |
20,7 |
17,7 |
16,3 |
18,0 |
12,7 |
4,4 |
|
Минимальный размер |
49,8 |
72,9 |
0,53 |
17,0 |
13,3 |
10,9 |
6,8 |
7,5 |
4,1 |
0,5 |
56,5 |
79,5 |
0,63 |
19,1 |
11,1 |
11,5 |
8,2 |
7,3 |
9,0 |
6,0 |
2,2 |
|
Максимальный» |
60,2 |
93,7 |
0,74 |
20,8 |
16,3 |
13,9 |
13,6 |
13,1 |
9,4 |
11,3 |
56,5 |
89,7 |
0,71 |
25,8 |
12,2 |
10,4 |
9,5 |
9,0 |
9,0 |
6,7 |
2,2 |
|
Средний» |
54,8 |
83,5 |
0,66 |
18,6 |
14,5 |
12,6 |
9,0 |
9,8 |
6,5 |
3,4 |
56,5 |
84,6 |
0,67 |
22,4 |
11,8 |
10,3 |
8,8 |
8,2 |
9,0 |
6,3 |
2,2 |
Примечание. В таблицу не включены:
а) однокомнатная квартира с жилой площадью 9,6 м2, как нехарактерная для условий перепланировки старых зданий;
б) две трехкомнатные квартиры общей площадью 102,3 м2, предназначенные для использования в качестве маневренного фонда.
Таблица 13
Характеристика новой планировки квартир старых жилых домов Ленинграда
(по шести проектам, выполненным ЛНИИ АКХ)
|
Города и адреса домов |
Типы квартир |
|||||||||||||
|
однокомнатные |
двухкомнатные |
|||||||||||||
|
жилая площадь в м2 |
полезная площадь в м2 |
к1 |
площадь кухни в м2 |
площадь передней в м2 |
площадь шкафов, гардеробных, кладовых в м2 |
жилая площадь в м2 |
полезная площадь в м2 |
к1 |
площадь общей комнаты в м2 |
площадь спальни в м2 |
площадь кухни в м2 |
площадь передней в м2 |
площадь шкафов, гардеробных, кладовых в м2 |
|
|
Ленинград |
||||||||||||||
|
Ул. Дзержинского, 54 |
19,9 |
35,9 |
0,56 |
6,0 |
4,4 |
0,9 |
28,1 |
44,8 |
0,63 |
19,9 |
8,2 |
7,4 |
3,1 |
23 |
|
- |
- |
- |
- |
- |
- |
34,1 |
49,0 |
0,69 |
20,3 |
13,8 |
6,2 |
4,7 |
0,6 |
|
|
- |
- |
- |
- |
- |
- |
27,0 |
45,4 |
0,60 |
16,2 |
10,8 |
6,4 |
4,9 |
1,7 |
|
|
- |
- |
- |
- |
- |
- |
28,8 |
47,8 |
0,60 |
19,5 |
9,3 |
7,2 |
6,1 |
1,2 |
|
|
- |
- |
- |
- |
- |
- |
31,8 |
47,8 |
0,67 |
22,4 |
9,4 |
7,2 |
4,2 |
0,4 |
|
|
- |
- |
- |
- |
- |
- |
31,8 |
49,5 |
0,63 |
19,2 |
11,9 |
7,2 |
4,9 |
0,5 |
|
|
- |
- |
- |
- |
- |
- |
26,6 |
43,9 |
0,61 |
17,2 |
9,4 |
7,9 |
5,2 |
0,8 |
|
|
Ул. Петра Лаврова, 23 |
16,7 |
30,0 |
0,54 |
5,0 |
4,0 |
1,5 |
30,4 |
52,8 |
0,60 |
17,7 |
9,8 |
7,9 |
6,3 |
1,4 |
|
16,1 |
29,4 |
0,54 |
5,0 |
3,8 |
1,4 |
28,7 |
54,5 |
0,52 |
16,1 |
12,6 |
10,7 |
4,7 |
2,7 |
|
|
19,1 |
44,1 |
0,50 |
10,7 |
5,7 |
1,4 |
- |
- |
- |
- |
- |
- |
- |
- |
|
|
Ул. Петра Лаврова, 25 |
- |
- |
- |
- |
- |
- |
24,6 |
42,2 |
0,58 |
15,5 |
9,1 |
7,5 |
3,5 |
0,7 |
|
- |
- |
- |
- |
- |
- |
32,1 |
69,1 |
0,46 |
18,9 |
13,2 |
10,5 |
7,2 |
9,4 |
|
|
- |
- |
- |
- |
- |
- |
- |
- |
- |
- |
- |
- |
- |
- |
|
|
- |
- |
- |
- |
- |
- |
- |
- |
- |
- |
- |
- |
- |
- |
|
|
Васильевский остров, 7-я линия, 6 |
- |
- |
- |
- |
- |
- |
- |
- |
- |
- |
- |
- |
- |
- |
|
- |
- |
- |
- |
- |
- |
- |
- |
- |
- |
- |
- |
- |
- |
|
|
- |
- |
- |
- |
- |
- |
- |
- |
- |
- |
- |
- |
- |
- |
|
|
- |
- |
- |
- |
- |
- |
- |
- |
- |
- |
- |
- |
- |
- |
|
|
- |
- |
- |
- |
- |
- |
- |
- |
- |
- |
- |
- |
- |
- |
|
|
Ул. Салтыкова-Щедрина, 24 |
28,0 |
54,0 |
0,52 |
10,5 |
10,0 |
0,7 |
- |
- |
- |
- |
- |
- |
- |
- |
|
- |
- |
- |
- |
- |
- |
- |
- |
- |
- |
- |
- |
- |
- |
|
|
- |
- |
- |
- |
- |
- |
- |
- |
- |
- |
- |
- |
- |
- |
|
|
- |
- |
- |
- |
- |
- |
- |
- |
- |
- |
- |
- |
- |
- |
|
|
- |
- |
- |
- |
- |
- |
- |
- |
- |
- |
- |
- |
- |
- |
|
|
Пр. Чернышевского, 17 |
16,6 |
35,5 |
0,59 |
9,1 |
7,0 |
0,7 |
28,3 |
58,6 |
0,49 |
17,8 |
10,5 |
9,4 |
5,2 |
4,6 |
|
23,4 |
43,6 |
0,54 |
7,2 |
5,3 |
3,1 |
37,2 |
83,2 |
0,45 |
23,8 |
13,4 |
8,7 |
9,9 |
8,4 |
|
|
15,4 |
34,9 |
0,44 |
8,0 |
6,1 |
1,3 |
27,2 |
50,0 |
0,54 |
15,7 |
11,5 |
9,4 |
6,3 |
1,3 |
|
|
24,0 |
57,9 |
0,42 |
10,7 |
9,3 |
3,2 |
37,7 |
62,1 |
0,61 |
26,3 |
11,4 |
7,9 |
4,9 |
1,9 |
|
|
- |
- |
- |
- |
- |
- |
34,5 |
58,6 |
0,49 |
20,4 |
14,1 |
8,9 |
4,8 |
2,1 |
|
|
- |
- |
- |
- |
- |
- |
36,6 |
65,7 |
0,66 |
22,8 |
13,8 |
11,5 |
8,5 |
1,6 |
|
|
- |
- |
- |
- |
- |
- |
30,9 |
56,7 |
0,55 |
18,3 |
12,6 |
9,5 |
6,5 |
0,5 |
|
|
- |
- |
- |
- |
- |
- |
- |
- |
- |
- |
- |
- |
- |
- |
|
|
- |
- |
- |
- |
- |
- |
- |
- |
- |
- |
- |
- |
- |
- |
|
|
- |
- |
- |
- |
- |
- |
- |
- |
- |
- |
- |
- |
- |
- |
|
|
- |
- |
- |
- |
- |
- |
- |
- |
- |
- |
- |
- |
- |
- |
|
|
- |
- |
- |
- |
- |
- |
- |
- |
- |
- |
- |
- |
- |
- |
|
|
- |
- |
- |
- |
- |
- |
- |
- |
- |
- |
- |
- |
- |
- |
|
|
- |
- |
- |
- |
- |
- |
- |
- |
- |
- |
- |
- |
- |
- |
|
|
- |
- |
- |
- |
- |
- |
- |
- |
- |
- |
- |
- |
- |
- |
|
|
- |
- |
- |
- |
- |
- |
- |
- |
- |
- |
- |
- |
- |
- |
|
|
Всего по Ленинграду |
179,2 |
365,3 |
0,49 |
72,2 |
55,6 |
14,2 |
555,7 |
965,7 |
0,57 |
348,0 |
204,8 |
151,4 |
100,9 |
42,6 |
|
В том числе: |
||||||||||||||
|
минимальный размер |
16,1 |
29,4 |
0,42 |
5,0 |
3,8 |
0,7 |
24,6 |
42,2 |
0,45 |
15,6 |
8,2 |
6,2 |
3,1 |
0,5 |
|
максимальный» |
28,0 |
57,9 |
0,59 |
10,7 |
10,0 |
3,2 |
37,7 |
83,2 |
0,69 |
26,3 |
13,8 |
11,5 |
9,9 |
9,4 |
|
средний» |
19,9 |
40,6 |
0,49 |
8,0 |
6,2 |
1,6 |
30,9 |
53,8 |
0,57 |
19,3 |
11,4 |
8,4 |
5,6 |
2,4 |
|
Города и адреса домов |
Типы квартир |
||||||||||||||||||
|
трехкомнатные |
четырехкомнатные |
||||||||||||||||||
|
жилая площадь в м2 |
полезная площадь в м2 |
к1 |
площадь общей комнаты в м2 |
площади спален в м2 |
площадь кухни в м2 |
площадь передней в м2 |
площадь шкафов, гардеробных, кладовых в м2 |
жилая площадь в м2 |
полезная площадь в м2 |
к1 |
площадь общей комнаты в м2 |
площади спален в м2 |
площадь кухни в м2 |
площадь передней в м2 |
площадь шкафов, гардеробных, кладовых в м2 |
||||
|
первой |
второй |
первой |
второй |
третьей |
|||||||||||||||
|
Ленинград |
|||||||||||||||||||
|
Ул. Дзержинского, 54 |
36,9 |
56,2 |
0,66 |
18,9 |
9,0 |
9,0 |
6,4 |
4,9 |
0,8 |
- |
- |
- |
- |
- |
- |
- |
- |
- |
- |
|
38,2 |
61,1 |
0,63 |
18,2 |
11,2 |
8,8 |
8,0 |
7,8 |
1,0 |
- |
- |
- |
- |
- |
- |
- |
- |
- |
- |
|
|
52,8 |
74,8 |
0,70 |
20,5 |
17,5 |
14,8 |
8,9 |
6,1 |
1,0 |
- |
- |
- |
- |
- |
- |
- |
- |
- |
- |
|
|
34,3 |
52,1 |
0,66 |
13,8 |
12,1 |
8,4 |
7,6 |
5,6 |
- |
- |
- |
- |
- |
- |
- |
- |
- |
- |
- |
|
|
- |
- |
- |
- |
- |
- |
- |
- |
- |
- |
- |
- |
- |
- |
- |
- |
- |
- |
- |
|
|
- |
- |
- |
- |
- |
- |
- |
- |
- |
- |
- |
- |
- |
- |
- |
- |
- |
- |
- |
|
|
- |
- |
- |
- |
- |
- |
- |
- |
- |
- |
- |
- |
- |
- |
- |
- |
- |
- |
- |
|
|
Ул. Петра Лаврова, 23 |
45,6 |
65,8 |
0,60 |
19,8 |
13,8 |
11,1 |
6,9 |
5,5 |
2,9 |
- |
- |
- |
- |
- |
- |
- |
- |
- |
- |
|
48,8 |
73,7 |
0,70 |
22,4 |
14,8 |
11,7 |
9,9 |
4,1 |
2,7 |
- |
- |
- |
- |
- |
- |
- |
- |
- |
- |
|
|
43,3 |
82,3 |
0,54 |
19,8 |
12,1 |
11,2 |
11,0 |
5,1 |
3,5 |
- |
- |
- |
- |
- |
- |
- |
- |
- |
- |
|
|
Ул. Петра Лаврова, 25 |
50,6 |
76,2 |
0,66 |
27,4 |
12,8 |
10,4 |
8,3 |
6,2 |
1,6 |
- |
- |
- |
- |
- |
- |
- |
- |
- |
- |
|
45,5 |
73,0 |
0,62 |
21,7 |
12,5 |
11,3 |
12,1 |
4,0 |
2,8 |
- |
- |
- |
- |
- |
- |
- |
- |
- |
- |
|
|
34,3 |
70,4 |
0,48 |
15,9 |
19,2 |
9,2 |
8,7 |
5,6 |
6,7 |
- |
- |
- |
- |
- |
- |
- |
- |
- |
- |
|
|
40,1 |
61,8 |
0,64 |
19,8 |
10,8 |
9,5 |
7,2 |
5,9 |
0,9 |
- |
- |
- |
- |
- |
- |
- |
- |
- |
- |
|
|
Васильевский остров, 7-я линия, 6 |
39,2 |
68,9 |
0,57 |
16,5 |
13,8 |
8,8 |
9,6 |
5,9 |
6,6 |
60,4 |
114,0 |
0,53 |
25,5 |
12,9 |
11,8 |
10,1 |
13,8 |
5,2 |
4,9 |
|
38,9 |
68,4 |
0,57 |
16,2 |
13,8 |
8,8 |
9,3 |
5,9 |
5,7 |
56,9 |
90,3 |
0,63 |
24,2 |
12,8 |
12,0 |
8,0 |
9,1 |
4,5 |
2,8 |
|
|
28,9 |
51,9 |
0,56 |
12,8 |
9,7 |
6,3 |
8,4 |
4,6 |
1,9 |
57,3 |
92,5 |
0,62 |
22,2 |
11,8 |
11,8 |
11,8 |
9,0 |
7,7 |
3,9 |
|
|
- |
- |
- |
- |
- |
- |
- |
- |
- |
59,4 |
113,6 |
0,62 |
23,2 |
13,5 |
12,1 |
10,3 |
14,0 |
5,2 |
8,1 |
|
|
- |
- |
- |
- |
- |
- |
- |
- |
- |
48,1 |
78,9 |
0,61 |
24,2 |
8,4 |
8,2 |
7,2 |
8,6 |
5,0 |
7,5 |
|
|
Ул. Салтыкова-Щедрина, 24 |
52,3 |
95,3 |
0,54 |
22,4 |
19,5 |
10,4 |
12,6 |
10,7 |
7,3 |
53,5 |
88,5 |
0,60 |
20,8 |
13,9 |
9,4 |
9,4 |
9,5 |
6,3 |
6,3 |
|
45,1 |
63,3 |
0,71 |
22,7 |
13,9 |
8,5 |
7,0 |
3,6 |
1,0 |
65,4 |
114,3 |
0,57 |
23,9 |
21,1 |
10,2 |
10,2 |
9,4 |
7,1 |
10,0 |
|
|
57,2 |
97,4 |
0,58 |
27,1 |
17,1 |
13,0 |
9,6 |
13,7 |
6,3 |
58,8 |
83,5 |
0,70 |
23,3 |
17,5 |
9,0 |
9,0 |
10,0 |
5,0 |
1,5 |
|
|
47,4 |
83,2 |
0,56 |
21,5 |
15,8 |
10,1 |
9,1 |
5,0 |
9,9 |
46,6 |
79,4 |
0,58 |
16,4 |
10,6 |
9,8 |
9,8 |
11,5 |
8,4 |
3,4 |
|
|
38,9 |
64,4 |
0,60 |
16,5 |
11,6 |
10,8 |
9,5 |
7,0 |
1,7 |
- |
- |
- |
- |
- |
- |
- |
- |
- |
- |
|
|
Пр. Чернышевского, 17 |
54,4 |
82,7 |
0,66 |
28,0 |
14,5 |
13,9 |
9,9 |
6,6 |
1,4 |
47,2 |
77,2 |
0,61 |
19,2 |
11,9 |
9,6 |
6,5 |
11,9 |
7,8 |
1,0 |
|
53,3 |
80,9 |
0,66 |
20,8 |
18,0 |
14,5 |
9,8 |
5,4 |
2,5 |
60,7 |
98,3 |
0,62 |
19,2 |
16,9 |
15,0 |
9,6 |
8,2 |
7,6 |
0,5 |
|
|
53,0 |
80,5 |
0,66 |
29,6 |
11,7 |
11,7 |
10,7 |
5,1 |
3,4 |
72,1 |
105,0 |
0,69 |
24,1 |
19,6 |
15,5 |
12,9 |
10,5 |
5,9 |
3,3 |
|
|
51,8 |
82,4 |
0,63 |
21,6 |
19,7 |
10,5 |
10,7 |
6,9 |
2,6 |
59,4 |
90,3 |
0,66 |
17,0 |
18,5 |
12,9 |
11,0 |
9,6 |
7,8 |
5,5 |
|
|
40,2 |
67,8 |
0,59 |
19,4 |
10,4 |
10,4 |
10,0 |
5,8 |
1,9 |
69,6 |
106,0 |
0,66 |
25,8 |
18,0 |
12,9 |
12,9 |
8,2 |
7,8 |
6,6 |
|
|
42,4 |
68,7 |
0,62 |
20,4 |
11,0 |
11,0 |
9,7 |
5,7 |
3,2 |
80,8 |
123,0 |
0,65 |
28,1 |
21,4 |
17,8 |
13,5 |
10,2 |
11,2 |
5,3 |
|
|
49,0 |
78,5 |
0,63 |
21,9 |
16,7 |
10,5 |
8,0 |
5,4 |
4,0 |
56,3 |
90,3 |
0,62 |
22,3 |
14,4 |
9,8 |
9,8 |
9,8 |
6,9 |
2,1 |
|
|
42,2 |
67,9 |
0,62 |
21,2 |
10,5 |
10,5 |
8,1 |
6,5 |
2,5 |
- |
- |
- |
- |
- |
- |
- |
- |
- |
- |
|
|
37,4 |
79,1 |
0,47 |
17,0 |
11,1 |
9,6 |
15,2 |
6,8 |
8,3 |
- |
- |
- |
- |
- |
- |
- |
- |
- |
- |
|
|
41,6 |
68,6 |
0,61 |
15,9 |
15,6 |
10,1 |
9,8 |
5,5 |
2,1 |
- |
- |
- |
- |
- |
- |
- |
- |
- |
- |
|
|
44,1 |
70,3 |
0,63 |
20,1 |
17,0 |
12,0 |
9,1 |
5,9 |
2,6 |
- |
- |
- |
- |
- |
- |
- |
- |
- |
- |
|
|
35,5 |
70,4 |
0,51 |
14,9 |
10,3 |
10,3 |
8,2 |
10,2 |
4,8 |
- |
- |
- |
- |
- |
- |
- |
- |
- |
- |
|
|
40,6 |
67,4 |
0,61 |
19,2 |
10,8 |
10,6 |
8,8 |
6,7 |
1,4 |
- |
- |
- |
- |
- |
- |
- |
- |
- |
- |
|
|
38,6 |
65,5 |
0,59 |
19,0 |
9,8 |
9,8 |
9,5 |
5,9 |
4,4 |
- |
- |
- |
- |
- |
- |
- |
- |
- |
- |
|
|
43,8 |
81,3 |
0,54 |
21,3 |
12,6 |
9,9 |
9,3 |
7,3 |
6,8 |
- |
- |
- |
- |
- |
- |
- |
- |
- |
- |
|
|
47,4 |
78,5 |
0,60 |
19,1 |
17,1 |
11,2 |
8,8 |
5,4 |
3,6 |
- |
- |
- |
- |
- |
- |
- |
- |
- |
- |
|
|
Всего по Ленинграду |
1533,7 |
2531,0 |
0,61 |
701,3 |
467,8 |
368,6 |
325,7 |
218,3 |
119,8 |
952,5 |
1545,1 |
0,61 |
359,2 |
243,2 |
187,8 |
162,2 |
163,3 |
109,4 |
72,7 |
|
В том числе: |
|||||||||||||||||||
|
минимальный размер |
28,9 |
51,9 |
0,47 |
12,8 |
9,0 |
6,3 |
6,4 |
4,0 |
0,8 |
46,6 |
77,2 |
0,52 |
16,4 |
8,4 |
8,2 |
6,5 |
8,2 |
4,5 |
0,5 |
|
максимальный» |
57,2 |
97,4 |
0,71 |
29,6 |
19,7 |
14,8 |
15,2 |
13,7 |
9,9 |
80,8 |
123,0 |
0,70 |
28,1 |
21,4 |
17,8 |
13,5 |
14,0 |
11,2 |
10,0 |
|
средний» |
43,8 |
72,3 |
0,61 |
20,0 |
13,4 |
10,5 |
9,3 |
6,2 |
3,4 |
59,5 |
96,5 |
0,61 |
22,4 |
15,2 |
11,7 |
10,1 |
10,2 |
6,8 |
4,5 |
Характеристика новой планировки квартир старых жилых домов: Горького, Калинина, Калуги, Куйбышева, Ростова-на-Дону и Орла
(по 11 проектам, выполненным ЛНИИ АКХ)
|
Города и адреса домов |
Типы квартир |
|||||||||||||
|
однокомнатные |
двухкомнатные |
|||||||||||||
|
жилая площадь в м2 |
полезная площадь в м2 |
к1 |
площадь кухни в м2 |
площадь передней в м2 |
площадь шкафов, гардеробных, кладовых в м2 |
жилая площадь в м2 |
полезная площадь в м2 |
к1 |
площадь общей комнаты в м2 |
площадь спальни в м2 |
площадь кухни в м2 |
площадь передней в м2 |
площадь шкафов, гардеробных, кладовых в м2 |
|
|
Горький |
||||||||||||||
|
Ул. Пискуновой, 18 |
15,5 |
29,8 |
0,52 |
6,5 |
2,7 |
0,9 |
26,0 |
47,0 |
0,55 |
16,1 |
9,9 |
5,6 |
4,5 |
4,0 |
|
- |
- |
- |
- |
- |
- |
34,8 |
50,5 |
0,69 |
20,9 |
13,9 |
5,8 |
4,8 |
1,0 |
|
|
- |
- |
- |
- |
- |
- |
33,5 |
55,1 |
0,61 |
19,9 |
13,6 |
9,0 |
4,8 |
1,3 |
|
|
Калинин |
||||||||||||||
|
Ул. Советская, 59 |
- |
- |
- |
- |
- |
- |
- |
- |
- |
- |
- |
- |
- |
- |
|
- |
- |
- |
- |
- |
- |
- |
- |
- |
- |
- |
- |
- |
- |
|
|
- |
- |
- |
- |
- |
- |
- |
- |
- |
- |
- |
- |
- |
- |
|
|
- |
- |
- |
- |
- |
- |
- |
- |
- |
- |
- |
- |
- |
- |
|
|
Ул. Крылова, 5 |
- |
- |
- |
- |
- |
- |
- |
- |
- |
- |
- |
- |
- |
- |
|
- |
- |
- |
- |
- |
- |
- |
- |
- |
- |
- |
- |
- |
- |
|
|
- |
- |
- |
- |
- |
- |
- |
- |
- |
- |
- |
- |
- |
- |
|
|
- |
- |
- |
- |
- |
- |
- |
- |
- |
- |
- |
- |
- |
- |
|
|
Ул. Радищева, 12 |
- |
- |
- |
- |
- |
- |
27,5 |
53,8 |
0,51 |
19,7 |
7,8 |
8,9 |
7,2 |
5,8 |
|
- |
- |
- |
- |
- |
- |
- |
- |
- |
- |
- |
- |
- |
- |
|
|
Калуга |
||||||||||||||
|
Ул. Кирова, 13 |
21,5 |
40,0 |
0,54 |
7,6 |
5,1 |
1,1 |
24,9 |
46,2 |
0,54 |
15,4 |
9,5 |
6,9 |
4,9 |
1,4 |
|
14,2 |
32,7 |
0,43 |
7,4 |
4,8 |
0,8 |
28,7 |
49,9 |
0,57 |
16,6 |
12,1 |
10,2 |
5,1 |
1,2 |
|
|
Ул. Труда, 1 |
- |
- |
- |
- |
- |
- |
30,0 |
50,3 |
0,59 |
20,3 |
9,7 |
6,5 |
7,5 |
0,5 |
|
- |
- |
- |
- |
- |
- |
30,0 |
50,3 |
0,59 |
20,3 |
9,7 |
6,5 |
7,5 |
0,5 |
|
|
Куйбышев |
||||||||||||||
|
Ул. Куйбышева, 58 |
22,5 |
38,5 |
0,59 |
7,2 |
5,1 |
0,5 |
23,5 |
37,5 |
0,63 |
15,5 |
8,0 |
5,7 |
6,9 |
0,3 |
|
- |
- |
- |
- |
- |
- |
31,6 |
52,9 |
0,60 |
18,3 |
13,3 |
8,3 |
4,2 |
2,5 |
|
|
- |
- |
- |
- |
- |
- |
31,9 |
49,2 |
0,65 |
16,5 |
15,4 |
6,6 |
5,2 |
1,0 |
|
|
- |
- |
- |
- |
- |
- |
31,7 |
55,4 |
0,57 |
20,0 |
11,7 |
9,5 |
7,9 |
1,8 |
|
|
- |
- |
- |
- |
- |
- |
28,7 |
47,9 |
0,60 |
15,1 |
13,6 |
9,5 |
5,0 |
0,7 |
|
|
- |
- |
- |
- |
- |
- |
- |
- |
- |
- |
- |
- |
- |
- |
|
|
- |
- |
- |
- |
- |
- |
- |
- |
- |
- |
- |
- |
- |
- |
|
|
Ул. Куйбышева, 28 |
20,0 |
41,0 |
0,49 |
6,8 |
6,1 |
1,4 |
25,2 |
40,6 |
0,62 |
12,7 |
12,5 |
6,8 |
3,8 |
0,9 |
|
Ростов-на-Дону |
||||||||||||||
|
Суворова, 7 |
16,2 |
35,4 |
0,46 |
7,5 |
4,1 |
0,6 |
23,8 |
48,1 |
0,49 |
14,7 |
9,1 |
9,1 |
4,3 |
2,9 |
|
- |
- |
- |
- |
- |
- |
25,9 |
49,3 |
0,53 |
15,4 |
10,5 |
7,8 |
5,9 |
5,0 |
|
|
- |
- |
- |
- |
- |
- |
21,8 |
44,2 |
0,49 |
13,4 |
8,4 |
7,3 |
3,6 |
1,8 |
|
|
- |
- |
- |
- |
- |
- |
- |
- |
- |
- |
- |
- |
- |
- |
|
|
Газетный пер., 54/70 |
- |
- |
- |
- |
- |
- |
26,6 |
47,9 |
0,55 |
14,0 |
12,6 |
10,3 |
6,5 |
1,0 |
|
- |
- |
- |
- |
- |
- |
28,2 |
45,4 |
0,60 |
15,2 |
13,0 |
6,8 |
4,7 |
1,0 |
|
|
Орел |
||||||||||||||
|
Салтыкова-Щедрина, 27 |
- |
- |
- |
- |
- |
- |
30,9 |
50,0 |
0,62 |
17,0 |
13,9 |
7,4 |
5,4 |
1,4 |
|
- |
- |
- |
- |
- |
- |
28,7 |
47,1 |
0,61 |
17,0 |
11,7 |
7,6 |
5,2 |
1,4 |
|
|
- |
- |
- |
- |
- |
- |
28,7 |
49,7 |
0,57 |
15,4 |
13,3 |
7,8 |
5,4 |
1,9 |
|
|
- |
- |
- |
- |
- |
- |
28,3 |
47,0 |
0,60 |
15,7 |
12,6 |
7,2 |
5,8 |
1,4 |
|
|
Всего |
109,9 |
217,4 |
- |
43,0 |
27,9 |
3,4 |
650,9 |
1115,4 |
0000,0 |
385,1 |
265,8 |
177,1 |
126,1 |
40,7 |
|
Минимальный размер |
14,2 |
29,8 |
0,43 |
6,5 |
2,7 |
0,5 |
21,8 |
37,5 |
0,49 |
12,7 |
7,8 |
5,6 |
3,6 |
0,5 |
|
Максимальный» |
22,5 |
41,0 |
0,59 |
7,6 |
6,1 |
1,4 |
34,8 |
55,4 |
0,69 |
20,9 |
15,4 |
10,3 |
7,9 |
5,8 |
|
Средний» |
18,3 |
36,2 |
0,50 |
7,2 |
4,6 |
0,9 |
28,3 |
48,5 |
0,58 |
16,7 |
11,6 |
7,7 |
5,5 |
1,7 |
|
Города и адреса домов |
Типы квартир |
||||||||||||||||||
|
трехкомнатные |
четырехкомнатные |
||||||||||||||||||
|
жилая площадь в м2 |
полезная площадь в м2 |
к1 |
площадь общей комнаты в м2 |
площади спален в м2 |
площадь кухни в м2 |
площадь передней в м2 |
площадь шкафов, гардеробных, кладовых в м2 |
жилая площадь в м2 |
полезная площадь в м2 |
к1 |
площадь общей комнаты в м2 |
площади спален в м2 |
площадь кухни в м2 |
площадь передней в м2 |
площадь шкафов, гардеробных, кладовых в м2 |
||||
|
первой |
второй |
первой |
второй |
третьей |
|||||||||||||||
|
Горький |
|||||||||||||||||||
|
Ул. Пискуновой, 18 |
38,3 |
64,4 |
0,60 |
16,9 |
11,6 |
9,8 |
7,9 |
10,7 |
1,2 |
- |
- |
- |
- |
- |
- |
- |
- |
- |
- |
|
43,4 |
58,4 |
0,74 |
21,9 |
13,9 |
7,6 |
5,7 |
4,5 |
0,8 |
- |
- |
- |
- |
- |
- |
- |
- |
- |
- |
|
|
- |
- |
- |
- |
- |
- |
- |
- |
- |
- |
- |
- |
- |
- |
- |
- |
- |
- |
- |
|
|
Калинин |
|||||||||||||||||||
|
Ул. Советская, 59 |
39,8 |
64,5 |
0,62 |
15,3 |
14,6 |
9,9 |
8,1 |
4,6 |
1,2 |
- |
- |
- |
- |
- |
- |
- |
- |
- |
- |
|
47,5 |
70,5 |
0,67 |
23,8 |
12,2 |
11,5 |
7,7 |
4,4 |
1,7 |
- |
- |
- |
- |
- |
- |
- |
- |
- |
- |
|
|
47,3 |
73,1 |
0,65 |
20,2 |
14,8 |
12,3 |
9,0 |
6,3 |
1,7 |
- |
- |
- |
- |
- |
- |
- |
- |
- |
- |
|
|
46,7 |
72,9 |
0,64 |
16,4 |
15,6 |
14,7 |
8,1 |
4,6 |
2,9 |
- |
- |
- |
- |
- |
- |
- |
- |
- |
- |
|
|
Ул. Крылова, 5 |
34,7 |
54,9 |
0,63 |
14,2 |
11,4 |
9,2 |
8,5 |
5,1 |
3,3 |
31,1 |
59,4 |
0,62 |
14,4 |
8,2 |
8,1 |
6,4 |
8,1 |
4,0 |
2,6 |
|
38,0 |
56,6 |
0,67 |
15,5 |
12,3 |
10,2 |
8,8 |
4,8 |
0,5 |
- |
- |
- |
- |
- |
- |
- |
- |
- |
- |
|
|
29,9 |
49,8 |
0,60 |
14,2 |
9,2 |
6,5 |
8,7 |
4,3 |
2,5 |
- |
- |
- |
- |
- |
- |
- |
- |
- |
- |
|
|
38,0 |
62,7 |
0,61 |
17,0 |
11,2 |
9,2 |
9,6 |
6,1 |
0,8 |
- |
- |
- |
- |
- |
- |
- |
- |
- |
- |
|
|
Ул. Радищева, 12 |
30,2 |
60,9 |
0,50 |
12,1 |
9,1 |
9,0 |
12,2 |
5,7 |
3,5 |
- |
- |
- |
- |
- |
- |
- |
- |
- |
- |
|
45,8 |
71,7 |
0,64 |
23,9 |
12,3 |
9,6 |
9,8 |
5,5 |
5,9 |
- |
- |
- |
- |
- |
- |
- |
- |
- |
- |
|
|
Калуга |
|||||||||||||||||||
|
Ул. Кирова, 13 |
- |
- |
- |
- |
- |
- |
- |
- |
- |
41,4 |
67,2 |
0,62 |
18,9 |
9,7 |
6,4 |
6,4 |
11,8 |
4,0 |
1,1 |
|
- |
- |
- |
- |
- |
- |
- |
- |
- |
- |
- |
- |
- |
- |
- |
- |
- |
- |
- |
|
|
Ул. Труда, 1 |
47,8 |
71,4 |
0,66 |
20,3 |
13,8 |
13,7 |
6,5 |
13,6 |
0,5 |
- |
- |
- |
- |
- |
- |
- |
- |
- |
- |
|
39,1 |
62,4 |
0,63 |
20,3 |
9,4 |
9,4 |
6,5 |
i3,2 |
0,5 |
- |
- |
- |
- |
- |
- |
- |
- |
- |
- |
|
|
Куйбышев |
|||||||||||||||||||
|
Ул. Куйбышева, 58 |
49,8 |
75,7 |
0,65 |
20,0 |
18,3 |
11,5 |
8,3 |
8,8 |
2,2 |
39,4 |
60,2 |
0,65 |
16,7 |
13,1 |
9,6 |
7,8 |
7,9 |
5,1 |
1,9 |
|
47,1 |
68,4 |
0,69 |
18,3 |
15,9 |
12,9 |
8,3 |
4,3 |
2,5 |
- |
- |
- |
- |
- |
- |
- |
- |
- |
- |
|
|
41,9 |
67,8 |
0,62 |
18,3 |
14,4 |
9,2 |
8,3 |
4,3 |
2,5 |
- |
- |
- |
- |
- |
- |
- |
- |
- |
- |
|
|
34,8 |
60,4 |
0,57 |
14,3 |
10,8 |
9,7 |
7,4 |
11,3 |
2,5 |
- |
- |
- |
- |
- |
- |
- |
- |
- |
- |
|
|
33,4 |
52,2 |
0,64 |
17,4 |
8,0 |
8,0 |
7,0 |
5,2 |
1,5 |
- |
- |
- |
- |
- |
- |
- |
- |
- |
- |
|
|
47,2 |
70,7 |
0,67 |
20,0 |
16,2 |
11,0 |
9,4 |
5,7 |
1,7 |
- |
- |
- |
- |
- |
- |
- |
- |
- |
- |
|
|
40,3 |
63,9 |
0,63 |
17,3 |
13,4 |
9,6 |
9,5 |
6,1 |
0,7 |
- |
- |
- |
- |
- |
- |
- |
- |
- |
- |
|
|
Ул. Куйбышева, 28 |
37,0 |
54,3 |
0,68 |
16,8 |
12,6 |
10,6 |
6,8 |
4,0 |
0,3 |
49,6 |
76,3 |
0,65 |
16,8 |
14,0 |
9,6 |
9,2 |
9,4 |
7,2 |
1,0 |
|
Ростов-на-Дону |
|||||||||||||||||||
|
Суворова, 7 |
40,0 |
75,3 |
0,53 |
16,9 |
14,1 |
9,0 |
10,3 |
6,5 |
2,2 |
- |
- |
- |
- |
- |
- |
- |
- |
- |
- |
|
31,8 |
54,6 |
0,58 |
15,2 |
10,5 |
6,1 |
7,6 |
4,3 |
4,9 |
- |
- |
- |
- |
- |
- |
- |
- |
- |
- |
|
|
46,5 |
72,4 |
0,65 |
20,5 |
13,8 |
12,2 |
9,4 |
7,3 |
2,1 |
- |
- |
- |
- |
- |
- |
- |
- |
- |
- |
|
|
Газетный пер., 54/70 |
- |
- |
- |
- |
- |
- |
- |
- |
- |
49,0 |
75,5 |
0,65 |
19,5 |
10,7 |
10,7 |
8,1 |
9,5 |
6,2 |
0,9 |
|
- |
- |
- |
- |
- |
- |
- |
- |
- |
- |
- |
- |
- |
- |
- |
- |
- |
- |
- |
|
|
Орел |
|||||||||||||||||||
|
Салтыкова-Щедрина, 27 |
37,8 |
56,9 |
0,66 |
16,2 |
12,2 |
8,8 |
7,4 |
7,3 |
0,7 |
- |
- |
- |
- |
- |
- |
- |
- |
- |
- |
|
46,5 |
70,6 |
0,66 |
21,4 |
15,9 |
9,2 |
6,0 |
5,2 |
0,8 |
- |
- |
- |
- |
- |
- |
- |
- |
- |
- |
|
|
- |
- |
- |
- |
- |
- |
- |
- |
- |
- |
- |
- |
- |
- |
- |
- |
- |
- |
- |
|
|
- |
- |
- |
- |
- |
- |
- |
- |
- |
- |
- |
- |
- |
- |
- |
- |
- |
- |
- |
|
|
Всего |
1100,5 |
37,4 |
- |
484,6 |
348,1 |
270,2 |
222,8 |
173,7 |
51,6 |
210,5 |
338,6 |
- |
86,3 |
55,7 |
44,4 |
37,9 |
36,7 |
26,5 |
7,5 |
|
Минимальный размер |
29,9 |
49,8 |
0,50 |
12,1 |
8,0 |
6,1 |
5,7 |
4,0 |
0,3 |
31,1 |
59,4 |
0,62 |
14,4 |
8,2 |
6,4 |
6,4 |
7,9 |
4,0 |
0,9 |
|
Максимальный» |
49,8 |
75,3 |
0,74 |
23,9 |
16,2 |
14,7 |
12,2 |
13,6 |
5,9 |
49,6 |
76,3 |
0,65 |
19,5 |
14,0 |
10,7 |
9,2 |
11,8 |
7,2 |
2,6 |
|
Средний» |
47,4 |
64,3 |
0,63 |
17,9 |
12,9 |
10,0 |
8,2 |
6,4 |
2,0 |
42,1 |
67,7 |
0,62 |
17,3 |
11,1 |
8,9 |
7,6 |
7,3 |
5,3 |
1,5 |
Характеристика новой планировки квартир старых жилых домов (по 21 проекту, выполняемому ЛНИИ АКХ)
|
Типы квартир |
|||||||||||||||||||||||
|
однокомнатные |
двухкомнатные |
трехкомнатные |
|||||||||||||||||||||
|
жилая площадь в м2 |
полезная площадь в м2 |
к1 |
площадь кухни в м2 |
площадь передней в м2 |
площадь шкафов, гардеробных, кладовых в м2 |
жилая площадь в м2 |
полезная площадь в м2 |
к1 |
площадь общей комнаты в м2 |
площадь спальни в м2 |
площадь кухни в м2 |
площадь передней в м2 |
площадь шкафов, гардеробных, кладовых в м2 |
жилая площадь в м2 |
полезная площадь в м2 |
к1 |
площадь общей комнаты в м2 |
площади спален в м2 |
площадь кухни в м2 |
площадь передней в м2 |
площадь шкафов, гардеробных, кладовых в м2 |
||
|
первой |
второй |
||||||||||||||||||||||
|
Всего |
509,5 |
983,0 |
- |
199,5 |
124,9 |
31,9 |
1511,5 |
2604,4 |
- |
915,4 |
593,2 |
421,3 |
282,2 |
99,2 |
3076,2 |
4978,8 |
- |
1383,4 |
959,0 |
742,0 |
572,1 |
457,7 |
197,6 |
|
Минимальный размер |
14,2 |
26,8 |
0,42 |
5,0 |
2,7 |
0,3 |
21,8 |
37,5 |
0,45 |
12,7 |
7,8 |
5,6 |
3,1 |
0,4 |
28,9 |
49,8 |
0,47 |
12,1 |
8,0 |
6,1 |
5,7 |
3,5 |
0,3 |
|
Максимальный размер |
28,0 |
57,9 |
0,60 |
10,7 |
10,0 |
3,2 |
37,7 |
83,2 |
0,69 |
26,3 |
15,4 |
12,0 |
9,9 |
9,4 |
57,2 |
97,4 |
0,74 |
30,3 |
19,7 |
14,8 |
15,2 |
13,7 |
9,9 |
|
Средний размер |
19,6 |
37,8 |
0,52 |
7,7 |
4,8 |
1,2 |
29,1 |
50,0 |
0,58 |
17,6 |
11,4 |
8,1 |
5,4 |
1,9 |
42,1 |
68,2 |
0,62 |
18,9 |
13,1 |
10,2 |
7,8 |
6,3 |
2,7 |
Продолжение
|
Основные размеры квартир и комнат |
Типы квартир |
||||||||||||||||||||
|
четырехкомнатные |
пятикомнатные |
||||||||||||||||||||
|
жилая площадь в м2 |
полезная площадь в м2 |
к1 |
площадь общей комнаты в м2 |
площади спален в м2 |
площадь кухни в м2 |
площадь передней в м2 |
площадь шкафов, гардеробных, кладовых в м2 |
жилая площадь в м2 |
полезная площадь в м2 |
к1 |
площадь общей комнаты в м2 |
площади спален в м2 |
площадь кухни в м2 |
площадь передней в м2 |
площадь шкафов, гардеробных, кладовых в м2 |
||||||
|
первой |
второй |
третьей |
первой |
второй |
третьей |
четвертой |
|||||||||||||||
|
Всего |
1491,8 |
2384,9 |
- |
557,2 |
386,0 |
307,9 |
254,4 |
259,1 |
174,8 |
100,4 |
113,0 |
169,2 |
- |
44,9 |
23,7 |
20,7 |
17,7 |
16,3 |
18,0 |
12,7 |
4,4 |
|
Минимальный размер |
31,1 |
59,4 |
0,53 |
14,4 |
8,2 |
6,4 |
6,4 |
7,5 |
4,0 |
0,5 |
56,5 |
79,5 |
0,63 |
19,1 |
11,5 |
10,3 |
8,2 |
7,3 |
9,0 |
6,0 |
2,2 |
|
Максимальный размер |
80,8 |
123,0 |
0,74 |
28,1 |
21,4 |
17,8 |
13,6 |
14,0 |
11,2 |
11,3 |
56,5 |
89,7 |
0,71 |
25,8 |
12,2 |
10,4 |
9,5 |
9,0 |
9,0 |
6,7 |
2,2 |
|
Средний размер |
55,2 |
88,3 |
0,63 |
20,6 |
14,3 |
11,4 |
9,4 |
9,6 |
6,5 |
3,7 |
56,5 |
84,6 |
0,67 |
22,4 |
11,8 |
10,3 |
8,8 |
8,2 |
9,0 |
6,3 |
2,2 |
4. СНиП II-Л.1-62 И ЕГО УВЯЗКА С «РЕКОМЕНДАЦИЯМИ»
За отправной пункт при написании «Рекомендаций по перепланировке жилых домов старой застройки городов» было принято положение о том, что условия проживания в домах после комплексного капитального ремонта и модернизации не должны быть хуже, чем в новых домах.
В основу «Рекомендаций» положена глава СНиП «Жилые здания. Нормы проектирования» в ее последней редакции (СНиП II-Л.1-62). Но СНиП составлен для нового строительства. При модернизации старых жилых домов буквальное следование всем изложенным там требованиям далеко не всегда возможно; в большинстве случаев оно вызвало бы неоправданные потери площади или просто оказалось бы невыполнимым. В связи с этим необходимы специальные нормативы, отражающие специфику старого фонда и дающие право в определенных случаях отступать от некоторых положений СНиП.
Как уже отмечалось, проведенный анализ показал, что дома, построенные до революции, отличаются от тех, что были выстроены позже и особенно в последние годы шириной корпуса и конфигурацией планов. Неизбежное следствие этого - большие полезные площади значительной части квартир, организуемых при модернизации. Анализ деятельности проектных организаций и опыт экспериментального проектирования ЛНИИ АКХ показали, что верхний предел допустимых полезных площадей квартир для условий модернизации должен быть поднят на 25 - 50 м2 по сравнению с величинами, установленными СНиП для тех же типов квартир в новом строительстве. Из-за тех же особенностей старого фонда на единицу светового фронта здесь часто приходится большая площадь, чем это имеет место в новых домах. Как результат этого, при перепланировке домов с широким корпусом может возникнуть невыгодное соотношение жилых и полезных площадей квартир (низкие к1). Чтобы исключить появление таких нецелесообразных и неэкономичных решений, в «Рекомендациях» введены минимальные допустимые значения к1, установленные в результате анализа большого количества проектов капитального ремонта.
Пересмотрен и вопрос о максимальной глубине комнат. СНиП определяет ее в 6,0 м и устанавливает, что глубина комнаты не должна превышать ее ширину более, чем вдвое. Именно эти ограничения, будучи приложенными к условиям модернизации, вызывали бы в домах с широким корпусом занижение плоскостного коэффициента к1 и большие потери жилой площади. В настоящих нормативах предложено не ограничивать глубину комнат; одновременно обусловлено, что в комнатах глубиной свыше 6 м должна быть предусмотрена возможность дополнительной вентиляции через вытяжные каналы, расположенные в наиболее удаленной от окон части помещения. Что же касается допустимых пропорций жилых комнат, то для их установления был использован специальный макет, изготовленный в масштабе 1:10 и позволяющий воспроизводить комнаты различной глубины, высоты и ширины с одним и двумя окнами. Рассматривая макет с высоты, равной уровню зрения человека, находящегося в изучаемой комнате, авторы работы убедились, во-первых, в возможности дифференцированно подойти к определению допустимой «вытянутости» комнат различного назначения (общих и спален) и, во-вторых, в необходимости учета еще и высоты помещения. Дело в том, что, как показали исследования, проведенные с макетом, длинная и узкая комната с высоким потолком кажется менее приемлемой, чем комната тех же размеров в плане, но менее высокая. С учетом сказанного в «Рекомендациях» принято максимально допустимое отношение глубины к ширине для общей комнаты 2,2, а для спален - 2,2 или 2,5 в зависимости от отношения высоты спальни к ее ширине (соответственно больше или меньше 1,5).
Уже отмечалось, что дома старой постройки существенно разнятся от новых домов условиями освещения и инсоляции помещений. Значительный процент квартир или отдельных комнат не получает в достаточном количестве свет и солнце. Устранение этих недостатков в процессе модернизации домов чрезвычайно сложно и связано с большими потерями жилой площади прежде всего из-за сноса. Что же касается ориентации, то она и вовсе не поддается исправлению. Поэтому зачастую в проектах капитального ремонта и после перепланировки сохраняются квартиры, все комнаты которых выходят на север или близки к северу румбы. Как известно, СНиП подобные решения не допускает и требует благоприятной ориентации всех комнат односторонних квартир или устройства квартир с двусторонним освещением. Практика экспериментального проектирования показывает, что организация квартир с двусторонней ориентацией возможна и в условиях модернизации старого фонда, и что именно этот прием позволит решить проблему инсоляции жилых помещений существующих домов. Однако зачастую при капитальном ремонте приходится иметь дело с однопролетными корпусами, единственный световой фронт которых обращен на неблагоприятную сторону горизонта. В этих случаях, если не представляется возможным пробить окна в противоположной стене или, объединив два смежных однопролетных корпуса, организовать квартиры с двусторонним освещением, приходится идти на создание заведомо плохо инсолируемых квартир. Определенное количество таких квартир может возникнуть и в двухпролетных корпусах. Считаясь с тем, что полный отказ от односторонних квартир с плохой ориентацией вызвал бы большой снос или резкое увеличение процента многокомнатных квартир, в «Рекомендациях» допускают проектирование таких квартир, но с оговоркой: суммарная полезная площадь их не должна составлять больше 20 % от всей полезной площади дома.
Освещение модернизируемых домов - проблема почти столь же сложная, как и инсолирование их. Достаточно вспомнить полутемные комнаты многих ленинградских квартир, выходящие в световые дворики размером в 5´5 м и меньше, чтобы убедиться в этом. СНиП определяет требования к освещенности жилых комнат и кухонь следующим образом: площадь пола не должна превосходить площадь окна более, чем в 8 раз. При этом расстояние между параллельными корпусами в районах новой застройки составляет не меньше двух их высот. В сумме эти условия обеспечивают достаточное количество света в квартирах. В старой застройке сплошь и рядом встречаются случаи, когда даже снос ветхих или малоценных флигелей и корпусов не обеспечивает нормативных разрывов между домами. Да и размеры окон здесь иные. Как правило, они уже окон новых домов; осуществлять же уширение всех или большей части существующих оконных проемов было бы неэкономичной и трудоемкой затеей. Учитывая все сказанное, в рекомендуемых нормативах предлагается вообще не нормировать освещение кухонь, допуская, что для их размещения будет использоваться неизбежно остающиеся и после модернизации затененные углы, площади, примыкающие к малоразмерным световым дворикам и т.п. Что же касается жилых комнат, то здесь во всех случаях, не укладывающихся в требования СНиП (разрыв между корпусами, равный или больший 2h, и отношение площади окна к площади пола не менее 1:8), необходима проверка освещенности расчетом. При этом всегда целесообразно рассчитывать освещение не всей комнаты, а только ее части, равной по площади максимальным размерам, указанным в табл. 9 для комнаты данного назначения в квартире данного типа. Например, при расчете освещенности общей комнаты четырехкомнатной квартиры в расчет можно не принимать ее площадь сверх 17 м2. При таком подходе проявляется возможность организации квартир, которые в первый период при заселении по существующим нормам не будут полностью соответствовать санитарным требованиям, а в дальнейшем могут заселяться с учетом их и с некоторым перерасходом жилой и полезной площади на одного человека.
До сих пор говорилось о несоответствии многих положений СНиП, связанных со спецификой старого фонда. Но специфичен не только сам фонд - организация проектирования перепланировок жилых домов, подвергающихся капитальному ремонту, тоже отличается от организации проектирования новых жилых домов. Разработка типовых проектов новых жилых домов сосредоточена в нескольких крупных проектных и научно-исследовательских институтах, и каждая серия секций проходит широкое обсуждение, детально экспертируется специалистами, а иногда даже проверяется экспериментальным осуществлением в натуре. Иное положение в области модернизации жилых домов старой застройки. Бесконечное разнообразие типов квартир не позволяет уделять столько внимания каждой из них при составлении и, главное, при рассмотрении и утверждении проектов. Немалое значение имеет также и то обстоятельство, что организации, проектирующие капитальный ремонт, как правило, невелики и разобщены, а характер их работ препятствует сколько-нибудь далеко идущей централизации.
Таблица 16
Сравнительные данные по основным параметрам квартир
|
По СНиП (СНиП II-Л.1-62) |
По материалам экспериментального проектирования ЛНИИ АКХ |
По «Рекомендациям по перепланировке и повышению благоустройства жилых домов старой застройки городов» |
|||||||||||||||
|
число комнат в квартире |
|||||||||||||||||
|
1 |
2 |
3 |
4 |
5 |
1 |
2 |
3 |
4 |
5 |
1 |
2 |
3 |
4 |
5 |
|||
|
Жилая площадь квартиры в м2 |
Минимальная |
15 |
23 |
31 |
42 |
50 |
12,4 |
21,8 |
28,5 |
37,1 |
56,8 |
14 |
22 |
30 |
38 |
47 |
|
|
Максимальная |
28,0 |
37,7 |
57,8 |
80,8 |
57,1 |
||||||||||||
|
Рекомендуется |
19,0 |
29,2 |
42,4 |
55,5 |
57,0 |
16 - 22 |
28 - 32 |
38 - 43 |
51 - 55 |
60 - 70 |
|||||||
|
Полезная площадь квартиры в м2 |
Минимальная |
28 |
36 |
45 |
56 |
68 |
28,1 |
37,5 |
44,2 |
59,4 |
78,5 |
26 |
33 |
44 |
54 |
65 |
|
|
Максимальная |
36 |
45 |
56 |
68 |
80 |
58,0 |
65,6 |
97,4 |
123,0 |
88,9 |
50 |
70 |
90 |
110 |
130 |
||
|
Рекомендуется |
37,6 |
52,0 |
68,0 |
88,0 |
83,7 |
33 - 38 |
47 - 51 |
58 - 63 |
75 - 80 |
86 - 97 |
|||||||
|
к1 |
Минимальная |
0,42 |
0,51 |
0,55 |
0,62 |
0,62 |
0,42 |
0,42 |
0,47 |
0,53 |
0,64 |
0,40 |
0,45 |
0,50 |
0,55 |
0,60 |
|
|
Максимальная |
0,59 |
0,69 |
0,71 |
0,75 |
0,72 |
||||||||||||
|
Рекомендуется |
0,52 |
0,58 |
0,62 |
0,63 |
0,68 |
||||||||||||
|
Площадь общей комнаты в м2 |
Минимальная |
15 |
15 |
15 |
18 |
18 |
12,4 |
14,0 |
12,8 |
14,4 |
16,7 |
14 |
13 |
15 |
17 |
17 |
|
|
Максимальная |
28,0 |
26,3 |
34,0 |
28,1 |
17,1 |
||||||||||||
|
Рекомендуется |
19,0 |
18,5 |
18,8 |
20,6 |
17,0 |
16 - 22 |
15 - 18 |
15 - 18 |
18 - 20 |
18 - 20 |
|||||||
|
Площадь спален в м2 |
I |
Минимальная |
8 |
10 |
10 |
10 |
7,8 |
8,0 |
8,2 |
11,6 |
9 |
9 |
9 |
9 |
|||
|
Максимальная |
15,4 |
21,7 |
21,4 |
12,8 |
|||||||||||||
|
Рекомендуется |
11,4 |
13,0 |
14,3 |
12,2 |
12 - 15 |
12 - 15 |
12 - 15 |
12-15 |
|||||||||
|
II |
Минимальная |
6 |
8 |
8 |
6,1 |
8,1 |
10,3 |
6 |
6 |
9 |
|||||||
|
Максимальная |
14,8 |
17,8 |
10,9 |
||||||||||||||
|
Рекомендуется |
10,0 |
11,5 |
10,6 |
8 - 10 |
8 - 10 |
8 - 10 |
|||||||||||
|
III |
Минимальная |
6 |
8 |
6,4 |
9,0 |
6 |
6 |
||||||||||
|
Максимальная |
13,5 |
9,0 |
|||||||||||||||
|
Рекомендуется |
9,5 |
9,0 |
8 - 10 |
8 - 10 |
|||||||||||||
|
IV |
Минимальная |
6 |
7,6 |
6 |
|||||||||||||
|
Максимальная |
8,8 |
||||||||||||||||
|
Рекомендуется |
8,2 |
8 - 10 |
|||||||||||||||
|
Площадь кухни в м2 |
Минимальная |
6 |
6 |
6 |
6 |
6 |
5,0 |
5,8 |
5,7 |
6,1 |
8,9 |
6 |
6 |
6 |
6 |
6 |
|
|
Максимальная |
10,0 |
11,5 |
15,4 |
14,0 |
10,2 |
||||||||||||
|
Рекомендуется |
7,5 |
8,1 |
9,1 |
9,8 |
9,5 |
7 - 8 |
7 - 8 |
8 - 10 |
8 - 10 |
10 - 12 |
|||||||
|
Площадь передней в м2 |
Минимальная |
Ширина передней не менее 1,2 м при прямом переходе в квартиру с лестничной площадки, не менее 1,3 м при переходе с поворотом |
3,0 |
3,1 |
3,5 |
3,9 |
6,8 |
3 |
4 |
4 |
4 |
4 |
|||||
|
Максимальная |
10,0 |
9,9 |
13,7 |
11,2 |
6,9 |
||||||||||||
|
Рекомендуется |
4,7 |
5,4 |
6,5 |
6,5 |
6,9 |
4 |
5 |
5 |
5 |
6 |
|||||||
|
Площадь шкафов, гардеробов и кладовых в м2 |
Минимальная |
0,24 |
0,24 |
0,24 |
0,24 |
0,24 |
0,5 |
0,4 |
0,5 |
0,5 |
1,2 |
0,24 |
0,24 |
0,24 |
0,24 |
0,24 |
|
|
Максимальная |
4,2 |
9,4 |
9,9 |
11,3 |
6,8 |
||||||||||||
|
Рекомендуется |
1,4 |
2,0 |
2,8 |
3,9 |
4,0 |
1,5 - 2 |
2 - 3 |
3 - 4 |
4 - 5 |
5 - 6 |
|||||||
Примечание. В правой части таблицы в строках «рекомендуется» приведены средние величины экспериментального проектирования.
Перечисленные соображения заставили включить в «Рекомендации» более подробную регламентацию параметров квартир и их помещений, чем это имеет место в СНиП. Так, например, в «Рекомендациях» установлены допустимые величины плоскостного коэффициента к1 для разных типов квартир и площади передних, отсутствующие в СНиП. Кроме того, для всех помещений указаны не только минимальные (для полезной площади - и максимальные), но и рекомендуемые размеры, что очень важно для проектировщиков. Установлены также минимальные ширины жилых комнат отдельно для общих комнат и спален.
Специфичность проектирования перепланировок старых жилых домов по сравнению с проектированием нового жилья должна была найти свое отражение не только в увеличении перечня регламентируемых величин, но и в изменении по сравнению со СНиП их значений. Вызвано это изменение, во-первых, сложностью вписывания квартир в жесткие рамки существующих капитальных стен с существующей сеткой окон и, во-вторых, практически бесконечным разнообразием квартир модернизируемых домов, отсутствием повторяемости, столь характерной для нового строительства. Огромный «тираж» типовых секций новых жилых домов предопределяет необходимость проектировать квартиры, которые могли бы удовлетворить, так сказать, усредненные потребности; он же не допускает исключений, так как последние в условиях многократного повторения немедленно начали бы превращаться в правила. И то и другое не может относиться к модернизации домов. Здесь правомерны и квартиры, полноценно удовлетворяющие потребности только небольших контингентов семей.
Еще одна характерная особенность: в отличие от типового проектирования, где размеры обслуживающих помещений в сильной степени зависят от принятых пролетов и шага конструкций и поэтому повторяются, как правило, в пределах одной серии без изменения во всех типах квартир, в условиях капитального ремонта и модернизации представляется возможным дифференцированно назначить минимальные и рекомендуемые площади кухонь, передних и санитарных узлов для квартир с равным числом комнат.
С учетом всего сказанного выше и составлен раздел III первой части «Рекомендаций по перепланировке и повышению благоустройства жилых домов старой застройки городов».
В табл. 16 приведены сравнительные данные об основных параметрах квартир по СНиП II-Л.1-62, по материалам экспериментального проектирования ЛНИИ АКХ и по «Рекомендациям по перепланировке и повышению благоустройства жилых домов старой застройки городов».
5. ПОТЕРИ ЖИЛОЙ ПЛОЩАДИ ПРИ ПЕРЕПЛАНИРОВКЕ И ПОВЫШЕНИИ БЛАГОУСТРОЙСТВА ЖИЛЫХ ДОМОВ
Анализ проектно-сметной документации, разработанной проектными организациями на капитальный ремонт жилых домов в Москве, Ленинграде, Калинине, Калуге, Куйбышеве, Горьком, Туле и Ростове-на-Дону, показал, что потери жилой площади при этих работах различны по каждому дому и колеблются от 0 % до 27,4 %.
По жилым домам Москвы потери жилой площади составляют 3 - 27,4 % (табл. 17). Из 23 домов в 5 домах процент потери жилой площади колеблется от 14,5 до 27,4 %, в следующих 5 домах - от 11,2 до 14,4 %. Средний процент потерь жилой площади по 23 домам составил 9,6 %, в том числе 8,7 % потерь от перепланировки квартир.
По 36 жилым домам Ленинграда (табл. 18) общие потери жилой площади в среднем составили 15,2 %, в том числе от перепланировки квартир - 8,5 %. Потери по отдельным домам составили: в 8 домах - от 15,3 до 24,7 %; в 14 домах - от 10 до 15. %; в остальных - до 10 %.
Потери жилой площади по проектам 1963 - 1964 г., разработанным проектными институтами Ленжилпроект и Мосжилпроект, несколько снизились и составили от 10 до 15 %, хотя при этом допускаются квартиры с повышенной жилой площадью и большим количеством жилых комнат, так что не всегда возможно их использовать для односемейного заселения.
Потери жилой площади по проектным материалам проектно-сметных организаций других городов составили: по 7 домам г. Калуги - 3,4 % (табл. 19); по 7 домам г. Калинина - 22,8 %, в том числе от перепланировки квартир - 10,3 % (табл. 20); по 7 домам г. Куйбышева - 13 %, в том числе от перепланировки квартир - 8 % (табл. 21); по 10 домам г. Горького - 11,7 %, в том числе 6,4 % от перепланировки квартир (табл. 22).
Потери жилой площади устанавливались по каждому дому и по городам в целом. Сводные потери жилой площади по 116 домам разных городов приведены в табл. 23.
Из данных табл. 23 видно, что общие потери жилой площади по совпадающим частям жилых домов составляют 13,9 %, в том числе от перепланировки квартир - 8,6 %; от сноса части здания - 2,44 %, от ликвидации жилья в подвалах - 0,75 %; от размещения в домах после капитального ремонта детских, торговых и служебных помещений - 2,11 %.
Вместе с этим из табл. 23 видны различные потери для городов Москвы и Ленинграда и других городов. Сравнительно небольшие потери жилой площади в гг. Калуге, Горьком, Куйбышеве и других объясняется, как отмечалось уже ранее, тем, что при составлении проектной документации на капитальный ремонт жилых домов почти не учитывалась потребность улучшения планировки квартир и повышения степени инженерного оборудования в домах.
На основе проделанной работы, в том числе и экспериментального проектирования, допустимые потери жилой площади принимаются:
для жилищного фонда старой застройки Москвы и Ленинграда - 10 %;
для жилищного фонда старой застройки других городов РСФСР - 15 %.
В случае превышения этих потерь по жилому дому они должны быть тщательно обоснованы и утверждены Исполнительным Комитетом Городского Совета депутатов трудящихся.
Таблица 17
Потери жилой площади по Москве
|
По инвентарным чертежам |
По проектам |
Потери |
Увеличение в м2 |
||||||
|
этажность |
жилая площадь в м2 |
полезная площадь в м2 |
этажность |
жилая площадь в м2 |
полезная площадь в м2 |
в м2 |
в % |
||
|
Ул. Красина, 11 |
4 |
704,30 |
944,9 |
4 |
638,5 |
978,1 |
100,7 |
14,4 |
|
|
» Горького, 3/1 |
3 |
654,3 |
884,9 |
3 |
531,8 |
878,8 |
122,5 |
18,7 |
|
|
» Б. Хмельницкого, 6/8 |
3 |
434,7 |
602,0 |
3 |
374,5 |
584,9 |
60,2 |
13,8 |
|
|
Н. Ростовский пер., 2/1 |
4 |
733,7 |
1306,0 |
4 |
768,3 |
1349,9 |
26,0 |
3,5 |
34,6 |
|
Ул. Пироговская, 16 |
9 |
9017,5 |
13685,4 |
9 |
8297,1 |
10894,8 |
720,4 |
8,0 |
|
|
Б. Полянка, 33/21 |
3 |
579,0 |
880,0 |
3 |
507,1 |
724,2 |
71,9 |
12,4 |
|
|
Ул. Осипенко, 78 |
4 |
696,6 |
845,1 |
4 |
708,8 |
1061,4 |
51,4 |
7,4 |
12, |
|
» Фрунзе, 18 |
3 |
1130,2 |
1614,4 |
3 |
1149,8 |
1564,3 |
18, |
||
|
Богословский пер., 7 |
4 |
4862,3 |
6623,6 |
4 |
4687,7 |
6545,0 |
387,3 |
8,0 |
|
|
Ул. Мира, 53 |
7 |
3277,3 |
4570,1 |
7 |
3333,6 |
4630,7 |
93,2 |
3,0 |
56,3 |
|
» Пантелеевская, 20 |
4 |
1286,3 |
1789,2 |
4 |
1300,5 |
1872,1 |
83,8 |
6,5 |
14,2 |
|
Ленивка, 1/45 |
4 |
741,8 |
937,2 |
4 |
791,6 |
1051,9 |
49,8 |
||
|
Аксаков пер., 4 |
4 |
715,4 |
1529,2 |
4 |
677,1 |
1027,8 |
80,2 |
11,2 |
|
|
Б. Молчановка, 1а |
4 |
1241,9 |
1616,5 |
4 |
943,2 |
1372,5 |
163,4 |
14,8 |
|
|
Серебрянический пер., 4 |
4 |
816,6 |
1160,0 |
4 |
845,2 |
1240,0 |
28,6 |
||
|
Ул. Пятницкая, 47 |
5 |
1484,5 |
1849,7 |
5 |
1378,9 |
1758,3 |
174.0 |
11,7 |
|
|
М. Каретный пер., 14 |
6 |
1647,3 |
2291,5 |
6 |
1586,4 |
2287,4 |
60,9 |
3,7 |
|
|
Ул. Якиманка, 24 |
3 |
2343,8 |
2880,0 |
3 |
1684,2 |
2751,5 |
538,6 |
23 |
|
|
Н. Красносельский пер. 28 |
6 |
1676,0 |
2514,3 |
6 |
1589,6 |
2461,9 |
86,4 |
5,1 |
|
|
Ул. Н. Рязанская, 2/7 |
6 |
3886,1 |
5393,5 |
6 |
3322,8 |
4710,3 |
563,3 |
14,5 |
|
|
» Станиславского, 24 |
4 |
3309,5 |
4491,0 |
4 |
2828,2 |
4462,4 |
427,3 |
13,2 |
|
|
Коптельский пер., 7 |
3 |
878,0 |
1191,5 |
3 |
879,8 |
1085,0 |
16,3 |
1,9 |
1,8 |
|
Электрический пер., 12 |
4 |
1704,1 |
2737,4 |
4 |
1237,9 |
2061,5 |
466,2 |
27,4 |
|
|
43821,2 43545,6 |
62337,4 |
40062,6 39745,2 |
57354,7 |
3800,4 |
8,7 |
||||
Примечание. В числителе показана общая жилая площадь всех домов, в знаменателе - жилая площадь по совпадающим частям.
Таблица 18
Потери жилой площади по Ленинграду
Примечание. В числителе показана общая площадь всех домов, в знаменателе - жилая площадь по совпадающим частям.
Таблица 19
Потери жилой площади по Калуге
|
По инвентарным чертежам |
По проектам |
Потери |
Увеличение в м2 |
|||||||
|
жилая площадь в м2 |
полезная площадь в м2 |
этажность |
жилая площадь в м2 |
полезная площадь в м2 |
этажность |
в м2 |
в % |
|||
|
Ул. Кирова, 57 |
278,33 |
318,46 |
3 |
236,88 |
319,00 |
3 |
41,45 |
14,8 |
||
|
» Московская, 19 |
274,90 |
365,40 |
2 |
322,7 273,3 |
454,2 |
2 |
47,8 |
|||
|
» Ленина, 72 |
329,70 |
462,65 |
2 |
402,60 340,45 |
434,60 |
2 |
72,90 10,75 |
|||
|
» Ленина, 15 |
214,05 |
317,11 |
2 |
396,9 193,4 |
602,53 |
3 |
20,67 |
9,6 |
182,85 |
|
|
» Баумана, 11 |
494,24 |
673,02 |
2 + мезонин |
504,96 |
701,29 |
2 + мезонин |
10,72 |
|||
|
» », 26 |
178,7 |
237,5 |
2 |
192,9 |
241,5 |
2 |
14,2 |
|||
|
» Салтыкова-Щедрина, 24 |
513,30 |
665,90 |
2 + мезонин |
463,93 |
674,78 |
2 + мезонин |
49,37 |
9,6 |
||
|
Итого |
2283,2 |
3041 |
2520,9 2205,8 |
3528 |
Средний % потерь |
|||||
|
7,8 |
3,4 |
|||||||||
Потери жилой площади по Калинину
|
По инвентарным чертежам |
По проектам |
Потери |
Увеличение в м2 |
||||||
|
жилая площадь в м2 |
полезная площадь в м2 |
этажность |
жилая площадь в м2 |
полезная площадь в м2 |
этажность |
в м2 |
в % |
||
|
Ул. Крылова, 3 |
185,81 |
246,51 |
2 |
177,40 |
249,36 |
2 |
13,90 |
7,3 |
|
|
» Рыбацкая, 11/32 (литер А) |
527,38 |
664,52 |
2 |
502,83 |
680,22 |
2 |
24,55 |
4,6 |
|
|
» Урицкого, 20/32 |
247,32 |
403,23 |
2 - 3 |
212,95 |
394,73 |
2 - 3 |
34,37 |
13,9 |
|
|
» Каляева, 41 (литер А) |
198,47 |
304,57 |
2 - 3 |
229,34 |
323,90 |
2 - 3 |
30,87 |
||
|
» Желябова, 11 (литер А) |
354,58 |
467,58 |
2 с подвалом |
309,67 |
511,44 |
2 с подвалом |
44,91 |
12,7 |
|
|
» Крылова, 5 |
556,0 |
687,2 |
1 - 2 + мансарда |
433,3 |
574,2 |
2 |
122,7 |
22 |
|
|
» Радищева, 12 |
296,0 |
387,1 |
2 + антресоль |
255,0 |
358,2 |
2 |
41,0 |
13,8 |
|
|
Итого |
2365,5 |
3161 |
2121,5 |
3092 |
244 |
10,3 |
|||
Потери жилой площади по Куйбышеву
|
По инвентарным чертежам |
По проектам |
Потери |
Увеличение |
|||||||
|
этажность |
жилая площадь в м2 |
полезная площадь в м2 |
этажность |
жилая площадь в м2 |
полезная площадь в м2 |
в м2 |
в % |
в м2 |
в % |
|
|
Ул. Льва Толстого, 120 |
2 |
410,9 с подвалом |
590,1 с подвалом |
2 |
259,7 без подвала |
369,5 без подвала |
51,3 |
16,6 |
||
|
Ленинградская ул., 96 |
3 |
292,7 |
371,9 |
3 |
274,1 |
414,8 |
18,6 |
6,3 |
||
|
Ул. Горького, 113 |
2 |
148,7 |
211,4 |
2 |
139,0 |
217,4 |
9,7 |
6,5 |
||
|
» Чапаева, 155 |
2 |
456,6 |
649,9 |
2 |
386,9 |
510,2 |
35,0 |
8,3 |
||
|
» Куйбышева, 28 |
3 |
717,8 |
960,0 |
3 |
695,4 |
968,6 |
22,4 |
3,1 |
||
|
» Водников, 50 |
2 |
168,4 |
214,5 |
2 |
152,7 |
219,6 |
15,7 |
9,3 |
||
|
» », 49 |
1 |
267,3 |
322,0 |
1 |
232,0 |
337,4 |
35,3 |
13,2 |
||
|
Итого: |
2462,4 233,8 |
3320 |
2140,8 2141,0 |
3039 |
197,0 |
8,0 |
||||
|
Средний % потерь |
||||||||||
Примечание. В числителе указана общая жилая площадь, в знаменателе - по сравнимым частям домов.
Таблица 22
Потери жилой площади по Горькому
|
По инвентарным чертежам |
По проектам |
Потери |
Увеличение |
|||||||
|
этажность |
жилая площадь в м2 |
полезная площадь в м2 |
этажность |
жилая площадь в м2 |
полезная площадь в м2 |
в м2 |
в % |
в м2 |
в % |
|
|
Ул. Маяковского, 22 |
2 |
226,4 |
336,1 |
3 |
316,5 164,3 |
495,8 265,5 |
62,1 |
27 |
90,14 |
40 |
|
Почаинский овраг, 7 |
3 |
587,5 |
839,5 |
3 |
570,3 |
834,5 |
17,2 |
2,9 |
||
|
Ул. Пискунова, 18 |
3 |
591,7 |
772,1 |
3 |
735,4 |
996,5 |
143,7 |
24 |
||
|
Нагорный пер., 9 |
3 |
403,8 |
582,1 |
3 |
375,4 |
589,9 |
28,4 |
7,1 |
||
|
Ул. Алеши Пешкова, 6 |
2 |
158,6 |
218,7 |
2 |
149,6 |
216,0 |
9,0 |
5,7 |
||
|
» Семашко, 5-а |
2 + мансарда |
256,5 211,4 |
335,3 |
3 |
286,2 202,2 |
372,4 |
9,2 |
4,3 |
29,7 |
11.6 |
|
» Интернациональная, 12 |
2 |
430,3 351,5 |
627,7 |
2 |
327,9 |
462,1 |
102,4 23,6 |
23,6 6,7 |
||
|
» », 5 |
2 + мансарда |
579,8 494,0 |
781,5 |
2 |
445,0 385,0 |
666,6 |
134,8 109 |
23,2 22 |
||
|
» », 26/5 |
1 - 2 |
189,3 |
252,2 |
2 |
237,6 188,6 |
329,5 |
1,6 |
0,85 |
48,3 |
25,6 |
|
» Канавинская, 57 |
2 |
147,5 |
206,3 |
2 |
189,6 132,8 |
289,8 |
14,7 |
10 |
42,1 |
28,6 |
|
Итого |
3571,4 3361,7 |
4951,5 |
3643,5 3131,5 |
5122,8 |
230 |
6,4 |
||||
Сводная таблица потерь жилой площади при капитальном ремонте жилых домов старой застройки городов
|
Количество домов |
Жилая площадь |
Потери жилой площади |
|
||||||||||||||||||
|
до капитального ремонта в м2 |
после капитального ремонта |
в том числе |
|
||||||||||||||||||
|
всего |
от перепланировки квартир |
от сноса части зданий |
от ликвидации подвалов |
от размещений торговых помещений |
от размещения детских учреждений |
от размещения служебных помещений |
от размещения помещений бытового обслуживания |
||||||||||||||
|
всего в м2 |
в том числе надстройки и пристройки в м2 |
||||||||||||||||||||
|
в м2 |
в % |
в м2 |
в % |
в м2 |
в % |
в м2 |
в % |
в м2 |
в % |
в м2 |
в % |
в м2 |
в % |
в м2 |
в % |
|
|||||
|
Москва |
23 |
43821 43536 |
40063 39745 |
218 |
4197 |
9,6 |
3800 |
8,7 |
222 |
0,5 |
54 |
0,12 |
121 |
0,28 |
|
||||||
|
Ленинград |
46 |
68019 61461 |
68614 55691 |
11873 |
10302 |
16,2 |
5770 |
8,5 |
1915 |
2,7 |
7,1 |
0,10 |
369 |
0,5 |
1547 |
2,5 |
2,91 |
0,4 |
339 |
0,5 |
|
|
Калинин |
7 |
2366 |
2122 |
62 |
537 |
22,8 |
244 |
10,3 |
152 |
6,5 |
71 |
3,0 |
71 |
3,0 |
|
||||||
|
Калуга |
7 |
2283 2283 |
2521 2206 |
314 |
78 |
3,4 |
|
||||||||||||||
|
Горький |
10 |
3571 3362 |
3644 3132 |
296 |
418 |
11,7 |
230 |
6,4 |
8,6 |
2,4 |
102 |
2,9 |
|
||||||||
|
Куйбышев |
7 |
2462 2338 |
2141 2141 |
321 |
13,0 |
197 |
8,0 |
100 |
3,7 |
35 |
1,3 |
|
|||||||||
|
Разные города (экспериментальные проекты) |
11 |
7800 7075 |
6189 6189 |
1611 |
20,6 |
886 |
11,3 |
575 |
7,4 |
150 |
1,9 |
|
|||||||||
|
Москва, Ленинград, Калинин, Калуга (экспериментальные проекты) |
5 |
9135 7995 |
7441 7182 |
259 |
1952 |
21,4 |
813 |
8,9 |
660 |
7,3 |
432 |
4,7 |
48 |
0,5 |
|
||||||
|
Всего |
116 |
139458 130415 |
132733 118407 |
13012 |
19416 |
13,9 |
12018 |
8,60 |
3388 |
2,44 |
1046 |
0,75 |
369 |
0,27 |
1547 |
1,12 |
501 |
0,36 |
460 |
0,33 |
|
Примечание. В числителе указана общая жилая площадь по дому, в знаменателе - жилая площадь за вычетом потерь (т.е. сравнимая) от сноса и использования жилой площади по другому назначению.
СОДЕРЖАНИЕ