Информационная система
«Ёшкин Кот»

XXXecatmenu

ЗАО ДОМОДЕДОВСКИЙ ЗМК «МЕТАКО»

ОКП 52 1624

СОГЛАСОВАНО:

ДОБДД МВД РФ

______________________

«___» _________________ 200 __г.

УТВЕРЖДАЮ

Генеральный директор
ЗАО ДЗМК «МЕТАКО»

_____________ М. Б. Гершкович

«____» ______________ 200___ г.

ОГРАЖДЕНИЯ ДОРОЖНЫЕ
УДЕРЖИВАЮЩИЕ ДЛЯ АВТОМОБИЛЕЙ
БАРЬЕРНОГО ТИПА,
ДОРОЖНОЙ И МОСТОВОЙ ГРУПП,
ОДНОСТОРОННИЕ И ДВУСТОРОННИЕ

Технические условия

ТУ 5216-055-00110604-2007
Взамен ТУ 5216-017-00110604-02, ТУ 5216-020-00110604-03,
ТУ 5216-021-00110604-03, ТУ 5216-024-00110604-04, ТУ 5216-025-00110604-06,
ТУ 5216-031-00110604-06, ТУ 5216-054-00110604-02

Дата введения _____________

Технический консультант:

Зам. генерального директора ФГУП «РОСДОРНИИ», д. техн. наук

__________________ В.И Шестериков

Разработаны

Инженер-конструктор КО

______________ А.С. Смирнова

Начальник КО

______________ А.В. Никитина

Инженер по стандартизации

______________ О.В. Пахомова

Зам. генерального директора

по развитию и новым проектам

______________ Б.М. Гершкович

г. Домодедово 2008

Настоящие технические условия распространяются на ограждения дорожные, удерживающие, боковые и фронтальные, для автомобилей, барьерного типа, дорожной и мостовой групп, одностороннего и двустороннего исполнения (далее - ограждения), а также составные части ограждений (участки, элементы).

Ограждения по настоящим ТУ предназначены для применения на автодорогах общего пользования для предотвращения съезда транспортного средства с обочины и искусственного сооружения (моста, путепровода, эстакады и т.п.), пересечения разделительной полосы, столкновения со встречным транспортным средством, наезда на массивные препятствия и сооружения, расположенные на обочине, в полосе отвода дороги, на разделительной полосе.

Выбор марки ограждения и места его установки на автомобильных дорогах общего пользования следует выполнять в соответствии с требованиями ГОСТ Р 52289, ГОСТ Р 52606, ГОСТ Р 52607, СНиП 2.05.02, СНиП 2.05.03, и настоящих ТУ.

В настоящих технических условиях применяются термины и определения, приведенные в приложении А.

В настоящих технических условиях применяются следующие обозначения и сокращения:

L - длина дорожного ограждения, м

R - радиус гиба радиусной балки, м

S - шаг стоек рабочего участка, м

S2 - шаг стоек начального (концевого) участка, м

В - отгон к бровке земляного полотна, м

М - длина пролетного строения и переходных плит мостового сооружения, м

Н - высота ограждения, м

У - удерживающая способность (энергоемкость) ограждения, кДж

у - динамический прогиб ограждения, м

В настоящих ТУ использованы ссылки на нормативные документы, приведенные в Приложении Б.

Настоящие технические условия разработаны с учетом требований ГОСТ Р 52289, ГОСТ Р 52607

ОБОЗНАЧЕНИЕ КОНСТРУКЦИЙ

1.1 Ограждения следует обозначать маркой по схеме, указанной ниже ХХ-ХХ/X-Х-Х-ХХ

Например:

Марка 11-ДО/У6 (400)-1,1-1,5-1,2 ТУ 5216-055-00110604-07 обозначает, что рабочий участок ограждения дорожного, удерживающего, для автомобилей, бокового, барьерного типа, дорожного, одностороннего исполнения имеет уровень удерживающей способности У6 (400 кДж), высоту 1,1 м, шаг стоек 1,5 м, динамический прогиб 1,2 м и изготовлен по настоящим техническим условиям.

Марка 11-МД/У5 (350)-1,1-2,0-0,6 ТУ 5216-055-00110604-07 обозначает, что рабочий участок ограждения дорожного, удерживающего, для автомобилей, бокового, барьерного типа, мостового, двустороннего имеет уровень удерживающей способности У5 (350 кДж), высоту 1,1 м, шаг стоек 2,0 м, динамический прогиб 0,6 м и изготовлен по настоящим техническим условиям.

Марка 11МО/У6 (400)-1,3-2,0-0,9 ТУ 5216-055-00110604-07 обозначает, что рабочий участок ограждения мостового, одностороннего имеет уровень удерживающей способности У6 (400 кДж), высоту 1,3 м, шаг стоек 2,0 м, динамический прогиб 0,9 м и изготовлен по настоящим техническим условиям.

Марка 11МОЦ/У6 (400)-1,1(0,15)-2,0-0,9 ТУ 5216-055-00110604-07 обозначает, что рабочий участок ограждения мостового, одностороннего имеет уровень удерживающей способности У6 (400 кДж) при общей высоте 1,1 м, том числе цоколь (бордюр) 0,15 м, шаг стоек 2,0 м, динамический прогиб 0,9 м и изготовлен по настоящим техническим условиям.

Марка 12МО/У5 ТУ 5216-055-00110604-07 обозначает ограждение дорожное, удерживающее, фронтальное, для автомобилей, мостовое, одностороннее с удерживающей способностью не ниже У5 (350 кДж).

Марка 11ДОН18/У5 (350)-1,1-2,0 ТУ 5216-055-00110604-07 обозначает начальный участок длиной 18 м для ограждения дорожного одностороннего удерживающей способностью У5 (350 кДж) высотой 1,1 м и шагом стоек 2,0 м.

Марка 11ДОК12/У5 (350)-1,1-1,5 ТУ 5216-055-00110604-07 обозначает конечный участок для ограждения дорожного одностороннего удерживающей способностью У5 (350 кДЖ) высотой 1,1 м, и шагом стоек 1,5 м.

Марка 11МОП14/У4 (300) - 11ДО/У2(190) ТУ 5216-055-00110604-07 обозначает переходный участок длиной 14 м ограждения мостового одностороннего удерживающей способностью У4 (300 кДж) и ограждения дорожной группы одностороннего удерживающей способностью У2 (190 кДж).

Марка 11ДОС12/У5 (350) - 11ДО/У4 (300) ТУ 5216-055-00110604-07 обозначает сопрягающий участок длиной 12 м ограждений дорожных односторонних удерживающей способностью У5 (350 кДж) и У4 (300 кДж)

2. ТЕХНИЧЕСКИЕ ТРЕБОВАНИЯ

2.1. Ограждения дорожные, удерживающие для автомобилей, боковые, барьерного типа, а также составные части ограждения (участки, элементы) должны соответствовать требованиям настоящих ТУ и комплекту рабочих чертежей, утвержденных в установленном порядке.

2.2. Состав ограждений

2.2.1 Ограждения должны быть непрерывными и состоять из начального, рабочего (рабочих), и концевого участков. Для соединения рабочих участков между собой следует применять переходные и сопрягающие участки.

2.2.2 Переходные участки следует применять для соединения рабочих участков дорожных и мостовых, односторонних и двусторонних ограждений, а также барьерных и парапетных.

2.2.3 Сопрягающие участки следует применять для соединения барьерного ограждения основной дороги с ограждением на съездах транспортных развязок, участков с различной удерживающей способностью.

2.3. Функциональные свойства и параметры

2.3.1 Ограждения должны быть безопасными для автомобиля, его водителя и пассажиров, а также для пешеходов на тротуарах. После наезда автомобиля на ограждение должна быть обеспечена безопасность других участников движения на автомобильной дороге, а также сохранность элементов оборудования, перед которыми установлены ограждения.

2.3.2 Участки ограждения должны иметь длину, указанную в таблице 1

Таблица 1

Наименование участка

Марка

Длина, м

Рабочий

11ДО

L

11ДД

L

11МО

M

11МД

M

Начальный (концевой)

11-ДОН (К)/У1, У2, У3-0, 75-S-y

≥ 12,0; ≥ 15,0; ≥ 18,0; ≥ 25,0

11-ДОН (К)/У4-0,9-S-y

≥ 12,0; ≥ 15,0; ≥ 18,0; ≥ 25,0

11-ДОН (К)/У5, У6, У7-1,1-S-y

≥ 12,0; ≥ 15,0; ≥ 18,0; ≥ 25,0

11ДДН (К)/У4-0,9-S-y

≥ 12,0

11ДДН (К)/У5-У7-1,1-S-y

≥ 12,0

Переходный

 

≥ 12,0

Сопрягающий

 

≥ 12,0

2.3.3. Рабочие участки должны быть выполнены в соответствии с приложением В и схемами сборки приложения Г.

2.3.4. Показатели функциональных свойств и параметров рабочих участков, должны соответствовать указанным в таблице 2.

Таблица 2

№ п/п

Обозначение (марка) рабочего участка ограждения

Уровень удерживающей способности, кДж

Высота, м

Шаг стоек, м

Динамический прогиб, м

Рабочая ширина, м

№ схемы в приложениях В и Г

Примечание

1. ДОРОЖНЫЕ ОДНОСТОРОННИЕ

1

11ДО/У1 (130)-0,75-3,0-1,3

130

0,75

3,0

1,30

1,40

1

 

2

11ДО/У2 (190)-0,75-2,0-1,2

190

0,75

2,0

1,20

1,30

2

 

3

11ДО/У3 (250)-0,75-2,0-1,2

250

0,75

2,0

1,20

1,30

2

 

4

11ДО/У4 (300)-0,90-2,0-1,30

300

0,90

2,0

1,30

1,80

3

 

5

11ДО/У5 (350)-1,10-1,0-1,0

350

1,10

1,0

1,0

1,20

4

Стойка СДС22-5

6

11ДО/У5 (350)-1,10-1,5-1,1

350

1,10

1,5

1,10

1,30

4

Стойка СДС22-5

7

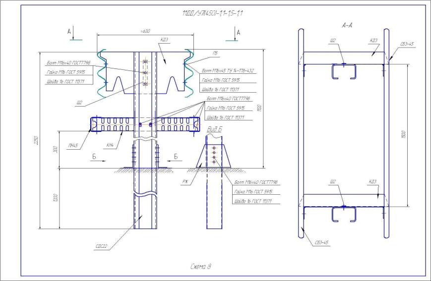
11ДО/У5 (350)-1,10-2,0-1,25

350

1,10

2,0

1,25

1,50

4

Стойка СДС22-5

8

11ДО/У5 (350)-1,10-1,0-0,7

350

1,10

1,0

0,70

0,90

4

Стойка СДС22

9

11ДО/У5 (350)-1,10-1,5-0,8

350

1,10

1,5

0,80

1,0

4

Стойка СДС22

10

11ДО/У5 (350)-1,10-2,0-0,9

350

1,10

2,0

0,90

1,10

4

Стойка СДС22

11

11ДО/У6 (400)-1,10-1,0-1,1

400

1,10

1,0

1,10

1,20

4

Стойка СДС22-5

12

11ДО/У6 (400)-1,10-1,5-1,23

400

1,10

1,5

1,23

1,47

4

Стойка СДС22-5

13

11ДО/У6 (400)-1,10-1,0-0,9

400

1,10

1,0

0,90

1,10

4

Стойка СДС22

14

11ДО/У6 (400)-1,10-1,5-1,0

400

1,10

1,5

1,0

1,20

4

Стойка СДС22

15

11ДО/У6 (400)-1,10-2,0-1,3

400

1,10

2,0

1,30

1,50

4

Стойка СДС22

16

11ДО/У7 (450)-1,10-1,0-0,98

450

1,10

1,0

0,98

1,10

4

Стойка СДС22

17

11ДО/У7 (450)-1,10-1,5-1,1

450

1,10

1,5

1,10

1,30

4

Стойка СДС22

2. ДОРОЖНЫЕ ДВУСТОРОННИЕ

18

11ДД/У4 (300)-0,9-2,0-1,3

300

0,9

2,0

1,30

1,80

5

 

19

11ДД/У5 (350)-1,1-2,25-1,1

350

1,1

2,25

1,10

1,50

6

 

20

11ДД/У6 (400)-1,1-2,0-1,15

400

1,1

2,0

1,15

1,64

7

 

21

11ДД/У7 (450)-1,1-1,5-1,1

450

1,1

1,5

1,10

1,60

8

 

3. МОСТОВЫЕ ОДНОСТОРОННИЕ

22

11МО/У1 (130)-0,75-2,0-0,75

130

0,75

2,0

0,75

0,90

9

 

23

11МОЦ/У1 (130)-0,75 (0,15)-2,0-0,75

130

0,75

2,0

0,75

0,90

9

 

24

11МО/У2 (190)-0,75-1,5-0,75

190

0,75

1,5

0,75

0,90

9

 

25

11МОЦ/У2 (190)-0,75 (0,15)-1,5-0,75

190

0,75

1,5

0,75

0,90

9

 

26

11МО/У3 (250)-0,9-2,25-0,70

250

0,90

2,25

0,70

0,90

10

 

27

11МОЦ/У3 (250)-1,1 (0,2)-2,25-0,70

250

1,1

2,25

0,70

0,90

10А

 

28

11МОЦ/У3 (250)-0,9 (0,15)-2,25-0,70

250

0,90

2,25

0,70

0,90

10А

 

29

11МО/У4 (300)-0,9-2,0-0,70

300

0,9

2,0

0,70

0,90

10

 

30

11МОЦ/У4 (300)-1,1 (0,2)-2,0-0,70

300

1,1

2,0

0,70

0,90

10А

 

31

11МОЦ/У4 (300)-0,9 (0,15)-2,0-0,70

300

0,9

2,0

0,70

0,90

10А

 

32

11МО/У5 (350)-1,1-2,25-0,56

350

1,1

2,25

0,56

0,81

11

 

33

11МОЦ/У5 (350)-1,1 (0,15)-2,25-0,56

350

1,1

2,25

0,56

0,81

11

 

34

11МО/У6 (400)-1,1-2,0-0,56

400

1,1

2,0

0,56

0,81

11

 

35

11МОЦ/У6 (400)-1,1 (0,15)-2,0-0,56

400

1,1

2,0

0,56

0,81

11

 

36

11МО/У7 (450)-1,1-1,5-0,56

450

1,1

1,5

0,56

0,81

11

 

37

11МОЦ/У7 (450)-1,1 (0,15)-1,5-0,56

450

1,1

1,5

0,56

0,81

11

 

38

11МО/У5 (350)-1,3-2,25-0,75

350

1,3

2,25

0,75

0,95

12

 

39

11МОЦ/У5 (350)-1,3 (0,15)-2,25-0,75

350

1,3

2,25

0,75

0,95

12А

 

40

11МО/У6 (400)-1,3-2,0-0,75

400

1,3

2,0

0,75

0,95

12

 

41

11МОЦ/У6 (400)-1,3-2,0-0,75

400

1,3

2,0

0,75

0,95

12А

 

42

11МО/У7 (450)-1,3-1,5-0,75

450

1,3

1,5

0,75

0,95

12

 

43

11МОЦ/У7 (450)-1,3(0,15)-1,5-0,75

450

1,3

1,5

0,75

0,95

12А

 

44

11МОЦ/У7 (450)-1,5(0,20)-1,5-0,75

450

1,5

1,5

0,75

0,95

12А

 

45

11МО/У8 (500)-1,5-1,5-0,81

500

1,5

1,5

0,81

1,07

13

 

46

11МОЦ/У8 (500)-1,5(0,15)-1,5-0,81

500

1,5

1,5

0,81

1,07

13

 

47

11МО/У9 (550)-1,5-1,0-0,81

550

1,5

1,0

0,81

1,07

13

 

48

11МОЦ/У9 (550)-1,5 (0,15)-1,0-0,81

550

1,5

1,0

0,81

1,07

13

 

49

11МО/У10 (600)-1,5-1,0-0,90

600

1,5

1,0

0,90

1,20

14

 

50

11МОЦ/У10 (600)-1,5 (0,15)-1,0-0,90

600

1,5

1,0

0,90

1,20

14

 

4. МОСТОВЫЕ ДВУСТОРОННИЕ

51

11МД/У4 (300)-0,9-2,0-0,70

300

0,9

2,0

0,70

0,90

15

 

52

11МД/У5 (350)-1,1-2,25-0,60 тип 1

350

1,1

2,25

0,60

0,95

16

 

53

11МД/У5 (350)-1,1-2,25-0,56 тип 2

350

1,1

2,25

0,56

0,81

17

 

54

11МД/У6 (400)-1,1-2,0-0,63 тип 1

400

1,1

2,0

0,63

0,98

16

 

55

11МД/У6 (400)-1,1-2,0-0,56 тип 2

400

1,1

2,0

0,56

0,81

17

 

56

11МД/У7 (450)-1,1-1,5-0,63 тип 1

450

1,1

1,5

0,63

0,98

16

 

57

11МД/У7 (450)-1,1-1,5-0,56 тип 2

450

1,1

1,5

0,56

0,81

17

 

58

11МД/У8 (500)-1,1-1,0-0,63 тип 1

500

1,1

1,0

0,63

0,98

16

 

2.3.5. Установка мостовых ограждений на цоколе:

- при установке ограждений 11МОЦ/У1-У10 на цоколь 0,15 м высота конструкции от полотна проезжей части не изменяется. При соблюдении высоты ограждений от полотна изменяется высота стойки ограждений в сторону уменьшения на 0,15 м. При этом расстояние от основных балок до полотна остается неизменным.

- при установке ограждений 11МО/У3, У4 высотой 0,9 м и 11МО/У7 высотой 1,3 м на мостовых сооружениях без тротуаров и служебных проходов следует применять цоколь 0,20 м. В этом случае высота конструкции от полотна проезжей части составляет 1,1 м и 1,5 м соответственно.

2.3.6. Соединения секций балок в зоне деформационного шва мостового сооружения (приложение Д) может осуществляться:

Исполнение 1. При помощи элементов ограждений для деформационных швов (см. 2.4.1), выполненных индивидуально.

Исполнение 2: При помощи элементов ограждений для деформационных швов и телескопических вставок, выполненных индивидуально.

Расстояние между стойками, между которыми расположен деформационный шов, должно быть не менее 1 метра и не более шага рабочего участка.

2.3.7 Световозвращатель дорожный типа КД4-1 следует устанавливать в углублении ближайшей к земле волнистой балки по всей длине ограждения с интервалом 4,0 м для шагов 1,0 м и 2,0 м; и 4,5 м для шагов 1,5 м и 2,25 м следующим образом:

- на двухволновых балках - в углублении центральной части балки

- на трехволновых балках - в углублении верхней части балки, если она является ближайшей к земле, и в углублении ее нижней части, если между ней и землей расположена балка неволнистого профиля.

2.3.8 Начальный и концевой участки ограждений дорожной группы, устанавливаемых на обочине, должны иметь отгон не менее 1:20 к бровке земляного полотна. При этом балки волнистого профиля должны понижаться до поверхности дороги (приложение Е). Марка стойки должна быть такая же, как на рабочем участке, шаг стоек указан в приложении Е. Понижение высоты следует достигать за счет различного углубления стоек дорожных в земляное полотно дороги.

2.3.9 Начальный и концевой участки ограждений дорожной группы, устанавливаемых на разделительной полосе, должны понижаться до поверхности дороги (приложение Е) с уклоном не менее 1:10. Марка стойки должна быть такая же, как на рабочем участке, шаг стоек указан в приложении Е. Понижение высоты должно достигаться за счет различного углубления стоек дорожных в земляное полотно дороги. Односторонние ограждения следует сближать к оси разделительной полосы.

2.3.10 На переходных и сопрягающих участках мостовых и дорожных ограждений, дорожных ограждений с различной высотой выравнивание разницы высоты должно осуществляться в пределах трех секций трехволновой балки (приложение Ж), при этом шаг стоек должен быть таким же как на рабочем участке с наибольшей удерживающей способностью, а марка стойки соответствует:

- на переходном участке: СДС22 (СДС22-5) - для сопрягающего дорожного ограждения высотой 1,1 и СД20 - для сопрягающего дорожного ограждения высотой 0,9 м

- на сопрягающем - марке стойки ограждения рабочего участка с наибольшей удерживающей способностью.

Выравнивание разницы высот рабочих участков ограждений на переходном или сопрягающем участке следует достигать за счет различного углубления стоек дорожных в земляное полотно дороги.

2.3.11 На переходных и сопрягающих участках переход с трехволновой балки на двухволновую должен осуществляться при помощи СБС на участке длиной 2 м, при этом выравнивание высоты (уменьшения высоты ограждения с большей удерживающей способностью до уровня 0,85 м) должно осуществляться по п. 2.3.10 (Приложение Ж)

2.3.12 Верхняя балка на переходных участках должна заканчиваться концевым элементом, который должен отводиться в сторону обочины с понижением высоты и прикрепляться к стойке дорожной (Приложение Ж).

2.3.13 В местах технологических разрывов разделительной полосы, на участках сопряжения барьерного ограждения по основной дороге со съездами транспортных развязок следует применять радиусные балки (приложение И) или фронтальные ограждения с применением радиусных балки СБР (приложение И). Минимальный радиус - 0,350 м.

2.3.14 Переходные участки для соединения барьерных и парапетных ограждений должны быть разработаны и изготовлены в индивидуальном порядке. Минимальная длина переходного элемента этого участка - 2 метра

2.3.15 Переходные участки ограждений, изготовленного по настоящим техническим условиям, с ограждением других изготовителей должны быть выполнены при помощи СБП, проектируемых индивидуально. При этом расстояние между различными ограждениями должно быть не менее двух метров. (Приложение К).

2.4. Элементы ограждений и их размеры

2.4.1 Основные конструктивные элементы ограждений:

СД - стойки дорожные

СМ - стойки мостовые

СБ - секции балок волнистого профиля

СБР, СБП, СБС - секции балок волнистого профиля: радиусные, переходные, сопрягающие

СБД - секции балок волнистого профиля для деформационных швов

ПН - секции балок нижнего яруса неволнистого профиля (прогон нижний)

БВ - секции балок верхнего яруса неволнистого профиля

ПНД, БВД - секции балок неволнистого профиля для деформационных швов

Г - гурт

ГД - Гурты для деформационных швов

СДД - связь диагональная дорожная;

КЕ, КД, КА, КР, КВ, КН - консоли

КН - крепление прогонов

РЖ - стабилизатор

С1 - скоба

П5 - пластина

Ш2 - шайба

КНП - элемент концевой на прогон нижний (профиль неволнистый)

КНВ - элемент концевой на балку верхнего яруса неволнистого профиля.

ЭК - элемент концевой на балку волнистого профиля

КД4-1 - световозвращатель дорожный типа КД4-1

2.4.2 Размеры элементов ограждений должны соответствовать рабочим чертежам.

2.4.3 Основные размеры стоек приведены в таблице 3.

Таблица 3

№ п/п

Марка стойки

Тип (профиль) стойки

Размеры, мм

Длина

Сечение

Толщина

1.

СД18

U

1800

120×80

5

2.

СД20

U

2000

120×80

5

3.

СДС22

С

2250

120×80×30

6

4.

СДС22-5

С

2250

120×80×30

5

5.

СМ (СМЦ)

I

750 (600)

Двутавр № 12

6.

СМ09 (СМЦ09)

U

850 (700)

120×80

6

7.

СМС11 (СМСЦ11)

С

1050 (900)

120×80×30

6

8.

СМС13 (СМСЦ13)

С

1300 (1150)

120×80×30

6

9.

СМG15-1 (СМGЦ15-1)

G (правая)

1500 (1350)

130×85×60

6

10.

СМG15-2 (СМGЦ15-2)

G (левая)

1500 (1350)

130×85×60

6

11.

СМG15Н-1

(СМGЦ15Н-1)

G (правая)

1500 (1350)

130×85×60

6

10.

СМG15Н-2

(СМGЦ15Н-2)

G (левая)

1500 (1350)

130×85×60

6

11.

СМG11 (СМGЦ11)

G

1050 (900)

130×85×60

6

12.

СМС11Д

С

1020

120×80×30

6

В скобках указаны марки и размеры стойки для установки мостового ограждения на цоколь (бордюр) без изменения высоты ограждения от полотна проезжей части (см. п. 2.3.5).

2.4.4 Основные размеры секций балок волнистого профиля приведены в таблице 4.

Таблица 4

№ п/п

Марка балки

кол-во волн

Размеры, мм

Длина

Ширина

Высота

Толщина

1

СБ2

2

4320

83

312

3

2

СБ2-45

2

4820

83

312

3

3

СБ2-4

2

4320

83

312

4

4

СБ2-45-4

2

4820

83

312

4

5

СБ3

3

4320

83

506

3

6

СБ3-45

3

4820

83

506

3

7

СБН2

2

4320

83

312

3

8

СБН3

3

4320

83

506

3

2.4.5 Основные размеры секций балок нижнего яруса неволнистого профиля приведены в таблице 5.

Таблица 5

№ п/п

Марка нижнего прогона

Размеры, мм

Длина

Сечение

Толщина

1

ПН4

4090

120×65

4

2

ПН45

4590

120×65

4

2.4.6. Основные размеры секций балок верхнего яруса неволнистого профиля приведены в таблице 6.

Таблица 6

№ п/п

Марка

Размеры, мм

Длина

Сечение

Толщина

1

БВС6

5950

120×80×30

4

2

БВС67

6700

120×80×30

4

3

БВС45

4450

120×80×30

4

4

БВС4

3950

120×80×30

4

5

БВ4

3990

140×144×250

4

2.4.7. Основные размеры гуртов приведены в таблице 7

Таблица 7

№ п/п

Марка гурта

Размеры, мм

Длина

ширина

Высота

Толщина

1

Г45

4640

15

70

5

2

Г4

4140

15

70

5

 

2.4.8. Основные размеры связей диагональных приведены в таблице 8

Таблица 8

№ п/п

Марка связи диагональной

Размеры, мм

Длина развертки

ширина

Толщина

1

СДД1

1215

60

5

2

СДД15

1720

60

5

3

СДД2

2185

60

5

2.4.9. Основные размеры консолей приведены в таблице 9

Таблица 9

№ п/п

Марка консоли-амортизатора

Исполнение

Размеры, мм

длина

ширина

высота

толщина

1

КД1

Правое

370

152

377

4

2

КД2

Левое

370

152

377

4

3

КД3

двустороннее

580

152

377

4

4

КЕ1

Правое

355

78

190

4

5

КЕ2

Левое

355

78

190

4

6

КА

Мостовые 2N

290

280

70

4

7

КА1

Мостовые 3N

440

310

85

5

8

КА2

Двустороннее

460

440

85

5

9

КВ1

Верхняя 2N

120

80

100

5

2.4.10 Основные размеры консолей-распорки приведены в таблице 10

Таблица 10

№ п/п

Марка консоли-распорки

Размеры, мм

Длина

Профиль

Толщина

1

КР5

437

196×80

4

2.4.11 Основные размеры детали крепления прогонов приведены в таблице 11

Таблица 11

№ п/п

Консоль нижнего прогона

Размеры, мм

Длина

Сечение

Толщина

1

КН1

390

95×65

3

2

КН4

660

95×65

3

2.4.12 Основные размеры стабилизатора приведены в таблице 12

Таблица 12

№ п/п

 

Размеры, мм

длина

ширина

Высота

Толщина

1

РЖ

312

250

100

5

 

2.4.13 Размеры скобы приведены в таблице 13

Таблица 13

№ п/п

Марка скобы

Размеры, мм

высота

Длина

Ширина

Толщина

1

С1

196

150

80

4

 

2.4.14 Размеры пластины приведены в таблице 14

Таблица 14

№ п/п

Марка пластины

Размеры, мм

Длина

Ширина

Толщина

1

П5

100

45

5

 

2.4.15 Размеры шайбы приведены в таблице 15

Таблица 15

№ п/п

Марка шайбы

Размеры, мм

Длина

Ширина

Толщина

1

Ш2

300

40

5

 

2.5. Допуски

2.5.1 Общие допуски неуказанных предельных отклонений размеров деталей ограждения по ГОСТ 30893.1 - m.

2.5.2 Отклонения секций балок от прямолинейности не должно превышать 3 мм на длине 1000 мм.

2.5.3 Скручивание профилей секций балок вокруг продольной оси - не более 1 град. на 1 метр длины.

2.6. Конструкционные материалы.

2.6.1. Все элементы дорожного ограждения (стойки дорожные и мостовые, секции балок волнистого и неволнистого профиля, консоли, гурты, связи диагональные, стабилизаторы, шайба, пластина и скоба) следует изготавливать из стали С245 по ГОСТ 27772-88. Сортамент: лист по ГОСТ 19903 и Двутавр по ГОСТ 8240

2.7. Соединения

2.7.1 Все сварные соединения следует выполнять согласно ГОСТ 23118, СП 53-101, ГОСТ 14771

2.7.2 Для соединения элементов ограждения следует применять болты, гайки и шайбы, указанные в схемах приложения В и схемах сборки приложения Г. Класс прочности - не менее 5.6

2.7.3 Для крепления стоек мостовых ограждений с удерживающей способностью У1 - У4 к закладным плита стойки должна иметь размеры 210×210 мм, расстояние между центрами отверстий - 140×140 мм, отверстия - Æ 21 мм (под болт М20×70, класс прочности не менее 5.6).

2.7.4 Для крепления стоек мостовых ограждений с удерживающей способностью У5 - У7 к закладным плита стойки должна иметь размеры 250×250 мм, расстояние между центрами отверстий - 160×160 мм, отверстия - Æ 25 мм (под болт М24×70, класс прочности не менее 8.8).

2.7.5 Для крепления стоек мостовых ограждений с удерживающей способностью У8 - У10 к закладным плита стойки должна иметь размеры 280×250 мм, расстояние между центрами отверстий - 160×200 мм, отверстия - Æ 25 мм (под болт М24×70, класс прочности не менее 8.8).

2.7.6 Допускается производить замену плиты мостовой стойки на плиту больших размеров под имеющиеся закладные. При этом параметры ограждений, указанные в таблице 2 настоящих технических условий, остаются неизменными.

2.8 Защита от коррозии.

2.8.1 Все основные элементы ограждений должны быть защищены от коррозии методом горячего цинкования по ГОСТ 9.305 толщиной слоя 50 - 100 мкм.

2.8.2 Мелкие детали, а также крепежные изделия должны быть защищены от коррозии методом горячего цинкования по ГОСТ 9.305 толщиной слоя не менее 30 мкм.

3. КОМПЛЕКТНОСТЬ

3.1. Комплект ограждения (участка), подготовленный к отправке потребителю, должен содержать:

- чертежи участков ограждения с указанием основных размеров

- схема сборки рабочего участка

- ведомость комплектности (спецификация), составленная на основании заявки потребителя в соответствии с таблицами комплектности (см. далее);

- элементы ограждения и крепежные элементы, указанные в ведомости комплектности;

- паспорт на комплект поставки;

- инструкцию по монтажу ограждения;

- сертификат соответствия системы сертификации ГОСТ Р.

3.2. Составы комплектов рабочих участков ограждений приведены в таблицах 16 - 28.

3.2.1 Состав комплекта рабочих участков ограждений 11ДО/У1 (130)-0,75-3,0-1,3; 11ДО/У2 (190)-0,75-2,0-1,2; 11ДО/У3 (250)-0,75-2,0-1,2 приведен в таблице 16

Таблица 16

Элемент участка

Марка элемента

Количество элементов в комплекте участка, шт.

11ДО/У1(130)-0,75-3,0-1,3

11ДО/У2(190)-0,75-2,0-1,2

11ДО/У3(250)-0,75-2,0-1,2

Секция балки

СБ2-45

L/4,5

-

-

СБ2

-

L/4,0

-

СБ2-4

-

-

L/4,0

Стойка

СД18

L/3,0 + 1

L/2,0 + 1

L/2,0 + 1

Консоль правая или левая

КЕ1 (правая)

КЕ2 (левая)

L/3,0 + 1

L/2,0 + 1

L/2,0 + 1

Пластина

П5

L/3,0 + 1

L/2,0 + 1

L/2,0 + 1

Гурт

Г4

-

L/4,0

L/4,0

Световозвращатель дорожный

КД4-1

L/4,5

L/4,0

L/4,0

3.2.2 Состав комплекта рабочих участков ограждений 11ДО/У4 (300)-0,90-2,0-1,30 приведен в таблице 17

Таблица 17

Элемент участка

Марка элемента

Количество элементов в комплекте участка 11ДО/У4 (300)-0,9-2,0-1,30, шт.

Секция балки

СБ3

L/4,0

Стойка

СД20

L/2,0 + 1

Консоль правая или левая

КД1 (правая)

КД2 (левая)

L/2,0 + 1

Шайба

Ш2

L/2,0 + 1

Пластина

П5

2×(L/2,0 + 1)

Гурт

Г4

L/4,0

Световозвращатель дорожный

КД4-1

L/4,0

3.2.3 Состав комплекта рабочих участков ограждений 11ДО/У5 (350)-1,1-S-y; 11ДО/У6 (400)-1,1-S-y; 11ДО/У7 (450)-1,1-S-y приведен в таблице 18

Таблица 18

Элемент участка

Марка элемента

Количество элементов в комплекте участка, шт.

11ДО/У5 (350)-1,10-1,0-1,0 11ДО/У6 (400)-1,10-1,0-1,1

11ДО/У5 (350)-1,10-1,5-1,1 11ДО/У6 (400)-1,10-1,5-1,23

11ДО/У5 (350)-1,10-2,0-1,25

11ДО/У5 (350)-1,10-1,0-0,7 11ДО/У6 (400)-1,10-1,0-0,9 11ДО/У7 (450)-1,10-1,0-0,98

11ДО/У5 (350)-1,10-1,5-0,8 11ДО/У6 (400)-1,10-1,5-1,0 11ДО/У7 (450) -1,10-1,5-1,1

11ДО/У5 (350)-1,10-2,0-0,9 11ДО/У6 (400)-1,10-2,0-1,3

Секция балки

СБ3

L/4,0

 

L/4,0

L/4,0

 

L/4,0

СБ3-45

 

L/4,5

 

 

L/4,5

 

Нижний прогон

ПН4

L/4,0

 

L/4,0

L/4,0

 

L/4,0

ПН45

 

L/4,5

 

 

L/4,5

 

Гурт

Г4

L/4,0

 

L/4,0

L/4,0

 

L/4,0

Г45

 

L/4,5

 

 

L/4,5

 

Стойка

СДС22-5

L/1,0 + 1

L/1,5 + 1

L/2,0 + 1

 

 

 

СДС22

 

 

 

L/1,0 + 1

L/1,5 + 1

L/2,0 + 1

Консоль правая или левая

КД1 (правая)

КД2 (левая)

L/1,0 + 1

L/1,5 + 1

L/2,0 + 1

L/1,0 + 1

L/1,5 + 1

L/2,0 + 1

Консоль нижнего прогона

КН1

L/1,0 + 1

L/1,5 + 1

L/2,0 + 1

L/1,0 + 1

L/1,5 + 1

L/2,0 + 1

Шайба

Ш2

L/1,0 + 1

L/1,5 + 1

L/2,0 + 1

L/1,0 + 1

L/1,5 + 1

L/2,0 + 1

Стабилизатор

РЖ

L/1,0 + 1

L/1,5 + 1

L/2,0 + 1

L/1,0 + 1

L/1,5 + 1

L/2,0 + 1

Пластина

П5

2×(L/1,0 + 1)

2×(L/1,5 + 1)

2×(L/2,0 + 1)

2×(L/1,0 + 1)

2×(L/1,5+1)

2×(L/2,0 + 1)

Связь диагональная

СДД1

L/1,0

 

 

L/1,0

 

 

СДД15

 

L/1,5

 

 

L/1,5

 

СДД2

 

 

L/2,0

 

 

L/2,0

Световозвращатель дорожный

КД4-1

L/4,0

L/4,5

L/4,0

L/4,0

L/4,5

L/4,0

3.2.4 Состав комплекта рабочих участков ограждений 11ДД/У4 (300)-0,9-2,0-1,3; приведен в таблице 19

Таблица 19

Элемент участка

Марка элемента

Количество элементов в комплекте участка 11ДД/У4 (300)-0,9-2,0-1,30, шт.

Секция балки

СБ3

L/2,0

Стойка

СД20

L/2,0 + 1

Консоль

КД3

L/2,0 + 1

Шайба

Ш2

L/2,0 + 1

Пластина

П5

4×(L/2,0 + 1)

Световозвращатель дорожный

КД4-1

L/2,0

3.2.5 Состав комплекта рабочих участков ограждений 11ДД/У5 (350)-1,1-2,25-1,1; 11ДД/У6 (400)-1,1-2,0-1,15; 11ДД/У7 (450)-1,1-1,5-1,1 приведен в таблице 20

Таблица 20

Элемент участка

Марка
элемента

Количество элементов в комплекте участка, шт.

11ДД/У5 (350)-1,1-2,25-1,1

11ДД/У6 (400)-1,1-2,0-1,15

11ДД/У7 (450)-1,1-1,5-1,1

Секция балки

СБ3

-

L/2,0

 

СБ3-45

2×L/4,5

-

2×L/4,5

Прогон нижний

ПН4

-

L/2,0

 

ПН45

2×L/4,5

-

2×L/4,5

Стойка

СДС22

L/2,25 + 1

L/2,0 + 1

L/1,5 + 1

Консоль

КД3

L/2,25 + 1

L/2,0 + 1

L/1,5 + 1

Консоль нижнего прогона

КН4

L/2,25 + 1

L/2,0 + 1

L/1,5 + 1

Стабилизатор

РЖ

2×(L/2,25 + 1)

2×(L/2,0 + 1)

2×(L/1,5 + 1)

Шайба

Ш2

L/2,25 + 1

L/2,0 + 1

L/1,5 + 1

Пластина

П5

4×(L/2,25 + 1)

4×(L/2,0 + 1)

4×(L/1,5 + 1)

Консоль

КР5

L/2,25

L/2,0

-

Скоба

С1

2×L/2,25

L

-

Световозвращатель дорожный

КД4-1

2×L/4,5

L/2,0

2×L/4,5

3.2.6 Состав комплекта рабочих участков ограждений 11МО/У1 (130)-0,75-2,0-0,75; 11МО/У2 (190)-0,75-1,5-0,75 без деформационных швов приведен в таблице 21

Таблица 21

Элемент участка

Марка элемента

Количество элементов в комплекте участка, шт.

11МО/У1 (130)-0,75-2,0-0,75

11МО/У2 (190)-0,75-1,5-0,75

Секция балки

СБ2-4

М/4,0

-

СБ2-45-4

-

М/4,5

Стойка

СМ

М/2,0 + 1

М/1,5 + 1

Консоль

КА

М/2,0 + 1

М/1,5 + 1

Пластина

П5

М/2,0 + 1

М/1,5 + 1

Световозвращатель дорожный

КД4-1

М/4,0

М/4,5

3.2.7 Состав комплекта рабочих участков ограждений 11МО/У3 (250)-0,9-2,25-0,70; 11МО/У4 (300)-0,9-2,0-0,70 без деформационных швов приведен в таблице 22

Таблица 22

Элемент участка

Марка элемента

Количество элементов в комплекте участка, шт.

11МО/У3 (250)-0,9-2,25-0,70

11МО/У4 (300)-0,9-2,0-0,70

Секция балки

СБ3

-

М/4,0

СБ3-45

М/4,5

-

Гурт

Г4

-

М/4,0

Г45

М/4,5

-

Стойка

СМ09

М/2,25 + 1

М/2,0 + 1

Консоль

КА1

М/2,25 + 1

М/2,0 + 1

Шайба

Ш2

М/2,25 + 1

М/2,0 + 1

Пластина

П5

2×(М/2,25 + 1)

2×(М/2,0 + 1)

Световозвращатель дорожный

КД4-1

М/4,5

М/4,0

3.2.8 Состав комплекта рабочих участков ограждений 11МО/У5 (350)-1,1-2,25-0,56; 11МО/У6 (400)-1,1-2,0-0,56; 11МО/У7 (450)-1,1-1,5-0,56 без деформационных швов приведен в таблице 23

Таблица 23

Элемент участка

Марка элемента

Количество элементов в комплекте участка, шт.

11МО/У5 (350)-1,1-2,25-0,56

11МО/У6 (400)-1,1-2,0-0,56

11МО/У7 (450)-1,1-1,5-0,56

Секция балки

СБ3

-

М/4,0

-

СБ3-45

М/4,5

-

М/4,5

Балка верхнего яруса

БВС6

-

М/6,0

М/6,0

БВС67

М/6,7

-

 

Гурт

Г4

-

М/4,0

-

Г45

М/4,5

-

М/4,5

Стойка

СМС11

М/2,25 + 1

М/2,0 + 1

М/1,5 + 1

Консоль

КА1

М/2,25 + 1

М/2,0 + 1

М/1,5 + 1

Шайба

Ш2

М/2,25 + 1

М/2.0+1

М/1,5 + 1

Пластина

П5

2×(М/2,25 + 1)

2×(М/2,0 + 1)

2×(М/1,5 + 1)

Деталь крепления балок м/у собой

БВУ

М/6,7

М/6,0

М/6,0

Световозвращатель дорожный

КД4-1

М/4,5

М/4,0

М/4,5

3.2.9 Состав комплекта рабочих участков ограждений 11МО/У5 (350)-1,3-2,25-0,75; 11МО/У6 (400)-1,3-2,0-0,75; 11МО/У7 (450)-1,3-1,5-0,75 без деформационных швов приведен в таблице 24

Таблица 24

Элемент участка

Марка элемента

Количество элементов в комплекте участка, шт.

11МО/У5 (350)-1,3-2,25-0,75

11МО/У6 (400)-1,3-2,0-0,75

11МО/У7 (450)-1,3-1,5-0,75

Секция балки

СБ3

-

М/4,0

-

СБ3-45

М/4,5

-

М/4,5

Секция балки

СБ2

-

М/4,0

-

СБ2-45

М/4,5

-

М/4,5

Гурт

Г4

-

М/4,0

-

Г45

М/4,5

-

М/4,5

Стойка

СМС13

М/2,25 + 1

М/2,0 + 1

М/1,5 + 1

Консоль

КА1

М/2,25 + 1

М/2,0 + 1

М/1,5 + 1

Шайба

Ш2

М/2,25 + 1

М/2,0 + 1

М/1,5 + 1

Пластина

П5

3×(М/2,25 + 1)

3×(М/2,0 + 1)

3×(М/1,5 + 1)

Консоль верхней двухволновой балки

КВ5

М/2,25 + 1

М/2,0 + 1

М/1,5 + 1

Световозвращатель дорожный

КД4-1

М/4,5

М/4,0

М/4.5

3.2.10 Состав комплекта рабочих участков ограждений 11МО/У8 (500)-1,5-1,5-0,81; 11МО/У9 (550)-1,5-1,0-0,81 без деформационных швов приведен в таблице 25

Таблица 25

Элемент участка

Марка элемента

Количество элементов в комплекте участка, шт.

11МО/У8(500)-1,5-1,5-0,81

11МО/У9 (550)-1,5-1,0-0,81

Секция балки

СБ3

М/4,0

-

СБ3-45

-

М/4,5

СБ2-4

М/4,0

-

СБ2-45-4

-

М/4,5

Гурт

Г4

М/4,0

-

Г45

-

М/4,5

Стойка правая или левая

СМG15-1 (правая) CMG15-2 (левая)

М/2,0 + 1

М/1,5 + 1

Консоль

КА1

М/2,0 + 1

М/1,5+1

Шайба

Ш2

М/2,0 + 1

М/1,5 + 1

Пластина

П5

3×(М/2,0 + 1)

3×(М/1,5 + 1)

Консоль верхней двухволновой балки

КВ5

М/2,0 + 1

М/1,5 + 1

Световозвращатель дорожный

КД4-1

М/4,0

М/4,5

3.2.11 Состав комплекта рабочих участков ограждений 11МО/У10 (600)-1,5-1,0-0,90 без деформационных швов приведен в таблице 26

Таблица 26

Элемент участка

Марка элемента

Количество элементов в комплекте участка, шт.

11МО/У10 (600)-1,5-1,0-0,90

Секция балки

СБ3

М/4,0

Нижний прогон

ПН4

М/4,0

Балка верхнего яруса

БВ

М/4,0

Соединение БВ

СВ1

М/4,0

Гурт

Г4

М/4,0

Стойка правая или левая

СМG15Н-1 (правая)

CMG15Н-2 (левая)

М + 1

Консоль

КА1

М + 1

Шайба

Ш2

М + 1

Пластина

П5

2×(М + 1)

Консоль нижнего прогона

КН4

М + 1

Консоль двухволновой балки

КВ1

М + 1

Световозвращатель дорожный

КД4-1

М/4,0

3.2.12 Состав комплекта рабочих участков ограждений 11МД/У4 (300)-0,9-2,0-0,7; без деформационных швов приведен в таблице 27

Таблица 27

Элемент участка

Марка элемента

Количество элементов в комплекте участка

11МД/У4 (300)-0,9-2,0-0,7, шт.

Секция балки

СБ3

М/2,0

Стойка

СM09

М/2,0 + 1

Консоль

КА2

М/2,0 + 1

Шайба

Ш2

М/2,0 + 1

Пластина

П5

4×(М/2,0 + 1)

Световозвращатель дорожный

КД4-1

М/2,0

3.2.13 Состав комплекта рабочих участков ограждений 11МД/У5 (350)-1,1-2,25-0,60; 11МД/У6 (400)-1,1-2,0-0,63; 11МД/У7 (450)-1,1-1,5-0,63; 11МД/У8 (500)-1,1-1,0-0,63 без деформационных швов приведен в таблице 28

Таблица 28

Элемент участка

Марка элемента

Количество элементов в комплекте участка, шт.

11МД/У5 (350)-1,1-2,25-0,60

11МД/У6 (400)-1,1-2,0-0,63

11МД/У7 (450)-1,1-1,570,63

11МД/У8 (500)-1,1-1,0-0,63

Секция балки

СБ3

-

М/2.0

-

М/2,0

СБ3-45

2×М/4,5

-

2×М/4,5

-

Нижний прогон

ПН4

-

М/2,0

-

М/2,0

ПН45

2×М/4,5

-

2×М/4,5

-

Стойка

СМG11

М/2,25 + 1

М/2,0 + 1

М/1,5 + 1

М + 1

Консоль

КА2

М/2,25 + 1

М/2,0 + 1

М/1,5 + 1

М + 1

Шайба

Ш2

М/2,25 + 1

М/2,0 + 1

М/1,5 + 1

М + 1

Пластина

П5

4×(М/2,25 + 1)

4×(М/2,0 + 1)

4×(М/1,5 + 1)

4×(М + 1)

Деталь крепления нижнего прогона

КН4

М/2,25 + 1

М/2,0 + 1

М/1,5 + 1

М + 1

Световозвращатель дорожный

КД4-1

2×М/4,5

М/2,0

2×М/4,5

М/2,0

3.2.14 Состав комплекта рабочих участков ограждений 11МД/У5 (350)-1,1-2,25-0,56; 11МД/У6 (400)-1,1-2,0-0,56; 11МД/У7 (450)-1,1-1,5-0,56; без деформационных швов приведен в таблице 29

Таблица 29

Элемент участка

Марка элемента

Количество элементов в комплекте участка, шт.

11МД/350-1,1-2,25-0,56

11МД/400-1,1-2,0-0,56

11МД/450-1,1-1,5-0,56

Секция балки

СБ3

-

L/2,0

-

СБ3-45

2L/4,5

-

2L/4,5

Балка верхнего яруса

БВС6

-

L/6,0

L/6,0

БВС45

L/4,5

-

 

Стойка

СМС11Д

L/2,25 + 1

L/2,0 + 1

L/1,5 + 1

Консоль

КА2

L/2,25 + 1

L/2,0 + 1

L/1,5 + 1

Шайба

Ш2

L/2,25 + 1

L/2,0 + 1

L/1,5 + 1

Пластина

П5

4×(L/2,25 + 1)

4×(L/2,0 + 1)

4×(L/1,5 + 1)

Деталь крепления балок м/у собой

БВУ2

2L/4,5

2L/6,0

2L/6,0

Деталь крепления балки БВС к стойке

УК

2×(L/2,25 + 1)

2×(L/2,0 + 1)

2×(L/1,5 + 1)

Световозвращатель дорожный

КД4-1

2L/4,5

2L/4,0

2L/4,5

3.2.15 Комплектность мостового ограждения с учетом деформационных швов должны определяться заводом-изготовителем в соответствии с проектом.

3.2.16 Комплектность начальных, концевых, переходных и сопрягающих участков должны определяться заводом-изготовителем или проектной организацией в соответствии с проектом.

3.2.17 Комплектность фронтальных ограждений определяется проектной организацией совместно с заводом-изготовителем в соответствии с проектом.

4. ПРАВИЛА ПРИЕМКИ

4.1. Элементы ограждений должны приниматься отделом технического контроля предприятия-изготовителя партиями. Партией следует считать элементы ограждений одной марки, изготовленные по одной технологии.

4.2. Для контроля размеров элементов ограждения из каждой партии отбирают 2 процента элементов каждого вида, но не менее 5 элементов.

4.3. При получении неудовлетворительных результатов контроля хотя бы по одному из показателей, установленных настоящими ТУ, по этому показателю проводят повторный контроль на удвоенном числе элементов, отобранных из той же партии.

4.4. Если при повторной проверке окажется хотя бы один элемент неудовлетворяющий требованиям настоящих технических условий, то всю партию подвергают поштучной приемке.

4.5. Контроль качества сварных соединений следует проводить в соответствии с требованиями ГОСТ 23118 и СП 53-101.

4.6. Количество элементов ограждений, отбираемых для контроля защитного покрытия, нанесенного методом горячего цинкования, устанавливают по ГОСТ 9.307

4.7. Потребитель, имеет право проводить контрольную проверку, соответствия элементов ограждений требованиям настоящих технических условий соблюдая при этом приведенный порядок отбора комплектов и применяя указанные методы контроля.

4.8. Элементы ограждений, не соответствующие требованиям настоящих технических условий, подлежат выбраковке.

4.9. Правильность и полнота состава комплекта ограждения (участка), а также его упаковка и маркировка должны проверяться отделом технического контроля.

4.10. На принятый комплект ограждения (участка) должен быть оформлен паспорт на комплект поставки.

5. МЕТОДЫ КОНТРОЛЯ

5.1. Качество стали и сварочных материалов должно быть удостоверено сертификатами предприятия-изготовителя и данными входного контроля предприятия-изготовителя ограждений в соответствии с требованиями ГОСТ 24297 и СП 53-101.

5.2. Линейные размеры элементов ограждений следует контролировать рулеткой по ГОСТ 7502, металлической линейкой по ГОСТ 427, штангенциркулем по ГОСТ 166 и специальными поверенными шаблонами.

5.3. Соответствие формы и размеров профиля поперечного сечения балки следует проверять специальным поверенным шаблоном.

5.4. Отклонение секции балки от прямолинейности следует проверять измерением металлической линейкой по ГОСТ 427 зазора между поверхностью контролируемой балки и струной, закрепленной на ее концах.

5.5. Контроль качества сварных швов и их размеров следует проводить в соответствии с ГОСТ 14771, ГОСТ 23118 и СП 53-101.

5.6. Качество защитных покрытий от коррозии следует контролировать по ГОСТ 9.307.

6. ИСПЫТАНИЯ

6.1. Конструкции ограждения должны подвергаться стендовым и/или натурным испытаниям с учетом требований ГОСТ Р 52607, ГОСТ Р 52721

7. УПАКОВКА, МАРКИРОВКА, ТРАНСПОРТИРОВАНИЕ И ХРАНЕНИЕ.

7.1. Упаковка.

7.1.1 Элементы ограждения: стойки дорожные, стойки мостовые, секции балок волнистого и неволнистого профиля, гурты, связи диагональные, крепление прогонов следует поставлять потребителю в пакетах, обвязанных узкой стальной лентой как минимум в двух местах. На каждый пакет навешивается не менее двух ярлыков (металлических бирок) с маркировкой.

7.1.2 Элементы ограждения: консоли-амортизаторы, консоли распорки, стабилизаторы, скобы, пластины, шайбы следует поставлять потребителю на поддонах или в ящиках, обвязанных узкой стальной лентой.

7.1.3 Упаковка, маркировка, транспортировка и хранение крепежных изделий - по ГОСТ 18160.

7.1.4 Световозвращатели дорожные типа КД4-1 следует упаковывать в ящики.

7.1.5 Сопроводительные документы, входящие в комплект поставки, должны быть упакованы во влагонепроницаемый пакет и находиться в упаковочно-отправочном месте № 1. Допускается отправлять сопроводительную документацию почтой или экспедитором без упаковки во влагонепроницаемый пакет.

7.2. Маркировка.

7.2.1 Маркировка, наносимая на металлический ярлык (бирку), прикрепляемую к пакету, должна содержать:

- наименование и товарный знак предприятия-изготовителя;

- марку элемента ограждения;

- количество элементов в пачке;

- массу пачки;

- номер пачки;

- клеймо (штамп) Отдела технического контроля предприятия-изготовителя;

- дату изготовления.

Маркировку следует выполнять несмываемой краской или оттиском.

7.2.2 Транспортная маркировка должна соответствовать требованиям ГОСТ 14192.

7.3. Транспортирование и хранение.

7.3.1 Транспортирование элементов ограждений, крепежных деталей может осуществляться любыми видами транспорта, в соответствии с действующими нормами и правилами на эти виды транспорта.

7.3.2 Условия транспортирования ограждений при воздействии климатических факторов - 7(Ж 1) по ГОСТ 15150.

7.3.3 При транспортировании пачек: стойки дорожные, стойки мостовые, секции балок волнистого и неволнистого профиля, гурты, связи диагональные, крепление прогонов - необходимо обеспечивать их укладку с опиранием на деревянные прокладки и подкладки согласно п. 7.4.

7.4. Хранение.

7.4.1 Стойки дорожные, стойки мостовые, секции балок волнистого и неволнистого профиля, гурты, связи диагональные, крепление прогонов должны храниться по маркам в пачках, уложенных в штабели с опиранием на деревянные прокладки и подкладки.

7.4.2 Подкладки под нижними пачками должны иметь толщину не менее 50 мм, ширину не менее 200 мм и быть уложены по ровному основанию на расстоянии не более 1,0 м.

7.4.3 Прокладки между пачками должны быть толщиной не менее 40 мм и шириной не менее 200 мм.

7.4.4 Условия хранения ограждений при воздействии климатических факторов - 4 (Ж2) по ГОСТ 15150.

8. ГАРАНТИИ ИЗГОТОВИТЕЛЯ

8.1. Предприятие-изготовитель гарантирует соответствие поставляемых элементов ограждений требованиям настоящих ТУ в течении трех лет с момента их отгрузки потребителю при соблюдении потребителем условий транспортирования, хранения и монтажа, установленных настоящими техническими условиями.

8.2. Предприятие-изготовитель гарантирует соответствие показателей основных параметров (функциональных свойств) ограждения требованиям настоящих технических условий в течение 15 лет с момента эксплуатации ограждения на дороге, но не более 16 лет с момента отгрузки элементов ограждения с предприятия-изготовителя, при соблюдении потребителем условий транспортирования, хранения, требований инструкции по монтажу, правил эксплуатации и отсутствии каких-либо механических повреждений ограждения в течение указанного срока.

9. УКАЗАНИЯ ПО МОНТАЖУ ОГРАЖДЕНИЯ

9.1. Строительно-монтажные работы по установке ограждения должны производиться при наличии утвержденного проекта производства работ, учитывающего требования данных технических условий, ГОСТ Р 52289, ГОСТ 23118, СП 53-101 в соответствии с инструкцией по монтажу ограждения

ПРИЛОЖЕНИЕ А
ТЕРМИНЫ И ОПРЕДЕЛЕНИЯ, ОБОЗНАЧЕНИЯ И СОКРАЩЕНИЯ

В настоящих технических условиях применены следующие термины с соответствующими определениями:

Ограждение дорожное - устройство, предназначенное для предотвращения съезда транспортного средства с обочины и мостового сооружения (моста, путепровода, эстакады и т.п.), переезда через разделительную полосу, столкновения со встречным транспортным средством, наезда на массивные препятствия и сооружения, расположенные на обочине и в полосе отвода дороги, на разделительной полосе (удерживающее ограждение для транспортных средств), падения пешеходов с мостового сооружения или насыпи (удерживающее ограждения для пешеходов), а также для упорядочения движения пешеходов и предотвращения выхода животных на проезжую часть (ограничивающие ограждения).

Боковое дорожное ограждение - ограждение, расположенное вдоль проезжей части дороги, удерживают автомобиль и корректируют траекторию его движения при боковом ударе под острым углом к оси ограждения

Фронтальное дорожное ограждение - ограждение, которое удерживает автомобиль и гасит энергию движения автомобиля при ударе как сбоку, так и в торец ограждения под углом, близким к 90º.

Барьерное - ограждение, состоящее из балок и стоек

Дорожное (мостовое) - ограждение, устанавливаемое на земляном полотне (мостовом полотне)

Одностороннее (двустороннее) исполнение - способность ограждения воспринимать наезды автомобилей с одной стороны (обеих сторон).

Участок ограждения:

- рабочий - основная часть бокового ограждения, предназначенная для принятия ударных нагрузок и передачи усилий на начальный и концевой участки

- начальный - дополнительная часть ограждения, расположенная перед рабочим участком ограждения (по ходу движения автомобиля) на земляном полотне дороги и предназначенная для принятия продольного усилия при наезде автомобиля на рабочий участок ограждения.

- концевой - дополнительная часть ограждения, расположенная после рабочего участком ограждения (по ходу движения автомобиля) на земляном полотне дороги и предназначенная для принятия продольного усилия при наезде автомобиля на рабочий участок ограждения.

- переходный - часть ограждения, предназначенная для соединения ограждений, установленных на обочине или разделительной полосе, с ограждениями, установленными на мостовом сооружении, а также для соединения участков односторонних и двусторонних ограждений на разделительной полосе.

- сопрягающий - часть ограждения, предназначенная для соединения ограждения, установленного на основной дороге с ограждением на съездах транспортных развязок, а также для соединения участков с различной удерживающей способностью.

Удерживающая способность (энергоемкость) ограждения - способность ограждения удерживать транспортные средства на дороге и мостовом сооружении, предотвращая их опрокидывание или переезд через ограждение. Показателем удерживающей способности является кинетическая энергия транспортного средства, определяемая с учетом его массы, угла наезда и поперечной составляющей скорости движения, энергия бокового удара, выдерживаемого рабочим участком ограждения при заданной величине динамического прогиба

Уровни удерживающей способности - диапазоны значений кинетической энергии, по которым выбирают конструкции ограждений для применения в тех или иных дорожных условиях.

Динамический прогиб ограждения (далее - прогиб) - наибольшее горизонтальное смещение продольной оси балки ограждения в поперечном направлении относительно оси недеформированного ограждения при наезде автомобиля на ограждение.

Рабочая ширина - максимальное динамическое боковое смещение кузова автомобиля, находящегося в нем груза или фрагмента ограждения (в зависимости от места установки ограждения) относительно лицевой поверхности балки недеформированного ограждения

Высота ограждения - расстояние от поверхности проезжей части до верхнего края балки барьерного ограждения.

Шаг стоек - расстояние между точками пересечения продольных осей соседних стоек с поверхностью дороги.

Элемент ограждения - сборочная единица или деталь ограждения.

Балка - конструктивный элемент ограждения, предназначенный для восприятия, распределения и передачи нагрузки от вступившего в контакт с ограждением транспортного средства на другие элементы ограждения или непосредственно на полотно дороги (мостового сооружения). Балки могут располагаться в несколько ярусов по высоте и иметь различную конфигурацию.

Ярусы балки - балки, расположенные на разной высоте.

Стойка - вертикальный элемент ограждения, закрепленный в земляном полотне или на плите проезжей части мостового сооружения, главная функция - передача нагрузки от ограждения полотну дороги.

Консоль - элемент ограждения, расположенный между стойкой и балкой, главная функция которого - предотвращение непосредственного контакта автомобиля со стойками ограждения. Консоль может быть жесткая и деформируемая (консоль-амортизатор)

Элемент концевой - защитный наконечник, устанавливаемый на торцы балки бокового ограждения

Приложение Б
НОРМАТИВНЫЕ ССЫЛКИ

В настоящих ТУ использованы ссылки на следующие нормативные документы:

ГОСТ 9.301-86 ЕСЗКС. Покрытия металлические и неметаллические неорганические. Общие требования.

ГОСТ 9.305-84 ЕСЗКС. Покрытия металлические и неметаллические неорганические. Операции технологических процессов получения покрытий.

ГОСТ 9.307-89 ЕСЗКС. Покрытия цинковые горячие. Общие требования и методы контроля.

ГОСТ 166-89 Штангенциркули. Технические условия.

ГОСТ 380-2005 Сталь углеродистая обыкновенного качества. Марки.

ГОСТ 427-75 Линейки измерительные металлические. Технические условия.

ГОСТ 5915-70 Гайки шестигранные класса точности В. Конструкции и размеры

ГОСТ 7502-98 Рулетки измерительные металлические. Технические условия

ГОСТ 7798-70 Болты с шестигранной головкой класса точности В. Конструкции и размеры

ГОСТ 7802-81 Болты с увеличенной полукруглой головкой и квадратным подголовком класса точности С. Конструкции и размеры.

ГОСТ 11371-78 Шайбы. Технические условия.

ГОСТ 14192-96 Маркировка грузов

ГОСТ 14771-76 Дуговая сварка в защитном газе. Соединения сварные. Основные типы, конструктивные элементы и размеры.

ГОСТ 15150-69 Машины, приборы и другие технические изделия. Исполнения для различных климатических районов. Категории, условия эксплуатации, хранения и транспортирования в части воздействия климатических факторов внешней среды.

ГОСТ 18160-72 Изделия крепежные. Упаковка. Маркировка. Транспортирование и хранение.

ГОСТ 19903-74 Прокат листовой горячекатаный. Сортамент.

ГОСТ 23118-99 Конструкции стальные строительные. Общие технические условия.

ГОСТ 24297-87 Входной контроль продукции. Основные положения.

ГОСТ 25347-82 Основные нормы взаимозаменяемости. ЕСДП. Поля допусков и рекомендуемые посадки.

ГОСТ Р 50971-96 Технические средства организации дорожного движения. Световозвращатели дорожные. Общие технические требования. Правила применения.

ГОСТ Р 52289-2004 Технические средства организации дорожного движения. Правила применения дорожных знаков, разметки, светофоров, дорожных ограждений и направляющих устройств

ГОСТ Р 52606-2006 Технические средства организации дорожного движения. Классификация дорожных ограждений

ГОСТ Р 52607-2006 Технические средства организации дорожного движения. Ограждения дорожные удерживающие боковые для автомобилей. Общие технические требования.

ГОСТ Р 52721-2007 Технические средства организации дорожного движения. Методы испытаний дорожных ограждений.

СП 53-101-2004 Общие правила проектирования стальных конструкций.

СНиП 2.03.11-85 Защита строительных конструкций от коррозии

СНиП 2.05.02-85 Автомобильные дороги

СНиП 2.05.03-84 Мосты и трубы

ТУ 14-178-432-2002 Болты специальные с полукруглой головкой и эллиптическим подголовником класса точности С.



 

ЛИСТ РЕГИСТРАЦИИ ИЗМЕНЕНИЙ

Изм

Номера листов (страниц)

Всего листов (страниц) в докум.

№ докум.

Подп.

Дата

измененных

замененных

новых

аннулированных

 

 

 

 

 

 

 

 

 

 

 

 

 

 

 

 

 

 

 

 

 

 

 

 

 

 

 

 

 

 

 

 

 

 

 

 

 

 

 

 

 

 

 

 

 

 

 

 

 

 

 

 

 

 

 

 

 

 

 

 

 

 

 

 

 

 

 

 

 

 

 

 

 

 

 

 

 

 

 

 

 

 

 

 

 

 

 

 

 

 

 

 

 

 

 

 

 

 

 

 

 

 

 

 

 

 

 

 

 

 

 

 

 

 

 

 

 

 

 

 

 

 

 

 

 

 

 

 

 

 

 

 

 

 

 

 

 

 

 

 

 

 

 

 

 

 

 

 

 

 

 

 

 

 

 

 

 

 

 

 

 

 

СОДЕРЖАНИЕ

1. Обозначение конструкций. 3

2. Технические требования. 3

3. Комплектность. 8

4. Правила приемки. 12

5. Методы контроля. 12

6. Испытания. 12

7. Упаковка, маркировка, транспортирование и хранение. 13

8. Гарантии изготовителя. 13

9. Указания по монтажу ограждения. 13

Приложение а. Термины и определения, обозначения и сокращения. 13

Приложение б. Нормативные ссылки. 14

Приложение В. Схемы рабочих участков ограждений. 22

Приложение г. Схемы сборки рабочих участков ограждений. 11

Приложение д. Схема соединения секций балок в зоне деформационного шва мостового сооружения. 19

Приложение е. Схемы начальных (концевых) участков ограждений. 20

Приложение ж. Примеры схем переходных и сопрягающих участков ограждений. 23

Приложение и. Радиусные балки, примеры схем с применением радиусных балок, фронтальные ограждения с применением радиусных балок. 25

Приложение к. Примеры выполнения нетиповых узлов ограждений. 31

 



© 2013 Ёшкин Кот :-)