Информационная система
«Ёшкин Кот»

XXXecatmenu

ФЕДЕРАЛЬНОЕ АГЕНТСТВО
ПО ТЕХНИЧЕСКОМУ РЕГУЛИРОВАНИЮ И МЕТРОЛОГИИ

НАЦИОНАЛЬНЫЙ
СТАНДАРТ
РОССИЙСКОЙ
ФЕДЕРАЦИИ

ГОСТ Р ЕН
12085-2008

ИЗДЕЛИЯ ТЕПЛОИЗОЛЯЦИОННЫЕ,
ПРИМЕНЯЕМЫЕ В СТРОИТЕЛЬСТВЕ

Методы измерения линейных размеров образцов,
предназначенных для испытаний

EN 12085:1997
Thermal insulating products for building applications -
Determination of linear dimensions of test specimens
(IDT)

Москва

Стандартинформ

2008

Предисловие

Цели и принципы стандартизации в Российской Федерации установлены Федеральным законом от 27 декабря 2002 г. № 184-ФЗ «О техническом регулировании», а правила применения национальных стандартов Российской Федерации - ГОСТ Р 1.0-2004 «Стандартизация в Российской Федерации. Основные положения»

Сведения о стандарте

1 ПОДГОТОВЛЕН Некоммерческим партнерством «Производители современной минеральной изоляции «Росизол»» на основе выполненного Открытым акционерным обществом «Центр методологии нормирования и стандартизации в строительстве» (ОАО «ЦНС») аутентичного перевода европейского стандарта, указанного в пункте 4

2 ВНЕСЕН Техническим комитетом по стандартизации ТК 465 «Строительство»

3 ПРИНЯТ И ВВЕДЕН В ДЕЙСТВИЕ Приказом Федерального агентства по техническому регулированию и метрологии от 13 марта 2008 г. № 49-ст

4 Настоящий стандарт идентичен европейскому стандарту ЕН 12085:1997 «Теплоизоляционные изделия, применяемые в строительстве - Определение линейных размеров образцов для испытания» (EN 12085:1997 «Thermal insulating products for building applications - Determination of linear dimensions of test specimens»).

Наименования настоящего стандарта и раздела 5 изменены по отношению к европейскому стандарту для приведения в соответствие с ГОСТ Р 1.5-2004 (подраздел 3.5).

При применении настоящего стандарта рекомендуется использовать вместо ссылочных европейских стандартов соответствующие им национальные стандарты Российской Федерации, сведения о которых приведены в дополнительном приложении А

5 ВВЕДЕН ВПЕРВЫЕ

Информация об изменениях к настоящему стандарту публикуется в ежегодно издаваемом информационном указателе «Национальные стандарты», а текст изменений и поправок - в ежемесячно издаваемых информационных указателях «Национальные стандарты». В случае пересмотра (замены) или отмены настоящего стандарта соответствующее уведомление будет опубликовано в ежемесячно издаваемом информационном указателе «Национальные стандарты». Соответствующая информация, уведомление и тексты размещаются также в информационной системе общего пользования - на официальном сайте Федерального агентства по техническому регулированию и метрологии в сети Интернет

ГОСТ Р ЕН 12085-2008

НАЦИОНАЛЬНЫЙ СТАНДАРТ РОССИЙСКОЙ ФЕДЕРАЦИИ

ИЗДЕЛИЯ ТЕПЛОИЗОЛЯЦИОННЫЕ, ПРИМЕНЯЕМЫЕ В СТРОИТЕЛЬСТВЕ

Методы измерения линейных размеров образцов,
предназначенных для испытаний

Thermal insulating products for applications in building.
Methods for measurement of linear dimensions of test specimens

Дата введения - 2009-01-01

1 Область применения

Настоящий стандарт распространяется на теплоизоляционные изделия, применяемые в строительстве, и устанавливает характеристики и требования к выбору средств измерений, а также методы измерений линейных размеров образцов, отобранных от теплоизоляционных изделий (далее - образцы).

Методы измерений размеров полноразмерных изделий приведены в ЕН 822 и ЕН 823.

2 Нормативные ссылки

В настоящем стандарте использованы ссылки на следующие европейские стандарты:

ЕН 822:1994 Теплоизоляционные изделия, применяемые в строительстве - Определение длины и ширины

ЕН 823:1994 Теплоизоляционные изделия, применяемые в строительстве - Определение толщины.

3 Термины и определения

В настоящем стандарте применены следующие термины с соответствующими определениями:

3.1 линейный размер (linear dimension): Расстояние между двумя точками, параллельными линиями или параллельными плоскостями, определяемыми углами, кромками или гранями образцов, предназначенных для испытания.

3.2 образец для испытания (test specimen): Единица продукции или ее часть, применяемая непосредственно для испытания.

4 Сущность методов

Измеряют линейные размеры образцов при помощи средств измерений, обеспечивающих требуемую погрешность.

5 Средства измерений и вспомогательное оборудование

5.1 Плоское основание размерами, превышающими наибольший размер образца, предназначенного для испытания.

5.2 Прибор с круговой шкалой, позволяющий снимать показания с погрешностью не более 0,05 мм. Размер подвижной части прибора должен быть таким, чтобы общее давление на образец при его измерении не превышало 1 кПа.

Примечание - Давление, создаваемое прибором с круговой шкалой при измерении образца, может быть уменьшено снятием пружины. Прибор с круговой шкалой или любой другой электрический или оптический измерительный прибор, имеющий как минимум такую же точность, может быть прикреплен к любому устройству, обеспечивающему совместимость размеров испытательного оборудования с размерами образца.

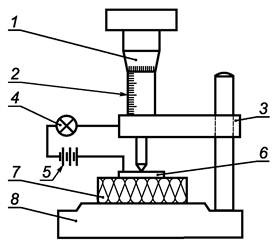
5.3 Микрометр, позволяющий снимать показания с погрешностью не более 0,05 мм. Микрометр должен применяться в случае, если он имеет контактное устройство, фиксирующее значение начального усилия, создаваемого микрометром в момент его соприкосновения с поверхностью испытуемого образца. В качестве контактного устройства может применяться электрическая цепь, состоящая из гибкого провода, батареи, лампы и алюминиевой пластины, оказывающей давление на образец, равное (50 ± 1,5) Па. Схема измерения с использованием контактного устройства приведена на рисунке 1.

5.4 Штангенциркуль, позволяющий снимать показания с погрешностью не более 0,1 мм. Штангенциркуль применяют в случае, если он не вызывает деформации образца.

5.5 Металлическая линейка или металлическая рулетка, градуированная в миллиметрах, позволяющие снимать показания с погрешностью не более 0,5 мм.

Примечание - Допускается использовать другие средства измерений, обеспечивающие измерения с указанной выше погрешностью.

6 Образцы для испытаний

Число, размеры и кондиционирование образцов принимают в соответствии со стандартом на конкретный метод испытания.

7 Методика измерений

7.1 Условия измерений

Условия, при которых проводят измерения образцов, должны соответствовать установленным в стандарте на конкретный метод испытания.

7.2 Выбор средств измерений

Средства измерений выбирают с учетом требуемой точности измерений образцов, указанной в стандарте на конкретный метод испытания. При отсутствии стандарта на метод испытания точность измерений согласовывают между заинтересованными сторонами с учетом размеров испытуемых образцов.

Средства измерений выбирают в соответствии с таблицей 1, если погрешность измерений образца выражают в миллиметрах.

Средства измерения выбирают в соответствии с таблицей 2, если погрешность измерений образца выражают в процентах.

При выборе конкретного средства измерений учитывают требуемую погрешность измерений и размеры образцов, предназначенных для испытания.

7.3 Число измерений и точек, в которых проводят измерения

Число точек, в которых проводят измерения, принимают в зависимости от размера и формы образца, но не менее двух. Точки должны быть удалены на таком расстоянии друг от друга, чтобы вычисленное среднеарифметическое значение было наиболее точным. Если среднеарифметическое значение вычисляют по результатам трех измерений в каждой точке, то для определения общего среднего значения таких точек должно быть не менее двух.

Примечание - Среднеарифметическое значение, вычисленное по результатам измерений в каждой точке, учитывает наибольшее число измерений по сравнению с общим среднеарифметическим значением, вычисленным по результатам единичных измерений.

1 - винтовой микрометр; 2 - шкала с делениями в миллиметрах; 3 - регулируемая опора; 4 - лампа; 5 - батарея;
6 - алюминиевая пластина площадью 10 см; 7 - образец для измерения; 8 - основание

Рисунок 1 - Схема измерения с использованием контактного устройства (см. 5.3)

Таблица 1

Требуемая погрешность измерения, мм

Средства измерений

Погрешность средства измерений, мм

Степень округления среднеарифметического значения в каждой точке измерения, мм

0,1

Прибор с круговой шкалой или микрометр1

0,05

0,1

0,2

Штангенциркуль2

0,1

0,2

1,0

Металлическая рулетка или линейка3

0,5

1,0

1 Прибор с круговой шкалой должен применяться в случае, если на результат измерения не влияет давление, создаваемое прибором и не превышающее 1 кПа.

2 Допускается использовать прибор с круговой шкалой или микрометр, если при этом нет необходимости проводить измерения с более высокой точностью, чем измерения при помощи штангенциркуля.

3 Допускается использовать штангенциркуль или прибор с круговой шкалой, или микрометр, если при этом нет необходимости проводить измерения с более высокой точностью, чем измерения при помощи металлической рулетки или линейки.

Таблица 2

Требуемая погрешность измерения, %

Средства измерений/диапазон измеряемых размеров

От 20 мм до < 50 мм

От 50 мм до ≤ 100 мм

> 100 мм

От 0,5 до < 1

Прибор с круговой шкалой или микрометр1

Штангенциркуль2

Металлическая рулетка или линейка3

От 1 до < 2

Штангенциркуль2

Штангенциркуль2

Металлическая рулетка или линейка3

≥ 2

Штангенциркуль2

Металлическая рулетка или линейка3

Металлическая рулетка или линейка3

1 Прибор с круговой шкалой должен применяться в случае, если на результат измерения не влияет давление, создаваемое прибором и не превышающее 1 кПа.

2 Допускается использовать прибор с круговой шкалой или микрометр, если при этом нет необходимости проводить измерения с более высокой точностью, чем измерения при помощи штангенциркуля.

3 Допускается использовать скользящий штангенциркуль или прибор с круговой шкалой, или микрометр, если при этом нет необходимости проводить измерения с более высокой точностью, чем измерения при помощи металлической рулетки или линейки.

7.4 Измерения прибором с круговой шкалой

Измерения проводят на образце, помещенном на плоское основание.

Первое измерение проводят без образца, второе - с образцом. За результат единичного измерения принимают разность между результатами первого и второго измерений. Оба измерения проводят с погрешностью не более 0,05 мм. Среднеарифметическое значение округляют до 0,1 мм.

7.5 Измерения микрометром

Измерения проводят на образце, помещенном на плоское основание. Микрометр прикрепляют к регулируемой опоре (см. рисунок 1). Первое измерение проводят без образца, второе - с образцом. Острие измерительного стержня микрометра приводят в соприкосновение с поверхностью образца. Момент соприкосновения фиксируется контактным устройством. За результат единичного измерения принимают разность между результатами первого и второго измерений. Оба измерения проводят с погрешностью не более 0,05 мм. Среднеарифметическое значение округляют до 0,1 мм.

7.6 Измерения штангенциркулем

Штангенциркуль устанавливают в положение для небольших измерений, а затем перемещают к образцу до соприкосновения с поверхностью образца, не вызывая его деформации. Все измерения проводят с погрешностью не более 0,1 мм. Среднеарифметическое значение округляют до 0,2 мм.

7.7 Измерения металлической линейкой или рулеткой

При измерениях металлической линейкой или рулеткой повреждение или разрушение образца не допускается.

Все измерения проводят с погрешностью не более 0,5 мм. Среднеарифметическое значение округляют до 1 мм.

8 Обработка результатов измерений

Обработку результатов измерений проводят в соответствии с разделом 7.

9 Точность методов

Примечание - Данные о точности методов будут включены в настоящий стандарт при его последующем пересмотре.

10 Отчет об измерениях

Отчет об измерениях оформляют в соответствии со стандартом на конкретный метод испытания.

Приложение А
(справочное)

Сведения о соответствии национальных стандартов Российской Федерации
ссылочным европейским стандартам

Таблица А.1

Обозначение ссылочного европейского стандарта

Обозначение и наименование соответствующего национального стандарта

ЕН 822:1994

ГОСТ Р ЕН 822-2008 Изделия теплоизоляционные, применяемые в строительстве. Методы измерения длины и ширины

ЕН 823:1994

ГОСТ Р ЕН 823-2008 Изделия теплоизоляционные, применяемые в строительстве. Методы измерения толщины

 

Ключевые слова: теплоизоляционные изделия, образцы для измерения, средства измерения, методы измерения

СОДЕРЖАНИЕ

 



© 2013 Ёшкин Кот :-)