Информационная система
«Ёшкин Кот»

XXXecatmenu

Открытое акционерное общество

Проектно-конструкторский и технологический
институт промышленного строительства

ОАО ПКТИпромстрой

 

 

 

УТВЕРЖДАЮ

Генеральный директор, к.т.н.

____________ С.Ю. Едличка

«22» июня 2000 г.

 

ТЕХНОЛОГИЧЕСКАЯ КАРТА
УСТРОЙСТВО ВВОДОВ ВОДОПРОВОДА
В ЗДАНИЯ И СООРУЖЕНИЯ

7390 ТК

Главный инженер

_________ А.В. Колобов

Начальник лаборатории

_________ Б.И. Бычковский

2000

 

СОДЕРЖАНИЕ

1 Область применения

1.1 Технологическая карта на устройство вводов водопровода предназначена для использования при производстве строительных работ при подключении сети водопровода в здания и сооружения, расположенные вдоль автодорог и магистралей, а также пешеходных зон в условиях сложившейся застройки.

1.2 Картой предусматривается наличие в зоне производства работ грунта из суглинка, инженерных сетей и коммуникаций и отсутствие грунтовых вод, что оказывает влияние на выбор способов производства работ.

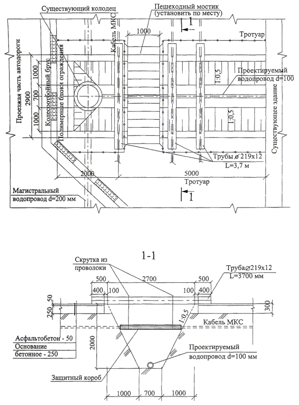
В качестве примера принята прокладка ввода водопровода от существующего колодца, расположенного на проезжей части в 2 м от кромки тротуара, к зданию согласно рисунку 1.

1.3 В состав рассматриваемых картой работ включены:

- разборка и восстановление дорожного покрытия;

- разработка и обратная засыпка грунта;

- подвеска инженерных сетей и коммуникаций;

- укладка трубопровода и его подсоединение.

1.4 Привязка технологической карты к проектируемому объекту с учетом местных условий заключается в корректировке параметров в связи со строительной группой грунтов, глубиной и шириной траншеи, а также ведомости объемов работ, калькуляции, календарного плана производства работ.

При привязке карты к сооружаемым объектам в г. Москве необходимо дополнительно учитывать:

- «Правила организации подготовки и производства земляных и строительных работ в г. Москве» (постановление Правительства Москвы от 17.03.98 г. № 207);

- «Организационно-технологические правила строительства (реконструкции) объектов в стесненных условиях существующей городской застройки», введенным в действие Управлением развития генплана г. Москвы в 1998 г.

1.5 Форма использования карты предусматривает обращение ее в сфере информационных технологий с включением в базу данных по технологии и организации строительных процессов автоматизированного рабочего места (АРМ) разработчика ППР.

1.6 До привязки технологической карты к местным условиям необходимо иметь:

* - размеры уточняются по месту.

Рисунок 1- Примерная схема ввода водопровода.

- согласованный в региональном управлении ГУ ГИБДД проект организации дорожного движения (разрабатывается в составе ПОС);

- согласования организаций - владельцев инженерных сетей и коммуникаций, попадающих в зону разработки котлована;

- согласованный в установленном порядке стройгенплан.

2 Организация и технология строительного процесса.

2.1 До начала производства работ по устройству ввода водопровода необходимо выполнить следующие подготовительные работы:

- установить сигнальное освещение;

- оградить участок производства работ;

- установить бытовые помещения (при необходимости);

- подготовить механизмы, инструмент, оборудование, инвентарь;

- определить места расположения подземных коммуникаций (кабелей МКС, водопровода, канализации, телефонных сетей и др.) и закрепить их на местности соответствующими знаками или надписями;

- произвести разбивку осей траншеи;

- организовать движение автотранспорта и пешеходов.

2.2 Работы по сооружению ввода водопровода выполняются в следующей последовательности:

- вскрытие асфальтобетонного покрытия тротуара и дороги на расстоянии 2 м от бровки тротуара;

- разработка грунта вручную в пределах подземных коммуникаций до глубины их заложения (примерно 0,8 - 1,5 м от поверхности);

- подвеска подземных коммуникаций к переброшенной через траншею трубе;

- дальнейшая послойная разработка грунта до проектной отметки;

- подготовка постели под трубопровод;

- укладка трубопровода;

- устройство обратной засыпки с послойным уплотнением грунта и оформлением акта на скрытые работы;

- восстановление асфальтобетонного покрытия дороги и тротуара;

- разборка сигнального освещения и ограждения участка работ.

Рисунок 2 - Габаритные размеры котлована.

2.3 Вскрытие асфальтобетонного покрытия тротуара и части проезжей дороги производится с использованием компрессоров и отбойных молотков в габаритах, отмеченных на рисунке 2. Толщина слоя асфальтобетона на проезжей части и тротуаре принята равной 300 мм. Разобранное асфальтовое покрытие (скол) должно быть вывезено в течение рабочего дня.

2.4 Разработка грунта в пределах 2 м от боковой поверхности коммуникаций согласно п. 3.22 СНиП 3.02.01-87 «Земляные сооружения, основания и фундаменты» производится только вручную. Разработанный грунт грузится в ящики и поднимается наверх с погрузкой в автосамосвалы и вывозится в установленные места. В процессе разработки грунта при вскрытии подземных коммуникаций производится их защита деревянным коробом и подвеска к переброшенным через траншею трубам.

Особую осторожность следует проявлять при вскрытии кабелей МКС и других коммуникаций и их засыпке.

2.5 Минимальная ширина траншей должна приниматься в соответствии с данными, изложенными в таблице 1.

Таблица 1 - Требуемая минимальная ширина траншей для прокладки водопровода.

Способ укладки трубопроводов

Ширина траншей, м, без учета креплений при стыковом соединении

сварном

раструбном

муфтовом, фланцевом, фальцевом для всех труб и раструбном для керамических труб

Плетями или отдельными секциями при наружном диаметре труб, Д, м:

 

Д + 0,3, но не менее

 

 

- до 0,7 включительно

0,7

-

-

- свыше 0,7

1,5Д

-

-

Отдельными трубами при наружном диаметре труб Д, м, включительно:

 

 

 

- до 0,5

Д + 0,5

Д + 0,6

Д + 0,8

- от 0,5 до 1,6

Д + 0,8

Д + 1,0

Д + 1,2

- от 1,6 до 3,5

Д + 1,4

Д + 1,4

Д + 1,4

Примечание - При параллельной укладке нескольких трубопроводов в одной траншее расстояния от крайних труб до стенок траншей определяются требованиями настоящей таблицы, а расстояния между трубами устанавливаются проектом.

2.6 Разработка траншей с откосами без креплений в нескальных грунтах выше уровня грунтовых вод (с учетом капиллярного поднятия) или в грунтах, осушенных с помощью искусственного водопонижения, допускается при глубине выемки и крутизне откосов согласно таблице 2.

Таблица 2 - Данные для определения крутизны откосов траншей.

Виды грунтов

Крутизна откосов при глубине выемки, м, не более

1,5

3,0

5,0

Насыпные неуплотненные

1:0,67

1:1

1:1,25

Песчаные и гравийные

1:0,5

1:1

1:1

Супесь

1:0,25

1:0,67

1:0,85

Суглинок

1:0

1:0,5

1:0,75

Глина

1:0

1:0,25

1:0,5

Лессы и лессовидные

1:0

1:0,5

1:0,5

Примечание - При напластовании различных видов грунта крутизну откосов для всех пластов надлежит назначать по наиболее слабому виду грунта.

2.7 Рытье траншей с вертикальными стенками без креплений в нескальных и незамерзших грунтах выше уровня грунтовых вод и при отсутствии вблизи подземных сооружений допускается на глубину не более, м:

1,0 - в насыпных, песчаных и крупнообломочных грунтах;

1,25 - в супесях;

1,50 - в суглинках и глинах.

При среднесуточной температуре воздуха ниже минус 2 °С наибольшую высоту вертикальных стенок выемок в мерзлых грунтах, кроме сыпучемерзлых, допускается увеличивать по сравнению с установленной СНиП III-4-80* на величину глубины промерзания грунта, но не более чем до 2 м.

2.8 При использовании грунта в качестве упора опорная стенка котлована должна быть с ненарушенной структурой грунта.

2.9 При производстве работ в непосредственной близости и ниже подошвы фундаментов существующих зданий и сооружений необходимо соблюдать технические решения по обеспечению их сохранности, которые должны предусматриваться рабочим проектом.

2.10 Укладка труб трубопровода должна производиться в соответствии с проектом производства работ и технологическими картами после проверки и приемки траншеи.

Укладка труб в зависимости от наличия и количества инженерных сетей и отметок их заложения производится секциями или отдельными трубами, заводя их под коммуникации с той или другой стороны. Для проведения сварочных работ и заделки стыков трубопроводов всех диаметров должны устанавливаться приямки следующих размеров: длина 1,0 м; ширина Д + 1,2 м, где Д - наружный диаметр трубопровода в стыке в м; глубина 0,7 м.

2.11 При прокладке трубопроводов ввода, состоящих из двух и более труб, соединяемые концы смежных труб должны быть отцентрированы так, чтобы ширина раструбной щели была одинаковой по окружности.

Способы сварки, типы, конструктивные элементы и размеры сварных соединений стальных трубопроводов должны соответствовать требованиям ГОСТ 16037-80*.

Перед сборкой и сваркой труб следует очистить их от загрязнений, проверить геометрические размеры разделки кромок, зачистить до металлического блеска кромки и прилегающие к ним внутренние и наружные поверхности труб на ширину не менее 10 мм.

Для заделки (уплотнения) стыковых соединений трубопроводов следует применять уплотнительные и «замковые» материалы, а также герметики согласно проекту.

Защиту стальных трубопроводов от коррозии следует осуществлять в соответствии с проектом и требованиями СНиП 3.04.03-85 и СНиП 2.03.11-85.

2.12 По окончании сварочных работ наружная изоляция труб в местах сварных соединений должна быть восстановлена в соответствии с проектом.

2.13 Поперечные сварные соединения должны быть расположены на расстоянии не менее, чем:

- 0,2 м от края конструкции опоры трубопровода;

- 0,3 м от наружной и внутренней поверхностей камеры или поверхности ограждающей конструкции, через которую проходит трубопровод, а также от края футляра.

Расстояние между кольцевым сварным швом трубопровода и швом привариваемых патрубков должно быть не менее 100 мм.

2.14 К сварке стыков стальных трубопроводов допускаются сварщики при наличии документов на право производства сварочных работ в соответствии с Правилами аттестации сварщиков, утвержденными Госгортехнадзором России.

Каждый сварщик должен иметь присвоенное ему клеймо. Сварщик обязан выбивать или наплавлять клеймо на расстоянии 30 - 50 мм от стыка со стороны, доступной для осмотра.

2.15 Сварку и прихватку стыковых соединений труб допускается производить при температуре наружного воздуха до минус 50 °С. При этом сварочные работы без подогрева свариваемых стыков допускается выполнять:

- при температуре наружного воздуха до минус 20 °С - при применении труб из углеродистой стали с содержанием углерода не более 0,24 % (независимо от толщины стенок труб), а также труб из низколегированной стали с толщиной стенок не более 10 мм;

- при температуре наружного воздуха до минус 10 °С - при применении труб из углеродистой стали с содержанием углерода свыше 0,24 %, а также труб из низколегированной стали с толщиной стенок свыше 10 мм.

При температуре наружного воздуха ниже вышеуказанных пределов сварочные работы должны производиться с подогревом в специальных кабинах, в которых температуру воздуха следует поддерживать не ниже вышеуказанной, или осуществлять подогрев на открытом воздухе концов свариваемых труб на длину не менее 200 мм до температуры не ниже 200 °С.

После окончания сварки необходимо обеспечить постепенное понижение температуры стыков и прилегающих к ним зон труб путем укрытия их после сварки асбестовым полотенцем или другим способом.

2.16 При производстве работ по укладке вводов водопровода следует соблюдать правила производства и приемки работ согласно СНиП 3.01.01-85*, СНиП 3.01.03-84, СНиП 3.02.01-87, СНиП 3.03.01-87, СНиП 3.05.04-85*, «Правил организации подготовки и производства земляных и строительных работ в г. Москве».

3 Требования к качеству и приемке работ

3.1 Производственный контроль качества работ по устройству вводов водопровода в здания и сооружения со стороны проезжей части улиц и магистралей включает входной контроль рабочей документации и используемых материалов и конструкций, операционный контроль технологических процессов и приемочный контроль выполненных работ с оформлением акта скрытых работ и акта приемки.

3.3 При входном контроле проверяются соответствие проекту размеров траншеи, крепления стенок, отметок дна и при надземной прокладке - опорных конструкций. Результаты проверок должны быть занесены в журнал производства работ.

Трубы и фасонные части, арматура и готовые узлы перед монтажом должны быть осмотрены и очищены изнутри и снаружи от грязи, снега, льда, масел и посторонних предметов.

Участки труб с вмятинами свыше 3,5 % диаметра трубы или имеющие надрывы должны быть удалены. Концы труб с забоинами или задирами фасок глубиной свыше 5 мм подлежат обрезке.

3.4 При контроле качества сварных соединений стальных трубопроводов следует выполнять:

- операционный контроль в процессе сборки и сварки трубопровода в соответствии с требованиями СНиП 3.01.01-85*;

- проверку сплошности сварных стыков с выявлением внутренних дефектов одним из неразрушающих (физических) методов контроля - радиографическим (рентгено- или гаммаграфическим) по ГОСТ 7512-82 или ультразвуковым по ГОСТ 14782-86.

Применение ультразвукового метода допускается только в сочетании с радиографическим, которым должно быть проверено не менее 10 % общего числа стыков, подлежащих контролю.

3.5 При операционном контроле качества сварных соединений стальных трубопроводов следует проверить соответствие стандартам конструктивных элементов и размеров сварных соединений, способа сварки, качества сварочных материалов, подготовки кромок, величины зазоров, числа прихваток, а также исправности сварочного оборудования.

3.6 Внешнему осмотру подлежат все сварные стыки. На трубопроводах сварные стыки, сваренные без подкладного кольца, подвергаются внешнему осмотру и измерению размеров снаружи и изнутри трубы, в остальных случаях - только снаружи. Перед осмотром сварной шов и прилегающие к нему поверхности труб на ширину не менее 20 мм (по обе стороны шва) должны быть очищены от шлака, брызг расплавленного металла, окалины и других загрязнений.

Качество сварного шва по результатам внешнего осмотра считается удовлетворительным, если не обнаружено:

- трещин в шве и прилегающей зоне;

- отступлений от допускаемых размеров и формы шва;

- подрезов, западаний между валиками, наплывов, прожогов, незаваренных кратеров и выходящих на поверхность пор, непроваров или провисаний в корне шва (при осмотре стыка изнутри трубы);

- смещений кромок труб, превышающих допускаемые размеры.

3.7 Проверке качества сварных швов физическими методами контроля подвергаются трубопроводы водоснабжения с расчетным давлением: до 1 МПа (10 кгс/см2) в объеме не менее 2 % (но не менее одного стыка на каждого сварщика); 1 - 2 МПа (10 - 20 кгс/см2) - в объеме не менее 5 % (но не менее двух стыков на каждого сварщика); свыше 2 МПа (20 кгс/см2) - в объеме не менее 10 % (но не менее трех стыков на каждого сварщика).

3.8 Сварные стыки для контроля физическими методами отбираются в присутствии представителя заказчика, который записывает в журнале производства работ сведения об отобранных для контроля стыках (местоположение, клеймо сварщика и др.).

3.9 Сварные швы следует браковать, если при проверке физическими методами контроля обнаружены трещины, незаваренные кратеры, прожоги, свищи, а также непровары в корне шва, выполненного на подкладном кольце.

При проверке сварных швов радиографическим методом допустимыми дефектами считаются:

- поры и включения, размеры которых не превышают максимально допустимых по ГОСТ 23055-78 для 7-го класса сварных соединений;

- непровары, вогнутость и превышение проплава в корне шва, выполненного электродуговой сваркой без подкладного кольца, высота (глубина) которых не превышает 10 % номинальной толщины стенки, а суммарная длина - 1/3 внутреннего периметра соединения.

3.10 При выявлении физическими методами контроля недопустимых дефектов в сварных швах эти дефекты следует устранить и произвести повторный контроль качества удвоенного числа швов по сравнению с указанным в п. 3.7. В случае выявления недопустимых дефектов при повторном контроле должны быть проконтролированы все стыки, выполненные данным сварщиком.

3.11 Участки сварного шва с недопустимыми дефектами подлежат исправлению путем местной выборки и последующей подварки (как правило, без переварки всего сварного соединения), если суммарная длина выборок после удаления дефектных участков не превышает суммарной длины, указанной в ГОСТ 23055-78 для 7-го класса.

Исправление дефектов в стыках следует производить дуговой сваркой.

Подрезы должны исправляться наплавкой ниточных валиков высотой не более 2 - 3 мм. Трещины длиной менее 50 мм засверливаются по концам, вырубаются, тщательно зачищаются и завариваются в несколько слоев.

3.12 Результаты проверки качества сварных стыков стальных трубопроводов физическими методами контроля следует оформлять актом (протоколом).

3.13 Предельные отклонения и методы контроля при сооружении вводов водопровода по видам работ приведены в таблице 3.

Таблица 3 - Параметры контроля качества при сооружении вводов водопровода.

Технические требования

Предельные отклонения

Контроль (метод и объем)

Контроль за состоянием откосов и дна траншей

Не допускаются сосредоточенная фильтрация, вынос грунта и оплывание откосов

Визуальные наблюдения. Ежедневно

Контроль за осадками зданий и сооружений

Осадки не должны превышать величин, установленных СНиП 2.02.01-83*

Нивелирование по маркам, установленным на здании или сооружении

Отклонения отметок дна планировочных выемок

 

Измерительный, при числе измерений на сдаваемый участок не менее 20 в наиболее высоких местах, установленных визуальным осмотром

а) недоборы

10 см

б) переборы

20 см

Отклонения от проектного продольного уклона дна траншей под безнапорные трубопроводы, водоотводных канав и других выемок с уклонами

Не должны превышать ± 0,0005

Измерительный, в местах поворотов, примыканий, расположения колодцев и т.п., но не реже, чем через 50 м

Максимальные отклонения от проектного положения:

Не должны превышать

Измерительный

- осей напорных трубопроводов,

± 100 мм

- отметок лотков безнапорных трубопроводов,

± 5 мм

- отметок верха напорных трубопроводов

± 30 мм

3.14 Зазор между трубопроводом и сборной частью бетонных или кирпичных упоров должен быть плотно заполнен бетонной смесью или цементным раствором.

3.15 При устройстве вводов водопроводов подлежат приемке с составлением актов освидетельствования скрытых работ по форме, приведенной в СНиП 3.01.01-85*, следующие этапы и элементы скрытых работ: подготовка основания под трубопроводы, устройство упоров, величина зазоров и выполнение уплотнений стыковых соединений, устройство колодцев и камер, противокоррозионная защита трубопроводов, герметизация мест прохода.

4 Требования техники безопасности и охраны труда, экологической и пожарной безопасности.

4.1 О начале работ по устройству ввода водопровода уведомить заинтересованные стороны, а производство работ вести под наблюдением и техническим надзором представителей заинтересованных организаций (Госпредприятия энергохозяйства, района канализационной сети и др.)

4.2 До начала производства земляных работ в местах расположения действующих подземных коммуникаций должны быть разработаны и согласованы с организациями, эксплуатирующими эти коммуникации, мероприятия по безопасным условиям труда, а расположение подземных коммуникаций на местности обозначено соответствующими знаками или надписями.

4.3 Производство земляных работ в зоне действующих подземных коммуникаций осуществлять под непосредственным руководством прораба или мастера, а в охранной зоне кабелей, находящихся под напряжением, или действующего газопровода, кроме того, под наблюдением работников электро- или газового хозяйства.

4.4 При обнаружении взрывоопасных материалов земляные работы в этих местах следует немедленно прекратить до получения разрешения от соответствующих органов.

4.5 Перед началом производства земляных работ на участках с возможным патогенным заражением почвы необходимо получить разрешение органов Государственного санитарного надзора.

4.6 Котлованы и траншеи, разрабатываемые на улицах, проездах, во дворах населенных пунктов, а также местах, где происходит движение людей или транспорта, должны быть ограждены защитным ограждением с учетом требований ГОСТ 23407-78.

На ограждении необходимо устанавливать предупредительные надписи и знаки, а в ночное время - сигнальное освещение.

4.7 Места прохода людей через траншею должны быть оборудованы переходными мостиками, освещаемыми в ночное время. Пример организации дорожного движения и места прохода людей через траншею на участке сооружения водопровода представлен на рисунке 3.

4.8 При прокладке труб ввода водопровода с выходом на проезжую часть улицы обеспечить сохранность сооружений контактной сети.

4.9 Перед допуском рабочих в котлованы или траншеи глубиной более 1,3 м должна быть проверена устойчивость откосов или крепления стен. В случаях необходимости выполнения работ, связанных с электропрогревом грунта, должны соблюдаться требования СНиП 12-03-99. Прогреваемую площадь следует ограждать, устанавливая на нем предупредительные сигналы, а в ночное время освещение. Расстояние между ограждением и контуром прогреваемого участка должно быть не менее 3 м.

4.10 На участках прогреваемой площади, находящихся под напряжением, пребывание людей не допускается.

4.11 При извлечении грунта из выемок с помощью бадей необходимо устраивать защитные навесы-козырьки для укрытия работающих в выемке.

4.12 Для движения пешеходов через траншеи установить переходные мостики шириной 1 м с перилами высотой 1,1 м, со сплошной обшивкой внизу на высоту 0,15 м и промежуточной планкой на высоте 0,5 м от настила.

4.13 Для спуска рабочих в котлован и траншеи использовать трапы шириной 0,3 м или лестницы, оборудованные перилами.

4.14 Территория строительных работ в темное время суток должна быть освещена в соответствии с требованиями ГОСТ 12.1.046-85: освещенность рабочих мест должна быть не менее 30 лк, стройплощадки - не менее 10 лк. Ограждения должны быть освещены сигнальными электролампами напряжением не выше 42 В.

4.15 При выполнении сварочных работ на открытом воздухе во время осадков места сварки должны быть защищены от влаги и ветра.

4.16 При производстве работ в г. Москве следует дополнительно руководствоваться «Правилами организации подготовки и производства земляных и строительных работ в г. Москве».

Рисунок 3 - Схема организации движения.

5 Потребность в материально-технических ресурсах

5.1 Потребность в машинах, оборудовании, механизмах и инструментах определяется с учетом выполняемых работ, назначения и технических характеристик в соответствии с таблицей 4.

Таблица 4 - Ведомость потребности машин, механизмов, приспособлений

п/п

Наименование

Тип, марка

Техническая характеристика

Назначение

Количество

1

2

3

4

5

6

1

Передвижной компрессор

ПКС-5 (или ЗИФ-55)

Производительность 60 м3

Обеспечение сжатым воздухом

1

2

Автосамосвал

ЗИЛ-ММЗ-555

Полезная нагрузка 4,5 т

Транспортные работы

2

3

Бортовой автомобиль

ЗИЛ-130

Грузоподъемность 6 т

Транспортные работы

1

4

Минипогрузчик

«Вовсет»

Оснащен различным навесным оборудованием

Транспортные и погрузочно-разгрузочные работы

1

5

Автогудронатор

ДС-39Б

На базе ЗИЛ-431412

Гидроизоляционные работы

1

Емкость цистерны 4000 л.

6

Электросварочный аппарат

ТС-500

Потребляемая мощность 30 кВт

Электросварочные работы

1

7

Электротрамбовка

ИЭ-4502

Глубина уплотнения 0,4 м.

Уплотнение грунта

 

Производительность 45 м3

Р = 81,0 кг

8

Глубинный вибратор с гибким валом

ИВ-47А

Рмощн = 0,8 кВА

Уплотнение бетона

1

ТУ-224666-80

9

Ограждение

 

 

Техника безопасности

11

10

Лестница для спуска рабочих в котлован

 

 

Техника безопасности

2

11

Лопаты штыковые

 

 

Для разработки грунта

5

12

Лопаты совковые

 

 

3

13

Ящик для грунта

 

 

2

14

Комплект знаков по технике безопасности

ГОСТ 12.4.026-76*

-

Техника безопасности

1

15

Установка на базе экскаватора ЭО-6122

УСВ-120М

Конструкция НИИОСП, ЭКБ ЦНИИС, ВНИИГС

Для вдавливания труб, балок

1

16

Центратор

 

 

Для сборки труб

 

5.2 Потребность в основных материалах, изделиях и полуфабрикатах на прокладку ввода водопровода в здания и сооружения приведена в таблице 5.

Таблица 5 - Ведомость потребности в материалах, изделиях и конструкциях.

№ п/п

Наименование

Ед. изм.

Количество

Примечание

1

Труба водопроводная Æ 100 мм

м

7

 

2

Битумная мастика

кг

100

 

3

Электроды

кг

33

 

4

Рубероид

м2

25

 

5

Щебень

м3

0,5

 

6. Технико-экономические показатели.

6.1 В качестве примера устройства ввода водопровода в здания и сооружения принят отвлеченный участок проезжей части улицы и тротуара с примыканием к красной линии, на объемы работ которого составлены калькуляция затрат труда и машинного времени и календарный план производства работ.

6.2 Затраты труда и машинного времени на устройство ввода водопровода подсчитаны по «Единым нормам и расценкам на строительные, монтажные и ремонтно-строительные работы», введенным в действие в 1987 г., и представлены в таблице 6.

6.3 Продолжительность работ на устройство ввода водопровода в здания и сооружения определяется календарным планом работ, представленным в таблице 7.

6.4 Технико-экономические показатели составляют:

- протяженность трубопровода, м                             7,0

- затраты труда на один ввод, чел.-ч.                        144,6

- продолжительность работ, ч.                                  38

Таблица 6 - Калькуляция затрат труда и машинного впрмрни

Обоснование ЕНиР

Наименование технологических процессов

Ед. изм.

Объем работ

Норма времени рабочих, чел.-ч.

Затраты труда рабочих, чел.-ч.

Е 9-2-33 № 1а

Установка ограждения траншей

м

15,0

0,06

0,9

Е 17-50 № 2

Установка дорожных знаков

шт

17

1,1

18,7

Е 17-43 № 6 (применительно)

Установка колесоотбойных камней

м

30,0

0,67

20,1

Е 20-2-18 № 2

Е 1-22 № 2а

Дробление асфальтобетонного покрытия и погрузка

100 м2

0,196

0,26

0,05

т

12

0,67

8,0

Е 17-43 № 4б к = 0,7

Демонтаж бортового камня

м

3,0

0,5

1,5

Е2-1-47А 1ж

Разработка грунта вручную с выбросом на две стороны

м3

9,3

1,9

17,7

Е2-1-47А 2ж

4,4

2,2

9,7

Е2-1-47А 3ж

2,8

2,7

7,6

Е 9-2-34 № 2б

Устройство временного пешеходного моста

м2

3,7

0,94

3,5

Е 9-2-35 № 1а

Подвеска коммуникаций

1 м

6,0

0,75

4,5

Е 2-1-47А 4ж

Разработка грунта приямков

м2

0,91

3,3

3,0

Е 9-2-32 № 1 к = 1,2

Устройство основания

м3

0,94

1,08

1,0

Е 9-2-1 табл. 2, № 1а

Укладка трубопроводов и сварка стыков

м

7,0

0,1

0,7

Е 9-2-34 № 2в

Разборка временного пешеходного моста

м2

3,7

0,2

0,7

Е 2-1-58 т. 2, № 1б

Обратная засыпка послойно с трамбованием

м3

16,5

0,97

16,0

Е 9-2-35 № 2а

Разборка подвесок

1 м

6,0

0,38

2,3

Е 17-33 № 1д

Устройство основания из черного щебня

100 м2

0,196

9,7

1,9

Е 17-37 № 3

Укладка бетонного основания тротуара и автодороги

м2

19,6

0,18

3,5

Е 17-43 № 4б

Установка бортового камня на бетонное основание

м

3,0

0,71

2,1

Е 17-34 № 3г

Укладка асфальтобетонной смеси вручную

100 м2

0,196

7,0

1,4

Е 17-43 № 6б К = 0,7 (применительно)

Демонтаж колесоотбоев

м

30

0,47

14,2

Е 17-50 № 2 К = 0,7

Демонтаж дорожных знаков

шт

17

0,77

13,1

Е 9-2-33 № 2а

Разборка ограждения траншей

м

15

0,04

0,6

 

Итого:

 

 

 

144,6


Таблица 7 – Календарный план производства работ


7. ПЕРЕЧЕНЬ НОРМАТИВНО-ТЕХНИЧЕСКОЙ ЛИТЕРАТУРЫ.

1. СНиП 2.02.01-83* «Основания зданий и сооружений».

2. СНиП 2.03.11-85 «Защита строительных конструкций от коррозии».

3. СНиП 23-05-95 «Естественное и искусственное освещение».

4. СНиП 3.01.01-85* «Организация строительного производства».

5. СНиП 3.01.03-84 «Геодезические работы в строительстве».

6. СНиП 3.02.01-87 «Земляные сооружения, основания и фундаменты».

7. СНиП 3.03.01-87 «Несущие и ограждающие конструкции».

8. СНиП 3.04.03-85 «Защита строительных конструкций и сооружений от коррозии».

9. СНиП 3.05.04-85* «Наружные сети и сооружения водоснабжения и канализации».

10. СНиП 12-03-99 «Безопасность труда в строительстве. Часть 1. Общие требования».

11. СНиП III-4-80* «Техника безопасности в строительстве».

12. СНиП 2.05.06-85* «Магистральные трубопроводы».

13. ГОСТ 12.1.004-91* «ССБТ. Пожарная безопасность. Общие требования».

14. ГОСТ 12.1.046-85 «ССБТ. Строительство. Нормы освещения строительных площадок».

15. ГОСТ 12.1.051-90 «ССБТ. Электробезопасность. Расстояние безопасности в охранной зоне линий электропередачи напряжением свыше 1000 В».

16. ГОСТ 12.2.003-91 «ССБТ. Оборудование производственное. Общие технические требования безопасности».

17. ГОСТ 12.4.011-89 «ССБТ. Средства защиты работающих. Общие требования и классификация».

18. ГОСТ 12.4.026-76* «ССБТ. Цвета сигнальные и знаки безопасности».

19. ГОСТ 12.4.087-84 «ССБТ. Строительство. Каски строительные. Технические условия».

20. ГОСТ 7502-89* «Рулетка измерительная металлическая. Технические условия».

21. ГОСТ 7512-82 «Контроль неразрушающий. Соединения сварные. Радиографический метод».

22. ГОСТ 14782-86 «Контроль неразрушающий. Соединения сварные. Методы ультразвуковые».

23. ГОСТ 16037-80 «Соединения сварные стальных трубопроводов. Основные типы, конструктивные элементы и размеры».

24. ГОСТ 23055-78 «Контроль неразрушающий. Сварка металлов плавлением. Классификация сварных соединений по результатам радиографического контроля».

25. ГОСТ 23407-78 «Ограждения инвентарные строительных площадок и участков производства работ. Технические условия».

26. Правила аттестации сварщиков. Госгортехнадзор России, М.

27. ППБ 01-93* «Правила пожарной безопасности в Российской Федерации».

 



© 2013 Ёшкин Кот :-)