Информационная система
«Ёшкин Кот»

XXXecatmenu

Проектно-конструкторский и технологический
институт промышленного строительства
ОАО ПКТИпромстрой

 

Открытое акционерное общество

Проектно-конструкторский и технологический

институт промышленного строительства

ОАО ПКТИпромстрой

 

 

 

УТВЕРЖДАЮ

Генеральный директор, к.т.н.

______________ С.Ю. Едличка

« 09 » _____ 09 _______ 2003 г.

 

 

 

РЕКОМЕНДАЦИИ
ПО УСТРОЙСТВУ ПУНКТОВ
МОЙКИ (ОЧИСТКИ) КОЛЕС
АВТОТРАНСПОРТА
НА СТРОИТЕЛЬНОЙ ПЛОЩАДКЕ

 

 

52-03

 

Главный инженер

____________ А.В. Колобов

Директор ПТБ

____________ В.И. Сусов

Начальник отдела

__________ Б.И. Бычковский

 

 

2003

 

 

ПРЕДИСЛОВИЕ

«Рекомендации по устройству пунктов мойки (очистки) колес автотранспорта на строительной площадке» разработаны на основе действующих нормативных документов в области обустройства и содержания строительных площадок, охраны окружающей природной среды и экологической безопасности. Рекомендации ориентированы на использование мобильных инвентарно-блочных постов заводского изготовления с оборотным циклом водоснабжения.

Рекомендации содержат основные требования по устройству пунктов мойки (очистки) колес, методические указания по расчету потребности в воде и электроэнергии, подбору состава комплектов постов, привязки их в составе стройгенпланов.

Настоящие Рекомендации предназначены для специалистов проектных и строительных организаций, осуществляющих разработку проектно-технологической документации по организации строительства. Приведенные в Рекомендациях материалы могут быть использованы также инженерно-техническими работниками объединения административно-технических инспекций Правительства Москвы и его структурных подразделений.

В разработке Рекомендаций и подготовке их к изданию принимали участие сотрудники ОАО ПКТИпромстрой: к.т.н. Едличка С.Ю., Колобов А.В., Сусов В.И., Бычковский Б.И., Густова Г.А., Зальцвас И.А., Савина О.А., Андрианова А.Н.

 

 

СОДЕРЖАНИЕ

1 Общие положения

1.1 Основные требования к пунктам мойки (очистки) колес автотранспорта

1.2 Технологическая схема пункта мойки (очистки) колес

1.3 Конструктивные решения пунктов мойки (очистки) колес

2 Расчет потребности в воде и электроэнергии при эксплуатации пунктов мойки (очистки) колес

2.1 Общие данные

2.2 Расчет потребности в воде

2.3 Расчет потребности в электроэнергии

3 Порядок согласования конструктивного решения пункта мойки (очистки) колес автотранспорта

3.1 На стадии разработки проекта организации строительства (ПОС)

3.2 На стадии разработки проекта производства работ (ППР)

4 Посадка пункта мойки (очистки) колес на строительном генеральном плане

4.1 Место расположения пункта мойки (очистки) колес

4.2 Подключение к действующим инженерным сетям (водоснабжения, канализации, электроснабжения)

4.3 Устройство временных автодорог и площадок для автотранспорта

5 Указания по эксплуатации пунктов мойки (очистки) колес

5.1 Основные требования к эксплуатации

5.2 Меры безопасности

6 Перечень использованных нормативных документов и литературы

Приложение А - Технические характеристики оборудования для устройства пунктов мойки (очистки) колес автотранспорта

Приложение Б - Системы оборотного водоснабжения для пунктов мойки (очистки) колес автотранспорта

Приложение В - Устройство и эксплуатация пункта мойки (очистки) колес автотранспорта

Приложение Г - Технические характеристики автотранспортных средств

Приложение Д - Вариант схемы монтажа оборудования пункта мойки (очистки) колес автотранспорта

Приложение Е - Форма акта приемки работ подготовительного периода

Приложение Ж - Форма акта о соответствии выполненных внеплощадочных и внутриплощадочных подготовительных работ требованиям безопасности труда и готовности объекта к началу строительства

Приложение И - Перечень рекомендованных спецодежды, спецобуви и других средств индивидуальной защиты для персонала пунктов мойки

 

 

1 ОБЩИЕ ПОЛОЖЕНИЯ

1.1 Основные требования к пунктам мойки (очистки) колес автотранспорта

1.1.1 В целях предотвращения выноса грунта и грязи колесами автотранспорта на городскую территорию выезды со строительной площадки оборудуются пунктами мойки (очистки) колес автотранспорта.

1.1.2 Конструктивное и технологическое решения этих пунктов должно соответствовать государственным и ведомственным нормативным требованиям в области охраны труда, экологии и производственной санитарии, а также пожарной безопасности, и гарантировать исключение выноса грязи (грунта) колесами автомобилей на городскую территорию.

1.1.3 В г. Москве пункты мойки (очистки) колес автотранспорта в соответствии с требованиями Департамента природопользования и охраны окружающей среды Правительства Москвы, как правило, оборудуются системой оборотного водоснабжения. В порядке исключения, при невозможности устройства моечного пункта с оборотным водоснабжением, допускается сброс воды после обмыва колес в сеть дождевой канализации при наличии на этой сети концевых очистных сооружений поверхностного стока. В этом случае обязательно получение технических условий на присоединение к городской водосточной сети в ГУП «Мосводосток».

1.1.4 Степень очистки сточных вод при наружной мойке грузовых автомобилей и автопоездов должна удовлетворять:

- в системах оборотного водоснабжения, оборудованных очистной установкой, -требованиям, предъявляемым к качеству воды для производственных нужд, приведенным в таблице 1;

Таблица 1 - Характеристика качества воды для производственных нужд (наружная мойка грузовых автомобилей)

Показатели качества воды

температура, °С

взвешенные вещества, мг/л

нефтепродукты, мг/л

железо, мг/л

тетраэтилсвинец, мг/л

сухой остаток, мг/л

БПК полн., мг/л

жесткость общая,

pH

мг. экв

л

5 - 40

70

20

5,0

0,001

10000

80

18

6,5 - 8,5

- при сбросе сточных вод в дождевую канализацию - требованиям «Правил приема поверхностных сточных вод с территорий промышленных предприятий в городскую сеть дождевой канализации»;

- при сбросе сточных вод в водоемы - требованиям «Правил охраны поверхностных вод от загрязнения сточными водами».

1.1.5 Сброс сточных вод в водосточную сеть, как правило, должен осуществляться через самостоятельные выпуски с устройством контрольного колодца за пределами строительной площадки.

1.1.6 Для обмыва колес должна использоваться техническая вода. Использование воды питьевого качества допускается в виде исключения при отсутствии технического водопровода и при технико-экономическом обосновании нецелесообразности устройства системы оборотного водоснабжения.

1.1.7 Для сбора осадка, образующегося в оборудовании пункта мойки (очистки) колес в результате обмыва автотранспорта, допускается устройство приямков (шламоприемного кювета) в грунте с последующей их засыпкой грунтом и утрамбовкой.

1.1.8 Оборудование пунктов мойки (очистки) колес автотранспорта должно отвечать требованиям ГОСТ 12.2.003-91 «ССБТ. Оборудование производственное. Общие требования безопасности», ГОСТ 12.2.007.0-75* «ССБТ. Изделия электротехнические. Общие требования безопасности», ГОСТ 12.1.004-91* «ССБТ. Пожарная безопасность. Общие требования безопасности».

1.2 Технологическая схема пункта мойки (очистки) колес

1.2.1 В зависимости от объемов и видов строительно-монтажных и земляных работ, продолжительности строительства, размеров строительной площадки, возможности присоединения к постоянным (или временным) инженерным сетям водоснабжения, дождевой канализации, электроснабжения пункты мойки (очистки) колес могут иметь различные конструктивные и технологические решения.

1.2.2 Пункты мойки (очистки) колес классифицируются:

- по схеме водопотребления - на пункты, оборудованные оборотной системой пункты без оборотной системы;

- по способу очистки оборотной воды - на пункты, оснащенные очистной установкой, и пункты без очистной установки, оборудованные отстойниками (песколовками);

- по способу сброса сточных вод после обмыва колес автотранспорта - на пункты с очистными сооружениями и пункты без очистных сооружений;

- по конструктивному решению поста мойки - на пункты, оборудованные эстакадой, и пункты с площадкой для автотранспорта.

1.2.3 Обмыв колес может осуществляться как вручную из аппаратов высокого давления, так и в автоматическом режиме с использованием форсунок низкого или высокого давления

1.2.4 Принципиальные схемы пунктов мойки (очистки) колес автотранспорта приведены на рисунках 1, 2, 3, 4.


Рисунок 1 - Технологическая схема мойки колес автотранспорта с системой
оборотного водоснабжения, оборудованная очистной установкой (вариант)

 

Рисунок 2 - Технологическая схема мойки колес автотранспорта с системой
оборотного водоснабжения без очистной установки (вариант)

 

Рисунок 3 - Технологическая схема мойки колес автотранспорта без системы
оборотного водоснабжения со сбросом воды после обмыва колес на очистные
сооружения поверхностных сточных вод (вариант)

 

Рисунок 4 - Технологическая схема мойки колес автотранспорта без системы
оборотного водоснабжения со сбросом воды после обмыва колес в
сеть дождевой канализации (вариант)


1.3 Конструктивные решения пунктов мойки (очистки) колес

В зависимости от выбранной технологической схемы принимается конструктивное решение пункта мойки (очистки) колес автотранспорта и подбирается номенклатура оборудования.

Основными элементами пункта мойки (очистки), как правило, являются очистная установка, песколовка, моечная установка и эстакада.

1.3.1 Очистная установка

Очистная установка предназначена для очистки сточных вод от нефтепродуктов и взвешенных веществ, а также, в отдельных случаях, и для обеззараживания очищенной технической воды в системах оборотного водоснабжения.

Устройство, технические характеристики и принцип работы очистных установок различаются в зависимости от их модификации. Технические данные некоторых установок представлены в приложении А.

В большинстве случаев сущность процесса очистки в установке заключается в последовательном выделении нефтепродуктов, находящихся в различной дисперсной фазе, и взвешенных веществ из сточных вод. Загрязненные сточные воды из баков-отстойников, где осаждается песок и др. крупная взвесь, насосом подаются в установку, где последовательно проходят различные стадии очистки. Первой стадией очистки сточных вод, как правило, является флотация. Выделившийся при этом нефтешлам накапливается в шламосборном кармане. При наполнении кармана нефтешламом последний сливается в герметическую емкость и перевозится на утилизацию. Затем вода поступает в тонкослойный отстойник и далее в фильтр механической очистки.

Принципиальная схема варианта очистной установки приведена на рисунке 5.

 

Рисунок 5 - Принципиальная схема очистной установки (вариант)

Концентрация загрязнений в воде, прошедшей очистку в установке, не должна превышать показателей качества воды для производственных нужд, в частности, по взвешенным веществам - 70 мг/л, нефтепродуктам - 20 мг/л. Большинство очистных установок, выпускаемых для мойки автомобилей, очищают сточные воды до показателей качества, предъявляемых к наружной мойке легковых автомобилей и автобусов (40 мг/л и 15 мг/л соответственно).

1.3.2 Бак-отстойник (песколовка)

Из общего количества загрязнений, содержащихся в сточных водах при мойке автотранспорта, 70 ¸ 90 % составляет песок размерами частиц 100 ... 3000 мкм. Объемное содержание загрязняющих веществ при мойке автомобилей различного типа приведено в таблице 2.

Таблица 2 - Содержание загрязняющих веществ в сточных водах при шланговой мойке автотранспорта


п/п

Наименование загрязняющего вещества

Тип автомобиля и концентрация, мг/л, загрязняющих веществ

легковые

грузовые >8 т

грузовые 5 - 8 т

грузовые до 5 т

1

Взвешенные вещества

до 1100

до 8700

до 7300

до 5600

2

Нефтепродукты

до 40

до 185

до 180

до 180

 

Наличие песка в сточной воде и в осадке отрицательно влияет на работу очистной установки, приводит к быстрому износу насосов и фильтров. Большинство современных очистных установок, используемых для оборудования пунктов мойки (очистки) колес автотранспорта, допускают очистку воды, подаваемую на них, при концентрации взвешенных частиц 300 ¸ 500 мг/л. Установки, имеющие встроенные тангенциальные песколовки, допускают концентрацию взвешенных веществ в сточной воде на входе до 4500 мг/л.

Для улавливания песка из сточных вод применяются песколовки. В зависимости от характера движения воды они подразделяются на горизонтальные, вертикальные, тангенциальные (с вращательным движением воды).

Горизонтальные песколовки представляют собой уширенные каналы, в которых под действием силы тяжести песок выпадает в осадок. Скорость течения воды в горизонтальных песколовках должна составлять 0,15 - 0,3 м/с. Продолжительность пребывания воды в ней - 30 - 60 с (при максимальном расходе сточных вод).

Вертикальные песколовки представляют собой цилиндрические или призматические резервуары с подводом воды в основание сооружения. Вода в таких песколовках движется вертикально вверх. Скорость восходящего потока должна быть 0,02 ¸ 0,05 м/с, а продолжительность пребывания воды - 2 ч ¸ 2,5 мин. Схематически устройство песколовки представлено на рисунках 6 и 7.

 

Рисунок 6 - Горизонтальная песколовка с ручным удалением песка

 

Рисунок 7 - Песколовка с вертикальным движением воды

Удаление задержанного песка из песколовок производится вручную при объеме его до 0,1 м3/сут. При больших объемах песок отводят на песковые площадки или шламоприемные кюветы гидроэлеваторами или Песковыми насосами. Объем пескового приямка принимают не более двухсуточного объема выпадающего осадка. Для оборудования пунктов мойки (очистки) колес автотранспорта в условиях строительной площадки, как правило, применяют песколовки (баки-отстойники) с ручным удалением осадка. Варианты конструкций песколовок и баков-отстойников приведены в приложении А.

1.3.3 Моечная установка

Моечная установка предназначена для подачи воды непосредственно на колеса и днище автомобилей, механической очистки имеющихся загрязнений струей воды и, в отдельных случаях, щеткой.

В качестве моечных установок пунктов мойки, оборудованных системой оборотного водоснабжения с очистной установкой, как правило, используются аппараты высокого давления. Они могут быть как с подогревом оборотной воды, так и без такового.

В конструкции некоторых очистных установок, предлагаемых отечественными производителями, предусмотрена установка собственных моечных высоконапорных насосов. При применении таких очистных установок моечная установка не требуется, что значительно снижает общие затраты.

При отсутствии в составе мойки колес очистной установки использование аппаратов высокого давления не допускается. Для обеспечения системы оборотного водоснабжения таких пунктов мойки колес используются насосы центробежного типа или грязевые насосы. При этом качество очистки сточных вод может быть значительно снижено, т.к. данные типы насосов менее чувствительны к механическим примесям, чем аппараты высокого давления.

В зависимости от числа моечных постов в составе моечной установки может быть один или несколько моечных пистолетов (удочек, распылительных стволов) со шлангами необходимой длины.

Характеристики некоторых моечных установок приведены в приложении А.

1.3.4 Эстакада (моечная площадка)

Транспортное средство во время обмыва колес и днища должно располагаться на специально устроенной моечной площадке или эстакаде.

Моечная площадка должна иметь габариты, позволяющие установить транспортное средство, твердое асфальтовое или бетонное покрытие, обеспечить сбор и отведение сточных вод в песколовку (бак-отстойник) и не допускать утечку сточных вод в грунт.

Эстакада для мойки колес автотранспорта устанавливается на специально подготовленном бетонном основании. Она должна- отвечать вышеперечисленным условиям и обеспечить более удобный доступ к местам обмыва.

Моечная площадка, водоотводные лотки должны иметь уклон не менее 2 - 3 % в сторону водосборного устройства. Самотечный трубопровод отвода сточных вод от моечной площадки или эстакады должен иметь диаметр не менее 150 мм и уклон не менее 3 %.

Отдельные варианты устройства эстакад приведены в приложении А.

2 РАСЧЕТ ПОТРЕБНОСТИ В ВОДЕ И ЭЛЕКТРОЭНЕРГИИ ПРИ
ЭКСПЛУАТАЦИИ ПУНКТОВ МОЙКИ (ОЧИСТКИ) КОЛЕС

2.1 Общие данные

Исходными материалами для определения потребности в воде и электроэнергии, необходимыми для обеспечения эксплуатационных нужд пунктов мойки (очистки) колес, являются:

- расчетная интенсивность движения автотранспорта в период максимального грузопотока;

- выбранная технологическая схема по водопотреблению (с оборотным циклом или без него), по виду очистки сточных вод после мойки (с очистными сооружениями или без них);

- перечень используемого оборудования.

Производительность пункта мойки (очистки) колес определяется в зависимости от количества постов мойки. Два поста мойки обеспечивают обмыв автотранспорта с двух сторон одновременно. Норматив на одного оператора пункта мойки (очистки) колес определяется опытным путем в зависимости от типов и категории автомобилей и степени их загрязнения и составляет 4 - 6 автомобилей в час. Пункт мойки (очистки) колес, оснащенный двумя постами, обеспечивает обмыв колес и днища 8 - 12 автомобилей в час.

Количество пунктов мойки (очистки) колес определяется в зависимости от интенсивности движения автотранспорта в период максимального грузопотока, как правило, при производстве земляных работ. В стесненных условиях городской застройки их число ограничивается размерами строительной площадки и не превышает 1 ¸ 2 пунктов.

2.2 Расчет потребности в воде

Действующие нормативные документы устанавливают удельные нормы расхода воды оборотного водоснабжения на мойку автотранспорта в зависимости от типа и категории автомобилей и автотранспортных предприятий. Значения норм колеблются в пределах от 0,070 до 1,340 м3 на один автомобиль. Нормы предусматривают обмыв всех элементов автомобиля. В условиях строительной площадки на пунктах мойки (очистки) осуществляется обмыв лишь колес и днища автомобиля. При этом поверхности, подлежащие обмыву, характеризуются значительным загрязнением и зависят от вида проводимых строительных работ, состояния строительной площадки.

Усредненные значения расхода воды на обработку одного автомобиля на пункте мойки (очистки) колес приведены в таблице 3.

Таблица 3 - Расход воды на обмыв колес и днища автомобилей при шланговой мойке

Тип и категория автомобиля

Расход воды, м3

аппаратами высокого давления

другими аппаратами

Легковые автомобили

0,02

0,03

Грузовые, грузоподъемностью до 5 т

0,08

0,12

Грузовые, грузоподъемностью 5 ¸ 8 т

0,12

0,18

Грузовые, грузоподъемностью более 8 т

0,20

0,30

Расчетная удельная норма расхода воды на обмыв колес и днища автомобиля, используемая для подбора оборудования пункта мойки (очистки), принимается равной:

- для моющих аппаратов высокого давления - 180 литров;

- для других систем - 270 литров.

Расчетная норма расхода воды на обмыв колес и днища автомобилей для пунктов мойки (очистки) колес в зависимости от их производительности представлена в таблице 4.

Таблица 4 - Расход воды на обмыв колес и днища автомобилей на пунктах мойки (очистки), м3/час

Виды используемых моющих аппаратов

Количество постов мойки

1

2

производительность, авт/час

4

6

8

12

Моющие аппараты высокого давления

0,72

1,08

1,44

2,16

Шланговая мойка, другие аппараты или насосы

1,08

1,62

2,16

3,24

Расход воды, необходимой для обеспечения работы пунктов мойки (очистки) колес автотранспорта, оборудованных оборотными системами, определяется потерями воды при производстве моечных процессов, которые следует принимать в размере 10 - 15 % от норм, указанных в таблице 4.

Проектирование системы водоснабжения пункта мойки (очистки) колес автотранспорта осуществляется с учетом требований СНиП 2.04.02-84* «Водоснабжение. Наружные сети и сооружения».

Расчет и проектирование сооружений для механической очистки сточных вод (песколовок, баков-отстойников) и обработки их осадков следует выполнять на основании СНиП 2.04.03-85 «Канализация. Наружные сети и сооружения».

2.3 Расчет потребности в электроэнергии

Общая потребность в электроэнергии на пункте мойки (очистки) колес автотранспорта строительной площадки складывается из затрат на освещение, обеспечение работы электродвигателей оборудования пункта, электронагревательные элементы.

В зависимости от типа моечной и очистной установок, насосов, точки подключения источнику питания определяется установленная мощность, сечение проводов и кабеля.

Территория пункта мойки (очистки) колес автотранспорта должна иметь общее рабочее освещение (освещенность не менее 2 лк), а также местное освещение эстакады (моечной площадки) и блока управления очистной установки. При этом освещенность указанных мест должна быть не менее 10 лк независимо от применяемых источников света.

Электрическое освещение пункта мойки (очистки) колес должно питаться от постоянной или временной сети переменного тока строительной площадки:

- для осветительных приборов (прожекторов и светильников) общего освещения напряжением не более 220 В;

- для светильников стационарного местного освещения, установленных на доступной для случайных прикосновений высоте, а также попадания воды, - 12 В.

Осветительные приборы, на которые возможно случайное попадание воды, должны иметь герметичное исполнение.

3 ПОРЯДОК СОГЛАСОВАНИЯ КОНСТРУКТИВНОГО РЕШЕНИЯ
ПУНКТА МОЙКИ (ОЧИСТКИ) КОЛЕС АВТОТРАНСПОРТА

3.1 На стадии разработки проекта организации строительства (ПОС)

3.1.1 На строительных генеральных планах основного и подготовительных периодов в составе ПОС предусматриваются пункты мойки (очистки) колес автотранспорта. Количество пунктов должно соответствовать числу рабочих выездов со строительной площадки.

3.1.2 В пояснительной записке к ПОС должны быть отражены (с учетом специфики, объемов строительно-монтажных работ и продолжительности строительства объекта) основные требования к обустройству пунктов мойки (очистки) колес:

- по водопотреблению (с оборотным циклом или без него);

- по виду очистки сточных вод после мойки колес автотранспорта и утилизации отходов (с очистными сооружениями или без них);

- по технологическому оборудованию (рекомендуемый перечень оборудования с указанием основных технических параметров).

3.1.3 Согласование технологической схемы и конструктивного решения пункта мойки (очистки) колес автотранспорта осуществляется в ходе согласования проектной документации в порядке, установленном «Положением о едином порядке предпроектной и проектной подготовки строительства в г. Москве», утвержденным Распоряжением Мэра Москвы № 378-РМ от 11.04.2000 г. При этом пункты мойки, не оборудованные системой оборотного водоснабжения, со сбросом воды после обмыва колес в сеть дождевой канализации, в обязательном порядке согласовываются с Государственным унитарным предприятием «Мосводосток» и Московским государственным предприятием «Мосводоканал».

3.2 На стадии разработки проекта производства работ (ППР)

3.2.1 В составе ППР предусматривается раздел, посвященный устройству и эксплуатации пунктов мойки (очистки) колес, с обоснованием его привязки, деталировкой применяемых конструкций, расчетом необходимой мощности, производительности и конкретным подбором рекомендуемого ПОС оборудования по расчетным параметрам, с привязкой к действующим сетям и коммуникациям. При привязке необходимо, по возможности, использовать мобильные инвентарные пункты мойки (очистки) колес заводского изготовления с оборотным водоснабжением и механической очисткой сточных вод отечественных производителей (приложение Б).

3.2.2 Пояснительная записка ППР должна давать необходимые обоснования и технико-экономические показатели по выбранному варианту пункта мойки (очистки) колес, описания технологического процесса - от подачи транспортного средства до его выхода с указанием мероприятий по утилизации отходов (приложение В).

3.2.3 При устройстве пунктов мойки (очистки) колес без системы оборотного водоснабжения обязательно получение технических условий на временное подключение к инженерным сетям и коммуникациям, а также заключение договоров с МГУП «Мосводоканал» на отпуск воды для временного водоснабжения и ГУП «Мосводосток» на прием сточных вод. При не выполнении указанных условий ордер на выполнение строительно-монтажных работ не выдается.

4 ПОСАДКА ПУНКТА МОЙКИ (ОЧИСТКИ) КОЛЕС НА
СТРОИТЕЛЬНОМ ГЕНЕРАЛЬНОМ ПЛАНЕ

4.1 Место расположения пункта мойки (очистки) колес

Каждый рабочий выезд со строительной площадки оборудуется пунктом мойки (очистки) колес автотранспорта. Комплект оборудования пункта, как правило, располагается на территории строительной площадки вблизи ворот на выезде.

Место установки эстакады или размещения моечной площадки определяется в зависимости от принятой на строительной площадке схемы движения автотранспорта и ширины временных (постоянных) автодорог. При этом эстакада устанавливается таким образом, чтобы не создавать помех въезжающему на строительную площадку автотранспорту. Варианты размещения постов мойки представлены на рисунке 8.

Конкретная схема размещения комплекта оборудования пункта мойки (очистки) колес автотранспорта зависит от условий строительной площадки, ее площади и конфигурации, а также принятой технологической схемы работы пункта.

Вариант схемы размещения комплекта оборудования пункта мойки (очистки) колес на базе очистной установки «Мойдодыр» представлен на рисунке 9, а экспликация оборудования - в таблице 5.


а, в, д) - при однорядном движении транспорта (ширина дороги 3,0 ¸ 3,5 м) и совмещении выезда с въездом;
б) - при однорядном движении транспорта с отдельным выездом; г) - при двухрядном движении транспорта.

Рисунок 8 - Варианты размещения постов мойки

 

Рисунок 9 - Схема размещения комплекта оборудования для
мойки колес автотранспортных средств


Таблица 5 - Экспликация оборудования очистной установки «Мойдодыр»

Поз.

Наименование

Ед. изм.

Количество

1

Установка «Мойдодыр-К-4.5»

шт.

1

2

Песколовка

шт.

1

3

Насос погружной (N=1 кВт)

шт.

1

4

Насос моечный высоконапорный

шт.

1

4.2 Подключение к действующим инженерным сетям (водоснабжения,
канализации, электроснабжения)

4.2.1 Пункт мойки (очистки) колес автотранспорта обеспечивается водой от сети водоснабжения строительной площадки. В отдельных случаях, на подготовительном периоде строительства, вода для компенсации потерь в оборотных системах может доставляться автоцистернами или другими наливными емкостями.

Водопроводную сеть для водоснабжения пунктов мойки (очистки) колес автотранспорта устраивают из стальных (газовых) труб диаметром 25 ¸ 50 мм. При незначительном расходе воды на компенсацию потерь в оборотных системах пунктов мойки (очистки) колес автотранспорта допускается применение резиновых и резино-тканевых шлангов.

Трубы укладываются в грунт на глубину 30 см или непосредственно на поверхности земли, предусмотрев защиту их от механических повреждений. С наступлением холодного периода года, при отрицательных температурах, вода из труб (шлангов) сливается.

4.2.2 Самотечный трубопровод отвода сточных вод в дождевую канализацию от пункта мойки (очистки) колес автотранспорта, без системы оборотного водоснабжения, устраивают из стальных (газовых) труб, реже чугунных или асбестоцементных, диаметром не менее 150 мм с уклоном не менее 3 % в сторону колодца.

4.2.3 Устройство внутренних сетей водопровода и канализации пункта мойки (очистки) колес автотранспорта зависит от принятой схемы работы пункта, используемого оборудования и рекомендаций завода-изготовителя очистной установки.

Вариант схемы привязки оборудования пункта мойки (очистки) колес автотранспорта на основе очистной установки ИНСТЭБ-МНФ-АМ представлен на рисунке 10.


 

Экспликация оборудования

Экспликация трубопроводов

Обозначение

Наименование

Обозначение

Наименование

Dy, мм

I

Флотатор ИНСТЭБ-МНФ-АМ

1

Подача воды на гидроэлеватор

20

II

Водоприемный лоток

2

Подача воды от гидроэлеватора

32

III

Бак-отстойник

3

Сброс отстоенной воды из шламонакопителя

32

IV

Песколовка

4

Подача очищенной воды на мойку автомобилей

15

V

Гидроэлеватор

5

Отбор очищенной воды без напора

32

6

Сброс нефтешлама

32

7

Общий коллектор сброса в песколовку

32,50

К3

Подача воды из водоприемного лотка в песколовку

150

В1

Хозяйственно-питьевой водопровод

32

Рисунок 10 - Схема привязки оборудования пункта мойки (очистки) колес автотранспорта


4.2.4 Электроснабжение пункта мойки (очистки) колес автотранспорта осуществляется от временной сети низкого напряжения строительной площадки. Временные источники электроснабжения - передвижные электростанции - используются, как правило, в подготовительный период строительства. Временные сети электроснабжения на территории строительной площадки устраивают преимущественно с воздушной подвеской проводов, применяя инвентарные элементы электросетей, переносные опоры, прожекторные мачты и др.

4.2.5 Электрическая схема пункта мойки (очистки) колес автотранспорта выбирается в зависимости от типа используемого оборудования и условий строительной площадки. Пример принципиальной электрической схемы пункта представлен на рисунке 11.


 

1 - инвентарное распределительное устройство наружной установки; 2 - шкаф управления на 3 фидера;
3 - ящик с понижающим трансформатором; 4 - контур заземления

Рисунок 11 - Схема электрическая принципиальная


В целях защиты обслуживающего персонала от попадания под напряжение все металлические нетоковедущие части электрооборудования присоединяются в защитному проводу (РЕ).

4.3 Устройство временных автодорог и площадок для автотранспорта

4.3.1 Временные автомобильные дороги и площадки для автотранспорта устраиваются в соответствии с ПОС и строительным генеральным планом подготовительного периода с учетом экологических требований.

4.3.2 Ширина временных автомобильных дорог принимается: 6 ¸ 7 м при двухполосном движении; 3,5 м с уширением на 3,0 ¸ 3,5 м в местах стояночных площадок при однополосном движении.

Радиусы закругления временных дорог зависят от габарита грузов и транспортных средств, применяемых для их доставки, и принимаются 12 ¸ 18 м. В стесненных условиях строительной площадки при применении автомашин без прицепов допускается принимать радиус закругления временных дорог 9 м.

Длина площадки пункта мойки (очистки) колес в зависимости от числа машин одновременно стоящих на ней (на площадке предварительной очистки и на эстакаде), их габаритов и радиусов поворотов принимается 12 ¸ 21 м. Ширина площадки принимается в зависимости от размеров эстакады 3,5 ¸ 4,0 м.

Габариты и радиусы поворотов основных автотранспортных средств представлены в приложении Г.

4.3.3 Временные автомобильные дороги и площадки, как правило, устраиваются из железобетонных дорожных плит, приведенных в таблице 6.

4.3.4 Производство работ по устройству временных автомобильных дорог и площадок осуществляется в соответствии с ППР подготовительного периода и технологическими картами.

Вариант схемы устройства дороги из сборных железобетонных плит представлен на рисунке 12.

Таблица 6 - Плиты железобетонные для временных дорог


п/п

Марки элементов

Размеры, мм

Масса, т

Конфигурация

1

2П60.35-10

6000 ´ 3500 ´ 140

7,33

Прямоугольная

2

2П60.30-10

6000 ´ 3000 ´ 140

6,28

- « -

3

2П60.18-10

6000 ´ 1750 ´ 140

3,65

- « -

4

2П35.28-10

3500 ´ 2750 ´ 170

4,08

- « -

5

2П30.18-10

3000 ´ 1750 ´ 170

2,20

- « -

6

2П18.18-10

1750 ´ 1750 ´ 160

1,20

- « -

7

2П18.15-10

1750 ´ 1500 ´ 160

1,03

- « -

8

2ПТ55-10

5500 ´ 2000 / 1500 ´ 140

3,35

Трапецеидальная

9

2ПТ35-10

3500 ´ 2000 / 1500 ´ 170

2,58

- « -

10

ПД-25-12-1,4

2520 ´ 1200 ´ 140

0,26

Прямоугольная

11

ПД-30-30-1,4

3100 ´ 2900 ´ 140

0,72

- « -

12

ПД-32-12-1,6

3200 ´ 1200 ´ 160

1,53

- « -

13

ПД-63-12-1

6300 ´ 1190 ´ 220

4,04

- « -

14

ПД-47-12-2

4700 ´ 1190 ´ 180

2,51

- « -

15

ПД-43-12-1

4300 ´ 1190 ´ 220

2,73

- « -

16

ПД-27-16-2

2700 ´ 1590 ´ 180

1,41

- « -

17

ПД-27-12-2

2700 ´ 1190 ´ 180

1,18

- « -

18

ПАГ-18ВСА

6000 ´ 200 ´ 180

1,93

- « -

19

ПДПЗ-1,75-1

3000 ´ 1750 ´ 170

2,2

- « -

20

ДПН-25

2600 ´ 1530 ´ 160

1,58

- « -

21

2П30.18-30

3000 ´ 1750 ´ 170

2,31

- « -

22

2П30.12-30

3000 ´ 1200 ´ 160

1,43

- « -

23

ПДГ-2,0-6са

6000 ´ 2000 ´ 140

4,20

- « -

24

ПДП3´1,75

2980 ´ 1750 ´ 170

2,20

- « -

 

Рисунок 12 -Схема устройства дороги из сборных железобетонных плит (вариант)

5 УКАЗАНИЯ ПО ЭКСПЛУАТАЦИИ ПУНКТОВ
МОЙКИ (ОЧИСТКИ) КОЛЕС

5.1 Основные требования к эксплуатации

5.1.1 Монтаж оборудования пункта мойки (очистки) колес автотранспорта осуществляется на специально подготовленной для этих целей площадке согласно технологической схеме. Вариант схемы представлен в приложении Д.

По окончании монтажа оборудования осуществляется монтаж внешних трубопроводов и электрических кабелей согласно рабочей документации.

5.1.2 Перед началом работы моечного комплекса необходимо подсоединить все агрегаты, входящие в состав пункта мойки (очистки) колес, проверить состояние изоляции проводов, наличия заземления, закрыть все задвижки и краны, заполнить водой очистную установку, песколовку (баки-отстойники), водозаборный бак.

Включить насос и убедиться, что вода из песколовки (бака-отстойника) подается в установку. Убедиться, что насос работает исправно и в системе есть необходимое для нормальной работы давление.

5.1.3 Транспортные средства перед выездом со строительной площадки останавливаются перед пунктом мойки (очистки) колес на специально обозначенной дорожным знаком «Проезд без остановки запрещен» условной стоп-линии. Осматриваются диспетчером пункта мойки, и в зависимости от степени загрязнения, направляются непосредственно на эстакаду (моечную площадку) или площадку предварительной очистки. Условно чистые автомобили выезжают со строительной площадки, минуя пункт мойки колес.

Сильно загрязненный автотранспорт останавливается на площадке перед эстакадой (моечной площадкой). Во избежание чрезмерного засорения системы оборотного водоснабжения колеса и днища автомобилей перед обмывом очищаются с помощью щеток и скребков от налипшего грунта и др. материалов.

По окончании механической очистки автотранспорт направляется на эстакаду (моечную площадку).

Обмыв колес и днища автотранспорта с помощью моечной установки осуществляется на эстакаде (моечной площадке). При этом заезд и выезд с эстакады (моечной площадки) осуществляется по команде оператора пункта мойки (очистки) колес.

Схемы помывки (очистки) колес и днища автотранспорта представлены на рисунке 13.

Количество персонала пункта мойки (очистки) колес зависит от интенсивности движения транспорта и конструктивных особенностей очистной и моечной установок, и, как правило, составляет 1 ¸ 3 оператора (машиниста моечной машины).

5.1.4 Удаление песка из песколовки (баков-отстойников) производится по мере его накопления, но не реже одного раза в сутки.

Уборка песка, камней и других материалов из лотков (поддонов) эстакады и моечной площадки производится после обмыва (очистки) колес и днища каждого автомобиля.

Шлам в виде мелких фракций песка и глинистых частиц, образующийся в очистной установке, удаляется в порядке и сроки, установленные документацией завода-изготовителя на данный тип установки.

Накопление и фильтрация водосодержащего шлама, удаляемого из оборудования и с площадки пункта мойки (очистки), осуществляется в шламоприемном кювете (приямке в грунте). По окончании строительства кювет (приямок) засыпается грунтом и утрамбовывается.

5.1.5 Нефтепродукты, отделяемые от загрязненной воды в очистной установке, удаляются в порядке и сроки, установленные паспортом или инструкцией по эксплуатации на данную установку и накапливаются в закрытой емкости.

По мере накопления нефтепродукты вывозятся для утилизации на специализированные предприятия или на пункты сбора. При этом строительная организация заключает договор на прием нефтепродуктов с указанными предприятиями.


Рисунок 13 - Технологическая схема помывки (очистки) колес автотранспорта


На пунктах мойки (очистки) колес без систем оборотного водоснабжения со сбросом воды после обмыва колес в сеть дождевой канализации, как показано на рисунке 4, а также с системой оборотного водоснабжения, но без очистной установки, как показано на рисунке 2, сбор нефтепродуктов, образующихся в виде пленки на поверхности загрязненной воды в баке-отстойнике (песколовке), осуществляется вручную с помощью ковша или специального совка.

5.1.6 Техническое обслуживание оборудования пункта мойки (очистки) колес автотранспорта осуществляется в порядке, определенном паспортами и инструкциями по эксплуатации, разработанными заводами-изготовителями.

5.2 Меры безопасности

5.2.1 К эксплуатации установок и оборудования пунктов мойки (очистки) колес допускаются лица не моложе 18 лет, прошедшие медицинский осмотр и признанные годными к выполнению данных работ, прошедшие обучение безопасным методам и приемам работ, инструктаж по охране труда, стажировку на рабочем месте, проверку знаний требований охраны труда.

5.2.2 Территория пункта мойки (очистки) колес автотранспорта должна быть подготовлена для обеспечения безопасного производства работ согласно СНиП 12-03-2001 «Безопасность труда в строительстве. Часть 1. Общие требования».

Обустройство пункта осуществляется в ходе выполнения работ подготовительного периода.

Окончание подготовительных работ на строительной площадке должно быть принято по акту, оформленному согласно приложению Е или приложению Ж.

5.2.3 Персонал пункта мойки должен быть обеспечен средствами индивидуальной защиты в соответствии с типовыми отраслевыми нормами, утвержденными Министерством труда и социального развития Российской Федерации. Перечень рекомендованных индивидуальных средств защиты представлен в приложении И.

5.2.4 Оборудование, средства механизации, ручные машины и инструмент пунктов мойки (очистки) колес должны соответствовать требованиям государственных стандартов по безопасности труда.

Запрещается их эксплуатация без предусмотренных их конструкцией ограждающих устройств, блокировок, систем сигнализации, а также наличия неисправностей, при которых эксплуатация средств механизации согласно документации завода-изготовителя запрещается.

5.2.5 При эксплуатации оборудования пункта мойки (очистки) колес персонал должен выполнять требования по охране труда и меры безопасности, указанные в паспортах и инструкциях заводов-изготовителей.

5.2.6 Территория пункта мойки (очистки) колес должна содержаться в чистоте и порядке, очищаться от мусора и снега.

5.2.7 Допуск на территорию пункта работников, не занятых на работах по обмыву (очистке) колес автотранспорта, запрещается.

5.2.8 Пункт мойки (очистки) колес, подъезды и подходы к нему в темное время суток должны быть освещены.

5.2.9 Шламоприемные кюветы, баки-отстойники, водозаборные баки должны быть закрыты крышками, щитами или ограждены.

5.2.10 Эксплуатация электроустановок пункта мойки (очистки) колес должна осуществляться в соответствии с требованиями правил устройства электроустановок, межотраслевых правил охраны труда при эксплуатации электроустановок потребителей, правил эксплуатации электроустановок потребителей.

5.2.11 Обмыв (очистка) колес и днища автомобиля при работающем двигателе внутреннего сгорания запрещается.

5.2.12 Движение автотранспорта на территории пункта мойки (очистки) колес осуществляется под наблюдением и по команде одного из работников пункта.

6 ПЕРЕЧЕНЬ ИСПОЛЬЗОВАННЫХ НОРМАТИВНЫХ
ДОКУМЕНТОВ И ЛИТЕРАТУРЫ

1 СНиП 2.04.02-84* Водоснабжение. Наружные сети и сооружения.

2 СНиП 2.04.03-85 Канализация. Наружные сети и сооружения.

3 СНиП 2.05.02-85 Автомобильные дороги.

4 СНиП 12-03-2001 Безопасность труда в строительстве. Часть 1. Общие требования.

5 ГОСТ 12.1.004-91 Пожарная безопасность. Общие требования безопасности.

6 ГОСТ 12.1.046-85 Строительство. Нормы освещенности строительных площадок.

7 ГОСТ 12.2.003-91 Оборудование производственное. Общие требования безопасности.

8 ГОСТ 12.2.007.0-75 Изделия электротехнические. Общие требования безопасности.

9 ВСН 01-89 Предприятия по обслуживанию автомобилей.

10 ОНТП-01-91 Предприятия автомобильного транспорта. Росавтотранс.

11 ППБ 01-93** Правила пожарной безопасности в Российской Федерации.

12 Положение о едином порядке предпроектной и проектной подготовки строительства в г. Москве. Распоряжение Мэра Москвы № 378-РМ от 11.04.2000 г.

13 Правила производства земляных и строительных работ, прокладки и переустройства инженерных сетей и коммуникаций в г. Москве. Постановление Правительства Москвы № 603 от 08.08.2000 г.

14 Об ужесточении требования по устройству и эксплуатации пунктов очистки (мойки) колес автотранспорта на строительных площадках города. Распоряжение заместителя Премьера Правительства Москвы от 14.12.2000 г. № 1030-РЗП.

15 Об организации пунктов мойки колес автотранспортных средств. Письмо Департамента природопользования и охраны окружающей среды Правительства Москвы от 16.01.2002 г. № ИН 5-18-4/2.

16 Справочник по очистке природных и сточных вод. Л.Л. Пааль, Я.Я. Кару и др. М., Высшая школа, 1994 г.

17 В.И. Калицун, Ю.М. Ласков и др. Лабораторный практикум по водоотведению и очистке сточных вод. М., Стройиздат, 2001 г.

18 Гидравлика, водоснабжение и канализация городов. И.В. Прозоров, Г.И. Николадзе, А.В. Минаев. М., Высшая школа, 1975 г.

19 Краткий автомобильный справочник. А.Н. Понизовкин, Ю.М. Власко, М.В. Ляликов и др. М., АО Трансконсалтинг, НИИАТ, 1994 г.

 

Приложение А

(справочное)

Технические характеристики оборудования для устройства
пунктов мойки (очистки) колес автотранспорта

 

Содержание приложения А

 

1 Установки комплексной очистки сточных вод УКО

Установки комплексной очистки сточных вод УКО предназначены для локальной очистки сточных вод автомоек, гаражей, сервисов технического обслуживания авто- и мототранспорта, ливневых вод автотранспортных предприятий, автозаправочных станций и т.д. от нерастворенных нефтепродуктов, жиров и взвешенных веществ.

Характеристики обрабатываемых сточных вод приведены в таблице А.1.

Таблица А.1 - Характеристики сточных вод

№ п/п

Наименование среды

Исходные

После очистки

Температура

концентрация нефтепродуктов, мг/л

концентрация взвешенных веществ, мг/л

нефтепродукты, мг/л

взвешенные вещества, мг/л

мин, С°

макс, С°

1

Вода, загрязненная нефтепродуктами и взвешенными веществами

100

2000

5

25

+ 1,0

+ 40

Установки изготовлены в климатическом исполнении УХЛ и категории эксплуатации 3.1 по ГОСТ 15150-69.

Установки укомплектованы насосом КМ 50-32-125.

Технические характеристики установок представлены в таблице А.2.

Таблица А.2 - Технические данные (номинальные параметры установок)

Наименование параметров

Значение параметров

Модификация установок

УКО-1

УКО-1к

УКО-2

Производительность установки по очищаемой воде, м3

1,0

1,0

2,0

Установленная электрическая мощность, кВт

2,2

1,5

1,5

Степень очистки, %

99

99

99

Рабочее давление водовоздушной смеси, МПа

0,15 - 0,2

0,15 - 0,2

0,15- 0,2

Габаритные размеры, мм:

длина

2500

1500

2600

ширина

1900

650

700

высота

2300

1290

1850

Масса установки, кг:

сухая

2000

200

2000

залитая

5500

1200

5500

Частота тока электрической сети, Гц

50

50

50

Напряжение, В

380

380

380

 

Комплект поставки установок представлен в таблице А.3.

Таблица А.3 - Комплектность поставки установок


п/п

Наименование

Ед. изм.

УКО-1

УКО-1к

1 УКО-2

1

Установка в сборе

шт.

1

1

1

2

Фильтр механический

шт.

1

-

1

3

Насос КМ 50-32-125

шт.

1

1

1

4

Контейнер утепленный

шт.

1

-

-

5

Тепловая пушка

шт.

1

-

-

6

Флотационная емкость

шт.

-

-

1

Принципиальные схемы установок УКО приведены на рисунках А.1, А.2, А.3.

 

Рисунок А.1 - Установка комплексной очистки сточных вод УКО-1

 

Рисунок А.2 - Установка комплексной очистки сточных вод УКО-1к

 

Рисунок А.3 - Установка комплексной очистки сточных вод УКО-2

Разработчик:

ООО фирма «РиС»

Россия, 109028. г. Москва

Земляной Вал, д. 50а

Тел.: (095) 916-63-84,

Факс: (095) 916-63-94

 

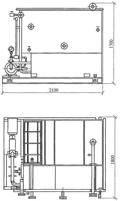
2 Очистная установка «Мойдодыр»

Очистная установка «Мойдодыр» предназначена для очистки сточных вод от песка, нефтепродуктов, взвешенных веществ и может быть использована на строительных площадках, в автопарках и на других объектах для мойки автотранспортных средств и строительной колесной техники.

Характеристики обрабатываемых сточных вод приведены в таблице А.4.

Таблица А.4 - Характеристики сточных вод


п/п

Наименование среды

Концентрация, мг/л

исходная

после очистки

нефтепродуктов

взвешенных веществ

нефтепродуктов

взвешенных веществ

1

Вода, загрязненная нефтепродуктами и взвешенными веществами

200

4500

20

200

Комплект состоит из очистной установки с высоконапорным моечным насосом (отечественного или импортного производства) и песколовки с погружным насосом.

Технические данные комплекта приведены в таблице А.5.

Таблица А.5 - Технические данные комплекта


п/п

Наименование параметров

Количественные показатели

1

Производительность по очищенной воде, м3

До 4,5

2

Размеры, мм (габаритные):

установки

3610 ´ 1760 ´ 1430 (высота)

песколовки

1394 ´ 900 ´ 1000 (высота)

3

Масса без воды, кг

1290 + 330 (песколовка)

4

Объем воды в установке, м3

4,2

5

Обслуживающий персонал, чел.

1 - 2

6

Установленная мощность, кВт

10

В зависимости от конкретных условий строительной площадки комплект оборудования может быть дополнен илосборным баком, баком запаса воды и автономной дизельной электростанцией. Конструкция очистной установки и баков в стесненных условиях позволяет устанавливать их в 3 яруса.

Варианты размещения элементов очистной установки приведены на рисунках А.4, А.5, А.6.

 

Разработчик:

ЗАО Экологический промышленно-

финансовый концерн «Мойдодыр»,

Россия, 107370, г. Москва,

Открытое ш., 48а

Тел./факс: (095) 168-73-51;

Тел.: (095) 168-73-56, 162-07-69.

 


1 - емкость, 2 - нефтеприемный резервуар; 3 - электрокалорифер;
4 - насос высокого давления; 5 - шланги с моющими насадками

Рисунок А.4 - Очистная установка «Мойдодыр»

 

Рисунок А.5 - Вариант комплектации установки

 

1 - отапливаемый бокс; 2 - место отдыха персонала; 3 - очистная установка;
4 - бак запаса воды

Рисунок А.6 - Размещение установки в боксе


3 Установки флотационные серии «ИНСТЭБ»

Установки флотационные серии «ИНСТЭБ» предназначены для очистки сточных вод на мойках автомобилей от масел, нефтепродуктов, взвешенных веществ до норм по ОНТП 01-86. Характеристики обрабатываемых сточных вод приведены в таблице А.6.

Таблица А.6 - Характеристики сточных вод


п/п

Наименование среды

Концентрация, мг/л

исходная

после очистки

нефтепродуктов

взвешенных веществ

нефтепродуктов

взвешенных веществ

1

Вода, загрязненная нефтепродуктами и взвешенными веществами

100

500

4

25

Установки изготовлены по ТУ 4859-11085815-96.

Технические характеристики установки приведены в таблице А.7.

Установка очистки сточных вод производительностью 5 м3/час комплектуется флотатором ИНСТЭБ-1/2,5 (УФ2,5/120) и одноступенчатым фильтром ИНСТЭБ-ФВ-20, предназначенным для доочистки сточных вод.

Установки стыкуются с аппаратами высокого давления (типа WAP, Керхер).

Таблица А.7 - Технические характеристики


п/п

Наименование параметров

Ед. изм.

Значение параметров

Модификация установок

ИНСТЭБ

ИНСТЭБ

Комплект ИНСТЭБ

МНФ-АУ

МНФ-АМ

УФ 2,5/120

ФВ-20

1

Производительность

м3

1,0

2,0

2 ¸ 5

2 ¸ 5

2

Установленная мощность

кВт

5,5

5,5

5,5

-

3

Потребляемая мощность

кВт

2,4

2,4

2,4

-

4

Давление водовоздушной смеси на выходе из сатуратора, не менее

МПа

0,6

0,3

0,3

-

5

Габаритные размеры

мм

длина

1720

2100

2980

1480

ширина

1330

1800

1980

1227

высота

1970

1700

2220

1900

6

Масса нетто

кг

690

1100

2000

495

7

Масса брутто (с водой)

кг

2590

4400

6400

2514

8

Число степеней очистки

шт.

-

2

2

-

Принципиальные схемы установок ИНСТЭБ и одноступенчатого фильтра приведены на рисунках А.7, А.8, А.9, А.10.

 

Разработчик:

ЗАО Институт экологической безопасности,

Россия, 305001, г. Курск, ул. Белинского, 23-А

Тел./факс: (07122) 2-33-69; (07122) 56-67-77

Тел.: (07122) 2-11-74

 

Рисунок А.7 - Установка ИНСТЭБ-МНФ-АУ

 

Рисунок А.8 - Установка ИНСТЭБ-МНФ-АМ

 

Рисунок А.9 - Установка ИНСТЭБ-1/2.5 (УФ 2.5/120)

 

Рисунок А.10 - Фильтр ИНСТЭБ -ФВ-20

 

4 Песколовка комплекта «Мойдодыр»

Концентрация загрязнений в сточной воде, на входе в песколовку, мг/л, не более:

- по взвешенным веществам - 30000;

- по нефтепродуктам - 200

Концентрация загрязнений в сточной воде, на выходе из песколовки, мг/л, не более:

- по взвешенным веществам - 4500;

- по нефтепродуктам - 200

Размеры, мм (габаритные) - 1394´900´1000 (высота)

Масса без воды, кг - 330

Производительность, м3/ч - до 4,5.

Принципиальная схема песколовки представлена на рисунке А.11.

 

1 - корпус; 2 - емкость; 3 - грязевой насос

Рисунок А.11 - Песколовка

 

Разработчик:

ЗАО Экологический промышленно-

финансовый концерн «Мойдодыр»,

Россия, 107370, г. Москва,

Открытое ш., 48а

Тел./факс: (095) 168-73-51;

Тел.: (095) 168-73-56,162-07-69.

 

5 Отстойники конструкции «Автосток М»

В комплект отстойников сточной воды входят: бак-отстойник № 1 и бак-отстойник № 2. Концентрация загрязнений в сточной воде, на входе в бак-отстойник № 1, мг/л, не более:

- по взвешенным веществам - 30000;

- по нефтепродуктам - 200

Концентрация загрязнений в сточной воде, на выходе из бака-отстойника № 2, мг/л, не более:

- по взвешенным веществам - 5000;

- по нефтепродуктам - 200 Размеры, мм (габаритные):

- бак-отстойник № 1 - Æ 920´1350 (высота);

- бак-отстойник № 2 - 2308´1808´2009 (высота)

Масса без воды, кг:

- бак-отстойник № 1 - 205;

- бак-отстойник № 2 - 692

Производительность, м3/ч - до 4,5.

Принципиальная схема установки баков-отстойников представлена на рисунке А.12.

 

1 - бак-отстойник № 1; 2 - бак-отстойник № 2

Рисунок А.12 - Отстойники

 

Разработчик:

ЗАО Экологический центр «Эко»;

ОАО ПКТИпромстрой,

Россия, 125040, г. Москва,

Ленинградский пр-т, 26

Тел./факс: (095) 214-95-53;

Тел.: (095) 214-33-28, 214-96-76.

 

6 Эстакады для мойки колес автотранспорта

Эстакады, представленные на рисунках А.13, А.14, А.15, предназначены для оборудования пунктов мойки автотранспорта на строительных площадках.

Основные технические характеристики представлены в таблице А.8.

Таблица А.8 - Основные технические характеристики

Наименование

Ед. изм.

Шифр

1712.00.000

1868.00.000

1868.00.000

№ 1

№ 2

Колея (по осям площадок)

м

1,9

1,9

1,9

Высота проезжей части эстакады

мм

243

282

282

Габаритные размеры:

ширина

мм

3200

3900

3900

длина

мм

8840

3900

6500

высота

мм

378

477

477

Масса

кг

4633

1620

3330

Емкость поддонов

м3

-

1,8

3,6

Эстакады с поддоном предназначены для оборудования пунктов мойки, когда условия строительной площадки не позволяют заглубить песколовку (отстойник) в землю. Поддон выполняет роль горизонтальной песколовки.

На эстакады разрешается заезжать автомобильному транспорту с максимальной нагрузкой на ось - 10 т.

Углы въезда (съезда) на эстакаду не превышают 20°.

Эстакады сборно-разборные.


Рисунок А.13 - Эстакада (1712.00.000)

 

1 - горизонтальная площадка, 2 - поддон, 3 - пандус

Рисунок А.14 - Эстакада (1868.00.000) № 1

 

Рисунок А.15 - Эстакада (1868.00.000) № 2

 

Разработчик:

ОАО ПКТИпромстрой

Россия, 125040, г. Москва,

Ленинградский пр-т, 26

Тел./факс: (095) 214-95-53;

Тел.: (095) 214-33-28, 214-96-76.

 


7 Установки моечные

а) Профессиональные мойщики высокого давления немецкого концерна «Kercher»


п/п

Модель

Поток, л/ч

Давление, Бар

Мощность, кВт

Масса, кг

Без нагрева воды, 380 В, 50 Гц

1

HD 690 Euro

240 - 700

20 - 160

4,7

26,5

2

HD 895 S

150 - 850

10 - 195

6,5

37,0

3

HD 1090

300 - 900

10 - 230

8,4

55,0

4

HD 1090 VEX

300 - 900

10 - 150

8,4

55,0

С нагревом воды, 380 В, 50 Гц

5

HDS 798C

350 - 750

30 - 170

5,6

94,0

6

HDS 695S

400 - 800

30 - 150

6,4

117,0

7

HDS 895 (VEX)

470 - 1000

30 - 170

6,7

133,0

б) Установки моечные (завод Автоспецоборудования, г. Бежецк) шланговые


п/п

Модель

Поток, л/ч

Давление, Бар

Мощность, кВт

Масса, кг

1

М 125

720

60

2,2

198,0

2

М 217

4200

15

7,5

3

М 217/1112

4200

14

7,5

в) Установки моечные Oertzen (Германия)


п/п

Модель

Поток, л/ч

Давление, Бар

Мощность, кВт

Масса, кг

Без нагрева воды, «Oertzen 31»

1

310 X

300 - 600

130

3,1

29

2

315 X

300 - 900

150

4,8

29

3

317

300 - 960

160

4,7

52

4

317si-200

300 - 960

210

6,6

60

С нагревом воды, «Oertzen Compact»

5

Red Fire 100

520

40 - 100

77

6

Compact 130

600

30 - 130

115

7

Compact 180

750

30 - 180

119

г) Машины моечные Sibitec (Италия)


п/п

Модель

Поток, л/ч

Давление, Бар

Мощность, кВт

Масса, кг

Без нагрева воды, 220 В, 50 Гц

1

1501 М

420

100

1,8

14

2

RDS 1800 M

480

120

2,7

38

3

RDS 2300 М

500

160

3,0

38

С нагревом воды, 220 В, 50 Гц

4

DS 1620 M

330 - 660

30 - 110

3,2

95

д) Установки моечные «Magnum» с нагревом воды до 120°С; 380 В, 50 Гц


п/п

Модель

Поток, л/ч

Давление, Бар

Мощность, кВт

Масса, кг

1

Magnum 160

930

20 - 160

4,9

124

2

Magnum 190

960

20 - 220

6,6

134

3

S Magnum 200

960

30 - 220

6,6

139

4

S Magnum 250

700 - 1320

25 - 210

8,6

185

 

Приложение Б

(справочное)

Системы оборотного водоснабжения для пунктов мойки автотранспорта


п/п

Наименование, модель

Производительность (м3/ч)

Разработчики

1

Установка комплексной очистки сточных вод:

ООО фирма «РиС»,

Россия, г. Москва, Земляной вал, д. 50а

УКО-1

1,0

Тел.: 916-63-84

УКО-1к

1,0

Факс: 916-63-94

УКО-2

2,0

2

Очистные установки «Мойдодыр»:

ЗАО Экологический промышленно-финансовый концерн «Мойдодыр»,

МД-К-4,5

4,5

Россия, 107370, г. Москва, Открытое ш., 48а

МД-К-4,5 (В)

1,0

Тел./факс: (095) 168-73-51

Тел.: 168-73-56, 162-07-69

3

Установки флотационные:

ЗАО Институт экологической безопасности,

ИНСТЭБ-МНФ-АУ

1,0

Россия, 305001, г. Курск, ул. Белинского, 23а

ИНСТЭБ-МНФ-АМ

2,0

Тел./факс: (07122) 2-33-69

ИНСТЭБ-1/2.5 (УФ 2.5/120)

2 - 5,0

(07122) 56-67-77

ИНСТЭБ01/2.2

0,5-2,0

Тел.:(07122) 2-11-74

4

Водооборотная система автомоек

1,0-7,5

ГУП «Мосводоканал НИИпроект»

Россия, 107005, г. Москва, Плетешковский

пер., 22, стр. 2

Тел.:(095)261-84-70

Факс:(095)261-77-75

5

Комплект оборотного водоснабжения автомоек

ЗАО Торговый дом «Инженерное оборудование»

Свирь-2,5м

2,5

Россия, 117279, г. Москва, ул. Профсоюзная,

Свирь-4м

4,0

д. 93а

Свияга-1

1,0

Тел.: (095)336-17-01; 336-40-55; 336-32-00

Свияга-2,5

2,5

Тел./факс 336-28-44

6

Мобильный пункт мойки колес

2,0

Компания «РОС»

Россия, г. Москва, пр-т Мира, д. 102

Тел.: 287-14-73; 287-01-73

Факс: 287-31-03

7

Система оборотного водоснабжения:

ООО «Гольберг»

Россия, 109422, г. Москва, 2-ой Кожуховский пр-д, д. 23

Атолл-5

5,0

Тел.: 279-08-39; 279-93-08

Атолл-2

2,6

Факс: 777-32-98

8

Очистные сооружения

0,5 - 1,0

ООО «Экотехнология»

Россия, 129895, г. Москва, ул. Калибровская,

д. 31, стр. 6

Тел./факс: 215-27-60

9

Система очистки и рециркуляции воды «СОРВ-2»

2,0

ООО «Чистая компания - АСЦ»

Россия, 117419, г. Москва, ул. Стасовой, д. 10/1

Тел.: 234-39-39

10

Установка оборотного водоснабжения «Автосток М»

4,5

ЗАО Экологический центр «Эко»

Россия, 123371, г. Москва, Волоколамское ш, д. 87

Тел.: (095) 491-08-29; 494-19-89

 

Приложение В

(справочное)

Устройство и эксплуатация пункта мойки (очистки) колес автотранспорта

1 На строительной площадке в целях предотвращения выноса грунта и грязи колесами автотранспорта на городскую территорию оборудуется пункт мойки (очистки) колес.

Место расположения пункта - выезд со строительной площадки на улицу (см. рисунок В.1).


Рисунок В.1 - Вариант устройства установки для мойки (очистки) колес автотранспорта


2 Пункт оборудован оборотной системой с очисткой сточных вод в очистной установке «Мойдодыр-К» производительностью 4,5 м3/ч.

Пропускная способность пункта мойки (очистки) колес - 12 автомобилей в час.

3 В комплект пункта мойки (очистки) колес автотранспорта входят:

очистная установка «Мойдодыр-К»;

- эстакада для мойки колес автотранспорта конструкции ОАО ПКТИпромстрой р.ч. 1868.00.000;

- песколовка конструкции ЗАО Экологический промышленно-финансовый концерн «Мойдодыр».

4 Для сбора, накопления и фильтрации водосодержащего шлама оборудуется шламоприемный кювет объемом 10 м с размерами в плане 350´350 см, глубиной 100 см.

5 Технологический процесс мойки (очистки) колес автотранспорта:

5.1 Транспортные средства перед выездом со строительной площадки останавливаются перед пунктом мойки (очистки) колес на специально обозначенной дорожным знаком «Проезд без остановки запрещен» условной стоп-линией согласно рисунку В.2. Осматриваются диспетчером пункта мойки, и, в зависимости от степени загрязнения, направляются непосредственно на эстакаду или площадку предварительной очистки. Условно чистые автомобили выезжают со строительной площадки без обработки.

Сильно загрязненный автотранспорт останавливается на площадке перед эстакадой. Во избежание чрезмерного засорения системы оборотного водоснабжения колеса и днища автомобилей перед обмывом очищаются с помощью щеток и скребков от налипшего грунта и других материалов.

По окончании механической очистки автотранспорт направляется на эстакаду.

Обмыв колес и днища автотранспорта с помощью моечной установки осуществляется на эстакаде. При этом заезд и выезд с эстакады осуществляется по команде оператора пункта мойки (очистки) колес.

Схемы помывки (очистки) колес и днища автотранспорта представлены на рисунке В.2.

Количество персонала пункта мойки (очистки) колес зависит от интенсивности движения транспорта и составляет 1 ¸ 3 оператора (машиниста) моечной машины.

5.2 Удаление песка из песколовки и поддона эстакады производится по мере его накопления, но не реже одного раза в сутки.

Уборка песка, камней и других материалов с моечной площадки перед эстакадой производится после очистки колес и днища каждого автомобиля.

Шлам в виде мелких фракций песка и глинистых частиц, образующийся в очистной установке, удаляется в порядке и сроки, установленные документацией завода-изготовителя очистной установки.

Накопление и фильтрация водосодержащего шлама, удаляемого из оборудования и с площадки пункта мойки (очистки), осуществляется в шламоприемном кювете. По окончании строительства кювет (приямок) засыпается грунтом и утрамбовывается.

5.3 Нефтепродукты, отделяемые от загрязненной воды в очистной установке, удаляются в порядке и сроки, установленные паспортом или инструкцией по эксплуатации на очистную установку, и накапливаются в закрытой емкости.

По мере накопления нефтепродукты вывозятся для утилизации на специализированные предприятия или пункты сбора. При этом строительная организация заключает договор на прием нефтепродуктов с указанными предприятиями.


Рисунок В.2 - Технологическая схема помывки (очистки) колес автотранспорта


Приложение Г

(справочное)

Технические характеристики автотранспортных средств

Модель автомобиля

Грузоподъемность, кг

Снаряженная масса, кг

Габариты, мм

База, мм

Колея, мм

Угол, °

Радиус поворота, м

всего

в том числе на оси

передних колес

задних колес

переднюю

заднюю

длина

ширина

внутреннее

внешнее

въезда

съезда

внешнего колеса

габаритный

Грузовые автомобили общего назначения:

ГАЗ-53-12

4500

3200

1435

1765

6395

2380

3700

1630

1690

41

25

8

9

ГАЗ-3307 4´2,2

4500

3200

1435

1765

6550

2330

2770

1630

1690

38

25

8

9

ЗИЛ-431410 4´2;2

6000

4175

2005

2170

6675

2500

3800

1800

1850

38

27

8,3

9,5

ЗИЛ-431510 4´2,2

6000

4550

2140

2410

7610

2500

4500

1800

1850

38

27

8,9

10,1

ЗИЛ-433100 4´2,2

6000

5500

3000

2500

8030

2500

4500

1930

1540

2160

36

23

8,0

8,6

МАЗ-53371 4´2,2

8700

7150

4090

3060

7100

2500

3950

2032

1422

2162

24

28

9,1

9,8

КАМАЗ-5320 6´4,2

8000

7080

3320

3760

7435

2500

3190+ 1320

2026

1856

26

30

8,5

9,3

КАМАЗ-5312 6´4,2

10000

8000

3525

4475

8905

2500

3690+ 1320

2026

1855

26

20

9,0

9,8

КАМАЗ 5315

8220

7630

4230

3400

8560

2500

4650

2012

1800

20

20

8,9

9,7

Самосвалы:

ЗИЛ-ММЗ-4502

6000

4625

2150

2475

5490

2500

3300

1800

1830

ЗИЛ-ММЗ-4605

6100

4820

2105

2715

6185

2500

3800

1800

1825

МАЗ-5551

8500

7580

4130

3450

5990

2500

3300

2032

1422

2162

25

45

7,9

8,6

МАЗ-5549

8000

7225

3600

3625

5785

2500

3400

1970

1527

2215

24

48

7,9

8,6

КАМАЗ-55111 6´4,2

13000

9050

3850

5200

6580

2500

2840+ 1320

2019

1870

23

57

8,0

9,0

КАМАЗ-55102

7000

8480

3500

4980

7570

2500

3190+ 1320

2026

1856

26

30

8,5

9,3

Специальные:

Цементовоз ТЦ-12

20000

6000

На тележку полуприц. 14900

11200

2500

500+1 320

2026

1850

26

30

-

-

Автобетононасос СБ-126

-

8000

3525

4475

10000

2500

3690+ 1320

2026

1855

26

20

9,0

9,8

Автобетоносмеситель СБ-92В-1

9000

10150

-

-

7350

2500

2840+ 1320

2019

1870

23

57

8,0

9,0

Автомобили зарубежного производства:

Самосвалы:

«TATRA 815-2 SIA»

16900

11600

6300

11100

7920

2500

3550+ 1320

1989

1754

-

-

-

-

«IVECO-MAGIRUS 380-30 ANW»

22000

15500

7500

15000

8500

2650

4000+ 1380

-

-

-

-

-

11,0

11,5


Приложение Д

(рекомендуемое)

Вариант схемы монтажа оборудования пункта мойки (очистки)
колес автотранспорта

УКАЗАНИЯ ПО ПРОИЗВОДСТВУ РАБОТ

1 В данном приложении разработана схема монтажа оборудования мойки колес автотранспортных средств с системой оборотного водоснабжения «Мойдодыр-К-4,5» на период строительства объекта.


Условные обозначения

Линия границы опасной зоны от действия крана

Линия ограничения зоны действия крана

Разбираемое здание

Стенд со схемами строповки

Стоянка крана

 

Схема разгрузки установки

График грузоподъемности и высоты подъема
для крана КС-3577-3, Lстp = 14 м


Схема работы экскаватора

2 Установить следующий порядок производства работ:

- спланировать и уплотнить основание с последующей укладкой дорожных плит под стоянку крана КС-3577-3;

- установить стенд со схемами строповок;

- выставить сигнальное ограждение опасной зоны от действия крана;

- обозначить на местности линию ограничения обслуживания крана;

Продолжение приложения Д

- отрыть приямок под песколовку и шламоприемочный кювет V =10 м3;

- под песколовку на основание уложить плиту;

- на моечном посту уложить дорожные плиты на подушке из песка и щебня;

- произвести монтаж очистной установки «Мойдодыр-К-4,5».

3 Разработку грунта производить с помощью экскаватора HITACHI EX-4003c - обратная лопата с погрузкой в автотранспорт.

4 Укладку дорожных плит и монтаж установки «Мойдодыр-К-4,5» производить при помощи автокрана КС-3577-3 с телескопической стрелой 14 м.

В связи со стесненными условиями строительства кран работает с визуальным ограничением зоны действия крана с опасной зоной.

5 Во время погрузочно-разгрузочных работ водитель не должен находиться в кабине автомашины, а отойти в безопасное место за пределы границы опасной зоны.

6 Подъем на автомашину для строповки установки «Мойдодыр-К-4,5» производить по лестнице высотой 2 м, проект № 3195 треста Мосоргстрой.

7 Нахождение людей в радиусе 5-ти метров от движущихся частей и рабочих органов экскаватора запрещается.

Таблица - Ведомость потребности в основных машинах, механизмах, инвентаре и приспособлениях для обустройства мойки


п/п

Наименование

Марка, тип, ГОСТ, ТУ

Ед. изм.

Кол.

Краткая техническая характеристика

Примечания

1

Автомобильный кран

КС-3577-3

шт.

1

Lстр = 14 м

Возможны другие краны

2

Экскаватор

HITACHI ЕХ-400-ЗС

шт.

1

Обратная лопата

То же

3

Самосвал

МАЗ-503 А

1

Грузоподъемность Q = 8 т

-

4

Сигнальное ограждение

ГОСТ 12.4.059-89

м

-

Шаг 6 м; h стоек = 0,8 м

-

5

Строп 4-ветвевой

4СК1-5,0/5000 ГОСТ 25573-82*

шт.

1

l = 5,0м

-

6

Лестница

-

шт.

1

H = 2м

-

7

Плиты дорожные

шт.

10

-

8

Автомобиль бортовой

шт.

1

ТРЕБОВАНИЯ БЕЗОПАСНОСТИ И ОХРАНЫ ТРУДА

1 Приказом по строительной организации назначить лицо, ответственное за безопасное производство работ кранами, за безопасную эксплуатацию схемных грузозахватных приспособлений и тары согласно ПБ 10-382-00 «Правила устройства и безопасной эксплуатации грузоподъемных кранов». Закрепить за краном стропальщиков.

2 По линии ограничения установить предупреждающие и запрещающие знаки. Машинисту крана при перемещении груза вдоль этой линии все операции производить на пониженной скорости. Пронос груза за линию ограничения запрещается.

Продолжение приложения Д

3 По границе опасной зоны установить сигнальное ограждение по ГОСТ 12.4.059-89, высота стоек 0,8 м, расстояние между стойками 3 м.

4 До начала производства работ с помощью крана лицо, ответственное за безопасное производство работ кранами, должно ознакомиться с ППР и на рабочем месте провести инструктаж с машинистом крана, стропальщиками, бригадирами и рабочими, о чем делается запись в журнале инструктажа. ППР должны изучить все инженерно-технические работники, имеющие отношение к производству работ с грузоподъемными кранами. Рабочие должны быть ознакомлены с ППР, о чем делается запись в проекте производства работ.

5 Рабочие при производстве работ должны иметь удостоверение на право производства конкретного вида работ, а также пройти инструктаж по безопасности труда в соответствии с требованиями ГОСТ 12.0.004-79* «ССБТ. Организация обучения безопасности труда. Общие положения».

6 В темное время суток, согласно ГОСТ 12.1.046-85, рабочие места должны иметь освещенность не ниже 30 люкс, стройплощадка - не менее 10 люкс.

7 Запрещается нахождение людей под поднимаемым грузом. При подъеме элементов все условные знаки подаются одним лицом - бригадиром монтажной бригады или такелажником, назначенным приказом по строительной организации. Сигнал «СТОП» подается любым работником, заметившим опасность.

8 Ответственность за пожарную безопасность на строительной площадке, за соблюдение противопожарных требований, своевременное выполнение противопожарных мероприятий, обеспечение и содержание в исправном состоянии средств пожаротушения несет начальник строительного участка, назначенный приказом по строительной организации.

9 При строповке элементов 4-х ветвевым стропом за две петли два свободных стропа, во избежание зацепления за установленные закрепленные конструкции, необходимо навешивать на разъемное звено.

10 Все строительно-монтажные работы вести в соответствии с требованиями:

- СНиП 3.01.01-85* «Организация строительного производства»;

- СНиП 3.02.01-87 «Земляные сооружения, основания и фундаменты»;

- СНиП 3.03.01-87 «Несущие и ограждающие конструкции»;

- СНиП 12-03-2001 «Безопасность труда в строительстве. Часть 1. Общие требования»;

- СНиП 12-04-2002 «Безопасность труда в строительстве. Часть 2. Строительное производство»;

- ПБ 10-382-00 «Правила устройства и безопасной эксплуатации грузоподъемных кранов» Госгортехнадзора России, 2000 г.;

- «Правил устройства электроустановок» Минэнерго РФ;

- ППБ 01-03 «Правила пожарной безопасности в Российской Федерации» ГУПО МВД РФ.

 

Приложение Е

(обязательное)

 

Форма

АКТ
приемки работ подготовительного периода

___________________________________________________________________________

(наименование объекта)

___________________________________________________________________________

(адрес объекта)

«___» ____________ 200 __ г

(дата приемки)

Комиссия в составе:

Представителя заказчика (технического надзора) ______________________________

(фамилия, инициалы, должность)

представителя подрядной организации _______________________________________

(фамилия, инициалы, должность)

представителя Отдела управления культурой производства, качеством и охраной труда в строительстве КАСРиР г. Москвы _______________________________________

___________________________________________________________________________

(фамилия, инициалы, должность)

 

представителя ОАТИ Правительства Москвы _________________________________

___________________________________________________________________________

(фамилия, инициалы, должность)

 

представителя территориальной организации профсоюза работников строительства и промышленности стройматериалов г. Москвы ___________________________________

___________________________________________________________________________

(фамилия, инициалы, должность)

 

произвела осмотр обустройства стройплощадки и составила акт о нижеследующем:

 

1. К приемке предъявлены следующие подготовительные работы ________________

___________________________________________________________________________

(перечень работ согласно СНиП 3.01.01-85* п.2.3., наличие пункта мойки колес, содержание

___________________________________________________________________________

стройплощадки, обеспечение спецодеждой, санитарно-бытовые условия и др.)

___________________________________________________________________________

___________________________________________________________________________

 

2. На объекте имеется ПОС, разработанный ___________________________________

___________________________________________________________________________

(наименование проектной организации)

и ППР, разработанный _______________________________________________________

(наименование организации)

3. При выполнении работ отсутствуют (или допущены) отклонения от проектной документации ______________________________________________________________

(при наличии отклонений указывается ___________________________________________________________________________

кем согласованы, номера чертежей и дата согласования)

___________________________________________________________________________

 

Замечания комиссии: ______________________________________________________

___________________________________________________________________________

___________________________________________________________________________

___________________________________________________________________________

___________________________________________________________________________

___________________________________________________________________________

___________________________________________________________________________

Решение комиссии

Работы подготовительного периода выполнены в соответствии с проектной документацией, строительными нормами и правилами, требованиями охраны труда и техники безопасности.

 

Представитель заказчика

(технического надзора) ___________________________________________________

(подпись)

Представитель подрядной

организации ____________________________________________________________

(подпись)

Представитель Отдела УКПКОТС

КАСРиР г. Москвы _______________________________________________________

(подпись)

Представитель ОАТИ

Правительства Москвы ____________________________________________________

(подпись)

 

Представитель территориальной

организации профсоюза работников

строительства и промышленности

стройматериалов г. Москвы _______________________________________________

(подпись)

 

Приложение Ж

(обязательное)

Форма

АКТ
о соответствии выполненных внеплощадочных и внутриплощадочных
подготовительных работ требованиям безопасности труда и готовности объекта
_____________________________________________________ к началу строительства

 

«___» ___________ 200 __ г.

 

Комиссия в составе:

руководителя (директора) строящегося предприятия (технического надзора заказчика-застройщика ) ____________________________________________________

(фамилия, инициалы, должность)

__________________________________________________________________________

 

представителя генеральной подрядной строительной организации

__________________________________________________________________________

(название организации, фамилия, инициалы, должность)

 

представителя субподрядной специализированной организации, вьшолняющей работы в подготовительный период ___________________________________________

(название организации, фамилия, инициалы, должность)

__________________________________________________________________________

 

представителя работников генеральной подрядной строительной организации

__________________________________________________________________________

(фамилия, инициалы)

 

произвела освидетельствование внеплощадочных и внутриплощадочных подготовительных работ, в том числе по обеспечению санитарно-бытового обслуживания работающих, выполненных по состоянию на «___»_________200 _ г., на соответствие их требованиям безопасности труда и составила настоящий акт о нижеследующем:

1 К освидетельствованию предъявлены работы ________________________________

___________________________________________________________________________

(наименование внеплощадочных и внутриплощадочных подготовительных работ, в том числе по

___________________________________________________________________________

обеспечению санитарно-бытового обслуживания работающих)

2 Работы выполнены в объемах, установленных организационно-технологической документацией (проектом организации строительства и проектами производства работ)

__________________________________________________________________________

(наименование организаций, разработчиков ПОС, ППР, № чертежей и дата их составления)

3 В представленных работах отсутствуют (или допущены) отклонения от требований норм, правил и стандартов безопасности труда

___________________________________________________________________________

(при наличии отклонений указывается, требования каких нормативных документов нарушены)

Решение комиссии

Работы выполнены в объемах, предусмотренных проектом, и в соответствии с требованиями норм и правил безопасности труда.

На основании изложенного разрешается производство основных строительных, монтажных и специальных строительных работ на объекте.

Руководитель (директор) строящегося предприятия

(технического надзора заказчика-застройщика) ______________________________

(подпись)

Представитель генеральной подрядной

строительной организации ________________________________________________

(подпись)

Представитель субподрядной

специализированной организации __________________________________________

(подпись)

Представитель работников генеральной

подрядной строительной организации _______________________________________

(подпись)

Примечание - Руководитель генподрядной организации заранее информирует представителя Федеральной Инспекции труда о дате и месте работы комиссии. При необходимости к участию в работе комиссии привлекаются органы государственного надзора или специализированные организации.

 

Приложение И

(рекомендуемое)

Перечень рекомендованных спецодежды, спецобуви и других средств
индивидуальной защиты для персонала пунктов мойки


п/п

Профессия или должность

Наименование средств индивидуальной защиты

Норма выдачи на год (единицы, комплекты)

НТД на средства индивидуальной защиты

Нормативные документы

1

2

3

4

5

6

1

Машинист моечных машин

Костюм хлопчатобумажный с водоотталкивающей пропиткой с капюшоном

1

ГОСТ 27575-87

«Типовые нормы бесплатной выдачи специальной одежды, специальной обуви и других средств индивидуальной защиты работникам автомобильного транспорта и шоссейных дорог».

Утверждено Постановлением Минтруда России от 16.12.1997 № 63

«Типовые отраслевые нормы бесплатной выдачи специальной одежды, специальной обуви и других средств индивидуальной защиты работникам, занятым на строительных, строительно-монтажных и ремонтно-строительных работах».

Утверждено Постановлением Минтруда России от 25.12.1997 г. № 66

ГОСТ 27573-87

Фартук прорезиненный

1

ГОСТ 2.4.029-76

Сапоги резиновые

1 пара

ГОСТ 5375-79

Перчатки резиновые

4 пары

ГОСТ 20010-93

На наружных работах зимой дополнительно:

Куртка на утепляющей подкладке

1 на 2,5 года

ГОСТ 29335-92

Брюки на утепляющей подкладке

1 на 2,5 года

ГОСТ 29335-92

2

Машинист моечных машин

Комбинезон хлопчатобумажный

1

ГОСТ 12.4.100-80

Рукавицы комбинированные

12 пар

ГОСТ 12.4.010-75

Ботинки кожаные

1 пара

ГОСТ 28507-90

При постоянной занятости на наружных работах зимой дополнительно:

Куртка на утепляющей подкладке

1 на 2,5года

ГОСТ 29335-92

Брюки на утепляющей подкладке

1 на 2,5 года

ГОСТ 29335-92

Валенки

1 пара на 2,5 года

ОСТ 17337-79

Выдаются как дежурные:

Каска защитная с подшлемником

ГОСТ 12.4.087-84

Сапоги резиновые

ГОСТ 5375-79

 



© 2013 Ёшкин Кот :-)