Информационная система
«Ёшкин Кот»

XXXecatmenu

ПРАВИТЕЛЬСТВО МОСКВЫ
МОСКОМАРХИТЕКТУРА

 

РЕКОМЕНДАЦИИ
по защите высотных зданий
от прогрессирующего обрушения

 

 

2006

 

ПРЕДИСЛОВИЕ

1. РАЗРАБОТАНЫ: МНИИТЭП (инженеры Шапиро Г.И. - руководитель работы, Эйсман Ю.А.) и РААСН (академик, д.т.н. Травуш В.И.)

2. ПОДГОТОВЛЕНЫ к изданию ГУП МНИИТЭП

3. СОГЛАСОВАНЫ: ЦНИИСК им. Кучеренко, ЦНИИЭП жилища.

4. УТВЕРЖДЕНЫ И ВВЕДЕНЫ В ДЕЙСТВИЕ Распоряжением Управления научно-технической политики, развития и реконструкции города Москвы от 16.02.2006 г. № 9.

 

СОДЕРЖАНИЕ

Введение. 1

1 основные положения. 2

2 расчетные нагрузки и сопротивление материалов. 3

3 расчет высотных зданий на устойчивость против прогрессирующего обрушения. 3

4 конструктивные требования. 5

Приложение А. Примеры расчета. 6

А1 пример расчета тридцати пяти этажного монолитного жилого дома на устойчивость против прогрессирующего обрушения. 6

А2 пример расчета многофункционального семидесятичетырех этажного дома на устойчивость против прогрессирующего обрушения. 28

Список литературы.. 33

Введение

Рекомендации предназначены для проектирования и строительства новых, а также реконструкции и проверки построенных высотных (многофункциональных, административных, жилых) зданий, или высотной части разноэтажного здания, любых конструктивных систем высотой более 25 этажей (75 м) на устойчивость против прогрессирующего обрушения при возникновении локальных повреждений.

Необходимость в разработке данных рекомендаций возникла в связи с тем, что имеющиеся документы [1, 2, 3, 4] не охватывают вопросов, связанных с проектированием и проверкой высотных зданий. Высотные дома имеют ряд особенностей, связанных с более «свободными» архитектурно-планировочными решениями, широким шагом стен (или колонн), решениями несущих и ограждающих конструкций и т.п., что обусловливает специфику расчета высотных зданий на устойчивость против прогрессирующего обрушения при чрезвычайных ситуациях (ЧС).

Основная цель настоящей методики - обеспечение безопасности высотных зданий при запроектных ЧС.

Чрезвычайные ситуации (ЧС), вызванные запроектными источниками, в общем случае непредсказуемы и сводятся к локальным аварийным воздействиям на отдельные конструкции одного здания: взрывы, пожары, карстовые провалы, ДТП, дефекты конструкций и материалов, некомпетентная реконструкция (перепланировка) и т.п. случаи.

Как правило, воздействие рассматриваемого типа приводит к местным повреждениям несущих конструкций зданий. При этом в одних случаях ЧС этими первоначальными повреждениями и исчерпываются, а в других - несущие конструкции, сохранившиеся в первый момент аварии, не выдерживают дополнительной нагрузки, ранее воспринимавшейся поврежденными элементами, и тоже разрушаются. Аварии последнего типа получили в литературе наименование «прогрессирующее обрушение».

1 Основные положения

1.1 Высотные здания должны быть защищены от прогрессирующего (цепного) обрушения в случае локального разрушения их несущих конструкций при аварийных воздействиях, не предусмотренных условиями нормальной эксплуатации зданий (пожары, взрывы, ударные воздействия транспортных средств, несанкционированная перепланировка и т.п.). Это требование означает, что в случае аварийных воздействий допускаются локальные разрушения отдельных вертикальных несущих элементов в пределах одного этажа или участка перекрытия одного этажа, но эти первоначальные разрушения не должны приводить к обрушению или разрушению конструкций, на которые передается нагрузка, ранее воспринимавшаяся элементами, поврежденными аварийным воздействием.

Расчет здания в случае локального разрушения несущих конструкций производится только по предельным состояниям первой группы. Развитие неупругих деформаций, перемещения конструкций и раскрытие в них трещин в рассматриваемой чрезвычайной ситуации не ограничиваются.

1.2 Устойчивость высотного здания против прогрессирующего обрушения следует обеспечивать наиболее экономичными средствами:

- Рациональным конструктивно-планировочным решением здания с учетом возможности возникновения рассматриваемой аварийной ситуации;

- Конструктивными мерами, обеспечивающими неразрезность конструкций;

- Применением материалов и конструктивных решений, обеспечивающих развитие в элементах конструкций и их соединениях пластических деформаций.

1.3 Реконструкция высотного здания, в частности перепланировка и переустройство помещений, не должны снижать его устойчивость против прогрессирующего обрушения.

1.4 В качестве локального (гипотетического) разрушения следует рассматривать разрушение (удаление) вертикальных конструкций одного (любого) этажа здания, ограниченных кругом площадью до 80 м2 (диаметр 10 м) для зданий высотой до 200 м и до 100 м2 (диаметр 11,5 м) для зданий выше 200 м:

а) двух пересекающихся стен на участках от места их пересечения (в частности, от угла здания) до ближайшего проема в каждой стене или до следующего вертикального стыка со стеной другого направления или участке указанного размера;

б) колонн (пилонов) или колонн (пилонов) с примыкающими к ним участками стен, в том числе навесных ограждающих панелей, расположенных на участке, не превышающем указанный размер локального разрушения;

в) перекрытия на указанной площади.

Для оценки устойчивости здания против прогрессирующего обрушения разрешается рассматривать лишь наиболее опасные расчетные схемы разрушения. Необходимо проверить защищенность от прогрессирующего обрушения конструкций всех типовых, технических и подземных этажей, а также чердака.

2 Расчетные нагрузки и сопротивление материалов

2.1 Расчет по прочности и устойчивости производят на особое сочетание нагрузок и воздействий, включающее постоянные и длительные временные нагрузки, а также воздействие на конструкцию здания локальных гипотетических разрушений по п. 1.4. Локальное разрушение может быть расположено в любом месте здания.

2.2 Постоянная и длительная временная нагрузки принимаются согласно действующим нормативным документам (или по специальному заданию) с коэффициентами сочетания нагрузок и коэффициентами надежности по нагрузкам, равными единице.

2.3 Расчетные прочностные и деформационные характеристики материалов принимаются равными их нормативным значениям согласно действующим нормам проектирования железобетонных и стальных конструкций.

3 Расчет высотных зданий на устойчивость против прогрессирующего обрушения

3.1 Для расчета высотных зданий рекомендуется использовать пространственную расчетную модель. В модели могут учитываться элементы, которые при нормальных эксплуатационных условиях являются ненесущими (например, навесные наружные стеновые панели, железобетонные ограждения балконов и т.п.), а при наличии локальных воздействий активно участвуют в перераспределении усилий в элементах конструктивной системы.

Расчетная модель здания должна предусматривать возможность удаления (разрушения) отдельных вертикальных конструктивных элементов в соответствии с п. 1.4.

Удаление одного или нескольких элементов изменяет конструктивную схему и характер работы элементов, примыкающих к месту разрушения либо зависших над ним, что необходимо учитывать при назначении жесткостных характеристик элементов и их связей.

Расчетная модель здания должна быть рассчитана отдельно с учетом каждого (одного) из локальных разрушений.

3.2 Расчет здания можно выполнять с использованием различных программных комплексов, в том числе основанных на методе конечного элемента. Использование программных комплексов, допускающих возможность учета физической и геометрической нелинейности жесткостных характеристик элементов, обеспечивает наибольшую достоверность результатов расчета и снижение дополнительных материалозатрат.

Полученные на основании статического расчета усилия в отдельных конструктивных элементах должны сравниваться с предельными усилиями, которые могут быть восприняты этими элементами. Устойчивость здания против прогрессирующего обрушения обеспечена, если для любого элемента соблюдается условие F £ S, где F и S соответственно усилие в конструктивном элементе, найденное из выполненного статического расчета, и его расчетная несущая способность, найденная с учетом указаний п. 2.3. Конструкции, для которых требования по прочности не удовлетворяются, должны быть усилены, либо должны быть приняты другие меры, повышающие сопротивление конструкций прогрессирующему обрушению.

3.3 При определении предельных усилий в элементах (их несущей способности) следует принимать:

а) длительно действующую часть усилий - из расчета конструктивной схемы при расчетной схеме без локальных разрушений на нагрузки, указанные в п. 2.2;

б) кратковременно действующую часть усилий - как разность усилий, полученных из расчета конструктивной схемы при расчетной схеме с учетом удаления (разрушения) одного из несущих элементов (см. п. 1.4) на действие тех же нагрузок, и усилий, полученных из расчета по п. а).

3.4 В случае обеспечения пластичной работы конструктивной системы в предельном состоянии проверку устойчивости против прогрессирующего обрушения элементов, расположенных над локальными разрушениями, рекомендуется проводить кинематическим методом теории предельного равновесия, дающим наиболее экономичное решение. В этом случае расчет здания при каждой выбранной схеме выполняется по следующей процедуре:

- задаются наиболее вероятные механизмы прогрессирующего (вторичного) обрушения элементов здания, потерявших опору (задать механизм разрушения значит определить все разрушаемые связи, в том числе и образовавшиеся пластические шарниры, и найти возможные обобщенные перемещения (wi) по направлению усилий в этих связях);

- для каждого из выбранных механизмов прогрессирующего обрушения определяются предельные усилия, которые могут быть восприняты сечениями всех пластично разрушаемых элементов и связей (Si), в том числе и пластических шарниров; находятся равнодействующие (Gi) внешних сил, приложенных к отдельным звеньям механизма, то есть к отдельным неразрушаемым элементам или их частям, и перемещения по направлению их действия (иi);

- определяются работы внутренних сил (W) и внешних нагрузок (U) на возможных перемещениях рассматриваемого механизма

W = ∑SiwiU = ∑Giui

и проверяется условие равновесия

W ³ U.                                                                 (1)

При оценке возможности одновременного обрушения конструкций всех этажей условия равновесия (1) заменяются условием

Wf ³ Uf,                                                                (2)

где Wf и Uf - соответственно работа внутренних и внешних сил на перемещениях конструкций одного этажа; этажи разделяются нижней поверхностью перекрытия, которое относится к этажу, расположенному над перекрытием.

Указанная расчетная процедура применима лишь при условии выполнения требований п. 4.2, 4.3 об обеспечении пластичной работы отдельных конструктивных элементов и связей между ними в предельном состоянии. Если пластичность какого-либо элемента или связи не обеспечена, их работа учитываться не должна (элемент или связь считаются отсутствующими). Если таких элементов и связей, которые могут разрушаться хрупко, слишком много, и их формальное исключение слишком сильно уменьшает оценку сопротивления здания прогрессирующему обрушению, следует или обеспечить пластичность связей, или использовать другую расчетную модель здания (см. п. 3.2).

При каждом выбранном локальном разрушении необходимо рассмотреть все указанные ниже механизмы прогрессирующего обрушения:

- Первый механизм прогрессирующего обрушения характеризуется одновременным поступательным смещением вниз всех вертикальных конструкций (или отдельных их частей), расположенных над локальным разрушением.

- Механизм прогрессирующего обрушения второго типа характеризуется одновременным поворотом каждой конструктивной части здания, расположенной над локальным разрушением, вокруг своего центра вращения. Такое смещение требует разрушения имеющихся связей этих конструкций с неповрежденными элементами здания; разрушения связей сдвига вертикальных элементов с перекрытием.

- Третий механизм обрушения - это условие необрушения только участка перекрытия, расположенного непосредственно над выбитой вертикальной конструкцией и первоначально на нее опертого.

- Четвертый механизм предусматривает перемещения конструкций лишь одного этажа, расположенного непосредственно над выбитым вертикальным элементом. В этом случае происходит отрыв вертикальных конструкций от перекрытия, расположенного над ними.

Если при какой-либо расчетной схеме условие (1) или (2) не выполняется, необходимо усилением конструктивных элементов либо иными мероприятиями добиться его выполнения.

3.5 В некоторых случаях целесообразно рассматривать работу перекрытий над удаленной колонной (пилоном, стеной) при больших прогибах как элементов висячей системы или с учетом мембранного эффекта.

3.6 В несущих колоннах (пилонах, стенах), не расположенных над гипотетическим локальным разрушением, его воздействие приводит к увеличению напряжений и усилий. Необходимо выполнить проверку прочности этих элементов. Оценку усилий, действующих в элементах, допускается выполнять приближенными методами.

3.7 Каждое перекрытие высотного здания должно быть рассчитано на восприятие веса участка перекрытия вышележащего этажа (постоянная и длительная нагрузки с коэффициентом динамичности kf = 1,5) на площади 80 м2 для зданий до 200 м и 100 м2 для зданий выше 200 м.

4 Конструктивные требования

4.1 Основное средство защиты высотных зданий от прогрессирующего обрушения - обеспечение необходимой прочности конструктивных элементов в соответствии с расчетами; повышение пластических свойств применяемой арматуры и стальных связей между конструкциями (в виде арматуры соединяемых конструкций, закладных деталей и т.п.); включение в работу пространственной системы ненесущих элементов. Эффективная работа связей, препятствующих прогрессирующему обрушению, возможна лишь при обеспечении их пластичности в предельном состоянии, с тем чтобы они не выключались из работы и допускали без разрушения развитие необходимых деформаций. Для выполнения этого требования связи следует проектировать из пластичной листовой или арматурной стали, а прочность анкеровки связей должна быть больше усилий, вызывающих их текучесть.

4.2 В зданиях следует отдавать предпочтение монолитным и сборно-монолитным перекрытиям, которые должны быть надежно соединены с вертикальными несущими конструкциями здания стальными связями.

4.3 Соединения сборных элементов с монолитными конструкциями, препятствующие прогрессирующему обрушению зданий, должны проектироваться неравнопрочными, при этом элемент, предельное состояние которого обеспечивает наибольшие пластические деформации соединения, должен быть наименее прочным.

Для выполнения этого условия рекомендуется рассчитать все элементы соединения, кроме наиболее пластичного, на усилие, в 1,5 раза превышающее несущую способность пластичного элемента, например, анкеровку закладных деталей и сварные соединения рекомендуется рассчитывать на усилие в 1,5 раза больше, чем несущая способность самой связи. Необходимо особо следить за фактически точным исполнением проектных решений пластичных элементов, замена их более прочными недопустима.

4.4 Для повышения эффективности сопротивления прогрессирующему обрушению здания рекомендуется:

- надпроемные перемычки, работающие как связи сдвига, проектировать так, чтобы они разрушались от изгиба, а не от действия поперечной силы;

- шпоночные соединения в сборно-монолитных конструкциях проектировать так, чтобы прочность отдельных шпонок на срез была в 1,5 раза больше их прочности при смятии;

- обеспечивать достаточность длины анкеровки арматуры при ее работе как связи сдвига;

- опорные сечения балок и ригелей, а также узлы их соединений с колоннами (стенами, пилонами), должны иметь прочность по поперечной силе в 1,5 раза выше, чем их несущая способность по изгибу с учетом пластических свойств в пролете.

4.5 Минимальная площадь сечения (суммарная для нижней и верхней арматуры) горизонтальной арматуры, как продольной, так и поперечной в железобетонных перекрытиях и покрытии должна составлять не менее 0,25 % от площади сечения бетона.

При этом указанная арматура должна быть непрерывной и стыковаться в соответствии с требованиями действующих нормативных документов на проектирование железобетонных конструкций.

4.6 Горизонтальные связи бетонных или железобетонных навесных наружных панелей с несущими элементами здания должны воспринимать растягивающие усилия не менее: 10 кН (1 тс) на 1 м длины панели при высоте этажа 3,0 м; 12 кН на 1 м длины панели при высоте этажа 3,5 м; 14 кН на 1 м длины панели при высоте этажа 4,0 м и выше, если по расчету не требуется более.

4.7 Продольная (вертикальная) междуэтажная арматура пилона (колонны, стены) должна воспринимать растягивающие усилия не менее 10 кН (1 тс) на каждый квадратный метр грузовой площади этого пилона (колонны, стены).

4.8 В зданиях с применением металлических конструкций предусматривать сталежелезобетонные перекрытия, избегать гибких соединений ригелей с колоннами. Горизонтальные ветровые связи должны обеспечивать объединение диска перекрытия. Использовать стали с повышенной пластичностью и вязкостью.

ПРИЛОЖЕНИЕ А

ПРИМЕРЫ РАСЧЕТА

В данном приложении рассмотрены два примера расчета1:

1 В расчете примеров принимал участие студент МГСУ Юрьев Р.В.

- В первом примере А1 рассмотрена устойчивость против прогрессирующего обрушения для нескольких схем локального разрушения несущих конструкций одной секции жилого тридцати пяти этажного дома высотой 123,2 м. Расчет перекрытий проведен с использованием кинематического метода предельного равновесия, а вертикальных конструкций - с использованием программного комплекса «Мономах 4.0».

- Во втором примере А2 рассмотрена устойчивость против прогрессирующего обрушения многофункционального 74 этажного дома подобного башне Москва-Сити, высотой 266,4 м. Расчет конструкций для отдельных схем локальных разрушений проведен с использованием программных комплексов «Лира 9.2» и «ОМ СНиП Железобетон - прогрессирующее обрушение».

Для обоих примеров приведены результаты расчетов отдельных схем локального разрушения.

А1 ПРИМЕР РАСЧЕТА ТРИДЦАТИ ПЯТИ ЭТАЖНОГО МОНОЛИТНОГО ЖИЛОГО ДОМА НА УСТОЙЧИВОСТЬ ПРОТИВ ПРОГРЕССИРУЮЩЕГО ОБРУШЕНИЯ

А1.1 Исходные данные

А1.1.1 Описание конструктивной системы

Несущие конструкции здания выполнены в монолитном железобетоне. План типового этажа здания представлен на рисунке А1. Конструктивная система здания смешанная. Лестнично-лифтовой узел образует ядро жесткости. Толщина несущих внутренних стен 35 см, толщина пилонов 40 - 50 см, длина пилонов до 200 см. Перекрытия и покрытие - монолитные, толщиной 22 см, защитный слой бетона 2,5 см. Все вертикальные несущие конструкции здания выполнены из тяжелого бетона класса по прочности на сжатие В45, перекрытие из бетона класса В25. Фоновое армирование перекрытий непрерывное симметричное одинаковое вдоль обоих направлений осей здания: верхняя арматура равна нижней и составляет Æ 12А400 с ячейкой 30 см. Высота этажа Нf = 3,52 м. Наружные стены навесные из небетонных мелкоштучных материалов.

А1.1.2 Нагрузки

Нормативные равномерно распределенные нагрузки на перекрытии: собственный вес 5,5 кН/м2; вес пола в квартирах 2 кН/м2; вес пола на балконе 1,2 кН/м2; вес перегородок внутри квартир 1,1 кН/м2; длительная временная нагрузка от людей в квартирах и на балконах 0,3 кН/м2 [5]. Полная равномерно распределенная нагрузка: в квартирах 8,9 кН/м2; на балконах 7 кН/м2. Вес наружных стен 11,1 кН/пог. м; ограждения балконов 3,5 кН/пог. м.

А1.1.3 Расчетные сопротивлении материалов

Буквенные обозначения величин, не оговоренные в настоящем расчете, приняты по СНиП 2.03.02-84*2, СНиП 52-01-20033 и СП 52-101-03 [6, 7, 8].

2 Действует до вступления в силу соответствующего технического регламента.

3 Носит рекомендательный характер до регистрации Минюстом России.

Бетон класса по прочности на сжатие В25 [7]: Rb = Rbn = 18,5 МПа; Rbt = Rbt,n = 1,55 МПа.

Бетон класса по прочности на сжатие В45 [7]: Rb = Rbn = 32 МПа; Rbt = Rbn = 2,2 МПа.

Арматура Æ 12А400 [7]: сопротивление растяжению Rs = Rsn = 400 МПа; срезу Rsw = 400 × 0,8 = 320 МПа.

Несущие способности элементов определяются по требованиям СП 52-101-03 с использованием программы ОМ «СНиП железобетон» [9].

А1.1.4 Расчетные схемы гипотетических локальных разрушений

Варианты расположения гипотетических локальных разрушений типового этажа, рассмотренные в настоящем примере, показаны на рисунке А1.

По высоте здания локальное разрушение может быть расположено на любом этаже, поэтому если в здании несколько видов типовых этажей, то проверять нужно самый опасный (или все). Кроме того, необходимо проверить невозможность прогрессирующего обрушения конструкций чердака, технических и подземных этажей. Здесь в качестве примера рассмотрены три наиболее опасные схемы локальных разрушений конструкций типового этажа, отвечающих требованию п. 4.5, в том числе три возможных варианта образования пластических шарниров для схемы 1.

А1.2 Расчет конструкций, расположенных над локальным разрушением, кинематическим методом теории предельного равновесия

А1.2.1 Несущая способность отдельных конструктивных элементов

А1.2.1.1 Перекрытие

Погонная несущая способность поперечных сечений с фоновым армированием по изгибу при растяжении нижних (или верхних) волокон при изгибе вдоль направлений буквенных и цифровых осей одинакова, определяется при b = 100 см; hо = 19,5 см; Аs = 3,77 см2 (3,3 стержня диаметром 12 мм из стали класса А400); Rs = 400 МПа, бетон класса В25, Rb = 18,5 МПа и равна ml = т¢1 = т2 = т¢2 = тр = 28 кН×м /пог. м. Площадь арматуры составляет: m = 3,77 × 2/(22 × 100) × 100 % = 0,34 % > 0,25 %. т.е. больше минимального армирования по п. 4.5 данных рекомендаций.

А1.2.2 Проверка устойчивости здания при локальном разрушении его несущих конструкций по схеме № 1

Рассматривается обрушение конструктивной ячейки между осями А-В и 1-3. Первично разрушается пилон i-го этажа на пересечении осей 1 и Б. Проверяется невозможность обрушения зависших над локальным разрушением участков перекрытий и пилонов. Поскольку пилон с другими вертикальными конструкциями соединяется только через перекрытие, прогрессирующему обрушению в данном случае сопротивляется на каждом этаже только перекрытие, разрушающееся с образованием пластических шарниров, и стык перекрытия с пилоном.

РИСУНОК А1.1 ПЛАН ТИПОВОГО ЭТАЖА МОНОЛИТНОГО ВЫСОТНОГО ЖИЛОГО ДОМА

A1.2.2.1 Оценка возможности возникновения механизма прогрессирующего обрушения первого типа

Гипотетическая схема прогрессирующего обрушения представлена на рисунке А1.2. Пилоны всех этажей, зависших над «разрушенным» пилоном на i-том этаже, поступательно смещаются вниз вместе с примыкающими участками перекрытий, в перекрытиях образуются пластические шарниры с растяжением верхней (на рисунках обозначены сплошной линией) и нижней (пунктирной линией) арматуры.

Работа пилона

Пилон (сечение 40´200 см2) поступательно смещается вниз без разрушения, работа внутренних сил Ww,in = 0. Вес пилона G = 25 × 0,4 × 2 × 3,3 = 66 кН; вертикальное перемещение и = 1; работа внешних сил Uw,in = 66 × 1 = 66 кН.

Сопротивление обрушению перекрытий

Работа внутренних сил перекрытия суммируется по всем показанным на рисунке А1.2 и пронумерованным цифрами в кружках пластическим шарнирам Wp = ∑Wpj (j = 1, ... 8). Для каждого пластического шарнира Wpj = Mpjwj, где Mpj = mjLj - изгибающий момент, воспринимаемый сечением перекрытия вдоль рассматриваемого пластического шарнира; wj - угол излома плиты, Lj - длина пластического шарнира. Для шарниров, наклонных к направлению осей здания, mj = (m1sina + т2cosa), где a - острый угол между направлением j-го шарнира и направлением цифровой оси.

В целях стандартизации расчета углы излома перекрытия в пластических шарнирах, образованные двумя наклонными плоскостями, рассматривались как сумма двух углов (каждой наклонной плоскости с горизонтальной), например шарниры 7 и 8. Тогда wj = 1/rj, где rj - длина перпендикуляра к линии j-го пластического шарнира, соединяющего 2 точки рассматриваемой плоскости, разность перемещений которых равна единице.

Работа внутренних сил на перемещениях пластических шарниров:

шарнир 1: М1 = 28 × 2,2 = 60,6 кНм; w1 = 1/4,4 = 0,22 м-1; Wp1 = 60,6 × 0,22 = 13 кН;

шарнир 2: М2 = 28 × 2,2 = 60,6 кНм; w2 = 1/4,3 = 0,233 м-1; Wp2 = 60,6 × 0,233 = 14 кН;

шарнир 3: М3 = 28 × (cos3° + sin3°) × 6,7 = 197,4 кНм; w3 = 1/4,3 = 0,233 м-1;

РИСУНОК А1.2 СХЕМА 1. МЕХАНИЗМ ОБРУШЕНИЯ ПЕРВОГО ТИПА.

Wp3 = 197,4 × 0,233 = 46 кН;

шарнир 4: М¢4 = 28 × (cos14° + sin14°) × 15,4 = 523 кНм; w4 = 1/4,2 = 0,24 м-1; Wp4 = 523 × 0,24 = 125 кН;

шарнир 5: М¢5 = 28 × (cos35° + sin35°) × 9,7 = 377 кНм; w5 = 1/5,7 = 0,175 м-1; Wp5 = 377 × 0,175 = 66 кН;

шарнир 6: М6 = 28 × (cos45° + sin45°) × 5,8 = 231 кНм; w6 = 1/6,3 = 0,16 м-1; Wp6 = 231 × 0,16 = 37 кН;

шарнир 7: М7 = 28 × (cos7° + sin7°) × 12 = 383 кНм; w7 = 1/4,5 = 0,222 м-1; Wp7 = 383 × 0,222 = 85 кН;

шарнир 8: М8 = М7 = 383 кНм; w8 = 1/6,5 = 0,154 м-1; Wp8 = 383 × 0,154 = 59 кН;

всего по перекрытию Wp = 13 + 14 + 46 + 125 + 66 + 37 + 85 + 59 = 445 кН.

Работа внешних сил на перемещениях перекрытия

Up = ∑Upj (j = 1, 2, 3). Upj = qjFjuj, где qj - распределенные внешние нагрузки; Fj - площадь обрушаемой части плиты перекрытия, к которой эти нагрузки приложены; uj - перемещение центра тяжести части плиты. Величины Fj и uj указаны на рисунке А1.2. Работа внешних сил

Up = 8,9 × (38 × 0,381 + 14,4 × 0,325 + 27,6 × 0,333) = 255 кН.

Наружные стены (условно на рисунке А1.2 показаны только на планах)

Работа внутренних сил Ww, ex = 0.

Работа внешних сил на перемещениях наружных стен Uw, ex = ∑Uw,exj (j = 1, 2). Uw,exj = pjdjuj, где pj - распределенные по длине внешние нагрузки от веса наружных стен или ограждения балконов; dj - длина наружной стены; uj - вертикальное перемещение центра тяжести наружной стены.

Uw,ex = 11,1 × (5,6 × 0,5 + 4,7 × 0,5) = 57 кН.

Проверка общего условия невозможности образования механизма первого типа

Проверка производится по формуле (2) данных Рекомендаций

W = Wр = 445 кН;

U = Uw,in + Up + Uw,ex = 66 + 255 + 57 = 378 кН < 445 кН.

Условие устойчивости конструкций выполнено W > U. Прогрессирующее обрушение первого типа невозможно.

A.1.2.2.2 Оценка возможности возникновения механизма прогрессирующего обрушения второго типа

Гипотетическая схема прогрессирующего обрушения представлена на рисунке А1.3. В перекрытии образуются пластические шарниры с растяжением верхней и нижней арматуры. Пилоны всех этажей, зависших над «исчезнувшим» пилоном на i-том этаже, поворачиваются вместе с нижним перекрытием вокруг мгновенного центра вращения на пересечении осей Б и 3, стык пилона с верхним перекрытием разрушается по срезу.

Работа пилона

Вес пилона G = 66 кН; перемещение под центром тяжести пилона и = 13/14 = 0,93; работа внешних сил Uw,in = 66 × 0,93 = 61 кН.

Сопротивление обрушению перекрытия

Работа внутренних сил перекрытия суммируется по всем показанным на рисунке А1.3 и пронумерованным цифрами пластическим шарнирам Wp = ∑Wpj (j = 1, ... 4).

Для каждого пластического шарнира Wpj = Mpjwj, где Mpj - изгибающий момент, воспринимаемый сечением перекрытия вдоль рассматриваемого пластического шарнира; wj - угол излома плиты.

Работа внутренних сил на перемещениях пластических шарниров:

шарнир 1: M¢1 = 28 × (cos24° + sin24°) × 16,3 = 603 кНм; w1 = 1/4,3 = 0,233 м-1; Wp1 = 603 × 0,233 = 140 кН;

шарнир 2: М¢2 = 28 × (cos14° + sin14°) × 15,5 = 526 кНм; w2 = 1/4,7 = 0,213 м-1; Wp2 = 526 × 0,213 = 112 кН;

шарнир 3: М3 = 28 × (cos6° + sin6°) × 14,2 = 437 кНм; w3 = 1/4,5 = 0,222 м-1; Wp3 = 437 × 0,222 = 97 кН;

шарнир 4: М4 = М3 = 437 кНм; w4 = 1/5 = 0,2 м-1; Wp4 = 437 × 0,2 = 87 кН всего по перекрытию: Wp = 140 + 112 + 97 + 87 = 436 кН.

Работа внешних сил на перемещениях перекрытия (см. рисунок А1.3)

Up = 8,9 × (38 × 0,34 + 29 × 0,28) = 187 кН.

Наружные стены.

Работа внутренних сил Ww,ex = 0.

Работа внешних сил Uw,ex = 11,1 × (5,4 × 0,5 + 6 × 0,5) = 61 кН.

РИСУНОК А1.3 СХЕМА 1. МЕХАНИЗМ ОБРУШЕНИЯ ВТОРОГО ТИПА.

Проверка общего условия невозможности образования механизма второго типа.

Проверка производится по формуле (2) данных Рекомендаций

W = Wp = 436 кН (без учета работы пилона на срез);

U = Uw,in + Up + Uw,ex = 61 + 187 + 61 = 309 кН < 436 кН.

Условие устойчивости выполнено W > U даже без учета работы пилона на срез. Прогрессирующее обрушение второго типа невозможно.

А1.2.2.3 Оценка возможности возникновения механизма прогрессирующего обрушения третьего типа.

Для третьего механизма обрушения (рисунок А1.4) рассматривается отрыв перекрытия, расположенного непосредственно над локальным разрушением, от расположенного на нем пилона, пластические шарниры в плите те же, что и в п. А1.2.2.2.

Работа внутренних сил перекрытия W = 436 кН.

Работа внешних сил U = Up + Uw,ex = 187 + 61 = 248 кН < 436 кН, условие устойчивости выполнено и без учета работы пилона на растяжение. Прогрессирующее обрушение третьего типа невозможно.

А1.2.2.4 Оценка возможности возникновения механизма прогрессирующего обрушения четвертого типа.

Рассматривается отрыв перекрытия, расположенного непосредственно над локальным разрушением, вместе с расположенным на нем пилоном - от верхнего перекрытия (рисунок А1.5), пластические шарниры в плите те же, что и в п. А1.2.2.2. Работа внешних сил U = 309 кН < 436 кН, условие устойчивости выполнено и без учета работы пилона на растяжение. Прогрессирующее обрушение четвертого типа невозможно.

РИСУНОК A1.4 СХЕМА 1. МЕХАНИЗМ ОБРУШЕНИЯ ТРЕТЬЕГО ТИПА.

РИСУНОК A1.5 СХЕМА 1. МЕХАНИЗМ ОБРУШЕНИЯ ЧЕТВЕРТОГО ТИПА.

А1.2.3. Проверка устойчивости здания при локальном разрушении его несущих конструкций по схеме № 2.

Рассматривается обрушение конструктивной ячейки в осях А-Б и 1-3 (рисунок А1.6). Первично разрушаются два пилона i-го этажа, расположенные на пересечении осей 1 и А (сечением 40´170 см2) и осей 2 и А (сечением 50´200 см2). Проверяется невозможность обрушения зависших над локальным разрушением участков перекрытий и пилонов. Поскольку пилоны с другими вертикальными конструкциями соединяются только через перекрытие, прогрессирующему обрушению в данном случае сопротивляется на каждом этаже только перекрытие, разрушающееся с образованием пластических шарниров, и стыки перекрытия с пилонами.

А1.2.3.1. Оценка возможности возникновения механизма прогрессирующего обрушения первого типа

Гипотетическая схема прогрессирующего обрушения представлена на рисунке А1.6. Пилоны всех этажей, зависших над «разрушенными» пилонами на i-том этаже, одновременно поступательно смещаются вниз, в перекрытии образуются пластические шарниры с растяжением верхней (сплошная линия) и нижней (пунктирная линия) арматуры.

Работа пилонов

Пилоны поступательно смещаются вниз без разрушения, Ww,in = 0.

Вес пилонов G = 25 × 0,4 × 1,7 × 3,3 + 25 × 0,5 × 2 × 3,3 = 56 + 83 = 139 кН; u = 1; работа внешних сил Uw,in = 139 × 1 = 139 кН.

Сопротивление обрушению перекрытия

Работа внутренних сил перекрытия суммируется по всем показанным на рисунке А1.6 и пронумерованным цифрами в кружках пластическим шарнирам Wp = ∑Wpj, (j = 1, ... 8).

Работа внутренних сил на перемещениях пластических шарниров:

шарнир 1: M1 = 28 × 2,2 = 61,8 кНм; w1 = 1/7,3 = 0,136 м-1; Wp1 = 61,8 × 0,136 = 8 кН;

шарнир 2: М2 = 28 × (cos3° + sin3°) × 7,2 = 211,8 кНм; w2 = 1/4 = 0,25 м-1; Wp2 = 211,8 × 0,25 = 53 кН;

шарнир 3: М¢3 = 28 × (cos8° + sin8°) × 13,5 = 427 кНм; w3 = 1/4,5 = 0,222 м-1; Wp3 = 427 × 0,222 = 95 кН;

РИСУНОК А1.6 СХЕМА 2. МЕХАНИЗМ ОБРУШЕНИЯ ПЕРВОГО ТИПА.

шарнир 4: М¢4 = 28 × (cos89° + sin89°) × 7,8 = 219 кНм; w4 = 1/7,3 = 0,137 м-1; Wp4 = 219 × 0,137 = 30 кН;

шарнир 5: М5 = 28 × (cos37° + sin37°) × 9,2 = 361 кНм; w5 = 1/5,1 = 0,196 м-1; Wp5 = 361 × 0,196 = 71 кН;

шарнир 6: М6 = М5 = 361 кНм; w6 = 1/11,9 = 0,084 м-1; Wp6 = 361 × 0,084 = 30 кН;

шарнир 7: М7 = 28 × (cos31° + sin31°) × 7 = 270 кНм; w7 = 1/5,8 = 0,172 м-1; Wp7 = 270 × 0,172 = 46 кН;

шарнир 8: М8 = М7 = 270 кНм; w8 = 1/4,8 = 0,208 м-1; Wp8 = 270 × 0,208 = 56 кН;

всего по перекрытию Wp = 8 + 53 + 95 + 30 + 71 + 30 + 46 + 56 = 389 кН.

Работа внешних сил на перемещениях перекрытия

Up = 8,9 × (41,7 × 0,422 + 36,3 × 0,411) + 7 × 11 × 1 = 366 кН.

Наружные стены и ограждение балкона

Работа внутренних сил Ww,ex = 0. Работа внешних сил

Uw,ex = 11,1 × (6,5 × 1 + 7,3 × 0,5 + 4,5 × 0,5) + 3,5 × 9 × 1 = 170 кН.

Проверка общего условия невозможности образования механизма первого типа:

W = Wp = 389 кН;

U = Uw,in + Up + Uw,ex = 139 + 366 + 170 = 675 кН > 389 кН.

Условие устойчивости конструкций нарушено W < U.

Поскольку в рассматриваемой схеме только перекрытие оказывает сопротивление прогрессирующему обрушению, необходимо усилить армирование перекрытия.

На участке верхнего пластического шарнира 4 принимается дополнительная верхняя продольная (параллельная буквенным осям) арматура класса А400, с площадью сечения Аs = 38 см2/пог. м (Æ 22 с шагом 100 мм). Дополнительный предельный изгибающий момент в сечении Dm¢1 = 229,6 кНм/пог. м, дополнительная работа DW4 = 30 × 229,6/28 = 246 кН. В зоне нижних пластических шарниров 5 и 6 (см. рисунок А1.6) на полосе шириной 3 м принимается дополнительная нижняя продольная и поперечная арматура класса А400, площадью сечения As = 13,4 см2/пог. м (Æ 16 с шагом 150 мм). Дополнительный предельный изгибающий момент в сечении Dm1 = Dт2 = 94,5 кНм/пог. м; DW5,6 = (71 + 30) × 94,5/28 × 3,7/9,2 = 137,1 кН, тогда Wp = 389 + 246 + 137,1 = 772,1 кН > 675 кН. Условие устойчивости конструкций выполнено W > U.

Арматурные стержни должны быть заведены за сечение, где они учитываются с полным расчетным сопротивлением, на длину анкеровки в соответствии с требованиями [6].

А1.2.3.2. Оценка возможности возникновения механизма прогрессирующего обрушения второго типа

Гипотетическая схема прогрессирующего обрушения представлена на рисунке А1.7. В перекрытии образуется диагональный пластический шарнир с растяжением верхней арматуры. Пилоны всех этажей, зависших над «разрушенными» пилонами на i-том этаже, поворачиваются вместе с нижним перекрытием вокруг мгновенной оси вращения, совпадающей с пластическим шарниром в перекрытии, стыки пилонов с верхним перекрытием разрушаются по срезу.

Работа пилонов

Вес пилонов G = 56 + 83 = 139 кН; вертикальные перемещения под центрами тяжести пилонов u1 = 4/4,2 = 0,95, и2 = 2,5/4,2 = 0,6; работа внешних сил Uw,in = 56 × 0,95 + 83 × 0,6 = 103 кН.

Сопротивление обрушению перекрытия

М¢ = 28 × (cos26° + sin26°) × 13,7 = 513 кНм; w = 1/4,2 = 0,238 м-1; Wp = 513 × 0,238 = 122 кН.

Работа внешних сил на перемещениях перекрытия:

Up = 8,9 × 31 × 0,36 + 7 × 11 × 1,02 = 178 кН.

Наружные стены и ограждение балконов

Работа внутренних сил Ww,ex = 0.

Работа внешних сил на перемещениях наружных стен

Uw,ex = 11,1 × (7,3 × 1,5/4,2 + 6,5 × 3,6/4,2 + 4,5 × 2/4,2) + 3,5 × 9 × 5/4,2 = 147 кН.

Проверка общего условия невозможности образования механизма второго типа:

U = Uw,in + Up + Uw,ex = 103 + 178 + 147 = 428 кН > 122 кН.

Условие устойчивости конструкций нарушено W < U.

Для выполнения условия устойчивости величина работы внутренних сил пилонов на срез должна быть не менее Ww,in = 428 - 122 = 306 кН.

РИСУНОК А1.7 СХЕМА 2. МЕХАНИЗМ ОБРУШЕНИЯ ВТОРОГО ТИПА.

Перемещение по линии действия усилия сдвига w - Hf/r, где расстояние от наружного торца пилона на пресечении осей 1 и А (точка с единичным вертикальным перемещением) до оси вращения r = 4,2 м; w = 3,3/4,2 = 0,786. Усилие сдвига, воспринимаемое каждым пилоном должно быть не менее S = 306/(2 × 0,786) = 194,6 кН. Площадь вертикальной арматуры для каждого пилона должна быть не менее Аs = 194,6/32 = 6,08 см2. При установке указанной арматуры условие устойчивости конструкций выполнено W > U, прогрессирующее обрушение второго типа невозможно.

А1.2.3.3. Оценка возможности возникновения механизма прогрессирующего обрушения третьего типа.

Для третьего механизма обрушения (рисунок А1.8) рассматривается отрыв перекрытия, расположенного непосредственно над локальным разрушением, от расположенных на нем пилонов, пластический шарнир в плите тот же, что и в п. А1.2.3.2.

Работа внешних сил U = Up + Uw,ex = 178 + 147 = 325 кН.

Для пилонов принимаем армирование по п. А1.2.3.2, тогда предельное усилие растяжения в сечении пилонов S = 40 × 6,08 = 243,2 кН (см. п. А1.1.3), вертикальные перемещения плиты под центрами тяжести пилонов w1 = 0,95, w2 = 0,6; работа внутренних сил Ww,in = 243,2 × (0,95 + 0,6) = 377 кН. W = Ww,in + Wp = 377 + 122 = 499 кН > 325 кН. Условие устойчивости выполнено W > U. Прогрессирующее обрушение третьего типа невозможно.

А1.2.3.4. Оценка возможности возникновения механизма прогрессирующего обрушения четвертого типа.

Рассматривается отрыв перекрытия, расположенного непосредственно над локальным разрушением, вместе с расположенными на нем пилонами - от верхнего перекрытия (рисунок А1.9), пластический шарнир в плите тот же, что и в п. А1.2.3.2. Работа внешних сил U = 428 кН.

Для пилонов принимаем армирование но п. А1.2.3.2, тогда предельное усилие растяжения в сечении пилонов S = 243,2 кН, вертикальные перемещения w1 = 0,95 и w2 = 0,6; работа внутренних сил Ww,in = 243,2 × (0,95 + 0,6) = 377 кН. Суммарная работа внутренних сил W = Ww,in + Wp = 377 + 122 = 499 кН > 428 кН. Условие устойчивости выполнено W > U. Прогрессирующее обрушение четвертого типа невозможно.

Описание: 1

РИСУНОК А1.8 СХЕМА 2. МЕХАНИЗМ ОБРУШЕНИЯ ТРЕТЬЕГО ТИПА.

Описание: 1

РИСУНОК А1.9 СХЕМА 2. МЕХАНИЗМ ОБРУШЕНИЯ ЧЕТВЕРТОГО ТИПА.

А1.2.4 Проверка устойчивости здания при локальном разрушении его несущих конструкций по схеме № 3

Рассматривается обрушение конструктивной ячейки между осями А-В и 1-3. Первично разрушаются три пилона i-го этажа, расположенных на пересечениях осей А и 1, А и 2, Б и 1. Проверяется невозможность обрушения зависших над локальным разрушением конструкций. Прогрессирующему обрушению сопротивляется на каждом этаже только перекрытие, разрушающееся с образованием пластических шарниров, и стыки перекрытия с пилонами.

А1.2.4.1 Оценка возможности возникновении механизма прогрессирующего обрушения первого типа

Пилоны всех этажей, зависших над «разрушенными» пилонами на i-том этаже, одновременно поступательно смещаются вниз, в перекрытии образуются пластические шарниры с растяжением верхней и нижней арматуры. Рассмотрено три варианта разрушения.

ВАРИАНТ 1

Гипотетическая схема прогрессирующего обрушения представлена на рисунке А1.10

Работа пилонов

Пилоны поступательно смещаются вниз без разрушения, Ww,in = 0. Вес пилонов G1 = 66 кН, G2 = 83 кН, G3 = 56; G = G1 + G2 + G3 = 205 кН; вертикальные перемещения u1 = и2 = u3 = 1; работа внешних сил Uw,in = 205 × 1 = 205 кН.

Сопротивление обрушению перекрытия

Работа внутренних сил на перемещениях пластических шарниров:

шарнир 1: М1 = 28 × (cos37° + sin37°) × 9,3 = 365 кНм; w1 = 1/11,8 = 0,084 м-1; Wp1 = 365 × 0,084 = 31 кН;

шарнир 2: М2 = 28 × (cos43° + sin43°) × 6,2 = 245,4 кНм; w2 = 1/9,1 = 0,11 м-1; Wp2 = 245,4 × 0,11 = 27 кН;

шарнир 3: М¢3 = 28 × 7,6 = 212,8 кНм; w3 = 1/7,8 = 0,137 м-1; Wp3 = 212,8 × 0,137 = 27 кН;

шарнир 4: М¢4 = 28 × (cos14° + sin 14°) × 15,5 = 526 кНм; w4 = 1/4 = 0,25 м-1; Wp4 = 526 × 0,25 = 132 кН;

РИСУНОК А1.10 СХЕМА 1. ВАРИАНТ 1. МЕХАНИЗМ ОБРУШЕНИЯ ПЕРВОГО ТИПА.

шарнир 5: М5 = 28 × (cos6° + sin6°) × 12 = 373,4 кНм; w5 = 1/4,3 = 0,233 м-1; Wp5 = 373,4 × 0,233 = 87 кН;

шарнир 6: М6 = 28 × 2,2 = 61,6 кНм; w6 = 1/4,8 = 0,208 м-1; Wp6 = 61,6 × 0,208 = 13 кН;

шарнир 7: М7 = 28 × (cos59° + sin59°) × 5,7 = 220 кНм; w7 = 1/5,6 = 0,178 м-1; Wp7 = 220 × 0,178 = 39 кН;

шарнир 8: M8 = 28 × 2,2 = 61,6 кНм; w8 = 1/7,3 = 0,137 м-1; Wp7 = 61,6 × 0,137 = 8 кН;

всего по перекрытию

Wp = 31 + 27 + 27 + 132 + 87 + 13 + 39 + 8 = 364 кН.

Работа внешних сил на перемещениях перекрытия Up = ∑Upj (j = 1, ... 6) Upj = qjFjUj, где qj - распределенные внешние нагрузки; Fj - площадь обрушаемой части плиты перекрытия, к которой эти нагрузки приложены; uj - перемещение центра тяжести j-ой части плиты.

Up = 8,9 × (31 × 0,325 + 28,6 × 0,67 + 16 × 1 + 35 × 0,411 + 4,8 × 0,653) + 7 × 11 × 1 = 635 кН.

Наружные стены и ограждение балконов

Работа внутренних сил Ww,ex = 0.

Работа внешних сил на перемещениях наружных стен Uw,ex = ∑Uw,exj.

Uwex,j = pjdjuj, где pj - вес 1 пог. м наружной стены или ограждения балкона; dj - длина участка наружной стены; uj - вертикальное перемещение центра тяжести участка наружной стены.

Uw,ex = 11,1 × (7,3 × 0,5 + 5,5 × 0,5 + 6,5 × 1 + 4,5 × 1) + 3,5 × 9 × 1 = 223 кН.

Проверка общего условия невозможности образования механизма первого типа

W = Wp = 364 кН;

U = Uw,in + Up + Uw,ex = 205 + 635 + 223 = 1063 кН > 364 кН.

Условие устойчивости конструкций нарушено W < U.

При дополнительном армировании перекрытия, принятом в п. А1.2.3.1 DW3 = 239 кН; DW1 = 40 кН; DW5 = 73 кН; суммарная работа W = 364 + 239 + 40 + 73 = 716 кН < 1063 кН. Увеличиваем армирование на всем участке, перекрывающем пластические шарниры 1, 2, 5: нижняя арматура Æ 16А400 с шагом 150 мм (продольная и поперечная). DW1,2,5 = (31 + 27 + 87) × 94,5/28 = 489 кН; суммарная работа W = 364 + 239 + 489 = 1092 кН > 1063 кН, условие устойчивости выполнено W > U. Прогрессирующее обрушение первого типа невозможно.

ВАРИАНТ 2

Гипотетическая схема прогрессирующего обрушения представлена на рисунке А1.11.

Сопротивление обрушению перекрытий

Работа внутренних сил перекрытия суммируется по всем показанным на рисунке A1.11 и пронумерованным цифрами в кружках пластическим шарнирам Wp = ∑Wpj (j = 1, ... 7).

Работа внутренних сил на перемещениях пластических шарниров при учете только фонового армирования:

шарнир 1: M¢1 = 28 × 15,1 = 422,8 кНм; w1 = 1/4,8 = 0,208 м-1; Wp1 = 422,8 × 0,208 = 88 кН;

шарнир 2: М¢2 = 28 × 11,3 = 316,4 кHм; w2 = 1/7,3 = 0,137 м-1; Wp2 = 316,4 × 0,137 = 43,3 кН;

шарнир 3: М3 = 28 × 2,2 = 61,6 кНм; w3 = 1/4,8 = 0,208 м-1; Wp3 = 61,6 × 0,208 = 12,8 кН;

шарнир 4: М4 = 28 × 2,2 = 61,6 кНм; w4 = 1/7,3 = 0,137 м-1; Wp4 = 61,6 × 0,137 = 8,4 кН;

шарнир 5: М5 = 28 × (cos22° + sin22°) × 12,8 = 466,5 кНм; w5 = 1/5,2 = 0,192 м-1; Wp5 = 466,5 × 0,192 = 89,6 кН;

шарнир 6: M6 = 28 × (cos51° + sin51°) × 11,7 = 460,7 кНм; w6 = 1/9,3 = 0,108 м-1; Wp6 = 460,7 × 0,108 = 49,7 кН;

шарнир 7: М7 = 28 × (cos43° + sin43°) × 6,3 = 249,3 кНм; w7 = 1/11,6 = 0,086 м-1; Wp7 = 249,3 × 0,086 = 21,4 кН;

всего по перекрытию

Wp = 88 + 43,3 + 12,8 + 8,4 + 89,6 + 49,7 + 21,4 = 313,2 кН.

Работа внешних сил на перемещениях перекрытия

Up = 8,9 × (40,8 × 0,375 + 36,6 × 0,664 + 48 × 0,384 + 16 × 1) + 7 × 11 × 1 = 736 кН.

рисунок А1.11 СХЕМА 3. ВАРИАНТ 2. МЕХАНИЗМ ОБРУШЕНИЯ ПЕРВОГО ТИПА.

Наружные стены и ограждение балконов

Работа внутренних сил Ww,ex = 0. Работа внешних сил

Uw,ex = 11,1 × (7,3 × 0,5 + 5 × 0,5 + 6,5 × 1 + 4,5 × 1) + 3,5 × 9 × 1 = 221,8 кН.

Проверка общего условия невозможности образования механизма первого типа

W = Wp = 313,2 кН;

U = Uw,in + Up + Uw,ex = 205 + 736 + 221,8 = 1162,8 кН > 313,2 кН.

Условие устойчивости конструкций нарушено W < U.

В перекрытии принимается дополнительная верхняя арматура, перекрывающая пластические шарниры 1 (стержни параллельны цифровым осям) и 2 (стержни параллельны буквенным осям), класса А400, с площадью сечения As = 38 см2/пог. м (Æ 22 с шагом 100). Дополнительные предельные изгибающие моменты в сечении Dm¢1 = Dm¢2 = 229,6 кНм/пог. м; DW = 1076,7 кН. Wp = 1076,7 + 313.2 = 1389,9 кН > 1162,8 кН. Условие устойчивости выполнено W > U. Прогрессирующее обрушение первого типа невозможно.

ВАРИАНТ 3

Установлена дополнительная верхняя арматура на участках шириной 2,5 м от осей В и 3 (см. ВАРИАНТ 2). Гипотетическая схема прогрессирующего обрушения представлена на рисунке А1.12. Верхние пластические шарниры 1 и 2 смещаются на край зоны, где дополнительная арматура учитывается с полным расчетным сопротивлением, то есть за вычетом длины анкеровки стержней lа = 575 мм [6].

Сопротивление обрушению перекрытий

На всей площади, перекрывающей пластические шарниры 5, 6 и 7 (рисунок 1.12), учитывается дополнительная нижняя арматура класса А400, площадью сечения As = 13,4 см2/пог.м (Æ 16 с шагом 150 мм, продольная и поперечная). Дополнительный предельный изгибающий момент в сечении Dm1 = Dm2 = Dтр = 94,5 кНм/пог.

Работа внутренних сил на перемещениях пластических шарниров:

шарнир 1: М¢1 = 28 × 12,6 = 352,8 кНм; w1 = 1/2,8 = 0,357 м-1; Wp1 = 352,8 × 0,357 = 126 кН;

шарнир 2: М¢2 = 28 × 9,3 = 260,4 кНм; w2 = 1/5,3 = 0,188 м-1; Wp2 = 260,4 × 0,188 = 49 кН;

РИСУНОК А1.12 СХЕМА 3. ВАРИАНТ 3. МЕХАНИЗМ ОБРУШЕНИЯ ПЕРВОГО ТИПА.

шарнир 3: М3 = 28 × 2,2 = 61,6 кНм; w3 = 1/2,8 = 0,357 м-1; Wp3 = 61,6 × 0,357 = 22 кН;

шарнир 4: М4 = 28 × 2,2 = 61,6 кНм; w4 = 1/5,3 = 0,188 м-1; Wp4 = 61,6 × 0,188 = 11,6 кН;

шарнир 5: M5 = 28 × (cos16° + sin16°) × 10,3 = 356,7 кНм; w5 = 1/3 = 0,333 м-1; Wp5 = 356,7 × 0,333 = 118,8 кН; DW5 = 94,5/28 × 118,8 = 401 кН;

шарнир 6: М6 = 28 × (cos53° + sin53°) × 8,9 = 349 кНм; w6 = 1/6,6 = 0,151 м-1; Wp6 = 349 × 0,151 = 52,7 кН; DW6 = 94,5/28 × 52,7 = 177,8 кН;

шарнир 7: М7 = 28 × (cos43° + sin43°) × 6,3 = 249,3 кНм; w7 = 1/8,8 = 0,114 м-1; Wp7 = 249,3 × 0,114 = 28,4 кН; DW7 = 94,5/28 × 28,4 = 95,8 кН;

всего по перекрытию

Wp = 126 + 49 + 22 + 11,6 + 118,8 + 401 + 52,7 + 177,8 + 28,4 + 95,8 = 1083,1 кН.

Работа внешних сил на перемещениях перекрытия

Up = 8,9 × (21,1 × 0,393 + 27,7 × 0,67 + 30,6 × 0,396 + 16 × 1) + 7 × 11 × 1 - 567 кН.

Наружные стены и ограждение балконов

Работа внутренних сил Ww,ex = 0. Работа внешних сил

Uw,ex = 11,1 × (5,3 × 0,5 + 3 × 0,5 + 6,5 × 1 + 4,5 × 1) + 3,5 × 9 × 1 = 199,7 кН.

Проверка общего условия невозможности образования механизма первого типа

W = Wp = 1083,1 кН;

U = Uw,in + Up + Uw,ex = 205 + 567 + 199,7 = 971,7 кН < 1083,1 кН.

Условие устойчивости выполнено W > U. Прогрессирующее обрушение первого типа невозможно. Возможны другие комбинации усиления перекрытия.

A1.2.4.2 Оценка возможности возникновения механизма прогрессирующего обрушения второго типа

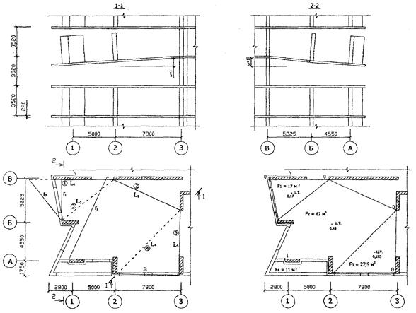
Гипотетическая схема прогрессирующего обрушения представлена на рисунке А1.13. В перекрытии образуются диагональные пластические шарниры с растяжением верхней и нижней арматуры. Пилоны всех этажей, зависших над «разрушенными» пилонами на i-том этаже, поворачиваются вместе с нижним перекрытием вокруг мгновенной оси вращения, совпадающей с пластическим шарниром 2 в перекрытии, стыки пилонов с верхним перекрытием разрушаются по срезу.

Работа пилонов

Вес пилонов: G1 = 66 кН, G2 = 83 кН, G3 = 56 кН; вертикальные перемещения под центрами тяжести пилонов u1 = 6,7/10,7 = 0,626, и2 = 10,5/10,7 = 0,98, и3 = 9,1/10,7 = 0,85; работа внешних сил Uw,in = 66 × 0,626 + 83 × 0,98 + 56 × 0,85 = 170 кН.

Работа внутренних сил по срезу: S = 194,6 × 3 = 583,8 кН (см. п. A1.2.3.2); w = 3,3/10,7 = 0,31; W = 583,8 × 0,31 = 181 кН.

Сопротивление обрушению перекрытия

Принимается дополнительное верхнее армирование для шарниров 1 и 5 согласно ВАРИАНТУ 1 (Æ 22 с шагом 100); дополнительный предельный изгибающий момент в сечении Dm¢1 = Dm¢2 = 229,6 кНм/пог. м. Дополнительное нижнее армирование - по ВАРИАНТУ 3 (Æ 16 с шагом 150 мм, продольная и поперечная); дополнительные предельные изгибающие моменты в сечении Dm¢1 = Dm¢2 = Dmp = 94,5 кНм/пог.

Работа внутренних сил перекрытия суммируется по всем показанным на рисунке А1.13 и пронумерованным цифрами пластическим шарнирам Wp = ∑Wpj (j = 1, ... 5).

Работа внутренних сил на перемещениях пластических шарниров:

шарнир 1: M¢1 = 28 × 7 = 196 кНм; w1 = 6,9/(10,7 × 4,9) = 0,132 м-1; Wp1 = 196 × 0,132 = 25,9 кН; DW1 = 229,6/28 × 25,9 = 212,4 кН;

шарнир 2: М¢2 = 28 × (cos25° + sin25°) × 8,7 = 323,7 кНм; w2 = 1/10,7 = 0,093 м-1; Wp2 = 323,7 × 0,093 = 30,1 кН;

шарнир 3: М3 = 28 × (cos38° + sin38°) × 7,8 = 306,6 кНм; w3 = 6,9/(10,7 × 6,2) = 0,104 м-1; Wp3 = 306,6 × 0,104 = 31,9 кН; DW3 = 94,5/28 × 31,9 × 0,5 = 53,8 кН;

шарнир 4: М4 = 28 × (cos45° + sin45°) × 10,6 = 419,7 кНм; w4 = 10/(10,7 × 9,7) = 0,096 м-1; Wp4 = 419,7 × 0,096 = 40,3 кН; DW4 = 94,5/28 × 40,3 × 0,5 = 68 кН;

шарнир 5: М¢5 = 28 × 7,8 = 218,4 кНм; w5 = 10/(10,7 × 7,3) = 0,128 м-1; Wp5 = 218,4 × 0,128 = 28 кН; DW5 = 229,6/28 × 28 - 229,6 кH;

РИСУНОК А1.13 СХЕМА 3. МЕХАНИЗМ ОБРУШЕНИЯ ВТОРОГО ТИПА.

всего по перекрытию

Wp = 25,9 + 212,4 + 30,1 + 31,9 + 53,8 + 40,3 + 68 + 28 + 229,6 = 720 кН.

Суммарная работа внутренних сил W = 720 + 181 = 901 кН.

Работа внешних сил на перемещениях перекрытия

Up = 8,9 × (17 × 0,17 + 82 × 0,43 + 27,5 × 0,185) + 7 × 11 × 1,02 = 461 кН.

Наружные стены и ограждение балконов

Работа внутренних сил Ww,ex = 0. Работа внешних сил

Uw,ex = 11,1 × (7,3 × 0,29 + 5,5 × 0,25 + 6,5 × 0,89 + 4,5 × 1) + 3,5 × 7,4 × 1,12 = 182 кН.

Проверка общего условия невозможности образования механизма второго типа

U = Uw,in + Up + Uw,ex = 170 + 461 + 182 = 813 кН < 901 кН.

Условие устойчивости конструкций выполнено W > U.

А1.2.4.3 Оценка возможности возникновения механизма прогрессирующего обрушения третьего типа

Для третьего механизма обрушения (рисунок А1.14) рассматривается отрыв перекрытия, расположенного непосредственно над локальным разрушением, от расположенных на нем пилонов, пластический шарнир в плите тот же, что и в п. А1.2.4.2. Работа внутренних сил перекрытия Wp = 720 кН.

Работа внешних сил U = Up + Uw,ex = 461 + 182 = 643 кН < 720 кН. Условие устойчивости выполнено. Прогрессирующее обрушение третьего типа невозможно.

А1.2.4.4 Оценка возможности возникновения механизма прогрессирующего обрушения четвертого типа

Рассматривается отрыв перекрытия, расположенного непосредственно над локальным разрушением, вместе с расположенными на нем пилонами - от верхнего перекрытия (рисунок А1.15), пластический шарнир в плите тот же, что и в п. А1.2.4.2. Работа внутренних сил перекрытия Wp = 720 кН.

Для пилонов принимаем армирование по п. А1.2.3.2, тогда предельное усилие растяжения в сечении пилонов S = 243,2 кН, вертикальные перемещения w1 = 0,626, w2 = 0,98, w3 = 0,85; работа внутренних сил Ww,in = 243,2 × (0,626 + 0,98 + 0,85) = 597,3 кН. Суммарная работа внутренних сил W = Ww,in + Wp = 597,3 + 720 = 1317,3 кН. Работа внешних сил U = 813 кН < 1317,3 кН, условие устойчивости выполнено W > U. Прогрессирующее обрушение четвертого типа невозможно.

рисунок А1.14 схема 3. механизм обрушения третьего типа

РИСУНОК А1.15 СХЕМА 3. МЕХАНИЗМ ОБРУШЕНИЯ ЧЕТВЕРТОГО ТИПА.

А1.3 Расчет вертикальных элементов, расположенных рядом с локальным разрушением

Расчет выполняется по п. 3.6 настоящих Рекомендаций.

Рассмотрены наиболее опасные схемы, когда удаляются одновременно три пилона: схемы 3, 4 и 5 (рисунок А1.1). Для удобства изложения материала пилонам присвоены номера, см. рисунок А1.1.

В таблице А1.3.1 определены расчетные равномерно распределенные нагрузки на перекрытии для основного сочетания нагрузок на стадии эксплуатации (с коэффициентами надежности по нагрузкам [4]). По этим данным с помощью программного комплекса «Мономах 4.0» определены расчетные эксплуатационные нагрузки, передающиеся на рассматриваемые пилоны с перекрытия вышележащего этажа. Величины нагрузок приведены в графе 3 таблицы А1.3.2. Затем с помощью ПК «Мономах 4.0» рассчитаны конструкции с локальными разрушениями для схем 3, 4, 5 на нагрузки от одного вышележащего этажа в соответствии с п. А1.1.2. Результаты приведены в таблице А1.3.2 (графа 4) и подсчитано увеличение усилий в пилонах при рассмотренных схемах локального разрушения по отношению к расчетной эксплуатационной нагрузке. Поскольку увеличение нагрузки в стене 1п (схема 3) и в пилоне 5п (схема 5) превышает 30 %, выполнены МКЭ расчеты конструкций зданий с локальными разрушениями 3, 4, 5 (отдельно для каждой схемы) на нормативные нагрузки и определены усилия в перегруженных пилонах и стенах. Армирование пилонов и стен получено с помощью ОМ «СниП Железобетон» из условия прочности по внецентренному сжатию и приведено в таблице А1.3.3.

Таблица А1.3.1 Нагрузки на перекрытии

Вид нагрузки

Распределенная нагрузка

Коэффициент надежности

Ед. изм.

Нормативное значение

Расчетное значение

Вес плиты

 

1,1

кН/м2

5,5

6,05

Пол

в квартире

1,3

2

2,6

на балконе

1,3

1,2

1,56

Перегородки

 

1,2

1,1

1,32

Временная нагрузка

 

1,3

0,3

1,95

Наружные стены

 

1,1

кН/м

11,1

12,21

Ограждение балкона

 

1,1

3,5

3,85

Всего

в квартире

 

кН/м2

8,9

11,92

на балконе

 

7

9,56

Таблица А1.3.2 Расчетные нагрузки, передающиеся на пилоны (стены) с одного этажа

Пилон (стена)

№ схемы

Сочетание нагрузок (кН/м)

Перегруз %

Особое, при локальном разрушении

Основное (эксплуатационное), без локального разрушения

1

2

3

4

5

1п

3

220

158

39,2

2п

296

238

24,4

3п

4

248

240

3,3

4п

200

170

17,6

5п

5

470

307

53

Таблица А1.3.3 Необходимое армирование пилонов первого этажа из расчета здания с локальным разрушением

Пилон (стена)

Сечение (мм)

Вертикальное усилие (кН)

Изгибающий момент (кНм)

Армирование

диаметр (мм)

шаг

(мм)

1п

4500 × 350

38200

2150

16

100

5п

900 × 50

10100

650

10

100

А1.4 Расчет перекрытия на обрушение участка перекрытия вышележащего этажа

В соответствии с настоящими Рекомендациями п. 3.7 перекрытие здания рассчитано на восприятие веса участка перекрытия вышележащего этажа (постоянная и длительная нагрузки с коэффициентом динамичности kf = 1,5) на площади 80 м2 (здание высотой до 200 м). Участок приложения нагрузок площадью 80 м2 приведем на рисунке А1.16. Нагрузки на перекрытие рассчитываемого этажа: полная распределенная нагрузка 8,9 кН/м2, вес наружных стен 11,1 кН/м; от падающих конструкций вышележащего этажа полная распределенная нагрузка с коэффициентом динамичности 1,5 - 13,35 кН/м2. Расчет выполнен с помощью ПК Лира 9.2. По полученным усилиям с помощью ПК ЛИР-АРМ определено необходимое армирование перекрытия. Расчет арматуры показал, что принятое ранее армирование (п. А1) удовлетворяет условиям прочности перекрытия.

РИСУНОК А1.16. УЧАСТОК ПРИЛОЖЕНИЯ НАГРУЗКИ НА ПЕРЕКРЫТИЕ ТИПОВОГО ЭТАЖА

А2 ПРИМЕР РАСЧЕТА МНОГОФУНКЦИОНАЛЬНОГО СЕМИДЕСЯТИЧЕТЫРЕХ ЭТАЖНОГО ДОМА НА УСТОЙЧИВОСТЬ ПРОТИВ ПРОГРЕССИРУЮЩЕГО ОБРУШЕНИЯ

А2.1 Исходные данные

А2.1.1 Описание конструктивной системы

Многофункциональное 74-этажное здание высотой 266,4 м выполняется из монолитного железобетона. Высота этажа 3,6 м. Здание квадратное в плане, симметричное относительно центральной оси X, на рисунке А2.1 представлен план 2 этажа здания. В здании имеется четыре технических этажа (19, 33, 48 и 63 этажи). Все этажи здания, за исключением технических и расположенных под ними этажей, имеют одинаковое архитектурно планировочное и конструктивное решение. По контуру здания с шагом 9 м установлено 14 прямоугольных колонн, из которых 8 основных колонн (на осях 2, 4, Б и Г на рисунке А2.1) непрерывны по всей высоте дома, а 8 дополнительных имеют разрыв под каждым техническим этажом, т.е. в уровнях 18, 32, 47 и 62 этажей. Колонны связаны между собой железобетонными балками сечением 35´120 см2. Сечение основных колонн меняется по высоте здания от 210´210 см на первом этаже до 40´40 см2 на верхних этажах, а сечение дополнительных колонн меняется от 80´80 см2 на первом (а также 33, 48 и 63) этаже до 40´40 см2 на 17 (31, 46 и 74) этаже. Над отсутствующими колоннами на всех технических этажах устроены железобетонные диафрагмы, соединяющие соседние колонны. Лестнично-лифтовой узел образует ядро жесткости. Толщина стен лестнично-лифтового узла меняется по высоте от 75 см до 25 см.

Перекрытия плоские толщиной 25 см, защитный слой бетона 5 см. По всей площади перекрытий имеется непрерывное «фоновое» армирование верхней и нижней арматурой класса А400. Все несущие конструкции выполнены из тяжелого бетона класса В35.

Ограждающие конструкции предусмотрены навесными из легких небетонных материалов.

На каждом этаже вдоль двух боковых сторон здания устроены балконы в виде консольного свеса плиты перекрытия. Расположение балконов в плане меняется от этажа к этажу «винтообразно».

РИСУНОК А2.1 ПЛАН ВТОРОГО ЭТАЖА.

А2.1.2 Нагрузки

Нормативные равномерно распределенные нагрузки на перекрытии:

- постоянная: собственный вес 6,25 кН/м2; вес пола в квартирах 2,5 кН/м2; вес перегородок внутри помещений 2 кН/м2;

- длительная временная нагрузка в залах, служебных помещениях и на балконах 1,4 кН/м2 [5].

- таким образом, суммарная равномерно распределенная нагрузка на перекрытии 12,15 кН/м2.

Вес ограждающих конструкций 5 кН/пог. м.

А2.1.3 Расчетные сопротивления материалов

Бетон класса по прочности на сжатие В35 [7]: Rh = Rbn = 29 МПа; Rbt = Rbt,n = 2,05 МПа.

Арматура класса А400 [7]: сопротивление растяжению Rs = Rsn = 400 МПа; срезу Rsw = 400 × 0,8 = 320 МПа.

Расчет сечений несущих элементов по прочности выполняется в соответствии с требованиями СП 52-101-03 с использованием программы ОМ «СНиП железобетон» [9].

А2.1.4 Расчетные схемы гипотетических локальных разрушений

Наиболее опасными схемами локальных разрушений являются:

1. разрушение угловой колонны на первом этаже здания на пересечении осей А и 5;

2. разрушение основной колонны на первом этаже здания на пересечении осей А и 4;

3. разрушение одной из основных колонн на 18 этаже здания, т.е. там, где отсутствуют соседние дополнительные колонны;

4. разрушение одной из основных колонн на 32 этаже;

5. разрушение одной из основных колонн на 47 этаже;

6. разрушение одной из основных колонн на 64 этаже;

7. разрушение угловой колонны, воспринимающей нагрузку с балкона, на 73 этаже здания.

А2.2 Проверка устойчивости здания при локальном разрушении его несущих конструкций

Порядок выполнения расчетов принят следующим:

1. Создана модель здания для расчета с использованием программного комплекса Лира 9.2 без учета локальных разрушений. Колонны моделировались стержневыми конечными элементами (на каждом этаже - один конечный элемент), перекрытия и стены лестнично-лифтового узла - оболочечными. Работа ограждающих конструкций не учитывалась. Расчетная схема здания приведена на рисунке А2.2а. Принцип разбивки конструкции на конечные элементы показан на рисунке А2.3.

2. Для каждой из выбранных схем локального разрушения корректировалась расчетная схема здания: модуль упругости конечных элементов, моделирующих удаленный конструктивный элемент принимался близким к нулю (по сравнению с реальным, уменьшен в 10000 раз) так, чтобы усилия в этих конечных элементах были малы (практически равны нулю). В данном примере принималось Е = 3,45 МПа.

3. Для всех выбранных схем локального разрушения с учетом геометрической и физической нелинейности выполнен расчет здания, т.е. определены усилия в конечных элементах. Деформированное состояние конструкций здания при разрушении колонны на пересечении осей А и 5 на 1 этаже (схема № 1) представлено на рисунке А2.2б, а на рисунке А2.4 - деформированное состояние конструкций непосредственно над локальным разрушением.

4. Исходные данные и результаты расчета по Лире 9.2 (для всех выбранных схем локального разрушения) в виде текстового файла считывались в программу «ОМ СНиП Железобетон» со специально разработанным блоком «Прогрессирующее обрушение».

5. В программе «ОМ СНиП Железобетон» назначались группы элементов с одинаковыми геометрическими характеристиками, в которых предполагается одинаковое армирование. В группы объединялись:

а) элементы основных колонн одинакового поперечного сечения (одинаковой жесткости);

б) элементы дополнительных колонн одинакового поперечного сечения (одинаковой жесткости);

в) участки балок в пролете (одна группа по всем этажам);

г) участки балок у колонн (одна группа по всем этажам);

д) участки перекрытий, где предполагается одинаковое армирование.

На рисунке А2.5 показаны группы элементов перекрытий (для 1, 2 и 3 этажей).

6. С использованием геометрических характеристик сечений, содержащихся в исходных данных, на усилия, полученные из расчета по Лире 9.2, для каждой группы сечений перебором по всем заданным схемам локального разрушения выбиралось необходимое армирование, удовлетворяющее условиям прочности при любой схеме. В случае, если в каких-то конструктивных элементах требуемое армирование превышает предусмотренное в проекте из расчета на эксплуатационные (или монтажные) нагрузки, необходимо откорректировать проектное решение.

Результаты подбора арматуры для 1 и 3 группы элементов перекрытия (рисунок А2.5) 1, 2 и 3 этажей из расчета устойчивости здания против прогрессирующего обрушения для схем № 1 и № 2 локального разрушения на первом этаже приведены в таблице А2. Приведенное в таблице армирование принято по максимальному значению в данной группе элементов из перебора двух схем локальных разрушений. Кроме того в таблице А2 приведены результаты подбора арматуры конструктивных элементов при действии эксплуатационных нагрузок (с учетом ветрового воздействия). В таблице в числителе указана верхняя арматура, в знаменателе - нижняя.

Таблица А2

Характеристики армирования

Группа элементов

1

3

Арматура вдоль оси

X

У

X

У

Шаг арматурных стержней, см

14

14

14

14

Диаметр (мм) арматуры из расчета

На устойчивость против прогрессирующего обрушения

Æ 8/Æ 12

Æ 8/Æ 10

Æ 22/Æ 8

Æ 8/Æ 8

На эксплуатацию по прочности

Æ 8/Æ 14

Æ 8/Æ 12

Æ 16/Æ 8

Æ 8/Æ 8

На эксплуатацию по трещиностойкости

Æ 8/Æ 16

Æ 8/Æ 14

Æ 18/Æ 8

Æ 8/Æ 8

Принять в проекте

Æ 8/Æ 16

Æ 8/Æ 14

Æ 22/Æ 8

Æ 8/Æ 8

Из таблицы видно, что в перекрытии дополнительное (по сравнению с расчетом на эксплуатацию) армирование для защиты от прогрессирующего обрушения требуется только в третьей группе элементов, т.е. на полосе между основными колоннами и лестнично-лифтовым узлом, где необходимо увеличить площадь верхней арматуры вдоль оси X. Для участков перекрытия, входящих в группу 1, лимитирующим является расчет на эксплуатационные нагрузки.

Аналогично выполняется анализ результатов расчета вертикальных элементов.

Рисунок А2.2 Расчетная модель здания

а) исходное состояние; б) деформированное состояние при локальном разрушении по схеме 1

Рисунок А2.3 Разбивка конструкции на конечные элементы (фрагмент)

Рисунок А2.4 Деформированное состояние конструкции, расположенных непосредственно над локальным разрушением

Рисунок А2.5 Объединение конечных элементов перекрытия в группы

СПИСОК ЛИТЕРАТУРЫ

1. «Рекомендации по защите жилых зданий стеновых конструктивных систем при чрезвычайных ситуациях», Комплекс архитектуры, строительства, реконструкции и развития города, М., 2000 г.

2. «Рекомендации по защите жилых каркасных зданий при чрезвычайных ситуациях», Москомархитектура, М, 2002 г.

3. «Рекомендации по защите жилых зданий с несущими кирпичными стенами при чрезвычайных ситуациях», Москомархитектура, М., 2002 г.

4. «Рекомендации по защите монолитных жилых зданий от прогрессирующего обрушения», Москомархитектура, М., 2005 г.

5. СНиП 2.01.07-85*. Нагрузки и воздействия. М., 2004 г.

6. СНиП 2.03.01-84*. Бетонные и железобетонные конструкции. М., 1996 г.1

1 Действует до вступления в силу соответствующего технического регламента.

7. СНиП 52-01-2003. Бетонные и железобетонные конструкции. Основные положения. М., 2004 г.2

8. СП 52-101-03. Бетонные и железобетонные конструкции без предварительного напряжения арматуры. М., 2003 г.2

2 Носит рекомендательный характер до регистрации Минюстом России.

9. ОМ «СНиП железобетон». Описание программы см. www.dataforce.nel/~Krakov.

10. СНиП 21-01-97*. Пожарная безопасность зданий и сооружений. М., 1999 г.

11. МГСН 3.01-01. Жилые здания. М., 2001 г.

12. МГСН Многофункциональные высотные здания и комплексы. М., 2004 г.

13. Городецкий А.С., Батрак Л.Г., Городецкий Д.А., Лазнюк М.В., Юсипенко С.В. «Расчет и проектирование конструкций высотных зданий из монолитного железобетона», Киев «ФАКТ», 2004 г.

 

 



© 2013 Ёшкин Кот :-)