Информационная система
«Ёшкин Кот»

XXXecatmenu

ПРАВИТЕЛЬСТВО МОСКВЫ

МОСКОМАРХИТЕКТУРА

РЕКОМЕНДАЦИИ

по проектированию учреждений
начального и среднего
профессионального образования

Выпуск 1

Общие требования.
Общие и общеобразовательные помещения

 

 

2006

 

Предисловие

1. Разработаны ФГУП «Институт общественных зданий» Росстроя (канд. арх. Рождественский Д.А. - научный руководитель, канд. арх. Гарнец A.M., инж. Сигачева Л.В., при участии арх. Софронова Е.В., арх. Одинцовой О.П.) с участием Департамента образования г. Москвы (канд. пед. наук Александров А.Е., канд. псих. наук Павлов И.С., пед. Данилова Т.В., пед. Семаго Е.В.).

2. Подготовлены к утверждению и изданию Управлением перспективного проектирования и нормативов Москомархитектуры.

3. Согласованы с Департаментом образования г. Москвы, Москомархитектурой.

4. Утверждены приказом Москомархитектуры № 150 от 01.08.2006

Введение

Рекомендации по проектированию учреждений начального и среднего профессионального образования состоят из двух выпусков:

Выпуск 1. Общие требования. Общие и общеобразовательные помещения.

Выпуск 2. Профилирующие учебно-производственные помещения.

Рекомендации разработаны с учетом современного этапа развития начального и среднего профессионального образования в г. Москве, характеризующегося:

- объединением близких по профилю учебных учреждений в колледжи - программно-отраслевые и территориально-отраслевые комплексы;

- объединением начального, и среднего уровней профессионального образования под эгидой одного учебного учреждения (колледжа) и приближения уровня образования в колледже к вузовскому;

- повышением уровня развития технологии образования и методов управления образовательным процессом;

- повышением требований к объектам нового строительства реконструкции учебных зданий.

Настоящий - первый выпуск Рекомендаций затрагивает общие вопросы проектирования учреждений начального и среднего профессионального образования и функциональной группы их общеобразовательных помещений. Специальные требования, зависящие от отраслевой принадлежности учебных учреждений, и вопросы проектирования функциональной группы профилирующих учебно-производственных помещений будут рассмотрены во втором Выпуске настоящих Рекомендаций.

 

СОДЕРЖАНИЕ

1. Область применения. 1

2. Нормативные ссылки. 2

3. Основные положения. 3

4. Организация сети. 3

5. Требования к размещению и организации участка. 4

6. Объемно-планировочные решения. 7

7. Основные группы помещений. 9

8. Требования к пожарной безопасности. 13

9. Требования к внутренней среде и инженерному оснащению зданий. 14

Приложение 1. Примерные площади участков учреждений начального и среднего профессионального образования. 18

Приложение 2. Примерный состав открытых плоскостных спортивных сооружений учреждений начального и среднего профессионального образования. 18

Приложение 3. Варианты блокировки основных групп помещений при различных объемно-планировочных решениях зданий. 18

Приложение 4. Рекомендуемые удельные показатели площади учебных помещений. 19

Приложение 5. Рекомендуемый состав учебно-спортивных залов учебных учреждений различной величины.. 19

Приложение 6. Примерный состав и площади вспомогательных помещений при спортивных залах. 20

Приложение 7. Примерный состав и площади зрелищно-клубных помещений. 20

Приложение 8. Примерны состав площади основных групп помещений учебной библиотеки. 21

Приложение 9. Примерный состав и площади административно-хозяйственных помещений. 21

Приложение 10. Примерный состав и площади помещений общественного назначения. 21

Приложение 11. Примерные состав, площади и количество санитарных приборов вспомогательных помещений. 22

Приложение 12. Расчетные показатели температуры воздуха и воздухообмена в помещениях различного функционального назначения. 22

1. ОБЛАСТЬ ПРИМЕНЕНИЯ

1.1. Рекомендации разработаны для г. Москвы и распространяются на проектирование вновь строящихся и реконструируемых зданий и комплексов учреждений начального и среднего профессионального образования, независимо от их организационно-правовых форм и форм собственности.

1.2. Рекомендации устанавливают основные требования к размещению, участку, функциональным группам помещений, объемно-планировочным решениям, инженерному оборудованию и внутренней среде учебных учреждений.

2. НОРМАТИВНЫЕ ССЫЛКИ

2.1. В настоящих Рекомендациях приведены ссылки на следующие документы:

СНиП 2.07.01-89* «Градостроительство. Планировка и застройка городских и сельских поселений»;

СНиП 2.08.02-89* «Общественные здания и сооружения»;

СНиП 35-01-2001 «Доступность зданий и сооружений для маломобильных групп населения»;

СНиП 2.08.01-89* «Жилые здания»;

СНиП 21-01-97* «Пожарная безопасность зданий и сооружений»;

СНиП 23-05-95* «Естественное и искусственное освещение»;

СНиП 2.04.01-85* «Внутренний водопровод и канализация зданий»;

СНиП 41-01-2003 «Отопление, вентиляция и кондиционирование»;

СНиП 41-02-2003 «Тепловые сети»;

СНиП 23-03-2003 «Защита от шума»;

СанПиН 2.1.2.1188-03 «Плавательные бассейны. Гигиенические требования к устройству, эксплуатации и качеству воды. Контроль качества»;

СанПиН 2.2.1/2.1.1.1278-03 «Гигиенические требования к естественному, искусственному и совмещенному освещению жилых и общественных зданий»;

СанПиН 2.2.1/2.1.1.1031-01 «Санитарно-защитные зоны и санитарная классификация предприятий сооружений и иных объектов»;

СанПиН 2.4.3.1186-03 «Санитарно - эпидемиологические требования к организации учебно-производственного процесса в образовательных учреждениях начального профессионального образования»;

СанПиН 2.2.1/2.1.1.1076-01 «Гигиенические требования к инсоляции и солнцезащите помещений жилых и общественных зданий и территорий»;

СанПиН 2.2.2/2.4.1340-03 «Гигиенические требования к видеодисплейным терминалам, персональным электронно-вычислительным машинам и организации работы»;

ПУЭ «Правила устройства электроустановок». 2002 г.;

НПБ 88-01* «Установки пожаротушения и сигнализации. Нормы и правила проектирования»;

НПБ 104-03 «Системы оповещения и управления эвакуацией людей при пожарах в зданиях и сооружения»;

НПБ 110-03 «Перечень зданий, сооружений, помещений и оборудования, подлежащих защите автоматическими установками пожаротушения и автоматической пожарной сигнализацией»;

РД 34.21.122-87 «Инструкция по устройству молниезащиты зданий и сооружений»;

МГСН 1.01-99 «Нормы и правила проектирования планировки и застройки Москвы»;

МГСН 2.01-99 «Энергосбережение в зданиях»;

МГСН 4.17-98 «Культурно-зрелищные учреждения»;

СП 31-110-2003 «Проектирование и монтаж электроустановок жилых и общественных зданий»;

МГСН 5.01-01 «Стоянки легковых автомобилей»;

МГСН 4.14-98 «Предприятия общественного питания»;

СП 31-112-2004(1) «Физкультурно-спортивные залы»;

СП 31-113-2004 «Бассейны для плавания»;

СП 35-101-2001 «Проектирование зданий и сооружений с учетом доступности для маломобильных групп населения»;

СН 441-72* «Указания по проектированию ограждений площадок и участков предприятий, зданий и сооружений»;

3. ОСНОВНЫЕ ПОЛОЖЕНИЯ

3.1. Учреждения начального и среднего профессионального образования осуществляют подготовку высококвалифицированных рабочих и специалистов среднего звена.

3.2. В учебных учреждениях начального и среднего профессионального образования обучаются выпускники II или III ступеней общеобразовательных учреждений.

3.3. Продолжительность обучения, в зависимости от ранее полученного обучаемым образования (полное или неполное общее среднее, специальное образование и т.д.) специальности и уровня получаемого образования, составляет от 1 до 4 лет.

3.4. Основным видом образовательного учреждения (базовой структурной единицей) начального и среднего профессионального образования в г. Москве является колледж.

3.5. Колледжи, подразделяются на:

- имеющие одно основное структурное подразделение;

- имеющие несколько основных структурных подразделений (отделений), как правило, разрозненных по территории города и различающихся между собой составом специальностей.

3.6. Колледжи, сформированные из нескольких отделений (колледжи-комплексы), подразделяются на:

- территориально-отраслевые комплексы, готовящие специалистов для предприятий и учреждений, расположенных в пределах конкретной территории. Отделения таких комплексов сосредоточены, как правило, в одной части города, например, - в пределах одного административного округа или нескольких близрасположенных районов;

- программно-отраслевые комплексы, готовящие специалистов для конкретных отраслей производства или городского хозяйства в целом, отделения которых, как правило, рассредоточены по г. Москве.

3.7. Контингенты обучающихся (студентов) вновь строящихся начальных и средних профессиональных учебных учреждений определяются заданиями на их проектирование, исходя из градостроительных, демографических и социально-экономических условий строительства.

3.8. Расчетный контингент учреждений начального и среднего профессионального образования, определяется как сумма контингентов обучающихся (студентов) дневного отделения и 15 % от контингента заочного отделения.

3.9. Контингенты обучающихся (студентов) реконструируемых учреждений начального и среднего профессионального образования рекомендуется укрупненно определять исходя из имеющихся учебных помещений - с учетом обеспечения ориентировочного удельного показателя - 12 м2 общ. площади на одного обучающегося (студента) расчетного контингента (без учета учебно-производственных помещений).

3.10. Колледжи, не имеющие отделений, а также отделения колледжей - комплексов рекомендуется проектировать с контингентами не более 1000 обучающихся (студентов).

3.11. Численность учебной группы составляет 25 обучающихся (студентов).

4. ОРГАНИЗАЦИЯ СЕТИ

4.1. При укрупненном расчете сети учреждений начального и среднего профессионального образования, следует руководствоваться показателем МГСН 1.01.99 - 50 - 60 % охвата детей в возрасте от 15 до 17 лет, проживающих в обслуживаемых районах города.

4.2. Формирование сети начальных и средних профессиональных образовательных учреждений следует проводить с учетом размещения в городе предприятий различных отраслей городского хозяйства и промышленности, социальных особенностей районов города и реальных возможностей обеспечения обучающихся (студентов) учебной производственной базой и общежитиями.

4.3. В составе колледжей - комплексов рекомендуется предусматривать головное отделение, на базе которого целесообразно размещать подразделения административно-хозяйственного и вспомогательного обеспечения колледжа (дирекция, хозяйственная часть, объединенная, бухгалтерия, объединенный отдел кадров, объединенная библиотека, объединенный архив, объединенная психологическая служба, объединенный штаб ГО), и подразделения совместного использования всеми отделениями колледжа (приемная комиссия, подготовительное отделение (курсы), общие кафедры, фонд лекционных аудиторий).

4.4. Учебные учреждения начального и среднего профессионального образования подразделяются по принадлежности к следующим отраслям народного хозяйства:

- экономика и управление;

- сфера обслуживания;

- энергетика;

- машиностроение и металлообработка;

- транспорт;

- радиотехника и связь;

- информатика и вычислительная техника;

- строительство и архитектура;

- технология производства продовольственных и потребительских товаров;

- культура и искусство;

- педагогика;

- прочие (пожарная безопасность, полиграфическое дело, народные промыслы, социальные вопросы, библиотечное дело и др.).

5. ТРЕБОВАНИЯ К РАЗМЕЩЕНИЮ И ОРГАНИЗАЦИИ УЧАСТКА

5.1. Здания и сооружения учебных учреждений начального и среднего профессионального образования должны размещаться на обособленных участках.

5.2. При новом строительстве учебные учреждения или их отделения следует размещать приближенно:

- учреждения отраслей - энергетика, машиностроение и металлообработка, транспорт, радиотехника и связь, строительство и архитектура, технология производства продовольственных и потребительских товаров - к соответствующим отраслевым производственным предприятиям;

- учреждения сферы обслуживания - к соответствующим объектам системы обслуживания населения;

- учреждения культуры и искусства - к объектам культурно-просветительного назначения;

- педагогические учебные учреждения - к базовым дошкольным образовательным учреждениям, общеобразовательным учреждениям (школам, гимназиям, педагогическим лицеям), с целью формирования с ними учебно-педагогических комплексов.

На размещение учебных учреждений отраслей экономики и управления, информатики и вычислительной техники подобные требования не распространяются.

5.3. Размещение учреждений начального и среднего профессионального образования на территориях санитарно-защитных зон промышленных предприятий не допускается за исключением санитарно-защитных зон предприятий I и II класса вредности на основании СанПиН 2.2.1/2.1.1.1031-1.

5.4. При размещении в городе учреждений начального и среднего профессионального образования или отделений колледжей, рекомендуется предусматривать их кооперирование с другими начальными и средними профессиональными учебными учреждениями с целью объединения вспомогательного хозяйства, жилой и спортивной зон, а также - с ВУЗом (факультетом ВУЗа) той же отрасли. При этом в соответствии с МГСН 1.01-99, студенческие общежития рекомендуется объединять в студенческие городки с комплексным обслуживанием, включенным в единую систему культурно-бытового обслуживания города.

5.5. Участки учреждений начального и среднего профессионального образования не допускается пересекать городскими улицами или дорогами.

5.6. Отступ зданий учреждений начального и среднего профессионального образования от проезжей части рекомендуется принимать:

- от скоростных дорог и магистралей непрерывного движения - не менее 50 м;

- от улиц и дорог местного значения - не менее 25 м.

5.7. При меньших отступах необходимо использовать градостроительные приемы и конструктивные средства защиты от шума в соответствии с требованиями СНиП 23-03-2003.

5.8. На участке учреждений начального и среднего профессионального образования следует предусматривать следующие основные функциональные зоны: учебную, учебно-производственную, спортивную, жилую (при наличии общежитий).

5.9. На участке или вблизи от него в зависимости от профиля и условий строительства учебного учреждения допускается предусматривать вспомогательные функциональные зоны: хозяйственную, учебного полигона, парковки автомобилей, а также, при необходимости, - зону перспективного развития учебного учреждения.

5.10. Размеры участков учреждений начального и среднего профессионального образования, следует принимать в соответствии с Приложением 1 к настоящему выпуску Рекомендаций.

5.11. Размеры и состав функциональных зон участков учреждений начального и среднего профессионального образования определяются заданием на проектирование с учетом состава специальностей, площади выделяемого для строительства участка, его рельефа и конфигурации, потребности учреждений в общежитиях, плотности застройки участка и др. факторов.

5.12. При объединении участков нескольких учреждений начального и среднего профессионального образования, их площадь допускается сокращать, но не более, чем на 20 %.

5.13. При проектировании генерального плана учреждения начального и среднего профессионального образования учебную зону рекомендуется размещать приближенно к учебно-производственной и спортивной зонам: жилую - приближенно к спортивной зоне; зону учебного полигона - к учебно-производственной зоне; зону автостоянок - к учебной зоне и главному входу; зону перспективного развития учреждения - со стороны учебной и учебно-производственной зон.

5.14. В зависимости от профиля учреждений начального и среднего профессионального образования в учебной зоне допускается предусматривать открытую выставочную площадку для размещения крупногабаритных образцов техники, механизмов и устройств, площадь которой определяется при составлении задания на проектирование.

5.15. Плотность застройки учебной зоны учреждений начального и среднего профессионального образования определяется проектным решением. Рекомендуемая плотность застройки учреждений, размещаемых на свободной территории - не более 40 %, размещаемых в затесненных условиях - не более 60 %.

5.16. В спортивной зоне допускается размещать как открытые наземные, так и крытые спортивные сооружения и площадки.

5.17. Площадки для спортивных игр с мячом и сооружения для метания спортивных снарядов следует размещать в удалении от здания учебного учреждения на расстояние не менее 25 м. При наличии между площадками и зданием ограждения высотой 3 м - на расстояние не менее 15 м.

5.18. Площадки и открытые спортсооружения для занятий гимнастикой, легкой атлетикой и др. занятий, проводимых без использования спортивных снарядов, - на расстоянии не менее 10 м.

5.19. Наземные, спортивные сооружения и площадки спортивной зоны рекомендуется размещать со стороны спортивных помещений учебного корпуса. Размещение спортсооружений и спортплощадок со стороны других учебных и вспомогательных помещений учебного корпуса или общежитий допускается с соблюдением мер защиты от шума, предусмотренных СНиП 23-03-2003.

5.20. Ориентировочный перечень открытых плоскостных, спортивных сооружений спортивной зоны учреждений начального и среднего профессионального образования приведен в Приложении 2 к настоящему Выпуску Рекомендаций.

5.21. Жилую зону учреждений начального и среднего профессионального образования рекомендуется размещать в удалении от учебно-производственной зоны и предусматривать для нее отдельный въезд на территорию.

5.22. При недостаточной площади участка жилую зону допускается размещать на отдельной территории, находящейся в пределах 40-минутной транспортно-пешеходной доступности от учебного учреждения.

5.23. При новом строительстве и развитии московских колледжей - территориально-отраслевых и программно-отраслевых комплексов, на единой территории, жилую зону рекомендуется предусматривать общей для всех его отделений.

5.24. В жилых зданиях учреждений начального и среднего профессионального образования следует предусматривать помещения для студентов, преподавателей, обслуживающего персонала и гостей учебного учреждения. Допускается выделение зоны жилых домов преподавателей.

5.25. Хозяйственная зона организуется на площадях учебно-производственной и учебной зоны поблизости от столовой учебного учреждения и въезда на его территорию.

5.26. В хозяйственной зоне, как правило, размещаются ремонтные и эксплуатационные службы, складские помещения. Площадь хозяйственной зоны, рекомендуется принимать в размере 10 - 15 % от суммарной площади учебной и учебно-производственной зон.

5.27. Зону учебного полигона следует предусматривать, как правило, для учреждений начального и среднего профессионального образования отраслей «Транспорт» и «Строительство», размещая ее на примыкающем к основным зонам участке или отдельной территории.

5.28. Площадь зоны учебного полигона определяется заданием на проектирование в соответствии с технологическими требованиями (ориентировочно в пределах от 0,5 до 1,0 га).

5.29. Зону парковки автотранспорта сотрудников и обучающихся (студентов) учреждений начального и среднего профессионального образования следует размещать на периферии участка на примыкающей или на отдельной территории вблизи него.

5.30. Площадь парковки определяется в соответствии с требованиями МГСН 1.01-99, из расчета - 1 машиноместо на 7 обучающихся (студентов) расчетного контингента и удельного показателя площади зоны - 22,5 м2 на 1 машиноместо.

5.31. Зона перспективного развития учебного учреждения предусматривается при наличии свободной территории и предназначается для будущего расширения учебной и учебно-производственной зоны. Площадь зоны перспективного развития ориентировочно определяется в размере 20 % от суммарной площади учебной, и учебно-производственной зон.

5.32. Обустройство участков учреждений начального и среднего профессионального образования следует проектировать с учетом требований СНиП 35-01-2001.

5.33. На участке учреждений начального и среднего профессионального образования предусматривается возможность подъезда к зданиям и объезда вокруг зданий пожарных машин, с учетом требований СНиП 21-01-97*.

5.34. Участки учреждений начального и среднего профессионального образования должны иметь ограждение по всему периметру. Тип ограждения определяется по СН 441-72*.

5.35. Площадь озеленения участка учреждений начального и среднего профессионального образования должна составлять не менее 50 % от его площади без учета площади застройки. Деревья должны размещаться в удалении от окон учебных помещений на расстояние не менее 15 м, а кустарники - не менее 5 м.

5.36. На участке со стороны главного входа учебного учреждения рекомендуется предусматривать площадку для проведения общественных мероприятий.

6. ОБЪЕМНО-ПЛАНИРОВОЧНЫЕ РЕШЕНИЯ

6.1. Помещения учреждений начального и среднего профессионального образования подразделяются на следующие основные функциональные группы:

- учебные помещения для теоретических занятий;

- учебно-производственные;

- учебно-спортивные;

- зрелищно-клубные;

- помещения библиотеки;

- административно-хозяйственного и общественного назначения;

- помещения столовой;

- вспомогательные;

- жилые.

6.2. Для затесненных градостроительных условий и расчетных контингентов учреждений начального и среднего профессионального образования или их отделений до 600 обучающихся (студентов), допускаются компактные объемно-планировочные решения с размещением всех подразделений в едином здании, включая общежитие.

6.3. Для относительно свободных градостроительных условий и расчетных контингентов учебных учреждений более 600 обучающихся (студентов) рекомендуются объемно-планировочные решения с выделением учебного, учебно-производственного и общественно-бытового блоков.

6.4. В случае использования спортивных и зрелищно-клубных помещений учебных учреждений жителями близлежащих городских территорий, учебные учреждения предлагается проектировать с выделенными блоками этих помещений. В выделенных блоках по заданию на проектирование допускается предусматривать более развитый состав помещений для физкультурно-оздоровительных и клубно-досуговых занятий, а также вспомогательных помещений.

6.5. Варианты блокировки групп помещений при различных объемно-планировочных решениях зданий учреждений начального и среднего профессионального образования приведены в Приложении 3 к настоящему Выпуску Рекомендаций.

6.6. При проектировании крупных учебных учреждений и их отделений допускается предусматривать отдельные блоки лекционных аудиторий, спортивного зала (залов), актового зала, столовой.

6.7. Помещения административно-хозяйственного назначения рекомендуется размещать в единой зоне здания.

6.8. Учебные корпуса учреждений начального и среднего профессионального образования следует проектировать в соответствии с требованиями СНиП 2.08.02-89*, как правило высотой не более 9 этажей. Высота помещений для теоретических занятий учреждений начального и среднего профессионального образования принимается в соответствии с требованиями СНиП 2.08.02-89, не менее 3 м от пола до потолка.

6.9. Высоту лабораторий с крупногабаритным оборудованием, учебно-производственных мастерских, книгохранилищ библиотеки с двухъярусными стеллажами, лекционных аудиторий вместимостью более 75 мест, спортивных и актовых залов следует принимать в соответствии с технологическими требованиями, как правило, - не менее 4 м от пола до потолка.

6.10. При размещении общежития в едином здании с учебными подразделениями, высоту жилых помещений допускается принимать - 3 м от пола до потолка.

6.11. Учебные помещения следует размещать в надземных этажах.

6.12. Учебные помещения следует изолировать от помещений, являющихся источниками шума (мастерские, учебно-спортивные и актовые залы) и запахов (столовые, виварии и др.) с учетом требований СанПиН 2.4.3.1186-03.

6.13. Помещения лабораторий специальных дисциплин и учебно-производственные помещения мастерских с тяжелым оборудованием следует размещать на первом или цокольном этажах бесподвальных зданий или в подвале (СНиП 2.08.02-89*).

6.14. Лаборатории общетехнических и специальных дисциплин, а также - оснащенные тяжелым и крупногабаритным оборудованием, рекомендуется размещать в блоке с учебно-производственными мастерскими.

6.15. Спортивные залы рекомендуется размещать на нижних этажах здания.

6.16. Допускается размещение спортивных залов над помещениями, кроме учебных, при условии соблюдения требований защиты от шума, определяемыми СНиП 23-03-2003.

6.17. В здании спортивные залы рекомендуется размещать со стороны открытых плоскостных спортивных сооружений.

6.18. Актовый зал рекомендуется располагать на нижних этажах здания и блокировать его со спортивным залом, предусматривая для них общее фойе. На верхних этажах актовый зал допускается располагать при условии обеспечения безопасной эвакуации людей в соответствии с требованиями СНиП 2.08.02-89*.

6.19. Столовую рекомендуется размещать на нижних этажах здания поблизости от вестибюля. Допускается размещать столовую на двух смежных этажах: на одном - производственные и складские помещения, на другом - обеденный зал с кухней и моечной.

6.20. При размещении учебно-спортивных и зрелищно-клубных помещений планировочными средствами следует обеспечивать возможность их автономного использования.

6.21. В зданиях учебных учреждений, для обеспечения их доступности для маломобильных групп населения, независимо от их этажности, рекомендуется предусматривать лифты.

6.22. При размещении общежитий на участке учебного учреждения допустимо их размещение в едином объеме с учебными помещениями или в отдельном здании. Общежитие должно иметь отдельные вход и выход.

6.23. Отдельно стоящие здания общежитий проектируются по СНиП 2.08.01-89*.

6.24. Объединение учебного здания с общежитием является предпочтительным, т.к. исключает дублирование ряда помещений общего назначения (клубно-кружковой работы, столовой, спортзала, административно-служебных вспомогательных и других помещений), обеспечивает сокращение площади участка и общей площади здания до 20 %.

6.25. Перечень помещений, которые допускается размещать в подвальном и цокольном этажах, приведен в СНиП 2.08.02-89*.

6.26. Размещение в основном учебном здании помещений для хранения легковоспламеняющихся и горючих материалов не допускается.

7. ОСНОВНЫЕ ГРУППЫ ПОМЕЩЕНИЙ

Учебные помещения для теоретических занятий.

7.1. Учебные помещения для теоретических занятий включают:

- кабинеты и лаборатории общеобразовательного, общепрофессионального и специального циклов;

- групповые и поточные (лекционные) аудитории.

7.2. Состав учебных помещений для теоретических занятий определяется в соответствии с учебными планами и программами, исходя из условий проведения занятий в одну смену.

7.3. Проектирование учебных кабинетов, лабораторий и групповых аудиторий рекомендуется осуществлять с учетом эргонометрических параметров, приведенных на рис. 1 настоящего Выпуска Рекомендаций.

7.4. При учебных кабинетах, компьютерных классах и лекционных аудиториях вместимостью более 75 мест рекомендуется предусматривать препараторские площадью не менее 18 м2.

7.5. При учебных лабораториях следует предусматривать лаборантские площадью не менее 32 м2.

7.6. Кабинет тестирования рекомендуется принимать площадью не менее 36 м2.

7.7. Залы дипломного и курсового проектирования должны рассчитываться на 30 % от числа дипломников. Рекомендуемая вместимость залов составляет от 12 до 50 мест.

7.8. В соответствии с заданием на проектирование в учебных помещениях предусматриваются условия для обучения студентов с нарушениями опорно-двигательной системы. Состав, площади и планировка таких помещений определяются СНиП 35-01-2001 и СП 35-101-2001.

7.9. Планировка учебных кабинетов, лабораторий, групповых и полугрупповых аудиторий должна обеспечивать боковое освещение учебных мест естественным светом с левой стороны, или смешанное освещение - верхнее с боковым. Освещение только верхним естественным светом, допускается в лекционных аудиториях вместимостью более 100 мест, залах курсового и дипломного проектирования.

7.10. При проектировании компьютерных классов следует руководствоваться требованиями СанПиН 2.2.2/2.4.1340-03.

7.11. Объем воздуха лекционных аудиторий, при отсутствии принудительного вентилирования, должен составлять не менее 4 м3 на 1 место.

7.12. Препараторские при лекционных аудиториях и компьютерных классах должны иметь не менее двух выходов: один - в аудиторию, другой - в коридор (рекреацию).

7.13. В лекционных аудиториях вместимостью до 75 мест включительно допускается устройство горизонтального пола.

7.14. Уровень пола перед доской лекционных аудиторий, лабораторий и учебных кабинетов может быть поднят на высоту до 30 см над уровнем остального горизонтального пола. Ширина повышенной части пола должна составлять не менее 150 см. ширина прохода между повышенной частью и первым рядом мест - не менее 110 см.

7.15. В аудиториях с амфитеатром при наличии демонстрационного стола, пол от меловой доски до второго ряда мест должен быть горизонтальным.

7.16. Лекционные аудитории вместимостью до 75 мест рекомендуется размещать в блоке (зоне) учебных помещений. Аудитории большей вместимости - в блоке общественно-бытовых помещений.

7.17. Проектирование лекционных аудиторий рекомендуется осуществлять с учетом эргонометрических параметров, приведенных на рис. 2 настоящего Выпуска Рекомендаций.

7.18. Учебные помещения общих и специальных дисциплин начального и среднего профессионального образования рекомендуется группировать по кафедральному принципу.

7.19. В структуре учреждений начального и среднего профессионального образования рекомендуется предусматривать следующие кафедры:

- общеобразовательных дисциплин;

- иностранного языка;

- информатики и вычислительной техники (информационных технологий);

- общей физической подготовки;

- естественнонаучных дисциплин;

- общетехнических дисциплин;

- социально-гуманитарных дисциплин;

- специальных дисциплин (в зависимости от количества и состава специальностей).

7.20. В составе помещений кафедр рекомендуется предусматривать: кабинет заведующего кафедрой - 18 м2, кабинеты преподавателей из расчета 4 м2 на рабочее место, учебно-методический кабинет - 54 м2.

7.21. Кабинеты и лаборатории общетехнических и специальных дисциплин, оснащенные тяжелым крупногабаритным оборудованием, рекомендуется размещать в блоке с учебно-производственными мастерскими.

7.22. Рекомендуемые удельные показатели площади учебных помещений для теоретических занятий приведены в Приложении 4 к настоящему Выпуску Рекомендаций.

7.23. Примеры планировки учебных помещений для теоретических занятий приведены на рис. 3 - 8 настоящего Выпуска Рекомендаций.

Учебно-спортивные помещения

7.24. Размеры и устройство спортивных залов, бассейнов и вспомогательных помещений при них определяются в соответствии с требованиями СП 31-112-2004, СП 31-113-2004 и СанПиН 2.1.2.1188-03.

7.25. Состав спортивных помещений учреждений начального и среднего профессионального образования определяется заданием на проектирование в зависимости от величины расчетного контингента и учебной программы физвоспитания. Примерный состав спортивных помещений приведен в Приложении 5 к настоящему Выпуску Рекомендаций.

7.26. Примерный состав вспомогательных помещений при учебно-спортивных залах приведен в Приложении 6 к настоящему Выпуску Рекомендаций.

7.27. В составе вспомогательных спортивных помещений независимо от количества спортивных залов учебного учреждения следует также предусматривать:

- кладовую для хранения спортинвентаря открытых спортсооружений площадью не менее 18 м2;

- помещение для хранения уборочного инвентаря - не менее 4 м2. Кроме того следует предусматривать кладовую для хранения лыж и коньков: для колледжей с расчетным контингентом до 300 студентов - площадью 30 м2, с расчетным контингентом 301 - 400 студентов - площадью 40 м2, с контингентом 401 - 600 студентов - 60 м2, с контингентом 601 - 1000 студентов - 80 м2.

7.28. В игровых и универсальных спортивных залах следует предусматривать зоны для установки:

- спортивных тренажеров;

- помоста для занятий тяжелой атлетикой;

- ринга для занятий боксом;

- ковра для занятий борьбой.

7.29. Вход в спортивный зал из раздевальных комнат должен быть организован непосредственно, либо через обособленный от других помещений коридор.

7.30. Допускается объединение спортивных залов в единый трансформируемый зал-манеж (суммарной площади) и объединение вспомогательных помещений.

7.31. В отдельно стоящих корпусах спортивных залов и бассейна следует предусматривать дополнительный вестибюль с гардеробом.

7.32. При спортивных залах допускается предусматривать стационарные или трансформируемые места для зрителей.

7.33. Необходимость строительства бассейна и его параметры определяются заданием на проектирование, исходя из учебных программ.

7.34. На группу учреждений начального и среднего профессионального образования должен предусматриваться учебный тир. Дистанция стрельбы и число стрелковых мест определяется заданием на проектирование.

7.35. По заданию на проектирование в спортивных залах может предусматриваться специальное тренажерное оборудование, предназначенное для занятий инвалидов.

Зрелищно-клубные помещения

7.36. К зрелищно-клубным помещениям относятся: актовый зал с эстрадой и вспомогательными помещениями, фойе - танцевальный зал со вспомогательными помещениями, клубно-кружковые комнаты со вспомогательными помещениями.

7.37. Количество мест в актовом зале принимается равным 1/3 от расчетного контингента обучающихся (студентов) учебного учреждения,

7.38. Площадь актового зала без эстрады определяется из расчета 0,65 м2 на одно место в зале.

7.39. При проектировании актовых залов с подъемом пола высотой в этаж следует предусматривать эвакуацию 2/3 зрителей через нижний этаж, и 1/3 зрителей - через верхний этаж.

7.40. Балконы актовых залов вместимостью более 50 мест должны иметь не менее двух эвакуационных выходов.

7.41. Требования к проектированию актовых залов принимаются в соответствии со СНиП 2.08.02-89* и Пособием по проектированию культурно-зрелищных учреждений.

7.42. Площадь фойе - танцевального зала определяется из расчета 0,2 м2 на одно место в зале.

7.43. При проектировании клубно-кружковых помещений допускается вынесение комнат для технического творчества из клубного блока и приближение их к учебно-производственным мастерским.

7.44. Примерные состав и площади зрелищно-клубных помещений приведены в Приложении 7 к настоящему Выпуску Рекомендаций.

Помещения библиотеки

7.45. Библиотеку следует размещать изолированно от актового и спортивного залов, столовой и учебно-производственных мастерских.

7.46. Библиотека должна иметь отдельный служебный вход.

7.47. Антресоли в читальных залах должны иметь не менее двух эвакуационных выходов.

7.48. В библиотеке следует предусматривать условия для работы студентов с электронными носителями информации и Интернетом (медиатеку) с использованием оснащенных компьютерами индивидуальных кабин. Индивидуальные кабины рекомендуется размещать в специально выделенной зоне читальных залов. Количество оснащенных кабинами читательских мест рекомендуется принимать не более 30 % от общего количества читательских мест библиотеки.

7.49. Устройство прохода через помещения библиотеки в другие помещения учебного учреждения не допускается.

7.50. В колледжах - территориально-отраслевых и программно-отраслевых комплексах, библиотека может предусматриваться, как в каждом отделении колледжа, так и при головном отделении, как объединенная библиотека, а также - в сочетании этих двух вариантов. Выбор варианта устройства библиотеки определяется при разработке задания на проектирование.

7.51. Библиотеки учреждений начального и среднего профессионального образования проектируется из расчета количества читателей, равного сумме 100 % расчетного контингента студентов и 100 % количества преподавателей.

7.52. Количество читательских мест библиотеки определяется из расчета не менее 9 % от количества читателей.

7.53. Величина книжного фонда библиотеки укрупнено принимается из расчета 50 единиц на 1 читателя.

7.54. При реконструкции и расширении существующих библиотек учебных учреждений площадь книгохранилища следует принимать с учетом реального книжного фонда, но не менее расчетной.

7.55. Площадь читального зала следует принимать из расчета не менее 2,4 м2 на 1 обычное читальное место и не менее 6,0 м2 на 1 индивидуальную кабину.

7.56. Площадь помещений закрытого хранения книжного фонда следует принимать из расчета не менее 2,5 м2 на 1000 единиц хранения.

7.57. Площадь помещений открытого хранения книжного фонда следует принимать из расчета не менее 4,5 м2 на 1000 единиц хранения.

7.58. Примерные площади основных групп помещений библиотек учреждений начального и среднего профессионального образования приведены в Приложении 8 к настоящему Выпуску Рекомендаций.

Помещения административно-хозяйственного и общественного назначения.

7.59. Помещения административно-хозяйственного и общественного назначения рекомендуется размещать на нижних этажах зданий поблизости от вестибюля и общих коммуникаций.

7.60. Состав помещений административно-хозяйственного и общественного назначения определяется заданием на проектирование, исходя из организационной структуры учебного учреждения.

7.61. Примерный состав площади административно-хозяйственных помещений приведены в Приложении 9 к настоящему Выпуску Рекомендаций.

7.62. Помещения старшего мастера и мастеров производственного обучения рекомендуется размещать в блоке учебно-производственных мастерских.

7.63. Для кабинета директора и заместителя директора по учебной работе, а также, - для кабинетов заместителей директора по направлениям деятельности допускается предусматривать общую приемную.

7.64. Примерный состав и площади помещений общественного назначения приведены в Приложении 10 к настоящему Выпуску Рекомендаций.

7.65. При проектировании территориально-отраслевых и программно-отраслевых колледжей комплексов, площади помещений объединенной бухгалтерии, объединенного отдела кадров, объединенного штаба ГО, психологической службы и других объединяемых подразделений (кроме архива) следует рассчитывать по формуле ∑´0,7, где ∑ - сумма площадей таких помещений, условно определенных для каждого из отделений комплекса.

7.66. Площадь объединенного архива территориально или программно-отраслевого комплекса следует определять как сумму площадей архивов отделений учебного учреждения.

Предприятия общественного питания

7.67. Основным видом предприятия общественного питания в учреждениях начального и среднего профессионального образования является столовая. Состав и площади помещений столовой определяются заданием на проектирование.

7.68. Столовая включает: обеденные залы (для обучающихся студентов и преподавателей), производственные, складские и административные помещения.

7.67. Площадь обеденных залов (без раздаточной) определяется из расчета 1,3 м2 на одно место в зале.

7.68. Площадь обеденного зала, требуемая для размещения 1 инвалида - колясочника составляет 3,2 м2.

7.69. Количество мест в обеденных залах следует принимать из расчета - 1/3 расчетного контингента обучающихся (студентов).

7.70. Площадь обеденных залов для преподавателей принимается для учреждений с расчетным контингентом до 600 студентов - 18 м2, свыше 600 студентов - 24 м2.

7.71. При обеденных залах должны предусматриваться умывальники из расчета - 1 умывальник на 20 мест в обеденном зале, но не менее одного.

7.72. Планировочная структура и оборудование производственных помещений столовой принимается в зависимости от принципа работы столовой - на сырье или на полуфабрикатах и определяется при составлении задания на проектирование.

7.73. Столовые, работающие на готовой продукции или полуфабрикатах высокой степени готовности, а также столовые, работающие на сырье, вместимостью не более 50 мест, рекомендуется проектировать встроенными в учебный корпус. Столовые, работающие на сырье, вместимостью более 50 мест, рекомендуется проектировать пристроенными к учебным корпусам или в отдельно стоящих зданиях, связанных с учебными корпусами отапливаемыми переходами.

7.74. Наибольшее расстояние от отдельно стоящей столовой до учебных и учебно-производственных корпусов не должно превышать 300 м.

7.75. Состав и площади производственных, складских и административных помещений столовых определяются на основании МГСН 4.14-98 и СанПиН 2.4.3.1186-03.

Вспомогательные помещения

7.76. Состав и площади вспомогательных помещений, а также - количество приборов в уборных и душевых определяются заданием на проектирование, а также - приложением 11 к настоящему Выпуску Рекомендаций.

7.77. Туалеты для преподавателей и персонала следует предусматривать при каждом туалете для студентов и оборудовать писсуаром, унитазом и умывальником.

7.78. При женских туалетах следует предусматривать кабины личной гигиены женщин площадью не менее 3 м2, оснащенные гигиеническим душем, унитазом и умывальником.

7.79. Помещения для хранения домашней и рабочей одежды, оснащенные душевыми, рекомендуется размещать при учебно-производственных мастерских.

7.80. Помещения, медицинского обслуживания рекомендуется размещать на нижних этажах, поблизости от спортивных и учебно-производственных помещений.

Общежития

7.81. Состав и площади помещений общежитий и находящихся в них подразделений культурно-бытового обслуживания обучающихся (студентов) рекомендуется принимать по СНиП 2.08.01-89*.

8. ТРЕБОВАНИЯ К ПОЖАРНОЙ БЕЗОПАСНОСТИ

8.1. Объемно-планировочные решения зданий учреждений начального и среднего профессионального образования должны соответствовать противопожарным требованиям СНиП 21-01-97* и СНиП 2.08.02-89*.

8.2. Сквозные проезды в зданиях учреждений начального и среднего профессионального образования должны иметь ширину не менее 3,5 м и высоту - не менее 4,25 м.

8.3. Ширина коридоров, обеспечивающих доступ к учебным помещениям, а также - переходов между зданиями учреждений начального и среднего профессионального образования должна быть не менее 2,2 м. Ширина других коридоров - не менее 1,4 м.

8.4. Ширина рекреаций при одностороннем расположении учебных кабинетов, лабораторий и аудиторий должна составлять не менее 2,8 м, а при двухстороннем расположении этих помещений - не менее 4,0 м.

8.5. Ширина выходов из учебных помещений с числом учащихся 15 и более человек, должна быть не менее 0,9 м.

8.6. Планировка учебных помещений, в которых предусматривается пребывание студентов-инвалидов с недостатками опорно-двигательной системы, должна обеспечивать разворот инвалидной коляски, требующий в плане свободной окружности диаметром 1,5 м.

8.7. В дверных проемах учебных помещений, где предусматривается пребывание студентов - инвалидов с недостатками опорно-двигательной системы, следует исключить пороги. Допускается установка резиновых порогов.

8.8. Из подвальных и цокольных этажей здания учреждений начального и среднего профессионального образования следует предусматривать не менее двух выходов непосредственно наружу. При необходимости, сообщение к помещениям первого этажа предусматривать через отдельные лестничные марши, не связанные с общими лестничными клетками.

8.9. Условия эвакуации людей, инженерные решения, пожарная безопасность конструкций и элементов зданий, а также - применяемые строительные материалы должны соответствовать требованиям СНиП 21-01-97* и СНиП 2.08.02-89*.

8.10. Пожарные краны следует размещать в соответствии со СНиП 2.04.01-85*.

8.11. Проектирование систем тепловой и дымовой пожарной сигнализации, а также - системы автоматического пожаротушения следует осуществлять с учетом НПБ 104-03, НПБ 88-01* и НПБ 110-03.

9. ТРЕБОВАНИЯ К ВНУТРЕННЕЙ СРЕДЕ И ИНЖЕНЕРНОМУ ОСНАЩЕНИЮ ЗДАНИЙ

9.1. При проектировании учебных кабинетов лабораторий и аудиторий следует предусматривать следующие функциональные зоны:

- зону преподавателя;

- зону студентов;

- зону хранения учебных материалов и пособий;

- зону учебной экспозиции.

9.2. Место преподавателя оборудуется столом и стулом, а также в зависимости от вида учебного помещения, - демонстрационным столом, пультом управления ТСО и зашториванием, компьютером.

9.3. Рабочие места студентов в учебных кабинетах, оснащенных персональными компьютерами и кабинете черчения оборудуются одноместными столами, а в лингафонных кабинетах - одноместными столами или индивидуальными кабинами. В остальных учебных кабинетах лабораториях, групповых и полугрупповых аудиториях - двухместными столами. Эргономические параметры расстановки мебели и оборудования в названных помещениях приведены на рис. 1 настоящего Выпуска Рекомендаций.

9.4. Рабочие места в лекционных аудиториях оборудуются индивидуальными пюпитрами. Эргонометрические параметры расстановки мебели и оборудования в лекционных аудиториях приведены на рис. 2 настоящих Рекомендаций.

9.5. Требования к внутренней среде и инженерному оснащению учебно-производственных помещений учреждений начального и среднего профессионального образования приводятся в Выпуске 2 настоящих Рекомендаций.

9.6. При проектировании и оснащении учебно-спортивных помещений и бассейнов следует руководствоваться СП 31-112-2004 и СП 31-113-2004.

9.7. При планировке зрелищно-клубных помещений, помещений библиотеки, столовой, административно-хозяйственного и общественного назначения следует руководствоваться СНиП 2.08.02-89* и пособиями к нему.

Естественное и искусственное освещение

9.10. Естественное и искусственное освещение помещений учреждений начального и среднего профессионального образования проектируется в соответствии с требованиями СНиП 23-05-95*.

9.11. Планировка учебных кабинетов, лабораторий и аудиторий, размещение в них мебели и оборудования должны осуществляться с учетом бокового освещения рабочих мест студентов естественным светом с левой стороны.

9.12. При недостаточности бокового естественного освещения в учебных помещениях допускается предусматривать дополнительное верхнее естественное освещение или дополнительное искусственное освещение, совмещенное с естественным.

9.13. В учебных помещениях, оснащенных персональными компьютерами, в аудиториях вместимостью 100 и более мест, в залах курсового и дипломного проектирования допускается предусматривать только верхнее, естественное освещение.

9.14. Требования к проектированию различных вариантов освещения учебных помещений принимаются по СНиП 23-05-95* и СанПиН 2.2.1/2.1.1.1278-03.

9.15. Ориентацию окон залов и кабинетов черчения, рисунка, дипломного и курсового проектирования, а также - технических помещений столовой следует принимать - на север, северо-восток или северо-запад, ориентацию учебных помещений, оснащенных персональными компьютерами - на север или северо-восток. При другой ориентации указанных помещений, окна должны быть защищены от прямого солнечного света. Ориентацию окон остальных учебных помещений рекомендуется принимать - на юг, юго-восток или восток.

9.16. Инсоляция учебных помещений предусматривается в соответствии с СанПиН 2.2.1/2.1.1.1076-01.

9.17. При освещении коридора естественным светом с одного торца, длина его не должна превышать 24 м, при освещении с двух торцов - 48 м, при большой длине коридора следует предусматривать световые карманы. Расстояние между световыми карманами не должно превышать 24 м, а между световым карманом и окном в торце коридора - 36 м.

9.18. Допускается освещать коридоры вторым светом путем устройства светопрозрачных проемов или фрамуг в перегородках.

9.19. Помещения, в которых используются средства проекции на экран, должны быть оборудованы устройствами зашторивания светопроемов.

Водоснабжение и канализация

9.20. В зданиях учреждений начального и среднего профессионального образования должны быть предусмотрены хозяйственно-питьевое противопожарное и горячее водоснабжение, канализация и водостоки в соответствии со СНиП 2.04.01-85*.

9.21. Подводка холодной воды должна предусматриваться к раковинам лабораторных столов в лабораториях общеобразовательных и специальных дисциплин, к смывным бочкам уборных, в помещения для обработки и хранения уборочного инвентаря.

9.22. Подводка холодной и горячей воды должна предусматриваться к раковинам в кабинетах черчения, изобразительного искусства, залах курсового и дипломного проектирования; клубных помещениях технического и художественного творчества, учебно-производственных мастерских, учительской, столовой, кухне и помещении технического персонала; к водоразборным кранам, предназначенным для хозяйственных нужд; к душевым кабинам и приборам кабин личной гигиены женщин; к умывальникам уборных и медицинского пункта; к оборудованию столовых и буфетов, к которому подводка холодной и горячей воды предусматривается технологическими требованиями.

9.23. Температура горячей воды, поступающей к смесителям приборов, не должна превышать 55 °С.

9.24. Внутреннюю канализацию для отвода хозяйственно-бытовых и лабораторных сточных вод рекомендуется проектировать объединенной.

Отопление, вентиляция и кондиционирование.

9.25. Отопление и вентиляцию зданий учреждений начального и среднего профессионального образования следует проектировать в соответствии со СНиП 41-01-2003.

9.26. На вводах тепловых сетей в здания в соответствии со СНиП 41-02-2003 допускается предусматривать помещения для тепловых пунктов (ЦТП и ИТП).

9.27. Не допускается размещение тепловых пунктов и насосных под учебными помещениями и библиотекой.

9.28. Тип системы отопления (водяное, воздушное или воздушное совмещенное с приточной вентиляцией) определяется заданием на проектирование на основании СНиП 41-01-2003 в зависимости от функционального назначения помещений.

9.29. Расчетную температуру наружного воздуха следует принимать в соответствии со СНиП 41.01-2003.

9.30. Вентиляция помещений учреждений начального и среднего профессионального образования в зависимости от их назначения осуществляется механическим (принудительным) или естественным (через оконные проемы) способами.

9.31. Механическая вытяжная вентиляция предусматривается: в лабораториях общеобразовательных и специальных дисциплин, в которых проводится работа с вредными веществами и моечных лабораторной посуды (вытяжные шкафы); в учебно-производственных мастерских; в лекционных аудиториях вместимостью 75 и более мест; в актовых залах; в бассейнах; обеденном зале и кухне столовой; медпункте; гардеробной; кинопроекционной; уборных; помещениях для обработки и хранения уборочного инвентаря.

В остальных помещениях предусматривается естественная вентиляция.

9.32. В лабораториях профессионального цикла и учебно-производственных мастерских, работа в которых связана с выделением вредных веществ пыли или повышенного тепла (электросварка, электромонтажные работы, резка металла и т.д.), помимо общей предусматривается местная механическая вентиляция - рабочие столы оборудуются местными отсосами воздуха.

9.33. Расчетные параметры температуры воздуха и воздухообмена помещений различного функционального назначения принимаются в соответствии со СНиП 2.08.02-89*, СанПиН 2.4.3.1186-03 и Приложением 12 к настоящему Выпуску Рекомендаций.

9.34. Кондиционирование помещений учреждений начального и среднего профессионального образования допускается осуществлять с использованием сплит-систем в соответствии заданием на проектирование и техническими условиями их эксплуатации, при условии согласования с органами Госсанэпиднадзора.

Электротехнические устройства

9.35. Системы электрооборудования и электроосвещения зданий учреждений начального и среднего профессионального образования и их территории проектируются в соответствии с ПУЭ, СП 31-110-2003 и СНиП 23-05-95*.

9.36. Люминесцентные светильники в учебных помещениях должны оснащаться пускорегулирующими аппаратами с особо низким уровнем шума и лампами рассеянного света.

9.37. В учебных помещениях следует предусматривать не менее трех электрических розеток, размещаемых на разных стенах. Для размещения электророзеток не рекомендуется использовать наружные стены.

9.38. Электророзетки в учебных помещениях рекомендуется устанавливать на высоте 0,2 м, а электровыключатели - на высоте 1,8 м от пола.

9.39. Электрощитовые рекомендуется размещать в подвале или на 1 этаже.

9.40. Городские и местные телефонные сети учебных учреждений проектируются в соответствии с Нормами технического проектирования, утвержденными Министерством связи Российской Федерации. Аппараты городской и местной телефонной сети рекомендуется предусматривать в кабинетах директора и его заместителей, руководителей отделений и других структурных подразделений колледжей, бухгалтерии, библиотеке, столовой, кабинете врача, комнатах персонала.

9.41. Радиоточки городского и местного вещания следует предусматривать в учебных помещениях и других помещениях массового пребывания студентов, преподавателей и сотрудников. Для местного радиовещания следует предусматривать радиоузел - дикторскую.

9.42. Телевизоры городской и местной телевизионной сети следует размещать в учебных и основных административно-хозяйственных помещениях.

9.43. Установка электрочасов предусматривается в вестибюле, фойе, актовом, спортивном и обеденном залах, учебных мастерских.

9.44. Установка электрозвонков предусматривается в вестибюлях и рекреациях.

9.45. Для персональных компьютеров преподавателей, сотрудников рекомендуется устройство выделенных линий выхода в Интернет и объединение в единую компьютерную сеть.

9.46. Устройствами охранной сигнализации рекомендуется оснащать: канцелярию и кабинет директора, бухгалтерию, кассу, отдел кадров, медицинский пункт, общеобразовательные и специальные лаборатории с лаборантскими, книгохранилище библиотеки, электрощитовую, кладовые учебно-производственных мастерских, другие помещения, где сосредоточены материальные ценности и вредные вещества. Проектирование системы охранной сигнализации следует осуществлять на основе рекомендаций ГУВД г. Москвы.

9.47. Проектирование систем пожарной сигнализации следует осуществлять в соответствии с п. 8.11 настоящих Рекомендаций.

9.48. Молниезащита учебных учреждений должна предусматриваться при размещении на крыше телевизионных антенн и стоек телефонной сети в соответствии с РД 34.21.122-87.

Отделка помещений.

9.49. Отделка помещений должна соответствовать санитарно-гигиеническим и противопожарным требованиям в зависимости от их назначения.

9.50. Применение полимерных материалов и видов отделки допускается по согласованию с ТУ Роспотребнадзора г. Москвы и Управлением государственного противопожарного надзора ГУ МЧС России по г. Москве.

Энергосбережение.

9.51. Здания учреждений начального и среднего профессионального образования проектируются с учетом требований энергосбережения в соответствии с МГСИ 2.01-99.

Приложение 1

Примерные площади участков учреждений начального и среднего профессионального образования

Отрасли образовательных учреждений

Условия размещения

Площадь участка в зависимости от расчетного контингента студентов, га

до 300 студ.

400 студ.

600 студ.

1000 студ.

Экономика и управление

Информатика и вычислительная техника

Культура и искусство

Педагогика

Библиотечное дело

Социальное обслуживание

На свободной территории

1,5

1,7

2,1

2,8

В затесненной застройке

1,0

1,2

1,5

2,2

Остальные*

На свободной территории

2,2

2,5

3,0

4,0

В затесненной застройке

1,7

1,9

2,3

3,2

Примечания:

• Указанные площади определены для основных зон участка без учета жилой зоны;

• Для промежуточных значений расчетных контингентов величины площади участков принимаются по интерполяции.

* Учебные учреждения этих отраслей имеют дополнительную учебно-производственную зону.

Приложение 2

Примерный состав открытых плоскостных спортивных сооружений учреждений начального и среднего профессионального образования

Открытые плоскостные спортивные сооружения

Количество открытых плоскостных сооружений при расчетном контингенте обучающихся, шт.

до 300

301 - 400

401 - 600

601 - 1000

Спортядро с круговой беговой дорожкой (250 м) и секторами для прыжков и метания

1

1

1

1

Площадки для игр:

 

 

 

 

волейбол

1

1

2

2

баскетбол

1

1

1

1

ручной мяч

-

-

1

1

городки

-

-

1

1

бадминтон

-

-

1

1

настольный теннис

1

1

1

1

Площадка для гимнастики

1

1

1

1

Полоса препятствий

1

1

1

1

Примечания:

1. Состав открытых плоскостных спортсооружений определяется заданием на проектирование.

2. При размещении учебного учреждения в затесненной городской застройке состав спортсооружений может быть сокращен в зависимости от величины предоставленного участка.

Приложение 3

Варианты блокировки основных групп помещений при различных объемно-планировочных решениях зданий

Функциональные группы помещений

Компактное решение

Блочные решения

традиционное

с выделенным блоком*

единое здание

блок общежития

названия блоков

учебный

учебно-производственное

обществ. бытовой

жилой

учебный

учебно-производственное

обществ. бытовой

выделенный

жилой

Учебные

 

 

 

 

 

 

 

 

Учебно-производственные

 

 

 

 

 

 

 

 

Учебно-спортивные

 

 

 

 

 

 

 

 

Зрелищно-клубные

 

 

 

 

 

 

 

 

Библиотека

 

 

 

 

 

 

 

 

Административно-хозяйственные

 

 

 

 

 

 

 

 

Столовая

 

 

 

 

 

 

 

 

Жилые

 

 

 

 

 

 

 

 

Примечание. Жилой блок предусматривается при необходимости.

* Назначение выделенного блока указано в п. 6.4 настоящих Рекомендаций.

Приложение 4

Рекомендуемые удельные показатели площади учебных помещений

Помещения

Минимальная площадь, м2 на место

Кабинеты универсального назначения, лаборатории общеобразовательных и общетеоретических дисциплин

2,2

Кабинеты и лаборатории профессионально-технических и специальных дисциплин

2,4

Лаборатории специальных дисциплин

4,0

Аудитории на 12 - 13 мест

2,5

Аудитории на 25 мест

2,2

Аудитории на 50 - 150 мест

1,2

Кабинеты иностранного языка, лингафонные кабинеты

2,4

Компьютерные кабинеты, кабинеты информатики и вычислительной техники

6,0

Кабинеты черчения, курсового и дипломного проектирования

2,4

Примечания:

1. Площади учебных помещений определяются заданием на проектирование, исходя из наполняемости групп и удельных показателей площади.

2. Удельные показатели приняты по СНиП 2.08.02-89*.

Приложение 5

Рекомендуемый состав учебно-спортивных залов учебных учреждений различной величины

Залы

Размеры

Количество учебно-спортивных залов при расчетном контингенте

до 300 стул.

301 - 400 студ.

401 - 600 студ.

601 - 1000 студ.

Универсальный спортивный зал (гимнастика, спортивные игры, теннис)

36´18

-

-

-

1

Универсальный спортивный зал (спортивные игры, гимнастика)

30´18

-

-

1

-

Специализированный спортивный зал (художественная гимнастика, борьба, бокс и т.п.)

24´15

1

1

1

2

Зал для физкультурно-оздоровительных занятий

(18´12)

-

1

-

1

Примечания:

1. Состав учебно-спортивных помещений определяется заданием на проектирование, исходя из условий проведения занятий обучающихся в залах - не менее 3 часов в неделю (1 час занятий в неделю - на открытых спортплощадках).

2. Допускается объединение расположенных смежно спортзалов с помощью трансформируемых перегородок.

3. Настоящее приложение не распространяется на учебные учреждения со спортивной специализацией.

Приложение 6

Примерный состав и площади вспомогательных помещений при спортивных залах

Помещения

Площадь помещений, м2 для залов разного типа

36´18

30´18

24´15

18´12

Спортивный зал

648

540

360

216

Инвентарная

24

24

18

18

Раздевальные, включены

Уборные

212

26,5´8

159

26,5´6

106

26,5´4

106

26,5´4

Душевые

40

20´2

30

15´2

20

10´2

20

10´2

Комната инструкторов

18

15

10

10

Примечание: Настоящее приложение не распространяется на учебные учреждения со спортивной специализацией

Приложение 7

Примерный состав и площади зрелищно-клубных помещений

Название помещений

Площадь помещений, м2 при расчетном контингенте (обуч-ся)

до 300 студ.

301 - 400 студ.

401 - 600 студ.

601 - 1000

студ.

Актовый зал с эстрадой

90

110

180

270

Артистические

30

40

50

60

Костюмерные

10

10

20

(10´2)

20

(10´2)

Киноаппаратная

23

23

23

23

Дикторская-радиоузел

12

12

16

18

Кладовая при эстраде

6

8

12

18

Уборные с умывальником

6

(2 унитаза)

6

(2 унитаза)

6

(2 унитаза)

6

(2 унитаза)

Душевые с раздевальной

8

(2 душа)

8

(2 душа)

16

(4 душа)

16

(4 душа)

Фойе

30

40

60

90

Подсобное помещение при фойе

10

10

10

10

Кладовая мебели

4

4

6

8

Универсальные клубные помещения

60

60

72

90

Помещения технического творчества

30

30

40

50

Помещения художественного творчества

54

54

60

72

Кладовая инвентаря

10

10

10

10

Примечания:

1. Состав и площади зрелищно-клубных помещений определяются заданием на проектирование.

2. Настоящее приложение не распространяется на учебные учреждения отраслей культуры и искусства.

Приложение 8

Примерны состав площади основных групп помещений учебной библиотеки

Группы помещений

Площадь, м при расчетном контингенте (обуч-ся)

300

400

600

1000

Помещения обслуживания читателей

195

250

390

615

Помещения книгохранения

60

80

115

190

Служебно-производственные помещения

15

18

24

40

Примечания:

1. Состав и площади помещений учебной библиотеки определяются заданием на проектирование.

2. Для промежуточных значений расчетного контингента примерные площади групп помещений учебной библиотеки определяются по интерполяции.

Приложение 9

Примерный состав и площади административно-хозяйственных помещений

Помещения

Площадь помещений, м2 при расчетном контингенте

до 300 студ.

301 - 400 студ.

401 - 600 студ.

601 - 1000 студ.

Кабинет директора

24

24

36

36

Кабинеты заместителей директора и заведующего учебной частью*

18

18

18

18

Кабинет заведующего отделением*

12

12

18

18

Кабинет начальника отдела*

9

9

12

12

Приемная директора

9

9

12

12

Учебная часть

12

12

18

18

Методический отдел

24

24

36

36

Преподавательская*

24

24

24

24

Комната старшего мастера

12

12

18

18

Комната мастеров*

18

18

24

30

Кабинет психолога и социолога

12

12

18

18

Отдел кадров

12

12

18

18

Бухгалтерия с кассой

12

12

18

18

Диспетчерская

12

12

12

12

Отдел производственной практики

12

12

18

18

Помещение компьютерной печати

12

12

18

18

Архив

12

18

24

36

Помещение технического персонала

12

12

18

18

Помещение множительной техники (ксерокопии)

18

18

18

18

Экспедиция

9

12

12

18

Примечания.

1. Состав и площади административно-хозяйственных помещений, в т.ч. количество помещений, помеченных звездочкой (*), определяются заданием на проектирование.

Приложение 10

Примерный состав и площади помещений общественного назначения

Помещения

Площадь помещений, м2 при расчетном контингенте

до 300 студ.

301 - 400 студ.

401 - 600 студ.

601 - 1000 студ.

Помещение организации студенческого самоуправления (кабинет деловых игр)

24

24

36

36

Отдел маркетинга с информационно-аналитической группой

24 + 12

24 + 12

30 + 18

30 + 18

Кабинет бизнес-проектов (творческая мастерская)

24

24

36

36

Кабинет программистов

18

24

30

36

Отдел трудоустройства

12

12

18

18

Кабинет профориентации (профессиональной подготовки) с выставкой работ студентов

54

54

72

72

Приемная комиссия

18

18

24

24

Интернет-клуб

12

12

18

18

Редакционно-издательский отдел (с мини типографией)

24

36

54

72

Центр технических средств обучения

18

24

36

54

Приложение 11

Примерные состав, площади и количество санитарных приборов вспомогательных помещений

Помещения

Расчетный показатель

Площадь, м2 или количество приборов, шт.

Вестибюль и гардероб

1 студент

0,25

Рекреационные помещения

1 студент

0,6

Уборные

-

1 унитаз на 30 женщин, 1 унитаз и 1 писсуар на 40 мужчин; 1 умывальник на 3 унитаза, но не менее одного

Медицинский пункт:

 

 

- кабинет врача

помещение

21

- процедурный кабинет

помещение

18

- физиотерапевтический кабинет

помещение

18

- кабинет зубного врача

помещение

14

- кабинет релаксации

помещение

24

Складские помещения:

 

 

Кладовые, помещения уборочного инвентаря

1 студент

0,12

Помещение для хранения домашней и рабочей одежды

1 рабочее место

0,4

Душевые

-

1 душевая сетка на 15 чел.

1 умывальник на 30 чел.

Примечание. Вестибюль, гардероб и уборные следует рассчитывать на количество учащихся, находящихся в здании с коэффициентом 1,2, учитывающим преподавательский состав и служебный персонал.

Приложение 12

Расчетные показатели температуры воздуха и воздухообмена в помещениях различного функционального назначения

Помещения

Температура воздуха

Кратность обмена в 1 час

Приток

Вытяжка

Учебные кабинеты, лаборатории без выделения вредных веществ, аудитории, залы курсового и дипломного проектирования, помещения административно-хозяйственные и общественного назначения

Учебные помещения, оснащенные компьютерами

18

При наполняемости до 30 мест - через фрамуги

20

При наполняемости более 30 мест - по расчету, но не менее 20 м3/час на 1 чел

Учебные мастерские

15

20 м3/час на 1 чел

Лаборатории помещения с выделением вредных веществ, моечные при лабораториях с вытяжными шкафами

18

По расчету в соответствии с технологическим заданием

Лаборатории оснащенные приборами повышенной точности

20

По расчету в соответствии с технологическим заданием

Моечные лабораторной посуды без вытяжных шкафов

18

4

6

Лекционные аудитории, актовый зал

20

20 м3/час на 1 чел

Учебно-спортивные залы

16

По расчету, но не менее 80 м3/час на занимающегося

Залы (помещения) физкультурно-оздоровительного назначения

18

По расчету, но не менее 80 м3/час на занимающегося

Помещения библиотечные (читальные залы, абонемент, помещения комплектования и обработки и другие помещения читательского обслуживания)

18

По расчету, но не менее 20 м3 на 1 чел.

Книгохранилище

18

По расчету

Помещения медпункта

22

-

1,5

Душевые

25

-

5

Умывальные в отдельном помещении

22

-

1

Раздевальные

22

-

2

Уборные общего пользования

18

100 м3/час на 1 унитаз или писсуар

Уборные индивидуального пользования

18

25 м3/час на 1 унитаз или писсуар

Уборные при раздевальных

25

50 м3/час на 1 унитаз или писсуар

Вестибюль, гардероб

18

-

-

Рекреационные помещения

17

-

-

Рис. 1. Минимальные параметры размещения мебели и оборудования в кабинете и лаборатории. А - кабинет; В - фрагмент лаборатории.

1 - стол ученический; 2 - стул учащегося; 3 - стол преподавателя; 5 - стол демонстрационный; 6 - стол лабораторный; 7 - доска меловая; 8 - щиты экспозиционные; 9 - шкаф; 10 - вытяжной шкаф.

Примечания:

• Размеры приведены в сантиметрах.

• Здесь и далее на рисунках пунктиром показана возможность размещения дополнительных учебных мест.

Рис. 2. Минимальные параметры размещения мебели и оборудования в лекционных аудиториях.

1 - стол преподавателя; 2 - кресло преподавателя; 3 - кресла с пюпитрами; 4 - тумба проектора, 5 - доска меловая; 6 - экран; 7 - система зашторивания.

Примечание: размеры приведены в сантиметрах.

Рис. 3. Планировка кабинета общеобразовательных дисциплин.

1 - стол преподавателя; 2 - стол ученический; 3 - стул учащегося; 4 - стул преподавателя; 5 - доска меловая; 6 - экран; 7 - шкаф пристенный; 8 - тумба для проекционных аппаратов; 9 - щиты экспозиционные.

Примечание: размеры приведены в сантиметрах.

Рис. 4. Планировка кабинета общетехнических и специальных дисциплин.

1 - стоп демонстрационный; 2 - стол ученический; 3 - стул учащегося; 4 - стул преподавателя; 5 - доска меловая; 6 - экран; 7 - шкаф-перегородка; 8 - тумба для графопроектора; 9 - щиты экспозиционные; 10 - место для моделей и макетов.

Примечание: размеры приведены в сантиметрах.

Рис. 5. Планировка лаборатории физики.

1 - стол демонстрационный; 2 - стол лабораторный физический; 3 - стул учащегося; 4 - стул преподавателя; 5 - доска меловая; 6 - шкаф-перегородка; 7 - щиты экспозиционные.

Примечание: размеры приведены в сантиметрах.

Рис. 6. Планировка лаборатории химии.

1 - стол демонстрационный; 2 - стол лабораторный химический; 3 - стул учащегося; 4 - стул преподавателя; 5 - доска меловая; 6 - шкаф пристенный; 7 - шкаф вытяжной.

Примечание: размеры приведены в сантиметрах.

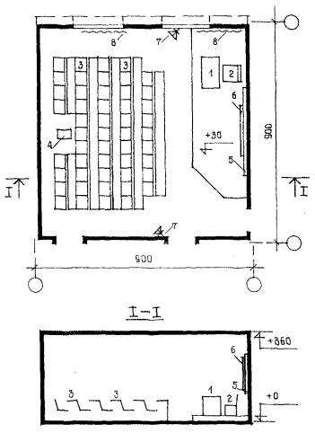
Рис. 7. Планировка лекционной аудитории на 50 мест.

1 - стол преподавателя; 2 - кресло преподавателя; 3 - кресла с пюпитрами; 4 - тумба для проектора; 5 - меловая доска; 6 - экран; 7 - телевизор; 8 - система автоматического зашторивания.

Примечание: размеры приведены в сантиметрах.

Рис. 8. Планировка лекционной аудитории на 120 мест.

1 - стол преподавателя; 2 - кресло преподавателя; 3 - кресла с пюпитрами; 4 - тумба для проектора; 5 - меловая доска; 6 - экран; 7 - телевизор; 8 - система зашторивания.

Примечание: размеры приведены в сантиметрах.

 

 



© 2013 Ёшкин Кот :-)