
МИНИСТЕРСТВО
ТОПЛИВА И ЭНЕРГЕТИКИ РОССИЙСКОЙ ФЕДЕРАЦИИ
СТАНДАРТЫ ОТРАСЛИ
ДЕТАЛИ И СБОРОЧНЫЕ ЕДИНИЦЫ ТРУБОПРОВОДОВ
ИЗ УГЛЕРОДИСТОЙ И НИЗКОЛЕГИРОВАННОЙ СТАЛЕЙ
НА Рраб < 2,2 МПа (22 кгс/см2), t ≤ 425 °С
ТЕПЛОВЫХ ЭЛЕКТРОСТАНЦИЙ
ЧАСТЬ II
СТАНДАРТ ОТРАСЛИ
Детали и сборочные единицы
трубопроводов ТЭС
на Рраб < 2,2 МПа (22 кгс/см2), t ≤
425 °С
ЗАГЛУШКИ ПЛОСКИЕ ПРИВАРНЫЕ С РЕБРАМИ
Конструкция и размеры
ОСТ 34 10.759-97
Предисловие
1 РАЗРАБОТАН АООТ
Севзапэнергомонтажпроект
2 УТВЕРЖДЕН И ВВЕДЕН В ДЕЙСТВИЕ Приказом Министерства топлива и энергетики РФ от 23 декабря 1997 г. №
443.
3 ВЗАМЕН ОСТ 3410-759-92
СОДЕРЖАНИЕ
Детали и сборочные единицы трубопроводов ТЭС
на Рраб < 2,2 МПа (22 кгс/см2), t ≤
425 °С
ЗАГЛУШКИ ПЛОСКИЕ ПРИВАРНЫЕ С РЕБРАМИ
Дата введения 1998-03-01
Настоящий стандарт
распространяется на плоские приварные заглушки с ребрами из углеродистой и низколегированной сталей для трубопроводов тепловых электростанций.
Стандарт соответствует требованиям «Правил
устройства и безопасной эксплуатации трубопроводов пара и горячей воды» РД 03-94, утвержденным
Госгортехнадзором РФ [1].
Плоские приварные заглушки
с ребрами предназначены для применения на трубопроводах, на которые распространяются РД 03-94.
Допускается применение
плоских приварных заглушек с ребрами по настоящему стандарту для изготовления трубопроводов по СНиП
3.05.05-84, утвержденным Госстроем СССР [2].
Пределы применения плоских приварных заглушек с ребрами приведены
в таблице 1.
Таблица 1
|
Условное давление Ру, МПа (кгс/см2)
|
Рабочее давление Рраб, МПа (кгс/см2) для температуры рабочем
среды, °С
|
|
200
|
250
|
300
|
350
|
400
|
425
|
|
4,00 (40,0)
|
-
|
-
|
-
|
-
|
-
|
2,0 (20,0)
|
|
2,50 (25,0)
|
2,20 (22,0)
|
2,20 (22,0)
|
1,90 (19,0)
|
1,7 (17)
|
-
|
-
|
|
1,60 (16,0)
|
1,60 (16,0)
|
1,40 (14,0)
|
1,20 (12,0)
|
-
|
-
|
-
|
|
1,00 (10,0)
|
1,00 (10,0)
|
0,90 (9,0)
|
0,75 (7,5)
|
-
|
-
|
-
|
|
0,63 (6,3)
|
0,60 (6,0)
|
0,54 (5,4)
|
0,48 (4,8)
|
-
|
-
|
-
|
|
0,40 (4,0)
|
0,40 (4,0)
|
0,35 (3,5)
|
0,30 (3,0)
|
-
|
-
|
-
|
|
0,25 (2,5)
|
0,25 (2,5)
|
0,23 (2,3)
|
0,19 (1,9)
|
-
|
-
|
-
|
1.1 Для трубопроводов тепловых сетей допускается применение
плоских приварных заглушек на рабочее давление до 2,5 МПа при рабочей
температуре до 200 °С.
В настоящем стандарте использованы ссылки на следующие
стандарты:
ОСТ
34 10.747-97 Детали и сборочные единицы
трубопроводов ТЭС на Рраб < 2,2 МПа (22 кгс/см2), t ≤ 425 °С. Трубы и прокат.
Сортамент.
ОСТ
34 10.748-97 Детали и сборочные единицы трубопроводов ТЭС на Рраб < 2,2 МПа (22 кгс/см2), t ≤ 425 °С. Соединения сварные стыковые. Типы,
конструктивные элементы и размеры.
ОСТ
34 10.766-97 Детали и сборочные единицы трубопроводов ТЭС на Рраб < 2,2 МПа (22 кгс/см2), t ≤ 425 °С. Технические требования.
Конструкция и размеры
плоских приварных заглушек должны соответствовать указанным на чертеже 1 и в таблицах 2 и 3.

* Размеры для справок
Чертеж 1, лист 1

Чертеж 1, лист 2
Таблица 2
Размеры в миллиметрах
|
Обозначение заглушки приварной с ребрами
|
Условное давление
Ру, МПа (кгс/см2)
|
Условный
проход Dу
|
Dн
|
Dн1
|
S
|
S1
|
S2
|
L ± 5
|
l
|
b
|
h
|
к
|
к1
|
к2
|
α ± 3°
|
Масса, кг
|
|
не менее
|
|
01
|
4,0 (40)
|
300
|
325
|
89
|
8
|
9
|
14
|
300
|
100
|
10
|
5
|
7
|
8
|
4
|
60°
|
29,9
|
|
02
|
350
|
377
|
9
|
16
|
110
|
11
|
9
|
46,6
|
|
03
|
400
|
426
|
18
|
130
|
12
|
8
|
62,4
|
|
04
|
2,5 (25)
|
14
|
110
|
10
|
7
|
54,9
|
|
05
|
500
|
530
|
159
|
8
|
18
|
150
|
12
|
8
|
8
|
5
|
76,1
|
|
06
|
1,6 (16)
|
16
|
120
|
11
|
72,5
|
|
07
|
2,5 (25)
|
600
|
630
|
12
|
20
|
160
|
12
|
45°
|
134,7
|
|
08
|
1,6 (16)
|
8
|
18
|
150
|
60°
|
102,1
|
|
09
|
1,0 (10)
|
14
|
130
|
10
|
7
|
86,7
|
|
10
|
2,5 (25)
|
700
|
720
|
9
|
12
|
22
|
170
|
13
|
6
|
10
|
10
|
45°
|
160,6
|
|
11
|
1,6 (16)
|
20
|
160
|
12
|
5
|
8
|
60°
|
140,0
|
|
12
|
1,0 (10)
|
219
|
9
|
16
|
150
|
11
|
8
|
116,7
|
|
13
|
0,6 (6)
|
12
|
130
|
17
|
8
|
7
|
97,2
|
|
14
|
2,5 (25)
|
800
|
820
|
11
|
16
|
25
|
190
|
15
|
7
|
14
|
11
|
7
|
45°
|
239,2
|
|
15
|
1,60 (16,0)
|
9
|
20
|
170
|
12
|
5
|
10
|
9
|
194,2
|
|
16
|
1,00 (10,0)
|
9
|
16
|
160
|
11
|
8
|
5
|
157,9
|
|
17
|
0,60 (6,0)
|
14
|
140
|
10
|
60°
|
138,0
|
|
18
|
2,50 (25,0)
|
1000
|
1020
|
14
|
16
|
25
|
350
|
220
|
15
|
7
|
14
|
14
|
7
|
30°
|
446,0
|
|
19
|
1,60 (16,0)
|
10
|
20
|
200
|
12
|
|
10
|
10
|
339,7
|
|
20
|
0,60 (6,0)
|
14
|
140
|
10
|
|
14
|
244,8
|
|
21
|
1,60 (16,0)
|
1200
|
1220
|
273
|
11
|
16
|
25
|
230
|
15
|
7
|
10
|
11
|
7
|
30°
|
550,8
|
|
22
|
1,00 (10,0)
|
20
|
200
|
12
|
5
|
446,8
|
|
23
|
0,60 (6,0)
|
11
|
16
|
160
|
11
|
8
|
6
|
375,5
|
|
24
|
0,40 (4,0)
|
14
|
150
|
10
|
326,0
|
|
25
|
0,25 (2,5)
|
12
|
17
|
8
|
45°
|
279,2
|
|
26
|
1,0 (10,0)
|
1400
|
1420
|
14
|
16
|
2
|
400
|
230
|
13
|
6
|
14
|
14
|
7
|
30°
|
718,6
|
|
27
|
0,60 (6,0)
|
18
|
200
|
12
|
5
|
10
|
594,5
|
|
28
|
0,40 (4,0)
|
16
|
160
|
11
|
534,7
|
|
29
|
0,25 (2,5)
|
273
|
11
|
12
|
150
|
17
|
8
|
8
|
6
|
439,4
|
|
30
|
1,00 (10,0)
|
1600
|
1620
|
16
|
25
|
250
|
15
|
7
|
20
|
7
|
1022,5
|
|
31
|
0,60 (6,0)
|
190
|
924,9
|
|
32
|
0,40 (4,0)
|
18
|
180
|
12
|
5
|
16
|
721,6
|
|
33
|
0,25 (2,5)
|
140
|
672,9
|
Пример условного обозначения плоской приварной заглушки с ребрами для трубопровода Dу 500 мм, на условное давление Ру 1,6 МПа:
Заглушка 500-1,6 07 ОСТ 3410-759-97
Таблица 3
|
Обозначение заглушки приварной с ребрами
|
Позиция 1
Диск
количество (кол.) 1
|
Позиция 2
Ребро
|
Позиция 3
Патрубок
Количество 1
|
Позиция 4
Кольцо
количество 1
|
|
Обозначение по настоящему стандарту
|
Кол.
|
Размеры, им
|
Материал по ОСТ
34 10.747, раздел
|
Масса, кг
|
Размеры, мм
|
|
|
Dн´S
|
L*
|
Dн1´S1
|
L
|
Масса, кг
|
|
01
|
1-01
|
2-01
|
6
|
325´8
|
300
|
4
|
18,8
|
89´9
|
100
|
1,8
|
|
02
|
1-02
|
2-02
|
377´9
|
24,5
|
110
|
1,9
|
|
03
|
1-03
|
2-03
|
426´10
|
30,8
|
130
|
2,3
|
|
04
|
1-04
|
2-01
|
110
|
2,0
|
|
05
|
1-05
|
2-05
|
530´8
|
8
|
27,1
|
159´9
|
150
|
5,0
|
|
06
|
1-06
|
2-06
|
30,9
|
120
|
4,0
|
|
07
|
1-07
|
2-07
|
8
|
630´12
|
54,9
|
160
|
5,4
|
|
08
|
1-08
|
2-08
|
6
|
630´8
|
36,8
|
150
|
5,0
|
|
09
|
1-09
|
2-09
|
130
|
4,3
|
|
10
|
1-10
|
2-10
|
8
|
720´9
|
42,1
|
159´12
|
170
|
7,4
|
|
11
|
1-11
|
2-11
|
6
|
160
|
6,9
|
|
12
|
1-12
|
2-12
|
219´9
|
150
|
7,0
|
|
13
|
1-13
|
2-13
|
130
|
6,1
|
|
14
|
1-14
|
2-14
|
8
|
820´11
|
59,9
|
219´16
|
190
|
15,2
|
|
15
|
1-15
|
2-15
|
820´9
|
54,0
|
170
|
13,6
|
|
16
|
1-16
|
2-16
|
219´9
|
160
|
7,4
|
|
17
|
1-17
|
2-17
|
6
|
140
|
6,5
|
|
18
|
1-18
|
2-18
|
12
|
1020´14
|
350
|
121,6
|
219´16
|
220
|
17,6
|
|
19
|
1-19
|
2-19
|
1020´10
|
87,2
|
200
|
16,0
|
|
20
|
1-20
|
2-20
|
140
|
11,2
|
|
21
|
1-21
|
2-21
|
1220´11
|
350
|
8
|
114,8
|
273´16
|
230
|
23,3
|
|
22
|
1-22
|
2-22
|
200
|
20,3
|
|
23
|
1-23
|
2-23
|
273´11
|
160
|
11,4
|
|
24
|
1-24
|
2-24
|
150
|
10,7
|
|
25
|
1-25
|
8
|
|
26
|
1-26
|
2-25
|
12
|
1420´14
|
400
|
194,2
|
273´16
|
230
|
23,3
|
|
27
|
1-27
|
2-26
|
200
|
20,3
|
|
28
|
1-28
|
2-27
|
160
|
16,2
|
|
29
|
1-29
|
2-28
|
273´11
|
150
|
10,7
|
|
30
|
1-30
|
2-29
|
1600´14
|
221,8
|
273´16
|
250
|
25,3
|
|
31
|
2-30
|
190
|
19,3
|
|
32
|
1-31
|
2-31
|
180
|
18,2
|
|
33
|
2-32
|
140
|
14,2
|
|
* Размер - после
обработки по чертежу 1
|
3.1 Конструкция и размеры диска
должны соответствовать указанным на чертеже 2 и в таблице 4.

* Размер для справок
Чертеж 2
Таблица 4
Размеры в миллиметрах
|
Обозначение диска
|
D
|
S
|
a
|
Масса, кг
|
|
1-01
|
305
|
14
|
5
|
7,4
|
|
1-02
|
355
|
16
|
6
|
11,7
|
|
1-03
|
404
|
18
|
7
|
17,2
|
|
1-04
|
14
|
5
|
13,6
|
|
1-05
|
510
|
18
|
7
|
28,1
|
|
1-06
|
16
|
6
|
25,2
|
|
1-07
|
602
|
20
|
8
|
44,1
|
|
1-08
|
610
|
18
|
7
|
40,2
|
|
1-09
|
14
|
5
|
31,5
|
|
1-10
|
698
|
22
|
9
|
63,9
|
|
1-11
|
20
|
8
|
58,2
|
|
1-12
|
16
|
6
|
47,0
|
|
1-13
|
12
|
-
|
34,1
|
|
1-14
|
794
|
25
|
10,5
|
94,1
|
|
1-15
|
798
|
20
|
8
|
76,5
|
|
1-16
|
16
|
6
|
61,1
|
|
1-17
|
14
|
5
|
54,0
|
|
1-18
|
988
|
25
|
10,5
|
146,8
|
|
1-19
|
996
|
20
|
8
|
119,6
|
|
1-20
|
14
|
5
|
84,3
|
|
1-21
|
1194
|
25
|
10,5
|
213,1
|
|
1-22
|
20
|
8
|
170,9
|
|
1-23
|
16
|
6
|
136,8
|
|
1-24
|
14
|
5
|
120,0
|
|
1-25
|
12
|
-
|
100,8
|
|
1-26
|
1388
|
22
|
9
|
257,4
|
|
1-27
|
18
|
7
|
210,8
|
|
1-28
|
16
|
6
|
187,0
|
|
1-29
|
12
|
-
|
137,6
|
|
1-30
|
1588
|
25
|
10,5
|
387,8
|
|
1-31
|
18
|
7
|
278,9
|
Пример условного обозначения диска:
Диск 1-04 ОСТ 3410-759-97

* Размер для справок
Чертеж 3
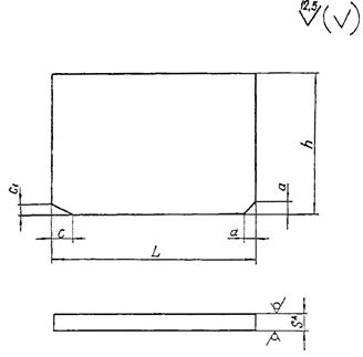
Таблица 5
Размеры в миллиметрах
|
Обозначение ребра
|
S
|
h
|
L
|
a
|
c
|
c1
|
Масса, кг
|
|
2-01
|
10
|
100
|
107
|
10
|
16
|
10
|
0,8
|
|
2-02
|
|
110
|
132
|
11
|
18
|
12
|
1,4
|
|
2-03
|
|
130
|
157
|
20
|
1,9
|
|
2-04
|
10
|
110
|
10
|
16
|
10
|
1,4
|
|
2-05
|
12
|
150
|
175
|
11
|
20
|
12
|
2,5
|
|
2-06
|
120
|
2,0
|
|
2-07
|
160
|
221
|
3,3
|
|
2-08
|
150
|
225
|
10
|
16
|
10
|
3,2
|
|
2-09
|
10
|
130
|
14
|
20
|
12
|
2,3
|
|
2-10
|
16
|
170
|
269
|
11
|
18
|
5,8
|
|
2-11
|
160
|
10
|
22
|
14
|
5,4
|
|
2-12
|
12
|
150
|
239
|
20
|
24
|
3,4
|
|
2-13
|
10
|
130
|
14
|
20
|
12
|
2,4
|
|
2-14
|
20
|
190
|
287
|
11
|
18
|
8,6
|
|
2-15
|
16
|
170
|
289
|
16
|
10
|
6,2
|
|
2-16
|
12
|
160
|
20
|
24
|
14
|
4,4
|
|
2-17
|
140
|
14
|
20
|
12
|
3,8
|
|
2-18
|
20
|
220
|
384
|
11
|
13,3
|
|
2-19
|
16
|
200
|
388
|
20
|
24
|
141
|
9,7
|
|
2-20
|
12
|
140
|
14
|
5,1
|
|
2-21
|
20
|
230
|
460
|
20
|
12
|
16,6
|
|
2-22
|
16
|
200
|
11
|
18
|
11,6
|
|
2-23
|
160
|
22
|
14
|
9,2
|
|
2-24
|
12
|
150
|
20
|
6,5
|
|
2-25
|
20
|
230
|
557
|
14
|
20
|
12
|
20,1
|
|
2-26
|
16
|
200
|
16
|
10
|
14,0
|
|
2-27
|
160
|
11
|
22
|
14
|
11,2
|
|
2-28
|
12
|
150
|
22
|
24
|
7,9
|
|
2-29
|
25
|
250
|
657
|
312
|
|
2-30
|
190
|
16
|
18
|
12
|
24,5
|
|
2-31
|
18
|
130
|
4
|
10
|
16,7
|
|
2-32
|
140
|
13
|
20
|
12
|
13,0
|
Пример условного обозначения ребра:
Ребро 2-06 ОСТ 3410-759-97
3.3 Материал:
дисков и ребер - лист в соответствии с сортаментом листов по ОСТ
34 10.747, раздел 11;
патрубков см. таблицу 3 настоящего стандарта;
колец - трубы бесшовные по
ТУ 14-3-190, ТУ 14-3-460, ТУ 14-3-1128; требования к трубам по ОСТ
34 10.747, раздел 5.
3.4 Диаметр дисков D уточнить по
фактическим внутренним диаметрам патрубков с учетом
допускаемого запора не более 2 мм на сторону. Длины ребер уточнить по фактическим внутренним диаметрам патрубков
и наружным диаметрам колец с учетом
допускаемого зазора не более 1,5 мм с каждой стороны.
3.5 При сварке патрубка с предварительно
сваренным узлом
(диск, ребра, кольцо) размеры с и с1 ребра устанавливаются производственно-технологической документацией по сварке в зависимости от применяемого способа сварки.
3.6 Требования к подготовке кромок патрубка под сварку и сварке его с трубопроводом - по ОСТ
34 10.748, при этом диаметры расточек патрубка и минимально-допустимые толщины стенок в месте расточек выбираются в зависимости от размеров присоединяемых
труб.
3.7 Неуказанные предельные отклонения размеров 
3.8 Остальные технические требования - по ОСТ
34 10.766.
(информационное)
[1] РД 03-94. Правила устройства и безопасной эксплуатации
трубопроводов пара и горячей воды.
[2] СНиП
3.05.05-84. Технологическое оборудование и
технологические
трубопроводы.
|