| |||||||||||||||||||||||||||||||||||||||||||||||||||||||||||||||||||||||||||||||||||||||||||||||||||||||||||||||||||||||||||||||||||||||||||||||||||||||||||||||||||||||||||||||||||||||||||||||||||||||||||||||||||||||||||||||||||||||||||||||||||||||||||||||||||||||||||||||||||||||||||||||||||||||||||||||||||||||||||||||||||||||||||||||||||||||||||||||||||||||||||||||||||||||||||||||||||||||||||||||||||||||||||||||||||||||||||||||||||||||||||||||||||||||||||||||||||||||||||||||||||||||||||||||||||||||||||||||||||||||||||||||||||||||||||||||||||||||||||||||||||||||||||||||||||||||||||||||||||||||||||||||||||||||||||||||||||||||||||||||||||||||||||||||||||||||||||||||||||||||||||||||||||||||||||||||||||||||||||||||||||||||||||||||||||||||||||||||||||||||||||||||||||||||||||||||||||||||||||||||||||||||||||||||||||||||||||||||||||||||||||||||||||||||||||||||||||||||||||||||||||||||||||||||||||||||||||||||||||||||||||||||||||||||||||||||||||||||||||||||||||||||||||||||||||||||||||||||||||||||
|
Центральный
научно-исследовательский ОАО «ЦНИИпромзданий»
ПАНЕЛИ ТРЕХСЛОЙНЫЕ СТЕНОВЫЕ ООО «ТАЛДОМ ПРОФИЛЬ» Рекомендации по применению Шифр М25.50/01.И1. Договор М25.8/03 Зав. сектором Г. М. Смилянский Глав. спец. Т. Н. Лукашевич Москва – 2003 СОДЕРЖАНИЕ 1. ОБЛАСТЬ ПРИМЕНЕНИЯ1.1. Работа является корректировкой выпуска М 25.50/01 с целью приведения в соответствие с действующими нормами на апрель 2003 г. и содержит материалы для проектирования стен и перегородок из трехслойных панелей со стальными обшивками и средним слоем из минераловатной плиты с поперечно ориентированным волокном и решения основных узлов*. 1.2. Конструкции разработаны для общественных и производственных зданий с сухим или нормальным влажностным режимом помещений для строительства в сухой и нормальной зонах влажности страны. 1.3. Условия применения конструкций определяются с учетом указаний и ограничений действующих норм: СНиП 2.08.02-89* «Общественные здания и сооружения»; СНиП 2.09.04-87* «Административные и бытовые здания»; СНиП 31-03-2001 «Производственные здания»; СНиП 2.01.01-82 «Строительная климатология и геофизика»; СНиП 23-01-99 «Строительная климатология»; СНиП 21-01-97 «Пожарная безопасность зданий и сооружений»; СНиП II-3-79*«Строительная теплотехника». 1998г. Изготовитель панелей - фирма ООО «Талдом - Профиль», 141900, Талдом, Московской области, ул. Советская, д. 22а, тел./факс (09620) 6-16-71 или 2-11-96. Код из Москвы (220). 127474, Москва, ул. Дубнинская, д. 13, пом. 9, тел./факс (095) 481-00-80: 481-50-61. Фирма ООО «Талдом - Профиль» производит и поставляет панели и холодноформованные погонажные элементы. Все остальные комплектующие детали поставляются соответствующими заводами-изготовителями. 1.4. Степень агрессивного воздействия атмосферы воздуха - неагрессивная, слабоагрессивная. 2. КОНСТРУКЦИЯ ПАНЕЛЕЙ2.1. Панели представляют трехслойную конструкцию с обшивками из стального оцинкованного и окрашенного листа и средним слоем из минераловатной плиты с поперечно ориентированным волокном (рис. 1). Панели изготавливаются по ТУ 5284-003-50186441-02. Номинальная ширина панелей 1, 2 м, толщина 50, 75, 100, 125, 150, 175, 200 и 250 мм и длина до 7,5 м. В наружных стенах применяются панели толщиной 100...250 мм. Панели толщиной 50 и 75 мм предназначены, в основном, для перегородок. Возможно их применение в наружных стенах и чердачных перекрытиях. В этих случаях из-за малой несущей способности и высокой деформативности под действием сезонного перепада температур рекомендуется однопролетная схема с величиной пролета при толщине 50 мм не более 3,6 м и при толщине 75 мм не более 5,4 м. 2.2. В качестве основного варианта минераловатных плит среднего теплоизоляционного слоя панелей приняты плиты марки «Нобасил Т105» фирмы «Изомат» (Словения), ТС-07-0388-01. Физико-технические показатели материала среднего слоя приведены в таблице 1. Таблица 1
Рис. 1. Стеновая панель
* Только для панелей с сердечником марки "Нобасил Т 105" Возможно применение других марок минераловатных плит с аналогичными прочностными и изоляционными свойствами. 2.3. Обшивки выполняются из холоднокатанного стального оцинкованного листа по ТС-07-0641-02 НЛМК сечением 1250 ´ 0,6 мм с органическими покрытиями (лакокрасочными, органозолевым или пластизолевым). 2.4. Лакокрасочное покрытие выполняется в соответствии с требованиями ГОСТ 23486-79 и указанным ТС. В качестве защитных покрытий применяют: - эмаль акрилсиликоновую АС-1171 по ТУ 6-10-1693-79 или эмаль полиэфирсиликоновую МЛ 1202 по ТУ 6-10-1761-80; - органзолевое покрытие марки ОД-ХВ-221 по ТУ 6-10-1606-77; - пластизолевое покрытие марки ПЛ-ХВ-122 по ТУ 6-10-11-146-76. Возможно применение других видов рулонной стали и ее отделки, в том числе импортных (см. Приложение 1, табл. 1 в ТУ 5284-003-50186441-02). Характеристики отечественных лакокрасочных материалов, в том числе их цвет, приведены в ГОСТ 30246-94. Образцы маркировки цветовой гаммы, применяемые в Финляндии и Швеции, а также по каталогу RAL даны в табл. 1 ТУ 5284-003-50186441-02. 2.5 В соответствии с Сертификатом пожарной безопасности № ССПБ.Ru.ОП031.В.00123 предел огнестойкости стен из трехслойных панелей с металлическими обшивками и утеплителем из минераловатной плиты с поперечно ориентированными волокнами (ПТС «Талдом Профиль») Е 120 из панелей ТП-С толщиной 150; 170 и 200 мм и Е 60 из панелей ТП-С толщиной 100; 125 мм. Класс пожарной опасности КО (см. приложения 4 и 5). В соответствии с Сертификатом пожарной безопасности № ССПБ.Ru.ОП031.В.00124 перегородки из таких же панелей имеют предел огнестойкости EI 120 из панелей ТП-С толщиной 150; 170 и 200 мм и EI 60 из панелей ТП-С толщиной 100; 125 мм. Класс пожарной опасности КО (см. приложения 4 и 6). 3. РАСЧЕТНЫЕ НАГРУЗКИ3.1. Несущая способность панели зависит от ее толщины, толщины обшивок, прочности сердечника и ширины площадки опирания. 3.2. Допускаемые расчетные нагрузки на однопролетные панели в зависимости от пролета определять по графикам рис. 2. 3.3. Наибольшая величина пролета стандартных стеновых панелей при двухпролетной схеме их работы, определенная с учетом усилий от перепада температур в 55 °С, приведена в таблице 2. Таблица 2
Так, при зимней внутренней температуре +16 °С температура наружной обшивки не должна быть ниже -39 °С. 4. НОРМЫ ТЕПЛОЗАЩИТЫ ЗДАНИЙ И ДАННЫЕ ПО НЕОБХОДИМОЙ ТОЛЩИНЕ ПАНЕЛЕЙ4.1. Минимально допустимое сопротивление теплопередаче стен и покрытий для зданий различного назначения и разных климатических условий регламентировано СНиП II-3-79* «Строительная теплотехника», 1998 г. Степень теплозащиты зависит от числа градусо-суток отопительного периода, определяемого по данным главы СНиП 23-01-99 «Строительная климатология», и назначения здания.
Рис. 2А. Зависимость "пролет-нагрузка" для однопролетной панели ТП-С 50 b - ширина опирания
Рис. 2Б. Зависимость "пролет-нагрузка" для однопролетной панели ТП-С 75 b - ширина опирания
Рис. 2В. Зависимость "пролет-нагрузка" для однопролетной панели ТП-С 100 и ТП-С 125 b - ширина опирания
Рис. 2Г. Зависимость "пролет-нагрузка" для однопролетной панели ТП-С 150 и ТП-С 175 b - ширина опирания
Рис. 2Д. Зависимость "пролет-нагрузка" для однопролетной панели ТП-С 200 b - ширина опирания
Рис. 2Е. Зависимость "пролет-нагрузка" для однопролетной панели ТП-С 250 b - ширина опирания 4.2. В соответствии с табл. 1-б главы СНиП II-3-79* по назначению здания образуют 3 группы: 1. Лечебно-профилактические и детские учреждения, школы, интернаты; 2. Общественные, кроме указанных выше, административные и бытовые, за исключением помещений с влажным и мокрым режимом; 3. Производственные здания с сухим и нормальным режимом. В зависимости от значения показателя градусо-суток отопительного периода нормировано минимально допустимое сопротивление теплопередаче стены. 4.3. В таблице 3 для всех областных и республиканских центров страны и указанных выше групп зданий приведено значение необходимой минимальной толщины стандартных панелей стен. При этом учитывалось, что толщина панелей должна быть не менее 100 мм. Таблица составлена применительно к панелям с сердечником из плит «Нобасил Т105» с расчетными значениями λА = 0,051 Вт/м°С и λБ = 0,055 Вт/м°С по результатам исследований НИИСФ, (ТУ 5284-003-50186441, табл. 6). 5. КОНСТРУКТИВНОЕ РЕШЕНИЕ СТЕН И ПЕРЕГОРОДОК5.1. Цоколь стен принят из трехслойных железобетонных панелей с эффективной теплоизоляцией. При необходимости - цоколь может быть выполнен из кирпича, бетонных камней и т.п. с обязательным включением в него слоя эффективной теплоизоляции. 5.2. Поле стены решается с горизонтальным или вертикальным расположением панелей, работающих по одно- или многопролетной схеме. Предпочтительна горизонтальная разрезка, т.к. при этом исключается необходимость в дополнительных элементах фахверка (например, в уровне стыка ярусов панелей, по верху стены и др.) и исключается возможность попадания воды с плоскости стены по «зигам» под горизонтальные нащельники при отсутствии специальной заделки, трудоемкой и портящей фасад. Таблица 3
5.3. К несущим конструкциям панели крепят сквозными самосверлящими винтами Ø 5,5 или 6,3 мм (см. табл. 4) со стальной и уплотняющей шайбами под головкой. Сортамент самосверлящих винтов из углеродистой стали для крепления панелей и доборных элементов дан в таблице 4, а из нержавеющей стали - в таблице 4а. Использование нержавеющей стали предпочтительно. Поставщик самосверлящих винтов - фирма «СФС-системы» (тел. офиса в г. Москве 317-40-63). Число винтов на каждой линии крепления панели определяется расчетом из условия, что предельное расчетное отрывающее усилие на винт при диаметре шайбы 19 мм не должно превышать 80 кг/шт. («Проектирование стен из панелей «Парок», материалы фирмы. 1994»). Конструктивно в каждом торце панели или по каждой линии крепления ставят не менее 3 винтов. Винты могут комплектоваться цветными пластмассовыми колпачками. 5.4. При горизонтальной разрезке панели примыкают к колоннам и, при необходимости, к стойкам фахверка через герметизирующие прокладки сечением 15 ´ 5 мм типа Абрис С - ЛБ (ТУ5772-003-43008408-99), г. Дзержинск, Новгородской обл., ООО «Завод герметизирующих материалов», тел. (8313) 27-50-78. Зазор между торцами панелей заделывают минераловатной прокладкой и перекрывают паропроницаемой (диффузионной) самоклеящейся лентой (ГПЛ), в качестве которой могут применяться ленты: - Абрис С-ЛТ (дифф.), ТУ 5772-003-43008408-99, изготовитель - см. выше. Лента - шириной 2...250 мм и толщиной 1...5 мм; шнур диаметром 1...5 мм; - Лента «Викар Д», поставщик ООО «Робитекс», г. Москва, тел. 780-52-74, 443-42-64; стандартная ширина 70 и 100 мм, по заказу - до 200 мм; - Лента «Jlldif А», поставщик фирма «Jllbruck», г. Москвадел. 433-42-44; шириной 50; 70 и 100 мм. Возможна установка ленты других изготовителей. Снаружи шов закрывают металлическим нащельником. Нащельник закрепляют к обшивкам смежных панелей самосверлящими винтами. Шов примыкания панели к цоколю герметизируют шнуром Абрис С-ЛБ и из помещения закрывают нащельником, который устанавливается на цоколь и примыкает к обшивке панели через указанную выше прокладку сечением 15 ´ 5 мм. Таблица 4 Сортамент самосверлящих винтов и шурупов из углеродистой стали поставки фирмы "SFS intec".
ООО "SFS Системы", офис в г. Москве, тел. 317-40-63, факс 317-40-09 Таблица 4а Сортамент самосверлящих винтов и шурупов из нержавеющей стали поставки фирмы "SFS intec".
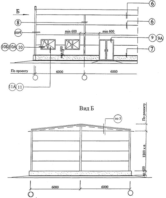
ООО "SFS Системы", офис в г. Москве, тел. 317-40-63, факс 317-40-09 5.5. При вертикальной разрезке панели примыкают к цоколю через прокладку из минераловатной плиты. С наружной стороны шов перекрывают паропроницаемой (ГПЛ) лентой (см. выше). С внутренней стороны панели примыкают к крепежному уголку через прокладку Абрис С-ЛБ сечением 15 ´ 5 мм. Узел примыкания закрывается нащельником из оцинкованного листа с полимерным покрытием. К панели лист крепят самосверлящими винтами или комбинированными заклепками, к бетонному цоколю - дюбель-гвоздями или анкерами пружинными Spike. Геометрия нащельников разрабатывается в проекте и согласовывается с технологами завода. Возможно использование типовых нащельников по каталогу завода. Длина нащельников, как правило, 2000 мм. 5.6. Окна и двери могут применяться деревянные, пластиковые или алюминиевые. Предпочтительны пластиковые как образующие хороший притвор и хорошую звукоизоляцию. В работе приведены узлы примыкания алюминиевых окон и дверей к панелям стен на примере изделий фирмы ООО «Алюстройтех» (г. Зеленоград. Моск. обл., тел. (095) 536-8823, факс 536-8858). Точечные окна рекомендуется выполнять высотой проема 1,2 м в пределах высоты одной панели. Обшивки каждой панели по периметру проема соединяют скобами из полосы 70 ´ 1,2 мм с шагом 600...700 мм. Коробку окна крепят в 2-х точках по каждой боковой стороне самосверлящими винтами. При 2-х и более окнах высотой 1,2 м в шаге осей 6 м, окнах больших размеров и дверях предусматривают фахверк предпочтительно из трубчатых профилей прямоугольного сечения с толщиной 3...5 мм, располагаемый вплотную к внутренней поверхности стены. В этом случае размер проема определяется с учетом возможности резки панелей без нарушения их целостности - вырез глубиной не более 600 мм; расстояние от вертикальной границы проема до торца панели не менее 600 мм. Соединение скобами сохраняется во всех случаях. В общем случае установка и крепление оконных или дверных коробок из алюминия или пластика разрабатываются конкретной фирмой-поставщиком изделий. Зазор между коробкой окна и панелью заделывают полосой минераловатной плиты и изолируют со стороны улицы паропроницаемой (диффузионной) лентой ПУЛ, а из помещения - пароизоляционной уплотнительной лентой (ПУЛ) в качестве которой применяется лента Абрис С-ЛБ толщиной 1 мм и шириной 100...250 мм. Затем швы закрывают металлическими нащельниками. 5.7. Верх стен в зависимости от архитектурного решения и высоты здания выполняется с карнизом или парапетом. Примеры решения покрытия в узлах 3 и 5 даны для варианта его сборки из укрупненных карт, включающих все элементы конструкции, кроме кровельного листа, который ставят после изоляции швов между картами и стенами. 5.8. Перегородки решаются аналогично стенам, т.е. с вертикальным или горизонтальным расположением панелей. При небольшой высоте помещений вертикальная разрезка предпочтительна. Крепление панелей перегородок к перекрытию должно исключать возможность передачи на них нагрузки с перекрытия при его прогибе. Фасад Вертикальная разрезка стек
Узлы даны в документе - 2 Фасад Горизонтальная разрезка стен
Схема фахверка Вертикальная разрезка стен
Схема фахверка Горизонтальная разрезка стен
Узел 1. Крепление панели к цоколю при вертикальной разрезке фасада.
1. Панель 2. Диффузионная лента ГПЛ 3. Самосверлящий винт SDT*, шаг 600 4. Самосверлящий винт SL2-T-A14-4,8 ´ 20 или заклепки АТО-4,8 ´ 6**, шаг 300 5. Анкер пружинный Spike D-4,8 ´ 51, шаг 400 6. Шуруп 7. Индивидуальный доборный элемент 0,6 мм 8. Полоса оцинков. 150 ´ 1,5 мм, шаг 600 9. Пробка деревянная, шаг 600 10. Теплоизоляция из минваты 11. Стальной уголок 75 ´ 75 ´ 5 12. Дюбель-гвоздь ДГ 3,7 ´ 30, шаг 600 13. Лента Абрис С-ЛБ 15 ´ 5 13*. Лента Абрис С-ЛБ 15 ´ 2 14. Индивидуальный доборный элемент 0,6 или 1,2 мм оцинкованный с полимерным покрытием * Номенклатуру крепежных элементов см. в таблице 4 докум. - ПЗ и рекомендации по применению на листе 19 данного документа ** Только внутри помещений Узел 2. Стык панелей при вертикальной разрезке
1. Панель 2. Диффузионная лента ГПЛ 3. Самосверлящий винт SDT, шаг 400 4. Самосверлящий винт SL2-T-A14-4,8 ´ 20, шаг 300 5.; 6. Индивидуальный доборный элемент 0,6 мм оцинкованный с полимерным покрытием 7. Ригель фахверка 8. Теплоизоляция из минваты 9. Лента Абрис С-ЛБ 15 ´ 5 9*. Лента Абрис С-ЛБ 15 ´ 2 Узел 3. Карниз
1. Панель 2. Прогоны кровли 3. Самосверлящий винт SD*, в каждой волне 4. Самосверлящий винт SL2-T-A14-4,8 ´ 20 или заклепки АТО-4,8 ´ 6**, шаг 300 5. Теплоизоляция из минваты 6., 7. Индивидуальный доборный элемент 1,2 мм оцинкованный с полимерным покрытием 8. Профнастил по проекту 9. Минвата по проекту 10. Прокладка из фанеры 14 мм 11. Полиэтиленовая пленка * Номенклатуру крепежных элементов см. в таблице 4 докум. - ПЗ и рекомендации по применению на листе 19 данного документа ** Только внутри помещений Узел 4. Угол стены при стальном каркасе
* Номенклатуру крепежных элементов см. в таблице 4 докум. - ПЗ и рекомендации по применению на листе 19 данного документа ** Обшивку панели обрезать при монтаже 1. Панель 2. Лента Абрис С-ЛБ 15 ´ 5 2*. Лента Абрис С-ЛБ 15 ´ 2 3. Самосверлящий винт SDT, шаг 400 4. Самосверлящий винт SL2-T-A14-4,8 ´ 20, шаг 300 5. Теплоизоляция из минваты 6. Индивидуальный доборный элемент 0,6 мм оцинкованный с полимерным покрытием 7. Стальная колонна Узел 4А. Угол стены при ж. б. каркасе
* Номенклатуру крепежных элементов см. в таблице 4 докум. - ПЗ и рекомендации по применению на листе 19 данного документа ** Обшивку панели обрезать при монтаже 1. Панель 2. Лента Абрис С-ЛБ 15 ´ 5 2*. Лента Абрис С-ЛБ 15 ´ 2 3. Самосверлящий винт SDT, шаг 400 4. Самосверлящий винт SL2-T-A14-4,8 ´ 20, шаг 300 5. Теплоизоляция из минваты 6. Индивидуальный доборный элемент 0,6 мм оцинкованный с полимерным покрытием 7. Шляпный профиль оцинкованный 3 мм Узел 5. Парапет
1. Панель 2. Гнутый швеллер по проекту 3. Самосверлящий винт SD, шаг 600 4. Самосверлящий винт SL2-T14-4,8 ´ 20 или заклепки АТО-4,8 ´ 6, шаг 300 5. Слив оцинкованный 1,2 мм с полимерным покрытием 6. Фартук оцинкованный 0,6 мм с полимерным покрытием 7. Индивидуальный доборный элемент 0,6 мм оцинкованный с полимерным покрытием 8. Профнастил по проекту 9. Минплита по проекту 10. Прокладка из фанеры 14 мм 11. Фанера 14 мм 12. Скоба, оц. полоса 100 ´ 0,8 мм, шаг 500 13. Самосверлящий винт IR2-4,8 ´ 60, шаг 400 Узел 6. Стык панелей
Деталь А (только при вертикальной раскладке панелей)
1. Панель 2. Лента Абрис С-ЛБ 5 ´ 3 Узел 7. Цоколь при горизонтальной разрезке фасада
1. Панель 2. Лента Абрис С-ЛБ 15 ´ 5 2*. Лента Абрис С-ЛБ 15 ´ 2 3. Самосверлящий винт SL2-T-A14-4,8´20 или заклепки АТО-4,8 ´ 6**, шаг 300 4. Дюбель-гвоздь ДГ или анкер пружинный Spike D-4,8 ´ 51 5. Гнутый оцинкованный профиль 0,6 мм с полимерным покрытием 6. Шуруп, шаг 600 7. Гнутый оцинкованный профиль 0,6 мм с полимерным покрытием 8. Полоса оцинков. 150 ´ 1,5 мм, шаг 500 9. Пробка деревянная, шаг 600 10. Теплоизоляция из минваты 11. Доска антисептированная * Номенклатуру крепежных элементов см. в таблице 4 докум. - ПЗ и рекомендации по применению на листе 19 данного документа ** Только внутри помещения Узел 8. Крепление к рядовой колонне.Горизонтальная разрезка фасада.
1. Панель 2. Лента Абрис С-ЛБ 15 ´ 5 3. Самосверлящий винт SDT, шаг 600 4. Самосверлящий винт SL2-T-A14-4,8 ´ 20, шаг 300 5. Теплоизоляция из минваты 6. Индивидуальный доборный элемент 0,6 оцинкованный с полимерным покрытием 7. Колонна 8. Диффузионная лента ГПЛ Узел 9. Крепление дверного блока
1. Панель 2. Лента Абрис С-ЛБ 15 ´ 5 2*. Лента Абрис С-ЛБ 15 ´ 2 3. Самосверлящий винт SDT, шаг 400 4. Самосверлящий винт SL2-T-A14-4,8 ´ 20, шаг 300 5. Теплоизоляция из минваты 6. Индивидуальный доборный элемент 0,6...1,2 мм оцинкованный с полимерным покрытием 7. Стальной элемент конструкции 8. Самосверлящий шуруп SW-T-A14-4,8 ´ 35, шаг 300 9. Дверной блок 10. Диффузионная лента ГПЛ 11. Гнутый уголок толщиной 2 мм 12. Самосверлящий винт SD, шаг 400 * Номенклатуру крепежных элементов см. в таблице 4 докум. - ПЗ и рекомендации по применению на листе 19 данного документа Узел 9А. Крепление дверного блока на примере алюминиевых профилей ООО "Алюмстройтех"
1. Панель 2. Лента Абрис С-ЛБ 15 ´ 5 2*. Лента Абрис С-ЛБ 15 ´2 3. Самосверлящий винт SDT, шаг 400 4. Самосверлящий винт SL2-T-A14-4,8 ´ 20, шаг 300 5. Теплоизоляция из минваты 6; 12. Индивидуальный доборный элемент 0,6...1,2 мм оцинкованный с полимерным покрытием 7. Стальной элемент конструкции 8. Самосверлящий винт SD, шаг 400 9. Дверной блок 10. Диффузионная лента ГПЛ 11. Изоляционная лента ПУЛ * Номенклатуру крепежных элементов см. в таблице 4 докум. - ПЗ и рекомендации по применению на листе 19 данного документа Узел 10. Крепление оконного блока
1. Панель 2. Диффузионная лента ГПЛ 3. Самосверлящий винт IR2-4,8 ´ 60, шаг 600 4. Самосверлящий винт SL2-T-A14-4,8 ´ 20 или заклепки ATO-D-4,8 ´ 6*, шаг 300 5. Теплоизоляция из минваты 6. Индивидуальный доборный элемент 0,7...1,2 мм оцинкованный с полимерным покрытием 7. Скоба оцинк. 70 ´ 1,2 мм, 2 шт. по высоте 8. Самосверлящий шуруп SW-T-A14-4,8 ´ 35, шаг 300 9. Оконный блок 10. Изоляционная лента ПУЛ 11. Самосверлящий винт SD * Только внутри помещения Узел 10А. Крепление оконного блока на примере алюминиевых профилей ООО "Алюмстройтех" (холодное окно)
1. Панель 2. Лента Абрис С-ЛБ 15 ´ 5 3. Самосверлящий винт SD, шаг 600 4. Самосверлящий винт SL2-T-A14-4,8 ´ 20, шаг 300 5. Самосверлящий винт SDT, шаг 400 6. Индивидуальный доборный элемент 0,6 мм оцинкованный с полимерным покрытием 7. Стальной элемент конструкции 8. Индивидуальный доборный элемент 0,6 мм оцинкованный с полимерным покрытием 9. Оконный блок 10. Диффузионная лента ГПЛ 11. Теплоизоляция из минваты 12. Изоляционная лента ПУЛ Узел 10Б. Крепление оконного блока на примере алюминиевых профилей ООО "Алюмстройтех" (теплое окно)
1. Панель 2. Лента Абрис С-ЛБ 15 ´ 5 3. Самосверлящий винт SD, шаг 600 4. Самосверлящий винт SL2-T-A14-4,8 ´ 20, шаг 300 5. Самосверлящий винт SDT, шаг 400 6. Индивидуальный доборный элемент 0,6 мм (1,2 мм - для дверей) оцинкованный с полимерным покрытием 7. Стальной элемент конструкции 8. Индивидуальный доборный элемент 0,6 мм оцинкованный с полимерным покрытием 9. Оконный блок 10. Диффузионная лента ГПЛ 11. Теплоизоляция из минваты 12. Изоляционная лента ПУЛ Узел 11. Крепление низа оконного блока на примере алюминиевых профилей ООО "Алюмстройтех" (холодное окно)
1. Панель 2. Лента Абрис С-ЛБ 15 ´ 5 3. Самосверлящий винт SD, шаг 600 4. Самосверлящий винт SL2-T-A14-4,8 ´ 20, шаг 300 5. Самосверлящий винт SDT, шаг 600 6. Индивидуальный доборный элемент 0,7...1,2 мм оцинкованный с полимерным покрытием 7. Стальной элемент конструкции 8. Индивидуальный доборный элемент 0,6 мм оцинкованный с полимерным покрытием 9. Оконный блок 10. Уплотняющая лента ГПЛ 11. Изоляционная лента ПУЛ 12. Самосверлящий винт SD, по проекту 13. Набор прокладок по месту 14. Теплоизоляция из минваты Узел 11А. Крепление низа оконного блока на примере алюминиевых профилей ООО "Алюмстройтех" (теплое окно)
1. Панель 2. Лента Абрис С-ЛБ 15 ´ 5 3. Самосверлящий винт SD, шаг 600 4. Самосверлящий винт SL2-T-A14-4,8 ´ 20, шаг 300 5. Самосверлящий винт SDT, шаг 600 6. Слив 1,2 мм оцинкованный с полимерным покрытием 7. Стальной элемент конструкции 8. Индивидуальный доборный элемент 0,6 мм оцинкованный с полимерным покрытием 9. Оконный блок 10. Уплотняющая лента ГПЛ 11. Изоляционная лента ПУЛ 12. Самосверлящий винт SD, по проекту 13. Набор прокладок по месту 14. Теплоизоляция из минваты Узел 12. Крепление перегородки к полу
Поз. 4 из оц. полосы 40 ´ 1,5
1. Панель 2. Самосверлящий винт SL2-T-A14-4,8 ´ 20 3. Анкер пружинный Spike D-4,8 ´ 51, шаг 400 4. Скоба, шаг 400 5. Теплоизоляционный слой из минваты Узел 13. Крепление перегородки к потолку
1. Панель 2. Гнутый оц. уголок 80 ´ 60 ´ 1,5 3. Теплоизоляционный слой из минваты 4. Анкер пружинный Spike D-4,8 ´ 51, шаг 400 Таблица применения продукции "SFS intec"
* См. таблицу 4 - докум. ПЗ Приложение 1ОБЩЕСТВО С ОГРАНИЧЕННОЙ ОТВЕТСТВЕННОСТЬЮ
ПАНЕЛИ ТРЕХСЛОЙНЫЕ СТЕНОВЫЕ С МЕТАЛЛИЧЕСКИМИ
| |||||||||||||||||||||||||||||||||||||||||||||||||||||||||||||||||||||||||||||||||||||||||||||||||||||||||||||||||||||||||||||||||||||||||||||||||||||||||||||||||||||||||||||||||||||||||||||||||||||||||||||||||||||||||||||||||||||||||||||||||||||||||||||||||||||||||||||||||||||||||||||||||||||||||||||||||||||||||||||||||||||||||||||||||||||||||||||||||||||||||||||||||||||||||||||||||||||||||||||||||||||||||||||||||||||||||||||||||||||||||||||||||||||||||||||||||||||||||||||||||||||||||||||||||||||||||||||||||||||||||||||||||||||||||||||||||||||||||||||||||||||||||||||||||||||||||||||||||||||||||||||||||||||||||||||||||||||||||||||||||||||||||||||||||||||||||||||||||||||||||||||||||||||||||||||||||||||||||||||||||||||||||||||||||||||||||||||||||||||||||||||||||||||||||||||||||||||||||||||||||||||||||||||||||||||||||||||||||||||||||||||||||||||||||||||||||||||||||||||||||||||||||||||||||||||||||||||||||||||||||||||||||||||||||||||||||||||||||||||||||||||||||||||||||||||||||||||||||||||||
|
Рисунок |
Тип профиля |
Описание |
Примечание |
|
|
V |
Профили V-образные с шагом профилирования: 150 мм - V 150 200 мм - V 200 |
|
|
М |
Микропрофилирование по всей ширине листа |
||
|
Т |
Несимметричное тиснение по поверхности с имитацией «под кору дерева» |
||
|
V+T |
Комбинация V-образного профилирования с тиснением |
1.3. Тип материала обшивок определяется материалом исходной заготовки:
1.3.1 - типом стального листа,
1.3.2. - защитно-декоративным покрытием листа,
1.3.3. - цветовой гаммой лакокрасочного покрытия.
1.3.1. В качестве исходной заготовки используются следующие типы проката тонколистового:
- оцинкованного, в т.ч. горячеоцинкованного или электрооцинкованного;
- с алюмоцинковым покрытием;
- алюминированного и с алюмокремниевым покрытием;
- горячеоцинкованного с полимерными покрытиями.
1.3.2. В качестве защитно-декоративных покрытий листов стальных используются материалы, перечисленные в Приложении № 1 - таблица № 1.
1.3.3. Виды цветовой гаммы лакокрасочного покрытия листов стальных определяются:
- маркировками по ГОСТ или ТУ, действующих в Российской Федерации;
- маркировкой, принятой стандартами предприятий изготовителей, поставляющих продукцию по импорту;
- маркировками по цветовой гамме лакокрасочного покрытия по каталогам RAL, NCS;
Образцы маркировки цветовой гаммы, применяемые в Финляндии и Швеции, приводятся в таблице № 1.
Таблица № 1
|
Маркировка в Финляндии |
Маркировка в Швеции |
Маркировка пo каталогу RAL |
|
|
2 |
3 |
4 |
5 |
|
Темно-зеленый (Spruce green) |
RR 11 |
Prelaq 830 |
6005 |
|
Белый (White) |
RR 20 |
Prelaq 001 |
9010 |
|
Светло-серый (Light grey) |
RR 21 |
Prelaq 011 |
7040 |
|
Серый (Grey) |
RR 22 |
Prelaq 554 |
7042 |
|
Темно-серый (Dark grey) |
RR 23 |
Prelaq 036 |
7024 |
|
Светло желтый (Light yellow) |
RR 24 |
Prelaq 116 |
1017 |
|
Желтый (yellow) |
RR 25 |
Prelaq 152 |
1003 |
|
Желтый (yellow) |
RR 26 |
Prеlaq 189 |
1004 |
|
Красный (Red) |
RR 27 |
Prеlаq 414 |
3002 |
|
Томно-красный (Dark red) |
RR 28 |
Prеlаq 747 |
3011 |
|
Красный (Red) |
RR 29 |
Prelaq 758 |
3009 |
|
Светло-коричневый (Light brown) |
RR 30 |
Prelaq 187 |
1015 |
|
Коричневый (Brown) |
RR 31 |
Prelaq 433 |
8011 |
|
Темно-коричневый (Dark brown) |
RR 32 |
Prelaq 387 |
8019 |
|
Черный (Black) |
RR 33 |
Prelaq 015 |
9005 |
|
Светло-синий (Light blue) |
RR 34 |
Prelaq 557 |
5024 |
|
Синий (Blue) |
RR 35 |
Prelaq 558 |
5007 |
|
Светло-зеленый (Light green) |
RR 36 |
Prelaq 921 |
6021 |
|
Зеленый (Green) |
RR 37 |
Prelaq 925 |
6002 |
|
Зеленый (Green) |
RR 38 |
Prelaq 925 |
6011 |
|
Красная черепица (Tile red) |
RR 750 |
Prelaq 742 |
8004 |
1.4. Материалы, применяемые в среднем теплоизоляционном слое, приведены в таблице № 6.
1.5. Материалы, применяемые в качестве адгезива для приклеивания металлических обшивок к минераловатной плите, приведены в таблице № 7.
2. ТЕХНИЧЕСКИЕ ПАРАМЕТРЫ.
2.1. Конструкции панелей стеновых.
Панели стеновые представляет собой трехслойную конструкцию с двумя профилированными обшивками из стального оцинкованного листа с полимерным покрытием и средним теплоизоляционным слоем из минераловатной плиты с поперечно ориентированными волокнами (см. рис. 2).
Рис. 2 Панель стеновая
2.2. Основные параметры и размеры панелей должны соответствовать значениям, указанным в таблице № 2.
Таблица № 2
|
Величина |
|
|
Длина панели, мм |
от 150 до 7500 |
|
Ширина панели, мм |
600, 1200 |
|
Толщина панелей (Н), мм |
75, 100,125, 150, 175, 200, 250 |
2.3. Справочные показатели массы 1 м панели стеновой шириной 1200 мм приведены в таблицей 3.
Таблица № 3
|
Масса*, кг |
|
|
75 |
19,10 |
|
100 |
21,70 |
|
125 |
24,40 |
|
150 |
27,00 |
|
175 |
29,60 |
|
200 |
32,20 |
|
250 |
37,50 |
Примечание: значение массы дается для панелей с обшивкой из стального оцинкованного (275 гр/кв.м) листа плотностью 7850 кг/м3, толщиной 0,6 мм с защитной пленкой и утеплителем на основе плит из минеральной ваты плотностью 100 кг/м3 при среднем расходе адгезива - 400 гр/кв.м.
2.4. Разрушающие нагрузки образцов панелей стеновых при поперечном изгибе, получаемые при выполнении утвержденного технологического процесса, должны быть не менее, указанных в таблице № 4.
Таблица № 4
|
Норма, кг |
|
|
1100 ´ 250 ´ 75 |
112,5 |
|
1100 ´ 250 ´ 100 |
150 |
|
1100 ´ 250 ´ 125 |
187,5 |
|
1100 ´ 250 ´ 150 |
225 |
|
1100 ´ 250 ´ 175 |
262,5 |
|
1100 ´ 250 ´ 200 |
300 |
|
1100 ´ 250 ´ 250 |
375 |
2.5. Приведенное сопротивление теплопередаче (К) панелей стеновых, получаемое при выполнении утвержденного технологического процесса, должно быть не менее указанного в таблице № 5. В расчетах можно принимать λА = 0,043 Вт/м°С и λВ = 0,05 Вт/м°С согласно СНиП II-3-79 «Строительная теплотехника».
Таблица № 5
|
Приведенное сопротивление теплопередаче R, м2 °С/Вт |
|
|
75 |
1,5 |
|
100 |
2,0 |
|
125 |
2,5 |
|
150 |
3,0 |
|
175 |
3,5 |
|
200 |
4,0 |
|
250 |
5,0 |
2.6. Предел огнестойкости панелей стеновых по настоящим Техническим Условиям, при соблюдении технологического процесса их производства и применения материалов, указанных в настоящих ТУ, должен быть не менее 0,75 часа.
3. Условные обозначения
Структура условного обозначения панелей ПТС "Талдом-Профиль":

Пример условного обозначения:
ТП-С 75 ´ 1,2 ´ 6,0 / ЛКПОЦ - 0,6ПЛ - RAL 9002 - V150 / Р175 - 0,6ПЛ - RR22 - V150 / 105 - ТУ 5284-003-50186441-02.
Трехслойная панель стеновая толщиной 75 мм, шириной 1,2 м, длиной 6,0 м, внешняя обшивка из проката тонколистового холоднокатаного горячеоцинкованного толщиной 0,6 мм с лакокрасочным покрытием первого класса поверхности (ЛКПОЦ), цветовая маркировка RAL 9002 с защитной пленкой, профилирование V-образное с шагом 150 мм, внутренняя обшивка из проката тонколистового холоднокатаного горячеоцинкованного толщиной 0,6 мм с пластизолевым покрытием Prelaq P 175-06 цветовая маркировка RR22 с защитной пленкой профилирование V-образное с шагом 150 мм, утеплитель - поперечно ориентированная минераловатная плита объемным весом 105 кг/м3, панель выпускается в соответствии с настоящими Техническими Условиями.
4. ТЕХНИЧЕСКИЕ ТРЕБОВАНИЯ.
4.1. Панели должны соответствовать требованиям настоящих технических условий и эскизам-чертежам на панели по индивидуальным заказам потребителей, утвержденным в установленном порядке.
4.2. Требования к исходным материалам.
В качестве исходных материалов применяются:
4.2.1. Для обшивок:
Тонколистовой холоднокатаный прокат, технические характеристики которого приведены в таблицах № 1, 2, 3 Приложения № 1. Толщина листов исходной заготовки 0,5 - 0,7 мм (без учета толщины защитно-декоративного покрытия).
Ширина заготовки 1250 мм.
Изготовление профилированных обшивок рекомендуется производить из стального проката в рулонах. Вес и внутренний радиус рулона определяется техническими возможностями разматывателя линии профилирования.
Листы профилированные для обшивок панелей допускается изготавливать из проката с лакокрасочными или полимерными покрытиями, получаемого по импорту, показатели качества которого соответствуют требованиям соответствующих нормативных документов или Технических свидетельств Госстроя России.
При эксплуатации панелей стеновых в среднеагрессивной среде обязательно применение оцинкованной стали с полимерными покрытиями.
4.2.2. Для среднего теплоизоляционного слоя - минераловатные плиты объемным весом не менее 100 кг/м3 на основе базальтового волокна, в виде нарезанных и ориентированных полос - «ламелей», специально сертифицированных по прочностным и физико-техническим свойствам для их применения в панелях.
Физико-технические показатели материалов среднего теплоизоляционного слоя приведены в таблице № 6.
Применение утеплителя должно обеспечивать сопротивление теплопередаче и значения разрушающих нагрузок панелей не ниже показателей, указанных в таблицах №№ 4 и 5.
Таблица № 6
Технические параметры минераловатных утеплителей
|
IZOMAT (Словакия) |
ROCKWOOL |
PARОC (Финляндия) |
Обозначение НТД на методы контроля |
||||||
|
NOBASIL Т 105 |
NOBASIL Т 120 |
NOBASIL Т 140 |
«Сэндвич-Баттс С» (Польша) |
«Сэндвич-Баттс С» (Россия) |
«Сэндвич-Баттс К» (Россия) |
CES50 |
CES75 |
||
|
Плотность, кг/м3 |
105 (±10 %) |
120 (±10 %) |
140 (±10 %) |
97 - 123 |
90 - 110 |
122 - 155 |
85 (±10 %) |
115 (±10 %) |
|
|
Прочность на сжатие при 10 %-ной деформации, кПа, не менее |
80 |
80 |
80 |
60 |
60 |
100 |
60 |
105 |
|
|
Теплопроводность расчетная, Вт/м°С |
0,042 |
0,043 |
0,044 |
0,040 |
0,040 |
0,042 |
0,041 |
0,043 |
Инструкция НИИСФ РААСН |
|
λа |
0,051 |
0,053 |
0,054 |
0,052 |
0,052 |
0,055 |
- |
- |
|
|
λБ |
0,055 |
0,058 |
0,059 |
- |
- |
- |
- |
- |
|
|
Прочность на сдвиг расчетная не менее кПа |
50 |
50 |
75 |
50 |
50 |
75 |
50 |
75 |
ТУ 5762-006-4575203-99 |
|
Влажность, % по массе, не более |
1,0 |
1,0 |
1,0 |
0,3 |
0,3 |
0,3 |
|||
|
Содержание органических веществ, % по массе, не более |
3,5 |
3,5 |
3,5 |
4,5 |
4,5 |
4,5 |
4,2 |
4,2 |
|
|
Горючесть |
НГ |
НГ |
НГ |
НГ |
НГ |
НГ |
НГ |
НГ |
|
|
НД на продукцию |
ТС-07-0388-01 |
ТС-07-0480-02 |
ТС-07-0449-01 |
ТС-07-0465-02 |
|||||
«Ламели» должны характеризоваться «классом прочности», численно равным прочности материала на сдвиг в кН\м2 (кПа). Минераловатные плиты, используемые в панелях стеновых, выпускаемых по настоящему ТУ, должны иметь класс прочности не менее «30».
4.2.3. Для адгезива - одно- и двухкомпонентные полиуретановые клеи, обеспечивающие прочность панелей на уровне разрушающих нагрузок не ниже значений, указанных в таблице 4, в том числе:
- Двухкомпонентный клей «Макропласт» УК8103 с отвердителем УК5400 производства концерна «HENKEL Teroson GmbH» (Германия).
- Однокомпонентный полиуретановый клей марок «Кестопур ПЛ 100/10, ПЛ 100/20, С100» производства компании «Kiilto Оу» (Финляндия).
- Однокомпонентный полиуретановый клей «Макропласт» УР 7225В производства концерна «HENKEL Teroson GmbH» (Германия).
Таблица № 7
Технические параметры клеев
|
Макропласт УК8103 + УК 5400 |
КЕСТОПУР ПЛ 100/10 |
Макропласт УР 7225В |
|
|
Удельный вес, кг/дм3 |
1,56 |
1,5 |
1,15 |
|
Цвет |
Бежевый |
Светло-коричневый |
Темно-коричневый |
|
Вязкость, мПа с |
8.000 - 10.000 |
9.000 - 15.000 |
8.000 ± 2.500 |
|
Расход клея, гр/м2 |
200 - 400 |
200 - 400 |
150 - 400 |
|
Время открытой выдержки, не более, мин |
100 - 130 |
Не более 30 |
12 - 15 |
|
Время сжатия, мин, при темп. около +20 °С |
10 - 35 |
180 |
25 - 35 |
|
Время хранения при температуре хранения +20 °С, мес. не более |
12 |
3 |
9 |
|
Гигиеническое заключение на продукцию |
77.01.12.229.П.29139.10.0 от 03.10.2000 |
78.1.6.225.П.971.2.0 от 14.02.2000 |
77.01.12.229.П.29139.10.0 от 03.10.2000 |
Допускается применение других видов клеев, которые обеспечивают выполнение требований к прочности (разрушающим нагрузкам - см. табл. № 4) и пригодны для технологического процесса изготовления панелей стеновых.
4.3. Требования к панелям стеновым с защитно-декоративными покрытиями.
4.3.1. Качество защитно-декоративного лакокрасочного покрытия панелей должно удовлетворять требованиям нормативных документов на материал исходной заготовки.
4.3.2. На поверхности защитно-декоративного покрытия допускаются незначительные потертости, риски, следы формообразующего инструмента, не нарушающие сплошности покрытия.
4.3.3. Трещины и отслоения в защитно-декоративном покрытии в местах изгиба и на внутренней и внешней поверхности панелей не допускаются.
4.3.4. Качество лакокрасочного покрытия панелей должно удовлетворять требованиям ГОСТ 30246 и другим нормативным документам.
4.3.5. Для предохранения при транспортировке и монтаже лицевая поверхность панелей защищается самоклеющейся полиэтиленовой пленкой.
4.4. Требования к геометрической точности.
4.4.1. Предельные отклонения от номинальных размеров панелей не должны превышать, мм:
· по длине от 3000 до 5000 ±5
от 5000 до 7500 ±7,5
· по ширине ±2
· по толщине от 50 до 250 ±1,5
4.4.2. Панели стеновые должны иметь прямоугольную форму. Разность длин диагоналей не должна превышать:
· для панелей длиной от 3000 до 5000 мм 8 мм
· для панелей длиной от 5000 до 7500 мм 15 мм
4.4.3. Смещение кромок листов обшивки относительно друг друга не должно быть более 2 мм.
4.4.4. Неплоскостность панелей стеновых не должна быть более:
· по полю 2,5 мм
· по стыковым кромкам панелей 2,0 мм
4.4.5. В панелях стеновых не допускается:
· смятие продольных кромок металлических листов;
· загрязнение и пятна краски на поверхности панелей;
· выступающие заусенцы на кромках металлических листов;
· отслоение или повреждение защитного покрытия обшивок панели.
СИСТЕМА СЕРТИФИКАЦИИ ГОСТ Р ГОССТАНДАРТ РОССИИ
Срок действия с 13.01.2003 г. по 13.09.2003 г.
ОРГАН ПО СЕРТИФИКАЦИИ
РОСС Ru.0001.11АЯ46
ПРОМЫШЛЕННОЙ ПРОДУКЦИИ РОСТЕСТ-МОСКВА
Юридический адрес: 119049, Москва, ул. Житная, д. 14, стр. 1
Почтовый адрес: 117418, Москва, Нахимовский проспект, д. 31. Телефон (095) 129-26-00
ПРОДУКЦИЯ
КРЕПЕЖНЫЕ ИЗДЕЛИЯ код ОК 005 (ОКП):
см. приложение (бланк № 0838621, всего 3 позиции)
Серийный выпуск 160000
контракт № 07-2002/S от 16.12.2001 г.
СООТВЕТСТВУЕТ ТРЕБОВАНИЯМ НОРМАТИВНЫХ ДОКУМЕНТОВ
ГОСТ 1147-80 (П.п. 1.4. - 1.6.), ГОСТ 10618-80 (П.п. 2.1., 2.4., 2.8., 2.9., 2.11., 2.12.), ГОСТ 10304-80 (П.п. 1.5., 1.7. - 1.10.)
ИЗГОТОВИТЕЛЬ
фирма "SFS-Stadler Befestigungs-und Umformtechnik AG"
Нефенштрассе 30 Хеербрук СН-9435, Швейцария
СЕРТИФИКАТ ВЫДАН
ООО "СФС-системы"
142700, Московская обл., Ленинский р-н, г. Видное
тел. 317-41-22
НА ОСНОВАНИИ
Протоколы испытаний №№ 1422-241, 1423-241, 1424 от 24.12.2002 г. Испытательная лаборатория продукции машиностроения (рег. № РОСС RU.0001.21MИ09 от 17.12.1999 г.)
ДОПОЛНИТЕЛЬНАЯ ИНФОРМАЦИЯ
Знак соответствия наносится на групповой упаковке и в сопроводительной документации.
Форма и размеры знака по ГОСТ Р 50460-92.
Руководитель органа _______________ В.А. Слесаренко
Эксперт ___________________________А.В. Коротенков
Сертификат имеет юридическую силу на всей территории Российской Федерации
СИСТЕМА СЕРТИФИКАЦИИ ГОСТ Р ГОССТАНДАРТ РОССИИ
№ 0535621
ПРИЛОЖЕНИЕ
К сертификату соответствия № РОСС СН.АЯ46.В60055
Перечень конкретной продукции, на которую распространяется действие сертификата соответствия
|
код ОК 005 (ОКП) код ТН ВОД СНГ |
Наименование и обозначение продукции, ее изготовитель |
Обозначение документации, по которой выпускается продукция |
|
16 5000 7318 12 900 0 |
КРЕПЕЖНЫЕ ИЗДЕЛИЯ 1. Шурупы (со сверлом) арт. SW-T-A14-4,8´; SL2-T14-4,8´; SL2-L12-4,8´; SD3-T15-4,8´; SDS-T15-5,5´; SD5-H15-5,5´; SD8-T15-5,5´; SD14-T15-5,5´; SDT5-A19-5,5´; SDT14-A19-5,5´; SCF12-S19-6,3´; IR2-4,8´; TK2-4,8´; IT2-4,8´; |
|
|
16 4000 7318 14 990 0 |
2. Винты самонарезающие арт. TDB-T16-6,3´; TDA-T16-6,5´; T1-6,3´; |
|
|
16 8000 7516 10 900 0 |
3. Заклепки: - алюминиевые арт. RV6604-6; - стальные арт. SSC-D; ATC-D |
Изготовитель: фирма"SFS-Stadier Befestigungs-und Umformtechnik AG", Швейцария
Всего: 3 позиции
Руководитель органа ________________ В.А. Слесаренко
Эксперт __________________________ А.В. Коротенков
|
Министерство здравоохранения Российской Федерации Наименование учреждения Центр Госсанэпиднадзора в г. Москве |
Код формы по ОКУД Код учреждения по ОКПО Медицинская документация Форма № 303-00-34 Утверждено приказом Министерства здравоохранения Российской Федерации от 12.10.2000 № 381 |
ГОСУДАРСТВЕННАЯ САНИТАРНО-ЭПИДЕМИОЛОГИЧЕСКАЯ СЛУЖБА РОССИЙСКОЙ ФЕДЕРАЦИИ
ГЛАВНЫЙ ГОСУДАРСТВЕННЫЙ САНИТАРНЫЙ ВРАЧ
по г. Москве
_____________________________________________________________________
(наименование территории, ведомства)
Настоящим санитарно-эпидемиологическим заключением удостоверяется, что производство, применение (использование) и реализация новых видов продукции; продукция, ввозимая на территорию Российской Федерации
ПАНЕЛИ ТРЕХСЛОЙНЫЕ С МЕТАЛЛИЧЕСКИМИ ОБШИВКАМИ И УТЕПЛИТЕЛЕМ ИЗ МИНЕРАЛЬНОЙ ВАТЫ С ПОПЕРЕЧНО-ОРИЕНТИРОВАННЫМИ ВОЛОКНАМИ ПТС "ТАЛДОМ-ПРОФИЛЬ"
изготовленная в соответствии
ТУ 5284-052-02495282-01
СООТВЕТСТВУЕТ (НЕ СООТВЕТСТВУЕТ) государственным санитарно-эпидемиологическим правилам и нормативам (ненужное зачеркнуть, указать полное наименование санитарных правил)
МУ № 2158-80, ГН 2.2.5.686-98, ГН 2.1.6.696-98, ГН 2.1.6.695-98
Организация - изготовитель Россия
ООО «ТАЛДОМ-ПРОФИЛЬ»
Получатель санитарно-эпидемиологического заключения
«ТАЛДОМ-ПРОФИЛЬ», Г. ТАЛДОМ, ул. СОВЕТСКАЯ, Д. 22а.
Основанием для признания продукции, соответствующей (не соответствующей) государственным санитарно-эпидемиологическим правилам и нормативам являются (перечислить рассмотренные протоколы исследований, наименование учреждения, проводившего исследования, другие рассмотренные документы):
ПРОТОКОЛ № 11014 от 05.04.01 г. ИЦ ЦГСЭН в Г. МОСКВЕ
№ 0081364
|
ЦЕНТР ГОСУДАРСТВЕННОГО |
ИСПЫТАТЕЛЬНЫЙ ЦЕНТР ГСЭН.Ru.Ц0А.021 РОСС Ru.0001.510895 |
Отделение физико-химических методов исследования
ПРОТОКОЛ № 1114
исследования образцов (проб)
05.04.01
Гигиенически оценка 10707
цель исследования № образца
Наименование и описание Панель 3-х слойная с мет. обивкой и утепл.
образца из мин. ваты
Наименование заявителя ООО Талдом-Профиль
Наименование производителя ООО "Талдом-профиль" Россия
Направление на испытания: отдел № 3 направление № 10707
Кратность воздухообмена - 0,5 об/час
Температура экспозиции 40 град. С
Время экспозиции 24 час.
РЕЗУЛЬТАТЫ ИСПЫТАНИЙ
|
№ п/п |
Наименование показателей |
Фактическое значение |
ПДК, С |
С/ПДК |
Единица измерения |
|
1 |
Акрилонитрил |
0 |
0,03 |
0,000 |
мг/м3 |
|
2 |
Акролеин |
0 |
0,01 |
0,000 |
мг/м3 |
|
3 |
Анилин |
0 |
0,03 |
0,000 |
мг/м3 |
|
4 |
Ацетон |
0 |
0,35 |
0,000 |
мг/м3 |
|
5 |
Бензол |
0,001 |
0,1 |
0,010 |
мг/м3 |
|
6 |
Бутилацетат |
0 |
0,1 |
0,000 |
мг/м3 |
|
7 |
Дихлорэтан |
0 |
1 |
0,000 |
мг/м3 |
|
8 |
Изопропилбензол |
0 |
0,014 |
0,000 |
мг/м3 |
|
9 |
Ксилолы |
0,005 |
0,2 |
0,025 |
мг/м3 |
|
10 |
Мезитилен |
0 |
0,01 |
0,000 |
мг/м3 |
|
11 |
Метиленхлорид |
0 |
8,8 |
0,000 |
мг/м3 |
|
12 |
Нафталин |
0 |
0,003 |
0,000 |
мг/м3 |
|
13 |
Пиридин |
0 |
0,08 |
0,000 |
мг/м3 |
|
14 |
Псевдокумол |
0 |
0,015 |
0,000 |
мг/м3 |
|
15 |
Стирол |
0 |
0,002 |
0,000 |
мг/м3 |
|
16 |
Толуол |
0,004 |
0,6 |
0,007 |
мг/м3 |
|
17 |
Хлористый винил |
0 |
0,01 |
0,000 |
мг/м3 |
|
18 |
Этилацетат |
0 |
0,1 |
0,000 |
мг/м3 |
НД на методы испытаний
МУ № 2158-80 от 28.03.80
Суммарный показатель токсичности 0,042
Коэффициент насыщенности 1
Испытания провел Е.В. СОЛОПОВ
Заведующий отделением А.Ю. Полторацкий
Заведующий отделом, лабораторией Л.И. Иванова
Заключение санитарного врача
Проведенные санитарно-химические исследования по МУ 2158-80 показали, что концентрации выделяющихся веществ не превышают допустимых значений, согласно ГН 2.1.6.695-98. Продукция может быть использована по назначению.
В соответствии с Сертификатом пожарной безопасности № ССПБ. RU.OП 031.В.00123 предел огнестойкости стен из трехслойных панелей с металлическими обшивками и утеплителем из минераловатной плиты с поперечно ориентированными волокнами (ПТС «Талдом Профиль») Е 120 из панелей ТП-С толщиной 150; 175; 200 мм и Е 60 из панелей ТП-С толщиной 100 и 125 мм. Класс пожарной опасности КО. (Приложение 5).
В соответствии с Сертификатом пожарной безопасности № ССПБ. RU.ОП 031.В.00124 перегородки из таких же панелей имеют предел огнестойкости EI 120 при панелях ТП-С толщиной 150; 175 и 200 мм и EI 60 при панелях ТП-С толщиной 100 и 125 мм. (Приложение 6).
Узлы крепления панелей должны выполняться из негорючих материалов и должны быть не ниже требуемого предела огнестойкости панели согласно п. 7.9. СНиП 21-01.
Панели перегородок должны отвечать соответствующим требованиям СНиП 21-03-2001; СНиП 21-04-2001; СНиП 2.09.04-87* и СНиП 2.08.01-89*.
В соответствии с таблицами 4* и 5* СНиП 21-01 панели ПТС «Талдом Профиль» могут применяться для наружных несущих стен. При этом параметры зданий должны соответствовать следующим требованиям.
Производственные здания (в соответствии со СНиП 21-03-2001)
|
Высота здания* |
Степень огнестойкости здания |
Класс конструктивной пожарной опасности здания |
Площадь этажа в пределах пожарного отсека, кв.м зданий |
|||
|
Одноэтажных |
В два этажа |
В три этажа и более |
||||
|
А, Б |
36 |
I |
СО |
Не огр. |
5200 |
3500 |
|
А |
36 |
II |
СО |
Не огр. |
5200 |
3500 |
|
24 |
III |
СО |
Не огр. |
3500 |
2600 |
|
|
- |
IV |
со |
3500 |
- |
- |
|
|
Б |
36 |
II |
со |
Не огр. |
10400 |
7800 |
|
24 |
III |
со |
7800 |
3500 |
2600 |
|
|
- |
IV |
со |
3500 |
- |
- |
|
|
В |
48 |
I, II |
со |
Не огр. |
25000 7800** |
10400 5200** |
|
24 |
III |
со |
25000 |
10400 5200** |
5200 3600** |
|
|
18 |
IV |
со |
25000 |
10400 |
- |
|
|
Г |
54 |
I, II |
co |
Не ограничивается |
||
|
36 |
III |
со |
Не огр. |
25000 |
10400 |
|
|
24 |
IV |
со |
Не огр. |
10400 |
5200 |
|
|
Д |
54 |
I, II |
CO |
Не ограничивается |
||
|
36 |
III |
со |
Не огр. |
50000 |
15000 |
|
|
24 |
IV |
со |
Не огр. |
25000 |
7800 |
|
* Высота здания в данной таблице измеряется от пола 1-го этажа до потолка верхнего этажа, включая технический; при переменной высоте потолка принимается средняя высота этажа.
Высота одноэтажных зданий класса пожарной опасности СО и С1 не нормируется.
** Для деревообрабатывающих производств.
Складские здания (в соответствии со СНиП 21-04-2001)
|
Категория склада |
Высота зданий* |
Степень огнестойкости зданий |
Класс конструктивной пожарной опасности зданий |
Площадь этажа в пределах пожарного отсека, кв.м. зданий |
||
|
одноэтажных |
двухэтажных |
многоэтажных |
||||
|
А |
- |
I, II III |
СО СО |
5200 4400 |
- |
- |
|
- |
IV |
СО |
3600 |
- |
- |
|
|
Б |
18 |
I, II |
СО |
7800 |
5200 |
3500 |
|
- |
III |
СО |
6500 |
- |
- |
|
|
- |
IV |
СО |
5200 |
- |
- |
|
|
В |
36 |
I, II |
СО |
10400 |
7800 |
5200 |
|
24 |
III |
СО |
10400 |
5200 |
2600 |
|
|
- |
IV |
СО |
7800 |
- |
- |
|
|
Д |
Не огр. |
I, II |
со |
Не огр. |
10400 |
7800 |
|
36 |
III |
со |
Не огр. |
7800 |
5200 |
|
|
12 |
IV |
со |
Не огр. |
2200 |
- |
|
Административные и бытовые здания (в соответствии со СНиП 2.09.04-87*)
|
Степень огнестойкости зданий |
Класс конструктивной пожарной опасности |
Допустимая высота, м |
Площадь этажа в пределах пожарного отсека, кв.м., при числе этажей: |
|||||
|
1 |
2 |
3 |
4 - 5 |
6 - 9 |
10 - 16 |
|||
|
I |
СО |
50 |
6000 |
5000 |
5000 |
5000 |
5000 |
2500 |
|
II |
со |
50 |
6000 |
4000 |
4000 |
4000 |
4000 |
2200 |
|
III |
со |
15 |
3000 |
2000 |
2000 |
1200 |
- |
- |
|
IV |
со |
9 |
2000 |
1400 |
1200 |
- |
- |
- |
Жилые здания (в соответствии со СНиП 2.08.01-89*)
|
Степень огнестойкости зданий |
Класс конструктивной пожарной опасности |
Допустимая высота, м |
Площадь этажа в пределах пожарного отсека, кв.м |
|
I |
СО |
75 |
2500 |
|
II |
СО |
50 |
2500 |
|
III |
СО |
28 |
1800 |
|
IV |
СО |
5 |
1000 |
Главный специалист
ЦНИИПромзданий, канд. техн. наук
Стороженко Т.Е.
Генеральному директору
ООО «ТАЛДОМ-ПРОФИЛЬ»
Министерство внутренних дел Российской Федерации
ГЛАВНОЕ УПРАВЛЕНИЕ ГОСУДАРСТВЕННОЙ ПРОТИВОПОЖАРНОЙ СЛУЖБЫ
ЛИЦЕНЗИЯ
ЦОЛ № 1483 Реестровый № 11001483
Выдана: Открытому акционерному обществу «ЦНИИПромзданий»
форма собственности частная
Юридический (для граждан - домашний) адрес: 127238, г. Москва, Дмитровское шоссе, д. 46, корп. 2
На основании заявления от 3.06.99 г. №. 1512 и представленной документации предоставляется, право на
Разработку мероприятий по обеспечению пожарной безопасности; научно-техническое консультирование по вопросам пожарной, безопасности
На территории: Российской Федерации
Условия действия лицензии (см. приложение)
Лицензия выдана: 5 июля 1999 г.
Лицензия действительна до: 5 июля 2002 г.
Заместитель начальника В. Молчанов
№ 0000051
Приложение 5СИСТЕМА СЕРТИФИКАЦИИ В ОБЛАСТИ ПОЖАРНОЙ БЕЗОПАСНОСТИ СЕРТИФИКАТ
ПОЖАРНОЙ БЕЗОПАСНОСТИ
|
|
Наименование испытательной лаборатории (центра) |
№протокола испытаний, дата утверждения |
Регистрационный № испытательной лаборатории (центра) в Госреестре |
|
ИЦ «Огнестойкость» ГУП «ЦНИИСК им. В.А. Кучеренко» 109428, Москва, 2-я Институтская ул., д. 6 |
Протокол сертификационных испытаний № 4ск/2-2003 от 05 мая 2003 г. |
ССПБ.RU.ИН.011 от 30 июня 2000 г. |
|
Орган по сертификации «Огнестойкость-ЦНИИСК» 109428, Москва, 2-я Институтская ул., д. 6 |
Акт оценки производства № 0117 сд/ск/оп от 29.04.03 г. |
ССПБ.RU.ОП 031 от 23.11.2001 г. |
|
Орган по сертификации «Огнестойкость-ЦНИИСК» 109428, Москва, 2-я Институтская ул., д. 6 |
Заключение по оценке класса пожарной опасности ограждающих конструкций (стен наружных ненесущих и перегородок) из панелей трёхслойных стеновых с металлическими обшивками и утеплителем из минераловатной плиты (ПТС «Талдом Профиль») от 29.05.03 г. |
ССПБ.RU.ОП 031 от 23.11.2001 г. |
2. Маркировка товара и технической документации, прилагаемой к каждой единице продукции, осуществляется знаком пожарной безопасности, наносимым на каждое изделие, его тару, упаковку, товаросопроводительную документацию в соответствии с требованиями: нормативного документа ГУГПС МВД России
«Знак соответствия пожарной безопасности. Форма, размеры и технические требования»
Обозначение нормативных документов
3. Описание местонахождения знака пожарной безопасности рядом с товарным знаком фирмы-изготовителя
В случае невыполнения условий, лежащих в основе выдачи сертификата, он отменяется (приостанавливается) органом по сертификации, выдавшим сертификат, или Центральным органом по сертификации ССПБ (ГУГПС МЧС России).
Сертификат выдан Органом по сертификации «ОГНЕСТОЙКОСТЬ-ЦНИИСК» ГУП «ЦНИИСК им. В.А. Кучеренко», № ССПБ.RU.ОП.031 от 23.11.2001 г., 109428, г. Москва, 2-я Институтская ул., д.6, тел/факс 174-79-04
Наименование органа по сертификации, выдавшего сертификат, № в Госреестре, адрес
Руководитель органа, выдавшего сертификат В.М. Горпинченко
Инициалы, фамилия
ПРАВИТЕЛЬСТВО МОСКВЫ
ГОСУДАРСТВЕННОЕ УЧРЕЖДЕНИЕ
МОССТРОЙЛИЦЕНЗИЯ
МСЛ 003072-2п
Выдана Московским центром лицензирования
строительной деятельности на основании решения
№ 288-ПР МСЛ от 24 июля 1998 г.
Открытому акционерному обществу
Центральный научно-исследовательский и проектно-экспериментальный институт промышленных зданий и сооружений - ЦНИИПромзданий
127238 Москва, Дмитровское ш., д. 46, корп. 2
Предоставлено право на
осуществление проектных работ по перечню,
прилагаемому к настоящей лицензии
Область действия лицензии
Территория Российской Федерации, кроме районов
с сейсмичностью 7 и более баллов.
(при условии регистрации органами власти субъектов РФ)
Особые условия
Лицензия не предоставляет права на проектирование:
- жилых и общественных зданий из панельных конструкций без согласования применения их и разработанной проектной документации с организациями-разработчиками применяемой типовой серии;
(продолжение смотри на обороте)
Срок действия лицензии
с 23 июля 1998 г. до 23 июля 2003 г.
Руководитель центра Ю.П. Емельянов
к лицензии МСЛ 003072-2п от 23 июля 1998 г.
ПЕРЕЧЕНЬ
проекта работ, на осуществление
которых предоставлено право
Открытому акционерному обществу
«Центральный научно-исследовательский и проектно-экспериментальный институт промышленных зданий и сооружений - ЦНИИПромзданий»
- генеральные планы объектов
- объекты производственного назначения
- жилые дома
- общественные здания и сооружения
- объекты сельского хозяйства
- реставрация зданий и сооружений, кроме памятников истории и культуры
- интерьеры
СТРОИТЕЛЬНОЕ ПРОЕКТИРОВАНИЕ И КОНСТРУИРОВАНИЕ:
- строительные конструкции, узлы и детали
- фундаменты
ПРОЕКТИРОВАНИЕ ИНЖЕНЕРНЫХ СЕТЕЙ И СИСТЕМ:
- отопление, вентиляция, кондиционирование
- водоснабжение и канализация
- теплоснабжение
- газоснабжение
- холодоснабжение
- электроснабжение до 35 кВ
- электрическое освещение
- электрическое отопление
-автоматизация и КИП
- слаботочные устройства (проектирование распределительной городской телефонной сети, систем коллективного приема телевидения и сети проводного вещания в жилых и общественных зданиях)
- механизация и внутриобъектный транспорт
- транспорт: внешний
- транспорт: внутриплощадочный
РАЗРАБОТКА СПЕЦИАЛЬНЫХ РАЗДЕЛОВ ПРОЕКТОВ:
- охрана окружающей среды
- организация и условия труда работников, управление производством и предприятием
- инженерно-технические мероприятия гражданской обороны, мероприятия по предупреждению чрезвычайных ситуаций
- инженерная защита территорий, зданий и сооружений от опасных природных и техногенных процессов
- защита строительных конструкций от коррозии
- организация строительства
- сметная документация
- эффективность инвестиций
Приложение № 1 к лицензии МСЛ 003072-2п
ОБСЛЕДОВАНИЕ ТЕХНИЧЕСКОГО СОСТОЯНИЯ ЗДАНИЙ И СООРУЖЕНИЙ
- исследование грунтов оснований;
- обследование технического состояния фундаментов
- обследование технического состояния несущих и ограждающих конструкций, узлов и деталей
- обследование инженерных коммуникаций
- технический отчет по материалам обследований
- специальные стереофотограмметрические съемки по определению геометрических размеров элементов зданий и сооружений, технологических установок, архитектурных и градостроительных форм
ОСУЩЕСТВЛЕНИЕ ФУНКЦИЙ ГЕНЕРАЛЬНОГО ПРОЕКТИРОВЩИКА
Руководитель Ю.П. Емельянов
ГУ «Мосстройлицензия»