Iron ores, concentrates, agglomerates and pellets. Method for the determination of solidity on droption 

Информационная система
«Ёшкин Кот»

XXXecatmenu

ГОСТ 25471-82

МЕЖГОСУДАРСТВЕННЫЙ СТАНДАРТ

РУДЫ ЖЕЛЕЗНЫЕ,
АГЛОМЕРАТЫ И ОКАТЫШИ

МЕТОД ОПРЕДЕЛЕНИЯ ПРОЧНОСТИ
НА СБРАСЫВАНИЕ

ИПК ИЗДАТЕЛЬСТВО СТАНДАРТОВ
Москва

МЕЖГОСУДАРСТВЕННЫЙ СТАНДАРТ

РУДЫ ЖЕЛЕЗНЫЕ, АГЛОМЕРАТЫ И ОКАТЫШИ

Метод определения прочности на сбрасывание

Iron ores, concentrates, agglomerates and pellets.
Method for the determination of solidity on droption

ГОСТ
25471-82

Дата введения 01.07.83

Настоящий стандарт распространяется на сортированные железные руды, агломераты и окатыши (в дальнейшем - руда) и устанавливает метод определения прочности на сбрасывание в сбрасывающем устройстве.

Сущность метода заключается в механической обработке руды в сбрасывающем устройстве. После выполнения определенного количества сбрасываний пробу просеивают через сита и вычисляют показатель прочности на основе процентного распределения материала на этих ситах.

Стандарт полностью соответствует СТ СЭВ 2842-81.

1. МЕТОД ОТБОРА ПРОБ

1.1. Отбор проб - по ГОСТ 15054.

(Измененная редакция, Изм. № 1).

2. АППАРАТУРА

2.1. Для проведения испытания применяют:

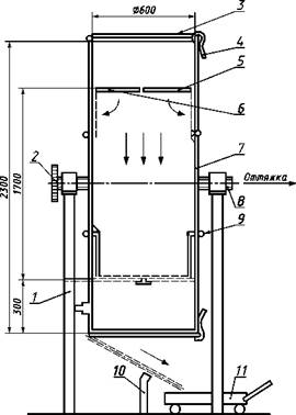
устройство сбрасывающее (см. чертеж), представляющее собой параллелепипед со стороной 600 мм и высотой 2300 мм (размеры внутренние), покоящееся на несущей конструкции. Внутри сбрасывающего устройства, на его концах, находятся два симметрично расположенных контейнера высотой 300 мм, закрытых с одной стороны (наружной) стальной сбрасывающей плитой толщиной 10 мм, а с другой - стальной фиксированной дверцей толщиной 5 мм, снабженных замками и защелками. Сбрасывающая плита плотно закрывается с помощью закрепляющего устройства. Расстояние между фиксированными дверцами и противоположной сбрасывающей плитой составляет 2 м. Сбрасывающее устройство имеет ось поворота, приводную систему, позволяющую поворачивать устройство на 180°, и систему фиксирования в вертикальном положении после его поворота. В оси поворота расположена оттяжка, закрытая сеткой с отверстием размером 0,5 мм для очистки от пыли;

грохот вибрационный с амплитудой 25 мм и частотой 30 колебаний в минуту;

сита в деревянной или металлической раме размером 400×400 мм и высотой 100 мм с сетками, имеющими квадратные отверстия с размерами сторон 5, 10, 25 и 40 мм;

весы технические с погрешностью взвешивания не более 0,01 кг;

шкаф сушильный с терморегулятором, обеспечивающий температуру нагрева (105 ± 5) °С;

контейнеры для проб, лопаты, совок, кисточку, металлические тарелки;

делители.

Устройство для испытания прочности на сбрасывание руд

1 - система фиксирования в вертикальном положении; 2- приводная система; 3 - сбрасывающая плита;
4- закрепляющее устройство; 5 - фиксированная дверца; 6 - замок дверцы; 7 - кожух;
8 - оттяжка; 9 - защелка; 10 - ограничитель ссыпания; 11 - контейнер

3. ПОДГОТОВКА К ИСПЫТАНИЮ

3.1. Из объединенной пробы, отобранной и подготовленной по ГОСТ 26136, берут пробу для испытания массой не менее 60 кг и крупностью:

свыше 5 и менее 25 мм - для окатышей;

свыше 10 и менее 40 мм - для кусковых сортированных руд;

свыше 5 и менее 40 мм - для агломерата.

(Измененная редакция, Изм. № 1).

3.2. При содержании в пробе руды или агломерата кусков размером свыше 40 мм в количестве более 10 % их дробят, просеивают и куски размером свыше 10 мм объединяют с пробой для испытания.

3.3. При необходимости пробу подсушивают при (105 ± 5) °С.

3.4. Пробу для испытания делят на делителе на четыре навески массой по (15 ± 0,15) кг каждая для загрузки в сбрасывающее устройство.

4. ПРОВЕДЕНИЕ ИСПЫТАНИЯ

4.1. При испытании должны соблюдаться следующие условия:

количество сбрасываний пробы в сбрасывающем устройстве - 3;

высота сбрасывания - 2 м.

4.2. Перед засыпанием руды в сбрасывающее устройство, установленное в вертикальное положение, закрывают фиксированные дверцы верхнего контейнера и фиксируют их замком, а фиксированные дверцы нижнего контейнера открывают и фиксируют защелками. Сбрасывающие плиты остаются закрытыми.

4.3. Открывают сбрасывающую плиту, установленную над верхним контейнером, и ссыпают руду в контейнер. Плотно закрывают сбрасывающую плиту и включают пылеочистное устройство, освобождают замок фиксирующих дверок, которые автоматически защелкиваются на стенках устройства. Происходит первое сбрасывание.

Освобождают защелки фиксирующих дверок нижнего контейнера, закрывают их и фиксируют замком дверок. Освобождают фиксатор вертикальной позиции устройства, поворачивают устройство на 180° и устанавливают в вертикальном положении. Контейнер вместе с рудой находится в верхнем положении. Для второго и третьего сбрасываний повторяют ту же процедуру, что и при первом сбрасывании. После окончания сбрасывания выключают пылеочистное устройство, открывают сбрасывающую плиту, закрывающую снизу сбрасывающее устройство, и выбирают руду в приемный контейнер.

4.4. Весь материал просеивают в течение 2,5 мин на вибрационном грохоте на сите с поверхностью 1600 см2 и размерами ячеек 5 мм. Полученные в результате просеивания классы крупностью свыше 5 мм и менее 5 мм взвешивают отдельно.

4.5. Если разница между массой пробы для испытания и суммой масс отдельных классов крупности больше 1,5 %, испытание повторяют.

5. ОБРАБОТКА РЕЗУЛЬТАТОВ

5.1. Показатель прочности на сбрасывание (X) в процентах вычисляют по формуле

где т - масса класса свыше 5,0 мм после испытания руды в сбрасывающем устройстве, кг;

m1 - масса класса менее 5,0 мм после испытания руды в сбрасывающем устройстве, кг.

Полученный результат округляют до первого десятичного знака.

(Измененная редакция, Изм. № 1).

5.2. Определение прочности руды на сбрасывание проводят на одной пробе.

5.3. При возникновении разногласий показатель прочности определяют по результатам двух параллельных определений, если расхождение между ними не превышает значений:

для руды и агломерата - 2,0 %;

для окатышей - 1,5 %.

(Измененная редакция, Изм. № 1).

5.4. Если расхождение между результатами параллельных определений превышает приведенные величины, определение повторяют.

За окончательный результат анализа принимают среднее арифметическое результатов двух последних параллельных определений.


ИНФОРМАЦИОННЫЕ ДАННЫЕ

1. РАЗРАБОТАН И ВНЕСЕН Министерством черной металлургии СССР

2. УТВЕРЖДЕН И ВВЕДЕН В ДЕЙСТВИЕ Постановлением Государственного комитета СССР по стандартам от 10.10.82 № 3924

3. Стандарт полностью соответствует СТ СЭВ 2842-81

4. ВВЕДЕН ВПЕРВЫЕ

5. ССЫЛОЧНЫЕ НОРМАТИВНО-ТЕХНИЧЕСКИЕ ДОКУМЕНТЫ

Обозначение НТД, на который дана ссылка

Номер пункта, подпункта, перечисления, приложения

ГОСТ 15054-80

1.1

ГОСТ 26136-84

3.1

6. Ограничение срока действия снято по протоколу № 2-92 Межгосударственного совета по стандартизации, метрологии и сертификации (ИУС 2-93)

7. ИЗДАНИЕ (март 2004 г.) с Изменением № 1, утвержденным в октябре 1987 г. (ИУС 1-88)

 

 



© 2013 Ёшкин Кот :-)