Информационная система
«Ёшкин Кот»

XXXecatmenu

ПРАВИТЕЛЬСТВО МОСКВЫ
МОСКОМАРХИТЕКТУРА

ПОСОБИЕ

к МГСН 4.18-99

ПРЕДПРИЯТИЯ БЫТОВОГО ОБСЛУЖИВАНИЯ
НАСЕЛЕНИЯ

ВЫПУСК 1

ОСНОВНЫЕ ПОЛОЖЕНИЯ
И ОБЩИЕ ТРЕБОВАНИЯ

2001

ПРЕДИСЛОВИЕ

1. РАЗРАБОТАНО Московским научно-исследовательским и проектным институтом типологии, экспериментального проектирования (МНИИТЭП). Авторы: канд. арх. К. Н. Красильникова (руководитель темы), канд. техн. наук В. А. Максименко, инженер-технолог А. М. Комисаренко (Гипробытпром), инженер-технолог Н. М. Зеленкова (Мосгорбытпром). При участии - канд. экономических наук Г. Н. Сюткин, инженер-экономист Л. М. Гуляева, инженер-технолог Т. B. Журкова (Департамент потребительского рынка и услуг).

2. ПОДГОТОВЛЕНО к утверждению и изданию Управлением перспективного проектирования и нормативов Москомархитектуры (арх. Л. А. Шалов, инженер Ю.П. Щипанов).

3. СОГЛАСОВАНО с Москомархитектурой и Департаментом потребительского рынка и услуг.

4. УТВЕРЖДЕНО указанием Москомархитектуры, от 02.10.2001 № 36.

СОДЕРЖАНИЕ

1. Введение. 1

2. Основные положения. 2

2.1. Организация сети предприятий бытового обслуживания населения. 2

2.2. Типы зданий и помещений предприятий бытового обслуживания населения. 2

2.3. Земельные участки. 4

3. Общие требования к архитектурно-планировочным технологическим и конструктивным решениям.. 4

4. Общее требование к функциональным группам помещений. 6

4.1. Основные функциональные группы помещений. 6

4.2. Дополнительные помещения. 8

Приложение 1 Расчетные показатели минимальной обеспеченности социально значимыми объектами бытового обслуживания населения повседневного, приближенного и периодического назначения. 9

Приложение 2 Примеры размещения предприятий обслуживания населения. 10

Приложение 3 Ориентировочное соотношение площадей функциональных групп помещений предприятий бытового обслуживания. 11

1. ВВЕДЕНИЕ

1. Настоящее Пособие разработано в развитие МГСН 4.18-99 «Предприятия бытового обслуживания населения» и распространяется на проектирование новых и реконструируемых массовых типов предприятий бытового обслуживания населения, в первую очередь, расположенных в жилой застройке и обеспечивающих проживающее население социально значимыми объектами.

Пособие состоит из следующих выпусков:

Выпуск 1 «Основные положения и общие требования»

Выпуск 2 «Объемно-планировочные решения».

2. Настоящее пособие разработано в помощь проектировщикам-архитекторам, технологам, инженерам - с целью создания современных прогрессивных типов зданий и помещений предприятий бытового обслуживания населения, обеспеченных новейшими технологическими решениями и оборудованием.

3. В пособии приводятся примеры построенных за последний период зданий этого типа и проектные предложения, разработанные по современным нормативам в соответствии с МГСН 4.18-99, в том числе для предприятий, встраиваемых в первые этажи типовых жилых домов.

2. ОСНОВНЫЕ ПОЛОЖЕНИЯ

2.1. ОРГАНИЗАЦИЯ СЕТИ ПРЕДПРИЯТИЙ БЫТОВОГО ОБСЛУЖИВАНИЯ НАСЕЛЕНИЯ

2.1.1. Предприятия бытового обслуживания следует проектировать как элемент взаимосвязанной системы торгово-бытового обслуживания и размещать в городской застройке в соответствии с градостроительным уровнем обслуживания:

- предприятия городского значения «эпизодического» обслуживания целесообразно размещать на крупных магистралях и площадях: вблизи остановок городского транспорта, станций метрополитена, вокзалов и в других местах оживленного движения населения;

- предприятия повседневного, приближенного и периодического обслуживания рекомендуется размещать на территории микрорайонов (кварталов), жилых групп, а также жилых участков (в центральном ядре города), главным образом вдоль магистралей и жилых улиц, преимущественно у остановок общественного транспорта.

2.1.2. Основным принципом организации системы бытового обслуживания является обеспечение проживающего населения услугами повседневной необходимости, в пределах пешеходной доступности (500 м).

Изменение в социальной жизни страны и переход на рыночные отношения вносит серьезные коррективы в номенклатуру предприятий бытового обслуживания населения. Особенно это касается предприятий повседневной необходимости, которые должны иметь небольшие площади (вместимости) и стать объектами для мелкого и среднего бизнеса.

2.1.3. Расчет минимальной обеспеченности предприятиями бытового обслуживания приводится для сети жилого района (повседневное, приближенное и периодическое обслуживание), см. приложение 1. На основе обязательного перечня расчетных показателей минимальной обеспеченности социально значимыми объектами повседневного, периодического и приближенного обслуживания, приведенного в МГСН 1.01-99 «Нормах и правилах проектирования планировки и застройки Москвы» разработаны показатели минимальной обеспеченности предприятиями по видам услуг.

2.2. ТИПЫ ЗДАНИЙ И ПОМЕЩЕНИЙ ПРЕДПРИЯТИЙ БЫТОВОГО ОБСЛУЖИВАНИЯ НАСЕЛЕНИЯ

2.2.1. Типы зданий и помещений определяются в соответствии с их размещением в структуре города и назначением.

2.2.2. Предприятия городского значения со сложной технологией и значительной вместимостью (Дома Моды, Салоны Красоты, Дома Быта, Фото и Кино салоны и пр.) целесообразно проектировать в отдельно стоящих зданиях (реконструируемых и новых), в составе торгово-бытовых комплексов, в нижних этажах многоэтажных жилых домов (реконструируемых и новых со специальными объемно-планировочными, конструктивными и инженерно-технологическими решениями), а также в нижних этажах зданий «иного назначения» (согласно термину приложения 1 МГСН 4.18-99).

2.2.3. Предприятия городского значения, размещаемые в составе торгово-бытовых комплексов могут быть запроектированы: в виде отдельных блоков-зданий, расположенных на одном участке с торговыми и другими общественными зданиями, и объединенные общей хозяйственной зоной, стоянками легковых машин и площадками для отдыха, или в одном многоэтажном здании.

2.2.4. Предприятия бытового обслуживания, размещенные в многоэтажных зданиях торгово-бытовых центров - на первых или промежуточных этажах, следует проектировать при соблюдении требований, перечисленных в пункте 3.6. МГСН 4.18-99 «Предприятия бытового обслуживания населения».

2.2.5. В отдельно стоящих зданиях предприятия бытового обслуживания размещаются в последние годы преимущественно при реконструкции. Примером такого решения может служить четырех этажный Московский Дом моделей, расположенный в реконструируемом здании на крупной магистрали в центральной части города (рис. 1).

Пример решения предприятий бытового обслуживания городского значения, размещенных в первом и втором этажах индивидуального жилого дома в сборно-монолитных конструкциях, приведен на рис. 2.

2.2.6. Предприятия повседневного и приближенного обслуживания ограниченной вместимости и с более простой организацией технологических процессов, рекомендуется проектировать в первых этажах жилых домов - встроенными и встроенно-пристроенными. Это (в соответствии с МГСН 4.18-99) приемные пункты прачечных и химчисток, общей площадью до 100 м2, прачечные самообслуживания (с объемом производства не более 75 кг в смену), мастерские мелкого ремонта различных видов услуг, парикмахерские, фотографии общей площадью до 100 - 150 м2, ателье по пошиву и ремонту одежды, головных уборов и трикотажных изделий, ателье проката, бюро посреднических услуг, многоотраслевые комплексные предприятия и приемные пункты типа «Мультисервис» общей площадью до 200 - 300 м2.

2.2.7. При размещении вышеуказанных предприятий в жилых домах необходимо соблюдение санитарно-гигиенических требований: нормативных параметров воздушной среды, шума, вибрации, ограничения режима эксплуатации предприятий дневным временем, а также пожарных требований, согласно пункту 5.4. МГСН 4.18-99.

2.2.8. Предприятия бытового обслуживания, размещаемые в первых этажах жилых домов, следует классифицировать на встроенные и встроенно-пристроенные.

Встроенные предприятия характеризуются расположением всех помещений в габаритах здания, с возможным небольшим (до 1 м) выносом за пределы здания - для размещения рекламы.

Встроенно-пристроенные предприятия - помимо помещений в габаритах здания, имеют вынесенные объемы (в основном большие производственные цеха и залы), которые могут располагаться вдоль фронта здания со стороны магистрали, со стороны двора, или с торцов здания. При этом основные складские, подсобные и служебно-бытовые помещения размещаются во встроенной части - в первом этаже, а также и в подвалах (при их наличии) согласно перечню в пункте 3.5. МГСН 4.18-99. Примеры встроенных и встроенно-пристроенных предприятий в типовые, жилые дома приведены на рис. 3, 4, 5, 6.

2.2.9. При реконструкции исторически сложившихся районов города, ввиду дефицита территорий и вследствие традиционно сложившейся небольшой ширины улиц, предприятия обслуживания целесообразно размещать в зданиях встроенными или встроенно-пристроенными (с выносом объемов помещений в сторону дворов).

2.2.10. Встраивание предприятий обслуживания (также как предприятий торговли и общественного питания) наиболее целесообразно при специальных объемно-планировочных и конструктивных решениях, таких как применение каркаса в нижних нежилых этажах, технического этажа между жилой и нежилой частями здания, что позволяет перераспределять нагрузку на несущие конструкции здания, обеспечить изоляцию квартир от шума и запахов, разместить инженерные коммуникации жилого дома.

2.2.11. Пристройки не должны ухудшать условия проживания жильцов в квартирах второго этажа. Поэтому уровень пристроенных помещений в местах примыкания к жилой части здания не должен превышать отметки пола жилых помещений (рис. 7).

Особое внимание следует уделить покрытию крыш выступающих объемов, применять различные методы защиты от перегрева, например озеленение, организацию эксплуатируемой кровли, в соответствии с «Рекомендациями по проектированию озеленения и благоустройства крыш жилых и общественных зданий и других искусственных оснований» (2000 г.).

2.2.12. Предприятия бытового обслуживания расширенной по сравнению с предприятиями встроенными в жилые дома номенклатуры (согласно пункту 3.4. МГСН 4.18-99) могут размещаться в нижних этажах зданий «иного» назначения, куда входят административно-бытовые здания, гостиницы, вокзалы и другие общественные здания, за исключением школ, дошкольных и лечебно-профилактических учреждений.

2.2.13. Предприятия бытового обслуживания, размещаются также в отдельно стоящих зданиях (блоках), построенных по типовым проектам 50-х годов в районах пятиэтажной застройки первых этапов индустриального домостроения, наряду с предприятиями торговли и общественного питания. Их рекомендуется сохранять с последующей модернизацией и реконструкцией. Примеры модернизации предприятий - ателье пошива одежды и мастерские по ремонту обуви приведены на рис. 8 и 9.

2.2.14. Мини-прачечные производительностью до 500 кг белья в смену и мини-химчистки, производительностью 160 кг вещей в смену целесообразно проектировать в одном комплексе - в пристройках к зданиям коммунально-хозяйственного назначения, ЦТП и прочих зданиях «иного» назначения. При этом необходимо соблюдение минимальных разрывов между ними и жилыми домами - санитарно-защитная зона не менее 50 м.

Возможно размещение мини-химчисток и мини-прачечных, а также других предприятий бытового обслуживания, согласно п. 3.5. МГСН 4.18-99, в подземном пространстве. Пример такого решения приведен на рис. 10, где производственный зал химчистки размещен в подвальном помещении крупного торгового центра, наряду со складскими помещениями магазина. При этом прием вещей в химчистку осуществляется на первом этаже пассажа, откуда по лифтам в контейнерах подается в подвал.

Приемы размещения предприятий бытового обслуживания населения в различных типах зданий и их перечень представлены в приложении 2, как рекомендуемые.

2.3. ЗЕМЕЛЬНЫЕ УЧАСТКИ

2.3.1. На земельных участках отдельно стоящих предприятий бытового обслуживания и торгово-бытовых центров предусматриваются хозяйственные зоны с разгрузочными площадками (с задних или боковых фасадов зданий) с удобным доступом к ним транспортных средств (рис. 11).

В необходимых случаях хозяйственные зоны с разгрузочными площадками предприятий бытового обслуживания встроенных в жилые дома (или здания «иного» назначения) рекомендуется располагать у торцевых стен без балконов, лоджий, окон и входов в жилые помещения. Над разгрузочными площадками следует предусматривать навесы. Кладовые для отходов следует предусматривать в габаритах здания - в составе помещений предприятий (рис. 12). Для посетителей предусматриваются со стороны входа в предприятие площадки для отдыха, отдельно стоящие витрины и стоянки личного автотранспорта.

2.3.2. Условия проектирования хозяйственной зоны, наличие и специализация хозяйственных площадок, а также расчетное количество машино-мест на стоянках следует принимать согласно пункту 3.9. МГСН 4.18-99 и МГСН 1.01-99 «Нормы и правила проектирования планировки и застройки Москвы».

Показатель расчета машино-мест для предприятий бытового обслуживания приравнен по посещаемости к предприятиям торговли, торговой площадью от 500 до 1000 м2 (по нормативам МГСН 1.01-99 таблица 9.3.2 примечание 3). Исходя из этого рекомендуется количество машино-мест для предприятий бытового обслуживания ориентировочно принимать из расчета 1 машино-место на 80 - 120 м2 общей площади, а территорию автостоянок - из расчета 18 м2 - 22,5 м2 на автомобиль (МГСН 1.01-99 пункт 9.3.19).

Для встроенных и встроенно-пристроенных предприятий бытового обслуживания специальных автостоянок допускается не предусматривать.

3. ОБЩИЕ ТРЕБОВАНИЯ К АРХИТЕКТУРНО-ПЛАНИРОВОЧНЫМ ТЕХНОЛОГИЧЕСКИМ И КОНСТРУКТИВНЫМ РЕШЕНИЯМ

3.1. Архитектурно-пространственные решения зданий предприятий определяются прежде всего градостроительными условиями размещения и характером окружающей застройки, особенно в центральных районах и заповедных зонах города.

При проектировании предприятий бытового обслуживания необходимо учитывать меняющуюся конъюнктуру бытовых услуг в условиях современных рыночных отношений. Это следует отражать в объемно-планировочных решениях предприятий, предусматривая гибкую планировку помещений, большие шаги и пролеты несущих конструкций, трансформирующиеся перегородки и пр., чтобы позволить наипростейшим образом переориентировать предприятия на другие виды бытовых услуг в случае изменения рыночной конъюнктуры.

3.2. Этажность отдельно стоящих зданий определяется градостроительными и технологическими требованиями, с учетом противопожарных требований.

Исходя из требующейся степени огнестойкости зданий наибольшее число этажей следует принимать: I и II степеней огнестойкости - не более 6 этажей, III степени - не более 2 этажей, IIIа, IIIб, IV, IVа и V не более одного этажа (в соответствии с п. 5.3. МГСН 4.18-99).

3.3. Высота этажей предприятий бытового обслуживания принимается, согласно пункту 3.1. МГСН 4.18-99, не менее 3,3 м, а в отдельных случаях по требованию технологии - 3,6 и 4,2 м и более.

При встраивании предприятий бытового обслуживания в существующие типовые жилые дома допускается как исключение принимать высоту помещений равной высоте жилых помещений, т.е. 2,8 м (от пола до пола). Для вновь проектируемых встроенных (встроенно-пристроенных) предприятий следует использовать новые улучшенные серии типовых жилых домов П-44М, П-44Т, П-3М и других, где высота первых этажей жилых домов, предназначенных для размещения помещений общественного назначения, увеличена до 3,3 (от пола до пола).

3.4. В отдельно стоящих зданиях предприятий бытового обслуживания решение входов для посетителей, для персонала и загрузка предприятий определяется градостроительными условиями застройки и размещением здания на земельном участке (рис. 11).

Для загрузки предприятий, расположенных в отдельно стоящих зданиях, рекомендуется проектировать хозяйственную зону, где следует предусматривать специальные разгрузочные площадки шириной не менее 2,5 м, длиной по расчету, но не менее 1,5 м (согласно п. 3.8. МГСН 4.18-99).

Достаточно удачным решением можно считать организацию загрузки 2-этажных блоков обслуживания, построенных в 50-е годы для районов пятиэтажной застройки первых этапов индустриального домостроения. В них загрузка предприятий предусматривается из специальных огражденных хозяйственных дворов, расположенных с заднего фасада зданий, благодаря которым сохраняются от загрязнения тарой и грузового транспорта жилые дворы (рис. 11Б).

3.5. Загрузка предприятий бытового обслуживания встроенных (встроенно-пристроенных) в жилые дома осуществляется согласно п. 3.8. МГСН 4.18-99. Помимо указанных решений, для загрузки встроенных предприятий можно использовать проезды между секциями многосекционных жилых домов сложной конфигурации (рис. 12).

3.6. В реконструируемых и модернизируемых жилых домах по согласованию с органами государственного санитарного надзора (ЦГСЭН) допускается сохранение существующей загрузки встроенных (встроенно-пристроенных) предприятий бытового обслуживания со стороны дворового фасада. При этом следует проектировать козырек или навес над загрузочными площадками (в соответствии с пунктом 3.64. МГСН 3.01-96* Жилые здания).

3.7. Входы для посетителей во встроенных и встроенно-пристроенных предприятиях рекомендуется организовывать со стороны магистралей, а во внутриквартальных домах - со стороны, противоположной входам в жилые дома, или через отдельные входы, изолированные от входов в подъезды.

При общей площади встроенных (встроенно-пристроенных) предприятий бытового обслуживания не более 300 м2 входы для посетителей могут быть совмещены со входами для персонала.

При общей площади встроенных (встроенно-пристроенных) предприятий до 150 м2, где по условиям технологии не требуется специальных загрузочных помещений, загрузка может совмещаться со входами в предприятие.

3.8. Согласно п. 3.65. МГСН 3.01-96 допускается устройство одного эвакуационного выхода из помещений предприятия бытового обслуживания, расположенного в первом или цокольном этаже, при общей площади не более 300 м2 и числе работающих не более 15 человек.

3.9. Необходимость в грузовых и пассажирских лифтах, их грузоподъемности и основные требования к их проектированию определяются согласно п. 3.14. МГСН 4.18-99.

3.10. Главные лестницы для посетителей с первого до второго или с цокольного до первого этажа в зданиях предприятий I и II степени огнестойкости допускается проектировать открытыми, без вестибюлей и поэтажных холлов, при этом остальные лестницы должны предусматриваться в лестничных клетках.

Условия эвакуации посетителей из здания (пути эвакуации, требования к эвакуационным выходам и лестницам) следует принимать согласно пунктам 5.7. и 5.8. МГСН 4.18-99.

3.11. Ширину коридоров рекомендуется принимать: в группах производственных помещений и кладовых - не менее 1,5 м; в предприятиях, имеющих в своем составе мастерские по ремонту крупногабаритных бытовых машин и приборов, общей площадью 200 м2 и более, а также в ателье по пошиву и ремонту одежды, головных уборов и трикотажных изделий общей площадью 1000 м2 и более - не менее 1,8 м; в служебно-бытовых группах помещений не менее 1,3.

3.12. Отделка помещений должна соответствовать общим архитектурным решениям интерьеров, при этом необходимо учитывать условия труда в производственных помещениях. В отделке интерьеров рекомендуется применять полимерные материалы, разрешенные органами Государственного санитарного и пожарного надзоров. Отделку вестибюлей и салонов для посетителей, а также путей эвакуации следует предусматривать из несгораемых или трудносгораемых материалов.

3.13. Материалы покрытия полов должны быть долговечными, удобными в уборке, беспыльными, нетоксичными (в том числе при горении), исключающими травматизм, а в помещениях с влажным режимом работы - влагостойкими.

3.14. Материалы и конструктивные решения потолков, стен и перегородок должны создавать акустический комфорт, оптимальный климатический режим и быть экологически безвредными. Форма и фактура поверхности вертикальных ограждений в местах скопления посетителей и на путях передвижения на уровне до 2 м должны быть травмобезопасными. Перегородки в производственных помещениях следует выполнять из влаго-огнестойких материалов: кирпич, бетон и т.п.

3.15. При выборе отделочных материалов необходимо учитывать профиль предприятия и назначение помещений. Рекомендуется применять влагостойкие материалы и другие материалы, обеспечивающие пожарную безопасность - согласно п. 5.11. МГСН 4.18-99. Во всех случаях применяемые материалы должны иметь сертификат качества и безопасности и, как правило, быть в составе Московского территориального строительного каталога (МТСК).

3.16. Конструктивные решения отдельно стоящих зданий предприятий бытового обслуживания решаются аналогично конструкциям других общественных зданий.

Конструкции пристроек одноэтажных объемов можно решать с помощью промышленных плит покрытия, опирающихся на стены или ригели каркаса (при пролетах 6, 9, 12 и 15 м). Это позволит организовать достаточно большое пространство, свободное от опор.

При двух- и более этажных пристройках можно применять железобетонный каркас или кирпичные стены. Конструктивное решение встроенных в жилые дома или здания «иного» назначения помещений предприятий бытового обслуживания должно учитывать несущую схему здания. Организация дополнительных проемов (в несущих конструкциях) должна осуществляться в соответствии с установленным порядком разрешений, в т.ч. с прочностными расчетами.

3.17. При разработке технологической части проекта необходимо предусматривать новые технологии, современные организацию производств, оборудование и материалы. Технологическое оборудование должно быть многооперационным, малогабаритным, экологически чистым (со встроенными системами улавливания пыли, паров растворителей и современной измерительной аппаратуры и т.п.).

В мини-химчистках следует применять машины химчистки последнего поколения, которые уменьшают количество вредных выбросов в рабочую зону и атмосферу, предохраняют почву и грунтовые воды от загрязнения в случае разлива растворителя.

В мини-прачечных должны использоваться современные стирально-отжимные машины различной емкости, снабженные блоком программного управления с выбором оптимальных режимов стирки позволяющие экономить электроэнергию и воду.

4. ОБЩЕЕ ТРЕБОВАНИЕ К ФУНКЦИОНАЛЬНЫМ ГРУППАМ ПОМЕЩЕНИЙ

4.1. ОСНОВНЫЕ ФУНКЦИОНАЛЬНЫЕ ГРУППЫ ПОМЕЩЕНИЙ

4.1.1. Согласно МГСН 4.18-99 пункту 3.16. помещения предприятий бытового обслуживания подразделяются на четыре основные функциональные группы:

- помещения (салоны) для посетителей,

- производственные помещения,

- складские помещения,

- служебно-бытовые помещения.

4.1.2. Состав и площади основных групп помещений определяются в зависимости от видов предоставляемых услуг, классности (разрядности) предприятия, его места расположения в городе, форм и методов обслуживания.

4.1.3. В проектах рекомендуется предусматривать возможность свободной планировки или трансформации помещений, объединения нескольких функциональных групп помещений в одном объеме.

В предприятиях бытового обслуживания общей площадью до 200 м2 возможно объединение в одном объеме: помещений (салонов) для посетителей, производственных и складских помещений.

Для предприятий с применением токсичных веществ (мастерские по ремонту обуви, часов и ювелирных изделий, бытовых машин и приборов, мини-химчистки и др.) допускается совмещение в одном объеме только салонов для посетителей и производственных помещений.

4.1.4. В складских и производственных группах помещений целесообразно применять трансформирующиеся перегородки, с возможностью их передвижения и изменения объемов помещений в соответствии с изменившимися требованиями технологии.

4.1.5. Для некоторых видов услуг (приемные пункты прачечных и химчисток, бюро обслуживания и т.п.) характерно отсутствие производственной группы помещений; в мастерских мелкого ремонта площадью до 100 м2 допускается размещение в производственных помещениях специальных шкафов для складирования материалов - взамен складских помещений.

4.1.6. Появление новых форм обслуживания вызывает изменение состава помещений предприятий. Наиболее характерным примером являются Салоны Красоты, которые помимо расширенных парикмахерских услуг включают помещения для оздоровительных процедур.

В сети предприятий по оказанию фотоуслуг целесообразно предусматривать централизованную, фотолабораторию (ориентировочно, одну - на административный округ), производящую переработку отработанных растворов (извлечение серебра), свозимых со всех фотоателье и имеющую в своем составе лаборатории фотографии на керамике, изготовление портретных фотографий и другие фотоуслуги. Остальные фотоателье сети могут иметь в своем составе съемочные залы, съемочные фотоавтоматы, проявочные и печатные автоматические установки (без лабораторий). В них целесообразно иметь рабочие площади или помещения по продаже фотоаппаратов, фотопленки и других сопутствующих материалов.

4.1.7. Площади и организация пространства помещений (салонов) для посетителей определяются видами услуг и разрядностью (классностью) предприятий.

В салонах (помещениях) для посетителей парикмахерских, фотографий, Домов Моды, ателье, прачечных и химчисток самообслуживания рекомендуется предусматривать гардеробные для посетителей. Их расчет приведен в МГСН 4.18-99. Допускается устройство гардеробов самообслуживания или вешалок непосредственно в рабочих залах.

4.1.8. В салонах ателье пошива следует предусматривать примерочные кабины, площадь которых входят в норму площади салона.

В мастерских по ремонту обуви в салоне для посетителей целесообразно организовывать помимо приема в ремонт обуви на срок срочный ремонт обуви с ноги в присутствии заказчика.

В фотографиях, в зале ожидания рекомендуется предусматривать услуги моментальной съемки, проявки кино- и фотопленки и печати фотографии.

В салоне ателье проката рекомендуется предусматривать выставку образцов предметов проката.

4.1.9. В помещениях для посетителей приемных пунктов прачечных - при объединении приема и выдачи белья в одном объеме, следует предусматривать отдельные зоны для приема и для выдачи белья.

В мини-прачечных (согласно пункту 6 приложения 7 МГСН 4.18-99) допускается осуществлять прием и выдачу белья в одном помещении для посетителей, при условии выделения кабины для приема грязного белья.

В мини-химчистках допускается объединение помещений для посетителей и производственных помещений, при условиях согласно МГСН 4.18-99 (пункт 4 приложение 7).

4.1.10. В салонах (помещениях) для посетителей должно быть, как правило, предусмотрено место администратора-приемщика - типовое для всех видов услуг. Рекомендуется в салонах организовывать торговые места для реализации сопутствующих товаров и товаров, уцененных после ремонта.

4.1.11. Состав и площади группы производственных помещений принимаются в зависимости от видов услуг, разрядности и типа предприятий. Их площади определяются проектом или заданием на проектирование с учетом расстановки технологического оборудования.

4.1.12. Состав и площади складских помещений (кладовых и подсобных) принимаются также в зависимости от видов услуг и типа предприятия.

4.1.13. Примеры планировочных решений салонов для посетителей и производственных и складских помещений с расстановкой технологического оборудования в различных предприятиях (Домах Моды, ателье пошива, Салонах Красоты, мастерских мелкого ремонта, мини-прачечных и мини-химчистках, приемных пунктах, бюро посреднических услуг и пр.) приведены на рис. 13 - 22, 25. Оборудование мини-прачечных и мини-химчисток дано на рис. 23, 24, 26. Удельные показатели площадей функциональных групп помещений (для посетителей, производственные, складские) в расчете на 1 рабочее место приведены в МГСН 4.18-99 приложение 6.

4.1.14. Служебно-бытовая группа включает служебные помещения: кабинеты директора и администратора, конторские помещения, комнаты для отдыха и приема пищи персонала, а также санитарно-бытовые помещения: гардеробные, душевые, умывальные, уборные.

Служебные помещения определяются по удельным показателям площадей на 1 рабочее место в соответствии с МГСН 4.18-99 (приложение 8).

4.1.15. Состав и площади санитарно-бытовых помещений следует принимать в соответствии с требованиями СНиП 2.09.04-87* и согласно перечню профессий и групп производственных процессов МГСН 4.18-99 (приложение 9).

Состав и площади служебных и санитарно-бытовых помещений уточняются заданием на проектирование или проектом в зависимости от вместимости, профиля и типа предприятия. Так в небольших предприятиях (общей площадью до 100 м2), большей частью арендующих первые и цокольные этажи жилых домов, (такие как мастерские мелкого ремонта, приемные пункты химчисток и прачечных, бюро обслуживания и пр.), состав и площади служебно-бытовых помещений можно сократить, совмещая гардероб персонала с комнатой для приема пищи и т.п.

Соотношения площадей основных функциональных групп помещений разработанных для Пособия предприятий приведены в приложении 3 настоящего пособия.

4.2. ДОПОЛНИТЕЛЬНЫЕ ПОМЕЩЕНИЯ

4.2.1. Развитие рыночных отношений, малого и среднего бизнеса вызвали к жизни появление дополнительных видов услуг при предприятиях.

4.2.2. Наиболее развитые дополнительные группы помещений имеются при Домах Моды и Салонах Красоты.

В Домах Моды предусматриваются демонстрационные комплексы (демонстрационные залы, костюмерные, кладовые хранения и подготовки моделей одежды, необходимые бытовые помещения и пр.). Их площади приведены в МГСН 4.18-99 пункте 3.21.

Демонстрационные залы включают две основные функциональные зоны: для демонстрации моделей и для размещения зрителей. Форма плана зала может иметь различные решения: прямоугольные, круглые, сложные, которые обеспечивают оптимальные условия видимости для всех зрителей. Залы должны быть оборудованы стационарными или сборно-разборными помостами, приподнятыми над уровнем пола на 500 - 800 мм.

Искусственное освещение демонстрационного зала должно обеспечить зрителям хорошие условия видимости моделей. При залах необходимы помещения для модельеров, оборудованные санузлами и душевыми, а также кладовые моделей.

При Домах Моды рекомендуется предусматривать также музеи Моды и выставочные залы. Помещения музея Мод должны быть связаны с залом приема и выдачи заказов и экспериментальной лабораторией. Экспозиционную площадь музея следует определять из расчета не менее 4 м2 на каждую экспонируемую модель.

Необходимой дополнительной группой помещений Домов Мод является торговая группа: это магазины или специальные отделы по продаже авторских образцов одежды и ее полуфабрикатов, а также украшений и различных дополнений к костюму.

Кроме того, в Домах Моды и в ателье по пошиву и ремонту одежды, головных уборов и трикотажных изделий в залах приема и выдачи заказов или помещениях, примыкающих к ним непосредственно, рекомендуется предусматривать раскрой тканей и продажу готовых изделий и полуфабрикатов.

4.2.3. При мастерских по изготовлению и ремонту мебели рекомендуется проектировать выставочные залы с образцами изготовляемой мебели. При фотоателье - залы просмотра кино- и видеопленок, продажу фотоаппаратов, фотопленок и других сопутствующих товаров. В Ателье проката предметов домашнего обихода и культурно-бытового назначения могут проектироваться залы проведения семейных мероприятий.

4.2.4. Значительное количество дополнительных услуг предусматривается при парикмахерских, которые в отличие от массовых типов парикмахерских получают статус Салонов Красоты.

Дополнительные помещения в Салонах Красоты включают демонстрационные залы, где мастера демонстрируют на моделях свое мастерство, массажные кабинеты для полного массажа тела, солярии, сауны с бассейнами (и без них).

Для привлечения посетителей в Салоны Красоты в них предусматриваются во многих случаях помещения для оздоровления и спорта - тренажерные залы и для занятий шейпингом, рис. 2. В Салонах Красоты и парикмахерских предусматриваются, как правило, отделы по продаже сопутствующих товаров: парфюмерии, парики и пр.

В Домах Моды, Ателье, Салонах Красоты и др. рекомендуется также проектировать предприятия общественного питания: разнообразные кафе, пивные и соки-бары, кафетерии.

4.2.5. Площади дополнительного обслуживания следует принимать: для пунктов по продаже сопутствующих товаров и изделий - согласно МГСН 4.13-97, для кафе, кафетериев и баров - согласно МГСН 4.14-98.

4.2.6. Площади помещений выставочных залов, отделов для продажи полуфабрикатов, залов для семейных мероприятий следует принимать согласно таблице 1.

4.2.7. Состав и площади остальных помещений дополнительного обслуживания определяются заданием на проектирование и проектом.

Таблица 1

Рекомендуемые площади помещений дополнительного
обслуживания

№ п/п

Помещения

Единица измерения

Площадь м2

 

Выставочные залы

 

1.

Зал демонстрации образцов швейных, трикотажных изделий, образцов мебели и пр.

Ha 1 предприятие

До 50

 

2.

Зал просмотра кино- и видеопленок

На 1 зал

До 30

 

Залы семейных мероприятий

 

1.

Вестибюль (с гардеробом и с. узлами), аванзал

На 1 место в банкетном зале

Не менее 0,5

 

2.

Банкетный зал (с площадью для танцев)

То же

Не менее 1,8

 

3.

Кухня самообслуживания, моечная посуды

То же

0,4 - до 50 мест

0,2 - на каждое последующее место

 

4.

Подсобная

 

6

 

5.

Комната администратора

На предприятие

12

 

6.

Комната музыкантов

То же

6

 

Отделы по продаже полуфабрикатов

 

1.

 

 

На 1 м2 раб. площ., но не менее

Торговый зал

0,6

 

Кладовая

0,15

 

Подсобная

0,15

 

Бытовые

0,1

 

 

Итого

 

1,0

 

ПРИЛОЖЕНИЯ

Приложение 1

Расчетные показатели минимальной обеспеченности социально значимыми объектами бытового обслуживания населения повседневного, приближенного и периодического назначения

 

Виды услуг

Ед. изм. На 1000 жителей

Сеть жилого района

Приближенное обслуживание

Повседневное и периодическое обслуживание

всего

 

1

2

3

4

5

1.

Ремонт и индивидуальный пошив одежды, в том числе:

Раб. место

-

 

1,83

ремонт одежды,

1,83

пошив одежды,

0,15

ремонт трикотажа

1,68

2.

Ремонт и пошив обуви, в том числе:

То же

-

0,19

0,19

ремонт

0,14

пошив

0,05

3.

Ремонт и изготовление мебели, в том числе: пошив драпировок

То же

-

0,06

0,06

4.

Ремонт и изготовление

металлоизделий

То же

-

0,07

0,07

5.

Ремонт электроприборов и бытовой техники

То же

-

0,13

0,13

6.

Прокат

То же

-

0,1

0,1

7.

Парикмахерские

То же

-

0,75

0,75

8.

Фотоработы

То же

-

0,06

0,06

9.

Приемные пункты прачечных

Объект на жилую группу

1

-

1

10.

Приемные пункты химчисток

 

 

 

11.

Приемные пункты с мастерскими ремонта обуви, металлоизделий и пр.

Раб. место

0,5

-

0,5

 

 

 

0,5

3,14

3,64

Примечания:

1) Жилая группа - группа жилой, жилой смешанной застройки, территорией размером до 8 га с населением 5 - 8 тыс. человек, обеспеченных объектами повседневного обслуживания в пределах своей территории, а объектами повседневного и периодического обслуживания - в пределах нормативной доступности (пункт 5.14. МГСН 1.01-99)

2) Приемные пункты с мастерскими ремонта обуви, металлоизделий и пр. (пункт 11.) предусматриваются в «жилой группе» в случае ее изолированности и превышения радиуса пешеходной доступности свыше 500 м. В остальных случаях эти услуги предусматриваются в микрорайоне.

Приложение 2

Примеры размещения предприятий обслуживания населения

№ п/п

Наименование типа предприятий

рабочее место (р.м.)

(кв. м общей площади)

Встроенные и встроенно-пристроенные помещения

Отдельно стоящие здания в составе торгово-бытовых центров, павильоны

к жилым домам

к зданиям «иного» назначения

встр.

встр.-пристр.

1

2

3

4

5

6

1

Дом моды

-

-

-

+

2

Ателье по пошиву и ремонту одежды головных уборов и трикотажных изделий (с различным набором видов услуг)

 

 

 

 

- до 300 м2

+

+

+

+**

- до 500 м2

+*

+

+

+**

- свыше 500 м2

-

-

+

+**

3

Мастерские по ремонту обуви (срочный, мелкий, средний)

 

 

 

 

- до 100 м2

+

+

+

-

- свыше 100 м2

-

-

+

+**

4

Мастерские по изготовлению и ремонту металлоизделий и кожгалантереи (с различным набором видов услуг)

 

 

 

 

- до 100 м2

+

+

+

-

- до 150 м2

-

+

+

+**

- свыше 150 м2

-

-

+

+**

5

Мастерские по ремонту мебели

-

-

-

+

6

Мастерские по ремонту бытовых машин и приборов (бытовая техника)

 

 

 

 

- до 100 м2

+

+

+

-

- свыше 100 м2

-

-

+

+**

7

Мастерские по ремонту часов и ювелирных изделий

 

 

 

 

- до 100 м2

+

+

+

-

- до 150 м2

-

+

+

+**

Мастерские по изготовлению ювелирных изделий

-

-

+

+

8

Мастерская по ремонту радиоэлектронной аппаратуры

-

-

+

+

9

Салоны красоты

 

 

 

 

- до 500 м2 - без сауны,

+*

+

+

+

- свыше 500 м2

-

-

+

+

10

Парикмахерские (с различным набором видов услуг)

 

 

 

 

- до 100 м2

+

+

+

-

- до 150 м2

+*

+

+

+**

- свыше 150 м2

-

-

+

+

11

Салоны фотографии

-

-

+

+

12

Фотография

 

 

 

 

- до 100 м2

+

+

+

-

- до 150 м2

+*

+

+

+**

- свыше 150 м2

-

-

+

+

13

Мини-химчистка

 

 

 

 

- до 160 кг вещей в смену

-

-

+

+**

14

Приемные пункты химчистки

 

 

 

 

- до 100 м2

+

+

+

-

15

Мини-прачечные

 

 

 

 

- до 500 кг белья в смену

-

-

+

-

+**

16

Прачечные самообслуживания до 75 кг белья в смену (до 150 м2)

+

+

+

+**

17

Приемные пункты прачечной

 

 

 

 

- до 100 м2

+

+

+

+**

18

Многоотраслевой комплексный приемный пункт - типа «Мультисервис»

 

 

 

 

-до 300 м2

+

+

+

+**

19

Бюро посреднических услуг до 200 м2

+

+

+

+**

20

Ателье проката

 

 

 

 

- до 300 м2

+

+

+

-

- свыше 300 м2

-

-

+

+**

Примечания:

1. Варианты размещения предприятий рекомендуются как наиболее экономически, технологически и градостроительно целесообразные. Знаком «+» обозначена целесообразность размещения предприятия, знаком «-» - нецелесообразность.

2. Знаком * указаны максимальные площади предприятий при встраивании в жилые дома со специальным объемно-планировочным, конструктивным и инженерно-технологическим решением, при условии согласования с органами санитарного и пожарного надзора.

3. Знаком ** отмечено размещение предприятий только в составе торгово-бытовых центров и павильонах.

4. В графе 5 разделения на встроенные и встроенно-пристроенные предприятия не дано, т.к. они однотипны.

Приложение 3

Ориентировочное соотношение площадей функциональных групп помещений предприятий бытового обслуживания

Ед. изм.

Помещения для посетителей

Производственные помещения

Складские помещения

Служебно-бытовые

Коридоры, лестницы с.у. и пр.

Всего

1

2

3

4

5

6

7

1. Парикмахерские

м2 общ. пл.

18,9

67,7

9,3

10,2

9,6

115,7

% соотн. по проекту

16,3

58,5

8,1

8,8 8,3

17,1

100

% соотн. по нормам

15

50

15

20

100

2. Мастерская по ремонту обуви

м2 общ. пл.

9,4

43,0

9,3

13,8

10,2

85,7

% соотн. по проекту

10,9

50,2

10,9

16,1 11,9

28,0

100

% соотн. по нормам

10

60

10

20

100

3. Мастерская по ремонту бытовых машин и приборов

м2 общ. пл.

10,9

26,9

13,2

14,8

5,7

71,5

% соотн. по проекту

15,3

37,7

18,4

20,7 7,9

28,6

100

% соотн. по нормам

10

60

10

20

100

4. Мастерская по изготовлению и ремонту металлоизделий и кожгалантереи

м2 общ. пл.

18,9

33,7

-

13,8

10,2

76,6

% соотн. по проекту

24,7

44,0

0

18,0 13,3

31,3

100

% соотн. по нормам

10

60

10

20

100

5. Мастерская по ремонту часов и ювелирных изделий

м2 общ. пл.

9,4

26,7

4,7

-

5,2

46

% соотн. по проекту

20,4

58,0

10,2

-

11,4

100

% соотн. по нормам

30

40

10

20

100

6. Приемный пункт прачечной

м2 общ. пл.

18,9

-

37,8

5,8

9,0

71,3

% соотн. по проекту

26,5

-

53,0

8,1

12,4

100

7. Приемный пункт химчистки

м2 общ. пл.

13,0

-

30,9

10,9

10,7

65,5

% соотн. по проекту

19,8

-

47,2

16,6

16,4

100

8. Мастерская по ремонту обуви (реконструкция)

м2 общ. пл.

26,0

110,0

24,0

38,0 22,0

60,0

(без лестниц)

220

% соотн. по проекту

11,9

50,0

10,8

17,3 10,0

27,3

100

% соотн. по нормам

10

60

10

20

100

9. Мини-прачечная на 500 кг в смену

м2 общ. пл.

50,0

207,0

25,2

46,2

88,6

417,7

 

 

 

 

 

 

 

% соотн. по проекту

12,0

50,0

6,0

11,0 21,0

32,0

100

% соотн. по нормам

15,0

55,0

10,0

20,0

100

10. Мини-химчистка на 140 кг в смену

м2 общ. пл.

30,0

125,0

14,5

23,5

38,0

231,0

% соотн. по проекту

13,0

54,0

6,0

10,0 17,0

27,0

100

% соотн. по нормам

10,0

60,0

10,0

20,0

100

ПРИМЕРЫ ПРОЕКТНЫХ РЕШЕНИЙ

РИС. 1. МОСКОВСКИЙ ДОМ МОДЕЛЕЙ (РЕКОНСТРУКЦИЯ 1998 г. МОСГОРБЫТПРОЕКТ)

А - план 1-го этажа, Б - план 2-го этажа

I - салон женской одежды, II - выставочный зал авторских моделей, III - салон-магазин, IV - склады примерочных и готовых изделий, V - кабинет администратора, VI - служебные помещения (кабинеты, бухгалтерия...), VII - бытовые помещения, VIII - склады.

РИС. 2. САЛОН КРАСОТЫ С ШЕЙПИНГ КЛУБОМ В РАЙОНЕ МАРЬИНО - НА
ЛЮБЛИНСКОЙ УЛИЦЕ (МНИИТЭП, МОСГОРБЫТПРОЕКТ)

А. Разрез.                                                                              Б. План второго этажа

1 - Салон для посетителей (с гардеробом), 2 - зал парикмахерской, 3 - кабинет маникюра и педикюра, 4 - массажные кабинеты, 5 - косметический кабинет, 6 - солярий, 7 - сауна, 8 - комната отдыха, 9 - зал шейпинга, 10 - тренажерный зал с гардеробом, 11 - демонстрационный зал с баром, 12 - кафе с производственными помещениями, 13 - служебные помещения, 14 - бытовые помещения, 15 - кладовые.

РИС. 3. ПРИМЕРЫ ПЛАНИРОВОЧНЫХ РЕШЕНИЙ ПРЕДПРИЯТИЙ БЫТОВОГО ОБСЛУЖИВАНИЯ, ВСТРОЕННЫХ В ПЕРВЫЙ ЭТАЖ БЛОК СЕКЦИЙ ДОМА СЕРИИ П-44

А. МАСТЕРСКАЯ ПО ИЗГОТОВЛЕНИЮ И РЕМОНТУ МЕТАЛЛОИЗДЕЛИЙ И КОЖГАЛАНТЕРЕИ

I - салон для посетителей, II - ремонт велосипедов и колясок, III - ремонт металлоизделий и кожгалантереи, IV - администратор, V - гардероб и комната персонала. Рабочая площадь - 66,4 м2. Общая площадь 76,6 м2.

Б. ПРИЕМНЫЙ ПУНКТ ХИМЧИСТКИ

I - помещение приема и выдачи вещей, II - кладовая чистых вещей, III - кладовая грязных вещей, IV - комната персонала, V - гардероб персонала. Рабочая площадь - 54,8 м2. Общая площадь - 65,5 м2.

В. ПРИЕМНЫЙ ПУНКТ ПРАЧЕЧНОЙ

I - помещение приема и выдачи вещей, II - кладовая грязного белья, III - кладовая чистого белья, IV - комната персонала. Э - электрощитовая. Рабочая площадь - 62,3 м2. Общая площадь - 71,3 м2.

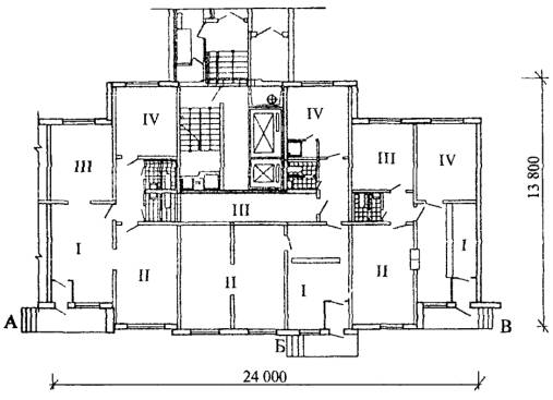
РИС. 4. ПРИМЕРЫ ПЛАНИРОВОЧНЫХ РЕШЕНИЙ ПРЕДПРИЯТИЙ БЫТОВОГО ОБСЛУЖИВАНИЯ, СТРОЕННЫХ В ПЕРВЫЙ ЭТАЖ БЛОК СЕКЦИИ ДОМА серии П-44Т (арх. К. Красильникова, инженер-технолог Н. Зеленкова)

А. БЮРО ПОСРЕДНИЧЕСКИХ УСЛУГ

I - салон для посетителей (с местом для юриста), II - помещение дизайнера, III - помещение флориста, IV - множительная техника, V - комната администратора. Общая площадь - 118,5 м2.

Б. ПАРИКМАХЕРСКАЯ

I - салон для посетителей, II - женский зал, III - мужской зал, IV - кабинет косметики, V - кабинет маникюра и педикюра, VI - подсобное помещение, VII - комната персонала. Рабочая площадь - 106,1 м2. Общая площадь - 115,7 м2.

РИС. 5. ПРИМЕРЫ ПЛАНИРОВОЧНЫХ РЕШЕНИЙ ПРЕДПРИЯТИЙ БЫТОВОГО ОБСЛУЖИВАНИЯ ВСТРОЕННЫХ В ПЕРВЫЙ ЭТАЖ БЛОК-СЕКЦИИ ДОМА СЕРИИ П44-Т

(арх. К. Красильникова, инженер-технолог Н. Зеленкова)

А. ПРИЕМНЫЙ ПУНКТ «МУЛЬТИСЕРВИС» (прием заказов на бытовые услуги)

I - салон для посетителей со срочным ремонтом, II - помещения образцов отремонтированных холодильников, телевизоров и т.д., III - заказы на ремонт квартир (с образцами), IV - помещения мастеров. Общая площадь - 76,6 м2.

Б. МАСТЕРСКАЯ ПО РЕМОНТУ ОБУВИ

I - салон для посетителей со срочным ремонтом, II - помещение ремонта, III - кладовая, IV - комната администратора, гардероб персонала. Рабочая площадь - 75,5 м2. Общая площадь - 85,7 м2.

В. МАСТЕРСКАЯ ПО РЕМОНТУ БЫТОВЫХ МАШИН И ПРИБОРОВ (малогабаритных)

I - салон для посетителей, помещение для ремонта, кладовая, комната линейных мастеров. Рабочая площадь - 65,8 м2. Общая площадь - 71,5 м2.

РИС. 6. ПРИМЕРЫ ПЛАНИРОВОЧНЫХ РЕШЕНИЙ ПРЕДПРИЯТИЙ БЫТОВОГО ОБСЛУЖИВАНИЯ, ВСТРОЕННЫХ-ПРИСТРОЕННЫХ В ПЕРВЫЙ ЭТАЖ БЛОК-СЕКЦИИ ДОМА СЕРИИ П3М
(арх. К. Красильникова, инженер-технолог Н. Зеленкова)

Ателье по пошиву верхнего и легкого платья

I - салон для посетителей, II - участок пошива легкого платья, III - участок отделки и глаженья, IV - участок пошива верхнего платья, V - раскройный цех, VI - участок скорняжных работ, VII, VIII - кладовые, IХ - комната администратора, Х - комната персонала, ХI - гардероб персонала. Рабочая площадь - 365,3 м2. Общая площадь - 407,7 м2.

РИС. 7. ВАРИАНТЫ ПРИМЫКАНИЙ ПРИСТРОЕННЫХ ОБЪЕМОВ ПРЕДПРИЯТИЙ ОБСЛУЖИВАНИЯ К ЖИЛОМУ ДОМУ:

а - с устройством «лотка»; б - с размещением технического этажа между жилой частью и нежилыми помещениями.

1 - пристроенный объем, 2 - встроенная часть, 3 - лоток

РИС. 8. АТЕЛЬЕ ПОШИВА ВЕРХНЕЙ ОДЕЖДЫ В БЛОКЕ ОБСЛУЖИВАНИЯ (ТИПОВОЙ ПРОЕКТ 1X01-18). ПРИМЕР МОДЕРНИЗАЦИИ ПРЕДПРИЯТИЯ.

А. РАЗРЕЗ.                                                                   Б. ПЛАН ВТОРОГО ЭТАЖА

1 - салон для посетителей, 2 - закройный цех, 3 - участок пошива верхней одежды, 4 - участок пошива легкого платья, 5 - помещение влажностно-тепловой обработки, 6 - кладовая ткани и фурнитуры, 7 - кладовая готового платья и примерок, 8 - участок головных уборов, 9 - контора, 10 - комната персонала, 11 - гардероб персонала. Рабочая площадь 408 м2. Общая площадь 497 м2.

РИС. 9. МАСТЕРСКАЯ ПО РЕМОНТУ ОБУВИ. ПРИМЕР МОДЕРНИЗАЦИИ.

Г. ПЛАН ВТОРОГО ЭТАЖА.                                                          В. РАЗРЕЗ

1 - салон для посетителей, 2 - срочный ремонт обуви, 3 - помещение для ремонта обуви (мелкого и среднего), 4 - кладовые, 5 - контора, 6 - комната персонала, 7 - гардероб персонала. Рабочая площадь - 198 м2. Общая площадь - 220 м2.

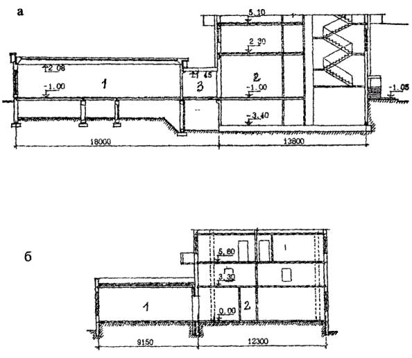
РИС. 10. ХИМЧИСТКА И ПРИЕМНЫЙ ПУНКТ
в Петровском Пассаже (Гипробытпром)

А. СИТУАЦИОННЫЙ ПЛАН УЧАСТКА.

I - прием вещей в химчистку, II - производственный зал (в подземном пространстве), III - подъемники.

Б. ПЛАН ПРЕДПРИЯТИЯ
Спецификация оборудования:

1 - машина химчистки, 2 - барабан для откатки, 3 - ворсовальная машина, 4 - парогенератор, 5 - стол для зачистки и сортировки, 6 - вешало передвижное, 7 - стеллаж, 8 - манекен.

РИС. 11. ПРИМЕРЫ РАЗМЕЩЕНИЯ ПРЕДПРИЯТИЙ БЫТОВОГО ОБСЛУЖИВАНИЯ НА УЧАСТКЕ. РЕШЕНИЕ ЗАГРУЗОК, ВХОДОВ (ОТДЕЛЬНО СТОЯЩИЕ ЗДАНИЯ)

А - Ателье индивидуального пошива комплексного обслуживания в Орехово-Борисово.

1 - ателье;

2 - магазины (перспективное строительство);

3 - жилые дома.

Б - Блок обслуживания по типовому проекту IX-01-18 в квартале 81 Хорошево Мневники.

1 - ателье по пошиву верхней одежды (2 этаж).

Условные обозначения:

 - входы посетителей, - загрузка предприятий,

 входы персонала,- хозяйственная зона  - магистраль.

РИС. 12. ПРИМЕРЫ РАЗМЕЩЕНИЯ ПРЕДПРИЯТИЙ БЫТОВОГО ОБСЛУЖИВАНИЯ НА УЧАСТКЕ. РЕШЕНИЕ ЗАГРУЗКИ, ВХОДОВ

А. Жилые дома со встроенными и пристроенными предприятиями торговли, общественного питания, бытового обслуживания и пр. в районе Марьино на Люблинской улице (МИИИТЭП)

1). Салон красоты с шейпинг клубом (2-й этаж).

2). Продовольственные магазины, предприятия общественного питания.

3). Промтоварные магазины и другие предприятия обслуживания.

Б. Блок-секции П-44Т со встроенными и встроенно-пристроенными предприятиями:

1) - ателье по пошиву верхнего и летнего платья;

2) - приемный пункт типа «Мультсервис», мастерские по ремонту обуви и бытовых машин и приборов;

3) - мастерская металлоизделий; приемные пункты химчистки и прачечной.

Условные обозначения:

 - входы посетителей  - входы персонала

 - загрузка предприятий - входы в жилой дом

 - магистраль.

РИС. 13. МОСКОВСКИЙ ДОМ МОДЕЛЕЙ (РЕКОНСТРУКЦИЯ 1998 г.)
ПРИМЕР РАССТАНОВКИ ТЕХНОЛОГИЧЕСКОГО ОБОРУДОВАНИЯ В ПРОИЗВОДСТВЕННЫХ ПОМЕЩЕНИЯХ ДОМА МОДЕЛЕЙ.

В. ПЛАН 3 ЭТАЖА.                                                      Г. ПЛАН 4 ЭТАЖА

I - демонстрационный комплекс (зал и подсобные помещения), II - конструкторский участок, III - цеха пошива легкого платья, IV - участок вязки, V - комната персонала, VI - цех пошива верхней одежды, VII - закройный участок, VIII - гардеробная, IX - кладовые.

1 - столы для закройных работ, 2 - столы для ручных работ, 3 - машина швейная универсальная, 4 - машина швейная обметочная, подшивочная, 6 - машина швейная петельная, машина швейная вышивальная, 7 - стол-доска для утюжных работ, 8 - стол для контроля края, 9 - стол для вязальной машины, 10 - машина швейная для трикотажных изделий, 11 - стол для утюжных работ, 12 - пресс автомат электрический, стол для ручных работ, 14 - стол художника.

РИС. 14. ПРИМЕР РАССТАНОВКИ ТЕХНОЛОГИЧЕСКОГО ОБОРУДОВАНИЯ В САЛОНЕ КРАСОТЫ

I - Салон для посетителей с гардеробом, II - зал парикмахерской, III - кабинет маникюра и педикюра, IV - массажный кабинет, V - косметический кабинет, VI - солярий, VII - демонстрационный зал с баром, раздевалкой и радиоузлом.

1, 2 - кресло парикмахерское, 3 - тумбочка для принадлежностей, 4 - кресло косметическое, 5 - стул вращающийся, 6 - стул для маникюра, 7 - кресло для педикюра, 8 - стол массажный, 9 - стойка администратора с кассовым аппаратом, 10 - a капсула, 11 - витрина, 12 - подиум.

РИС. 15. РАССТАНОВКА ОБОРУДОВАНИЯ В МАСТЕРСКОЙ ПО РЕМОНТУ БЫТОВЫХ МАШИН И ПРИБОРОВ (малогабаритных)

1 - верстак универсальный,

2 - стеллажи пристенные,

3 - кассовый аппарат,

4 - стол для оформления документов,

5 - стул вращающийся,

6 - щит электроизмерительный,

7 - стеллаж-витрина.

РИС. 16. РАССТАНОВКА ОБОРУДОВАНИЯ В МАСТЕРСКОЙ ПО ИЗГОТОВЛЕНИЮ И РЕМОНТУ МЕТАЛЛОИЗДЕЛИЙ И КОЖГАЛАНТЕРЕИ

1 - верстак,

2 - стеллаж,

3 - кассовый аппарат,

4 - стол для оформления документов,

5 - электро-точило,

6 - копировальный станок для изготовления ключей,

7 - швейная машинка для ремонта кожгалантереи.

РИС. 17. ПРИМЕР РАССТАНОВКИ ОБОРУДОВАНИЯ В САЛОНЕ И ЗАЛАХ ПАРИКМАХЕРСКОЙ

1 - кресло парикмахерское, 2 - раковина для мытья головы, 3 - тумбочка для принадлежностей, 4 - кресло косметическое, 5 - стол для маникюра, 6 - кресло для педикюра, 7 - сушуар, 8 - клиимазон, 9 - тележка - стол, 10 - стерилизатор, 11 - ванна паровая, 12 - лампа бактерицидная, 13 - вапазон 0,75 кВт, 14 - брашинг 0,04 кВт, 15 - парафиница 0,3 кВт, 16 - вешалка стоящая, 17 - витрина для демонстрации косметической продукции, 18 - кассовый аппарат.

Наименование помещений см. рис. 4Б

РИС. 18. ПРИМЕР РАССТАНОВКИ ОБОРУДОВАНИЯ В МАСТЕРСКОЙ ПО РЕМОНТУ ЧАСОВ И ЮВЕЛИРНЫХ ИЗДЕЛИЙ

I - салон, II - помещение ремонта часов и ювелирных изделий, III - кладовая и гардеробная. Рабочая площадь - 46,0 м2. Общая площадь 51,2 м2.

Экспликация оборудования

1 - верстак для срочного ремонт часов, 2 - верстак ювелира, 3 - стол часовщика, 4 - сейф, 5 - прибор для проверки хода часов, 6 - стол вспомогательный, 7 - стеллаж приставной, 8 - шкаф, 9 - кассовый аппарат, 10 - прилавок ювелира, 11 - прилавок часовщика.

РИС. 19. ПРИМЕР РАССТАНОВКИ ОБОРУДОВАНИЯ ВО ВСТРОЕННЫХ ПРЕДПРИЯТИЯХ

Приемный пункт химчистки

А - вариант первый, Б - вариант второй

1 - кассовый аппарат, 2 - стул вращающийся 3 - вешалки для чистых вещей, 4 - тележки для грязных вещей, 5 - стол упаковочный.

В - Приемный пункт прачечной

1 - стол упаковочный, 2 - стол-прилавок, 3 - стеллажи для чистого белья, 4 - тележки для грязного белья.

Наименование помещений см. рис. 3Б, 3В.

РИС. 20. ПРИМЕР ПАРИКМАХЕРСКОЙ В ПЕРВОМ ЭТАЖЕ ЖИЛОГО ДОМА ПО УЛ. МАРШАЛА ЖУКОВА (ГИПРОБЫТПРОМ, ИНЖЕНЕРЫ - ТЕХНОЛОГИ КОМИСАРЕНКО, ЕСИНА).

ПРИМЕР СОВМЕЩЕНИЯ САЛОНА ДЛЯ ПОСЕТИТЕЛЕЙ И ЗАЛА ПАРИКМАХЕРСКОЙ В ОДНОМ ПОМЕЩЕНИИ

I - зал и салон, II - кабинет солярия, III - кабинет педикюра, IV - кабинет маникюра, V - бюро-кладовая, VI - комната персонала.

Экспликация оборудования

1 - рабочее место парикмахера, 2 - кресло, 3 - мойка с креслом, 4 - футура, 5 - маникюрный стол, 6 - компьютер и кассовый аппарат, 7 - педикюрное кресло, 8 - косметическая кушетка, 9 - солярий.

РИС. 21. ПРИМЕРЫ РАССТАНОВКИ ОБОРУДОВАНИЯ В АТЕЛЬЕ ПО ПОШИВУ ВЕРХНЕГО И ЛЕГКОГО ПЛАТЬЯ

А - Основной вариант

Б - Вариант решения производственной группы с раздвижными перегородками

(Наименование помещений см. рис. 6)

Экспликация оборудования

1, 17 - стачивающая швейная машина, 2, 3, 4, 5 - швейные машины, 6 - стол для ручных работ, 7 - стол-доска для утюжных работ, 8 - гидравлический пресс, 9 - отпарочный аппарат, 10 - манекен, 11 - вешало для готового платья, 15, 16 - столы для ручных работ, 19, 20, 21 - машины швейные, 22 - стол для закройных работ, 23, 28, 29 - стеллажи пристенные, 7 - стол примерочный, 30 - кронштейн для изделий.

РИС. 22. ПРИМЕР ПЛАНИРОВОЧНОГО РЕШЕНИЯ ПРИСТРОЕННОЙ К ЦТП МИНИ-ПРАЧЕЧНОЙ НА 500 КГ В СМЕНУ (ИНЖЕНЕРЫ-ТЕХНОЛОГИ А. М. КОМИСАРЕНКО, Н. А. МОРОЗОВА)

I - Помещение для посетителей (прием белья), II - помещение для посетителей (выдача белья), III - производственная группа помещений, IV - контора, V - кладовые (В-Ч), VI - гардеробные (мужская и женская), VII - компрессорная, VIII - ремонтно-механический пункт, IХ - венткамеры (приточная и вытяжная). Рабочая площадь - 329,1 м2. Общая площадь - 417,7 м2.

ЭКСПЛИКАЦИЯ ТЕХНОЛОГИЧЕСКОГО ОБОРУДОВАНИЯ

1 - машина стиральная емк. 3 кг, 2 - машина стиральная емк. 10 кг, 3 - барабан сушильный емк. 30 кг, 4 - пресс для воротничков и манжет, 5 - пароманекен для сорочек, 6 - стол гладильный, 7 - пресс ротационный для белья, 8 - каландр для прямого белья, 9 - парогенератор, 10 - установка для умягчения воды, 11 - упаковочная установка для сорочек, 12 - мойка, 13 - тележка для белья, 14 - контейнер передвижной, 15 - стол, 16 - вешало передвижное, 17 - поддон для грязного белья, 18 - машина швейная, 19 - стол для швейных работ, 20 - шкаф.

РИС. 23. ПРИМЕРЫ ОБОРУДОВАНИЯ МИНИ-ПРАЧЕЧНЫХ

А. СХЕМА УСТАНОВКИ ГЛАДИЛЬНОГО ОБОРУДОВАНИЯ ДЛЯ ФАСОННОГО И ПРЯМОГО БЕЛЬЯ

а - разрез, б - план

1 - пресс ротационный для фасонного белья,

2 - каландр для прямого белья,

3 - стол для белья.

УСЛОВНЫЕ ОБОЗНАЧЕНИЯ:

-Э-             Электрика,

0-            Трубопровод сжатого воздуха,

-Т7-           Трубопровод пара,

-К-             Трубопровод конденсата,

-В-             Трубопровод холодной воды,

-Т-              Трубопровод горячей воды,

=К=           Канализация,

*      Гибкий шланг,

              Вытяжка.

Б. СХЕМА УСТАНОВКИ СТИРАЛЬНОГО ОБОРУДОВАНИЯ

а - разрез, б - план

1 - машина стиральная емкостью 12 кг,

2 - машина стиральная емкостью 10 кг,

3 - мойка.

РИС. 24. ПРИМЕР ОБОРУДОВАНИЯ МИНИ-ПРАЧЕЧНОЙ

СХЕМА УСТАНОВКИ ГЛАДИЛЬНОГО ОБОРУДОВАНИЯ ДЛЯ СОРОЧЕК

а - фасад, б - план

1 - пресс для воротничков и манжет,

2 - паровоздушный манекен для сорочек,

3 - стол гладильный,

4 - упаковочная установка,

5 - вешало передвижное.

РИС. 25. ПРИМЕР ПЛАНИРОВОЧНОГО РЕШЕНИЯ ПРИСТРОЕННОЙ К ЦТП

МИНИ-ХИМЧИСТКИ НА 140 КГ В СМЕНУ. (ИНЖЕНЕРЫ-ТЕХНОЛОГИ А. М. КОМИСАРЕНКО, Н. А. МОРОЗОВА)

I - помещение для посетителей, II - производственная группа помещений, III - ВВК и компрессорная, IV - кладовые, V - контора, VI - гардеробная, VII - ПВК. Общая площадь - 231,0 м2. Рабочая площадь 193,0 м2.

Экспликация технологического оборудования

1 - машина химчистки емк. 15 кг, 2 - кабина для пятновыводки и зачистки, 3 - стиральная машина для аква-чистки емк. 10 кг, 4 - сушильный барабан для аква-чистки емк. 10 кг, 5 - станок пятновыводной, 6 - пароманекен для брюк, 7 - гладильный стол, 8 - пароманекен для одежды, 9 - конвейерная установка, 10 - упаковочная установка, 11 - тележки, 12 - стеллаж передвижной, 13 - стол для сортировки, 14 - прилавки, 15 - парогенератор с установкой умягчения воды.

РИС. 26. ПРИМЕРЫ ОБОРУДОВАНИЯ МИНИ-ХИМЧИСТОК

А. СХЕМА УСТАНОВКИ ГЛАДИЛЬНОГО ОБОРУДОВАНИЯ В УЧАСТКЕ ВЛАЖНО-ТЕПЛОВОЙ

а - разработки б - план

1 - пароманекен для брюк,

2 - стол гладильный,

3 - пароманекен для одежды.

Условные обозначения:

0-            Трубопровод сжатого воздуха,

7-            Трубопровод пара,

онд-         Трубопровод конденсата,

     Штепсельный разъем,

              Вытяжка,

-В-             Трубопровод холодной воды,

=К=           Канализация,

       Гибкий шланг,

-Э-             Электрика,

Б. Схема установки оборудования для химчистки и аква-чистки

a - разрез, б - план

1 - машина химчистки емкостью 15 кг,

2 - кабина для зачистки и пятновыводки,

3 - стиральная машина емкостью 10 кг,

4 - сушильный барабан емкостью 10 кг.



© 2013 Ёшкин Кот :-)