Информационная система
«Ёшкин Кот»

XXXecatmenu

Госстрой России

Минтруд России

ЗАО ЦНИИЭП им. Б.С. Мезенцева

РЕКОМЕНДАЦИИ
ПО ПРОЕКТИРОВАНИЮ
ОКРУЖАЮЩЕЙ СРЕДЫ, ЗДАНИЙ И СООРУЖЕНИЙ
С УЧЕТОМ ПОТРЕБНОСТЕЙ ИНВАЛИДОВ И ДРУГИХ
МАЛОМОБИЛЬНЫХ ГРУПП НАСЕЛЕНИЯ

МДС 35-7.2000

Выпуск 13

Общественные здания и сооружения.
Физкультурно-оздоровительные сооружения

МОСКВА 2002

Содержат рекомендации по проектированию физкультурно-оздоровительных и детских физкультурно-игровых сооружений - площадок для спортивных игр, основных типов залов и бассейнов, помещений для активного досуга, медико-восстановительных помещений, раздевален для занимающихся, а также общие требования к внутренней среде помещений.

Предназначены для инженерно-технических работников проектных и строительных организаций, органов социальной защиты, обществ инвалидов.

Разработаны АО ЦНИИЭП им. Б.С. Мезенцева - кандидаты архитектуры Н.Б. Мезенцева, Е.М. Лось, архит. Н.А. Клементьев, A.M. Полянцева при участии канд. архит. Г.И. Быковой.

Подготовлены к изданию редакционной коллегией: В.А. Цветков, Н.Н. Якимова (Минстрой России), Ю.В. Колосов, A.M. Кузнецова (Минсоцзащиты России).

Предисловие

· Рекомендации предназначены для проектирования физкультурно-оздоровительных и детских физкультурно-игровых сооружений, учитывающих специфические особенности инвалидов.

· Положения настоящего документа имеют рекомендательный характер, но становятся обязательными при включении требований к физкультурно-оздоровительным сооружениям для инвалидов в архитектурно-планировочное задание и в задание на проектирование.

· Рекомендации применимы также при проектировании физкультурно-оздоровительных объектов массового строительства и могут использоваться в качестве основы для составления заданий на проектирование крупных уникальных и рекреационных объектов.

· Данный выпуск является вторым в серии рекомендаций по проектированию различных видов физкультурно-спортивных сооружений (см. прил.). Его рекомендации предназначены только для физкультурно-оздоровительных и досуговых сооружений, как отдельных объектов строительства, так и включенных в состав спортивных комплексов, учебно-воспитательных учреждений, клубов, внешкольных учреждений.

· Требования к проектированию чисто спортивных объектов, как совместного пользования, так и специализированных центров инваспорта, а также к проектированию спортивных сооружений с местами для зрителей в данном выпуске не рассматриваются.

· Рекомендации разработаны на основе передового отечественного и зарубежного опыта с использованием результатов многолетних научных исследований АО ЦНИИЭП им. Б.С. Мезенцева. Некоторые положения Рекомендаций проверены экспериментально.

· Рекомендации разработаны в развитие ВСН 62-91* «Проектирование среды жизнедеятельности с учетом потребностей инвалидов и маломобильных групп населения».

Общие положения

· Рекомендации рассчитаны на проектирование физкультурно-оздоровительных сооружений с учетом потребностей следующих категорий инвалидов:

с поражением опорно-двигательного аппарата;

с дефектами зрения;

с дефектами слуха.

· Выполнение положений Рекомендаций дает возможность использовать оздоровительные здания и сооружения лицам с легкими формами дефектов психики, инвалидам с нарушениями функций внутренних органов, а также ослабленным людям.

· Для определения параметров спортивных сооружений основополагающее значение имеют требования технологии к организации физкультурных и оздоровительных занятий.

Физкультурно-оздоровительные занятия инвалидов имеют две формы:

начальная или общая подготовка (для увеличения мышечной силы, подвижности суставов, улучшения координации движений, развития выносливости);

активный отдых (игры и занятия для улучшения физического и духовного состояния организма).

· Основой общей физической подготовки (ОФП) для инвалидов являются общеукрепляющие упражнения: на выносливость, равновесие, гибкость, подвижность. Площадь, необходимая для выполнения таких упражнений каждым занимающимся, составляет около 4 м2, что соответствует площади для аналогичных занятий здоровых людей. Исключение составляют инвалиды по зрению, для которых необходимо около 6 м2 на каждого занимающегося.

· Другую группу образуют упражнения, выполняемые на различных снарядах и тренажерах. Имеются в виду гимнастические стенки, различные пристенные блоки, поручни, параллельные брусья и зеркала для упражнений в ходьбе, канаты, кольца, перекладины, гимнастические скамьи, горки. Кроме того, могут применяться и другие несложные приспособления: доски для балансировки, лесенки с пандусом, напольный батут, низкое гимнастическое бревно и др.

· Средняя площадь на каждый элемент оборудования складывается из площади, занимаемой тренажером или снарядом, размеров зон безопасности и площади для подходов. Если два первых показателя стандартные, то третий дает увеличение средней площади по сравнению с необходимой для обычных занимающихся и глухих. В площадь подходов к оборудованию входят размеры проходов для незрячих и «колясочников», а также место, где оставляется кресло-коляска, если для выполнения упражнения необходима пересадка инвалида. Таким образом, площадь на каждую единицу оборудования составляет не менее 6 м2.

· Третья группа упражнений ОФП тесно связана с активным отдыхом. Площади мест занятий, под используемое оборудование и инвентарь зависят от конкретного вида игры или упражнений.

· Важнейшее значение для инвалидов (в первую очередь с ПОДА) имеют занятия в воде. Водная среда, компенсируя вес тела, снижает нагрузку на опорно-двигательный аппарат, способствует улучшению респираторной функции. Кроме того, упражнения в воде помогают воспитывать морально-волевые качества, необходимые для преодоления чувства неуверенности в себе. Для слепых вода - единственная среда передвижения без каких-либо опасных препятствий.

· Прежде чем инвалид начнет заниматься в воде, он должен пройти курс специальной психологической и физической подготовки. И в дальнейшем водные занятия сочетаются с занятиями в зале. В комплексы упражнений подготовительных занятий включаются специальные элементы для развития определенных групп мышц как с использованием различных тренажеров и снарядов, так и без них. Занятия могут проводиться в залах ОФП либо в специальных залах подготовительных занятий. Размеры залов подготовительных занятий могут быть стандартными (рекомендуемыми для ванн бассейнов общего пользования). Необходимо лишь правильно расставить оборудование, с учетом особенностей инвалидов. Количество оборудования в залах может быть уменьшено по сравнению со стандартным набором.

· Упражнения в воде обычно состоят из элементов игр и плавания. В соответствии со своей категорией инвалиды могут заниматься различными видами плавания, при этом может использоваться вспомогательное оборудование: доски для плавания, надувные трусы и шапочки, протезы с ластами, плавающие мячи, кольца и другие предметы.

· В воде также проводятся различные игры: элементы водного поло, водный баскетбол, волейбол и др. Для этого используется специальное оборудование: плавающие баскетбольные корзины, ворота, сетки, натягиваемые поперек ванны бассейна, и пр.

· Размеры и формы ванн для оздоровительного плавания инвалидов - стандартные, как для обычных физкультурно-оздоровительных занятий. Однако следует иметь в виду, что инвалиды с параличом ног могут заниматься в ваннах с минимальной глубиной воды 1,2 м.

· В специализированных детских учреждениях организация среды обитания должна быть направлена на предоставление возможности детям во время игры получить необходимую для полноценного развития физическую нагрузку. Поэтому занятия детей-инвалидов физкультурой и спортом в возрасте от 3 до 12 лет носят характер обучения гимнастическим упражнениям, элементам спортивных игр, а главное - умению свободно ориентироваться и передвигаться в окружающем пространстве, приспосабливаясь к нему соответственно виду и степени инвалидности.

· Необходимое сочетание игровой, физкультурно-оздоровительной деятельности обеспечивается набором различных по типу площадок (спортивных, тематических, для творческих игр) и многофункциональными помещениями.

· Решение интерьеров помещений и оборудование в сооружениях данного типа должны быть сомасштабны и соответствовать интеллектуальным способностям и физическим возможностям детей определенного возраста и инвалидности.

· В оздоровительных сооружениях следует решать пространство так, чтобы люди с ограниченной подвижностью могли чувствовать себя полноценными членами общества. Для этого необходимо обеспечить им доступ ко всем видам физкультурно-оздоровительных сооружений посредством устройств, помогающих ориентироваться и передвигаться без посторонней помощи.

· Главным требованием при проектировании объектов для инвалидов является обеспечение травмобезопасности при пользовании всеми видами физкультурно-оздоровительных сооружений.

· Необходимо избегать резких перепадов поверхностей пола или грунта и различных препятствий по ходу движения, что достигается организацией пандусов, устранением порогов и других выступающих элементов конструкций.

· Устройство ограничительных и направляющих поручней для детей высотой 500 - 700 мм, стационарное крепление оборудования дадут возможность для непрерывного опорного движения и устойчивости во время занятий.

· Для ориентации в пространстве устанавливаются табло и указатели направления движения к различным видам игрового оборудования, а также применяются тактильная и цветовая маркировка габаритов помещений, площадок, пешеходных путей.

Общие требования к территории

ПЛАНИРОВАНИЕ УЧАСТКА

· Желательно избегать перепадов уровней земли на путях передвижения занимающихся между блоками вспомогательных помещений и площадками.

· При размещении площадок на участках необходимо предусмотреть удаление их границ от всякого рода препятствий (заборов, стен и др.) не менее чем на 3 м.

· По периметру земельного участка комплекса открытых физкультурно-оздоровительных сооружений следует предусматривать ветро- и пылезащитные полосы древесных и кустарниковых насаждений. Отдельные площадки и открытые плавательные бассейны должны окружаться полосами кустарниковых насаждений.

· Открытые площадки должны быть максимально защищены от уличного шума. Это может достигаться за счет озеленения, обваловки площадок или строительства акустических экранов.

· Минимальная ширина шумозащитной полосы с двумя - тремя рядами деревьев и плотным кустарником должна составлять не менее 10 м. Каждый ряд снимает транспортный шум на 1,2 - 1,8 дБ. При этом деревья должны быть высотой не менее 5 - 7 м.

· Благоустройство территории, автостоянки и все пути передвижения занимающихся должны отвечать общим требованиям, изложенным в выпуске 1 рекомендаций «Общие положения» (см. прил.).

Открытые плоскостные сооружения

УСТРОЙСТВО ПЛОЩАДОК И ДОРОЖЕК

· Для обеспечения ориентации и безопасности инвалидов, страдающих полной или частичной потерей зрения, следует:

использовать в качестве ориентиров для направления движения звуковые маяки;

устраивать по периметру игровых площадок полосу ориентации шириной не менее 1,5 м с прилегающей к ней полосой безопасности шириной не менее 2,5 м;

устраивать полосу ориентации шириной не менее 2 м вдоль дорожек для бега или разбега перед прыжком;

предусматривать на беговой дорожке зону старта длиной по направлению движения не менее 5 м и зону финиша - длиной не менее 25 м;

устраивать полосу ориентации шириной не менее 1,2 м по периметру ванн бассейнов.

· Полосы ориентации, а также повороты беговых дорожек, зоны стартов и финишей, толчковые зоны при прыжках должны выделяться фактурной поверхностью покрытия с ярким контрастным цветом.

А. Фрагменты дорожек (например, «тропы здоровья»), оборудованные системой информации для незрячих:

1 - поворот; 2 - прямая; 3 - барьер, ограждение; 4 - легкое ограждение (веревка); 5 - развилка или перекресток.

Б. Устройство игровых площадок:

1 - площадка; 2 - полоса ориентации; 3 - зона безопасности; 4 - зеленые насаждения; 5 - трибуны

ПЛОЩАДКИ И ДОРОЖКИ ДЛЯ РАЗЛИЧНЫХ ЗАНЯТИЙ

· Важным элементом открытых физкультурно-оздоровительных сооружений является «тропа здоровья». Ее протяженность и степень сложности для прохождения определяются в соответствии с конкретными условиями. «Тропа здоровья» может оснащаться как стандартными видами оборудования, так и специальными, рассчитанными на инвалидов определенных категорий. Маршрут и зоны для упражнений должны обозначаться при помощи системы информации для незрячих, а также четкими, хорошо различимыми указателями.

Примеры элементов специального оборудования «тропы здоровья»:

1 - «лабиринт»; 2 - силовой тренажер; 3 - препятствие - пандус с уступами; 4 - тренажер для развития плечевого пояса; 5 - терринкур; 6 - площадка для упражнений с мячом

· Крокет. Играющий ударами деревянного молотка стремится провести мяч через ряд препятствий в виде проволочных ворот, расположенных на площадке в определенном порядке. Покрытие площадки - травяное, грунтовое, из спецсмесей.

· Кегли (шары). Подвижная игра, в которой участники, катая по дорожке шар, стараются сбить расставленные на расстоянии в определенном порядке деревянные фигуры - кегли или шары. Покрытие площадки - грунтовое, асфальтобетонное.

А. Площадка для игры в крокет. Б. Площадка для игры в кегли

· Футбол-теннис - игра для инвалидов с ПОДА. Играют 2 команды по 4 игрока. Разрешен переброс мяча любой частью тела, кроме рук. Прямоугольное поле для игры 20´8 м разделено на две половины сеткой высотой 1 м от пола.

· Мяч через шнур - игра, близкая по правилам к волейболу. Играют инвалиды с ПОДА (ампутанты): 2 команды по 4 игрока. По правилам не допускается падение мяча. Размеры поля для игры - 5´8 м, шнур натягивается посередине на высоте 1,8 м от пола.

· Гандбол через сетку - игра для инвалидов с ПОДА (ампутанты). Играют 2 команды по 6 - 10 чел. Поле для игры 30´10 м, сетка или шнур натягиваются на высоте 1,8 - 2 м от пола. «Воротами» считается вся зона в торцах площадки, верхней границей - шнур на высоте 2,4 м от пола.

А. Футбол-теннис. Б. Мяч через шнур. В. Гандбол через сетку.

Схемы площадок для игры:

1 - сетка (шнур); 2 - зона ворот

· Мини-гольф - упрощенный гольф с расположением лунок по кругу. Играющие должны ударом клюшки попасть мячом в цель (лунку). Покрытие площадки - травяное.

· Метание кольца - игра заключается в метании кольца в цель, расположенную на горизонтальной, вертикальной или наклонной поверхности. Размеры зоны для метания - 15´3 м. Покрытие - грунтовое, из спецсмесей, резинобитумное.

А. Площадка для игры в мини-гольф:

а - план, б - разрез по лунке.

Б. Устройства для игры в метание колец:

I, II - план, III, IV - разрезы

Детские физкультурно-игровые сооружения

ПЛОЩАДКИ ДЛЯ СПОРТИВНЫХ ИГР

· В течение последних лет инвалиды сами стали инициаторами ряда игр: флюгбол («летающий мяч»), прельбол («мяч с отскоком»), зицбол («мяч сидя»), волейбол сидя, фаустбол в зале, баскетбол на инвалидной коляске, саксессбол, юниор-саксессбол (упрощенный баскетбол). Размеры площадок для начинающих игроков даны в табл. 1.

Таблица 1

Название игры

Длина площадки, м

Ширина площадки, м

Дополнительные условия

Флюгбол

8

5

Лента на высоте 1,9 м от пола

Прельбол

16

8

То же, 0,4 м

Зицбол

10

8

То же, 1 м

Футбол-теннис

20

8

То же

Волейбол сидя

10

6

Высота верхней кромки сетки 1,15 м от пола

А. Мини-волейбол

Дети 6 - 8 лет: а = 10 м, l = 6 м, высота сетки 180 см;

Дети 9 - 12 лет: а = 12 м, l = 9 м, высота сетки 200 см.

Б. Ринго

Можно проводить на волейбольной площадке:

а = 12 м, l = 6 м, высота сетки 200 см;

а = 18 м, l = 9 м, высота сетки 243 см;

игровой снаряд - резиновое кольцо.

В. Мини-теннис

а = 12 м, l = 6 м, высота сетки 80 см.

Г. Футбольный теннис

Можно проводить на волейбольной площадке:

а = 10 м, l = 6 м;

а = 12 м, l = 9 м;

а = 18 м, l = 9 м;

высота сетки 110 см.

Д. Крокет

а = 12 м, l = 5 м

ПОЛОСЫ ПРЕПЯТСТВИЙ

· Для развития координации движений и ориентации в пространстве используют полосы препятствий.

· Для детей, способных передвигаться на ногах с опорой, возможны также занятия бегом или ходьбой на укороченные дистанции (от 20 до 500 м в зависимости от физических возможностей детей).

· Езда на колясках является основой многих видов спортивных занятий инвалидов. Наиболее распространены: гонка на время и гонка слалом с препятствиями. В зависимости от возраста и степени инвалидности проводятся гонки на время на короткие (30 - 100 м) и длинные (600 - 1000 м) дистанции, а также эстафеты 4´40; 4´60; 4´100 м. Гонка слалом на дистанции 25, 50, 75 м проводится на открытой площадке и в зале. Минимальная площадка 13´25 м, предпочтительнее 15´27 м. Для дистанции 25 м достаточна площадка 7´16,5 м.

А, Б. Площадки для гонки слалом размерами 25´13 и 20´10 м. В. Полоса препятствий для двигающихся без коляски:

1 - тумба (диаметр 0,8, высота 1 м); 2 - пандус (высота 0,3, ширина 1 м); 3 - доски (длина 1,5 м, ширина 0,1, толщина 0,05 м); 4 - флажки для объезжания; 5 - пандус (высота 0,3, ширина 4 м); 6 - маты

КОМПЛЕКСНЫЕ ИГРОВЫЕ ПЛОЩАДКИ

· Травмобезопасность детей должна обеспечиваться устройством оград высотой 1 - 1,2 м из металлических сеток, дерева или живой изгороди в местах примыкания площадок к улицам, железным дорогам, глубоким водоемам; организацией дренажа поверхности площадок; правильным выбором покрытий для разных видов деятельности.

· Игровые площадки желательно визуально обособлять от неигрового пространства (городской среды, жилых корпусов, спортивных площадок для взрослых).

· Необходимо разграничивать площадь участка на зоны по возрастным категориям, выделять места для детей от 1 года до 4 лет. Площадки для детей старшего дошкольного и младшего школьного возраста можно условно разделить с помощью усложняемых игровых устройств на зоны для 5 - 7, 8 - 10; 11 - 12 лет.

Зона А. Площадка для детей от 2 до 4 - 5 лет. Зона Б. То же, от 5 до 10 лет. Зона В. Участок для подвижных игр детей от 8 до 14 лет. Зона Г. Участок для спортивных игр детей всех возрастов

Зона А. Площадка для детей от 2 до 4 - 5 лет:

1 - фонтанчик с отводными коробами; 2 - песочница со скамьями по периметру; 3 - теневой навес; 4 - горка-лабиринт; 5 - горка-манеж с пологой лестницей; 6 - столики-барьеры; 7 - деревянная стилизованная «лошадь»; 8 - качели; 9 - качалки; 10 - бревна для упражнений на равновесие; 11 - стенки для рисования; 12 - корзина для забрасывания мяча; 13 - шест для набрасывания колец; 14 - паровоз; 15 - двойная горка; 16 - «рыба-кит» - горка для скатывания; рукоход; наклонные лестницы; 17 - карусель; 18 - площадка для игры в крокет

Зона Б. Площадка для детей от 5 до 10 лет:

19 - фонтанчик с отводными коробами; 20 - городок для активной двигательной деятельности; 21 - висячий мостик; 22 - туннель для проползания; 23 - наклонная лестница; 24 - вертикальная лестница; 25 - горка для скатывания; 26 - бревно-балансир; 27 - горизонтальный рукоход из канатов; 28 - веревочная горизонтальная лестница; 29 - система канатных сеток для лазания; 30 - канаты; 31 - шест для лазания; 32 - площадка с теневыми зонтами; 33 - искусственный рельеф - насыпные холмы; 34 - шесты - деревья; 35 - теневые зонты-шалаши; 36 - стенка, состоящая из: досок для рисования, целей для метания, качелей из автопокрышек, колец, трапеций, лестниц веревочных и деревянных; 37 - песочница

Зона В. Участок для подвижных игр детей от 8 до 14 лет:

38 - дорожка для бега; 39 - воротца для подлезания; 40 - барьеры; 41 - воротца с кольцом; 42 - шест с кольцом; 43 - бревно-балансир; 44 - дорожки для бега по пересеченной местности; 45 - яма для прыжков в длину; 46 - рукоход круговой; 47 - качели; 48 - вертикальные лестницы; 49 - наклонный шест; 50 - карусели; 51 - барабаны-бегунки; 52 - шесты - деревья; 53 - дорожка из бревен; 54 - переносные дорожки для мини-гольфа

Зона Г. Участок для спортивных игр детей всех возрастов:

55 - площадка для игры в малый теннис; 56, 57 - площадка для игры в бадминтон с разметкой для баскетбола; 58 - площадка для игры в спиралебол; 59 - пространственный гимнастический комплекс; 60 - разновысокие перекладины; 61 - брусья-лабиринт; 62 - штанги; 63 - барабаны-бегунки; 64 - параллельные и разновысокие брусья; 65 - бревна-балансиры; 66 - гимнастическая стенка; 67 - подсобные помещения с санузлами

· Игровые открытые площадки имеют наибольшее распространение среди сооружений для детей, так как длительное пребывание на воздухе - одно из требований режима дня ребенка.

· Комплексные игровые площадки для активного досуга компонуются в основном из следующих зон: физкультурно-игровых устройств; игр с водой и с песком; спортивных игр. Комплекс может быть дополнен зонами: для изучения правил дорожного движения; уголками природы с различными растениями и вольерами для животных; тематическими («театр», «цирк», строительные конструкторы, сооружения, имитирующие жилье разных исторических эпох: замки, вигвамы, пещеры и т.п.), но этот набор требует обязательного присутствия инструктора и кладовых для хранения инвентаря.

· Территория участка для игр рассчитывается исходя из минимальной площади, необходимой для одного ребенка: 1 - 4 лет - 5 - 7 м2; 5 - 7 лет - 7 - 10 м2; 8 - 10 лет - 10 - 12 м2.

Площадка с зоной водных игр (проект) (ФРГ)

а - зона физкультурно-игровых устройств, суммарная площадь песочниц 60 - 100 м2; б - зона игр с глинистым песком для лепки, площадь ямы с песком 40 - 60 м2; в - зона с плескательным бассейном, глубина воды 0 - 50 см, площадь поверхности воды 40 - 100 м2:

1 - деревянная башня; 2 - яма с песком, 3 - канатный мост; 4 - песочница; 5 - сидячие места для игр; 6 - канатная подвесная дорога; 7 - качалка; 8 - канатные сетки для лазания; 9 - дерево для лазания; 10 - катофон; 11 - песочный холм

· Основные требования к организации площадок для слепых и ограниченно зрячих (ОЗ):

А - игровое пространство необходимо ограничивать загородкой высотой 600 - 900 мм;

Б - пешеходные и беговые дорожки должны быть снабжены направляющими поручнями;

В - выступы на поручне обозначают конец дорожки;

Г - перепады рельефа отмечаются повышением или понижением направляющего поручня;

Д - повороты дорожек обозначаются изменением качества и фактуры покрытия: твердое - мягкое, гладкое - неровное, с выпуклыми или вогнутыми плитами;

Е - на пешеходных дорожках устанавливается указатель направления движения к площадке со стационарным игровым оборудованием.

· Примеры расстановки оборудования в игровых зонах для слепых и ограниченно зрячих.

А. Игровые зоны:

1 - пешеходная дорожка; 2 - зона с песком, холм с горками; 3 - зона с качелями, шведскими стенками и турниками; 4 - зона с горкой-туннелем.

Б. Полоса препятствий:

1 - висячий мост; 2 - пирамида из лестниц; 3 - бумы; 4 - турник-лестница

ПОМЕЩЕНИЯ ДЛЯ АКТИВНОГО ДОСУГА

· С целью большего разнообразия видов деятельности детей в различное время года и, в частности, для игр в непогоду необходимо строить крытые сооружения, отдельно стоящие или в составе центров досуга.

· В составе центров досуга, в детских клубах, санаториях, при учебных комплексах рекомендуется проектировать для детей дошкольного и младшего школьного возраста помещения для спортивных игр, физкультурно-оздоровительных занятий, подвижных и музыкальных игр. Состав помещений определяется в зависимости от количества обслуживаемых детей и профиля учреждения.

Детский оздоровительно-игровой комплекс в пансионате «Ольгинка» (на 1000 мест) - «Союзкурортпроект»:

1 - игровая для дошкольников; 2 - игровая для младших школьников; 3 - зал с ванной для плавания; 4 - санузлы; 5 - комната воспитателя; 6 - кладовая; 7 - термотерапия; 8 - раздевальные; 9 - подсобные помещения

· Дом для игр при комплексных площадках включает в свой состав: многофункциональное помещение для подвижных игр, мастерские, кружковые комнаты, санузлы, помещения для обслуживающего персонала, кладовые для инвентаря и оборудования. К игровому дому рекомендуется пристраивать навес над площадкой для спортивных игр. Площади помещений рассчитываются исходя из количества детей, обслуживаемых комплексной площадкой.

· Многофункциональное помещение для игр должно предоставлять детям возможность быстрой смены характера занятий. Такой вид помещения наиболее удобен для дошкольников. Единое пространство предназначено для сюжетно-ролевых игр, физических упражнений, игр со строительным конструктором, рисования. Потолок в таком помещении проектируется звукопоглощающим с закладными деталями для крепления подвесного физкультурного оборудования.

Оздоровительно-игровой комплекс «Союзкурортпроект»:

1 - игровая для младших школьников; 2 - игровая для дошкольников; 3 - зал с ванной для обучения плаванию; 4 - комната инструктора; 5 -раздевальные; 6 - кладовые

· Для детей-инвалидов младшего дошкольного возраста и при тяжелых формах инвалидности рекомендуются многофункциональные помещения, обеспечивающие организацию игр, в которые более подвижные и приспособленные дети могут играть на открытых площадках. Полы и стены в этих помещениях устраиваются так, что ребенок может передвигаться ползком или держась за опорные поручни и мебель. Примером такого помещения может служить «Домик для игр в воде и с песком» (площадь комнаты с песком и ванной для плескания 12 м2); комната со свободной площадью для передвижения 15 м2; кладовая, проекторная 4 м2.

Домик для игр в воде и с песком

1 - плескательная ванна (0,3 м глубиной); 2 - фонтан; 3 - песчаная площадка; 4 - маты разной формы для лазания; 5 - свободная площадка для передвижения; 6 - кладовая для инвентаря; 7 - проекторная; 8 - белая стена для проекций фильмов и слайдов

Основные функциональные блоки

СОСТАВ ОСНОВНЫХ И ВСПОМОГАТЕЛЬНЫХ ПОМЕЩЕНИЙ

· Состав основных и вспомогательных помещений физкультурно-оздоровительных сооружений определяется исходя из функционального назначения объекта, предполагаемого контингента пользователей и требований методического и медико-гигиенического характера. Он может варьироваться в соответствии с конкретными условиями.

· Предпочтительно, чтобы при проектировании физкультурно-оздоровительных сооружений предусматривался комплексный состав основных помещений. Минимальный набор составляют плавательный бассейн и зал для общей физической подготовки, который оснащается различным оборудованием для игр и физкультурных занятий. Размеры ванн и залов определяются в соответствии с конкретными ситуациями.

· Из вспомогательных помещений, помимо блоков обслуживания залов и ванн бассейна, рекомендуется предусматривать помещения для отдыха занимающихся и медико-восстановительный центр, который может состоять из одной камеры сухого жара с массажной.

· Расширение набора основных и вспомогательных помещений происходит за счет наращивания количества залов и (или) ванн бассейна с соответствующим дроблением функций для того или иного вида занятий, а также включения в комплекс помещений досугового, реабилитационного или иного назначения.

СОСТАВ И ВНУТРЕННИЕ СВЯЗИ

· Залы и помещения, предназначенные для физкультурно-оздоровительных занятий инвалидов, могут размещаться в составе спортивных корпусов, быть встроенными в здания другого назначения или пристроенными к ним, а также размещаться в отдельно стоящих зданиях.

· Особенности инвалидов различных категорий влияют на функциональный состав и связи внутри здания. Так, необходимо предусматривать кратчайшие пути передвижения от вспомогательных к основным помещениям. Недопустимо их размещение на разных отметках. В составе раздевальных должны предусматриваться специальные помещения для переодевания инвалидов с помощниками. Во вспомогательных и основных помещениях выделяются специальные зоны или отдельные помещения для хранения вспомогательных средств передвижения.

· Максимально приближенным к местам занятий должно быть помещение первой медицинской помощи. Помимо этого рекомендуется предусматривать блок медико-восстановительных помещений, в состав которого должны входить минимально возможный набор медицинских кабинетов и процедурных, а также как непременный элемент - сауна в блоке с массажной.

· Связи блоков вспомогательных помещений, размещаемых отдельно от открытых плоскостных сооружений, также должны быть кратчайшими. Места занятий на открытых сооружениях должны размещаться компактно, иметь прямые связи между собой, при этом должна быть обеспечена их изоляция в соответствии с функциональными требованиями.

ЗАЛЫ

· Основные габариты залов для физкультурно-оздоровительных занятий инвалидов складываются из размеров площадок для игр и занятий, необходимых зон безопасности и площади для размещения вспомогательного оборудования для передвижения и ориентации.

· Размеры и единовременную пропускную способность помещений в зависимости от назначения по виду проводимых занятий следует принимать по табл. 2 (см. [8 - 15]).

Таблица 2

№ п.п.

Виды занятий (игр)

Строительные размеры

Пропускная способность, чел/смена

Категория инвалидов

длина

ширина

высота

1

2

3

4

5

6

7

1

Общая физическая подготовка

24

12

6

 

ДЗ, ПОДА, ДС

2

Общая физическая подготовка с элементами игр

30

15

6

 

ДЗ, ПОДА, ДС

3

Занятия на тренажерах

12

6

4

10

ДЗ, ПОДА, ДС

 

 

15

9

4

15

 

4

Мяч через шнур

24

12

6

4

ПОДА

5

Мяч сидя

15

12

6

8

ПОДА, ДЗ

6

Гандбол через сетку

36

15

6

20

ПОДА

7

Футбол-теннис

24

12

6

8

«

8

Прельбол

21

12

6

8

«

9

Ринг-теннис

18

9

6

4

ПОДА, ДЗ

10

Бадминтон-теннис

18

12

6

4

ПОДА, ДЗ

11

Метание в кегли

18

12

6

20

ПОДА

12

Боча

30

18

6

8

«

13

Боссель в зале

18

9

6

8

«

14

Малые игры, танцы, ритмика

27

15

12

12

15

6

15 - 6

ПОДА, ДЗ

15

Малые игры с мячом, скейтборд

27

15

6

15

ДЗ

ГАБАРИТЫ И ПРОПУСКНАЯ СПОСОБНОСТЬ БАССЕЙНОВ

· Номенклатура основных типов ванн для физкультурно-оздоровительных занятий инвалидов определяется в соответствии с методическими и антропометрическими требованиями. Размеры и пропускная способность ванн приведены в табл. 3

Таблица 3

Ванна

Габариты в плане, м

Глубина, м

Пропускная способность, чел/смена

Примечания

 

Оздоровительно-терапевтическая

А 3´7

0,25 - 1,35

2

А и Б - инвалиды с ПОДА, желательно применение подъемного дна

 

Б 6´12

0,6 - 0,85

12

 

Плескательная свободной формы

15 - 35 м2

0 - 0,4

3 - 6

Для детей младшего возраста

 

Дети 6 - 12 лет

Более 25 м2

0,7 - 1,0

от 6

Учебная для обучения плаванию

А 6´10

0,6 - 1,35

10

А - для детей всех категорий инвалидности; Б - для взрослых

 

Б 8´16,6

0,8 - 1,35

24

 

Физкультурно-оздоровительная для оздоровительного плавания

А 8´16,6

0,9 - 1,45

24

А - для всех, кроме инвалидов с параличом нижних конечностей; Б - для всех категорий

 

Б 11´25

1,2 - 1,45

40

 

· Размеры и пропускная способность открытых площадок и ванн бассейнов принимаются в соответствии с приведенными выше данными для крытых сооружений.

Залы для физкультурно-оздоровительных занятий

ОСНОВНЫЕ ТРЕБОВАНИЯ

· Залы для физкультурно-оздоровительных занятий людей с физическими недостатками должны удовлетворять требованиям соответствующего пособия к СНиП 2.08.02-89* «Общественные здания и сооружения».

· В целях безопасности стены залов должны быть абсолютно гладкими, без уступов. Все детали крепления оборудования, выключатели и регуляторы должны закладываться заподлицо в стены. При расстановке оборудования и тренажеров следует учитывать зоны безопасности и подъезды для инвалидов на колясках.

· Для занятий людей с полной или частичной потерей зрения не рекомендуется использование отдельных площадок и зон, выгороженных в многосекционных залах перегородками, не обеспечивающими акустической изоляции. В спортивных залах, предназначенных для этих категорий людей, следует предусматривать звукопоглощающие акустические потолки, а на стенах залов - обшивку мягкими и упругими материалами на высоту не менее 2 м от пола и установку горизонтальных поручней на высоте 0,9 м.

ЗАЛЫ ДЛЯ ИНВАЛИДОВ С ДЕФЕКТАМИ ЗРЕНИЯ

· Для слепых и ограниченно зрячих (ОЗ) главной задачей является обучение координации движений и ориентации в пространстве. Слепые и ОЗ ориентируются преимущественно с помощью акустических средств, тактильной и интенсивной цветовой маркировки. Поэтому спортивные площадки должны иметь выпуклую или вогнутую поверхность, ярко окрашенную разметку пола, соответствующую виду игры.

Варианты решения игровых залов для людей с дефектами зрения

A. Зал для игры с мячом:

1 - ниша для стационарного оборудования (высота 200 см); 2 - снаряды для лазания; 3 - щит баскетбольный с перестановкой по высоте; 4 - полоса ориентации; 5 - площадка для волейбола; 6 - площадка для мини-футбола.

Б. Устройство зон ориентации по Шооту:

1 - вход; 2 - зона ориентации; 3 - зона внимания; 4 - зона безопасности и ориентации (ширина 100 см).

Зоны должны иметь различные структуру и цвет, для обозначения игровых полей рекомендуется укладка матов.

B. Гимнастический зал:

1 - полоса ориентации (ширина 110 см); 2 - обходная дорожка (ширина 90 см); 3 - площадка для гимнастических упражнений (10´10 м).

Г. Многофункциональный зал:

1 - вход; 2 - обходная дорожка (ширина 120 см); 3 - полоса ориентации (ширина 120 см); 4 - игровая площадка 12´24 м; общая площадь зала 30´18 м2; высота зала 5,5 м

ЗАЛЫ ДЛЯ ОФП

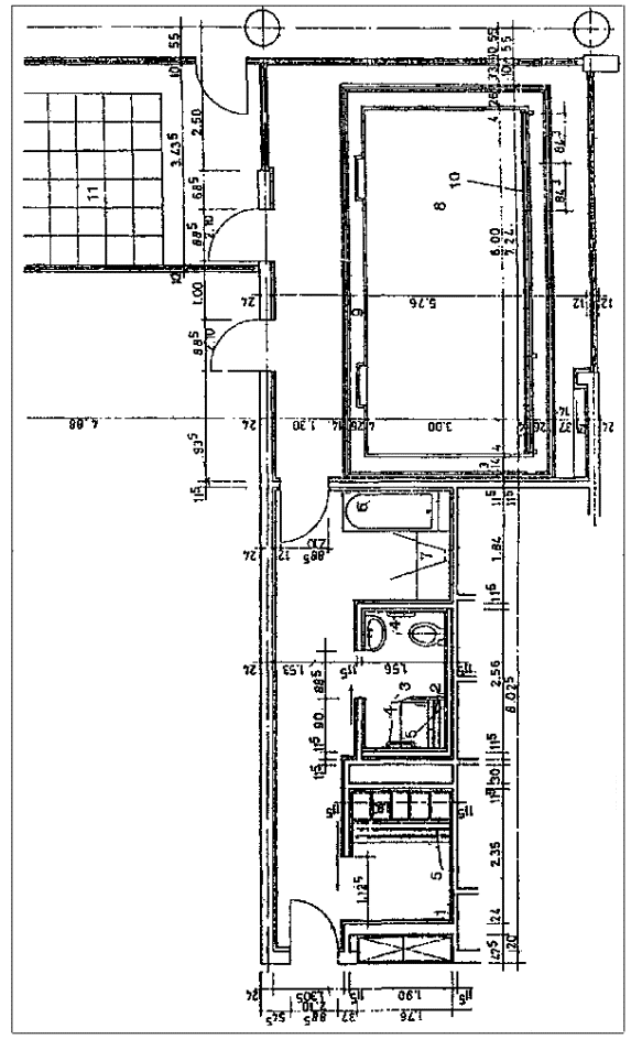
· В зале размером 24´12 м для физкультурно-оздоровительных занятий инвалидов с поражением опорно-двигательного аппарата выделено две зоны: для укрепляющих упражнений без использования спортивных снарядов и зона тренажеров. Расстановка оборудования обеспечивает возможность проезда инвалидного кресла во всех зонах зала. Вдоль стен зала на свободных от оборудования участках предусмотрен поручень для удобства передвижения инвалидов с ослабленным зрением. Для самоконтроля инвалидов по стене зала предусмотрена установка зеркала.

Спецификация оборудования к залу размером 24´12 м для ОФП:

1 - гимнастическая стенка; 2 - велотренажер «Здоровье»; 3 - приспособление «Скамья универсальная»; 4 - тренажер для бега; 5 - тренажер «Спортивные качели»; 6 - тренажер «Стенка»; 7 - скамейка гимнастическая; 8 - снаряды подвесные гимнастические; 9 - рукоход подвесной; 10 - станок для упражнений в ходьбе напольный; 11 - станок пристенный; 12 - зеркало; 13 - место тренера; 14 - ковер

ЗАЛЫ ДЛЯ ТРЕНАЖЕРОВ

· В зале размером 9´15 м для специальной физической подготовки инвалидов проводится разработка отдельных суставов, «накачка» определенных групп мышц. Для этого в зале установлен ряд специальных тренажеров. Рабочие зоны тренажеров расширены по сравнению с сооружениями общего пользования. Кроме того, в зале предусмотрена специальная информационная дорожка для инвалидов с ДЗ.

А. Оборудование к залу размером 9´15 м для тренажеров:

1 - тренажер для развития мышц; 2 - тренажер «Горка»; 3- приспособление «Скамья универсальная»; 4 - тренажер для бега; 5 - велотренажер «Здоровье»; 6 - стойки для приседания со штангой; 7 - скамья для жима лежа; 8 - стеллаж для гантелей; 9 - стеллаж для штанг; 10 - тренажер «Стенка»; 11 - тренажер для развития мышц; 12 - тренажер для плечевого пояса; 13 - тренажер для мышц спины.

Б. Информационная полоса

Бассейны для физкультурно-оздоровительных занятий

ОСНОВНЫЕ ТРЕБОВАНИЯ

· По периметру ванн бассейнов следует предусматривать обходную дорожку шириной не менее: для открытых бассейнов - 2,5 м, для бассейнов в залах - 2 м. Ширина дорожки со стороны стартовых тумбочек и выходов из раздевальных помещений должна быть не менее 3,5 м.

· Вдоль стен зала бассейна и на входах в зал из помещений для переодевания и душевых следует устанавливать горизонтальные поручни на высоте от пола в пределах от 0,9 до 1,2 м, а в залах с бассейном для детей - на уровне 0,5 м от пола.

· По внешнему периметру обходных дорожек вокруг открытых бассейнов следует предусматривать ограждения высотой не менее 1 м с поручнями.

· В мелкой части ванны бассейна для спуска в воду следует устраивать лестницу шириной не менее 0,9 м, с шириной проступей не менее 0,3 м и высотой подступенков не более 0,14 м. Лестница должна иметь стационарные поручни.

· Для спуска в воду и подъема из нее инвалидов с поражениями опорно-двигательного аппарата следует использовать желоба или специальные подъемники.

· В бассейнах, предназначенных для инвалидов, не рекомендуется устраивать ножные проходные души на выходах из раздевальных. Вместо этого желательно предусмотреть коврик, пропитанный антисептическим составом. В местах, где ножные проходные души уже оборудованы (при реконструкции существующих сооружений), возможно устройство их объезда.

· На обходных дорожках рекомендуется устанавливать стационарные скамьи с подогревом для отдыха занимающихся.

· В любом случае, устанавливаемое на обходных дорожках оборудование не должно уменьшать минимально рекомендуемой ширины прохода.

ТЕРАПЕВТИЧЕСКИЕ ВАННЫ

· В ваннах терапевтического и двигательно-оздоровительного назначения по периметру устраивается борт высотой 0,65 м. С одной длинной стороны ванны уровень обходной дорожки понижен на 0,15 м для работы врача или инструктора. Вне габаритов ванны следует предусматривать пологую лестницу для спуска в воду.

· Терапевтические ванны следует оборудовать двигающимися по укрепленному на стенах (потолке) монорельсу подвесными вспомогательными средствами.

Вариант решения ванны для терапевтических занятий:

1 - отметка зеркала воды +0,5 м; 2 - место расположения монорельса тельфера; 3 - поручень

ДЕТСКИЕ ВАННЫ

· В состав оздоровительного бассейна для детей рекомендуется включать дополнительные ванны для адаптации детей к воде и игровой зал подготовительных занятий.

Пример решения бассейна для обучения детей плаванию начиная с раннего возраста:

1 - раздевалка со шкафчиками для хранения одежды; 2 - душ; 3 - слив; 4 - поручни; 5 - решетчатая скамья; 6 - бытовая ванна для приучения к воде детей раннего возраста; 7 - пеленальный столик; 8 - ванна для плавания; 9 - обходная дорожка; 10 - шведская стенка для гимнастических упражнений в воде; 11 - игровая комната

ДЕТАЛИ И ЭЛЕМЕНТЫ ВАНН

· Борта ванн бассейнов должны позволять инвалиду самостоятельно спуститься в воду или выйти на обходную дорожку. Для этого в мелком конце досуговой ванны может предусматриваться пологий спуск. Кроме того, конструкция бортов должна соответствовать функциональному назначению бассейна.

· Все пандусы в мокром состоянии могут представлять опасность. Уклон 1:15 труднопреодолим, предпочтительно иметь уклон 1:20.

· Примеры решений элементов ванн досуговых бассейнов приведены ниже.

А, Б. Бассейны без волнообразования. В. Учебный бассейн, где турбулентные движения слабы при работе волновой машины. Г. Необходимо устройство выступа для отделения обходной дорожки (1) от сухой общественной зоны (2). Выступ задерживает воду (3) при работе волновой машины. Д. Фрагменты бортов ванн:

1 - пандус; 2 - обходная дорожка; 3 - камера волнообразующей машины; 4 - высота борта (зависит от волн); 5 - нормальный уровень воды

ДЕТАЛИ И ЭЛЕМЕНТЫ ДЕТСКИХ ВАНН

· Для детей слепых и ограниченно зрячих необходима тактильная и цветовая разметка пола для ориентации в помещении.

· Спуски в воду устраиваются разных видов:

А - пологая лестница в мелкой части ванны, углубленная в нишу;

Б - вертикальная лестница с поручнями, уходящими в воду.

Дети с тяжелыми формами инвалидности нуждаются в устройстве таких же типов подъемников, как и в бассейнах для взрослых.

Вспомогательные помещения

РАЗДЕВАЛЬНЫЕ

· В физкультурно-оздоровительных сооружениях рекомендуется для инвалидов использовать раздевальные трех типов: общие, семейные, индивидуальные кабины для переодевания.

· При использовании общих раздевален необходимо учитывать, что проходы между скамьями для переодевания и шкафчиками для хранения одежды должны быть рассчитаны на свободный проезд инвалидной коляски. Шкафчики для хранения одежды должны быть в пределах досягаемости инвалидами разного возраста - от 300 до 1100 мм от пола.

Планировочные решения раздевальных

А. План. Б. Варианты размещения шкафов для переодевания в помещении:

1 - места для переодевания; 2 - обычный санузел и душевые; 3 - кабина для переодевания с душевой и санузлом; 4 - уширенная скамья для переодевания; размеры над чертой - для детей, под чертой - для взрослых

· В раздевальнях для детей-инвалидов желательно предусматривать отдельно стоящую скамью (шириной 600 - 900 мм, длиной до 2500 мм) или место для поролоновых матов для переодевания лежа в полный рост.

· Во всех досуговых сооружениях удобным типом раздевален являются кабины для переодевания, в которых вместе с ребенком может находиться помощник любого пола. Такие раздевальни получили название «семейных». В специальных учреждениях для детей-инвалидов тип раздевальни при залах для физкультурно-оздоровительных занятий и открытых площадках определяется количеством обслуживаемых детей, видом и степенью инвалидности.

Планировочные решения душевых

А. Пример индивидуальной кабины для переодевания. Б. Блок проходных душевых. В. Разрез по кабине:

1 - место хранения пересадочной коляски; 2 - санитарные узлы; 3 - душевые; 4 - скамьи для переодевания

МЕДИКО-ВОССТАНОВИТЕЛЬНЫЙ ЦЕНТР

· В саунах между входной дверью и полками в парильной необходимо свободное пространство для въезда и поворота коляски - не менее круга диаметром 1,5 м. Размер двери в парильную - не менее 0,8 м в ширину. Рекомендуется устройство на этой двери наклонной длинной ручки по диагонали. Каменка должна быть защищена решеткой. Полки в парильной должны быть снабжены опорными поручнями. Рядом с парильной желательно предусматривать скамью для отдыха в душевой.

Планировки камер сухого жара:

1 - каменка; 2 - полки; 3 - поручень; 4 - душевая сетка; 5 - скамья для отдыха; 6 - место для инвалидной коляски

САНИТАРНО-ГИГИЕНИЧЕСКИЕ ПОМЕЩЕНИЯ

· В центрах досуга, клубах и спортивных сооружениях в многоместной туалетной комнате должна быть предусмотрена кабина достаточного размера для пользователя инвалидным креслом или, по крайней мере, оснащенная опорным поручнем по всему периметру.

· Опорные поручни устанавливаются с учетом разновозрастных пользователей на высоте 500 - 650 - 900 мм от пола.

· В туалетах, рассчитанных на детей-инвалидов, необходимо устанавливать унитазы разной высоты и размеров: от детских (высотой 250 - 340 мм) до взрослых (высотой 450 - 500 мм).

· Рукомойные раковины также полезно устанавливать на разной высоте для удобства пользователей разного возраста и степени инвалидности - от 650 до 900 мм.

· Параметры санитарно-гигиенических помещений и их оборудование подробно представлены в выпуске 1 рекомендаций «Общие положения» (см. прил.).

Параметры внутренней среды помещений

ТРЕБОВАНИЯ К ЦВЕТУ, АКУСТИКЕ, ОСВЕЩЕННОСТИ

· Различные виды инвалидности могут сопровождаться длительным общим или частичным лишением восприятия цвета. Кроме того, цвет играет важнейшую роль в системе ориентации и информации для инвалидов с частичной потерей зрения и для глухих. Следовательно, цветовое решение залов имеет большое значение для занимающихся.

· Желательно применять чистые, независящие от качества освещения контрастные цвета: пол - голубой (желтый), стены - желтые (голубые). Для тренажерных залов и помещений возможен вариант окраски пола в зеленый (красно-коричневый) цвет, а стен - в красно-коричневый (зеленый).

· Для указателей, маркировок и других ориентиров в залах рекомендуются сочетания голубого, черного, зеленого, красного с белым или желтого с черным. Цветом следует выражать функциональную особенность помещения и инвентаря (мячи - желтые или красные, силовые тренажеры - голубой, зеленый).

· Предупредительные цветовые маркировки и ориентиры устраиваются для игровых зон, ограничения площади мобильного оборудования, выделения кромки ванны бассейна (ширина полосы около 300 мм), а также для выявления функционально важных элементов помещений и узлов спортивного инвентаря (например: входы и выходы, центровка трамплина, дорожка для разбега и др.).

· Наряду с приведенными выше рекомендациями при выборе цветовых средств следует также руководствоваться такими общими критериями, как фоновый контраст (стены светлые - мяч темный) и коэффициент отражения. Его средняя величина r = 0,45.

· Акустическое решение физкультурно-оздоровительных залов и залов ванн бассейнов очень важно как для инвалидов с дефектами слуха, так и для инвалидов по зрению.

· Для инвалидов с дефектами слуха отвечающий их потребностям акустический режим требует обеспечения коротких периодов реверберации (2,5 с выше уровня 500 Гц) и низких уровней шумов в зале (звукоизоляция вентиляции и ударного шума).

· Объемы залов должны быть минимально необходимыми по технологическим и медико-гигиеническим требованиям. Рекомендуется применять перфорированный или слоистый акустический потолок.

· Для людей с полной потерей зрения звук является источником ориентации. Необходима повышенная звукоизоляция зон активности (залов и других помещений). Отделочные материалы должны иметь высокие звукопоглощающие свойства. Кроме того, необходима и звукоизоляция извне (от уличных или иных шумов). Для физкультурно-оздоровительных занятий предпочтительно использовать залы без трибун, так как они, искажая отраженный звук, могут способствовать потере ориентации.

· Залы для физкультурно-оздоровительных занятий и залы ванн бассейнов должны иметь естественное освещение, проектируемое в соответствии с рекомендациями пособий к СНиП 2.08.02-89* «Общественные здания и сооружения». Спектр дополнительного искусственного освещения рекомендуется максимально приближать к дневному освещению.

· Качественное, небликующее освещение зала необходимо для правильного восприятия визуальной информации и для понимания сигнальных указаний.

· Рекомендуется минимальная освещенность 200 лк, обеспечивающая достаточные условия для проведения физкультурно-оздоровительных и игровых занятий.

· Для работы многофункциональных залов желательно обеспечить переключение осветительной системы отдельных зон в пределах 200 - 600 лк (для физкультурно-оздоровительных занятий обычно достаточно 300 - 400 лк).

· Для большинства людей с частичной потерей зрения очень важно качество освещения. Следует избегать чрезмерной яркости и блеска световой арматуры, окон большой площади или слишком отражающих поверхностей.

· Как правило, сочетание применяемых в зале цветов должно обеспечивать, с одной стороны, состояние успокоенности и концентрации, с другой - активизацию деятельности. Поэтому эмоционально возбуждающие красный и оранжевый цвета следует применять лишь в зонах кратковременного (до 10 мин) пребывания занимающихся, например, у отдельного тренажера для развития двигательной активности.

Приложение

ОБЩИЙ ПЕРЕЧЕНЬ РЕКОМЕНДАЦИЙ ПО ПРОЕКТИРОВАНИЮ ОКРУЖАЮЩЕЙ СРЕДЫ, ЗДАНИЙ И СООРУЖЕНИЙ С УЧЕТОМ ПОТРЕБНОСТЕЙ ИНВАЛИДОВ И ДРУГИХ МАЛОМОБИЛЬНЫХ ГРУПП НАСЕЛЕНИЯ

Номер выпуска

Наименование выпуска

1

Общие положения

2

Градостроительные требования

3

Жилые здания и комплексы

4

Общественные здания и сооружения. Учреждения бытового обслуживания населения и общественного питания

5

Общественные здания и сооружения. Учреждения торговли

6

Общественные здания и сооружения. Специализированные детские дошкольные учреждения

7

Общественные здания и сооружения. Учреждения учебно-воспитательные: общеобразовательные школы и профессиональные учебные заведения

8

Общественные здания и сооружения. Высшие учебные заведения

9

Общественные здания и сооружения. Стационарные коррекционные учреждения для детей-инвалидов: дома-интернаты, школы-интернаты

10

Общественные здания и сооружения. Учреждения лечебно-профилактические: поликлиники, аптеки

11

Общественные здания и сооружения. Учреждения санаторно-курортного лечения и отдыха

12

Общественные здания и сооружения. Спортивные сооружения

13

Общественные здания и сооружения. Физкультурно-оздоровительные сооружения

14

Общественные здания и сооружения. Кинотеатры, клубы, библиотеки, музеи

15

Общественные здания и сооружения. Театры, театры-студии, цирки, спортивно-зрелищные залы, стадионы

16

Общественные здания и сооружения. Учреждения управления и информации, проектные и научно-исследовательские организации

17

Общественные здания и сооружения. Учреждения кредитно-финансовые

18

Общественные здания и сооружения. Культовые здания и сооружения различных конфессий

19

Общественные здания и сооружения. Здания и сооружения транспортного назначения

20

Промышленные предприятия, здания и сооружения для труда инвалидов различных категорий

21

Реконструкция и модернизация зданий и сооружений

22

Мероприятия по обеспечению эвакуации инвалидов в экстремальных условиях

Список литературы

1. Применение тренажеров в физическом воспитании школьников: Методические рекомендации. - Горький, 1979.

2. Горошников Е.И., Иванов М.М. Спортивные игры для незрячих. - М.: ВОС, 1988.

3. Положение о спортивных соревнованиях Всероссийского общества слепых на 1989 - 1992 гг. - М., 1989.

4. Правила по легкой атлетике и плаванию. - М.: ВОС, 1987.

5. Правила соревнований для больных параплегией. - Чехословацкий союз физкультуры и спорта, 1985.

6. Требования к спортивным сооружениям, предназначенным для занятий инвалидов. Организация и проведение соревнований среди инвалидов с поражениями опорно-двигательного аппарата. - М.: ВНИИФК, 1988.

7. Физическая культура и спорт инвалидов с дефектами опорно-двигательного аппарата: Методические рекомендации. - Л.: ВСДФСО профсоюзов, 1988.

8. Design with care. A guide to adaptation of the built environment for disabled persons, UN (IYDP), 1981.

9. Durlech F. - T. Einrichtungen fur Sport mit Behingen. T.2, Help 99. - Berlin, 1981.

10. Hulsel-Eisbingen W, Einrhtungen fur Spid und Sport mit Behinderten. - Berlin, 1982.

11. International Conference on Reabilitation of Disabled Children. Present state and Future Trends. - Nallin, 1989.

12. Richer T. Die Integration der Spielplatz. - Nene Heimat, 1981, № 11, S. 53 - 54.

13. Behindertengerechte. Sport - und Freizeitanlagen/ Hrgs. F. Roskam, P. van der Schoot. IAKS, Koin, 1982.

14. Einrichtungen fur Spiel und Sport mit Behinderten. Planungshinweise. U. 1 - 4. В., 1983.

15. Sport and Recreation Provision for Disabled People/ Ed. by N. Thomson, 1984.

СОДЕРЖАНИЕ

Предисловие. 1

Общие положения. 2

Общие требования к территории. 3

Открытые плоскостные сооружения. 4

Детские физкультурно-игровые сооружения. 7

Основные функциональные блоки. 14

Залы для физкультурно-оздоровительных занятий. 16

Бассейны для физкультурно-оздоровительных занятий. 18

Вспомогательные помещения. 22

Параметры внутренней среды помещений. 24

Приложение Общий перечень рекомендаций по проектированию окружающей среды, зданий и сооружений с учетом потребностей инвалидов и других маломобильных групп населения. 25

Список литературы.. 25

 



© 2013 Ёшкин Кот :-)