Информационная система
«Ёшкин Кот»

XXXecatmenu

МИНИСТЕРСТВО МОРСКОГО ФЛОТА

РЕКОМЕНДАЦИИ

ПО ПРОЕКТИРОВАНИЮ И ТЕХНОЛОГИИ СТРОИТЕЛЬСТВА
ОГРАДИТЕЛЬНЫХ СООРУЖЕНИЙ ИЗ НАБРОСКИ С ЖЕСТКИМ
ЭКРАНОМ

РД 31.31.86-85

ЛЕНИНГРАД

1986

РАЗРАБОТАН                  Государственным проектно-изыскательским и научно-исследовательским институтом морского транспорта «Союзморниипроект»

Ленинградским филиалом «Ленморниипроект»

Гл. инженер Ленморниипроекта - В. А. Фирсов

Начальник сектора стандартизации - В. Г. Дементьев

Руководитель темы, директор Ленморниипроекта А. Ф. Парфенов

Ответственный исполнитель, гл. специалист, к.т.н. А. К. Кривов

Соисполнитель: ВНИИС Минтрансстроя

Зав. отделом гидротехнических сооружений, доктор технических наук А. И. Кузнецов

УТВЕРЖДЕН                   Распоряжением Государственного проектно-изыскательского и научно-исследовательского института морского транспорта «Союзморниипроект»

№ 9 от 6 февраля 1986 г.

РЕКОМЕНДАЦИИ ПО ПРОЕКТИРОВАНИЮ И ТЕХНОЛОГИИ СТРОИТЕЛЬСТВА ОГРАДИТЕЛЬНЫХ СООРУЖЕНИЙ ИЗ НАБРОСКИ С ЖЕСТКИМ ЭКРАНОМ

РД 31.31.36-85

Вводится впервые

Срок введения в действие

установлен с 1 мая 1986 г.

Настоящие Рекомендации распространяются на опытное проектирование и строительство вновь возводимых оградительных сооружений из массивовой наброски с жестким экраном, а также на реконструкцию оградительных сооружений типа вертикальной стенки при устройстве перед ней защитной наброски.

Рекомендации содержат указания по расчету, конструированию и технологии строительства сооружений и их элементов, и должны использоваться совместно с указаниями документов, перечисленных в справочном приложении 2.

1. ОБЩИЕ ПОЛОЖЕНИЯ

1.1. Поперечное сечение сооружений из наброски с жестким экраном конструктивно решается в виде традиционного откосного оградительного сооружения с ядром из камня соответствующих размеров и защитным слоем из бетонных массивов, а со стороны гавани - в виде вертикальной стенки, являющейся непроницаемым экраном для волн и наносов (рис. 1).

1.2. Набросные сооружения с жестким экраном следует применять в районах с толщиной льда не более 1,0 м для глубин на акватории, до 12,0 м, при расчетных волнах высотой до 6,0 м и грунтах основания, осадка которых под подошвой экрана при эксплуатации не превышает 0,50 м.

Если стенка экрана используется как причал, то ограничения по осадке необходимо принимать как для причальных сооружений.

Рис. 1. Схема сооружения:

1 - каменная постель; 2 - ядро наброски; 3 - защитная наброска; 4 - экран; 5 - упорный тетрапод

1.3. Обеспеченность расчетного уровня должна приниматься не более 5 % (1 раз в 20 лет).

1.4. При определении элементов ветровых волн следует принимать обеспеченность расчетного шторма 2 % (1 раз в 50 лет), и обеспеченность волн в системе 2 %.

1.5. В качестве экрана может быть применено гравитационное или свайное сооружение любой традиционной конструкции, экономическая и технологическая эффективность которой обоснованы.

Рекомендуются облегченные бетонные и железобетонные конструкции экрана ящичного или уголкового типа.

1.6. Головные и корневые участки сооружений следует проектировать, руководствуясь указаниями, разработанными для набросных оградительных сооружений традиционной конструкции.

1.7. Материалы, применяемые для строительства сооружений, должны отвечать требованиям нормативных документов.

2. РЕКОМЕНДАЦИИ ПО КОНСТРУИРОВАНИЮ СООРУЖЕНИЙ

2.1. Габариты и конструкция защитной наброски

2.1.1. Габариты защитной наброски определяются отметкой и шириной ее гребня, величины которых назначаются в зависимости от характеристики расчетной волны и отметки расчетного уровня воды (рис. 2).

2.1.2. Возвышение гребня наброски над расчетным уровнем воды следует принимать равным высоте волны (Zг = h).

2.1.3. Ширину гребня наброски bг следует определять по формуле

,                                                               (1)

где    l - длина волны.

Ширина гребня не должна быть менее удвоенного размера отдельного элемента защитного слоя.

Рис. 2. Схема оградительного сооружения:

1 - песчаный грунт (замена грунта); 2 - обратный фильтр (щебень, гравий); 3 - камень массой 30 - 100 кг; 4 - камень крупный массой более 800 кг; 5 - камень массой более 1500 кг; 6 - тетраподы; 7 - железобетонные массивы; 8 - песчаный грунт

2.1.4. Заложение откосов наброски их массивов (обыкновенных и фасонных) следует принимать равным m1 = 1, заложение откоса каменного ядра следует принимать равной m1 = 1,25.

При специальном обосновании допускается увеличивать заложение откосов до m = 2.

2.1.5. Для ядра следует применять крупные сортированные камни. Объем каждого камня ядра наброски должен обеспечивать его устойчивость в процессе строительства при воздействии волн с обеспеченностью 10 % в режиме и 1 % в системе, но по объему не должен быть менее

,                                                              (2)

где    КV - коэффициент пропорциональности разный 0,1 м2;

h - высота волны в м.

При отсутствии камня необходимых размеров допускается для ядра применять обыкновенные массивы или фасонные массивы, предназначенные для защитного слоя.

2.1.6. Для защитного слоя следует применять фасонные массивы-тетраподы или гексабиты. При соответствующем обосновании допускается применение обыкновенных массивов.

2.1.7. При подсчете объемов строительных работ и назначении профиля сооружения пористость наброски следует принимать по данным табл. 1 (извлечение из СН-288-64 и [14]).

Таблица 1

Наименование элементов наброски

Пористость, %

Несортированный камень

41-44

Сортированный камень

44-48

Наброска из массивов двух крупностей

48-50

То же, одной крупности

54-58

Наброска и укладка тетраподов

58-60

Наброска и укладка гексабитов

60-65

2.1.8. Толщину защитного слоя наброски из тетраподов рекомендуется принимать равной их полуторной высоте; из обыкновенных массивов - двойной высоте. Защитное покрытие из гексабитов следует выполнять укладкой их в два слоя. При этом общая толщина защитного покрытия определяется по формуле

,                                                            (3)

где    G - масса гексабита в т;

g - объемная масса бетона.

2.1.9. Рекомендуется в основании защитного покрытия устройство упора из массивов с массой в 1,5 раза большей массы массивов защитного покрытия или из спаренных массивов (массивов, соединенных между собой стальными звеньями) с массой каждого, равной массе массивов защитного покрытия (рис. 1).

2.1.10. При отсутствии размывающего течения, направленного вдоль сооружения, укреплять дно перед постелью сооружения не рекомендуется.

2.2. Конструкции постели сооружения

2.2.1. Основные назначения постели (см. рис. 2) следующие:

а) распределение давлений от экрана и наброски на большую площадь естественного основания;

б) защита естественного основания от разрыва;

в) предохранение слабого основания от выноса частиц грунта фильтрационной водой при обжатии основания сооружением;

г) выравнивание дна.

2.2.2. Общая ширина постели назначается с учетом технологии возведения сооружения, принятой конструкции экрана, и обеспечения его устойчивости, что проверяется расчетом.

2.2.3. Размеры берм каменной постели а1 и а3 не должны быть менее 2,0 м; размер бермы со стороны гавани а3 уточняется расчетом устойчивости жесткого экрана.

2.2.4. Отметка верха каменной постели и ее толщина t3 назначаются, исходя из следующих условий:

а) толщина постели t3 должна быть не менее 1,5 м, включая обратный фильтр толщиной не менее 0,50 м;

б) в период строительства камень массой 10-100 кг в верхнем слое должен быть устойчивым;

в) при необходимости вблизи экрана со стороны газани должны быть глубины, позволяющие проходить судам с заданной осадкой.

2.2.5. На бермах и откосах постели со стороны моря отсыпается камень, масса которого определяется из расчета устойчивости его против размыва.

2.2.6. Размер а2 участка постели, укрепленного крупным камнем, не должен быть менее 4,0 м. Толщина слоя t2 крупного камня должна быть не менее 2,5 диаметра расчетного камня, приведенного к шару, но не менее 1,0 м.

2.2.7. Уплотнение каменной постели производить не требуется. Равнение постели на участках установки элементов жесткого экрана должно быть тщательное или весьма тщательное (в зависимости от конструкции экрана), на остальных участках - грубое.

2.2.8. При слабых грунтах основания (илах) под слоем обратного фильтра необходимо отсыпать песчаную подушку или производить замену грунта.

2.2.9. Ширина горизонтального участка песчаной присыпки а4, толщина песчаной подушки или слоя заменяемого грунта t4 и ширина дна котловины а5 определяются расчетам устойчивости сооружения.

2.2.10. Предварительно толщина песчаной подушки принимается по данным таблицы 2.

Таблица 2

Давление на песчаную подушку

в МПа

Толщина песчаной подушки

в м

Менее 0,15

2,5

0,15 - 0,20

2,5 - 3,0

0,25 - 0,30

3,0 - 4,0

2.3. Конструкции жесткого экрана

2.3.1. Общая характеристика конструкций

2.3.1.1. Рекомендуемые конструкции жестких экранов состоят из бетонных и железобетонных пустотелых массивов ящичного типа и имеют горизонтальное членение по высоте, что обеспечивает технологичность их возведения в условиях открытого для волнения побережья.

2.3.1.2. Установка массивов должна быть столбчатой, обеспечивающей малую чувствительность конструкции к возможным осадкам, что свойственно набросным сооружениям.

2.3.1.3. Рекомендуется лицевую стенку (со стороны гавани) жесткого экрана располагать не строго вертикально, а наклоненной к вертикали в сторону внешней акватории на угол b = 2-3°, за счет наклона поверхности постели или за счет соответствующей формы элементов и способа их установки.

2.3.2. Экран из бетонных и железобетонных пустотелых массивов заполненных камнем

2.3.2.1. Конструкция экрана состоит из столбчатой кладки пустотелых бетонных или железобетонных массивов без днища, тыловая (со стороны наброски) стенка которых делается с перфорацией в размере 30-50 %.

Полость массивов заполняется камнем с массой 30-100 кг (рис. 3 и 4).

2.3.2.2. Пустотелые массивы следует изготовлять из монолитного бетона или из сборных железобетонных элементов.

Все стенки железобетонных массивов и перфорированная тыловая стенка бетонных массивов должны иметь расчетную арматуру.

Допускается конструктивное армирование боковых стенок бетонных массивов.

2.3.2.3. Конструкция верхнего курса массивов назначается с учетом технологических и эксплуатационных требований и может быть решена в виде стенки уголкового или иного профиля.

2.3.2.4. Размеры массивов следует принимать максимальными по допустимым условиям транспортировки и укладки их подъемно-транспортным оборудованием.

Рис. 3. Сооружение с экраном из пустотелых бетонных массивов, заполненных камнем:

1 - обратный фильтр (щебень, гравий); 2 - камень массой 30 - 100 кг; 3 - камень крупный массой более 800 кг; 4 - упорный тетрапод; 5 - камень массой более 1500 кг; 6 - тетраподы; 7 - железобетонные массивы; 8 - камень заполнения

Рис. 4. Сооружение с экраном из пустотелых железобетонных массивов, заполненных камнем:

1 - обратный фильтр (щебень, гравий); 2 - камень массой 30 - 100 кг; 3 - камень крупный массой более 800 кг; 4 - упорный тетрапод; 5 - тетраподы; 6 - камень массой более 1500 кг; 7 - железобетонные массивы; 8 - камень заполнения

2.3.2.5. Минимальная толщина стенки пустотелого бетонного массива должна устанавливаться из условий его изготовления и требований долговечности, но должна быть не менее 500 мм. Принятая толщина должна быть проверена расчетом по указаниям РД 31.31.28-81.

Толщина стенок железобетонных пустотелых массивов определяется расчетом, но должна быть не менее 200 мм.

2.3.2.6. Рекомендуется назначать габариты массивов с таким расчетом, чтобы они могли быть изготовлены с применением одной той же опалубки.

2.3.2.7. Каждый верхний курс железобетонных пустотелых массивов устанавливается на поперечные стенки нижнего курса со сдвижкой в сторону моря на величину, обеспечивающую восприятие сжимающих напряжений в основании массива.

2.3.3. Экран из железобетонных пустотелых массивов с камерой гашения

2.3.3.1. Конструкция экрана состоит из столбчатой кладки пустотелых железобетонных массивов без днища, тыловая (со стороны наброски) стенка которых делается с перфорацией в размере 30-50 % и наклонена к горизонту на угол 45°. Полости массивов остаются заполненными, образуя камеру гашения для проникающих в них волн (рис. 5).

2.3.3.2. Для обеспечения устойчивости верхние курсы массивов смещены по отношению к нижним массивам в сторону внешней акватории и лицевые стенки нижних массивов служат упорами для верхних массивов.

2.3.3.3. По конструкции верхнего курса массивов руководствоваться указанием п. 2.3.2.3.

Рис. 5. Сооружение с экраном из железобетонных пустотелых массивов с камерой гашения:

1 - обратный фильтр (щебень, гравий); 2 - камень массой 30 - 100 кг; 3 - камень крупный массой более 960 кг; 4 - упорный тетрапод; 5 - тетраподы; 6 - железобетонный массив; 7 - камера гашения; 8 - железобетонная балка; 9 - поперечные стенки-рамы; 10 - рамы-перегородки.

2.3.3.4. При применении экрана этого типа в качестве защитного слоя применяется только укладка фасонных массивов. Пример применения железобетонного экрана с камерой гашения приведен в рекомендуемом приложении I.

3. РЕКОМЕНДАЦИИ ПО РАСЧЕТУ СООРУЖЕНИЙ

3.1. Состав расчетов

3.1.1. Сооружение и его элементы следует рассчитывать на воздействие следующих внешних сил:

а) давление и размывающее действие волны;

б) давление льда;

в) давление материала наброски;

г) навал судов или швартовные нагрузки;

д) собственный вес сооружения.

Конструкция жесткого экрана должна быть рассчитана на эксплуатационный и строительный случай.

3.1.2. При проектировании набросных оградительных сооружений с жестким экраном должны быть выполнены следующие расчеты:

а) расчет общей устойчивости всего набросного сооружения совместно с жестким экраном и постелью на глубинный сдвиг - скольжение по круглоцилиндрической поверхности;

б) расчет общей устойчивости жесткого экрана на скольжение по поверхности постели и на поворот вокруг переднего ребра;

в) расчет общей устойчивости жесткого экрана на глубинный сдвиг - скольжение по круглоцилиндрической поверхности или по ломаным поверхностям;

г) расчет напряжений в основании сооружения;

д) расчет устойчивости элементов наброски;

е) расчет прочности элементов конструкции жесткого экрана;

ж) при наличии в основании слабых сжимаемых грунтов необходимо выполнить расчет осадки сооружения во времени.

3.2. Нагрузки и воздействия

3.2.1. Ординаты эпюры горизонтального давления волны на вертикальный жесткий экран, защищенный наброской массивов, определяется по формуле

,                                                           (4)

где      Кc - коэффициент снижения для стоячих волн Кс = 0,6; для разбитых волн Кс = 0,5;

Рс - ордината давления, определяемая по рекомендациям СНиП 2.06.04-82, как для стоячих или разбитых волн (в зависимости от величины отношения глубины воды над бермой сооружения dbr к высоте волны h).

Полное горизонтальное давление волны Pbx равно

,                                                               (5)

где      Apbx - площадь эпюры горизонтального давления волны на вертикальный жесткий экран.

Такая же величина горизонтального волнового давления принимается действующей на вертикальную расчетную плоскость при расчете устойчивости жесткого экрана.

3.2.2. На конструкцию основания жесткого экрана уголкового типа без камеры гашения необходимо учитывать дополнительную нагрузку от вертикального давления волны Рby, которая принимается распределенной равномерно по ширине основания конструкции экрана.

С учетом взвешивающего давления интенсивность нагрузки определяется по формуле

,                                                           (6)

где    b1 - ширина основания конструкции жесткого экрана;

Кпл - коэффициент полноты конструкции основания жесткого экрана.

Величина коэффициента полноты определяется по формуле

,                                                            (7)

где     А% - процент перфораций плиты основания экрана, но не более процента пустот каменного ядра, расположенного в границах основания экрана.

3.2.3. На защищенную наброской фигурных массивов наклонную плиту конструкции жесткого экрана с камерой гашения ординаты эпюры давления волны определяются по формулам:

ординаты горизонтальной составляющей давления

,                                                  (8)

ординаты вертикальной составляющей давления

,                                                 (9)

где      Рс - ордината эпюры горизонтального волнового давления на вертикальный экран;

a - угол наклона стенки к горизонту.

3.2.4. Горизонтальное и вертикальное давление льда на откос сооружения с морской стороны определяется по указаниям СНиП 2.06.04-82 и «Руководства» к СНиП II-57-75 [12] для сооружений откосного профиля, принимая коэффициент податливости грунта К2 равным 3.

3.2.5. Давление льда на вертикальную стенку экрана со стороны гавани следует определять по указаниям СНиП 2.06.04-82.

3.2.6. Вертикальное давление наброски принимается как вес элементов наброски (с учетом их взвешивания ниже расчетного уровня воды), приходящийся на единицу площади. Процент пустот в наброске принимается по рекомендации п. 2.1.6 (табл. 1).

3.2.7. Расчетное значение горизонтального активного давления наброски Qa на вертикальный экран или на вертикальную расчетную плоскость определяется по формуле

,                                                 (10)

где    Н - высота расчетной плоскости;

g - объемная масса наброски (средневзвешенная);

lа - коэффициент активного давления наброски, принимаемый равным lа = 0,17;

gс - коэффициент условий работы, принимаемый по данным таблицы 3.

Таблица 3

Материал наброски

Коэффициент условия работы gс

Статическое давление

Совместное давление

Камень

1,0

1,0

Обыкновенные массивы

2,4

2,1

1,64

1,12

Тетраподы

2,17

0,79

Гексабиты

1,52

0,72

ПРИМЕЧАНИЯ: 1. Статическое давление - давление только наброски при отсутствии волнения или давление наброски и льда. Совместное давление - одновременное давление наброски и волны.

2. В числителе - для массивов с массой 4,5 т; в знаменателе - для массивов с массой 12,0 т. При других значениях массы массивов коэффициент gс принимается по интерполяции или по крайним значениям.

Если расчетная вертикальная плоскость пересекает откос наброски, то величину горизонтального активного давления Qa на эту плоскость (участок 1-2, рис. 6) следует определять по формуле

,                                                       (11)

где    G - вес призмы обрушения в объеме контура 1-2-3.

3.3. Методы расчета устойчивости сооружения

3.3.1. Расчет устойчивости сооружения следует производить, исходя из требований главы СНиП по проектированию оснований гидротехнических сооружений, выполняя основное ее условие

,                                                       (12)

где F и R - расчетные значения сдвигающих сил и сил предельного сопротивления грунта сдвигу;

gec - коэффициент сочетания нагрузок, принимаемый согласно требованиям главы СНиП по основным положениям проектирования гидротехнических сооружений;

gсу - коэффициент условий работы, принимаемый по таблице 4.

gп - коэффициент надежности сооружения по ответственности, который для сооружений I класса принимается равным 1,25, а II класса - 1,2.

Таблица 4

Характер потери устойчивости

Коэффициент условий работы gсу

Сдвиг по плоскости и глубинный сдвиг по ломанным (фиксированным) поверхностям

1,0

Глубинный сдвиг по круглоцилиндрическим поверхностям (при расчете по методу Крея-Терцаги)

1,2

Опрокидывание вокруг ребра вращения

0,75

Рис. 6. Схема определения активного давления наброски на расчетную плоскость, пересекающую откос наброски.

ПРИМЕЧАНИЕ. В соответствии с Приложением 6 главы СНиП на проектирование оснований гидротехнических сооружений при определении F и R для оценки устойчивости сооружения на глубинный сдвиг по круглоцилиндрическим поверхностям скольжения коэффициенты надежности по нагрузке, грунту и материалу следует принимать равным 1,0.

3.3.2. Общая устойчивость сооружения проверяется на действие наиболее неблагоприятного сочетания активных сил методом Крея-Терцаги (по круглоцилиндрическим поверхностям).

При этом рассматривается возможность потери устойчивости сооружения как в сторону гавани, так и в сторону моря (рис. 7). По результатам этих расчетов устанавливаются общие габариты сооружения и необходимый объем замены грунта.

3.3.3. Устойчивость жесткого экрана проверяется на скольжение по поверхности каменной постели, на скольжение совместно с постелью по поверхности грунта, на глубинный сдвиг и на поворот вокруг ребра (рис. 8).

Расчеты устойчивости экрана на скольжение по поверхности постели и по грунту совместно с постелью, а также на поворот вокруг переднего ребра следует производить по указаниям РД 31.31.27-81.

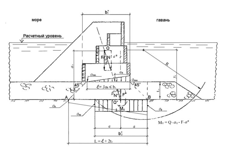
3.3.4. Расчет экрана на глубинный сдвиг производится после приведения основания жесткого экрана к фундаменту, расположенному на уровне подошвы каменной постели и имеющему ширину (см. рис. 8).

Ширина приведенного фундамента определяется по формулам:

;                                                     (13)

;                                                            (14)

,                                                          (15)

где      aR - расстояние от края основания экрана до точки приложения равнодействующей;

t3 - толщина каменной постели.

Рис. 7. Схема расчета общей устойчивости сооружения по круглоцилиндрическим поверхностям:

1 - 1 - поверхности сдвига в сторону гавани; 2 - 2 - поверхность сдвига в сторону моря

Приведенные нормальные напряжения в точках А и B определяются по формулам:

,                                              (16)

,                                              (17)

Для обеспечения надежной работы сооружения по условию прочности основания должно быть выполнено условие

,                                                      (18)

где      s - максимальное нормальное напряжение на поверхности каменной постели или на поверхности грунта;

R - расчетное сопротивление грунта основания, которое определяется в соответствии с указаниями СНиП 2.02.02-85; для каменной постели допускается пользоваться указаниями Приложения 4 СНиП 2.02.02-85.

Величина приведенной вертикальной силы, действующей на фундамент, равна

,                                                 (19)

Q* = Q

Устойчивость приведенного фундамента на глубинный сдвиг проверяется одним из принятых методов: по круглоцилиндрической поверхности - методом Крея-Терцаги; по ломаным поверхностям - методом Маслова-Барера или методом ВНИИГ”а.

При этом учитывается профиль грунта и постели правее линии В-Г (см. рис. 8).

Осадка сооружения в результате уплотнения грунтов основания определяется по указаниям СНиП II-50-74, принимая расчетную ширину основания сооружения равной b2*, а нагрузку на основание

,                                                    (20)

3.3.5. Масса массивов защитного покрытия наброски и масса камней, крепления откоса постели со стороны моря определяются по указаниям СНиП 2.06.04-82, с учетом коэффициента надежности Кн = 1,2.

3.3.6. При действии стоячих волн скорость (в м/сек.) на поверхности горизонтального участка каменной постели со стороны наброски, необходимую для оценки устойчивости камней верхнего слоя постели, следует определять по формуле

,                                          (21)

где    К - коэффициент отражения, равный 1,3;

Значения остальных символов в формуле по данным СНиП 2.06.04-82.

При действии разбитых или прибойных волн для оценки устойчивости каменной постели следует производить модельные исследования.


Рис. 8. К расчету устойчивости жесткого экрана


3.3.7. Массу каменей (в т), обеспечивающую их устойчивость на поверхности постели, следует определять по формуле

,                                           (22)

где    rm - плотность материала камня в т/м3.

3.3.8. Расчеты прочности элементов конструкции выполняются на действие активных сил, перечисленных в п. 3.3.1 по указаниям действующих нормативных документов.

При расчете прочности учитываются коэффициенты надежности по нагрузке по данным СНиП 2.06.01-86.

3.3.9. Расчеты на строительный случай должны учитывать принятую технологическую схему производства работ по возведению сооружения.

4. РЕКОМЕНДАЦИИ ПО ТЕХНОЛОГИИ СТРОИТЕЛЬСТВА СООРУЖЕНИЙ

4.1. При производстве и приемке работ по возведению сооружений из наброски с жестким экраном следует руководствоваться основными указаниями, разработанными для набросных сооружений (ВСН - 34/VIII-60) и для сооружений из обыкновенных массивов (ВСН - 34/V-75).

4.2. При применении свайных или уголковых конструкций жестких экранов технология возведения их должна отвечать требованиям, предъявляемым к подобным сооружениям соответствующими правилами.

4.3. При наличии в основании сооружения слабых грунтов и необходимости устройства песчаной подушки последняя отсыпается из чистого мелкозернистого песка слоями толщиной не более 0,50 м.

Отсыпанную песчаную подушку рекомендуется выдержать в течение времени не менее одного штормового сезона.

4.4. Бетонирование пустотелых бетонных массивов жесткого экрана должно выполняться без перерыва; строительные швы не допускаются. Железобетонные элементы передней стенки массива могут изготавливаться отдельно и омоноличиваться с боковыми стенками при бетонировании массива.

4.5. Стенки железобетонных массивов ящичного типа изготавливаются раздельно на вибростолах и монтируются в ящик с помощью омоноличивания угловых сопряжений или сваркой закладных частей.

4.6. Монтаж железобетонных массивов, а также бетонирование бетонных пустотелых массивов большой массы рекомендуется производить на площадках вблизи причала, с которого их может взять плавучий кран.

4.7. Подъем и установку массивов рекомендуется выполнять с помощью подъемных кранов с применением траверсы или без нее.

4.8. Бетонные пустотелые массивы должны устанавливаться на весьма тщательно выровненную поверхность постели.

Железобетонные массивы устанавливаются на тщательно выровненную постель и только в пределах ширины лицевой опорной плиты железобетонных массивов делается весьма тщательное равнение постели.

4.9. Ширина вертикальных швов между массивами не должна превышать минимальный размер каменного заполнения их полости. При ширине вертикальных швов более 10 см их следует перекрывать железобетонными элементами.

Возведение сооружения рекомендуется производить этапами (см. рис. 9), включающими установку элементов жесткого экрана каждого курса и наброску камня и защитных массивов до верха установленных элементов.

Работы каждого этапа следует выполнять захватками с опережением работ последующего этапа по фронту сооружения не более, чем на 30-50 м. Каменную постель допускается отсыпать на всем протяжении сооружения.

Рис. 9. Последовательность производства работ

Руководитель темы,

директор Ленморниипроекта                                                            А. Ф. Парфенов

Ответственный исполнитель,

главный специалист НИОГС, к.т.н.                                                  А. К. Кривов

Заведующий научно-исследовательским

отделом гидротехнических сооружений,

к.т.н.                                                                                                     Ф. А. Мартыненко

Начальник сектора стандартизации и

метрологии                                                                     В. Г. Дементьев

Нормоконтролёр                                                                                 Л. А. Уваров

Соисполнитель

ЦНИИС Минтрансстроя

Зав. отделом гидротехнических

сооружений, к.т.н. профессор                                                           А. И. Кузнецов

ПРИЛОЖЕНИЕ I

(рекомендуемое)

ПРИМЕР
расчета и конструирования оградительного сооружения из наброски с жестким экраном в виде железобетонного пустотелого массива с камерой гашения (
рис. 10)

В примере дана принципиальная конструкция сооружения, приведены расчеты по определению нагрузок от волновых и ледовых воздействий на сооружение и его элементы и расчеты общей устойчивости сооружения, определяющие его габариты.

По расчетам прочности элементов конструкции даны только общие указания, т. к. эти расчеты не отличаются от обычных расчетов инженерных сооружений.

1. ИСХОДНЫЕ ДАННЫЕ

Класс капитальности - II.

Сооружение находится в мелководной зоне Балтийского моря.

1.1. Параметры волн

а) эксплуатационный период

h = 3,0 м;                     l = 58,0 м;                        Т = 7 с;

б) строительный период

h = 2,0 м;                       l = 30,0 м.

1.2. Максимальная толщина льда 1 % обеспеченности h = 0,42 м; коэффициент торосистости Кт = 1,3.

1.3. Отметка расчетного горизонта воды + 1,0 м; отметка дна минус 7,0 м.

1.4. Грунт основания - песчаный

j = 30°;                                                      

с = 0.

Рис. 10. Сооружение с экраном из железобетонных пустотелых массивов с камерой гашения (размеры в см):

1 - обратный фильтр (щебень, гравий); 2 - камень массой 30 - 100 кг; 3 - камень массой более 960 кг; 4 - упорный тетрапод; 5 - тетраподы; 6 - железобетонные массивы; 7 - камера гашения; 8 - железобетонная балка; 9 - поперечные стенки-рамы; 10 - рамы-перегородки

1.5. Материал наброски: фигурные массивы - тетраподы.

1.6. Коэффициент полноты наклонной и поперечных стенок сооружения Кпл = 0,7.

2. ГАБАРИТЫ ЗАЩИТНОЙ НАБРОСКИ

Zг = h = 3,0 м;

bг = 0,06 × l = 0,06 × 58 = 3,48 » 3,5 м

Угол наклона плиты камеры гашения и откоса наброски к горизонту a = 45°.

3. МАССА ЭЛЕМЕНТОВ НАБРОСКИ И ПОСТЕЛИ

Массивы принимаем одного размера для всех глубин. Массу их определяем по наиболее неблагоприятному условию, когда Z £ 0,7h по СНиП 2.06.04-82.

3.1. Масса тетраподов

С учетом коэффициента надежности для сооружений II класса Kн = 1,2 (см. СНиП II-50-74 п. 3.2)

Принимаем по ГОСТ”у 20425-75 тетраподы Т-3, которые имеют массу 3,0 тонны и максимальный размер Н = 1,70 м.

Толщину слоя тетраподов принимаем по указанию СН 288-64 (п. 6.22) равной

t1 = 1,5H » 2,60 м.

3.2. Масса камня на откосе постели при ctg a = 2

при Z = 6 м на отметке - 5,000 м по СНиП 2.06.04-82

С учетом Кн = 1,2 масса камня принимается равной

4. ОПРЕДЕЛЕНИЕ ДЕЙСТВУЮЩИХ СИЛ

4.1. Давление волны (см. СНиП 2.06.04-82)

4.1.1. Эксплуатационный случай

db = 8,0 м ³ 1,5 h = 1,5 × 3 = 4,5 м

db2 = 6,0 м > 1,25 h = 1,25 × 3 = 3,75 м

При ;  находим по рис. 2 СНиП”а kbz = 0,47.

Расчетная глубина по формуле (1) СНиП”а.

м

Волновое число

Возвышение свободной волновой поверхности по формуле (2) СНиП”а

,                                           (2)

Ординаты эпюры горизонтального волнового давления на сплошную вертикальную плоскость вычисляем в соответствии с указаниями п.1.4. СНиП"а.

Значение коэффициентов К2 - К5, К8 - К9 определяем по графикам рис. 3, 4, 5 предварительно вычислив крутизну волны.

Значение ординат Рс эпюры волнового давления определяем по формулам таблицы 1 СНиП"а

рci = kiρgh.

Результаты расчетов сведены в табл. 5 (см. также рис. 11а)

Таблица 5

№ точек

Загрубление точек, % м

Значение коэффициентов ki

Значение волнового давления Pci МПа

1

-3,76

-

-

 

2

0

I2

0,95

23,5

3

1,75

I3

0,75

22,5

4

3,5

I4

0,67

20,1

5

7,0

I5

0,62

18,6

6

на отк. -5,0

-

-

19,0

Площадь эпюры горизонтального волнового давления на сплошную вертикальную плоскость Аpx = 231 кН/п.м.

Ординаты эпюры горизонтального волнового давления на сплошной вертикальный вираж, защищенный наклонной перфорированной плитой и укладкой тетраподов на ее поверхности, определяются по формуле

, где kc = 0,6

Рис. 11. Эпюры волнового давления (интенсивность кПа). Эксплуатационный случай:

а) - на вертикальную стенку; б) - на расчетные плоскости сооружения с камерой гашения при расчете конструкции экрана на сдвиг; в) - на сплошную наклонную плиту (a = 45°), защищенную тетраподами; г) - на перфорированную (30 %) наклонную плиту камеры гашения, защищенную тетраподами.

Значения ординат этой эпюры приведены на рис. 11б; полное горизонтальное волновое давление на вертикальный экран, равно площади эпюры давления

Это давление принимается также действующим на расчетную вертикальную плоскость, проходящую через нижний край наклонной перфорированной плиты и должно учитываться при расчете устойчивости экрана на сдвиг (см. рис. 11б); при этом дополнительная вертикальная пригрузка конструкции экрана от волнового давления определяется по формуле

,

где    kпл - коэффициент полноты (kпл = 0,7)

Согласно указаниям [12] такое же как pbx давление принимается действующим перпендикулярно к поверхности сплошной наклонной стенки при угле наклона ее к горизонту a > 45° (см. рис. 11в)

Ординаты эпюры этого давления определяются по формуле

С учетом перфорации наклонной плиты в размере 30 % ординаты эпюры давления, нормальной к ее поверхности, определяются по формуле

Эта эпюра давления учитывается при расчете прочности наклонной перфорированной плиты (см. рис. 11г).

4.1.2. Строительный случай - наброска тетраподов на одном из курсов массивов отсутствует.

Для этого случая необходимо установить только волновые нагрузки определяющие устойчивость массивов непригруженных тетраподами. Определяющими прочность элементов конструкции являются другие нагрузки (волновые эксплуатационные, собственный вес).

Расчет аналогичен предыдущему

db = 8,0 м                                  db2 = 6,0 м

при  и  по рис. 2 СНиП”а kвч = 0.

Расчетная глубина

Волновое число

Возвышение свободной волновой поверхности

Значение ординат эпюр волнового давления определены по формуле СНиП”а

Результаты расчетов сведены в табл. 6 и приведены на рис. 12

Таблица 6

№ точек

Заглубление точек, Z м

Значение коэффициентов ki

Значение волнового давления, кПа

1

-2,49

-

-

0

2

0

k2

0,74

14,8

3

1,5

k3

0,55

11,0

4

3,0

k4

0,44

8,8

5

6,0

k5

0,35

7,0

Рис. 12. Строительный случай - перфорированная наклонная плита не покрыта тетраподами. Эпюры волнового давления:

а) на сплошную вертикальную стенку; б) на вертикальную плиту экрана и на расчетную плоскость всего сооружения (с учетом коэффициента снижения kс = 0,8; интенсивность в кПа)

Площадь эпюры горизонтального волнового давления на сплошную вертикальную плоскость

Для строительного случая, когда на наклонной плите камеры гашения отсутствуют тетраподы, коэффициент снижения волнового давления на вертикальную плиту экрана равен kc = 0,8. Полное давление волны, на которое рассчитывается вертикальная плита экрана и все сооружение на устойчивость равно

Дополнительная вертикальная пригрузка от волнового давления, учитываемая при расчете сооружения на сдвиг

4.2. Ледовая нагрузка

Ледовую нагрузку следует учитывать только при расчете сооружения полного профиля (с нагрузкой тетраподами). В соответствии с этим должен составляться проект производства работ.

В соответствии с СНиП 2.06.04-82 и руководством к СНиП II-57-75 определяем горизонтальное и вертикальное давление от льда.

Fh - горизонтальную составляющую силы определяем по формуле:

Среднесуточная температура воздуха за 6 дней tc = -28° при солености 1-2 % по СНиП 2.06.04-82

для морского льда

Угол наклона к горизонту режущей грани с учетом ее обледенения на 20°

Считая нагрузку на 1 п.м., принимаем b = 1 м

В соответствии с указаниями руководства к СНиП II-57-75 повышенная шероховатость откосов обуславливает увеличение нагрузок, что учитывается введением коэффициентов k1 и k2

где k1 = 1 + 0,055 × (10 - ma); при a = 45° ma = 1 и k1 = 1,5;

k2 = 3 (принято для откоса тетраподов);

В соответствии с СНиП 2.06.04-82 точку приложения равнодействующей ледовой нагрузки принимаем ниже расчетного уровня воды на 0,3 ha.

Расчетный уровень для льда +1,15 м.

Отметка действия льда

FV - вертикальную составляющую силы определяем в соответствии с указаниями Руководства к СНиП II-57-75

4.3. Давление заброски (рис. 13 и формула 11)

Вес призм обрушения для расчетных плоскостей:

1) 1-2 (шов 1-1)

2) 1¢-2¢ (шов 2-2)

3) 1¢¢-2¢¢ (шов 3-3)

Рис. 13. К определению давления льда и наброски при расчете устойчивости на сдвиг по швам конструкции экрана.

Давление наброски при одновременном давлении льда (gс = 2,17 по табл. 3) для расчетных плоскостей:

1) 1-2 (шов 1-1)

2) 1¢-2¢ (шов 2-2)

3) 1¢¢-2¢¢ (шов 3-3)

4.4. Веса элементов конструкции (с учетом взвешивания при горизонте воды на отметке +1,0 м - рис. 10 и 14)

4.4.1. Вес тетраподов, пригружающих экран

,

где    W - полный объем элемента;

kпл - коэффициент полноты (по формуле 7);

g - объемный вес.

Для тетраподов                              

над водой                                        

под водой                                        

Рис. 14. К определению веса элементов конструкции.

1) На 1 курсе ж.б. пустотелых массивов

;

2) На 2 курсе массивов

;

3) На 3 курсе массивов

; ;

4.4.2. Веса железобетонных пустотелых массивов

Поперечные стенки, перегородки и наклонная плита массивов имеют перфорацию в размере 30 %. Для этих элементов . Длина массивов по фронту l = 5,0 м.

Для железобетона над водой          

под водой                                          

1) Массив 3 курса (3 м над водой, 1 м под водой)

Gм - вес массива;     Gн.пл. - вес наклонной плиты;

Gпоп. - вес поперечных стен; Gбал. - вес балки;

2) Массив 2 курса (под водой)

3) Массив 1 курса

5. РАСЧЕТ УСТОЙЧИВОСТИ ЖЕСТКОГО ЭКРАНА

Для удобства практического использования РД формулу (12) преобразуем

Величина А для различных случаев расчета устойчивости сооружений II класса ответственности помещена в табл. 7

Таблица 7

Характер потери устойчивости

Величина А

строительный случай

эксплуатационный случай

Сдвиг по плоскости и глубинный сдвиг по ломаным (фиксированным) поверхностям скольжения

1,15

1,20

Глубинный сдвиг по круглоцилиндрическим поверхностям (при расчете по методу Крея-Терцаги)

0,95

1,0

Опрокидывание вокруг ребра вращения

1,50

1,60

где      R - сумма удерживающих сил;

F - сумма сдвигающих сил.

По результатам выполненных расчетов устанавливаем, что определяющей силой, сдвигающей сооружение, является сумма равномерно действующих давлений льда и наброски

Схема действия этих сил приведена на рис. 13.

5.1. Эксплуатационный случай

5.1.1. Устойчивость на сдвиг

Коэффициент трения бетона по камню и по бетону fб = 0,5

1) По каменной постели (шов 1-1)

2) По шву 2-2

Вертикальная составляющая давления льда действует на второй курс массивов только частично, распределяясь между первым и вторым курсами. Для второго курса коэффициент распределения  (см. рис. 13)

Для обеспечения устойчивости необходимо, чтобы массив 2-го курса упирался в консольный выступ массива 1 курса, который должен воспринять силу P (см. рис. 15)

3) По шву 3-3

Вертикальная составляющая давления льда на третий курс массивов не распространяется и в расчетах не должна учитываться

Для обеспечения устойчивости необходимо, чтобы массив 3-го курса упирался в консольный выступ массива 2-го курса, который должен воспринять силу Р (см. рис. 15)

5.1.2. Устойчивость на поворот вокруг ребра (см. рис. 14)

где      Муд. - сумма удерживающих моментов сил, действующих выше рассматриваемого сечения (R);

Мопр. - сумма опрокидывающих моментов сил, действующих выше рассматриваемого сечения (F).

1) Устойчивость всего сооружения (выше шва 1-1)

Рис. 15. К расчету консольных выступов железобетонных массивов.

2) Устойчивость второго и третьего курсов массивов (выше шва 2-2)

3) Устойчивость третьего курса массивов (выше шва 3-3)

5.1.3. Напряжения в основании сооружения

1) Характеристика площади опирания железобетонных пустотелых массивов 1 курса (см. рис. 16).

Расстояние от края площади опирания до центра тяжести

где    Si - элемент площади SSi = 20,53 м3;

ai - расстояние от центра тяжести элемента площади до края площади опирания

Момент инерции площади опирания относительно оси О-О (ц.т.)

Моменты сопротивления площади опирания на 1 п.м. сооружения (по фронту)

Расстояние от края площади опирания до равнодействующей вертикальных сил

Рис. 16. Схема подошвы массивов 1-го курса.

F1 = 25000 см2; F2 = 63000 см2; F3 = 17500 см2; F4 = 100000 см2

Рис. 17. Напряжения у основания и приведенный фундамент.

Эксцентриситет приложения равнодействующей

2) Напряжения на поверхности постели (см. рис. 17)

3) Характеристика приведенного фундамента

 l = b1 = 11,47 м; t3 = 2,0 м;

по формуле (14) L = 11,47 + 2,0 × 2 = 15,47 м

по формулам (16) и (17)

по формуле (13)

по формуле (19)

Средняя величина нагрузки на основание приведенного фундамента (по формуле (20))

Горизонтальная составляющая Q*, действующая на приведенный фундамент

Силы F* и Q* учитываются при расчетах устойчивости приведенного фундамента на глубинный сдвиг.

5.1.4. Устойчивость по схеме глубинного сдвига

В предположении скольжения по круглоцилиндрическим поверхностям проверяем устойчивость всего сооружения и приведенного фундамента методом Крея-Терцаги.

Результаты расчета приведены на рисунках 18 и 19.

5.2. Строительный случай

Основной нагрузкой в строительный период является давление волны с параметрами h = 2,0 м и l = 30,0 м.

Возведение сооружения производится по курсам и в этот период конструкция неполного профиля работает, как затопленный волнолом.

В связи с отсутствием строгого теоретического решения для этого случая эпюру волнового давления, действующего на каждый курс массивов, принимаем равной соответствующей части эпюры волнового давления, построенной для сооружения полного профиля с камерой гашения не покрытой тетраподами (см. рис. 12).

Волновое давление

на 1 курс

на 2 курс

на 3 курс

Рис. 18. Расчет общей устойчивости сооружения совместно с наброской и постелью методов Крея-Терцаги.

Значения сил в : Р1 = G5 = 69,40; P2 = G4 = 39,36; P3 = G6 = 53,45; P4 = G7 = 77,18; P5 = G3 = 58,45; P6 = G2 = 71,5; P7 = Fh¢ =68,44; P8 = G1 =52,80; P9 = 38,80; Fh¢ = 164,25.

Рис. 19. Расчет общей устойчивости приведенного фундамента.

5.2.1. Устойчивость на сдвиг

1) По каменной постели (массивы 1 курса)

2) По шву 2-2 (массивы 2 курса)

3) По шву 3-3 (массивы 3 курса)

4) По каменной постели трех курсов массивов без пригрузки их тетраподами

5.2.2. Устойчивость на поворот вокруг ребра

1) Устойчивость первого курса

Устойчивость на опрокидывание каждого курса массивов в отдельности очевидна. Поэтому проверим дополнительно только устойчивость сооружения из трех курсов массивов без пригрузки их тетраподами (рис. 12 и 14).

Результаты расчета показывают, что в период строительства конструкция жесткого экрана обладает достаточной устойчивостью и может возводиться не только по курсам, но и сразу на полную высоту и пригружаться тетраподами только ко времени, когда могут иметь место ледовые воздействия.

6. РАСЧЕТНЫЕ СХЕМЫ И НАГРУЗКИ, ДЕЙСТВУЮЩИЕ НА ЭЛЕМЕНТЫ КОНСТРУКЦИИ ЭКРАНА В ЭКСПЛУАТАЦИОННЫЙ ПЕРИОД

6.1. Наклонная перфорированная плита

Плита рассчитывается как однопролетная балка с двумя консолями (см. рис. 14 и 20).

Расчетные нагрузки, действующие на плиту нормально ее поверхности.

1) Собственный вес с учетом коэффициента полноты kпл = 0,7 и угла наклона a=45°.

где    tп - толщина плиты;

gн - коэффициент надежности по нагрузке

2) Нагрузка от тетраподов, лежащих на 3-м курсе массивов (см. рис. 14)

где l - длина наклонной перфорированной плиты

3) Волновая нагрузка (см. рис. 11г)

4) Ледовая нагрузка (см. рис. 21)

где    а1 - размер участка передачи нагрузки;

Рис. 20. Расчетная схема наклонной перфорированной плиты.

Рис. 21. К определению нагрузки от льда на наклонную плиту железобетонного экрана.

Рис. 22. Расчетные схемы вертикальной плиты 1-го курса массивов.

qл > qbmax поэтому в расчет вводим qл

Расчетная ширина элемента (при коэффициенте полноты плиты kпл = 0,7) плиты b = 1,0 × 0,7 = 0,70 м.

6.2. Вертикальные лицевые стенки

6.2.1. Стенка 1-го курса массивов (см. рис. 22)

Вертикальная стенка массивов рассчитывается как плита, заделанная по опорному контуру б - 2-1-4-3-Г и загруженная или эпюрой волнового давления по площади а-б-в-г, или линейной силой от воздействия льда Р - по краю плиты 5-6.

Значения нагрузок (см. рис. 11б и п. 5.1.1):

; ;

6.2.2. Стенка 2-го курса массивов (см. рис. 23)

Стенка рассчитывается как плита, заделанная по опорным линиям 1-2 и 3-4 и загруженная или эпюрой волнового давления по площади а-б-в-г, или линейными нагрузками от воздействия льда Р1 и Р2 по краям плиты (см. рис. 11б и п. 5.1.1).

Значения нагрузок

; ; ;

Рис. 23. Расчетные схемы вертикальной плиты 2-го курса массивов.

Рис. 24. Расчетные схемы вертикальных стенок массива 3-го курса:

а) парапета; б) лицевой стенки.

6.2.3. Стенки 3-го курса массивов

1) Парапет (см. рис. 24а)

Парапет рассчитывается, как плита, опертая по линии б-г, заделанная в узлах «1» и «2» и загруженная эпюрами давления волны и наброски (совместное действие) по площади а-б-в-г.

Интенсивность нагрузок (см. рис. 11б):

;

Лицевая стенка (см. рис. 24б)

Лицевая стенка рассчитывается как плита, заделанная по опорным линиям 1-2 и 3-4 и загруженная или эпюрой волнового давления по площади а-б-в-г, или линейной силой Р от воздействия льда по линии б-г.

Интенсивность нагрузок (см. рис. 11б и п. 5.1.1):

; ;;

6.2.4. Балка (см. рис. 25)

Балка, перекрывающая массив 3-го курса, рассчитывается на действие равномерной нагрузки от веса тетраподов (qт) волнового воздействия (qв) и собственного веса (qсв) по схеме однопролетной консольной балки.

Интенсивность нагрузок:

 (см. п. 4.4.1)

 (см. рис. 14)

Рис. 25. Расчетная схема верхней балки.

Рис. 26. Расчетная схема плиты основания.

q = ∑q = 39,36 + 1,10 + 3,22 = 43,68

6.3. Плита основания (см. рис. 26)

Плита основания рассчитывается как двухконсольная балка с опорой по середине, загруженная собственным весом и реактивным давлением грунта основания (каменной постели).

Интенсивность нагрузки

6.4. Поперечные и продольные стенки - рамы камеры гашения

Эти элементы являются опорами наклонных плит, вертикальных плит и верхней балки и рассчитываются на реактивные давления, полученные при расчете упомянутых элементов, а также на реактивное давление грунта основания и нагрузку от собственного веса элементов.

Расчетные схемы рамных конструкций приведены на рис. 27.

7. РАСЧЕТНЫЕ СХЕМЫ И НАГРУЗКИ НА ЭЛЕМЕНТЫ КОНСТРУКЦИИ В СТРОИТЕЛЬНЫЙ ПЕРИОД

Расчетные схемы элементов конструкции в строительный период зависят от принятой технологии строительных работ и не отличаются от обычных для промышленного строительства.

Основными расчетными нагрузками этого периода является собственный вес элементов с учетом коэффициента динамичности, равного 1,3.

Рис. 27. Расчетные схемы поперечных и продольных стенок-рам камеры гашения

Rн - реакции опор наклонных перфорированных плит;

Rв - реакции опор вертикальных лицевых плит;

Rб - реакции опор верхней балки;

Rр - реакции сдвигающей силы Р;

Rос - реакция основания рамы;

R - реакция верхней рамы.

а) Рамы 3-го курса б) Рамы 2-го курса в) Рамы 1-го курса г) Рамы перегородок

ПРИЛОЖЕНИЕ II

(справочное)

ПЕРЕЧЕНЬ
основных общесоюзных и ведомственных нормативно-технических документов используемых при проектировании и строительстве оградительных сооружений из наброски с жестким экраном.

1. СНиП II-51-74                Гидротехнические сооружения морские. Основные положения проектирования.

2. СНиП II-50-74                Гидротехнические сооружения речные. Основные положения проектирования.

3. СНиП 2.06-04-82            Нагрузки и воздействия на гидротехнические сооружения (волновые, ледовые и от судов).

4. СНиП 2.06.01-86            Гидротехнические сооружения. Основные положения проектирования.

5. СНиП 2.02.02-85            Основание гидротехнических сооружений.

6. СНиП 2.02.01-83            Основание зданий и сооружений.

7. СНиП II-56-77                Бетонные и железобетонные конструкции гидротехнических сооружений.

8. РД 31.31.27-81                Руководство по проектирование морских причальных сооружений. Минморфлот.

9. ВСН-34/VII-60                Строительство портовых оградительных сооружений из каменной наброски и из наброски тетраподов. Москва, 1961 г.

10. ВСН-34/V-75                Строительство портовых гидротехнических сооружений из обыкновенных массивов. Минтрансстрой.

11. ВСН 6/118-74               Указания по обеспечению долговечности бетонных и железобетонных конструкций морских гидротехнических сооружений.

СОДЕРЖАНИЕ

1. Общие положения. 1

2. Рекомендации по конструированию сооружений. 2

2.1. Габариты и конструкция защитной наброски. 2

2.2. Конструкции постели сооружения. 3

2.3. Конструкции жесткого экрана. 4

2.3.1. Общая характеристика конструкций. 4

2.3.2. Экран из бетонных и железобетонных пустотелых массивов заполненных камнем.. 4

2.3.3. Экран из железобетонных пустотелых массивов с камерой гашения. 6

3. Рекомендации по расчету сооружений. 7

3.1. Состав расчетов. 7

3.2. Нагрузки и воздействия. 7

3.3. Методы расчета устойчивости сооружения. 9

4. Рекомендации по технологии строительства сооружений. 13

Приложения:

1. Пример расчета и конструирования оградительного сооружения из наброски с жестким экраном в виде железобетонного пустотелого массива с камерой гашения. 14

2. Перечень основных общесоюзных и ведомственных нормативно-технических документов используемых при проектировании и строительстве оградительных сооружений из наброски с жестким экраном. 34

 



© 2013 Ёшкин Кот :-)