Информационная система
«Ёшкин Кот»

XXXecatmenu

ГОСТ 30734-2000

МЕЖГОСУДАРСТВЕННЫЙ СТАНДАРТ

БЛОКИ ОКОННЫЕ
ДЕРЕВЯННЫЕ МАНСАРДНЫЕ

Технические условия

 

МЕЖГОСУДАРСТВЕННАЯ НАУЧНО-ТЕХНИЧЕСКАЯ КОМИССИЯ
ПО СТАНДАРТИЗАЦИИ, ТЕХНИЧЕСКОМУ НОРМИРОВАНИЮ
И СЕРТИФИКАЦИИ В СТРОИТЕЛЬСТВЕ (МНТКС)

Москва

Предисловие

1. РАЗРАБОТАН ФГУП Центр методологии нормирования и стандартизации в строительстве Госстроя России с участием НИУПЦ «Межрегиональный институт окна» и ЗАО «ВЕЛЮКС РОССИЯ».

ВНЕСЕН Госстроем России

2. ПРИНЯТ Межгосударственной научно-технической комиссией по стандартизации, техническому нормированию и сертификации в строительстве (МНТКС) 6 декабря 2000 г.

За принятие проголосовали

Наименование государства

Наименование органа государственного управления строительством

Азербайджанская Республика

Госстрой Азербайджанской Республики

Республика Армения

Министерство градостроительства Республики Армения

Республика Казахстан

Казстройкомитет Республики Казахстан

Кыргызская Республика

Государственный комитет по архитектуре и строительству при Правительстве Кыргызской Республики

Российская Федерация

Госстрой России

Республика Таджикистан

Комархстрой Республики Таджикистан

Республика Узбекистан

Госархитектстрой Республики Узбекистан

3. ВВЕДЕН ВПЕРВЫЕ

4. ВВЕДЕН В ДЕЙСТВИЕ с 1 сентября 2001 г. в качестве государственного стандарта Российской Федерации постановлением Госстроя России от 02.04.2001 г. № 37

ГОСТ 30734-2000

МЕЖГОСУДАРСТВЕННЫЙ СТАНДАРТ

БЛОКИ ОКОННЫЕ
ДЕРЕВЯННЫЕ МАНСАРДНЫЕ

Технические условия

ROOF WOODEN
WINDOW BLOCKS

Specifications

Дата введения 2001-09-01

1 Область применения

Настоящий стандарт распространяется на деревянные мансардные оконные блоки одинарной конструкции со стеклопакетами (далее - изделия, оконные блоки), применяемые в жилых, общественных и других зданиях и устанавливаемые в скат кровли под углом 15-90°.

(Поправка от 21.04.2003 г.)

Область применения изделий устанавливают в зависимости от условий эксплуатации в соответствии с действующими строительными нормами и правилами с учетом требований настоящего стандарта.

Требования настоящего стандарта являются обязательными (кроме оговоренных в тексте стандарта как рекомендуемые или справочные).

Настоящий стандарт может быть применен для сертификации изделий.

2 Нормативные ссылки

В настоящем стандарте использованы ссылки на следующие стандарты:

ГОСТ 111-90 Стекло листовое. Технические условия

ГОСТ 2140-81 Видимые пороки древесины. Классификация, термины и определения, способы измерения

ГОСТ 2695-83 Пиломатериалы лиственных пород. Технические условия

ГОСТ 7016-82 Изделия из древесины и древесных материалов. Параметры шероховатости поверхности

ГОСТ 8486-86 Пиломатериалы хвойных пород. Технические условия

ГОСТ 15140-78 Материалы лакокрасочные. Методы определения адгезии

ГОСТ 15612-85 Изделия из древесины и древесных материалов. Методы определения параметров шероховатости поверхности

ГОСТ 16588-91 Пилопродукция и деревянные детали. Методы определения влажности

ГОСТ 23166-99 Блоки оконные. Общие технические условия

ГОСТ 24033-80 Окна и балконные двери деревянные. Методы механических испытаний

ГОСТ 24404-80 Изделия из древесины и древесных материалов. Покрытия лакокрасочные. Классификация и обозначения

ГОСТ 24700-99 Блоки оконные деревянные со стеклопакетами. Технические условия

ГОСТ 24866-99 Стеклопакеты клееные строительного назначения. Технические условия

ГОСТ 26602.1-99 Блоки оконные и дверные. Методы определения сопротивления теплопередаче

ГОСТ 26602.2-99 Блоки оконные и дверные. Методы определения воздухо- и водопроницаемости

ГОСТ 26602.3-99 Блоки оконные и дверные. Метод определения звукоизоляции

ГОСТ 30698-2000 Стекло закаленное строительное. Технические условия

3 Термины, классификация, условное обозначение

Термины и определения, использованные в настоящем стандарте, а также классификация изделий - по ГОСТ 23166.

По вариантам открывания оконные блоки подразделяют:

со среднеповоротным открыванием створки вокруг горизонтальной оси (вариант открывания 1, рисунок 1а);

с комбинированным открыванием, предусматривающим совмещение среднеповоротного и подвесного открывания створки (вариант открывания 2, рисунок 1б).

Допускаются конструкции оконных блоков с подвесным открыванием створок (вариант открывания 3).

Условное обозначение мансардных оконных блоков принимают по ГОСТ 23166, при этом тип конструкции записывают «МАНСАРДНОЕ» с добавлением варианта открывания, например:

Оконный блок деревянный мансардный со среднеповоротным открыванием створки вокруг средней горизонтальной оси, с модульными размерами по высоте 14М, ширине - 8М, классы по эксплуатационным показателям: сопротивление теплопередаче - Б1, воздухе-, водопроницаемости - А, звукоизоляции - В, общему коэффициенту пропускания света - Б, сопротивлению ветровым нагрузкам - Б.

4 Технические требования

4.1 Общие требования

4.1.1 Оконные блоки должны соответствовать требованиям настоящего стандарта, ГОСТ 23166 и изготавливаться по конструкторской и технологической документации, утвержденной предприятием-изготовителем в установленном порядке.

4.1.2 Оконные приборы должны обеспечивать возможность поворота створок вокруг средней оси на угол не менее 90° для ухода за окнами и промывки стекол со стороны помещения без применения специальных приспособлений. При этом должна предусматриваться фиксация створок в положениях проветривания и промывания. Конструкции с подвесным открыванием створок, предусматривающие промывку стекол со стороны помещения при помощи специальных щеток, не рекомендуются.

Рекомендуется оснащение оконных блоков вентиляционными или климатическими клапанами.

а - со среднеповоротным открыванием

б - с комбинированным открыванием

 

дистанционные подкладки

 

 

 

несущие подкладки

Рисунок 1 - Варианты открывания мансардных оконных блоков и расположение подкладок

4.1.3 Основным вариантом остекления оконных блоков является остекление однокамерными стеклопакетами с внутренним стеклом с низкоэмиссионным теплоотражающим покрытием.

Изделия, предназначенные для эксплуатации в неотапливаемых помещениях, рекомендуется остеклять листовым закаленным стеклом по ГОСТ 30698, допускается использование стекла по ГОСТ 111.

Базовые варианты конструкции изделий должны предусматривать возможность установки солнцезащитных устройств. Допускается по требованию потребителя изготовление оконных блоков без солнцезащитных устройств.

(Поправка от 21.04.2003 г.)

4.1.4 Рекомендуемые габаритные размеры оконных блоков приведены на рисунке 2.

Пример конструктивного решения изделия приведен на рисунке 3. Номинальные размеры элементов оконных блоков и деталей, размеры установки оконных приборов, а также функциональных отверстий и угловых соединений устанавливают в технической документации на изготовление изделий.

4.1.5 Рекомендуемая расчетная масса открывающихся элементов оконных блоков - не более 60 кг.

В случае изготовления оконных блоков со створками большей массы следует подтверждать возможность их применения прочностными испытаниями или расчетами.

4.1.6 Конструкция изделий должна включать в себя детали внешней облицовки (металлические, поливинилхлоридные), предохраняющие конструктивные деревянные детали коробки и створки от прямого воздействия солнечных лучей и атмосферных осадков, а также предусматривать надежное водонепроницаемое соединение оконных блоков с кровельными элементами (например, с использованием окладов).

Примечание - Оклад - система водоотводящих деталей, устанавливаемых по периметру оконной коробки, обеспечивающая надежную защиту узлов примыкания мансардного оконного блока и кровельных элементов от атмосферных осадков.

4.1.7. Конструкция изделия должна предусматривать возможность установки не менее двух уплотняющих прокладок в притворах.

 

Рисунок 2 - Рекомендуемые габаритные размеры мансардных оконных блоков (мм)

В скобках указаны модульные размеры, применяемые в условном обозначении изделий.

(Поправка от 21.04.2003 г.)

Рисунок 3 - Пример конструктивного решения мансардного оконного блока

(Поправка от 21.04.2003 г.)

4.1.8 Изделия должны быть безопасными при эксплуатации. Условия безопасной эксплуатации изделий должны быть подробно изложены в инструкции по эксплуатации изделий.

4.2 Характеристики

4.2.1 Основные эксплуатационные характеристики оконных блоков приведены в таблице 1. Классы эксплуатационных характеристик - по ГОСТ 23166.

Таблица 1

Наименование показателей

Значение

Приведенное сопротивление теплопередаче, класс, не ниже

Г2

Воздухо-, водопроницаемость, класс, не ниже

Б

Звукоизоляция, класс, не ниже

Д

Общий коэффициент светопропускания, класс, не ниже (справочный показатель)

Г

Сопротивление ветровым нагрузкам, класс, не ниже

в

Безотказность, циклы открывания-закрывания, не менее

20000

Прочность (несущая способность) угловых соединений, Н, не менее

800; 1100

Долговечность, условных лет эксплуатации

 

- стеклопакетов

10 (20)

- уплотняющих прокладок

5(10)

Сопротивление статической нагрузке перпендикулярно плоскости створки, Н,

не менее

200

Сопротивление статической нагрузке, действующей вертикально на угол открытой створки, Н, не менее

1000

Примечания

1 Значения показателей долговечности, указанные в скобках, вводятся в действие с 01.07.2002 г.

2 Прочность угловых соединений 800 Н установлена для метода испытаний по схеме А, а 1100 Н - по схеме В ГОСТ 24700.

3 В случае остекления изделий листовым стеклом классы приведенного сопротивления теплопередаче и звукоизоляции не регламентируются.

4 При проектировании изделий допускается принимать требуемое приведенное сопротивление теплопередаче мансардных оконных блоков, устанавливаемых под углом 15-75°, на 10 % ниже, чем для оконных конструкций, устанавливаемых вертикально.

4.2.2 Предельные отклонения габаритных размеров изделий не должны превышать ±2,0 мм.

4.2.3 Рамочные элементы изделий и их детали должны иметь правильную геометрическую форму.

Отклонения кромок деталей от прямолинейности не должны превышать 1 мм на 1 м длины.

Предельные отклонения номинальных размеров сборочных элементов и деталей изделий, зазоров в притворе, а также разность длин диагоналей не должны превышать значений, установленных в таблице 2.

Таблица 2                                                                                                       В миллиметрах

Номинальный размер

Предельные отклонения

Разность длин диагоналей

Внутренний размер коробок

Наружный размер створок

Зазор в притворе

Толщина, ширина брусков

До 1000

± 1,0

± 1,0

+ 1,0 -0,5

±0,5

2,0

Св. 1000

± 2,0

± 2,0

+ 1,5 - 1,0

3,0

Примечание - Предельное отклонение размера зазора под наплавом установлено в зависимости от номинального размера длины притвора.

(Поправка от 21.04.2003 г.)

4.2.4 Зазоры в шиповых соединениях склеенных элементов не допускаются.

4.2.5 Провесы в угловых соединениях створок на лицевой стороне не допускаются, а на нелицевой стороне не должны превышать 0,5 мм.

В угловых соединениях коробок, а также в угловых соединениях створок на лицевой стороне при наличии декоративного рустика (канавки) провесы не должны превышать 0,5 мм.

4.2.6 Угловые соединения рамочных элементов должны быть выполнены не менее чем на двойные прямые шипы на водостойком клею.

4.2.7 Угловые соединения рекомендуется дополнительно крепить деревянными нагелями на клею, металлическими крестовидными нагелями или скрепками (длина скрепок - не менее 2/3 толщины бруска) с антикоррозийным покрытием.

4.2.8 Детали оконных блоков могут быть склеены по длине, ширине и толщине.

Клеевые соединения древесины должны быть водостойкими. Склеивание древесины по длине должно выполняться на зубчатый шип, длина заготовок - не менее 180 мм. На лицевой стороне детали допускается не более трех соединений на 1 м длины.

Зазоры в клеевых соединениях не допускаются.

При склеивании древесины по толщине рекомендуется выклеивать брус из трех реечных заготовок радиального распила, при этом угол наклона годичных колец не должен превышать 45°, смежные рейки должны иметь встречный угол наклона волокон.

4.2.9 Прочность клеевых соединений должна быть не менее:

на скалывание вдоль волокон при склеивании по толщине и ширине - 3,0 МПа;

на изгиб при склеивании по длине - 28,0 МПа;

угловых шиповых соединений - по таблице 1.

4.2.10 Отделку оконных блоков рекомендуется производить:

декоративно-защитными составами;

атмосферостойкими эмалями (красками, лаками) с предварительной обработкой биозащитными составами;

атмосферостойкими эмалями (красками, лаками), обладающими биозащитным эффектом.

4.2.11 Отделочные покрытия должны быть стойкими к воздействию климатических факторов. Долговечность покрытия должна быть подтверждена гарантийными обязательствами предприятия-изготовителя.

4.2.12 Классификация отделочных покрытий по внешнему виду и степени блеска - по ГОСТ 24404.

Не допускаются следующие дефекты отделочного покрытия:

пропуски покрытий и просвечивание древесины (при непрозрачном покрытии);

дефекты отделочного покрытия на лицевых и видимых при открывании поверхностях (включая ворсистость, шероховатость, видимые дефекты механической обработки), различимые невооруженным глазом на расстоянии не более 1 м при естественном освещении не менее 300 лк.

4.2.13 Лакокрасочные покрытия должны иметь адгезию с отделываемой поверхностью не ниже 2-го балла по ГОСТ 15140.

4.2.14 Усилие открывания створки, прилагаемое к ручке, не должно превышать 50 Н.

4.2.15 Сопротивление статической нагрузке, приложенной к ручке, должно быть не менее 500 Н, сопротивление крутящему моменту - не менее 25 Н-м.

4.2.16 Усилие, прикладываемое к створкам при их закрывании до требуемого сжатия уплотняющих прокладок, - не более 100 Н.

4.2.17 Конструкции изделий должны иметь систему водоотливных отверстий, а также отверстий для вентилирования полости под кромками стеклопакетов. Размеры и расположения отверстий устанавливают в конструкторской документации.

4.3 Требования к древесине и комплектующим изделиям

4.3.1 Материалы и комплектующие изделия, применяемые для изготовления окон и дверей, должны соответствовать требованиям стандартов, технической документации предприятия-изготовителя, технических свидетельств, утвержденных в установленном порядке.

4.3.2 Для изготовления окон применяют древесину хвойных пород не ниже 2-го сорта по ГОСТ 8486, дуба и ясеня не ниже 2-го сорта по ГОСТ 2695.

Применение древесины разных пород в одном изделии не допускается, за исключением сосны, ели, пихты в изделиях под непрозрачное покрытие.

4.3.3 Влажность древесины перед склейкой должна быть в пределах 9-15%. Нормативную влажность древесины устанавливают в технологической документации предприятия-изготовителя, при этом диапазон значений влажности должен быть не более 3 %.

4.3.4 По качеству древесины оконные блоки подразделяют на два класса исполнения: 1-й класс и 2-й класс в зависимости от допускаемых естественных пороков древесины и дефектов механической обработки.

Естественные пороки древесины и дефекты механической обработки ограничивают нормами, установленными в таблице 3 в зависимости от класса исполнения и видов поверхностей деталей изделия.

Виды поверхностей деталей приведены на рисунке 4.

Рисунок 4 - Виды поверхностей деталей

Таблица 3

Наименование пороков древесины и дефектов обработки по ГОСТ 2140

Класс исполнения и виды поверхностей

1 класс

2 класс

А

В

А

В

С

Сучки на пласта

Здоровые и частично сросшиеся

Æ25

Æ30

Æ30

Æ35

Не ограничиваются

Загнивающие

Æ15

Æ20

Æ20

Æ25

Темные здоровые

Æ10

Æ15

Æ15

Æ20

Табачные

Æ5

Æ10

Æ10

Æ15

Сучки на кромке

Здоровые и частично сросшиеся

Æ25

Æ30

Æ30

Æ35

Загнивающие

Æ10

Æ10

Æ15

Æ20

Темные здоровые

Табачные

Æ5

Æ5

Æ10

Æ10

Число сучков на 1 м длины, шт., не более

2

6

6

8

Отверстия в сучке

Не допускаются

Æ5*

Æ5*

Æ10*

Высохший засмолок, мм

2´15

2´15

2´20

2´20

Сердцевина

Не допускается

Кроме рыхлой

Не допускается

Кроме рыхлой

Метиковые и продольные трещины шириной, мм

0,1

0,2

0,2

0,3

Трещины, червоточины, наклон волокон к свободному краю более 30 мм/м, гнили, свежий засмолок

Не допускаются

Не допускаются

Не допускаются

Не допускаются

Не допускаются, кроме засмолка

Отлупные трещины, шириной, мм

Не допускаются

0,2

Не допускаются

0,3

1,0

Кармашки, мм

2´15

3´70

3´50

3´100

5´100

Синяя гниль

Не допускается

Не допускается

Не допускается

Не допускается

10% в точках

Ворсистость, мшистость, вмятины

Не допускается

Не допускается

Не допускается

Не допускается

5% площади поверхности

* Не допускаются в зоне уплотнителей.

4.3.5 Несросшиеся здоровые и табачные сучки, трещины, кармашки, червоточины, сколы, вмятины на поверхностях вида А и В должны быть заделаны пробками на клею или зашпаклеваны. Указанные дефекты не допускаются в местах крепления приборов.

4.3.6 Допускается шпаклевка дефектных мест древесины водостойкими шпаклевочными составами, не влияющая на внешний вид и качество отделочного покрытия.

4.3.7 Поверхности деревянных деталей вида А в сборочных единицах изделий 1-го класса исполнения под прозрачное покрытие должны быть подобраны по цвету и текстуре.

4.3.8 Шероховатость древесины по ГОСТ 7016 должна быть не более, мкм:

а) лицевых поверхностей:

под защитно-декоративное покрытие.......... 40;

под лакокрасочное покрытие....................... 80;

б) нелицевых поверхностей............................... 360.

4.3.9 Приборы и петли для оконных блоков должны соответствовать требованиям действующей нормативной и технической документации и образцам-эталонам.

4.3.10 Приборы должны обеспечивать надежное запирание открывающихся элементов оконных блоков. Открывание и закрывание должно происходить легко, плавно, без заеданий. Ручку открывания рекомендуется располагать в верхней части створки.

Допускается другое расположение ручек при обеспечении удобства эксплуатации изделий.

(Поправка от 21.04.2003 г.)

4.3.11 Ручки и засовы приборов не должны самопроизвольно перемещаться из положения «открыто» или «закрыто».

4.3.12 Конструкции и крепления запирающих приборов должны обеспечивать невозможность открывания оконных блоков с наружной стороны.

По требованию заказчика конструкция окон может предусматривать открывание с наружной стороны.

4.3.13 Расположение приборов в изделиях должно быть установлено в рабочих чертежах (технологическом регламенте) с учетом конкретного типа изделия и прибора.

4.3.14 Приборы и петли для оконных блоков должны выдерживать нагрузки, приведенные в таблице 1, а также отвечать требованиям 4.2.14-4.2.16.

4.3.15 Лицевые поверхности металлических деталей, приборов и петель должны иметь защитно-декоративное, а нелицевые поверхности - защитное покрытия в соответствии с требованиями нормативной и технической документации производителя.

4.3.16 Для остекления оконных блоков применяют стеклопакеты по ГОСТ 24866 или другой НД, утвержденной в установленном порядке.

Для повышения теплозащитных характеристик стеклопакеты могут быть заполнены инертным газом, в конструкциях стеклопакетов рекомендуется применять стекла или пленки с теплоотражающим покрытием.

Стеклопакеты должны быть испытаны на долговечность в испытательных центрах, аккредитованных на право проведения таких испытаний.

В случае применения в конструкциях изделий листового стекла по ГОСТ 111 рекомендуется использовать стекла толщиной не менее 5 мм.

4.3.17 Стеклопакеты (стекла) устанавливают на влагостойкий герметик или полимерные уплотняющие прокладки, при этом касание стекла древесины не допускается, а крепежные детали должны обеспечивать надежную фиксацию стеклопакета, не создавая при этом чрезмерные точечные напряжения.

4.3.18 Стеклопакеты устанавливают на несущие и дистанционные полимерные подкладки, при этом кромки стекол не должны выступать за поверхность подкладок.

Конструкция и крепление подкладок не должны допускать их смещения во время эксплуатации.

4.3.19 Уплотняющие прокладки должны изготавливаться из атмосферо-, и морозостойких эластичных полимерных материалов и быть испытаны на долговечность в испытательных центрах, аккредитованных на право проведения таких испытаний.

4.3.20 Прилегание уплотняющих прокладок к сопрягаемым деталям оконного блока должно быть плотным по всему периметру.

4.3.21 Детали облицовки из металлических сплавов должны быть защищены антикоррозийным покрытием или покрытием из полимерных материалов, устойчивых к атмосферным воздействиям.

4.3.22 Конструкция оконного блока должна предусматривать возможность замены стеклопакета, уплотняющих прокладок, оконных приборов и деталей облицовки во время их эксплуатации. Общие указания по монтажу и эксплуатации мансардных блоков приведены в приложении А.

4.4 Комплектность

Изделия должны иметь полную заводскую готовность: законченное отделочное покрытие или покрытие, предохраняющее древесину при транспортировании, установленные запирающие приборы, стеклопакет, уплотняющие прокладки.

В комплект поставки должны входить: крепежные элементы и детали внешней облицовки, паспорт изделия, инструкция по эксплуатации и инструкция по монтажу изделий.

Предприятие-изготовитель по требованию потребителя должно укомплектовать оконные блоки деталями оклада и солнцезащитными устройствами.

4.5 Маркировка и упаковка

4.5.1 Оконные блоки маркируют, нанося их условное обозначение и название предприятия-изготовителя (товарный знак) на верхнюю часть вертикального бруска коробки (при этом допускается применять сокращенный вариант обозначения, например: ОД МАНСАРДНОЕ-1 14-8).

При экспортно-импортных поставках допускается использовать другие системы маркировки согласно технической документации предприятия-изготовителя, при этом в паспорте и других сопроводительных документах должно быть указано соответствие марки производителя условному обозначению, принятому в настоящем стандарте.

Например, буквенно-цифровой код изделия по документации изготовителя GGL 308 3059,

где GGL - тип оконного блока (деревянный мансардный оконный блок со среднеповоротным открыванием); 308 - размер оконного блока по высоте и ширине; 3059 - исполнение изделия, тип стеклопакета и эксплуатационные характеристики соответствуют условному обозначению:

Предприятие-изготовитель имеет право представлять дополнительную информацию о качестве продукции на упаковке или в сопроводительной документации.

4.5.2 Упаковка продукции должна защищать изделие от механических повреждений при хранении и транспортировании, при этом должны быть соблюдены условия хранения и транспортирования, установленные в договоре на поставку.

Упаковка должна содержать маркировку с информацией о наименовании и/или торговой марке производителя, условное обозначение и/или код изделия.

5 Правила приемки

5.1 Изделия должны быть приняты техническим контролем предприятия-изготовителя на соответствие требованиям настоящего стандарта и технической документации производителя.

Изделия принимают партиями. За партию принимают число изделий, изготовленных в пределах одной смены или одного заказа, оформленных одним документом о качестве.

5.2 Подтверждением приемки изделий техническим контролем предприятия-изготовителя является маркировка изделий и оформление паспорта (документа о качестве).

5.3 По требованию потребителя изготовитель должен предоставить потребителю результаты квалификационных (или сертификационных) испытаний изделий,

5.4 Требования к качеству готовой продукции, установленные в настоящем стандарте, подтверждают:

входным контролем материалов и комплектующих деталей;

операционным производственным контролем;

приемочным контролем готовой продукции;

приемосдаточными испытаниями партий изделий, проводимыми службой качества предприятия-изготовителя;

результатами квалификационных, сертификационных и периодических испытаний изделий.

5.5 Порядок проведения входного контроля устанавливают в технологическом регламенте предприятия-изготовителя.

В случае, если предприятие-изготовитель комплектует изделия стеклопакетами собственного изготовления, стеклопакеты должны быть приняты и испытаны в соответствии с ГОСТ 24866.

5.6 Качество изготовления изделий в процессе производства подтверждают проведением производственного операционного контроля на всех технологических операциях. Порядок проведения этого контроля устанавливают в технологической документации (регламенте) производителя.

5.7 Приемочный контроль качества продукции проводят поштучно методом сплошного контроля. При этом проверяют:

внешний вид и качество отделки изделий (визуальный контроль);

равномерность зазоров, наличие и места расположения отверстий (визуальный контроль);

работу запирающих приборов (вручную).

5.8 Приемосдаточные испытания изделий проводит служба качества предприятия-изготовителя ежесменно.

Периодические испытания проводят не реже 1 раза в три года.

Квалификационные испытания проводят при постановке продукции на производство по всем требованиям настоящего стандарта.

Типовые испытания проводят при изменении технологического процесса и конструкции изделий.

Проверяемые показатели, виды их контроля и методы испытаний приведены в таблице 4.

Таблица 4

Наименование показателя

Номер пункта требований

Вид испытаний

Методы испытаний

приемосдаточные

периодические

Сопротивление теплопередаче

4.2.1

-

+

По ГОСТ 26602.1

Воздухо-, водопроницаемость

4.2.1

-

+

По ГОСТ 26602.2

Сопротивление ветровым нагрузкам

4.2.1

-

+

По НД *

Звукоизоляция

4.2.1

-

4-

По ГОСТ 26602.3

Сопротивление статическим нагрузкам

4.2.1

-

+

По ГОСТ 24033

Безотказность работы приборов и усилия открывания-закрывания

4.2.1

-

+

По приложению Б настоящего стандарта

4.2.14-4.2.16

-

+

По НД

Показатели долговечности

4.2.1

-

+

По НД

Прочность угловых и других клеевых соединений (включая водостойкость**)

4.2.1; 4.2.9

+

+

По ГОСТ 24700

Шероховатость

4.3.8

-t-

+

По ГОСТ 24700

Отклонения от номинальных размеров и прямолинейности кромок, разность длин диагоналей, зазоры и провесы

4.2.2-4.2.5

+

+

По ГОСТ 24700

Пороки древесины

4.3.4

+

-

По ГОСТ 2140

Плотность прилегания уплотняющих прокладок

4.3.20

+

-

По ГОСТ 24700

Качество отделочного покрытия

4.2.12

+

 

Визуально, в сравнении с образцами-эталонами

Адгезия отделочного покрытия

4.2.13

+

-

По ГОСТ 24700

Влажность древесины

4.3.3

+

-

По ГОСТ 16588

* По нормативной документации и/или методикам, утвержденным в установленном порядке.

** Контролируют путем проведения периодических испытаний

5.9 Допускается приемка изделий по плану контроля, указанному в таблице 5. Образцы для испытаний отбирают методом случайного отбора. Партию более 500 образцов принимают по регламенту производителя и договору с потребителем.

В случае отрицательных результатов испытаний по одному из параметров последующие испытания проводят только по этому показателю.

Партию изделий принимают, если число дефектных изделий в первой выборке меньше или равно приемочному числу, и бракуют, если число дефектных изделий больше или равно браковочному числу.

Если число дефектных изделий в первой выборке больше приемочного числа, но меньше браковочного, производят вторую выборку для второй ступени контроля.

Партию изделий принимают, если число дефектных изделий меньше или равно приемочному числу указанному во второй ступени контроля, и бракуют, если число дефектных изделий больше или равно браковочному числу данной ступени.

Таблица 5

Объем партии, шт.

Ступень контроля

Объем выборки, шт.

Приемочное число

Браковочное число

До 25

Первая

2

0

2

Вторая

4

0

1

26-50

Первая

3

0

2

Вторая

6

1

2

51-90

Первая

4

0

2

Вторая

8

2

3

91-150

Первая

5

0

3

Вторая

10

3

4

151-280

Первая

8

1

4

Вторая

10

4

5

281-500

Первая

13

2

5

Вторая

26

5

6

5.10 Изделия, не прошедшие приемосдаточные испытания, отбраковывают и переходят на сплошной контроль. При этом контролируют показатель, по которому произошла браковка партии. После положительных результатов сплошного контроля двух последующих партий (но не менее 100 окон) возвращаются к выборочному контролю согласно таблице 5.

5.11 Каждая партия изделий (или изделие) сопровождается документом о качестве (паспортом, гарантийным талоном), подтверждающим соответствие качества изделий требованиям настоящего стандарта.

В документе о качестве указывают:

наименование предприятия-изготовителя, его адрес;

номер настоящего стандарта;

марки изделий и их количество по позициям заказа;

перечень комплектующих деталей;

основные потребительские свойства;

информацию о сертификации;

дату отправки;

подпись ответственного лица или название организации.

5.12 В договоре на изготовление (поставку) изделий между предприятием-изготовителем и потребителем допускается устанавливать другие правила приемки изделий, не противоречащие требованиям настоящего стандарта.

5.13 При обнаружении скрытых дефектов, приведших к нарушению эксплуатационных характеристик изделия в течение гарантийного срока эксплуатации, потребитель вправе потребовать замену или ремонт дефектных изделий за счет предприятия-изготовителя или применить к нему штрафные санкции в установленном порядке при условии выполнения потребителем требований, установленных к эксплуатации и монтажу изделий.

5.14 Площадь готовых изделий определяют по номинальным габаритным размерам и вычисляют (учитывают) с точностью до 0,01 м2.

6 Методы испытаний

Методы испытаний принимают согласно таблице 4. Величину нагрузок при определении прочности угловых соединений принимают согласно таблице 1.

7 Транспортирование и хранение

При хранении и транспортировании оконных блоков должны быть приняты меры для предохранения их от механических повреждений, загрязнения, увлажнения, воздействия атмосферных осадков и прямых солнечных лучей.

(Поправка от 21.04.2003 г.)

Изделия перевозят транспортом всех видов в соответствии с действующими правилами перевозки грузов.

Створки, фрамуги, форточки, жалюзи и клапаны перед транспортированием изделий должны быть надежно закреплены запирающими приборами, а в случае, если приборы не предусмотрены конструкцией здания, - планками, стяжками или другими приспособлениями, не вызывающими повреждения изделий.

Забивка гвоздей или других крепежных деталей допускается только в нелицевые стороны коробок.

8 Гарантии изготовителя

Предприятие-изготовитель гарантирует соответствие оконных блоков требованиям настоящего стандарта при соблюдении потребителем условий транспортирования, хранения, монтажа и эксплуатации изделий.

Гарантийный срок службы изделий - не менее 3 лет со дня отгрузки изделий изготовителем.

ПРИЛОЖЕНИЕ А

(рекомендуемое)

Рекомендации по монтажу и эксплуатации

А.1 Выбор размеров оконного блока

Выбор размеров оконного блока производят с учетом угла наклона крыши и стропильной системы сооружения, при этом следует учитывать условия оптимального обзора и освещенности помещения (рисунок А.1):

расстояние от нижнего края оконного блока до пола по вертикали - 80 - 90 см.

расстояние от верхнего края оконного блока до пола по вертикали - 180 - 200 см.

А.2 Расположение оконного блока в конструкции крыши

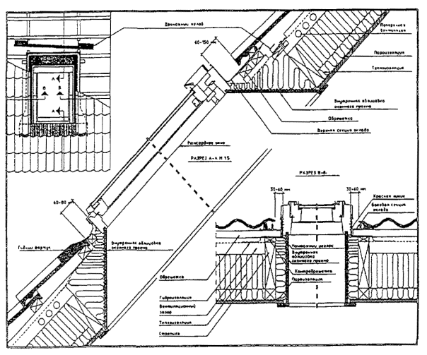
Рекомендуется устанавливать мансардный оконный блок с использованием системы окладов. Гидроизоляция, теплоизоляция и пароизоляция между оконным блоком, кровельным материалом и откосами должны обеспечивать надежную защиту от эксплуатационных воздействий.

Конструкцию и размеры монтажного шва между оконной коробкой и кровельным материалом определяют согласно проектным решениям с учетом рекомендаций предприятия-изготовителя (рисунок А.2).

Допускается блокировка мансардных оконных блоков при их установке с использованием специальных систем окладов (рисунок А.3).

Конструкция стропильной системы должна предусматривать вентиляцию межстропильного пространства.

Система окладов мансардных оконных блоков должна учитывать конструкцию кровельного покрытия (плоский или профилированный кровельный материал) и обеспечивать отвод осадков от оконной коробки. Детали оклада должны крепиться внахлест с целью исключения проникновения воды.

Рисунок А.1 - Размеры установки мансардного оконного блока по высоте помещения

Рисунок А.2 - Пример конструкции монтажного узла

Рисунок А.3 - Пример сблокированной установки изделий с использованием системы окладов

А.3 Расположение мансардного оконного блока относительно стеновых откосов должно обеспечивать оптимальные условия естественного освещения помещения и вентиляции поверхности остекления с целью избежания возникновения конденсата; условию оптимальной вентиляции поверхности остекления должно отвечать также расположение отопительных приборов и подоконной доски (рисунок А.4).

Рисунок А.4 - Примеры расположения мансардного оконного блока относительно откосов стен и отопительных приборов

А.4 Мансардные оконные блоки должны выдерживать равномерно распределенные нагрузки, действующие на их элементы в плоскости расположения блоков и перпендикулярно к этой плоскости и возникающие от ветрового напора и снеговой нагрузки, характерных для определенных климатических регионов, а также от собственного веса остекления.

А.5 Требования к монтажу изделий устанавливают в проектной документации на типовое и индивидуальное строительство с учетом принятых вариантов исполнения узлов примыкания, рассчитанных на заданные климатические и другие нагрузки.

А.6 Установку мансардного оконного блока производят в соответствии с инструкцией по монтажу изделий, разработанной предприятием-изготовителем и поставляемой в комплекте с оконным блоком.

А.7 Мансардный оконный блок должен устанавливаться вместе с системой оклада с учетом положений инструкции производителя.

В случае сблокированной установки оконных блоков система окладов должна иметь специальную конструкцию.

А.8 Конструкция узлов примыкания должна обеспечивать надежный отвод дождевой воды и конденсата наружу. Не допускается проникновение влаги внутрь стеновых конструкций и помещений.

А.9 В качестве крепежных элементов для монтажа изделий рекомендуется применять материалы, поставляемые или рекомендуемые предприятием-изготовителем оконных блоков, проверенные на совместимость.

Не допускается использовать для крепления изделий герметики, клеи, пеноуплотнители.

А.10 Эксплуатацию изделий следует производить в соответствии с инструкцией, утвержденной предприятием-изготовителем.

На оконных блоках допускается временное образование конденсата на внутренней стороне стеклопакета при условии воздействия пиковых отрицательных температур, повышенной влажности внутри помещения (свыше 60 %) и недостаточном воздухообмене (согласно требованиям строительных норм и правил).

ПРИЛОЖЕНИЕ Б

(рекомендуемое)

Метод испытаний на безотказность

Б.1 Метод испытания на безотказность (устойчивость к многократным открываниям-закрываниям)

Настоящий метод используется для определения безотказности оконных блоков и их деталей при их многократном открывании-закрывании.

Б.1.1 Испытательное оборудование

Испытательный стенд состоит из жесткой рамы, в которую устанавливается испытываемый образец. Коробку образца фиксируют в стенде под углом, соответствующим его эксплуатационному положению. В процессе испытаний устройство открывания изделия и подвижная створка при помощи специальных приспособлений повторяют заданное число циклов открывания-закрывания.

Испытательное оборудование должно обеспечивать следующий цикл испытания: запирающие приборы отпирают при помощи рабочего оборудования, затем оконная створка открывается, выдерживается в открытом положении, закрывается, после этого приборы закрывают. Допускается раздельное проведение циклов открывания-закрывания запирающих приборов и циклов открывания-закрывания створок.

Рабочее оборудование:

исполнительные механизмы регулируемого хода с соответствующими устройствами захвата и поворота ручки с измерителем крутящего момента;

линейный исполнительный механизм (например, гидроцилиндр), соединенный с динамометром, а также с измерительными и регистрирующими приборами, способный плавно обеспечивать требуемое максимальное усилие (открывания-закрывания).

Скорость открывания и закрывания должна составлять (0,5 ± 0,1) м/с, длительность нахождения створки в открытом (закрытом) положении не должна превышать 4 с.

Угол раскрытия створки должен быть в пределах (90±10)°.

Усилия, прилагаемые к запирающим приборам, должны быть на (50±10) % выше, чем заданная величина рабочих усилий, необходимых для открывания и закрывания приборов.

Измерительное оборудование: динамометр и измеритель крутящего момента (погрешность измерений - до 2 % максимального измеряемого усилия).

Б.1.2 Подготовка к испытаниям

Перед испытаниями образец выдерживают при температуре (20±4) °С не менее суток, после этого образец визуально проверяют на соответствие требованиям настоящего стандарта. Затем образец устанавливают в испытательный стенд в эксплуатационном положении и производят пятиразовое открывание-закрывание вручную. При необходимости производят подналадку оконных приборов и петель. В случае обнаружения неустранимых дефектов образец снимают с испытания.

Закрепляют на образце исполнительные механизмы, при этом постоянная нагрузка, прилагаемая в рабочей точке, не должна увеличивать вес створки более чем на 5%. Линейный исполнительный механизм устанавливают таким образом, чтобы он находился на одной линии с заданным направлением перемещения створки, не отклоняясь от него более чем на ±1°.

Б.1.3 Проведение испытаний

Включают счетчик циклов и проводят заданное количество открываний и закрываний створок.

Через каждые 500 циклов открываний-закрываний испытания приостанавливают, проверяют состояние образца и, при необходимости, производят смазку подвижных деталей (в соответствии с требованиями инструкции по эксплуатации).

Б.1.4 Обработка и оценка результатов испытания

После проведения испытаний оценивают состояние образца путем замера размеров створки и зазоров в притворе. В журнале испытания фиксируют:

число выполненных циклов;

соответствие размерных параметров образца требованиям стандарта;

рабочие усилия (характеристики), замеренные до и после испытания;

расчет отклонений характеристик V, %, по формуле:

,

где V - отклонение характеристик, %;

 - отношение рабочего усилия, измеренного после испытания, к рабочему усилию, измеренному до испытания.

Результат испытания признают удовлетворительным, если отклонение заданных характеристик не превышает 30% и размерные параметры образца не выходят за пределы, установленные в настоящем стандарте.

Приложение В

(информационное)

Сведения о разработчиках стандарта

Настоящий стандарт разработан рабочей группой специалистов в составе:

И.Ф. Савченко, УДГНПП «Лигнатекс» (руководитель);

А.Ф. Борщев, НИУТЩ «Межрегиональный институт окна»;

О.И. Понятков, ЗАО «ВЕЛЮКС РОССИЯ»;

В.В. Еремеева, ФГУП ЦНС Госстроя России;

B.C. Савич, ФГУП ЦНС Госстроя России;

Н.В. Шведов, Госстрой России;

П.Л. Шубин, НИИСФ РААСН.

Ключевые слова: блоки оконные деревянные мансардные, классификация, технические требования, правила приемки, методы контроля, указания по монтажу

СОДЕРЖАНИЕ

1 Область применения. 1

2 Нормативные ссылки. 2

3 Термины, классификация, условное обозначение. 2

4 Технические требования. 2

4.1 Общие требования. 2

4.2 Характеристики. 5

4.3 Требования к древесине и комплектующим изделиям.. 7

4.4 Комплектность. 9

4.5 Маркировка и упаковка. 9

5 Правила приемки. 10

6 Методы испытаний. 12

7 Транспортирование и хранение. 12

8 Гарантии изготовителя. 12

Приложение А Рекомендации по монтажу и эксплуатации. 12

Приложение Б Метод испытаний на безотказность. 15

Приложение В Сведения о разработчиках стандарта. 16

 



© 2013 Ёшкин Кот :-)