| ||||||||||||||||||||
|
Правительство Москвы
ПОСОБИЕ
выпуск 3 Доступный транспорт
2000
ПРЕДИСЛОВИЕ 1. РАЗРАБОТАНО МНИИП объектов культуры, отдыха, спорта и здравоохранения (кандидат архитектуры А.А. АРХАНГЕЛЬСКАЯ, инженер К.А. ГОЛЕНДЕРОВ). 2. ПОДГОТОВЛЕНО к утверждению и изданию Управлением перспективного проектирования и нормативов Москомархитектуры (архитектор Л.А. ШАЛОВ, инженер Ю.Б. ЩИПАНОВ). 3. СОГЛАСОВАНО с Комитетом социальной защиты населения Москвы и УПП и Н МОСКОМАРХИТЕКТУРЫ 4. УТВЕРЖДЕНО и введено в действие указанием МОСКОМАРХИТЕКТУРЫ от 23.02.2000 № 10
СОДЕРЖАНИЕ
ОБЩИЕ ПОЛОЖЕНИЯПособие разработано в развитие действующих нормативно-методических документов по проектированию окружающей среды, зданий и сооружений с учетом потребностей инвалидов и маломобильных граждан (см. раздел 10 настоящего Выпуска). Выпуск 3 «Доступный транспорт» продолжает серию выпусков «Пособия по проектированию окружающей среды для людей с физическими ограничениями» и включает спектр вопросов от форм организации транспортных поездок до специального оборудования и оснащения транспортных сооружений, остановок, стоянок, элементов дорог и транспортных средств с целью обеспечения их доступности для инвалидов и маломобильных групп населения г. Москвы. Выпуск 3 содержит материалы, относящиеся к автомобильному транспорту (легковые автомобили, микроавтобусы-вэны, автобусы), троллейбусам, рельсовому транспорту (трамваи, электропоезда) и метрополитену. Использованные литературные источники приведены в разделе 11 настоящего Выпуска, ссылки на них обозначены на страницах Выпуска цифрами, заключенными в квадратные скобки. 1. Формы организации транспортных перевозок
|
|
|
Стандартный седан (3-4 пассажирских места), используемый как такси, так и службой по требованию. |
|
|
Микроавтобус (вэн): стандартное транспортное средство (7-15 пассажирских мест), используемое без изменений. |
|
|
Модифицированный микроавтобус (вэн): стандартный микроавтобус (7 - 15 пассажирских мест) с поднятой крышей, сниженным полом и другими значительными модификациями; |
|
|
Кузов-на-шасси: автобусный кузов (до 30 пассажирских мест), смонтированный на ходовой части стандартного грузовика. |
|
|
Автобус специальной сборки: транспортное средство (16 - 40 или более пассажирских мест) со специфическим дизайном. |
|
|
Школьный автобус (до 40 и более пассажирских мест). Когда автобус не используется по прямому назначению, то его используют как дополнительное транспортное средство для общественных перевозок, что экономит расходы на покупку новых транспортных единиц. |
* - автомобильные средства, используемые за рубежом, не выпускающиеся в Российской федерации
3.1. АВТОБУСНЫЕ И ТРОЛЛЕЙБУСНЫЕ ОСТАНОВКИ [3]
|
|
Оборудование доступной остановки
3.2. АВТОБУСНЫЕ И ТРОЛЛЕЙБУСНЫЕ ОСТАНОВКИ [3]

Рекомендуемое
разделение зон
для пассажиров и пешеходов
3.3. АВТОБУСНЫЕ (ТРОЛЛЕЙБУСНЫЕ) ОСТАНОВКИ [3]

Зона остановки автобуса (троллейбуса)
для посадки и высадки инвалидов из салона
с пониженным полом или подъемником
для кресел-колясок
3.4. АВТОБУСНЫЕ (ТРОЛЛЕЙБУСНЫЕ) ОСТАНОВКИ [3]

Устройство остановки с пандусами и ориентиром
для слепых или слабовидящих пассажиров
у проезжей части без дорожного покрытий
3.5 ПЛАТФОРМЫ НА ОСТАНОВКАХ РЕЛЬСОВОГО ТРАНСПОРТА [3]

Мини-платформы на узловых городских остановках обеспечивают доступность поездов и трамваев. Для входа и выхода пассажиров используют либо откидной мостик над ступенями, закрепленный на боковой стенке вагона, либо переносной пандус, который устанавливается водителем и хранится в специальной нише позади водительского места. Размеры габаритов платформ см. в Выпуске 1 - раздел 10, п. 4.1. настоящего Пособия.
3.6. ПЛАТФОРМЫ НА ОСТАНОВКАХ РЕЛЬСОВОГО ТРАНСПОРТА

Использование
переносного пандуса
для посадки и высадки на платформу людей
на креслах-колясках
3.7. ПЛАТФОРМЫ НА ОСТАНОВКАХ РЕЛЬСОВОГО ТРАНСПОРТА (В УРОВНЕ РЕЛЬСОВ) [3]

Край платформы оборудуется используемой всеми пассажирами предупреждающей полосой, как правило, ярко-желтого цвета с выраженной фактурой поверхности, осязаемой как через подошвы, так и при помощи палочки. При необходимости перехода на соседнюю платформу устраивается выровненный с поверхностью рельсов переход с соответствующим расширением предупреждающей полосы.
4.1. ОБОЗНАЧЕНИЕ СТОЯНКИ НА ПОКРЫТИИ ПЛОЩАДКИ


|
1. Эпоксидный рисунок, цвет желтый 2. Эпоксидный рисунок, цвет белый 3. Покрытие стояночной площадки |
Примечание:
1. Применяется на всех стоянках, предназначенных для инвалидов.
2. Размеры даны в мм.
4.2. ОБОЗНАЧЕНИЕ СТОЯНКИ ОТДЕЛЬНО СТОЯЩИМ ЗНАКОМ [4]



|
1. Лист металла, покрашенный белой флюоресцентной краской 2. Буквы высотой в среднем 6 см, выполненные черной краской 3. Фон голубого цвета 4. Знак, выполненный флюоресцентной белой краской 5. Болт диаметром 6,4 мм и 70 мм длиной с гайками и плоскими шайбами 6. Металлическая труба диаметром 51 мм |
Примечание: Применяется на всех стоянках, предназначенных для инвалидов. Один знак устанавливается на каждые 6 мест.
4.3. УНИВЕРСАЛЬНАЯ АВТОСТОЯНКА [5]

Универсальная
стоянка для всех видов
транспорта с боковой или задней
дверью для посадки и высадки (легковые
автомобили, вэны, автобусы).
Размеры даны в мм.
4.4. СТОЯНКИ ДЛЯ ЛЕГКОВЫХ АВТОМОБИЛЕЙ [3]

4.5. ВАРИАНТЫ ГАБАРИТОВ [6]

4.6. СТОЯНКИ ДЛЯ МИКРОАВТОБУСОВ (ВЭНОВ) [3]

4.7. ОБОРУДОВАНИЕ СТОЯНОК ЛЕГКОВЫХ АВТОМОБИЛЕЙ [4]

|
1. Зона передвижения инвалидов 2. Столбики, обозначающие место прохода 3. Изменение текстуры или цвета покрытия 4. Газон или надолба 5. Стена или другое препятствие 6. Пандус с уклоном 6 % и нескользким покрытием 7. Желтая линия 8. Знак с международным символом доступности вне покрытия стоянки 9. Знак с международным символом доступности на стояночном покрытии 10. Бордюрный камень Размеры даны в мм |
5.1. ЗОНА ПОДЪЕЗДА АВТОМОБИЛЯ К ПЕШЕХОДНОМУ ПУТИ [4]

|
1. Изменение фактуры или цвета покрытия 2. Пандус 6 % с боковыми бортиками 3. Знак с международным символом доступности 4. Рисунок знака на покрытии 5. Бордюрный камень Размеры даны в см |
5.2. ВАРИАНТЫ ПОДЪЕЗДА АВТОМОБИЛЯ К ПЕШЕХОДНОМУ ПУТИ [5]

А. Вариант для объектов активной посещаемости

Б. Вариант для объектов периодической посещаемости
Размеры даны в мм
6.1. БОКСЫ ДЛЯ АВТОМОБИЛЕЙ ДЛИНОЙ ДО 400 СМ [6]

Примечания:
1. предусматривается по возможности прямая доступность гаража из общественного или жилого здания
2. при автоматическом открывании ворот за 300 см перед боксом устанавливается столбик высотой около 100 см с пультом управления
3. Размеры даны в см.
7.1. ЗАРУБЕЖНЫЙ ПРИМЕР ДОСТУПНОСТИ ПЛАТФОРМ УСТРОЙСТВО ВЕРТИКАЛЬНОГО ЛИФТА [7]

Пример обеспечения доступности метро в Мехико-Сити.
7.2. ЗАРУБЕЖНЫЙ ПРИМЕР ДОСТУПНОСТИ ПЛАТФОРМ УСТРОЙСТВО ЛИФТА ПО УКЛОНУ [8]

Пример обеспечения
доступности
метро в Вашингтоне
7.3. УСТРОЙСТВО ЛИФТА ПО УКЛОНУ [8]

План и продольный разрез кабины (см. 7.2.)
7.4. УСТРОЙСТВО ЛИФТА ПО УКЛОНУ [8]

Поперечный разрез кабины (см. 7.2., 7.3.)
7.5. ОРГАНИЗАЦИЯ ПРОСТРАНСТВА ПЕРРОНА [8]

Пример
выделения пространства для
инвалидов у последней двери последнего
вагона (около лифта).
7.6. ОБОРУДОВАНИЕ ВХОДА В ВАГОН [8]

|
Примеры
стационарных приспособлений для 1,2 - сплошная полоса из резины, закрепленная на полу вагона и опирающаяся свободной стороной на закрытые полотна дверей; при открывании двери полоса опускается на пол перрона, накрывая щель. 3 - длинная полоска из отдельных резиновых клапанов, жестко прикрепленных к полу перрона и обращенных свободным концом к вагону; при открывании двери клапаны опускаются на пол вагона, перекрывая щель.
|
8.1. ПЛАНИРОВКА И ОБОРУДОВАНИЕ [5]

А. Общий вагон без туалетов

Б. Вагон с доступным туалетом
Размеры даны в мм.
8.2. ПЛАНИРОВКА И ОБОРУДОВАНИЕ [5]

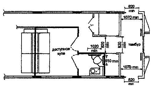
Купейный вагон с доступным спальным купе
Размеры даны в мм
8.3. ЗАРУБЕЖНЫЕ ПРИМЕРЫ ПЛАНИРОВКИ И ОБОРУДОВАНИЯ [8]

|
1 - купе для инвалидов, |
8.4. ЗАРУБЕЖНЫЕ ПРИМЕРЫ ПЛАНИРОВКИ И ОБОРУДОВАНИЯ [8]

Вариант планировочного решения части вагона
второго класса; приспособленной для инвалидов
(немецкая железнодорожная колея).
8.5. ЗАРУБЕЖНЫЕ ПРИМЕРЫ ПЛАНИРОВКИ И ОБОРУДОВАНИЯ [8]

Приспособленная для инвалидов
часть вагона
1 класса (немецкая железнодорожная колея)
9.1. ГАБАРИТЫ ПРОСТРАНСТВА [5]

Габариты подходов к сиденью
9.2. ЗАРУБЕЖНЫЕ ПРИМЕРЫ МЕР БЕЗОПАСНОСТИ ДЛЯ ПАССАЖИРА В КРЕСЛЕ-КОЛЯСКЕ (ВАРИАНТ США) [9]
Кресло-коляска ставится в салоне лицом вперед, закрепляется на месте при помощи ремней или блокировкой колес, пассажир также пристегивается ремнем.

9.3. ЗАРУБЕЖНЫЕ ПРИМЕРЫ МЕР БЕЗОПАСНОСТИ ДЛЯ ПАССАЖИРА В КРЕСЛЕ-КОЛЯСКЕ (ЕВРОПЕЙСКИЙ ВАРИАНТ) [3]

|
1. Мощный опорный щит с мягким покрытием 2. Вертикальная стойка со стороны прохода 3. Горизонтальный поручень 4. Положение кресла-коляски, обращенного спинкой назад 5. Обращенные спинками назад обычные сиденья |
Настоящее Пособие разработано с учетом и в развитие следующих нормативно-методических документов:
1. ВСН 62-91* «Проектирование среды жизнедеятельности с учетом потребностей инвалидов и маломобильных групп населения».
2. Рекомендации по проектированию окружающей среды, зданий и сооружений с учетом потребностей инвалидов и других маломобильных групп населения:
2.1. Выпуск 1. «Общие положения». М., 1995 г.
2.2. Выпуск 2. «Градостроительные требования». М., 1995 г.
2.3. Выпуск 19. «Общественные здания и сооружения. Здания и сооружения транспортного назначения». М., 1997 г.
3. «Руководство по учету потребностей инвалидов при градостроительном и объемном проектировании для г. Москвы и ЛПЗП», М., 1995 г.
4. Пособие по комплексному проектированию окружающей среды для людей с физическими ограничениями:
4.1. Выпуск 1- «Элементы городской среды». М., 1996 г.
4.2. Выпуск 2. «Элементы зданий». М., 1997 г.
[1] Mitchell C.G.B.(Kit): Access to transportation systems and the trend to universal design (The paper from the Conference Proceedings, 8th International Conference on Transport and Mobility for Elderly and Disabled People, Perth, Western Australia, September 1998 (Indomed Pty. Ltd.).
[2] Nalevanko A.: "Rural Transit Service Design and Scheduling", UNC - Institute for Transportation Research & Education, Raling, N.C., Technical Assistance Brief N. I2, Service Design, CTAA, April 1994.
[3] Rickert Т.: "Mobility for All. Accessible Transportation Around the World" (A guide to making transportation accessible for persons with disabilities an elders in countries around the world). Access Exchange International (AEI), September 1998.
[4] "Elementos de apoyo para el disparacitado fisico", Instituto Mexicano del seguro social, 1991.
[5] Federal register. Part II. "Architectural and Transportation Barriers Compliance Board". Pacific Disability and Business Technical Assistance Center, Oakland, 1994.
[6] Architectural facilities for the disabled. Stockholm 1973. The Netherlands Society for Rehabilitation. ICTA. Information Center.
[7] Accessible Transportation Around the World. The Newsletter of Access Exchange International, Summer 1999.
[8] Schwartz L.: Vademecum projektanta - problemy osob niepelnosprawnych. 1. "Srodowisko i transport". Instytut wzornictwa przemystowego. Warszawa, 1991.
[9] Flexibility. Passenger Positioning. The Q¢Straint floor pocket system. (Рекламный выпуск).