Информационная система
«Ёшкин Кот»

XXXecatmenu

ГОСТ 6141-91

МЕЖГОСУДАРСТВЕННЫЙ СТАНДАРТ

ПЛИТКИ КЕРАМИЧЕСКИЕ
ГЛАЗУРОВАННЫЕ ДЛЯ ВНУТРЕННЕЙ
ОБЛИЦОВКИ СТЕН

Технические условия

ИПК ИЗДАТЕЛЬСТВО СТАНДАРТОВ
М
осква

МЕЖГОСУДАРСТВЕННЫЙ СТАНДАРТ

ПЛИТКИ КЕРАМИЧЕСКИЕ ГЛАЗУРОВАННЫЕ
ДЛЯ ВНУТРЕННЕЙ ОБЛИЦОВКИ СТЕН

Технические условия

Glazed ceramic tiles for lining of the walls.
Specifications

ГОСТ
6141-91

Дата введения 01.07.91

Настоящий стандарт распространяется на керамические глазурованные плитки и фасонные детали к ним.

Плитки предназначаются для внутренней облицовки стен зданий.

Стандарт не распространяется на плитки, предназначаемые для облицовки поверхностей, подверженных механическим воздействиям, влиянию мороза, высоких температур, грунтовых вод и агрессивных сред.

Требования настоящего стандарта являются обязательными.

1. ТЕХНИЧЕСКИЕ ТРЕБОВАНИЯ

1.1. Плитки и фасонные детали должны изготавливаться в соответствии с требованиями настоящего стандарта по технологическому регламенту, утвержденному в установленном порядке.

1.2. Плитки и фасонные детали изготавливают двух сортов: первый и второй.

1.3. Основные параметры и размеры

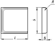
1.3.1. По форме плитки подразделяют на квадратные, прямоугольные и фигурные.

Боковые грани плиток могут быть без завала или с завалом.

Величина радиуса завала не является браковочным признаком.

1.3.2. Тип, форма и размеры плиток и фасонных деталей должны соответствовать указанным в табл. 1 - 3.

Таблица 1

Размеры в миллиметрах

Тип

Форма

Длина l

Ширина b

Толщина s

1

Квадратные плитки:

200

200

7

8

2

а) без завала граней

150

150

5

6

3

100

100

5

6

4

б) с завалом граней

200

200

7

8

5

 

150

150

5

6

6

100

100

5

6

7

в) с завалом двух смежных граней

200

200

7

8

8

 

150

150

5

6

9

100

100

5

6

10

г) с завалом трех граней

200

200

7

8

11

 

150

150

5

6

12

100

100

5

6

13

д) с завалом четырех граней

200

200

7

8

14

 

150

150

5

6

15

100

100

5

6

16

Прямоугольные плитки:

200

150

7

8

17

а) без завала

200

100

7

8

18

 

150

100

5

6

19

150

75

5

6

20

б) с завалом одной грани

200

150

7

8

21

200

100

7

8

22

150

100

5

6

23

150

75

5

6

24

в) с завалом двух смежных граней

200

150

7

8

25

200

100

7

8

26

150

100

5

6

27

150

75

5

6

28

г) с завалом трех граней

200

150

7

8

29

200

100

7

8

30

150

100

5

6

31

150

75

5

6

32

100

75

5

6

33

д) с завалом четырех граней

200

150

7

8

34

200

100

7

8

35

150

100

5

6

36

150

75

5

6

Таблица 2

Размеры в миллиметрах

Тип

Форма

Длина l

Ширина b

37

Фасонные угловые детали:

 

 

 

а) для отделки внешних углов

-

150

38

б) для отделки внутренних углов

-

150

Фасонные карнизные детали:

 

 

39

а) прямые

150

50

40

150

150

41

б) для отделки внешних углов

-

50

42

в) для отделки внутренних углов

-

50

 

Фасонные плинтусные детали:

 

 

43

а) прямые

150

80

44

 

150

50

45

150

150

46

б) для отделки внешних углов

-

80

47

-

50

48

в) для отделки внутренних углов

-

80

49

-

50

Примечание. Толщина s фасонных деталей должна соответствовать толщине указанных типов плиток.

Таблица 3

Размеры в миллиметрах

Тип

Форма

b

b1

l

l1

R

r

s

50

Фигурная плитка

205

51

187

15

40

13

5

6

1.3.3. По согласованию изготовителя с потребителем допускается изготовление плиток и фасонных деталей других размеров и формы.

1.3.4. Отклонения от номинальных размеров плиток должны быть, в процентах, не более:

- по длине и ширине ……………………………….. ±0,8

- по толщине:

для плиток длиной до 150 мм включ. .………… ±10

»       »           »        св. 150 мм …………………... ±8

1.3.5. Разница между наибольшим и наименьшим размерами плиток одной партии по длине и ширине не должна превышать 1,5 мм.

Разброс показателей по толщине плиток одной партии не должен превышать 1,0 мм.

Различие в толщине одной плитки (разнотолщинность) не допускается более 0,5 мм.

1.3.6. Условное обозначение плиток в технической документации при заказе должно состоять из указания их типа, цвета и обозначения настоящего стандарта.

Пример условного обозначения:

- белых квадратных плиток без завала, типа 2:

Тип 2 белые ГОСТ 6141-91

- цветных прямоугольных плиток с завалом четырех граней, типа 33:

Тип 33 цветные ГОСТ 6141-91

- цветных фасонных угловых деталей, типа 38:

Тип 38 цветные ГОСТ 6141-91

- белых фигурных плиток, типа 50:

Тип 50 белые ГОСТ 6141-91

1.4. Характеристики

1.4.1. Лицевая поверхность плиток и фасонных деталей может быть гладкой или рельефной, одно- или многоцветной (декорированной различными методами).

Декорирование плиток может осуществляться методом сериографии, набрызгивания, нанесения глазурей с различным поверхностным натяжением и др.

Глазурь может быть блестящей или матовой, прозрачной или заглушенной.

1.4.2. Цвет, оттенок цвета, рисунок и рельеф лицевой поверхности плиток и фасонных деталей должны соответствовать образцам-эталонам, утвержденным в установленном порядке.

Утвержденный эталон цвета может быть распространен на плитки и фасонные детали всех типов.

Допускается утверждение образцов в виде планшетов или каталогов.

Для плиток с неповторяющимся рисунком (мраморовидные и др.) утверждается только эталон цвета. Рисунок не эталонируется.

Цвет, оттенок цвета, рисунок и рельеф лицевой поверхности плиток, выпускаемых по отдельным заказам, должны соответствовать эталонам, согласованным с потребителем.

1.4.3. Отклонения от формы плиток не должны превышать значений, указанных в табл. 4.

Таблица 4

Наименование показателя

Норма для плиток

I сорта

II сорта

1. Кривизна лицевой поверхности, мм, не более

0,8

1,1

2. Косоугольность, мм, не более:

 

- для плиток длиной до 150 мм включ.

0,5

- для плиток длиной св. 150 мм

1,0

1.4.4. Показатели внешнего вида плиток должны соответствовать требованиям табл. 5.

Таблица 5

Вид дефекта

Норма для плиток

I сорта

II сорта

1. Отбитость со стороны лицевой поверхности

Не допускается

Допускается длиной не более 2 мм в количестве не более 2 шт.

2. Щербины, зазубрины на ребрах со стороны лицевой поверхности

Не допускаются

Допускаются шириной не более 1 мм общей длиной не более 10 мм

3. Плешина

Не допускается

Допускается общей площадью не более 10 мм2

4. Пятно

То же

Допускается невидимое с расстояния 2 м

5. Мушки

Допускаются невидимые с расстояния:

 

1 м

2 м

6. Засорка

Не допускается

Допускается невидимая с расстояния 2 м

7. Наколы

Допускаются невидимые с расстояния:

 

1 м

2 м

8. Пузыри, прыщи и вскипание глазури

Не допускаются

Допускаются вдоль ребра плитки шириной не более 2 мм

9. Волнистость и углубления глазури

То же

Допускаются невидимые с расстояния 2 м

10. Слипыш

Не допускается

Допускается общей площадью не более 5 мм2

11. Просвет вдоль краев цветных плиток

То же

Допускается вдоль края плитки шириной не более 2 мм

12. Следы от зачистных приспособлений вдоль ребра лицевой поверхности

Не допускаются

Допускаются невидимые с расстояния 2 м

13. Нарушения декора (разрыв краски декора, смещение декора, нарушение интенсивности окраски)

Допускаются невидимые с расстояния:

1 м

2 м

Примечания:

1. При создании декоративного эффекта допускаются волнистость глазури, вдавленность или выпуклость рисунка, матовость, оттенки цвета и сочетание различных видов глазури.

2. Виды дефектов - по СТ СЭВ 3979.

1.4.5. Общее число допустимых дефектов на одной плитке не должно быть более:

- двух - на плитках I сорта;

- трех - на плитках II сорта.

1.4.6. Плитки должны иметь на монтажной поверхности рифления высотой не менее 0,3 мм.

1.4.7. Физико-механические показатели плиток должны соответствовать требованиям, указанным в табл. 6.

Таблица 6

Наименование показателя

Норма

1. Водопоглощение, %, не более

16

2. Предел прочности при изгибе, МПа, не менее

15,0

3. Термическая стойкость глазури, °С:

 

- плиток, покрытых белой глазурью

150

- плиток, покрытых цветной глазурью

125

4. Твердость глазури по Моосу, не менее

5

1.4.8. Водопоглощение плиток из масс, содержащих карбонаты и полиминеральные глины, не должно быть более 24%.

1.4.9. Термическая стойкость глазури для плиток с закристаллизованной, реакционноспособной или другой специальной глазурью и для плиток с реакционными красками не регламентируется.

1.4.10. Глазурь плиток должна быть химически стойкой. При воздействии раствора № 3 не должно быть потери блеска глазури, изменения цветового тона и декоративного покрытия.

1.5. Маркировка

1.5.1. На монтажную поверхность каждой плитки должен быть нанесен товарный знак предприятия-изготовителя.

1.5.2. Каждый транспортный пакет, ящичный поддон, а также стопа или ящик, поставляемые отдельными грузовыми единицами, должны быть снабжены ярлыком, в котором указывают:

- наименование или товарный знак предприятия-изготовителя;

- дату изготовления;

- наименование изделия;

- сорт;

- размеры;

- количество плиток, шт. (квадратные метры);

- цвет, рисунок;

- обозначение настоящего стандарта.

1.5.3. На ярлыке должно быть указано: «При отделочных работах не рекомендуется использовать клей «Бустилат» и другие синтетические клеи и замазки».

1.5.4. На ящики или стопы, из которых сформирован пакет, маркировку не наносят.

1.5.5. Ярлык должен быть прочно прикреплен к упаковке, или вложен в нее, или напечатан на упаковочной бумаге. На стопу плиток, упакованную в бумагу, допускается наносить штамп.

1.5.6. При поставке в торговую сеть маркируют каждый ящик или стопу.

1.5.7. При поставке плиток на экспорт маркировка должна соответствовать требованиям, указанным в наряде-заказе внешнеторгового объединения.

1.5.8. Каждая отгружаемая партия изделий должна сопровождаться документом, удостоверяющим их качество, в котором указывают:

- номер и дату выдачи документа;

- наименование и адрес предприятия-изготовителя;

- наименование продукции;

- сорт;

- размеры, цвет, рисунок;

- водопоглощение;

- термическую стойкость глазури;

- символ ТР для плиток с закристаллизованной, реакционно-способной или другой специальной глазурью или для плиток с реакционными красками;

- количество плиток, шт. (квадратные метры);

- обозначение настоящего стандарта.

1.5.9. Транспортная маркировка грузов - по ГОСТ 14192.

На каждое грузовое место должны быть нанесены манипуляционные знаки «Хрупкое. Осторожно» и  «Беречь от влаги».

1.6. Упаковка

1.6.1. Плитки одного типа, цвета, рисунка и сорта упаковывают в деревянные или картонные ящики, ящичные поддоны. Ящики должны быть изготовлены в соответствии с нормативно-технической документацией, утвержденной в установленном порядке.

1.6.2. В деревянные и картонные ящики плитки должны быть уложены вертикально вплотную друг к другу и при необходимости расклинены.

1.6.3. В ящичные поддоны укладывают плитки, предварительно собранные в стопы, обернутые в бумагу, перевязанные шпагатом или полипропиленовой лентой.

Плитки должны быть уложены вертикально.

Между каждым горизонтальным рядом плиток, дном и стенками поддона должен быть проложен картон.

1.6.4. Упакованные в деревянные или картонные ящики плитки укладывают в контейнеры или на плоские поддоны.

В контейнер допускается укладка плиток стопами, обернутыми бумагой и перевязанными шпагатом или полипропиленовой лентой.

1.6.5. Формирование транспортных пакетов - по ГОСТ 26663.

1.6.6. Для перевязки стоп должен применяться шпагат по ГОСТ 17308, ТУ 17-05-009, полипропиленовая лента шириной не менее 9 мм, толщиной не менее 0,5 мм с пределом прочности на разрыв не менее 100 Н/мм2 (10 кгс/мм2).

Допускается перевязка другими обвязочными материалами, обеспечивающими прочность обвязки. Применение бумажного шпагата не допускается.

Для обертывания стоп должна применяться оберточная бумага по ГОСТ 8273 массой 1 м2 не менее 80 г.

Марку картона для перекладки рядов не регламентируют. Допускается применять прокладки из отходов картона.

1.6.7. На экспорт плитки должны поставляться в таре, указанной в заказе-наряде внешнеторговой организации.

1.6.8. При поставке в районы Крайнего Севера и труднодоступные районы упаковка должна соответствовать ГОСТ 15846.

2. ПРИЕМКА

2.1. Приемку плиток производят партиями.

Партия должна состоять из плиток одного типа, цвета, рисунка и сорта.

Объем партии устанавливают в количестве не более сменной выработки одной технологической линии плиток одного типа, цвета, сорта и вида декорирования.

2.2. Для проверки соответствия плиток требованиям настоящего стандарта предприятие-изготовитель проводит приемосдаточные и периодические испытания.

2.3. Приемосдаточные испытания

2.3.1. Приемку плиток производят путем проведения приемочного контроля по следующим показателям:

- правильность формы и размеров;

- высота рифлений на монтажной поверхности;

- внешний вид лицевой поверхности;

- водопоглощение;

- термическая стойкость глазури;

- маркировка;

- упаковка.

2.3.2. Для проведения приемочного контроля по водопоглощению, термической стойкости глазури плитки отбирают от каждой партии от одного из сортов.

2.3.3. Для проверки внешнего вида отбор плиток осуществляют по табл. 7.

Таблица 7

Объем партии плиток, шт.

Ступени контроля

Объем выборки, шт.

Общий объем выборки, шт.

Приемочное число Ас

Браковочное число Rc

1. От 501 до 1200 включ.

Первая

20

20

1

4

Вторая

20

40

4

5

2. От 1201 до 3200 включ.

Первая

32

32

2

5

Вторая

32

64

6

7

3. От 3201 до 10000 включ.

Первая

50

50

3

7

Вторая

50

100

8

9

4. От 10001 до 35000 включ.

Первая

80

80

5

9

Вторая

80

160

12

13

5. От 35001 до 15000 включ.

Первая

125

125

7

11

Вторая

125

250

18

19

Для контроля принят приемочный уровень дефектности AQL-4, общий уровень контроля 1.

2.3.4. Партию плиток принимают, если количество дефектных плиток в первой выборке меньше или равно приемочному числу Ac для первой ступени контроля.

Партию бракуют без назначения второй выборки, если количество дефектных плиток больше или равно браковочному числу Rc для первой ступени контроля.

Если количество дефектных плиток в первой выборке больше приемочного числа Ac, но меньше браковочного Rc, то производят вторую выборку.

Партию плиток принимают, если количество дефектных плиток в двух выборках меньше или равно приемочному числу Ac, и бракуют, если количество дефектных плиток в двух выборках больше или равно браковочному числу Rc для второй ступени контроля.

2.3.5. От партии плиток, проверенных и признанных годными по внешнему виду, отбирают произвольно образцы плиток:

- для проверки размеров и формы …………………………. 25 шт.

- для определения водопоглощения ………………………… 3 шт.

- для определения термической стойкости глазури ……….. 3 шт.

2.3.6. Если при проверке размеров и формы из отобранных от партии плиток окажется одна плитка, не соответствующая требованиям настоящего стандарта, то партию принимают, если две или более плиток, то партия приемке не подлежит.

2.3.7. В случае несоответствия партии плиток требованиям стандарта по внешнему виду, размерам, форме допускается поштучная пересортировка плиток.

2.3.8. При получении неудовлетворительных результатов испытаний по водопоглощению, термической стойкости глазури проводят повторные испытания по показателю, не удовлетворяющему требованиям п. 1.4.7, на удвоенном количестве образцов, взятых от той же партии.

Если при повторном проведении испытаний по этим показателям окажется, что плитки не отвечают требованиям п.1.4.7, партию бракуют.

2.4. Периодические испытания

2.4.1. Предприятие-изготовитель должно проводить периодические испытания плиток на предел прочности при изгибе не реже двух раз в месяц на пяти плитках, химическую стойкость глазури и твердость глазури по Моосу - не реже одного раза в месяц на пяти плитках.

При получении неудовлетворительных результатов периодических испытаний изготовитель переводит испытание по данному показателю в категорию приемосдаточных до получения положительных результатов не менее чем на пяти партиях подряд.

2.5. Потребитель имеет право производить контрольную выборочную проверку соответствия плиток требованиям настоящего стандарта, соблюдая при этом порядок отбора образцов, указанный выше, и применяя методы испытаний по ГОСТ 27180.

3. МЕТОДЫ ИСПЫТАНИЙ

3.1. Методы испытаний по ГОСТ 27180.

3.2. Правильность маркировки и упаковки следует определять визуально.

4. ТРАНСПОРТИРОВАНИЕ И ХРАНЕНИЕ

4.1. Плитки транспортируют всеми видами транспорта в соответствии с правилами перевозок грузов, действующими на данном виде транспорта: в универсальных контейнерах по ГОСТ 15102, ГОСТ 20435, ГОСТ 22225 или в крытых транспортных средствах в ящичных поддонах по ГОСТ 9570, ОСТ 63.30, ОСТ 23.4.97 или транспортными пакетами.

Примечание. По согласованию с потребителем при проведении погрузочно-разгрузочных работ на подъездных путях грузоотправителя и грузополучателя допускается транспортировать плитки в крытых вагонах в непакетированном виде (в ящиках).

4.2. В районы Крайнего Севера и труднодоступные районы плитки должны поставляться в соответствии с требованиями ГОСТ 15846.

4.3. Размещать и крепить груз в крытых железнодорожных вагонах необходимо в соответствии с «Техническими условиями погрузки и крепления грузов», с учетом полного использования грузоподъемности (вместимости) вагонов и контейнеров. Отправку плиток производят повагонно.

4.4. При погрузочно-разгрузочных работах должны быть соблюдены правила безопасности, установленные ГОСТ 12.3.009, ГОСТ 12.3.020 и правилами перевозки грузов.

4.5. Плитки в упакованном виде должны храниться в закрытых помещениях, в условиях защиты их от механических повреждений, влияния мороза, высоких температур и агрессивных сред.

Высота штабеля плиток при хранении не должна превышать:

- транспортными пакетами …………………. двух ярусов

- в деревянных и картонных ящиках ………… 10 ярусов

- в ящичных поддонах ………………………. двух ярусов

ИНФОРМАЦИОННЫЕ ДАННЫЕ

1. РАЗРАБОТАН И ВНЕСЕН Государственной ассоциацией «Союзстройматериалов»

2. УТВЕРЖДЕН И ВВЕДЕН В ДЕЙСТВИЕ Постановлением Государственного строительного комитета СССР от 29.12.90 № 120

3. Стандарт полностью соответствует СТ СЭВ 2047-88

4. ВЗАМЕН ГОСТ 6141-82

5. ССЫЛОЧНЫЕ НОРМАТИВНО-ТЕХНИЧЕСКИЕ ДОКУМЕНТЫ

6. ПЕРЕИЗДАНИЕ. Сентябрь 2002 г.

 

 



© 2013 Ёшкин Кот :-)