Информационная система
«Ёшкин Кот»

XXXecatmenu

ПРАВИТЕЛЬСТВО МОСКВЫ
МОСКОМАРХИТЕКТУРА

 

ПОСОБИЕ
к МГСН 4.03-94

ДОМА-ИНТЕРНАТЫ
ДЛЯ ИНВАЛИДОВ
И ПРЕСТАРЕЛЫХ

 

 

1996

 

 

ПРЕДИСЛОВИЕ

1. РАЗРАБОТАНО МНИИП объектов культуры, отдыха, спорта и здравоохранения Москомархитектуры (канд.арх. Тхор Э.А., инженеры Герасина Л.А., Тихомирова И.Б.).

2. ПОДГОТОВЛЕНО к изданию Архитектурно-техническим управлением Москомархитектуры (архитектор Шалов Л.А., инженер Щипанов Ю.Б.).

3. СОГЛАСОВАНО Комитетом социальной защиты населения Москвы, Управлением архитектурного совета и согласования проектов Москомархитектуры.

4. УТВЕРЖДЕНО указанием Москомархитектуры от 04.03.96 г. № 6.

 

 

СОДЕРЖАНИЕ

1. Общие положения

2. Концептуальные положения проектирования домов-интернатов для инвалидов и престарелых

3. Общие требования

3.1. Функциональные требования

3.2. Эргонометрические требования

3.3. Требования к устройствам и приспособлениям

4. Требования к помещениям проживания

5. Требования к помещениям профессиональной подготовки

6. Требования к помещениям медицинского обслуживания

7. Требования к помещениям культурно-массового обслуживания

8. Требования к помещениям питания

Приложение - типы оборудования, применяемого для развития двигательных функций

 

 

1. ОБЩИЕ ПОЛОЖЕНИЯ

1. Настоящее Пособие разработано в развитие и дополнение МГСН 4.03-94 "Дома-интернаты для инвалидов и престарелых".

2. В Пособии на основе МГСН 4.03-94 даны развернутые рекомендации по проектированию домов-интернатов для инвалидов и престарелых. Текст рекомендаций снабжен функциональными и планировочными схемами оборудования помещений и размещения приспособлений, облегчающих условия жизни инвалидов и престарелых и уход за ними.

2. КОНЦЕПТУАЛЬНЫЕ ПОЛОЖЕНИЯ ПРОЕКТИРОВАНИЯ
ДОМОВ-ИНТЕРНАТОВ ДЛЯ ИНВАЛИДОВ И ПРЕСТАРЕЛЫХ

Практическая реализация задач социальной службы является важным звеном социальной политики любой страны, в том числе и России. Общественные преобразования, происходящие в нашей стране, формирование в обществе нового отношения к людям, нуждающимся в поддержке общества, ставят соответствующие задачи в области социальной и медицинской адаптации инвалидов и социальной и медицинской помощи престарелым.

Существующая в нашей стране сеть учреждений для инвалидов и престарелых имеет ограниченные возможности оказания необходимых услуг и не соответствует общепринятым в мировой практике требованиям к учреждениям такого типа.

Между тем, практика последних лет показала, что главным результатом деятельности домов-интернатов должны стать социальная и трудовая адаптация и профессиональная ориентация инвалидов, т.е. приобретение ими бытовых навыков, приспособленность к жизни, и создание достойных условий проживания для престарелых.

В существующих домах-интернатах инвалиды и престарелые практически лишены этих условий. Между тем, по мнению специалистов, условия проживания значительным образом влияют на успехи физической и социальной адаптации личности. В силу этого одна из важнейших задач дома-интерната - создание инвалидам и престарелым комфортной обстановки, близкой по условиям к домашней.

При решении проблемы в типологическом аспекте необходимо принимать во внимание все факторы, влияющие на общий процесс пребывания в доме-интернате инвалидов и престарелых. Большое значение при этом имеет вместимость учреждения. Дом-интернат не должен быть излишне большим, где инвалид или престарелый чувствует себя затерянным среди большой массы людей. Вместимость дома-интерната не должна превышать 150 мест. Оптимальная вместимость составляет 100 - 120 мест. В таком учреждении проживающие имеют возможность быть знакомыми друг с другом, персонал имеет возможность знать пациентов в лицо. В таких учреждениях гораздо проще создать обстановку, близкую по условиям к домашней, семейной.

С учетом особенностей отношений, возникающих в коллективе, в настоящий момент считаются очень перспективными дома-интернаты с возможностью "посемейного" проживания инвалидов и престарелых.

С учетом этого рекомендуется жилые помещения проектировать в виде отдельных квартир на 4-6 человек для проживания коллектива "семейного" типа, состоящего из людей, подобранных по принципу совместимости, личных склонностей друг к другу. Каждая квартира включает спальные комнаты на 1 - 3 человек, санитарные помещения, общую комнату, кухню, переднюю-раздевальную, бытовую комнату. Предусматривается, что инвалиды и престарелые частично или полностью питаются в своей квартире, куда пища доставляется из общей кухни.

В составе домов-интернатов для инвалидов предусматривается необходимый набор помещений для профессиональной подготовки. Это особенно важно в домах-интернатах для молодежи, где учебно-образовательный процесс рассматривается составной частью комплексной программы реабилитации инвалидов с главным упором на их социальную адаптацию, приобретение профессиональных навыков.

Состав медицинских кабинетов определен из расчета оказания инвалидам и престарелым текущей медицинской помощи и осуществления медицинской реабилитации.

Помещения культурно-массового и оздоровительного назначения, включающие кинофицированный зрительный зал со сценой, фойе-выставочный зал, кружковые комнаты, зал лечебной физкультуры, бассейн, должны обеспечить инвалидам и престарелым полноценный досуг и оздоровительные занятия в зависимости от их состояния здоровья, возрастных потребностей и личных склонностей.

Помещения приема пациентов, входящие в состав домов-интернатов, одновременно используются как карантинное отделение и изолятор.

В состав домов-интернатов включаются административно-хозяйственные помещения, кухня, буфет или столовая персонала.

Таким образом, в состав учреждений входят следующие основные группы помещений:

- помещения проживания инвалидов и престарелых;

- помещения обслуживания (включающие помещения культурно-массового, медицинского, административно-бытового обслуживания, помещения профессиональной подготовки и социальной адаптации, помещения, обеспечивающие питание инвалидов и персонала),

- помещения приема, включающие и изолятор,

- хозяйственные помещения;

- помещения проживания персонала (при загородном размещении дома-интерната).

С учетом требований СНиП 2.08.02-89* "Общественные здания и сооружения" все дома-интернаты рассчитываются на пребывание в них инвалидов-колясочников. При этом в специализированных учреждениях для инвалидов с поражением опорно-двигательного аппарата расчетное число колясочников составляет 20 - 30 %. Наличие инвалидов-колясочников предъявляет специальные требования к проектированию зданий домов-интернатов (ширина коридоров, проходов, наличие специальных лифтов) и отдельных их помещений (место для стоянки коляски, возможность ее разворота, специальные приспособления для инвалидов и т. п.).

Общий концептуальный подход к проектированию зданий и отдельных групп помещений домов-интернатов ориентирован на создание инвалидам и престарелым комфортной среды проживания, максимально исключающей физические и нервные перегрузки. Содействие этому процессу - одно из условий реализации задач организации и оборудования помещений.

Настоящее Пособие имеет целью отразить особенности проектирования домов-интернатов для инвалидов и престарелых. При этом в Пособии рассматриваются специальные вопросы, не нашедшие отражение в существующих нормативных документах.

- планировка помещений, учитывающая потребности инвалидов-колясочников;

- планировка помещений, новых для нашей практики проектирования,

- планировка помещений, учитывающая новые функциональные требования к обслуживанию инвалидов и престарелых.

Помещения, не являющиеся специфическими для данного типа здания, например административно-бытовые помещения, производственные помещения кухни, подсобные помещения и т.п., в Пособии не рассматриваются.

3. ОБЩИЕ ТРЕБОВАНИЯ

Общие требования к проектированию домов-интернатов, учитывающие потребности инвалидов и престарелых, можно разделить на три основные категории;

- функциональные требования;

- эргонометрические требования,

- требования к устройствам и приспособлениям.

3.1. ФУНКЦИОНАЛЬНЫЕ ТРЕБОВАНИЯ

Основными функциональными требованиями к планировочной организации здания и к зонированию территории являются требования обособления, изоляции и одновременно удобных технологических связей между отдельными группами помещений и элементами участка.

Рассматривая вопросы функциональной взаимосвязи различных групп помещений, следует иметь в виду необходимость предусматривать так называемые "нейтральные зоны", в которых располагаются горизонтальные и вертикальные коммуникационные развязки - вестибюли, холлы, лестницы, пандусы, лифты - через которые осуществляются технологические связи между функциональными группами помещений дома-интерната.

На рис. 3.1 приводится принципиальная схема функциональной взаимосвязи отдельных групп помещений дома-интерната для детей-инвалидов и престарелых, согласно которой все группы помещений изолированы и равноценно связаны между собой через нейтральную зону. На практике обеспечить всем группам помещений необходимую изоляцию достаточно сложно. Поэтому допустимо некоторые группы помещений, исключая спальные, предусматривать проходными. Наиболее безболезненно для нормального функционирования учреждения проходными могут быть административно-бытовые, медицинские помещения, помещения учебно-профессиональной подготовки и культурно-массового и оздоровительного назначения.

На рис. 3.2 приводятся примеры некоторых возможных объемно-планировочных решений домов-интернатов для инвалидов и престарелых, в которых связь по первому этажу предусматривается через коридоры административно-бытовых и медицинских помещений, а также помещений профессиональной подготовки.

 

ОБЯЗАТЕЛЬНЫЕ СВЯЗИ

НЕОБЯЗАТЕЛЬНЫЕ СВЯЗИ

ПОМЕЩЕНИЯ МОГУТ БЫТЬ РАСПОЛОЖЕНЫ В ОТДЕЛЬНОМ КОРПУСЕ

РИС. 3.1. СХЕМА ФУНКЦИОНАЛЬНОЙ ВЗАИМОСВЯЗИ ОТДЕЛЬНЫХ ГРУПП
ПОМЕЩЕНИЙ ДОМА-ИНТЕРНАТА ДЛЯ ПРЕСТАРЕЛЫХ И ИНВАЛИДОВ

 

ЭКСПЛИКАЦИЯ ПОМЕЩЕНИЙ

 

1. Главный вестибюль

 

7. Столовая

 

2. Помещения проживания

 

8. Кухня

 

3. Зрительный зал

 

9. Административно-бытовые, медицинские помещения

 

4. Фойе

 

10. Помещения профессиональной подготовки

 

5. Бассейн

 

 

6. Спортзал

 

11. Кружковые помещения

РИС. 3.2. ПРИМЕРЫ ОБЪЕМНО-ПЛАНИРОВОЧНЫХ РЕШЕНИЙ
ДОМОВ-ИНТЕРНАТОВ ДЛЯ ИНВАЛИДОВ И ПРЕСТАРЕЛЫХ

Приведенные на рис. 3.2 схемы иллюстрируют некоторые примеры возможных объемно-планировочных решений в рамках технологических требований. Могут быть запроектированы принципиально другие решения - также без нарушений требований технологии

Вопросы функционального зонирования домов-интернатов для инвалидов и престарелых имеют свою специфику.

Согласно МГСН 4.03-94 (п. 4.2) на территории дома-интерната, расположенного в городской застройке, должны быть выделены 4 основные зоны:

- зона проживания с расположенными в ней площадками для отдыха, теневыми навесами, спортивными площадками;

- зона обслуживания с площадкой при кухне;

- зона приема с карантинным отделением и изолятором;

- хозяйственная зона.

Как показала практика проектирования и эксплуатации домов-интернатов для взрослых инвалидов и престарелых, эти типы учреждений, в отличие от детских, не нуждаются в том, чтобы приемно-карантинное отделение и изолятор обязательно располагались в отдельном корпусе.

Они могут располагаться на первом этаже в составе административно-бытовых или медицинских помещений.

Площадка при кухне может быть совмещена с хозяйственной зоной, т.е просто входить в ее состав.

При расположении площадок следует учитывать ориентацию спальных комнат с тем, чтобы шум от площадок не мешал отдыхающим.

На практике в состав территории часто включают танцевально-игровую площадку, которую следует также располагать подальше от окон спальных комнат.

На участок предусматривается два въезда - главный и хозяйственный. При этом к карантинно-приемному отделению может быть предусмотрен подъезд с главного въезда. При приемно-карантинном отделении следует предусмотреть возможность краткой стоянки и разворота автомашин, в том числе и автобусов. Это отделение должно быть связано удобным подъездом с хозяйственной зоной, в которой расположены длительная стоянка, гараж, мойка и т. п.

 

ЭКСПЛИКАЦИЯ

 

1. Главный въезд

 

6. Спортивные площадки

 

2. Хозяйственный въезд

 

7. Танцевально-игровая площадка

 

3. Вход в приемно-карантинное отделение

 

8. Беседки, павильоны

 

4. Хозяйственная зона

 

9. Главный корпус

 

5. Парники

 

10. Хозяйственные сооружения

РИС. 3.3. ПРИМЕРЫ ПЛАНИРОВОЧНЫХ РЕШЕНИЙ УЧАСТКА
ДОМА-ИНТЕРНАТА ДЛЯ ИНВАЛИДОВ И ПРЕСТАРЕЛЫХ

 

РИС. 3.4. НЕОБХОДИМЫЕ ГАБАРИТЫ КОММУНИКАЦИЙ, УСТРОЙСТВ
И СРЕДСТВ ПЕРЕДВИЖЕНИЯ ИНВАЛИДОВ

 

РИС. 3.5. ГАБАРИТЫ КОЛЯСОК, ПРИМЕНЯЕМЫХ ДЛЯ ПЕРЕДВИЖЕНИЯ
ИНВАЛИДОВ-ОПОРНИКОВ

 

РИС. 3.6. ГАБАРИТНЫЕ СХЕМЫ ПАНДУСОВ, ПОВОРОТОВ В КОРИДОРАХ,
ОТКРЫВАНИЯ ДВЕРЕЙ, ЛИФТОВЫХ ПЛОЩАДОК, ЛИФТОВЫХ ДВЕРЕЙ

На рис. 3.3 приведены примеры возможных планировочных решений территории дома-интерната для инвалидов и престарелых.

3.2. ЭРГОНОМЕТРИЧЕСКИЕ ТРЕБОВАНИЯ

Эргонометрические требования обуславливаются размерами пространства, необходимого для жизнеобеспечения инвалидов и престарелых, в том числе на колясках. Сюда относятся ширина проходов, коридоров, дверных проемов, лестниц, пандусов, необходимые размеры разворотов, поворотов и т. п., которые использованы для определения основных требований к габаритам помещений. При разработке требований по этому разделу учитывались усредненные габариты самого инвалида и используемых им средств передвижения (рис. 3.4, 3.5), а также отечественный и зарубежный опыт по проектированию отдельных элементов пространства.

Для колясочников, кроме обеспечения прямого прохода, необходимо предусмотреть места разворота колясок на 180° , при этом размер поворотного кругa принимается 140 см. в диаметре.

Необходимые условия для обеспечения передвижения колясочников следует соблюдать при проектировании поворотов коридоров, пандусов, лифтов (рис. 3.6).

Пандус и лифт являются единственными средствами обеспечения вертикальных связей (между этажами) для колясочников. Пандус имеет преимущества перед лифтом в том, что им колясочники могут пользоваться независимо от дежурного персонала, который часто предусматривается при лифтах. Между тем, как показывает строительство, в двухэтажных зданиях пандус стоит в 5 - 8 раз дороже лифта, а в трехэтажных - в 7 - 10 раз.

В специализированных учреждениях для инвалидов с поражением опорно-двигательного аппарата, где большое количество колясочников, пандус предусматривается обязательно. В учреждениях остальных типов устройство пандуса определяется заданием на проектирование.

3.3. ТРЕБОВАНИЯ К УСТРОЙСТВАМ И ПРИСПОСОБЛЕНИЯМ

Специальные устройства и приспособления предназначены для обеспечения инвалидам и немощным престарелым возможности передвижения, а также пользования приборами и оборудованием. Они могут быть стационарные и нестационарные (съемные и передвижные). Из стационарных приспособлений особо важное значение имеют средства, служащие для подъема и эвакуации инвалидов и престарелых, в том числе и на случай пожара - это пандусы, микроподъемники, тобогганы (рис. 3.7 - 3.10).

Для возможности пользования санитарными приборами применяются специальные приспособления, облегчающие усилия инвалидов и престарелых. Они могут быть стационарными (рис. 3.11), передвижными и съемными (рис. 3.12, 3.13).

Специальные приспособления применяются для горизонтальных и вертикальных передвижений инвалидов и немощных престарелых с помощью персонала или без его помощи (рис. 3.14 - 3.16). Такие устройства обычно применяются для доставки обслуживаемого в процедурные кабинеты и последующего его погружения в ванну или помещения на кушетку.

Стационарное устройство может располагаться рядом с оборудованием и пациент пересаживается на него из своей коляски, на которой он приехал самостоятельно.

 

1. Применение дополнительного пандуса

2. Устройство микролифта

РИС. 3.7. ВАРИАНТЫ УСТРОЙСТВ ДЛЯ ПОДЪЕМА ИНВАЛИДА-КОЛЯСОЧНИКА
НА УРОВЕНЬ НУЛЕВОЙ ОТМЕТКИ

 

РИС. 3.8. ПРИМЕРЫ УСТРОЙСТВА ВХОДНЫХ ЛЕСТНИЦ И ПАНДУСОВ

 

 

I - Стационарный тобогган
II - Приставной тобогган
III - Откидной тобогган обеспечивающий эвакуацию людей из лоджии-отстойника

 

РИС. 3.9. ТИПЫ ТОБОГГАНОВ ИСПОЛЬЗУЕМЫХ ДЛЯ ЭВАКУАЦИИ
НА СЛУЧАЙ ПОЖАРА

РИС. 3.10. СХЕМЫ ТОБОГГАНОВ

 

 

1-3 - Регулируемые

4-7 - Нерегулируемые

8 - Стационарное сидение с поручнями

 

РИС. 3.11. ТИПЫ СТАЦИОНАРНЫХ СИДЕНИЙ В ДУШЕВЫХ

 

 

1-6 - Для сидячих

7 - Для лежачих

РИС. 3.12. РАЗЛИЧНЫЕ ТИПЫ ПРИСПОСОБЛЕНИЙ ДЛЯ ВАНН.
ОБЛЕГЧАЮЩИЕ ОБСЛУЖИВАНИЕ ПАЦИЕНТОВ

 

1 - Типы пластмассовых насадок

2 - Тележка горизонтального и вертикального
перемещения с электрическим управлением

3, 4 - Типы кресел-сидений

РИС. 3.13. ПРИСПОСОБЛЕНИЯ И ОБОРУДОВАНИЕ ДЛЯ
ПОЛЬЗОВАНИЯ УНИТАЗАМИ

 

1 - Тележка с вертикальным и горизонтальным перемещением

2 - Тележка с судном с вертикальным и горизонтальным перемещением

3 - Тележка для душа с вертикальным и горизонтальным перемещением

4, 5 - Каталки для облегчения передвижения

РИС. 3.14. ТИПЫ ОБОРУДОВАНИЯ, ПРИМЕНЯЕМОГО
ДЛЯ ПЕРЕМЕЩЕНИЯ ПАЦИЕНТОВ

 

1 - Для вертикального перемещения

2 - Для горизонтального и вертикального перемещения
с механическим управлением

3, 4 - Для горизонтального и вертикального перемещения
с электроуправлением

РИС. 3.15. ТИПЫ ОБОРУДОВАНИЯ, ПРИМЕНЯЕМОГО
ДЛЯ ПЕРЕМЕЩЕНИЯ ПАЦИЕНТОВ

 

1 - Подъемник для горизонтального перемещения стоя

2 - Подъемник для горизонтального и вертикального перемещения сидя

3 - Подъемник для горизонтального и вертикального перемещения тяжелых инвалидов

4 - Подъемник для горизонтального и вертикального перемещения лежа

РИС. 3.16. ТИПЫ ОБОРУДОВАНИЯ, ПРИМЕНЯЕМОГО
ДЛЯ ПЕРЕМЕЩЕНИЯ ПАЦИЕНТОВ

 

4. ТРЕБОВАНИЯ К ПОМЕЩЕНИЯМ ПРОЖИВАНИЯ

Согласно МГСН 4.03-94 предусматривается два основных принципа проектирования помещений проживания:

- по типу коридорной системы, когда спальные с другими помещениями жилой ячейки связаны через коридор, систему коридоров;

- по квартирному типу, когда жилые помещения проектируются для группы из 5 - 6 человек с общей гостиной, кухней, столовой, прихожей, санитарным узлом.

Главный принцип проектирования помещений проживания - отход от казарменной системы и максимальное приближение жилой ячейки в целом и отдельных ее помещений к организации пространства по "семейному" принципу независимо от типа помещений проживания.

Проектирование спальных помещений для инвалидов и престарелых по типу коридорной системы - наиболее традиционный прием, применяемый в нашей практике учреждений медицинского назначения, в том числе и для домов- интернатов.

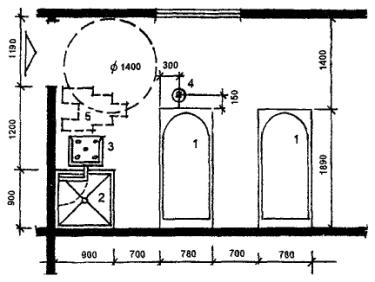
Новое - это сокращение вместимости спальных комнат для инвалидов и престарелых до 1 - 3 мест (как исключение 4 места), а также обязательное требование - предусматривать санитарные узлы при каждой спальной комнате. На рис. 4.1 - 4.3 приводятся примеры проектирования спальных комнат с учетом потребностей инвалидов-колясочников. При разработке планировочных схем спальных комнат преследовалась цель создания уютной, семейной обстановки жилой комнаты.

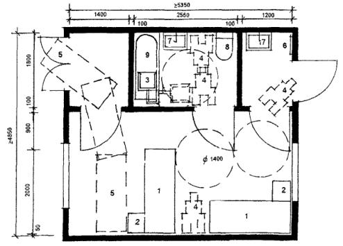
Наиболее полно семейную обстановку возможно создать при проектировании жилых помещений по типу квартир. На рис. 4.4 приводится схема возможной планировки общей комнаты-столовой, которая является связующим звеном для всех помещений квартиры. При этом помещении предусматривается кухня, отделенная от столовой стойкой.

Из общей комнаты-столовой предусматривается выход на лоджию-накопитель, которая согласно противопожарным требованиям должна быть глубиной не менее 2-х метров и быть оборудована откидным тобогганом, что позволяет не предусматривать второй лестницы на случай пожара.

Возможность обслуживания инвалидов-колясочников предопределяет особенности планировочной организации санитарных узлов. Необходимость предусматривать проходы, развороты для колясок, возможность подхода колясочников к санитарным приборам, устройство поворотного кресла при душе или ванне - главные условия проектирования санитарных узлов для инвалидов и престарелых (рис. 4.5).

При проектировании жилых помещений по типу квартиры в ее составе могут быть предусмотрены 2 - 3 санитарных узла с разным набором оборудования:

- унитаз с умывальником;

- унитаз, умывальник, душ;

- унитаз, умывальник, ванна.

Соблюдение требований прохода и разворота инвалидных колясок должно учитываться также при проектировании раздевальных (рис. 4.6).

 

ЭКСПЛИКАЦИЯ ОБОРУДОВАНИЯ

1. Кровать

2. Диван

3. Тумбочка

4. Стол

5. Стул

6. Кресло

7. Торшер

8. Банкетка

9. Инвалидная коляска

10. Комбинированный шкаф

РИС. 4.1. ПЛАНИРОВОЧНЫЕ СХЕМЫ ОДНОМЕСТНОЙ СПАЛЬНОЙ КОМНАТЫ

 

ЭКСПЛИКАЦИЯ ОБОРУДОВАНИЯ

1. Кровать

2. Диван

3. Тумбочка

4. Комбинированный шкаф

5. Стол

6. Стул

7. Кресло

8. Торшер

9. Банкетка

10. Инвалидная коляска

РИС. 4.2. ПЛАНИРОВОЧНЫЕ СХЕМЫ СПАЛЬНЫХ КОМНАТ НА 2 И 3 МЕСТА

 

ЭКСПЛИКАЦИЯ ОБОРУДОВАНИЯ

1. Кровать

2. Диван

3. Тумбочка

4. Комбинированный шкаф

5. Стол

6. Стул

7. Кресло

8. Торшер

9. Банкетка

10. Инвалидная коляска

РИС. 4.3. ПЛАНИРОВОЧНЫЕ СХЕМЫ СПАЛЬНЫХ КОМНАТ НА 3 И 4 МЕСТА

 

ЭКСПЛИКАЦИЯ ОБОРУДОВАНИЯ

1. Стол обеденный 160´90

2. Стол обеденный 140´90

3. Стул

4. Инвалидная коляска

5. Диван

6. Кресло

7. Журнальный столик

8. Торшер

9. Стол-стойка

10. Табурет

11. Телевизор

12. Холодильник

13. Кухонный стол

14. Подвесные шкафы

15. Электроплита

16. Мойка

17. Лоджия

18. Откидной тобогган

РИС. 4.4. ПРИМЕР ПЛАНИРОВКИ ОБЩЕЙ КОМНАТЫ-СТОЛОВОЙ И КУХНИ
В ЖИЛОЙ ЯЧЕЙКЕ ДЛЯ СЕМЬИ ИЗ 6 - 8 ЧЕЛ.

 

ЭКСПЛИКАЦИЯ ОБОРУДОВАНИЯ

1. Ванна

2. Унитаз

3. Душевой поддон

4. Умывальник

5. Инвалидная коляска

6. Поворотное кресло

I - Уборная с умывальником

II - Санитарный узел при спальной комнате вариант с душем

III - Санитарный узел при спальной комнате вариант с ванной

РИС. 4.5. ПЛАНИРОВОЧНЫЕ СХЕМЫ САНИТАРНЫХ УЗЛОВ

 

I - Раздевальная на 8 мест в помещениях проживания,
проектируемых по типу коридорной системы

II - Прихожая-раздевальная в помещениях проживания,
проектируемых по типу семейной квартиры

ЭКСПЛИКАЦИЯ ОБОРУДОВАНИЯ

1. Индивидуальный шкаф для одежды и обуви

6. Встроенный шкаф для одежды и обуви на семью

2. Индивидуальный шкаф для инвалида

7. Шкаф персонала

3. Сушильный шкаф

8. Открытая вешалка с крючками и полкой для головных уборов

4. Инвалидная коляска

9. Корзина для зонтов и палок

5. Скамья для одевания

10. Зеркало

РИС. 4.6. ПРИМЕРЫ ПЛАНИРОВКИ РАЗДЕВАЛЬНЫХ С УЧЕТОМ
ПОТРЕБНОСТИ ИНВАЛИДОВ-КОЛЯСОЧНИКОВ

 

5. ТРЕБОВАНИЯ К ПОМЕЩЕНИЯМ ПРОФЕССИОНАЛЬНОЙ
ПОДГОТОВКИ

Помещения профессиональной подготовки занимают важное место в домах-интернатах, поскольку являются базой для обеспечения очень важной функции учреждений - с одной стороны социальной адаптации инвалидов, а с другой стороны - занятости инвалидов и престарелых, возможности дополнительного заработка для них; с медицинской же точки зрения - это основной инструмент предотвращения деградаций у инвалидов герантологического профиля и у инвалидов с нарушениями деятельности умственного аппарата.

В составе помещений предусмотрены кабинеты для специализированных занятий - обучения компьютерной технике, машинописи.

В домах-интернатах обязательно предусматривается кабинет социальной адаптации, который служит для обучения инвалидов домоведению - умению подобрать продукты, изготовить из них какие-то блюда, накрыть и сервировать стол, принять гостей и т.п. В этом кабинете могут проводиться дни рождения, праздники с приглашением гостей. Состоит кабинет из рабочей зоны, практически кухни, где приготавливаются блюда, а также представительной зоны, где стоят столы со стульями, проводятся танцы и игры. Обе зоны разделены стойкой, где вначале происходит разделка продуктов (подготовка их к варке или жарению, приготовление теста, чистка и нарезка зелени и т.п.), затем подготовка блюд к подаче на стол (раскладка по тарелкам, украшение и т.п.).

Предложения по расстановке оборудования в представительской зоне разработаны для двух вариантов размещения инвалидов и их гостей - на 11 и на 21 место. Комбинированная стенка рассчитана на хранение столовой посуды, белья, музыкальной техники, видиотехники, кассет, дисков и т.п. (рис. 5.1).

Примыкающая к кабинету социальной адаптации кладовая-инвентарная служит для хранения запасов белья и посуды, мебели и т.п.

Библиотека с читальным залом и открытым доступом к книгам (рис. 5.2), а также кабинеты рисунка и музыкальных занятий (рис. 5.3, 5.4) могут быть предусмотрены как в составе помещений профессиональной подготовки, так и в составе помещений культурно-массового обслуживания.

На рис. 5.5 - 5.11 приведены примеры планировок производственных мастерских для наиболее распространенных видов деятельности.

Швейная мастерская, кроме ее основной специализации, может быть использована для занятий различными видами рукоделия (вязания, вышивания, художественной аппликации).

 

ЭКСПЛИКАЦИЯ ОБОРУДОВАНИЯ

1. Стол обеденный

1а. Стол резервный

2. Стул

3. Инвалидная коляска

4. Комбинированная стенка

5. Холодильник

6. Мойка

7. Плита

8. Стол-шкаф кухонный

9. Сервировочная стойка. разделочный стол-шкаф

10. Табурет

РИС. 5.1. ПЛАНИРОВОЧНАЯ СХЕМА КАБИНЕТА СОЦИАЛЬНО-БЫТОВОЙ АДАПТАЦИИ,
КОМНАТА ДЛЯ ПРИЕМА ГОСТЕЙ НА 11 И 21 ПОСАДОЧНЫХ МЕСТА

 

ЭКСПЛИКАЦИЯ ОБОРУДОВАНИЯ

1. Шкаф для открытого
хранения книг

2. Стол для занятий

2а. Стол для занятий
инвалида-колясочника

3. Стул

4. Стол для абонементного
обслуживания

5. Табурет

6. Полки подвесные

7. Инвалидная коляска

РИС. 5.2. ПРИМЕР ПЛАНИРОВКИ БИБЛИОТЕКИ С ОТКРЫТЫМ ДОСТУПОМ
К КНИГАМ И ЧИТАЛЬНЫМ ЗАЛОМ

 

ЭКСПЛИКАЦИЯ ОБОРУДОВАНИЯ

1. Шкаф-стеллаж для рисунков, моделей, реквизита

2. Мольберт

2а. Специальный мольберт
для инвалида-колясочника

3. Помост для моделей и натурщиков

4. Кресло отдыха натурщиков

5. Ширма

6. Вешалка с зеркалом

7. Стол преподавателя

8. Стул

9. Выставка рисунков и картин

10. Инвалидная коляска

РИС. 5.3. ПРИМЕР ПЛАНИРОВКИ КАБИНЕТА РИСУНКА

 

ЭКСПЛИКАЦИЯ ОБОРУДОВАНИЯ

1. Стул

2. Пюпитр

2а. Специальный пюпитр для инвалида-колясочника

3. Помост для руководителя

4. Пианино

5. Табурет винтовой

6. Шкаф музыкальных инструментов, нот и т. п.

7. Инвалидная коляска

РИС. 5.4. ПРИМЕР ПЛАНИРОВКИ КАБИНЕТА МУЗЫКАЛЬНЫХ ЗАНЯТИЙ

 

ЭКСПЛИКАЦИЯ ОБОРУДОВАНИЯ

1. Стол ученический

2. Стул ученический

3. Стол ученический для инвалида-колясочника

4. Стол учительский

5. Стул учительский

6. Стол для сервера (центрального процессора)

7. Стол для ученического компьютера (терминала)

8. Доска

9. Полки подвесные

10. Инвалидная коляска

РИС. 5.5. ПЛАНИРОВОЧНАЯ СХЕМА КОМПЬЮТЕРНОГО
КАБИНЕТА НА 8 ЧЕЛОВЕК

 

ЭКСПЛИКАЦИЯ ОБОРУДОВАНИЯ

1. Стол учителя

2. Стул учителя

3. Стол ученический

4. Стул ученический

5. Шкаф-стеллаж

6. Умывальник

7. Доска

8. Инвалидная коляска

РИС. 5.6. ПЛАНИРОВОЧНАЯ СХЕМА КАБИНЕТА МАШИНОПИСИ НА 8 ЧЕЛОВЕК

 

СПЕЦИФИКАЦИЯ ОБОРУДОВАНИЯ

1. Стол рабочий

2. Табурет регулируемый

3. Проволочно-швейный аппарат

4. Стол-зонт с электроклеевой сваркой

5. Письменный стол мастера

6. Стул

7. Умывальник керамический

8. Инвалидная коляска

РИС. 5.7. ПРИМЕР ПЛАНИРОВКИ КАРТОНАЖНОЙ МАСТЕРСКОЙ

 

ЭКСПЛИКАЦИЯ ОБОРУДОВАНИЯ

1. Стол обувщика

2. Табурет регулируемый

3. Машина для пристрочки подошв

4. Машина для отделочных операций

5. Пресс для приклеивания подошв

6. Машина для приклеивания каблуков к женской обуви

7. Шарошечно-полировальный станок

8. Верстак слесарный с машиной для обрезки подошв

9. Швейная машина со столом

10. Письменный стол мастера

11. Стул

12. Умывальник керамический

13. Инвалидная коляска

РИС. 5.8. ПРИМЕР ПЛАНИРОВКИ ОБУВНОЙ МАСТЕРСКОЙ

 

ЭКСПЛИКАЦИЯ ОБОРУДОВАНИЯ

1. Стол рабочий

2. Стол ремонта телерадиоаппаратуры

3. Табурет регулируемый

4. Стол-зонт

.5 Письменный стол мастера

6. Стул

7. Умывальник керамический

8. Инвалидная коляска

РИС. 5.9. ПРИМЕР ПЛАНИРОВКИ МАСТЕРСКОЙ ПО РЕМОНТУ
АППАРАТУРЫ И БЫТОВОЙ ТЕХНИКИ

 

ЭКСПЛИКАЦИЯ ОБОРУДОВАНИЯ

1. Швейная машина

2. Табурет регулируемый

3. Стол раскроечный

4. Гладильный стол

5. Гладильный пресс

6. Рабочий стол

7. Умывальник керамический

8. Письменный стол мастера

9. Стул

10. Инвалидная коляска

РИС. 5.10. ПРИМЕР ПЛАНИРОВКИ ШВЕЙНОЙ МАСТЕРСКОЙ

 

ЭКСПЛИКАЦИЯ ОБОРУДОВАНИЯ

1. Верстак столярный

2. Табурет регулируемый

3. Стол-зонт

4. Умывальник керамический

5. Письменный стол мастера

6. Стул

7. Дисковая электропила

8. Станок токарный по дереву

9. Инвалидная коляска

РИС. 5.11. ПРИМЕР ПЛАНИРОВКИ СТОЛЯРНОЙ МАСТЕРСКОЙ

 

6. ТРЕБОВАНИЯ К ПОМЕЩЕНИЯМ МЕДИЦИНСКОГО
ОБСЛУЖИВАНИЯ

Эти помещения предназначены как для текущего медицинского обслуживания, так и для медицинской реабилитации инвалидов и престарелых.

Примеры планировки основных помещений медицинского обслуживания даны только в тех случаях, когда должна быть отражена специфика обслуживания инвалидов. Остальные помещения проектируются по существующим нормативам и рекомендациям.

Принятые габариты оборудования приведены достаточно условно, что объясняется большим разнообразием типов применяемых в практике приборов, устройств и т.п.

Разработка планировочных схем базировалась на следующих положениях:

- необходимость учета технологических требований к размещению оборудования (расстояния между приборы и стенами и т.п.).

- учет необходимости обслуживания инвалидов-колясочников (подъезды, проезды, повороты);

- учет размещения устройств для перемещения инвалидов к приборам и оборудованию (применение поворотных и подъемных устройств для опускания инвалида в ванну, на кушетку и т.п.).

Принципы применяемых в практике устройств для перемещения инвалидов к оборудованию приводятся на рис. 3.14 - 3.16 (Разд. 3), а примеры самого оборудования на рис. 6.13, 6.14.

На рис. 6.1 - 6.12, 6.15 - 6.18 приведены примеры планировочных решений лечебно-процедурных кабинетов с учетом обслуживания инвалидов-колясочников, а также применением специального оборудования и устройств для их перемещения

На рис. 6.19 разработаны примеры планировки мельцеровских боксов на 1 и 2 места (входящих в состав приемно-карантинного отделения) с учетом обслуживания инвалида-колясочника и возможностью эвакуации больного на носилках.

 

ЭКСПЛИКАЦИЯ ОБОРУДОВАНИЯ

1. Стол врача однотумбовый

2. Кушетка смотровая

3. Инвалидная коляска

4. Шкаф врача

5. Стул

6. Умывальник керамический

7. Весы медицинские

8. Ростомер

РИС. 6.1. КАБИНЕТ ВРАЧА (ТЕРАПЕВТА, ПСИХОНЕВРОЛОГА)

 

ЭКСПЛИКАЦИЯ ОБОРУДОВАНИЯ

1. Стол врача

2. Стул

3. Таблица

4. Кушетка смотровая

5. Столик инструментальный

6. Шкаф медицинский

7. Холодильник бытовой

8. Умывальник керамический

9. Стол палатный

10. Офтальмоскоп

11. Табурет

12. Периметр настольный с регистрирующим устройством

13. Бачок для отходов

14. Светозащитный занавес

РИС. 6.2. КАБИНЕТ КОНСУЛЬТАТИВНОГО ПРИЕМА С ТЕМНОЙ КОМНАТОЙ

 

ЭКСПЛИКАЦИЯ ОБОРУДОВАНИЯ

1. Стол медсестры

2. Кушетка смотровая

3. Стул

4. Стол палатный

5. Холодильник бытовой

6. Шкаф медицинский

7. Столик инструментальный

8. Бачок для отходов

9. Умывальник керамический

10. Инвалидная коляска

РИС. 6.3. ПРОЦЕДУРНАЯ

 

ЭКСПЛИКАЦИЯ ОБОРУДОВАНИЯ

1. Кресло стоматологическое

2. Установка стоматологическая универсальная

3. Столик стоматологический

4. Стул стоматологический

5. Стол врача

6. Шкаф медицинский одностворчатый

7. Столик инструментальный

8. Стул

9. Плевательница

10. Бачок для отходов (педальный)

11. Инвалидная коляска

РИС. 6.4. КАБИНЕТ СТОМАТОЛОГА

 

ЭКСПЛИКАЦИЯ ОБОРУДОВАНИЯ

1. Кресло гинекологическое

2. Столик инструментальный

3. Светильник однорефлекторный передвижной

4. Стул винтовой

5. Стол врача

6. Стул

7. Кушетка

8. Умывальник керамический

9. Шкаф медицинский

10. Инвалидная коляска

11. Бачок для мусора

РИС. 6.5. КАБИНЕТ ГИНЕКОЛОГА. УРОЛОГА

 

ЭКСПЛИКАЦИЯ ОБОРУДОВАНИЯ

1. Стационарная ингаляционная установка

1а. Стационарная ингаляционная установка рассчитанная
на пользование инвалидом-колясочником

2. Винтовой табурет

3. Умывальник

4. Экран

5. Инвалидная коляска

РИС. 6.6. ИНГАЛЯТОРИЙ НА 3 МЕСТА

 

ЭКСПЛИКАЦИЯ ОБОРУДОВАНИЯ

1. Кушетка смотровая

2. Стол для переносной аппаратуры

3. Стул

4. Инвалидная коляска

А - Для приема процедур лежа

Б - Для приема процедур сидя

РИС. 6.7. ФРАГМЕНТЫ РАЗМЕЩЕНИЯ ОБОРУДОВАНИЯ В КАБИНЕТАХ
ЭЛЕКТРОСВЕТОЛЕЧЕНИЯ

 

ЭКСПЛИКАЦИЯ ОБОРУДОВАНИЯ

1. Условная зона расстановки оборудования для механотерапии

2. Стол медицинской сестры

3. Стул

4. Шкаф для хранения салфеток, полотенец и пр.

5. Инвалидная коляска

6. Умывальник

РИС. 6.8. КАБИНЕТ МЕХАНОТЕРАПИИ

 

ЭКСПЛИКАЦИЯ ОБОРУДОВАНИЯ

1. Стол врача

2. Стул

3. Шкаф медицинский

4. Кушетка смотровая

5. Умывальник керамический

6. Стол палатный

7. Зеркало

8. Стеллаж библиотечный

9. Инвалидная коляска

РИС. 6.9. КАБИНЕТ ЛОГОПЕДА

 

ЭКСПЛИКАЦИЯ ОБОРУДОВАНИЯ

1. Ванна керамическая ангобированная

2. Душ

3. Поворотное кресло

4. Подъемник для помещения больного в ванну

5. Инвалидная коляска

РИС. 6.10. ФРАГМЕНТЫ ВАННОГО ЗАЛА КАБИНЕТА ВОДОЛЕЧЕНИЯ

 

ЭКСПЛИКАЦИЯ ОБОРУДОВАНИЯ

1. Ванна

2. Подвесное кресло

3. Трос или балка

4. Инвалидная коляска

РИС. 6.11. ПЛАНИРОВОЧНЫЕ СХЕМЫ ВАННЫХ ЗАЛОВ НА 4 И 6 ВАНН

 

ЭКСПЛИКАЦИЯ ОБОРУДОВАНИЯ

1. Ванна подводного массажа

2. Аппарат для подводного массажа

3. Подъемник для помещения больного в ванну

4. Банкетка

5. Вешалка на 2 крючка

6. Полотенцесушитель

7. Умывальник керамический

8. Ведро педальное

9. Инвалидная коляска

РИС. 6.12. КАБИНЕТ ПОДВОДНОГО МАССАЖА

 

 

1, la - ванна с откидным бортом

2, 2а - опрокидывающаяся ванна ("ракушка")

3, 3а - ванна с откидной стенкой и возможностью въезда в нее на каталке

4 - ванна с откидной стенкой, рассчитанная на пересадку инвалида с коляски

РИС. 6.13. ТИПЫ ОБОРУДОВАНИЯ, ПРИМЕНЯЕМОГО ДЛЯ
ВОДОЛЕЧЕНИЯ ИНВАЛИДОВ

 

РИС. 6.14. ТИПЫ ОБОРУДОВАНИЯ, ПРИМЕНЯЕМОГО
ДЛЯ ВОДОЛЕЧЕНИЯ ИНВАЛИДОВ

 

ЭКСПЛИКАЦИЯ ОБОРУДОВАНИЯ

1. Пульт управления

2. Душ циркулярный

3. Душ дождевой

4. Душ восходящий

5. Душ шарко

6. Откидные поручни

7. Инвалидная коляска

РИС. 6.15. КАБИНЕТ ГИДРОПАТИИ

 

ЭКСПЛИКАЦИЯ ОБОРУДОВАНИЯ

1. Кушетка смотровая

2. Тумбочка прикроватная

3. Стол медсестры

4. Стул

5. Инвалидная коляска

РИС. 6.16. КАБИНЕТ ОЗОКЕРИТО- И ПАРАФИНОЛЕЧЕНИЯ
И ГОРЯЧЕГО УКУТЫВАНИЯ

 

ЭКСПЛИКАЦИЯ ОБОРУДОВАНИЯ

1. Аппарат для проведения электросна

2. Шкаф медицинский

3. Стол

4. Кровать для сна

5. Умывальник керамический

6. Стул

7. Инвалидная коляска

РИС. 6.17. КАБИНЕТ ЛЕЧЕНИЯ ЭЛЕКТРОСНОМ

 

ЭКСПЛИКАЦИЯ ОБОРУДОВАНИЯ

1. Кушетка смотровая

2. Стол палатный

3. Стул

4. Шкаф медицинский

5. Раковина керамическая

6. Шкаф вытяжной

7. Холодильник

8. Инструментальный столик

9. Инвалидная коляска

РИС. 6.18. АМИНОЗИНОВЫЙ КАБИНЕТ

 

ЭКСПЛИКАЦИЯ ОБОРУДОВАНИЯ

1. Кровать

2. Тумбочка

3. Поворотное кресло для инвалида

4. Инвалидная коляска

5. Каталка для эвакуации лежачего больного

6. Вешалка для сменных халатов

7. Умывальник

8. Унитаз

9. Ванна

РИС. 6.19. ПРИМЕРЫ ПЛАНИРОВКИ МЕЛЬЦЕРОВСКИХ
БОКСОВ НА 1 И НА 2 МЕСТА

 

7. ТРЕБОВАНИЯ К ПОМЕЩЕНИЯМ КУЛЬТУРНО-
МАССОВОГО ОБСЛУЖИВАНИЯ

В состав помещений культурно-массового обслуживания домов-интернатов для инвалидов и престарелых входят зрительный зал с эстрадой, фойе, вспомогательные помещения, кружковые помещения, физкультурный зал, бассейн.

Зрительный зал предусматривается с учетом расстановки, наряду с местами для обычных ходячих зрителей, мест для инвалидов-колясочников (рис. 7.1). Количество мест, которые следует предусматривать для инвалидов-колясочников, определяется заданием на проектирование.

Кружковые помещения (живописи и рисунка, музыкальных занятий) приведены в разделе 5 "Требования к помещениям профессиональной подготовки" (рис. 5.3, 5.4)

Планировочные особенности раздевальных при спортивном зале и бассейне, учитывающие специфику функционирования инвалидов-колясочников, приведены на рис. 7.2.

На рис. 7.3 - 7.5 приведены примеры приспособлений и оборудования, при меняемых для облегчения входа инвалидов в бассейн.

 

ЭКСПЛИКАЦИЯ

1. Сцена

2. Места для ходячих зрителей

3. Места размещения инвалидов-колясочников

4. Пандус

РИС. 7.1. ВАРИАНТЫ РАЗМЕЩЕНИЯ МЕСТ В ЗРИТЕЛЬНОМ ЗАЛЕ

 

ЭКСПЛИКАЦИЯ ОБОРУДОВАНИЯ

1. Скамья с открытой вешалкой и местом для обуви

2. Инвалидная коляска(индивидуальная)

2а. Инвалидная коляска (закрепленная за бассейном)

3. Окно для наблюдений

3а. Окно для наблюдений, выдача чистых полотенец

4. Бачок для грязного белья

5. Слив

6. Унитаз

7. Умывальник

8. Душевая кабина обычная

9. Душевая кабина с учетом возможности пользования инвалидом-колясочником

10. Трап

11. Подвесное кресло для инвалида-колясочника

12. Трос или балка

I Раздевальная при бассейне с санитарным узлом душевой
и комнатой хранения предметов уборки

II Вариант планировки душевой и комнаты хранения
предметов уборки в расчете на перемещение инвалида-
колясочника при помощи подвесного кресла

III Раздевальная при физкультурном зале с санитарными узлами и душевой

РИС. 7.2. ПРИМЕРЫ ВОЗМОЖНОЙ ПЛАНИРОВКИ
РАЗДЕВАЛЬНЫХ И ДУШЕВЫХ ПРИ БАССЕЙНЕ И
ФИЗКУЛЬТУРНОМ ЗАЛЕ

 

1. СТАЦИОНАРНЫЕ ПОДЪЕМНИКИ

2. ПРИСПОСОБЛЕНИЯ ВХОДА В БАССЕЙН С ВЫСОТОЙ
БОРТА НА УРОВНЕ КОЛЯСКИ

3. ПРИСПОСОБЛЕНИЯ ВХОДА В БАССЕЙН С ВЫСОТОЙ БОРТА
НА УРОВНЕ ПОЛА

РИС. 7.3. ПРИМЕРЫ РАЗЛИЧНЫХ ПРИСПОСОБЛЕНИЙ ДЛЯ ВХОДА
ИНВАЛИДОВ В БАССЕЙН

 

1. ОБЩИЙ ВИД ПЛАВАТЕЛЬНОГО БАССЕЙНА С ПОДЪЕМНЫМИ УСТРОЙСТВАМИ И ПАНДУСОМ ДЛЯ ОПУСКАНИЯ В ВОДУ

2. СХЕМА БОРТА БАССЕЙНА ВЫСОТОЙ НА УРОВНЕ СИДЕНИЯ КОЛЯСКИ

РИС. 7.4. ПРИМЕРЫ ОБОРУДОВАНИЯ ПЛАВАТЕЛЬНОГО БАССЕЙНА

 

РИС. 7.5. ПРИМЕРЫ ПРИСПОСОБЛЕНИЙ, ИСПОЛЬЗУЕМЫХ ДЛЯ ИНВАЛИДОВ
В ПЛАВАТЕЛЬНЫХ БАССЕЙНАХ

 

8. ТРЕБОВАНИЯ К ПОМЕЩЕНИЯ ПИТАНИЯ

В состав помещений питания входят обеденные залы и производственные помещения кухни.

Обеденные залы могут размещаться как в составе жилых помещений, куда пища доставляется в бачках и термосах, так и непосредственно при блоке кухонных помещений. Обеденные залы, независимо от того, где они располагаются, проектируются с учетом обслуживания инвалидов-колясочников на основе принципов организации обеденных мест, приведенных на рис. 8.1.

Производственные помещения кухни не имеют специфики проектирования в зависимости от обслуживания инвалидов-колясочников и поэтому формируются в соответствии с общими требованиями к проектированию помещений такого типа. В силу этого в настоящем Пособии этот вопрос не рассматривается.

РАСЧЕТ ВМЕСТИМОСТИ СТОЛОВОЙ (БУФЕТА) ПЕРСОНАЛА

Вместимость столовой или буфета для обслуживания персонала определяется заданием на проектирование по расчету в зависимости от конкретных условий.

Коэффициент числа обслуживающего персонала следует принимать К = 0,8-1,0 по отношению к вместимости учреждения и уточняется заказчиком при выдаче задания.

Как показала практика, 70 % персонала, как правило, работает в первую смену и только 50 – 60 % их них пользуется столовой или буфетом.

Таким образом, число питающихся в столовой или буфете персонала можно будет определить по формуле:

N = K1 ´ К2 ´ К3 ´ Р

где:

N - общее число питающихся, принимаемых в расчете вместимости столовой или буфета;

Р - вместимость учреждения;

K1 - коэффициент, учитывающий общее число персонала по отношению к вместимости учреждения (K1 = 0,8 - 1,0);

К2 - коэффициент, определяющий число работающих в первую смет (К2 = 0,7);

К3 - коэффициент, учитывающий число персонала, питающегося в столовой, от общего числа персонала (К3 = 0,5 - 0,6).

В столовых и буфетах персонала применяется самообслуживание со скользящим графиком питания. Расчетное время на одну посадку принимается 25 - 30 мин., т.е. примерно 2-2,5 посадки в час на одно место.

Обеденное время принимается, как правило, в учреждениях малой вместимости 1,5 - 2,0 часа (т.е. 3 - 4,4 посадки); в больших учреждениях - 2 - 2,5 часа (т.е. 4 - 5 посадок). Разделив полученное в результате расчетов число питающихся на число посадок, мы получим расчетную вместимость столовой или буфета персонала.

Чтобы определить площадь обеденного зала, необходимо полученную вместимость округлить до четырех (в расчете на четырехместные столы) и умножить на 1,8 - удельный показатель площади на 1 место, принимаемый для таких залов.

Для примера произведем расчет площади обеденного зала столовой персонала для учреждений на 150 мест Р = 150. Число питающихся ("N") определим по приведенной выше формуле, подставив необходимые показатели:

N = 1,0 ´ 0,7 ´ 0,5 ´ 150 = 52,5

Если принять расчетное число посадок равное 3, то единовременная вместимость обеденного зала составит:

52,5:3 = 17,5

Тогда площадь обеденного зала составит. 1,8 м2 ´ 17 » 30 м2.

 

ЭКСПЛИКАЦИЯ ОБОРУДОВАНИЯ

1 Стол

2. Стул

3. Инвалидная коляска

РИС. 8.1. ПРИМЕРЫ ОРГАНИЗАЦИИ ОБЕДЕННЫХ МЕСТ В СТОЛОВЫХ

 

Приложение

ТИПЫ ОБОРУДОВАНИЯ, ПРИМЕНЯЕМОГО ДЛЯ
РАЗВИТИЯ ДВИГАТЕЛЬНЫХ ФУНКЦИЙ

1 - Тренажер для развития верхнего плечевого пояса

2, 3 - Тренажеры для комплексного развития мускулатуры

 

 

Тренажер для развития
грудной мускулатуры

Тренажер для развития грудной и плечевой мускулатуры

 

 

Тренажер для развития
коленного сустава

Тренажер для развития
правильной осанки

 

Тренажер для развития мышц
верхних и нижних конечностей

Тренажер для развития верхнего
плечевого пояса

Тренажер для развития брюшного
пресса и нижних конечностей

 

Тренажер для развития мышц спины

Тренажер для развития мышц
спины и верхних конечностей

 

 

Тренажер для развития мышц брюшного
пресса верхних и нижних конечностей

Тренажер для развития мышц
брюшного пресса

 

Тренажеры для развития мышц:

1, 2 - верхних и нижних конечностей

3, 9 -брюшного пресса

4 - верхнего плечевого пояса

5 - нижних конечностей

6 - "Беговая дорожка"

7 - тренажер "Велосипед"

8 - спины и верхних конечностей

 

 



© 2013 Ёшкин Кот :-)