Информационная система
«Ёшкин Кот»

XXXecatmenu

Минстрой России

Минсоцзащиты России

АО ЦНИИпромзданий

РЕКОМЕНДАЦИИ
ПО ПРОЕКТИРОВАНИЮ ОКРУЖАЮЩЕЙ СРЕДЫ,
ЗДАНИЙ И СООРУЖЕНИЙ
С УЧЕТОМ ПОТРЕБНОСТЕЙ ИНВАЛИДОВ И ДРУГИХ
МАЛОМОБИЛЬНЫХ ГРУПП НАСЕЛЕНИЯ

Выпуск 20

Промышленные предприятия,
здания и сооружения
для труда инвалидов
различных категорий

МОСКВА 1994

Рекомендации по проектированию окружающей среды, зданий и сооружений с учетом потребностей инвалидов и других маломобильных групп населения. Промышленные предприятия, здания и сооружения для труда инвалидов различных категорий: Вып. 20/Минстрой России, Минсоцзащиты России, АО ЦНИИпромзданий.

Содержат общие требования к генеральным планам и зданиям промышленных предприятий, где по медицинским показаниям возможно трудоустройство инвалидов, перечень архитектурно-строительных мероприятий, обеспечивающих комфортное пребывание в производственной среде трудящихся инвалидов.

Рекомендации разработаны сектором социальных проблем промышленной архитектуры АО ЦНИИпромзданий (канд. арх. Л. А. Викторова, мл. научн. сотр. Н. Б. Сипкина, инж. О. И. Алексютина).

Подготовлены к изданию при участии В. А. Цветкова, Н. Н. Якимовой, В. Н. Устюхина (Минстрой России), А. И. Кузнецовой (Минсоцзащиты России); Ю. В. Колосова (Координационный комитет).

Введение

Инвалиды трудоспособного возраста составляют значительную часть населения России. Их трудоустройство является важной социальной задачей в современных экономических условиях.

В промышленном производстве вредные технологические факторы и условия труда приводят к возникновению у работников профессиональных заболеваний и производственных травм, приводящих к инвалидности. Статистические данные ВТЭК показывают, что в России из каждых 10000 чел., работающих на промышленных предприятиях различных отраслей промышленности, ежегодно становятся впервые на учет по инвалидности от 51,3 до 107,6 чел. Наибольшее число вставших на учет приходится на предприятия отраслей промышленности со сравнительно нормальными условиями труда (приборостроение, производство средств автоматизации и систем управления). Среди причин инвалидности населения трудоспособного возраста на первом месте - заболевания сердечно-сосудистой системы, на втором - онкологические заболевания на третьем - травмы.

Динамика инвалидности трудящихся на производстве имеет тенденцию возрастания. В связи с этим трудящимся, ставшим инвалидами вследствие профзаболеваний и производственных травм, должны быть созданы условия для продолжения трудовой деятельности. Строительные нормы (до 1 июля 1994 г.), по которым проектировались здания и территории промышленных предприятий, были рассчитаны только на здорового участника производственного процесса, что не соответствует действительному физическому состоянию среднестатистического труженика.

Рекомендации позволят в определенной степени исправить создавшееся положение в проектировании промышленных предприятий и обеспечить условия для трудоустройства инвалидов.

На предприятиях многих отраслей промышленности имеются профессии и специальности, соответствующие психофизиологическим особенностям инвалидов различных категорий. Перечень таких профессий определяется медиками различной специализации и формируется в виде рекомендаций для ВТЭК. С учетом этих рекомендаций трудоустройство инвалидов может осуществляться по двум направлениям.

Первое - целенаправленное создание специализированных производственных зданий, цехов производственных участков или мастерских для тех категорий инвалидов, физиологические особенности которых предъявляют сложный комплекс специфических санитарно-гигиенических, архитектурно-строительных и эргономических требований к производственной среде.

Оно целесообразно для таких инвалидов, как: слепых (полностью), глухонемых и полностью глухих инвалидов со сниженным интеллектом и инвалидов, пользующихся для передвижения креслами-колясками, хотя и для них могут быть подобраны и организованы рабочие места в отдельных цехах и помещениях на предприятиях общего типа.

Многообразие отраслей производства, технологий, профессий и специальностей в промышленности укрывает на то, что один из возможных путей рационального трудоустройства инвалидов - подбор производственной среды с учетом особенностей различных категорий инвалидности.

Второе направление - подбор на предприятиях общего типа цехов, производственных участков, вспомогательных служб и помещений, в которых отсутствуют противопоказанные для инвалидов производственные (технологические и санитарно-гигиенические) факторы и в то же время имеются профессии и специальности соответствующие психофизиологическим особенностям инвалидов той или иной категории. В этом случае достаточными могут стать сравнительно несложные архитектурно-строительные, эргономические и организационные мероприятия, обеспечивающие оптимальные условия труда для инвалидов. Этот путь должен стать основным, так как без значительных материальных затрат он позволяет трудоустроить большой контингент инвалидов различных категорий.

Указанный пассивный путь трудоустройства инвалидов на производстве целесообразен, в первую очередь, для действующих промышленных предприятий. На вновь проектируемых и реконструируемых промышленных предприятиях целесообразно наряду с подбором производственной среды для инвалидов проводить и ее преобразование, что позволит охватить трудоустройством большой контингент инвалидов трудоспособного возраста.

На данном этапе работы составлена принципиально новая таблица факторов, которые следует учитывать при подборе производственной среды для инвалидов различных категорий. Предлагается активный подход к интеграции инвалидов в производственные процессы. Помимо учета противопоказанных технологических и санитарно-гигиенических условий необходимы архитектурно-строительные, эргономические и организационные условия и мероприятия, обеспечивающие инвалидам доступность производственной среды и возможность производительно работать.

Трудоустройство инвалидов в промышленном производстве с учетом двух направлений может быть организовано:

на предприятиях общего типа путем выделения отдельных в необходимых случаях специально оборудованных рабочих мест;

на предприятиях общего типа путем организации специализированных производственных участков или цехов;

на малых предприятиях общего типа путем выделения отдельных рабочих мест при общей планировке предприятия, обеспечивающей минимум передвижений для маломобильных инвалидов (пользующихся для передвижений креслами-колясками или костылями);

на специализированных предприятиях, создаваемых в системах ВОС, ВОГ и ВОИ, для соответствующих категорий инвалидов;

в мастерских при домах инвалидов и реабилитационных центрах.

Формы трудоустройства инвалидов должны сочетаться с развитием надомного труда для людей I и II групп инвалидности. При этом рабочие места инвалидов-надомников должны быть специально оборудованы за счет предприятий, и на предприятиях должны быть организованы доставка сырья, полуфабрикатов и необходимых приспособлений надомнику, транспортировка готовой продукции, а в необходимых случаях и инструктаж на дому.

Большинство норм, приведенных в Рекомендациях и выраженных в цифрах, рассчитано на инвалидов с поражениями опорно-двигательного аппарата, пользующихся креслами-колясками, костылями и другими приспособлениями для передвижения, и их выполнение будет способствовать улучшению условий труда инвалидов других категорий и физически ослабленных рабочих и служащих.

Область распространения Рекомендаций: предприятия различных отраслей промышленности, в том числе: машиностроения, приборостроения, электроники, радиотехнической, электротехнической промышленности, легкой, пищевой, местной промышленности, предприятия бытового обслуживания населения, ремонтные предприятия и другие, где имеются профессии и специальности, медицински показанные для инвалидов, а также административно-бытовые здания, здания конструкторских бюро, здания вспомогательных цехов и служб, где для них могут быть организованы рабочие места, на предприятиях тех отраслей промышленности, где в основных производственных цехах трудоустройство инвалидов противопоказано.

Факторы, учитываемые при подборе производственной среды для инвалидов

Категория инвалидности

Виды инвалидности

Особенности производственной среды

противопоказанные технологические и санитарно-гигиенические условия

необходимые архитектурно-строительные эргономические и организационные условия и мероприятия

1. Инвалиды с поражениями опорно-двигательного аппарата

Инвалиды с заболеваниями нервной, мышечной и костной систем, с пороками развития

 

 

верхних конечностей

Низкие температуры, сквозняки и перепады температур, токсические вещества

Специальные приспособления4

нижних конечностей

То же

Планировка, обеспечивающая минимум передвижений, пассажирские лифты1; специальные мебель и оборудование5

позвоночника

 

То же

Инвалиды с ампутацией конечностей:

 

 

верхних

Отсутствуют

Специальные приспособления

нижних

»

Планировка, обеспечивающая минимум передвижений; пассажирские лифты; специальные мебель и оборудование

Инвалиды, пользующиеся креслами-колясками

Низкие температуры, сквозняки и перепады температур, токсические вещества

Планировка, обеспечивающая минимум передвижений, отсутствие строительных препятствий2, специальные строительные элементы3, приспособления4, оборудование5, мебель, пассажирские лифты; дополнительные помещения для социального обслуживания; визуальная информация

2. Инвалиды с дефектами зрения

Слепые

Производственный шум; локальная вибрация; охлаждение рук

Преимущественно специализированные производственные здания; отсутствие строительных препятствий; специальные строительные элементы и приспособления; оборудование; тактильная и слуховая информация

Слабовидящие вследствие следующих заболеваний:

 

 

высокой близорукости; отслойки сетчатки; афакии; подвывиха хрусталика;

Вибрация

Тактильная, слуховая и визуальная информация; повышенная освещенность рабочих мест и помещений

помутнения роговицы, трахомы;

Пыль, водяные пары

Не требуются

атрофии зрительных нервов; перерождения сетчатки; хориоретинита

Токсические вещества

»

глаукомы

Вибрация; тепловое излучение; токсические вещества

»

отсутствия или слепоты одного глаза при здоровом другом

Наждачная пыль, стружка и другие частицы при обработке металла или других материалов

»

3. Инвалиды с дефектами слуха

Глухие

Отсутствуют

Визуальная информация

Тугоухие

Производственный шум, вибрация

То же

Глухонемые

Отсутствуют

Преимущественно специализированные цехи или производственные участки, дополнительные помещения; визуальная информация

4. Инвалиды вследствие нервно-психических заболеваний

Инвалиды:

 

 

со сниженным интеллектом

Химические и нейротоксические вещества

Преимущественно специализированные производственные здания или цехи

с эмоциональной неустойчивостью

Химические и нейротоксические вещества, производственный шум

Не требуются

5. Инвалиды вследствие внутренних заболеваний

Инвалиды с заболеваниями:

 

 

органов дыхания

Токсические вещества, пыль

Повышенная кратность воздухообмена

сердечно-сосудистой системы

Токсические вещества, пыль, производственный шум, вибрация, электромагнитные излучения; параметры микроклимата, отклоняющиеся от оптимальных

Пассажирские лифты

желудочно-кишечного тракта и мочеполовой системы

Токсические вещества, параметры микроклимата, отклоняющиеся от оптимальных

Организация диетического питания

1 Специальные пассажирские лифты - лифты, кабина которых соответствует габаритам инвалидной коляски.

2 Строительные препятствия: перепады пола или земли, бордюрные камни; недостаточная ширина тротуаров, пандусов, лестниц, коридоров, проходов между оборудованием, холлов, тамбуров, дверных проемов; пороги.

3 Специальные строительные элементы: кабины санузлов, душевые кабины и другие элементы, размеры которых соответствуют эргономике инвалида с костылями или на инвалидной коляске.

4 Специальные приспособления: различные поручни, штанги, ручки, крючки и т.д.

5 Специальное оборудование: станки в соответствии с эргономикой инвалида, насадки для обычных станков, инструментальные столики, манипуляторы, дополнительные светильники и т.п.

1. ГЕНЕРАЛЬНЫЕ ПЛАНЫ ПРОМЫШЛЕННЫХ ПРЕДПРИЯТИЙ

1.1. ОБЩИЕ ПОЛОЖЕНИЯ

1.1.1. Основные требования к планировке промышленного предприятия, где используется труд инвалидов:

минимальная протяженность пешеходных путей передвижения по территории;

безопасность передвижения по территории;

устранение или изменение элементов, создающих препятствия на путях передвижения инвалидов;

создание элементов, обеспечивающих удобную связь производства с местами проживания инвалидов.

1.1.2. Минимальная протяженность путей передвижения инвалидов по территории предприятия общего типа может быть обеспечена:

при сосредоточении вблизи от входа на завод специализированных производственных участков и цехов, помещений социально-бытового обслуживания и других помещений, повседневно посещаемых инвалидами;

путем четкого зонирования территории, при котором зона наиболее человекоемких и наименее вредных по санитарной категории производства цехов, где предполагается трудоустройство инвалидов на рассредоточенных рабочих местах и производственных участках, примыкает к предзаводской зоне (черт. 1).

Черт. 1. Сосредоточение мест повседневного пребывания инвалидов вблизи входа на завод

 - помещения и цехи, повседневно посещаемые инвалидами;

1 - производственные корпуса; 2 - бытовой корпус; 3 - административное здание, 4 - конструкторское бюро

1.1.3. Безопасность передвижения инвалидов по территории предприятия должна быть обеспечена при помощи оборудования мест пересечений пешеходных и грузовых потоков специальной информацией, а в необходимых случаях пандусами и защитными устройствами.

1.1.4. Элементы территории промышленного предприятия следует изменять, если они являются препятствиями для передвижения инвалидов: контрольно-пропускные пункты; устройство, покрытие и оборудование пешеходных путей.

1.1.5. Элементы, обеспечивающие связь мест проживания инвалидов и производств, где они трудятся:

стоянки личного транспорта инвалидов, максимально приближенные к рабочим местам;

дополнительные, специально оборудованные остановки общественного транспорта, рассредоточенные вдоль фронта заводских корпусов с целью приближения к рабочим местам;

на крупных предприятиях при необходимости - дополнительные контрольно-пропускные пункты (черт. 2).

Черт. 2. Рассредоточенное размещение остановок общественного транспорта на генеральном плане предприятия

¨ - остановка общественного транспорта;

1 - производственный корпус; 2 - бытовые здания; 3 - опытное производство; 4 - ПТУ

1.1.6. Генеральный план специализированного предприятия для слепых целесообразно формировать, исходя из особенностей восприятия окружающего пространства инвалидами этой категории. Планировка территории должна быть предельно простой для удобства ее запоминания и ориентировки в пространстве, пешеходные пути - спроектированы по прямоугольной схеме (черт. 3).

Черт. 3. Планировка территории предприятия для трудоустройства слепых инвалидов

1.2. ОСТАНОВКИ ОБЩЕСТВЕННОГО ТРАНСПОРТА, АВТОСТОЯНКИ

1.2.1. Остановки общественного транспорта и стоянки личного транспорта инвалидов должны размещаться не далее 50 м от контрольно-пропускных пунктов. В отдельных случаях на крупных и реконструируемых предприятиях, где расстояния от автостоянок общего пользования превышают лимитируемые 50 м до проходных пунктов, а от проходных пунктов до рабочих мест в сумме превышают 300 м, автостоянки для инвалидов следует делать обособленными и размещать их в производственной зоне рассредоточенно, вблизи от входов в бытовые корпуса. В этих случаях в планировке контрольно-пропускных пунктов предусматривают возможность пропуска личного автотранспорта инвалидов на заводскую территорию (черт. 4).

Черт. 4. Рассредоточенное размещение личного транспорта инвалидов

 - стоянки личного транспорта инвалидов;

1 - производственные корпуса; 2 - бытовые корпуса; 3 - административное здание

1.2.2. Остановки общественного транспорта необходимо оборудовать навесом или павильоном, а также платформой, уровень которой должен соответствовать уровню пола транспортного средства.

1.2.3. Количество мест для инвалидов на автостоянке определяется в каждом конкретном проекте в зависимости от квоты рабочих мест для инвалидов, принятой на данном производстве, но не менее одного места при общем числе мест на стоянке до 100.

1.2.4. Места для стоянки личных автотранспортных средств инвалидов выделяют разметкой и обозначают специальными символами. Ширина стоянки для автомобиля инвалида должна быть не менее 3,5 м.

1.3. ПУТИ ДВИЖЕНИЯ ПО ТЕРРИТОРИИ

1.3.1. Контрольно-пропускные пункты, оборудованные турникетами, должны иметь проезды для инвалидных колясок шириной не менее 1,2 м.

На специализированных предприятиях для трудоустройства инвалидов с дефектами зрения или для инвалидов со сниженным интеллектом устройство турникетов-вертушек нежелательно.

1.3.2. На заводской территории не допускается пересечений пешеходных дорожек для инвалидов, пользующихся креслами-колясками, и для инвалидов на костылях с грузовыми внутризаводскими проездами в одном уровне. При необходимости устройства пешеходного тоннеля, последний должен быть оснащен пандусом.

1.3.3. Устройство пандуса должно соответствовать следующим требованиям*:

_________

* Здесь и далее в пунктах, обозначенных, «*», использованы правила, изложенные в ВСН 62-91 «Проектирование среды жизнедеятельности с учетом потребностей инвалидов и маломобильных групп населения». Изменения ВСН 62-91 должны учитываться при пользовании данными Рекомендациями.

уклон каждого марша пандуса должен быть:

не более 5 % при длине марша от 25 м и более

от 5 до  7          »      »         »            24 до 14 м

» 7 »    10        »      »         »            14   » 10 »;

в начале и конце каждого подъема пандуса следует устраивать горизонтальные площадки шириной не менее ширины пандуса и длиной не менее 1,5 м. При изменении направления пандуса ширина горизонтальной площадки должна обеспечивать возможность поворота кресла-коляски;

по обеим сторонам пандуса предусматривают ограждения высотой не менее 0,9 м с поручнями. Поручни устанавливаются на высоте 0,7 м для людей, передвигающихся в колясках, и на высоте 0,9 м - для остальных.

1.3.4. Пешеходные пути на территории предприятия на участках, где должно быть обеспечено передвижение инвалидов, рекомендуется назначать не менее 1,2 м шириной, а при встречном движении инвалидных колясок - не менее 1,8 м.

Уклоны тротуаров и пешеходных дорожек при передвижении по ним инвалидов на креслах-колясках не должны превышать: продольный - 5 %, поперечный - 1 %. В случаях, когда по условиям рельефа невозможно обеспечить указанные пределы продольного уклона, допускается его увеличение до 10 % на протяжении не более 12 м пути с устройством горизонтальных промежуточных площадок вдоль спуска.

Опасные участки на путях передвижения инвалидов следует огораживать бортовым камнем высотой не менее 5 см.

В местах пересечения пешеходных путей с проездами не допускается применение бортовых камней со скошенной верхней гранью или съездов, сужающих ширину проезда. Высота бортовых камней тротуара должна быть не менее 2,5 см и не превышать 4 см*.

1.4. ОБОРУДОВАНИЕ ТЕРРИТОРИИ

1.4.1. На путях движения инвалидов по территории предприятия должна быть установлена хорошо читаемая и воспринимаемая визуальная информация, позволяющая быстро ориентироваться и предупреждать о возможных строительных барьерах или источниках опасности.

Специальными знаками или символами следует отметить все повседневно или периодически посещаемые инвалидами здания, сооружения и места на территории предприятия.

Визуальная информация должна располагаться на контрастном фоне на высоте не менее 1,5 и не более 4,5 м от уровня поверхности пешеходного пути.

1.4.2. Территорию предприятия для инвалидов с дефектами зрения необходимо радиофицировать. Главный вход на предприятие следует оборудовать звуковым сигнальным устройством, рассчитанным на восприятие сигналов от остановок общественного транспорта.

1.4.3. При необходимости пути движения инвалидов с дефектами зрения могут быть оснащены элементами тактильной информации, специально разработанными в проекте благоустройства предприятия при консультации спецслужб по медицинской реабилитации.

Все предметы - препятствия на пути движения (деревья, осветительные столбы и т.п.) должны быть огорожены (черт. 5).

Черт. 5. Устройство внутризаводского перекрестка для слепых

 - элементы тактильной информации на углах зданий;

 - рельефные полосы на тротуаре

1.4.4. Осветительные устройства на путях движения инвалидов с дефектами зрения устанавливают по одной стороне дороги.

Освещенность в вечернее время путей движения по территории рассчитывают, исходя из требования обеспечения освещенности на земле - не менее 20 лк при лампах накаливания и не менее 40 лк - при люминесцентных лампах.

1.4.5. Система визуальной информации для инвалидов с дефектами слуха, разработанная в проекте благоустройства территории предприятия, должна обеспечивать полную информацию по всему комплексу производственной деятельности, соцкультбыта и административных служб и согласовываться с органами спецмедэкспертизы.

1.4.6. Устройство специальных площадок для занятий спортом и активного отдыха инвалидов должно обеспечивать безопасность занятий, а для инвалидов с полной или частичной потерей зрения - возможность ориентироваться в пространстве.

1.4.7. Безопасность занятий спортом обеспечивается при устройстве:

полос безопасности по периметру игровых площадок и вдоль беговых дорожек; ширина полосы безопасности для инвалидов с полной или частичной потерей зрения - не менее 2,5 м, для инвалидов, пользующихся для передвижения креслами-колясками, - не менее 2 м по длинной стороне площадки и не менее 3 м по короткой стороне;

на беговых дорожках для инвалидов с полной или частичной потерей зрения зоны старта длиной по направлению движения не менее 5 м и зоны финиша - длиной не менее 25 м*.

1.4.8. Обеспечение ориентации при занятиях спортом инвалидов с полной или частичной потерей зрения возможно при выполнении следующих мероприятий:

использование в качестве ориентиров для направления движения звуковых маяков;

устройство вдоль дорожек для бега или разбега перед прыжком полос ориентации с фактурной поверхностью покрытия и яркой контрастной окраской, шириной не менее 1,5 м, размещаемых между кромкой площадки и полосой безопасности;

выделение цветом и фактурой поверхности покрытия поворотов беговых дорожек, зон стартов и финишей, толчковых зон при прыжках*.

1.4.9. Площадки для пассивного и активного отдыха инвалидов на открытом воздухе следует защищать от шума зелеными насаждениями.

2. ЗДАНИЯ ПРОМЫШЛЕННЫХ ПРЕДПРИЯТИЙ

2.1. ОБЩИЕ ПОЛОЖЕНИЯ

2.1.1. Здания промышленных предприятий, в которых трудоустроены инвалиды или которые они повседневно или периодически посещают, должны проектироваться с учетом потребностей инвалидов. На промышленных предприятиях практически всех отраслей промышленности это - здания, предназначенные для конструкторских бюро; административные здания; здания инженерного назначения (различные насосные станции, компрессорные станции, котельные и т.п.); здания вспомогательных цехов, например деревообделочных или ремонтных; склады; здания социально-бытового обслуживания; на крупных предприятиях - учебные корпуса, здания и сооружения спорт-комплексов и т.д. Инвалиды также могут быть трудоустроены в зданиях основных производственных цехов отраслей промышленности, где имеются профессии и специальности, пригодные для инвалидов по медицинским показаниям (см. Введение).

2.1.2. Объемно-планировочные решения зданий, где пребывают инвалиды, должны соответствовать следующим требованиям:

минимизированная площадь протекания функциональных процессов за счет локальной группировки помещений различного назначения, постоянно использующихся инвалидами;

пути передвижения по зданию, свободные от строительных препятствий;

специальное устройство элементов путей передвижения (коридоров, лестниц, лифтов, дверных проемов, дверей и т.п.); размещение этих элементов, устраняющее нерациональные передвижения и травматизм, изменение их габаритов для нужд отдельных категорий инвалидов; специальные типы дверей (откатные, с автоматическим открыванием и др.); устранение дверных порогов; применение поручней и других опорных приспособлений;

создание системы визуальной, слуховой или тактильной информации в зависимости от категории инвалидности работников;

создание специально оборудованных и приспособленных к нуждам инвалидов санитарных узлов и гардеробных блоков;

организация специально оборудованных и обслуживаемых при необходимости мест в пунктах питания;

организация системы рекреации и лечебно-профилактической физкультуры для инвалидов;

размещение дополнительных помещений в заводских медпунктах в соответствии с профилем заболеваний, приведших к инвалидности;

размещение деталей оборудования помещений, обеспечивающее удобное пользование ими инвалидам (выключатели, розетки и др.);

обеспечение эвакуации инвалидов в соответствии с противопожарными нормами и физическими возможностями инвалидов.

2.1.3. Количество и виды требований к зданиям зависят от особенностей категорий инвалидов, которые в них трудятся, а также от этажности, взаиморасположения бытовых и производственных помещений.

Одноэтажные производственные и административно-бытовые здания практически не имеют существенных строительных препятствий, так как в них в основном исключаются необходимость перемещения работников на разные уровни и преодоление лестниц. Крупная сетка опор, отметка пола, всего на 150 мм превышающая уровень земли, наличие широких дверных проемов, рассчитанных на пропуск большой массы людей или напольный транспорт, имеющаяся во многих зданиях система визуальной информации, радиофикация, сигнальная окраска движущихся механизмов и т.п. во многих случаях являются достаточными для обеспечения трудоустройства инвалидов или требуют сравнительно небольших дополнений в соответствии с особенностями инвалидов, для которых в данных зданиях имеются специальности и профессии.

Многоэтажные промышленные здания во многих случаях имеют лестницы, коридоры, вестибюли, лифтовые кабины и другие коммуникационные элементы, рассчитанные на пропуск большой массы людей и по своим габаритам обеспечивающие передвижение инвалидов. В этих зданиях требуется специальное решение вопросов эвакуации некоторых категорий инвалидов при пожарной опасности.

Малоэтажные промышленные здания имеют существенный для некоторых категорий инвалидов недостаток - отсутствие лифтов.

Связь отдельно стоящих бытовых и производственных корпусов через пешеходные галереи создаст дополнительные препятствия на путях передвижений инвалидов.

2.2. ПРОИЗВОДСТВЕННЫЕ ЗДАНИЯ

2.2.1. Объемно-планировочные решения специализированных зданий для трудоустройства инвалидов, пользующихся креслами-колясками или другими приспособлениями для передвижения, должны соответствовать следующим требованиям:

этажность - преимущественно один или два этажа;

наличие специальных лифтов в зданиях с двумя и более этажами;

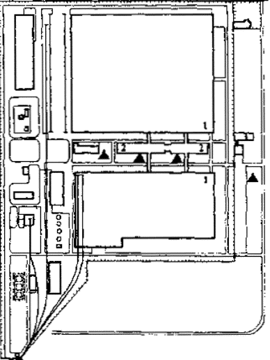
обеспечение максимально коротких функциональных взаимосвязей помещений повседневного пребывания инвалидов, относительно коротких связей с помещениями периодического пребывания и исключение из зоны перемещения инвалидов помещений, практически не посещаемых ими (черт. 6).

Черт. 6. Мастерская по ремонту бытовой радиоэлектронной аппаратуры

а - аналог; б - перепланировка;

 - помещения повседневного пребывания инвалидов (а - 156 м2; б - 68 м2);

---- - общая длина перемещений инвалидов (а - 42 м2; б - 20 м2);

Состав помещений: 1 - кладовая запчастей; 2 - кладовая готовой продукции; 3 - салон; 4 - контора; 5 - комната приема пищи; 6 - женский гардероб; 7 - мужской гардероб; 8 - участок чистки; 9 - тепловой узел; 10 - венткамера; 11 - вакуумная; 12 - комната линейных мастеров; 13 - участок ремонта радиоаппаратуры; 14 - участок ремонта телевизоров

2.2.2. Производственные здания общего назначения, где предусматриваются отдельные рабочие места для инвалидов с поражениями нижних конечностей, и в отдельных случаях - для инвалидов на колясках, должны проектироваться без строительных препятствий. Здания в два этажа и более необходимо оборудовать пассажирскими лифтами.

При организации в зданиях общего назначения специализированных цехов или производственных участков для инвалидов указанных категорий их целесообразно размещать на уровне земли. С целью сокращения путей передвижений инвалидов и устранения нерациональных передвижений желательно блокировать с цехами и участками помещения, повседневно посещаемые, по возможности исключая из этих блоков помещения, не посещаемые инвалидами. Так, к специализированному цеху желательно непосредственное примыкание санитарно-гигиенических помещений, приема пищи и лечебно-физкультурного комплекса. В то же время как конторские, хозяйственные и другие помещения, практически не посещаемые инвалидами, должны быть перемещены с путей их передвижения.

2.2.3. Объемно-планировочные решения специализированных зданий для слепых и слабовидящих, устройство отдельных строительных элементов на путях их передвижения, на рабочих местах и в местах их повседневного пребывания должны исходить из особенностей восприятия окружающего пространства инвалидами этой категории, а также обеспечивать безопасность перемещений.

Здания специализированных предприятий для слепых должны быть малоэтажными, преимущественно двухэтажными, планировка - симметричной, легко запоминающейся.

2.2.4. Специализированные производственные участки для слабовидящих в производственных зданиях общего типа должны располагаться не выше третьего этажа и, по возможности, на одном уровне с блоком социально-бытовых помещений.

2.2.5. Объемно-планировочные решения специализированных зданий для работников со сниженным интеллектом должны исходить из того, что строительные препятствия для инвалидов этой категории не являются непреодолимыми, но специфика их заболевания, связанная с нежелательностью излишних возбуждений, заставляет ограничивать число этажей - двумя. Планировка должна быть простой и четкой с минимальными по протяженности путями передвижения, без дублирования, по возможности, одинаковых по назначению помещений (гардеробов, санузлов, кладовых и т.п.).

2.2.6. Объемно-планировочные решения специализированных зданий для глухих должны содержать специальные помещения для переводчиков, для обучения и др., необходимые для этой категории инвалидов. В этих зданиях должна быть разработана специальная система визуальной информации, согласованная с органами спецмедэкспертизы.

2.3. ЗДАНИЯ И ПОМЕЩЕНИЯ СОЦИАЛЬНО-БЫТОВОГО НАЗНАЧЕНИЯ, АДМИНИСТРАТИВНЫЕ ЗДАНИЯ

2.3.1. Здания и помещения социально-бытового назначения, административные здания и аналогичные им по основным строительным параметрам здания конструкторских бюро, учебные здания и другие следует проектировать, как правило, с учетом потребностей инвалидов, так как на промышленных предприятиях практически всех отраслей промышленности в этих зданиях могут быть организованы рабочие места для инвалидов, а на предприятиях, где предполагается трудоустройство инвалидов в основных производственных цехах, эти здания повседневно или периодически посещаются инвалидами.

2.3.2. Здания социально-бытового назначения на вновь проектируемых предприятиях, на которых используют труд инвалидов, целесообразно располагать таким образом, чтобы пути движения инвалидов от контрольно-пропускных пунктов до рабочих мест были наикратчайшими. Для этого рекомендуется помещения КПП блокировать со зданиями социально-бытового назначения или с административными корпусами в зависимости от решения генерального плана предприятия. При выборе способа размещения бытовых зданий относительно производственных корпусов - предпочтение отдавать зданиям пристроенным или встроенным.

2.3.3. В отдельно стоящих бытовых зданиях размещение гардеробных блоков для инвалидов целесообразно увязывать с расположением производственных участков, где для них организованы рабочие места, таким образом, чтобы они располагались на одном уровне и вблизи от переходных галерей.

2.3.4. На первых этажах зданий социально-бытового назначения, там где это возможно по условиям технологического процесса, рекомендуется размещать специализированные производственные участки для инвалидов с поражениями опорно-двигательного аппарата или с полной и частичной потерей зрения.

2.3.5. Размещение гардеробных и душевых для инвалидов с поражениями опорно-двигательного аппарата возможно в составе общих гардеробных блоков. Их расположение в блоке должно обеспечивать наикратчайшие пути передвижения для инвалидов (черт. 7).

Черт. 7. Размещение гардеробной и душевой для инвалидов в общем гардеробном блоке. Индивидуальная кабина инвалида в общей душевой

2.3.6. Размещение гардеробных и душевых для инвалидов с полной или частичной потерей зрения определяется прежде всего обеспечением минимального расстояния до рабочих мест. Поэтому в ряде случаев их целесообразно размещать отдельно от бытовых помещений для зрячих работников. При размещении гардеробных и душевых для слепых и зрячих в одном помещении их следует четко разделять.

2.3.7. Гардеробные для инвалидов с поражениями опорно-двигательного аппарата и для слепых должны быть совмещенными, т.е. для совместного хранения уличной, домашней и рабочей одежды.

2.3.8. Душевые для слепых необходимы с закрытыми кабинами, имеющими вход непосредственно из гардеробной. Число кабин принимается из расчета 1 кабина на 10 чел. наиболее многочисленной смены.

2.3.9. Умывальные для слепых следует размещать непосредственно в гардеробной или смежно с ней. Число кранов принимается из расчета 1 кран на 10 чел. наиболее многочисленной смены. При этом 40 % расчетного количества умывальников целесообразно размещать вблизи рабочих мест.

2.3.10. Уборные в зданиях, где работают инвалиды, должны быть на каждом этаже, независимо от количества работающих.

Уборные для инвалидов с полной потерей зрения и инвалидов, пользующихся креслами-колясками, размещают не далее 60 м от рабочего места. Нежелательно смежное размещение уборных для слепых мужчин и женщин (черт. 8).

Черт. 8. Цеховая уборная с кабиной для инвалидов

2.3.11. Помещения для пассивного отдыха инвалидов могут размещаться как в бытовых помещениях, так и в цехах. Они проектируются на 40 % инвалидов наиболее многочисленной смены, но не более 20 чел. в одном помещении. При небольшом количестве инвалидов помещения для отдыха инвалидов и здоровых работников совмещаются. Размер помещений для отдыха определяется из расчета 1,2 м2 на одну лежанку или 0,75 м2 на одно кресло (черт. 9).

Черт. 9. Встроенное помещение инвентарного типа для пассивного отдыха; пример оборудования комнаты отдыха для инвалидов

1 - стол для настольных игр; 2 - лежанка; 3 - кресла; 4 - телевизор

2.3.12. Помещения для занятия спортом, используемые инвалидами, должны обеспечивать следующие требования:

в спортивных залах, предназначенных для занятий людей с полной или частичной потерей зрения, следует предусматривать звукопоглощающие акустические потолки, а также в стенах залов - обшивку мягкими и упругими материалами на высоту не менее 2 м от пола и установку горизонтальных поручней;

не допускается для этой категории инвалидов использование отдельных площадок и зон, выделенных в многосекционных залах перегородками, не обеспечивающими акустической изоляции*.

2.3.13. Помещения для собраний должны иметь места для инвалидных колясок. Их расположение не должно мешать проходу остальных сотрудников (черт. 10).

Черт. 10. Места инвалидных колясок в помещении для собраний

2.3.14. Заводские пункты питания, которые могут посещать инвалиды, пользующиеся для передвижения креслами-колясками, и люди с полной или частичной потерей зрения, должны иметь специальные посадочные места, размещаемые вблизи входа в столовую или буфет. Инвалиды обслуживаются официантами или другим способом на общественных началах.

При наличии на предприятии специализированных цехов или производственных участков, предназначенных для трудоустройства инвалидов указанных категорий, целесообразно вблизи них размещать комнаты приема пищи для инвалидов (черт. 11).

Черт. 11. Пример организации посадочных мест для инвалидов, пользующихся креслами-колясками в помещении для приема пищи

2.3.15. Медицинские пункты промышленных предприятий, использующих труд инвалидов, могут быть дополнены кабинетами и другими медицинскими помещениями в соответствии с профилем заболевания основного контингента работников-инвалидов: окулиста, невропатолога и т.п.

2.3.16. Кабинет социально-трудовой реабилитации должен быть предусмотрен на предприятиях с массовым использованием труда инвалидов таких категорий, трудовая деятельность которых требует специального инструктажа или выработки специальных навыков в труде или ориентации. Например, для лиц с полной или частичной потерей зрения необходимо практическое обучение специальности на полностью оснащенных типовых рабочих местах, обучение ориентации на предприятии на планшетах с рельефными планами или макетами предприятия, цехов и участков производства, ознакомление с системой ориентации на данном предприятии.

Площадь кабинета социально-трудовой реабилитации принимается от 42 до 240 м2 в зависимости от количества работающих инвалидов и от формы проведения занятий (групповые или индивидуальные).

Кабинеты должны размещаться на расстоянии не далее 120 м от наиболее удаленного рабочего места в цехе.

3. ЭЛЕМЕНТЫ ЗДАНИЙ

3.1. Входы в здания могут быть общими для всех работников, в том числе и для инвалидов различных категорий.

Все здания и сооружения, которыми могут пользоваться инвалиды, передвигающиеся на креслах-колясках, должны иметь не менее одного доступного для них входа, который при необходимости следует оборудовать пандусом или другим устройством, обеспечивающим возможность подъема инвалида на уровень входа в здание, его первого этажа или лифтового холла*.

3.2. Входы, предназначенные для инвалидов, в здания и сооружения следует защищать от атмосферных осадков и предусматривать перед входом площадку размером в плане не менее 1,0 ´ 2,5 м с дренажем, а в зависимости от местных климатических условий - с подогревом*.

3.3. Предназначенные для инвалидов входные двери в здания, сооружения и помещения должны иметь ширину в свету не менее 0,9 м. Применение дверей на качающихся петлях и дверей-вертушек на путях передвижения инвалидов запрещается*.

В полотнах входных в здания и сооружения дверей следует предусматривать смотровые остекленные панели из противоударного стекла, нижняя часть которых должна располагаться не выше 0,9 м от уровня пола. В качестве остекления дверей следует применять закаленное или армированное стекло. Нижняя часть дверных полотен на высоту 0,3 м должна быть защищена противоударной полосой.

При проектировании стеклянных входных дверей следует предусматривать автоматическое их открывание или яркую маркировку*.

3.4. Входы в здания и помещения на путях движения инвалидов с поражениями опорно-двигательного аппарата, слепых и слабовидящих не должны иметь порогов, а при необходимости устройства их высота не должна превышать 0,025 м.

3.5. Габариты входных тамбуров, коридоров, проходов, холлов и других элементов зданий на путях движения инвалидов, пользующихся для передвижения креслами-колясками и другими приспособлениями, должны соответствовать следующим параметрам:

ширина для размещения кресла-коляски - не менее 0,9 м и длина - не менее 1,5 м;

ширина прохода при одностороннем движении - не менее 1,2 м, при двустороннем - не менее 1,8 м;

высота прохода до низа выступающих конструкций - не менее 2,1 м;

размеры площадки для поворота кресла-коляски на 90° - не менее 1,3 ´ 1,3 м, для поворота на 180° - не менее 1,3 ´ 1,5 м, для разворота на 360° - не менее 1,5 ´ 1,5 м;

пространство под элементами зданий, оборудования или мебели, используемое для подъезда кресла-коляски, должно иметь ширину по фронту оборудования или мебели не менее 0,6 м и высоту не менее 0,6 м над уровнем пола; ширина проходов к оборудованию и мебели - не менее 0,9 м, а при необходимости поворота кресла-коляски на 90° - не менее 1,2 м (черт. 12)*.

Черт. 12. Примеры устройства входных тамбуров для инвалидов

3.6. В коридорах, являющихся постоянными путями передвижения инвалидов с поражениями опорно-двигательного аппарата, слепых и слабовидящих, дверные проемы целесообразно заглублять внутрь помещений.

Для сокращения нерациональных перемещений инвалидов целесообразно в помещения большой площади делать не менее двух входов, рассредоточенных на пути движения.

Повороты коридоров на путях движения инвалидов на колясках следует делать закругленными или со скошенными углами, свободно стоящие колонны также должны иметь закругленные углы.

На путях движения слепых и слабовидящих нежелательно наличие колонн и других элементов с небольшой поверхностью.

3.7. Лестницы, по которым предполагается передвижение инвалидов на костылях и слепых, должны быть двухмаршевыми, марши - прямыми, шириной не менее 1,5 м, исходя из расчета безопасного движения инвалидов во встречных направлениях одновременно с движением здоровых работников. Минимальная длина промежуточных площадок - 1,5 м*.

Ступени лестниц должны быть глухими, ровными, без выступов и с шероховатой поверхностью. Ребро ступени должно иметь закругление радиусом не более 5 см. По не примыкающим к стенам боковым краям лестничного марша ступени должны быть с бортиками высотой не менее 2 см*.

Ширина проступей должна быть: для наружных лестниц - не менее 0,4 м, для внутренних лестниц - не менее 0,3 м; высота подъема ступеней: для наружных лестниц - не более 0,12 м, для внутренних - не более 0,15 м*.

По обеим сторонам лестничного марша предусматривают ограждения высотой не менее 0,9 м с поручнями. Длина поручня превышает длину марша не менее чем на 0,3 м с каждой стороны. Поручни должны быть круглого сечения диаметром не менее 3 см и не более 5 см или прямоугольного сечения толщиной не более 4 см*.

Для слепых число ступеней в каждом лестничном марше должно быть одинаковым, одинаковыми должны быть размеры проступей и подступенков.

3.8. Пассажирские лифты следует предусматривать во всех зданиях, помещения которых, расположенные выше первого этажа, предназначены для пользования инвалидами на креслах-колясках или на костылях. Лифты должны иметь кабины с размерами не менее: 1,1 м - ширина, 1,5 м - глубина и 0,85 м - ширина дверного проема. Они должны быть с автономным управлением из кабин и с уровня этажа, имеющего непосредственный выход на улицу. Кабины лифтов обеспечивают экстренной аварийной телефонной двухсторонней связью с диспетчерским пунктом. Кнопки вызова лифта и управления его движением должны находиться на высоте от пола не более 1,2 м. Расположенный в кабине лифта аппарат двухсторонней связи снабжается устройством для усиления звука, а при необходимости - и устройством для получения синхронной визуальной информации.

Величина перепада уровней пола кабины лифта и площадки лифтового холла не должна превышать 0,025 м.

Расположение лифтовых холлов или площадок в зданиях, рассчитанных на посещение инвалидов на колясках, на уровнях промежуточных площадок лестниц не допускается*.

3.9. В зданиях высотой 3 и более этажей, помещения которых рассчитаны на пребывание инвалидов на колясках, следует предусмотреть установку не менее одного лифта с глубиной кабины не менее 2,1 м, обеспечивающего во время пожара и других чрезвычайных ситуаций возможность эвакуации инвалидов, не способных к самостоятельному передвижению по лестницам или пандусам. Выход из лифта на первом этаже следует предусматривать в холл или вестибюль, отделенный от других помещений противопожарными перегородками и дверями, снабженными закрывателями*.

Шахта лифта не должна сообщаться с подвальным этажом. В верхнюю зону шахты лифта должна быть обеспечена подача наружного воздуха через самостоятельный канал для создания подпора воздуха и незадымляемости шахты при возникновении пожара. Избыточное давление воздуха в шахте должно быть не менее 20 Па. При работе лифтов во время пожара необходимо бесперебойное энергоснабжение всех его систем в течение не менее двух часов*.

3.10. В зданиях, помещения которых, расположенные выше первого этажа, предназначены для пребывания в них инвалидов с поражениями нижних конечностей, способных передвигаться по лестницам, желательно устройство пассажирских лифтов. Пассажирские лифты для инвалидов данной категории и других - обычного типа.

4. СПЕЦИАЛЬНОЕ ОБОРУДОВАНИЕ И ОТДЕЛКА ЗДАНИЙ

4.1. Элементы визуальной информации, предусмотренные при проектировании интерьеров зданий, должны способствовать сокращению нерациональных передвижений инвалидов всех категорий и их ориентации в зданиях.

4.2. Система ориентиров - осязательных (тактильных), слуховых и зрительных должна обеспечивать безопасность передвижения и ориентировку в пространстве инвалидов с дефектами зрения.

Осязательные ориентиры: направляющие поручни, рельефные обозначения на поручнях, таблицы с выпуклыми надписями или шрифтом Брайля, рельефные планы этажей, здания и т.п.; изменяемый тип покрытия пола перед препятствиями (поворотами, лестницами, подъемами, входами).

Слуховые ориентиры: звуковые маяки при входах, радиотрансляция.

Зрительные ориентиры: различные специально освещаемые указатели в виде символов и пиктограмм с использованием ярких, контрастных цветов; контрастное цветовое обозначение дверей и т.п. Текстовая информация на таблицах должна быть максимально краткой. Строительные элементы на путях движения лиц с ослабленным зрением (лестничные клетки, лифты, вестибюли, входы, начало и конец коридоров и др.) следует оборудовать системой типовых ориентиров-указателей, выполненных на основе цветового, акустического и тактильного контраста с окружающей поверхностью.

Зрительные ориентиры и другая визуальная информация должны располагаться на контрастном фоне на высоте не менее 1,5 м и не более 4,5 м от уровня пола.

Система ориентиров должна быть достаточно продумана, чтобы не допускать их переизбытка, способствующего созданию «тепличных» условий и утрате навыков пространственной ориентации. Наиболее целесообразным является использование системы опорных ориентиров в соответствии с разработанными СКВ ВОС «Рекомендациями по системе ориентиров на предприятиях и в организациях ВОС».

4.3. Цветовое решение интерьеров помещений, в которых предполагается пребывание инвалидов с остаточным зрением, должно разрабатываться на основе цветового контраста общего фона с оборудованием, мебелью и деталями интерьера функционального назначения. В выборе цветового решения интерьеров следует руководствоваться условием наилучшего распознавания объектов красного и желтого цветов на ахроматическом фоне, ахроматических объектов - на синем и желтом фоне. В сигнальных и предупреждающих ориентирах целесообразно использование сочетания белого и черного цветов.

4.4. Искусственное освещение помещений и рабочих мест для работников с остаточным зрением предусматривается общее и местное. В качестве источников общего освещения следует использовать светильники с лампами накаливания, допускается применение потолочных люминесцентных светильников. Местное освещение на рабочем месте - лампами накаливания. Шкафы или стеллажи на рабочем месте инвалида с остаточным зрением желательно оборудовать светильниками с автоматическим включением при открывании дверей шкафа.

Для рабочих мест необходимо местное стабильное (исключающее мерцание) освещение, регулируемое по яркости и спектру в зависимости от характера заболевания глаз. Уровень освещенности на рабочей плоскости при мелкой ручной работе от 1500 до 3000 лк. Свет на рабочее место должен падать слева и спереди, исключая затенение обрабатываемого изделия, не создавая слепящих бликов.

Освещенность лестниц и санитарно-гигиенических помещений рекомендуется принимать не менее 300 лк.

4.5. Шумозащитные мероприятия необходимы в помещениях, где трудятся инвалиды с недостатками зрения, так как для ряда слабовидящих инвалидов противопоказана длительная работа в шумных помещениях. Опасный шумовой уровень 70 - 95 дБА может привести к повреждению слухового аппарата и нарушению ориентации в пространстве инвалидов этой категории.

Следует предусматривать шумозащитные кожухи на оборудовании, виброопоры под станками и рабочими сиденьями, облицовку стен и потолков рабочих помещений звукопоглощающими материалами; размещать механизмы - источники шума в специально огороженных помещениях.

4.6. Кратность воздухообмена на предприятиях, использующих труд инвалидов вследствие туберкулеза и сердечно-сосудистых заболеваний, следует устанавливать в зависимости от вида заболеваний при консультации медиков.

Рециркуляция воздуха не допускается на участках, предназначенных для трудоустройства этих инвалидов.

4.7. Оборудование бактерицидными лампами, включаемыми во время отсутствия работников, должно быть предусмотрено в помещениях, предназначенных для трудоустройства инвалидов вследствие туберкулеза.

Возможность проведения дезинфекции и влажной уборки должна учитываться при выборе оборудования, мебели и отделочных материалов для этих помещений.

4.8. Расстановка станков, оборудования и мебели в помещениях, предназначенных для труда инвалидов, пользующихся креслами-колясками, должна обеспечивать возможность проезда и разворота инвалидной коляски; а в помещениях для трудоустройства слепых и слабовидящих - возможность работы без помех от передвижения в помещении работников. В последнем случае станки и оборудование должны быть снабжены тактильными ориентирами.

4.9. Трансформируемость оборудования и мебели необходима для инвалидов с поражениями опорно-двигательного аппарата и для слабовидящих. Например, стол для этих категорий инвалидов должен, как правило, иметь изменяемую высоту и наклон рабочей поверхности, регулируемую подставку для ног; рабочий стул необходимо оснастить устройством для изменения положения сидения по высоте и наклону; регулируемой подставкой для ног, в отдельных случаях - специальным сидением, обеспечивающим компенсацию усилия при вставании; приспособлением для рабочих инструментов; устройством перемещения вдоль рабочей плоскости по направляющей, а также посредством электромеханических автономных устройств.

Могут применяться специально разработанные для различных специальностей рабочие места инвалидов, включающие рабочий стол, стул, технологическое оборудование и подставки для сырья, инструментов и готовой продукции. При проектировании рабочего места инвалида с поражениями опорно-двигательного аппарата следует учитывать параметры оперативного поля, доступного верхним конечностям при условии фиксированного положения тела (черт. 13).

Черт. 13. Габариты трансформируемого стола (в скобках указаны размеры для женщин); оперативное поле инвалида

___ - мужчины;

----- - женщины

4.10. Шкафы в гардеробных для слепых и инвалидов, пользующихся для передвижения креслами-колясками, должны быть для совместного хранения уличной, домашней и рабочей одежды. Шкафы для слабовидящих следует оборудовать внутренним светильником с автоматическим включением при открывании дверцы шкафа и приспособлением для фиксации дверцы в открытом положении. Размещение шкафов однорядное.

Скамьи для переодевания должны примыкать к тыловой стороне противоположного ряда шкафов. Скамьи для переодевания инвалидов, пользующихся креслами-колясками, должны быть шириной 0,6 м, проходы между шкафами и скамьями - шириной не менее 1,2 м при условии отсутствия возвратных движений.

4.11. Кабина туалета для инвалида, пользующегося креслом-коляской, должна быть шириной не менее 1,65 м и длиной не менее 1,8 м и снабжена поручнями и крючками для одежды. Дверь из кабины открывается наружу. В кабине рядом с унитазом с одной из его сторон следует предусматривать пространство для размещения кресла-коляски*.

Кабина может размещаться в общих туалетах зданий, где предусматриваются рабочие места для инвалидов на колясках.

4.12. Кабина туалета для инвалида на костылях должна быть шириной 1,65 м и длиной - 1,8 м, оборудована поручнями, расположенными по боковым сторонам, и крючками для костылей и одежды*.

Кабина размещается в общих туалетах зданий, где предусмотрено трудоустройство инвалидов, пользующихся костылями или другими приспособлениями.

4.13. На предприятиях, где преобладают здоровые работники, а число инвалидов, пользующихся креслами-колясками, составляет 3 - 5 чел. в смену, и они заняты на одном производственном участке, для них может быть оборудована индивидуальная кабина, в которой совмещены туалет и душевая.

4.14. Один из писсуаров в туалете следует располагать на высоте от пола не более 0,4 м и оборудовать его вертикальными опорными поручнями с двух сторон*.

4.15. Умывальная при туалетах должна иметь одну из раковин, установленную на высоте не более 0,8 м от пола и на расстоянии от боковой стены не менее 0,2 м. Нижний край зеркала и электрического прибора для сушки рук, предназначенных для пользования инвалидами, следует располагать на высоте не более 0,8 м от уровня пола*.

4.16. Душевая кабина для инвалида, пользующегося креслом-коляской, размером не менее 1,2 ´ 0,9 м, в ней предусматривают поручни и стационарное или откидное сидение. Перед кабиной следует предусматривать пространство для подъезда к ней инвалида в коляске (черт. 14).

Черт. 14. Душевая кабина для инвалида, пользующегося креслом-коляской, и ее оборудование

4.17. Душевая кабина для слепых должна быть закрытой, с дверями, открывающимися вовнутрь, размером 2 ´ 0,9 м, включая место для переодевания. Вентили горячей и холодной воды необходимы разные по форме.

4.18. Умывальные для слепых не рекомендуется оборудовать круглыми групповыми умывальниками. Вентили холодной и горячей воды должны отличаться по форме.

4.19. Оборудование санитарно-гигиенических помещений для инвалидов с остаточным зрением должно быть одинаковым по типу, форме, цвету и материалу.

4.20. Помещения для пассивного отдыха инвалидов с поражениями опорно-двигательного аппарата и с внутренними заболеваниями должны быть оборудованы лежанками, креслами и столами; для инвалидов с дефектами зрения - радиофицированы; для инвалидов с дефектами слуха снабжены дисплеями и таблицами с необходимой информацией.

4.21. Кабинет социально-трудовой реабилитации следует предусматривать в составе социальных помещений на предприятиях с массовым использованием труда слепых и слабовидящих. Его оборудование должно обеспечивать практическое обучение специальности на полностью оснащенных типовых рабочих местах; обучение ориентации на предприятии на планшетах с рельефными планами или макетами предприятия, цехов и участков производства; ознакомление с системой ориентации на данном предприятии.

4.22. Помещения социально-бытового назначения (медпункты, гардеробные, помещения для отдыха) на предприятиях, где трудоустроены инвалиды вследствие заболеваний, которые могут сопровождаться внезапным резким ухудшением здоровья (например, сердечно-сосудистые, нервно-психические), должны быть оборудованы лежанками и аптечками, укомплектованными в зависимости от заболеваний работающих инвалидов для оказания первой помощи.

4.23. Ручки, рычаги, краны, кнопки электрических выключателей и различных аппаратов, электрические розетки, отверстия торговых автоматов и прочие устройства, которыми могут пользоваться инвалиды, передвигающиеся на креслах-колясках, следует располагать на высоте не более 1 м от уровня пола и на расстоянии не менее 0,4 м от боковой стены помещения*.

4.24. Рабочие поверхности стоек гардеробов верхней одежды в административных зданиях, буфетов, окна кассы в бухгалтерии и т.п. при пользовании инвалидами на колясках следует располагать на высоте не более 0,8 м от уровня пола.

4.25. Все элементы стационарного оборудования, предназначенные для пользования инвалидами, должны быть прочно и надежно закреплены. Крепежные детали оборудования, регуляторов, электрических выключателей и т.п. не должны выступать за плоскость стен или закрепляемого элемента*.

4.26. Ручки, запорные и другие приспособления на дверях, ведущих в помещения, где опасно находиться людям с полной или частичной потерей зрения, должны иметь единообразную для этих помещений опознавательную рельефную или фактурную поверхность*.

4.27. В местах пересечений путей движения слепых инвалидов и напольного транспорта устраивают защитные ограждения в виде съемных или быстровозводимых барьеров, перил, цепей.

4.28. Вблизи производственных участков, где трудятся слепые инвалиды, необходимо устанавливать автоматы газированной воды, телефонные автоинформаторы, телефонные аппараты городской и внутренней связи. Целесообразно радиофицировать все рабочие места для слепых.

СОДЕРЖАНИЕ

 



© 2013 Ёшкин Кот :-)