Информационная система
«Ёшкин Кот»

Скачать базу одним архивом
Скачать обновления
История создания базы
Карта сайта

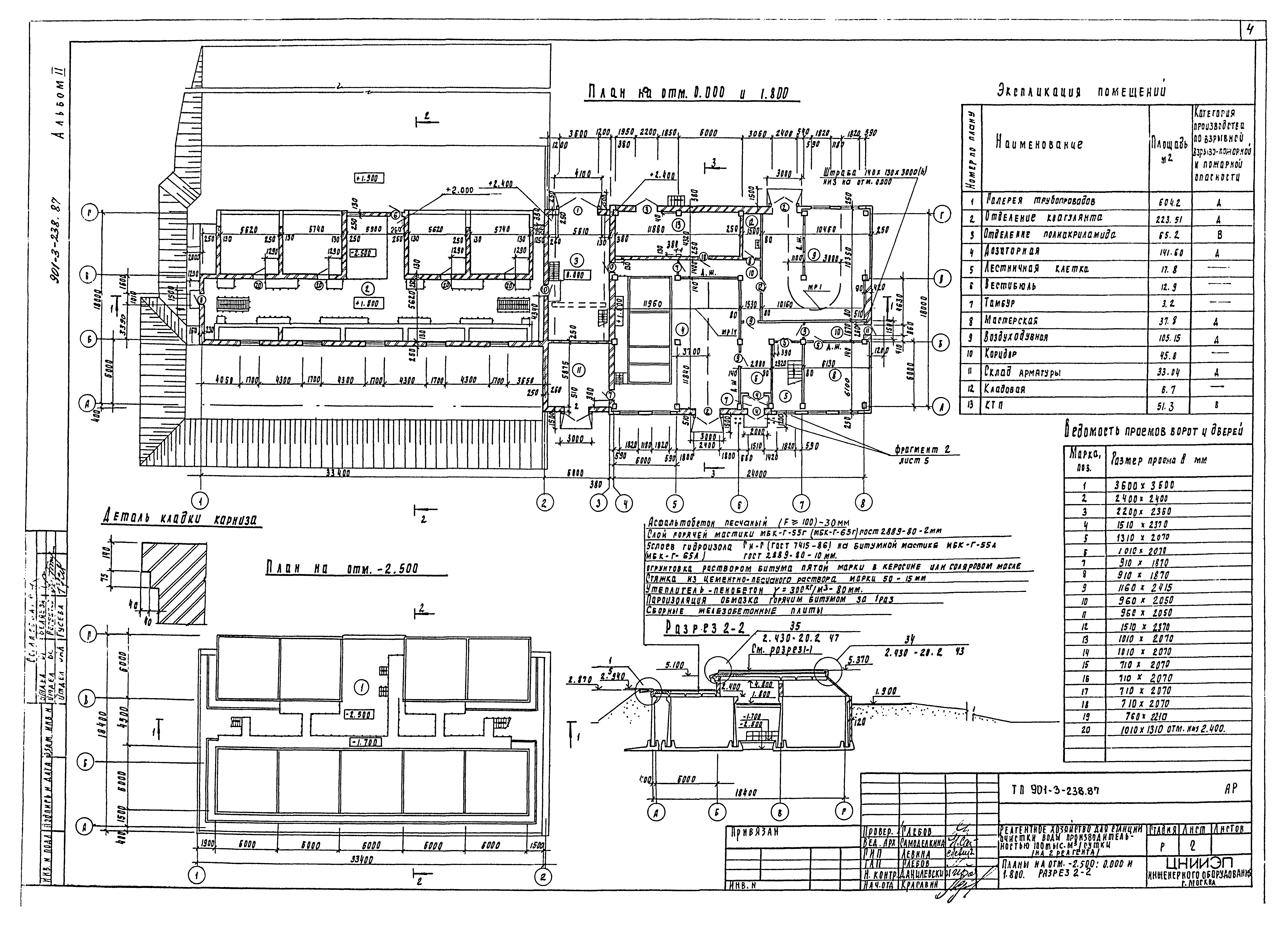
Скачать Типовой проект 901-3-238.87 Альбом II. Архитектурные решения. Конструкции железобетонные и металлические. Антикоррозионная защита

Дата актуализации: 10.08.2017

Типовой проект 901-3-238.87

Альбом II. Архитектурные решения. Конструкции железобетонные и металлические. Антикоррозионная защита

Обозначение: Типовой проект 901-3-238.87
Обозначение англ: 901-3-238.87
Статус:не определен законодательством
Название рус.:Альбом II. Архитектурные решения. Конструкции железобетонные и металлические. Антикоррозионная защита
Дата добавления в базу:05.05.2017
Дата актуализации:05.05.2017
Дата введения:30.06.2003
Разработан: ЦНИИЭП инженерного оборудования
Утверждён:13.02.1985 Госгражданстрой (Gosgrazhdanstroy 43)
Расположен в:Техническая документация Строительство Справочные документы Типовые строительные конструкции, изделия и узлы Общероссийский строительный каталог Промышленные предприятия, здания и сооружения Здания и сооружения санитарно-технические Водоснабжение Сооружения и установки по обеззараживанию воды Реагентное хозяйство для станций очистки
Заменяет собой:
Типовой проект 901-3-238.87Типовой проект 901-3-238.87Типовой проект 901-3-238.87Типовой проект 901-3-238.87Типовой проект 901-3-238.87Типовой проект 901-3-238.87Типовой проект 901-3-238.87Типовой проект 901-3-238.87Типовой проект 901-3-238.87Типовой проект 901-3-238.87Типовой проект 901-3-238.87Типовой проект 901-3-238.87Типовой проект 901-3-238.87Типовой проект 901-3-238.87Типовой проект 901-3-238.87Типовой проект 901-3-238.87Типовой проект 901-3-238.87Типовой проект 901-3-238.87Типовой проект 901-3-238.87Типовой проект 901-3-238.87Типовой проект 901-3-238.87Типовой проект 901-3-238.87Типовой проект 901-3-238.87Типовой проект 901-3-238.87Типовой проект 901-3-238.87Типовой проект 901-3-238.87Типовой проект 901-3-238.87Типовой проект 901-3-238.87Типовой проект 901-3-238.87Типовой проект 901-3-238.87Типовой проект 901-3-238.87Типовой проект 901-3-238.87Типовой проект 901-3-238.87Типовой проект 901-3-238.87Типовой проект 901-3-238.87Типовой проект 901-3-238.87Типовой проект 901-3-238.87Типовой проект 901-3-238.87Типовой проект 901-3-238.87Типовой проект 901-3-238.87Типовой проект 901-3-238.87Типовой проект 901-3-238.87Типовой проект 901-3-238.87Типовой проект 901-3-238.87Типовой проект 901-3-238.87Типовой проект 901-3-238.87Типовой проект 901-3-238.87Типовой проект 901-3-238.87Типовой проект 901-3-238.87Типовой проект 901-3-238.87Типовой проект 901-3-238.87Типовой проект 901-3-238.87Типовой проект 901-3-238.87Типовой проект 901-3-238.87Типовой проект 901-3-238.87Типовой проект 901-3-238.87Типовой проект 901-3-238.87Типовой проект 901-3-238.87Типовой проект 901-3-238.87Типовой проект 901-3-238.87Типовой проект 901-3-238.87Типовой проект 901-3-238.87Типовой проект 901-3-238.87Типовой проект 901-3-238.87Типовой проект 901-3-238.87Типовой проект 901-3-238.87Типовой проект 901-3-238.87Типовой проект 901-3-238.87Типовой проект 901-3-238.87Типовой проект 901-3-238.87Типовой проект 901-3-238.87Типовой проект 901-3-238.87Типовой проект 901-3-238.87Типовой проект 901-3-238.87Типовой проект 901-3-238.87Типовой проект 901-3-238.87Типовой проект 901-3-238.87Типовой проект 901-3-238.87Типовой проект 901-3-238.87Типовой проект 901-3-238.87Типовой проект 901-3-238.87Типовой проект 901-3-238.87Типовой проект 901-3-238.87Типовой проект 901-3-238.87Типовой проект 901-3-238.87

© 2013 Ёшкин Кот :-) Карта сайта