Информационная система
«Ёшкин Кот»

Скачать базу одним архивом
Скачать обновления
История создания базы
Карта сайта

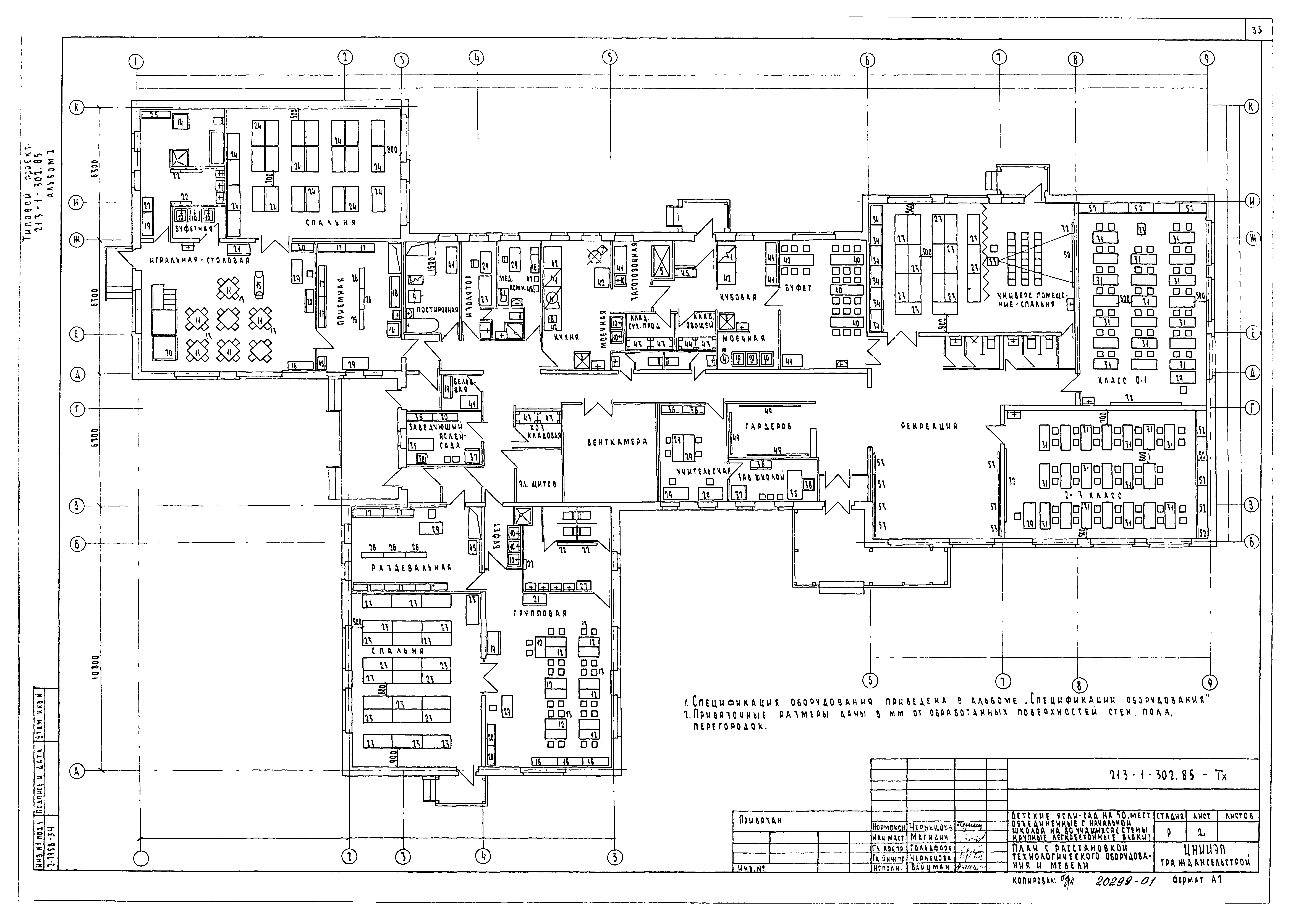
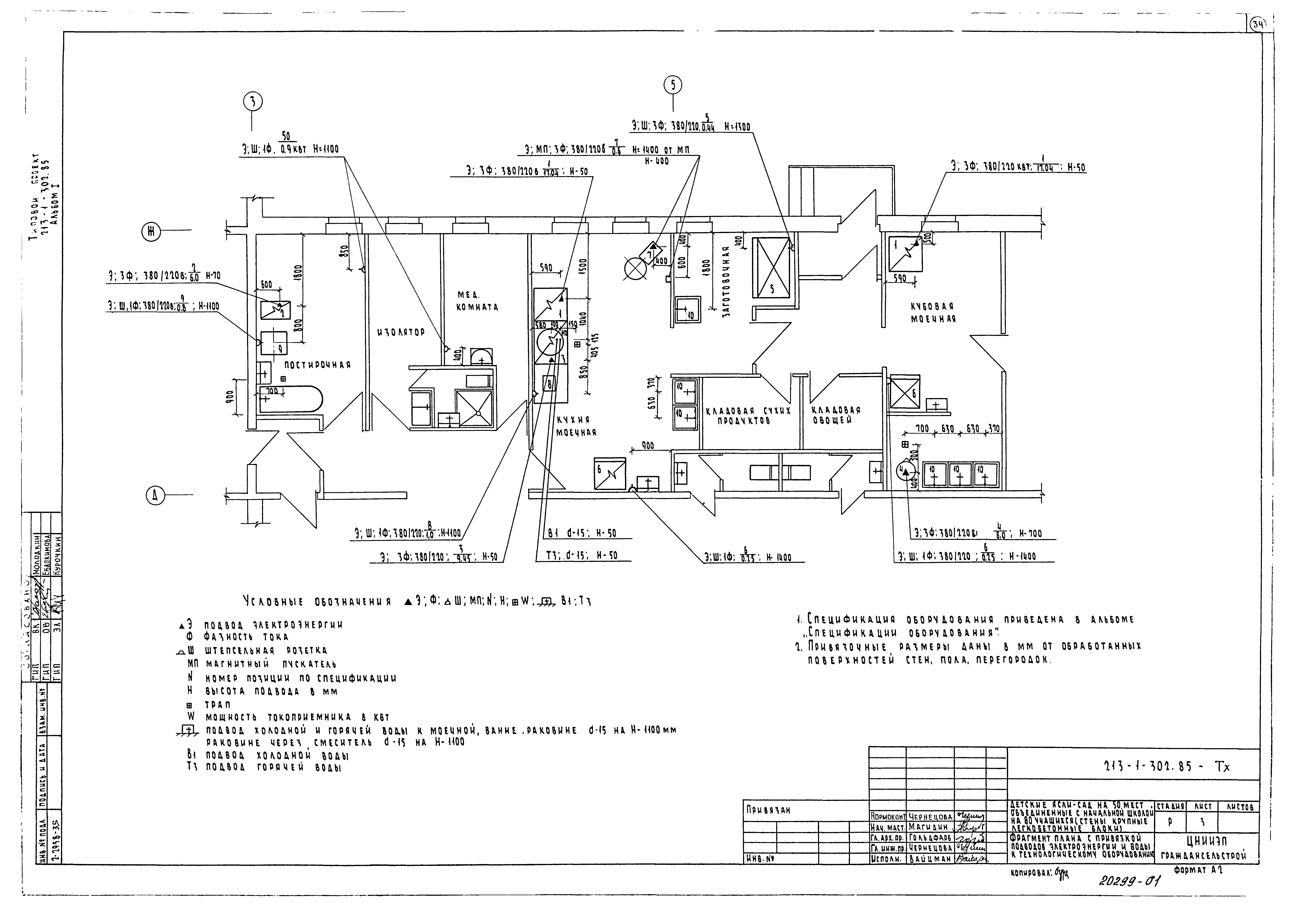
Скачать Типовой проект 213-1-302.85 Альбом I. Архитектурно-строительные и технологические чертежи

Дата актуализации: 10.08.2017

Типовой проект 213-1-302.85

Альбом I. Архитектурно-строительные и технологические чертежи

Обозначение: Типовой проект 213-1-302.85
Обозначение англ: 213-1-302.85
Статус:не определен законодательством
Название рус.:Альбом I. Архитектурно-строительные и технологические чертежи
Дата добавления в базу:05.05.2017
Дата актуализации:05.05.2017
Дата введения:30.06.2003
Разработан: ЦНИИЭП граждансельстрой
Утверждён:20.05.1983 Госгражданстрой (Gosgrazhdanstroy 151)
Расположен в:Техническая документация Строительство Справочные документы Типовые строительные конструкции, изделия и узлы Общероссийский строительный каталог Общественные здания для строительства в сельской местности Детские дошкольные учреждения Детские ясли-сады, объединенные с начальной школой
Типовой проект 213-1-302.85Типовой проект 213-1-302.85Типовой проект 213-1-302.85Типовой проект 213-1-302.85Типовой проект 213-1-302.85Типовой проект 213-1-302.85Типовой проект 213-1-302.85Типовой проект 213-1-302.85Типовой проект 213-1-302.85Типовой проект 213-1-302.85Типовой проект 213-1-302.85Типовой проект 213-1-302.85Типовой проект 213-1-302.85Типовой проект 213-1-302.85Типовой проект 213-1-302.85Типовой проект 213-1-302.85Типовой проект 213-1-302.85Типовой проект 213-1-302.85Типовой проект 213-1-302.85Типовой проект 213-1-302.85Типовой проект 213-1-302.85Типовой проект 213-1-302.85Типовой проект 213-1-302.85Типовой проект 213-1-302.85Типовой проект 213-1-302.85Типовой проект 213-1-302.85Типовой проект 213-1-302.85Типовой проект 213-1-302.85Типовой проект 213-1-302.85Типовой проект 213-1-302.85Типовой проект 213-1-302.85Типовой проект 213-1-302.85Типовой проект 213-1-302.85Типовой проект 213-1-302.85Типовой проект 213-1-302.85

© 2013 Ёшкин Кот :-) Карта сайта