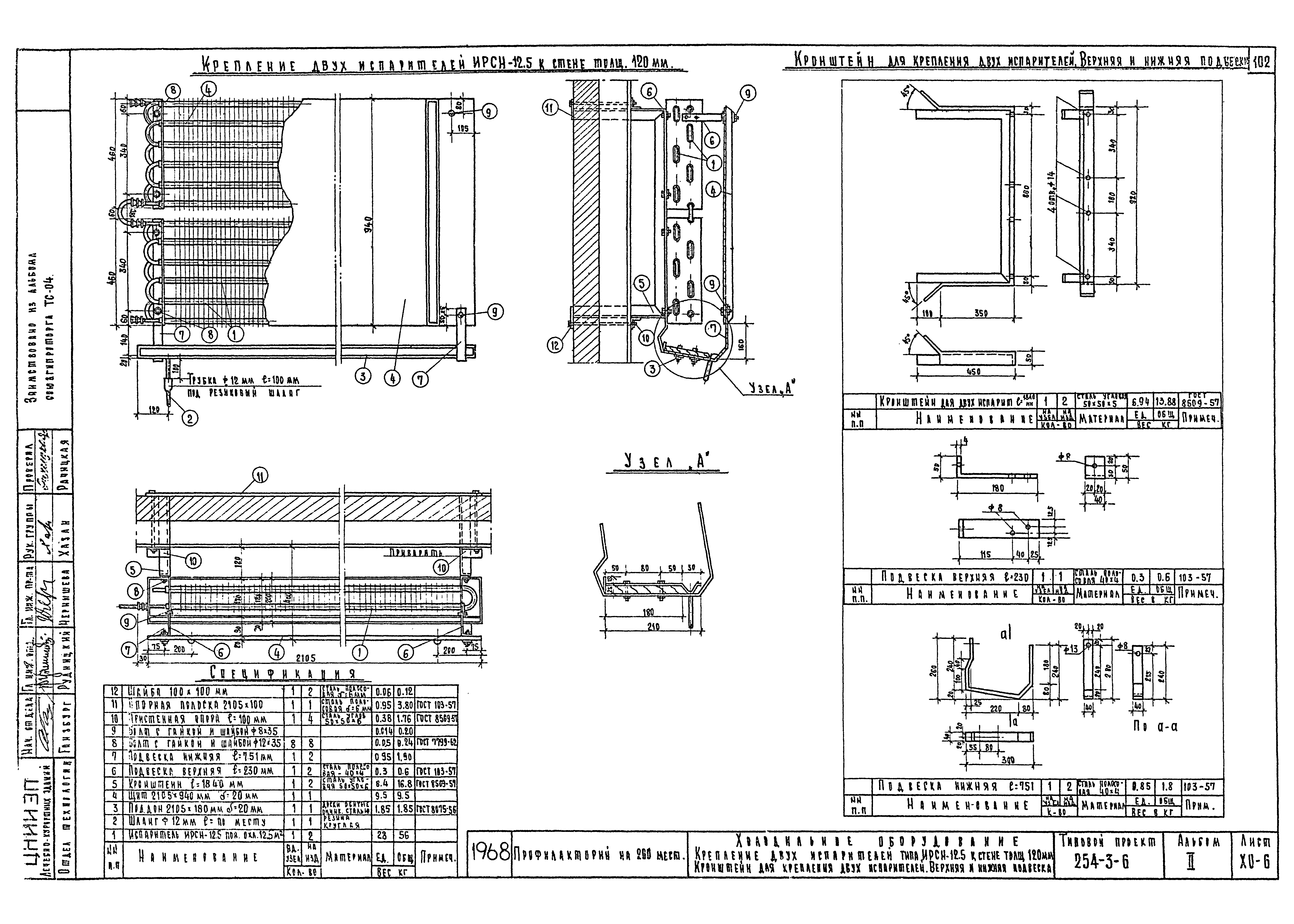
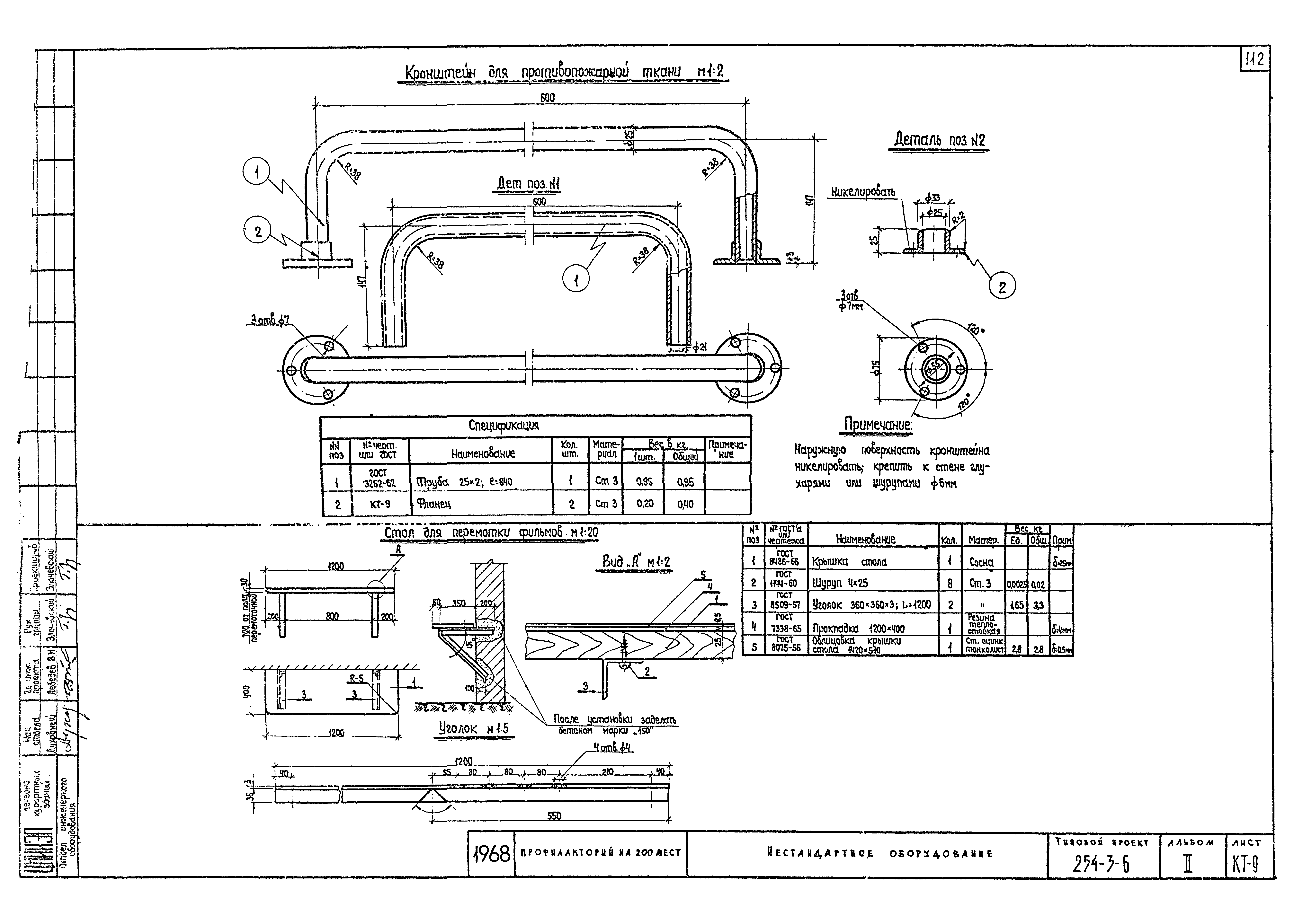
Скачать Типовой проект 254-3-6 Альбом II. Инженерное оборудование (технологическая, санитарно-техническая и электро-техническая части, слаботочные устройства, холодильное оборудование и кинофикация)Дата актуализации: 10.08.2017 Типовой проект 254-3-6
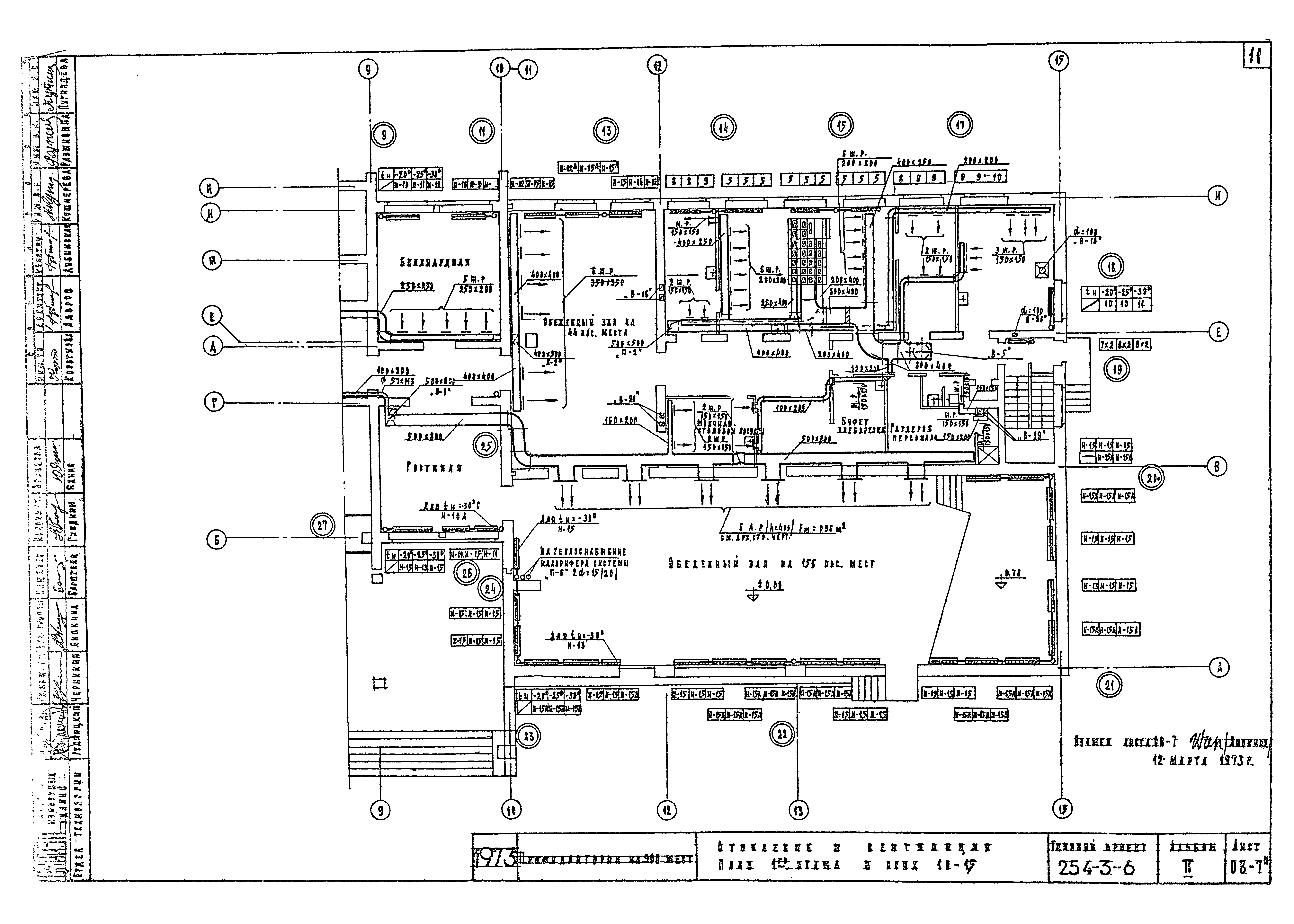
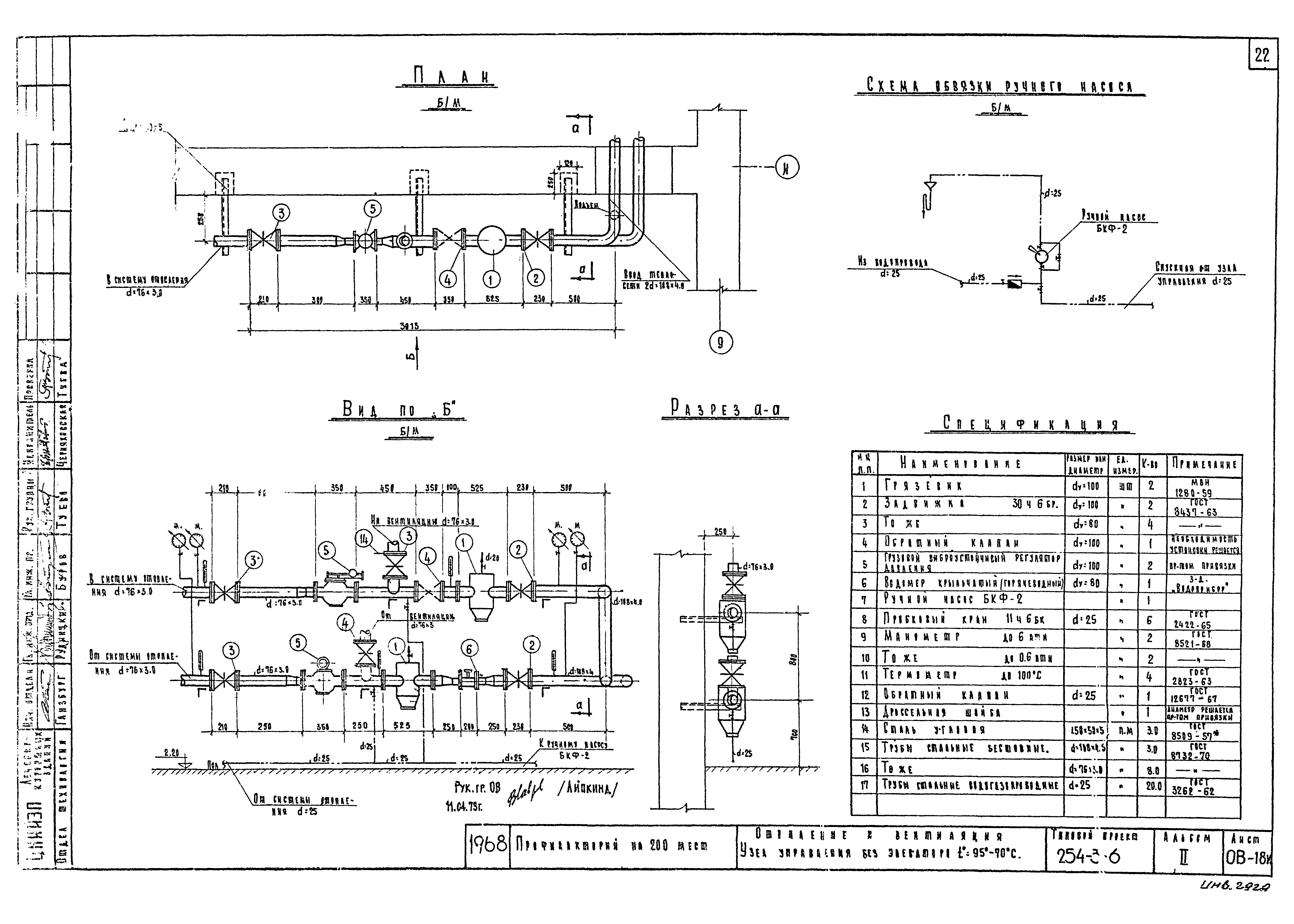
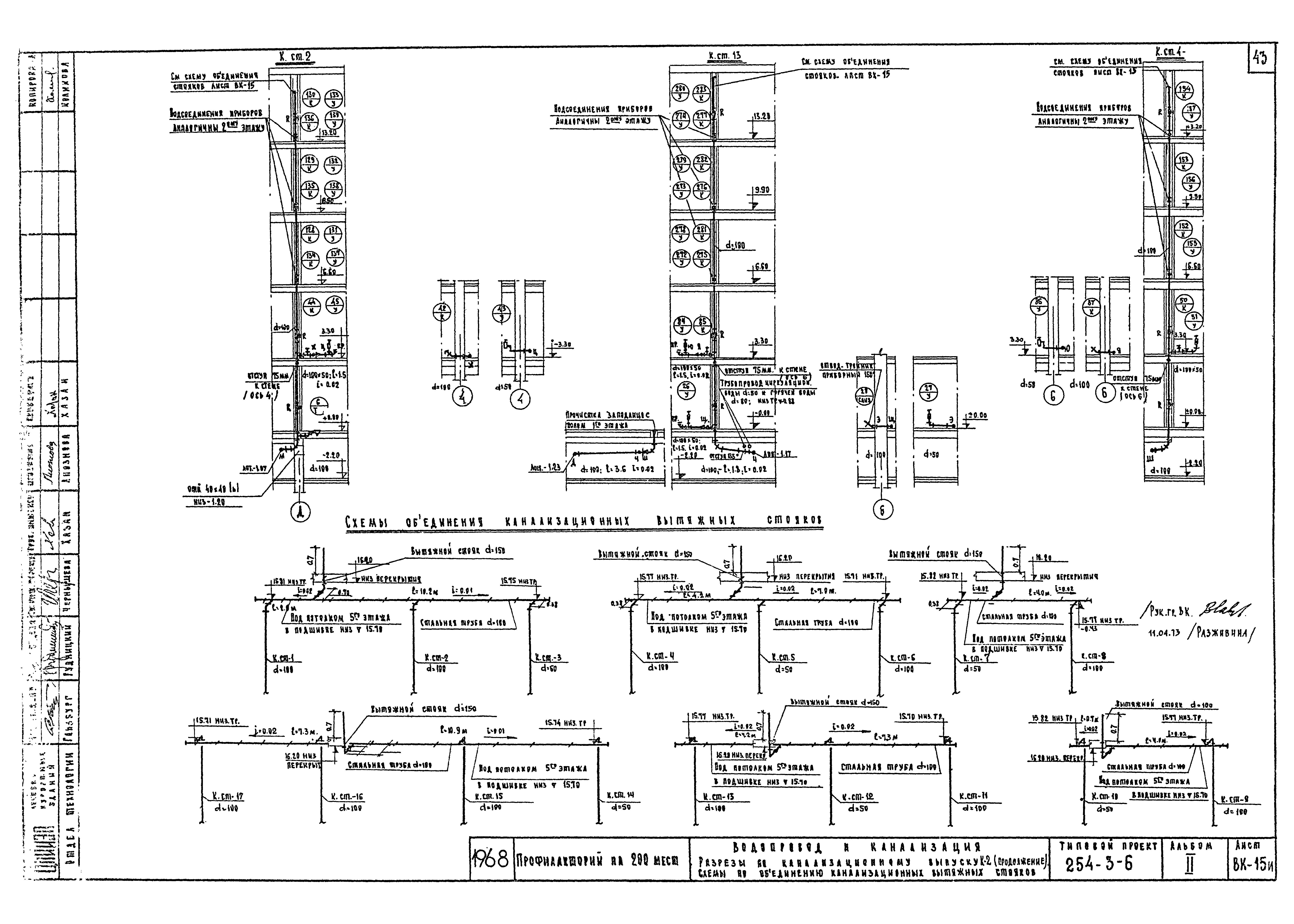
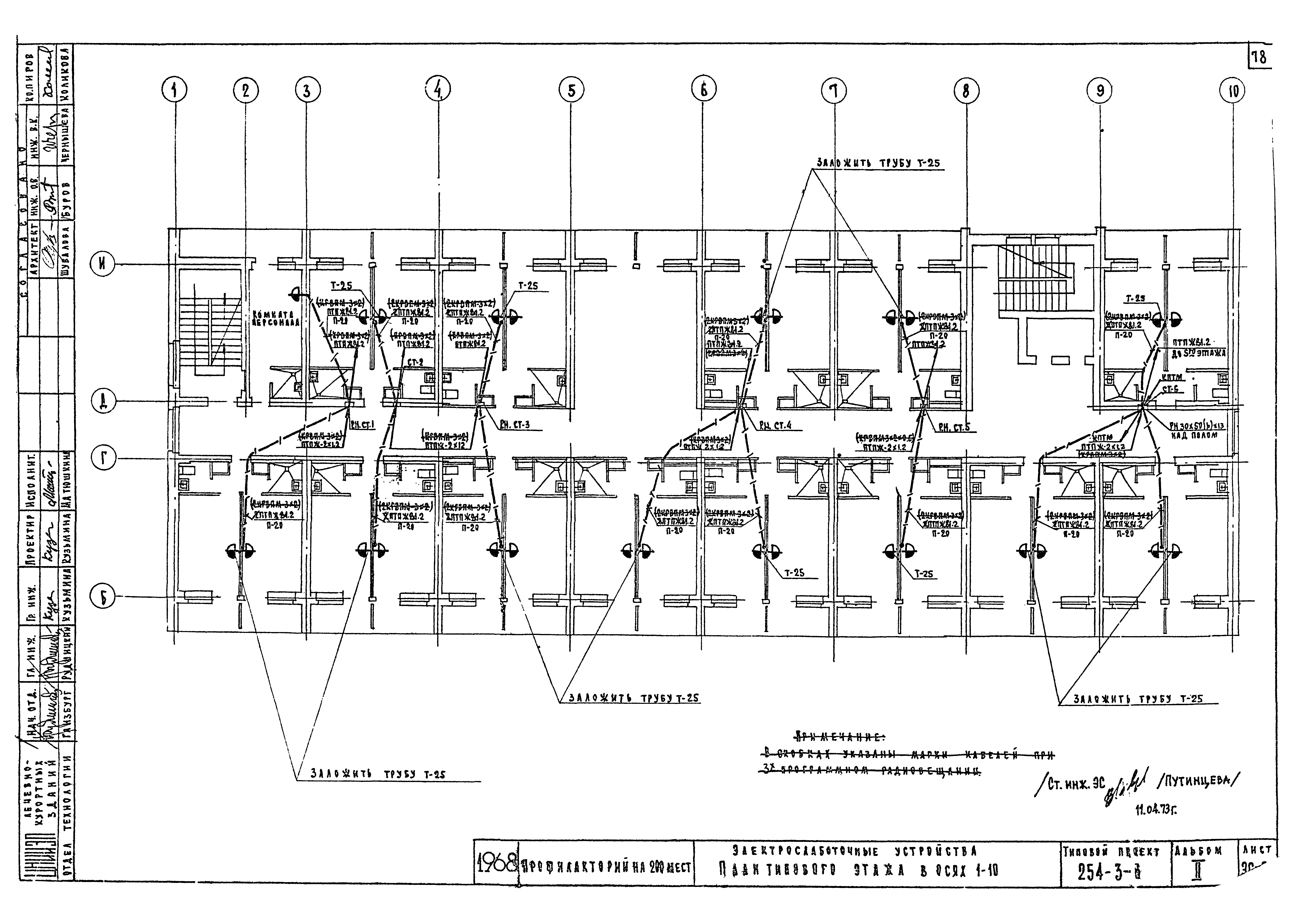
Альбом II. Инженерное оборудование (технологическая, санитарно-техническая и электро-техническая части, слаботочные устройства, холодильное оборудование и кинофикация)Обозначение: | Типовой проект 254-3-6 | Обозначение англ: | 254-3-6 | Статус: | отменен | Название рус.: | Альбом II. Инженерное оборудование (технологическая, санитарно-техническая и электро-техническая части, слаботочные устройства, холодильное оборудование и кинофикация) | Дата добавления в базу: | 05.05.2017 | Дата актуализации: | 05.05.2017 | Дата введения: | 01.01.1985 | Разработан: | ЦНИИЭП лечебно-курортных зданий
| Утверждён: | 01.01.1968 Госгражданстрой (Gosgrazhdanstroy )
| Расположен в: |
|
                                                                                                                
|