| ||||||||||||||||||||||||||||
Скачать Серия 1.271-4 Выпуск 2. Часть I. Стойки кафетерийные. СборочныеДата актуализации: 10.08.2017
|
| Обозначение: | Серия 1.271-4 |
| Обозначение англ: | Series 1.271-4 |
| Статус: | отменен |
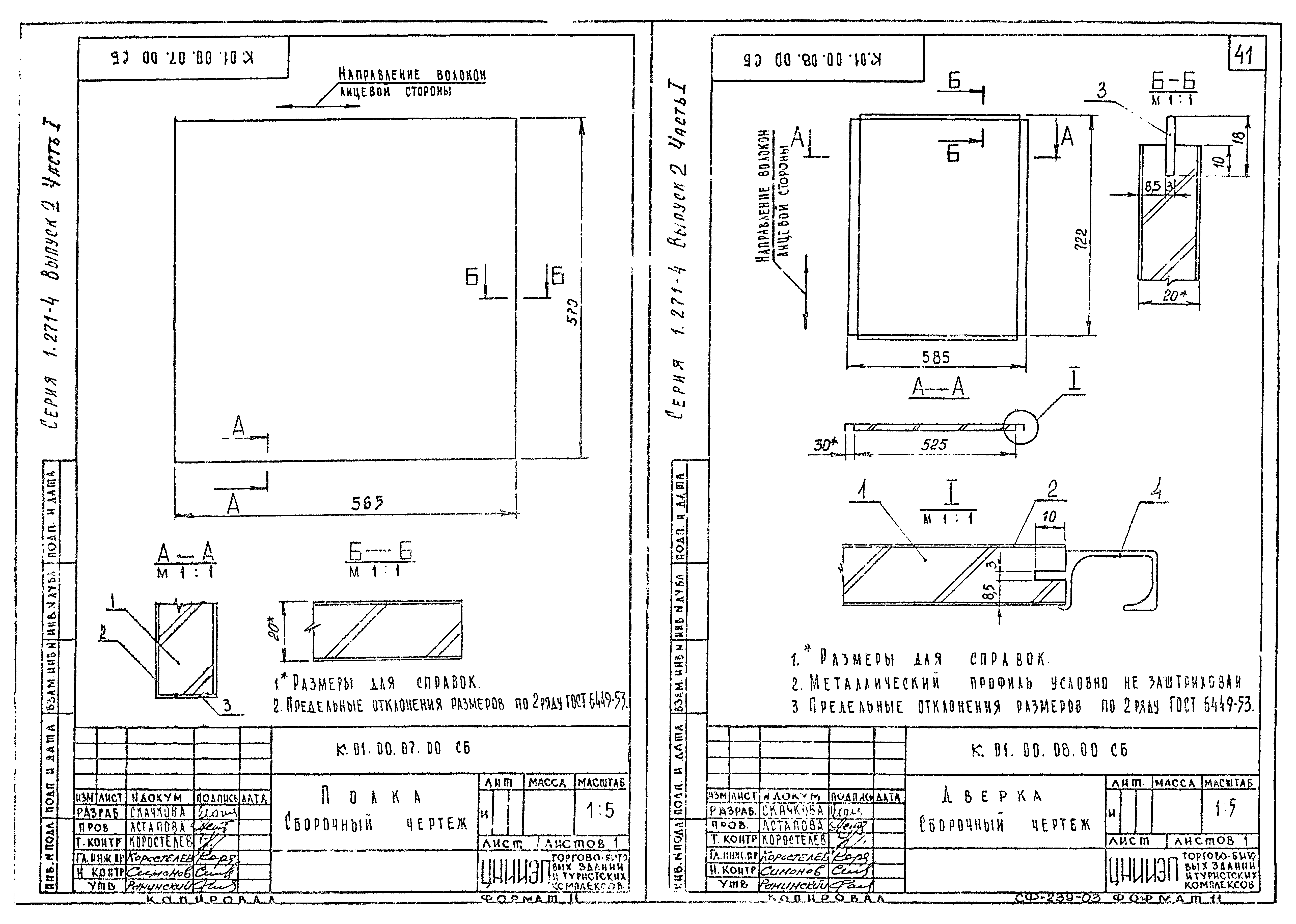
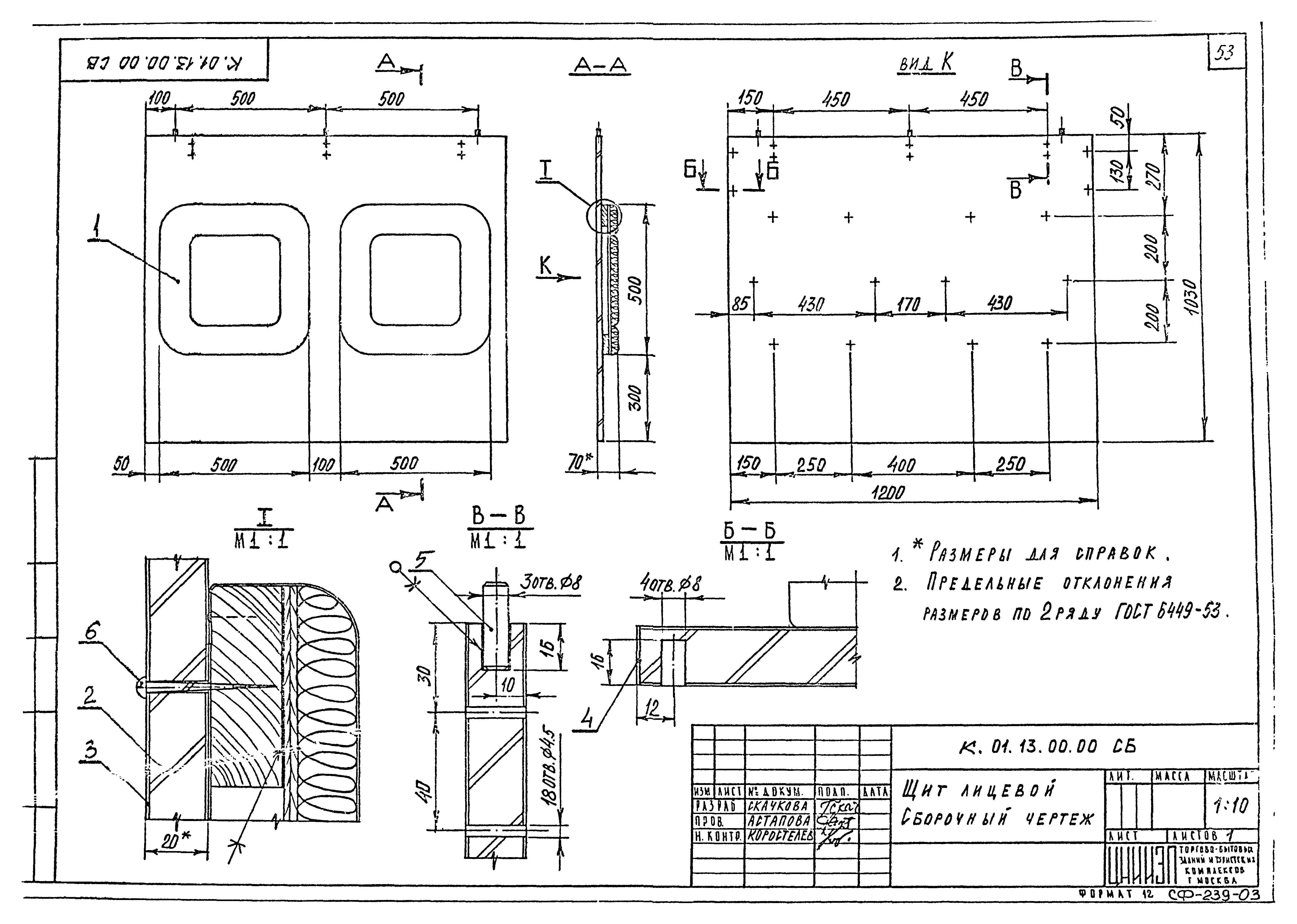
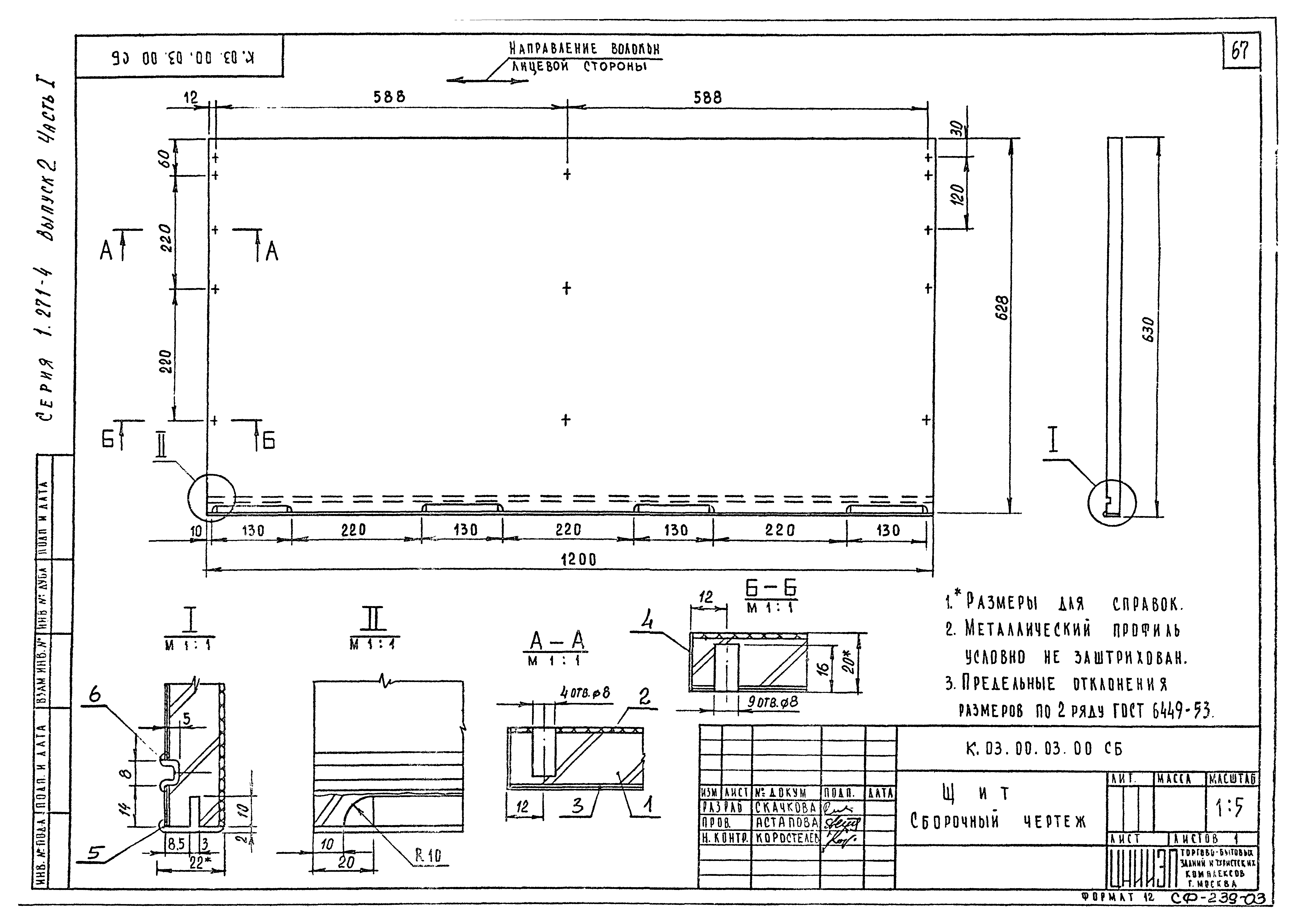
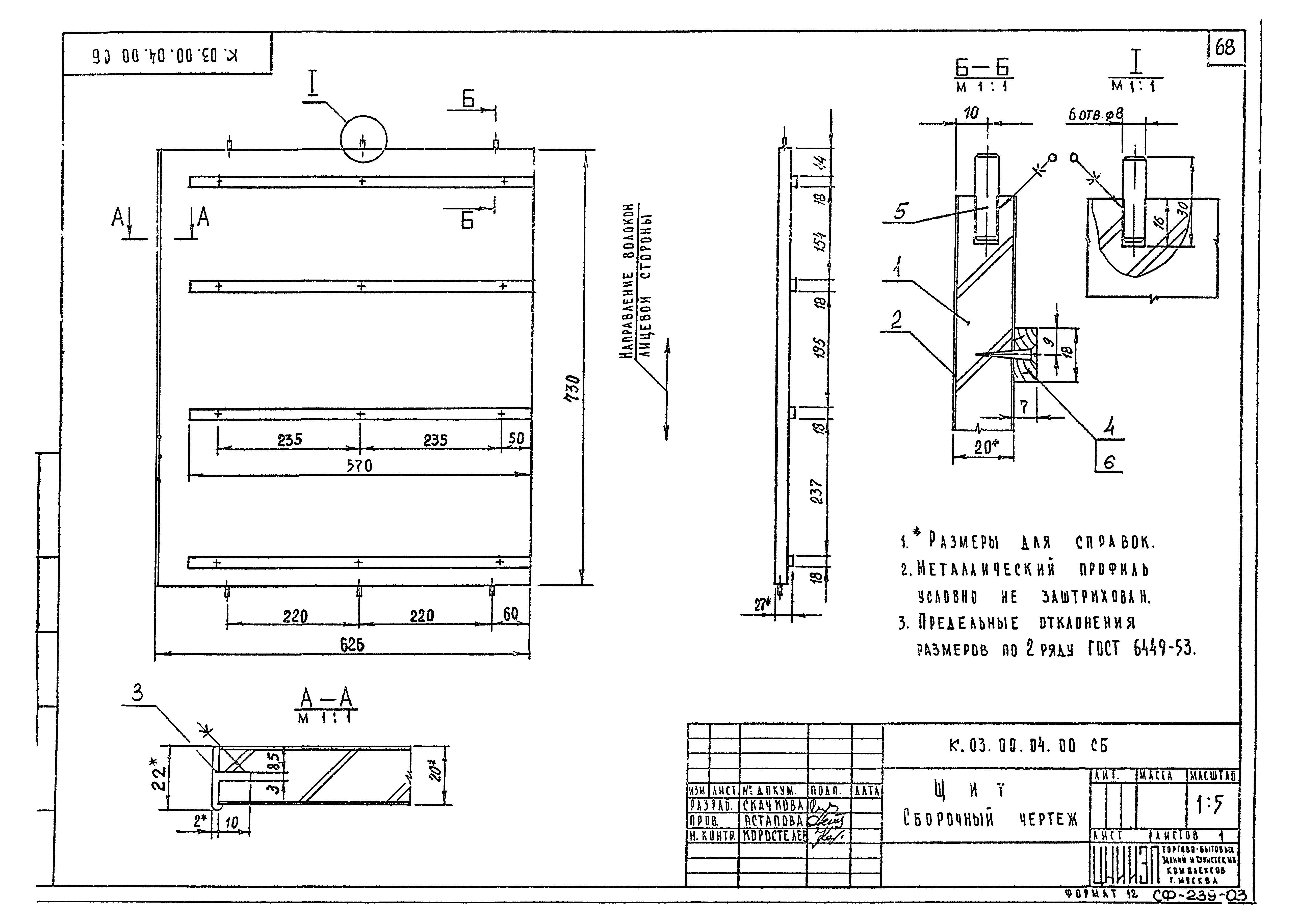
| Название рус.: | Выпуск 2. Часть I. Стойки кафетерийные. Сборочные |
| Дата добавления в базу: | 05.05.2017 |
| Дата актуализации: | 05.05.2017 |
| Дата введения: | 01.10.2000 |
| Разработан: | ЦНИИЭП торгово-бытовых зданий и торговых комплексов |
| Утверждён: | 15.07.1976 Госгражданстрой (Gosgrazhdanstroy 4-2206) |
| Издан: | ЦИТП Госстроя СССР (CITP, Gosstroy (USSR) 1977 г. ) |
| Расположен в: | |
| Заменяет собой: |
|























































































































