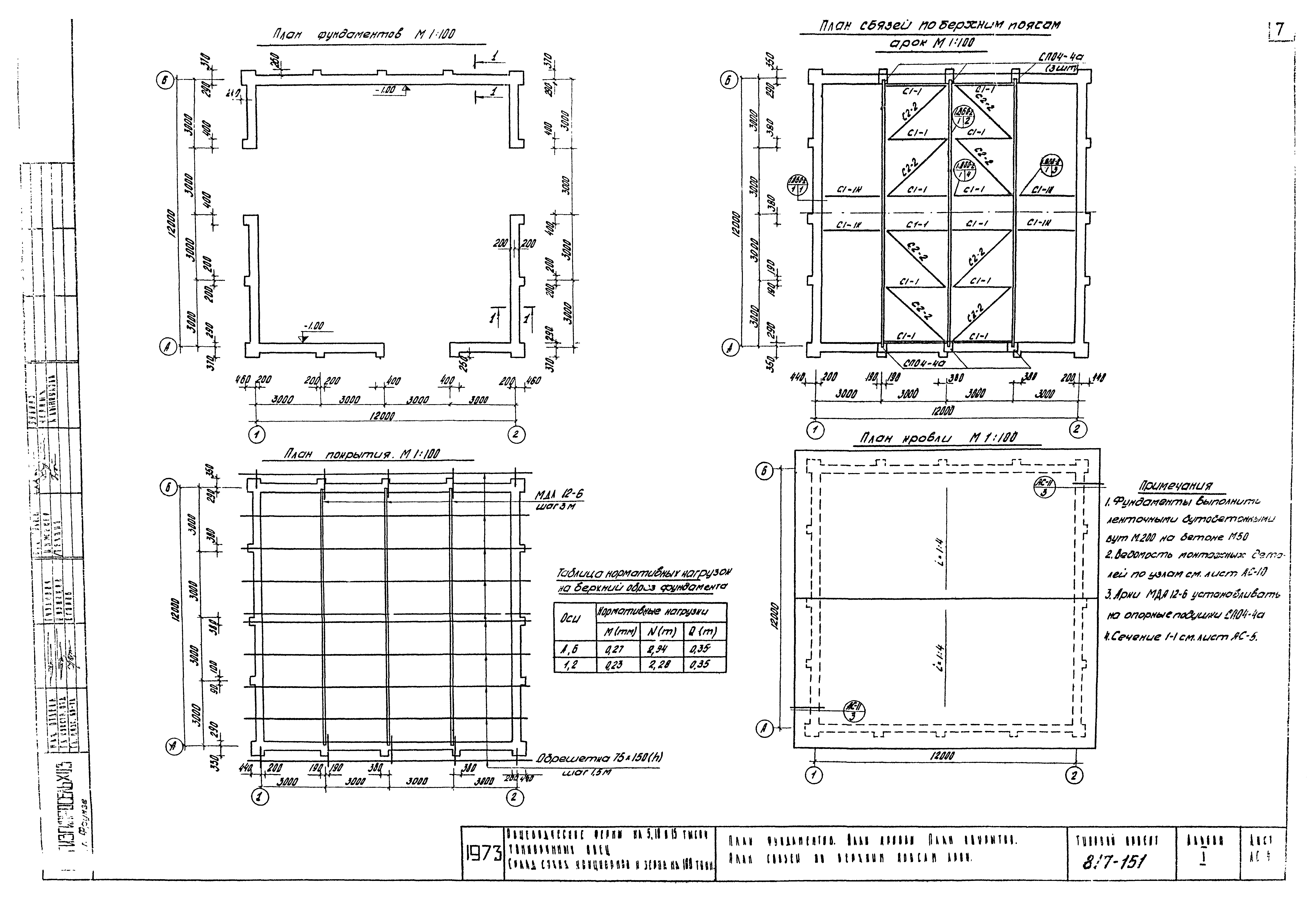
Скачать Типовой проект 817-151 Альбом I. Рабочие чертежиДата актуализации: 10.08.2017 Типовой проект 817-151
Альбом I. Рабочие чертежиОбозначение: | Типовой проект 817-151 | Обозначение англ: | 817-151 | Статус: | действует | Название рус.: | Альбом I. Рабочие чертежи | Дата добавления в базу: | 05.05.2017 | Дата актуализации: | 05.05.2017 | Разработан: | Киргизгипросельхоз
| Утверждён: | 24.12.1973 МСХ СССР Главное управление лугов, кормов и пастбищ
| Расположен в: |
|
              
|