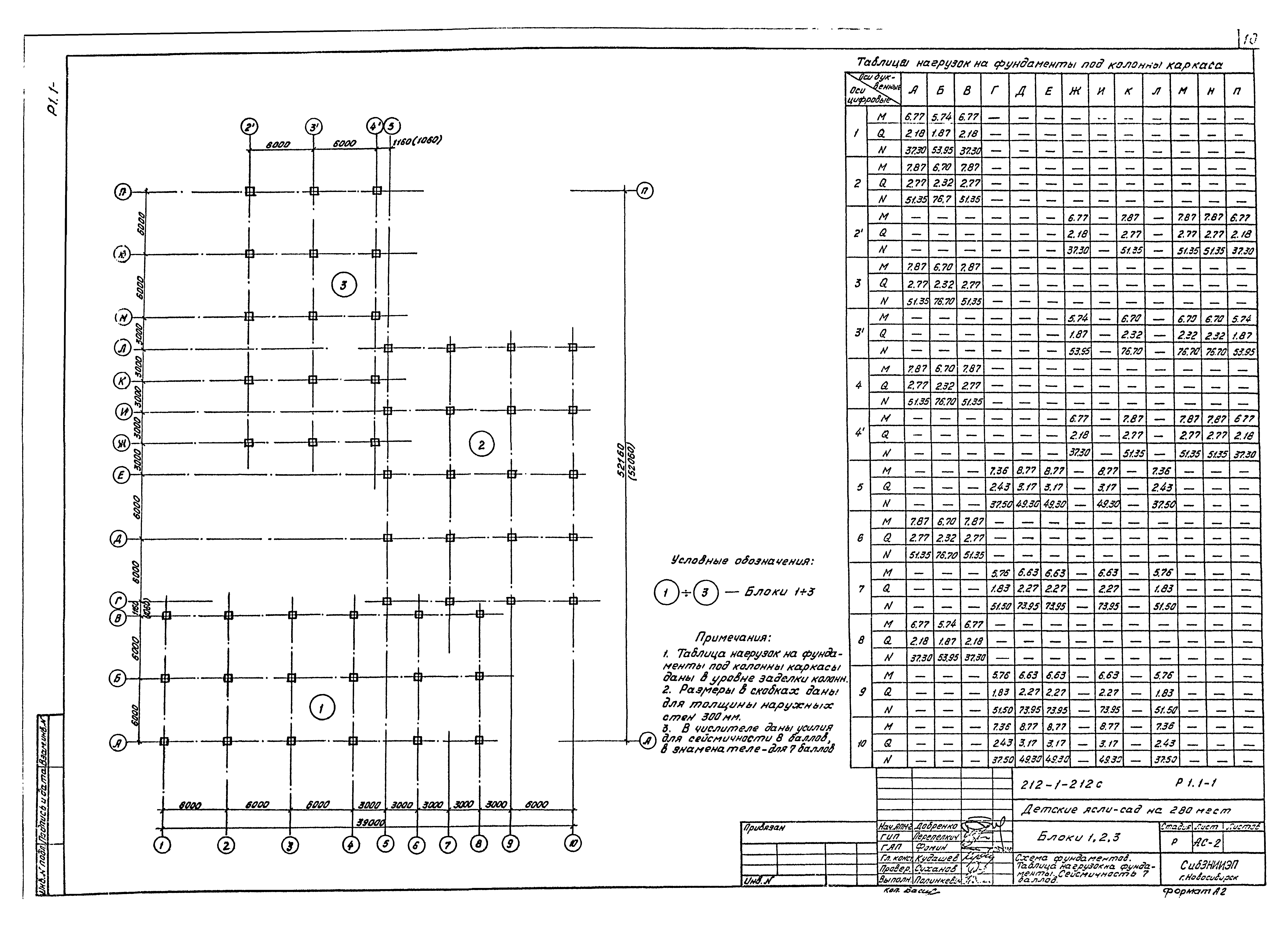
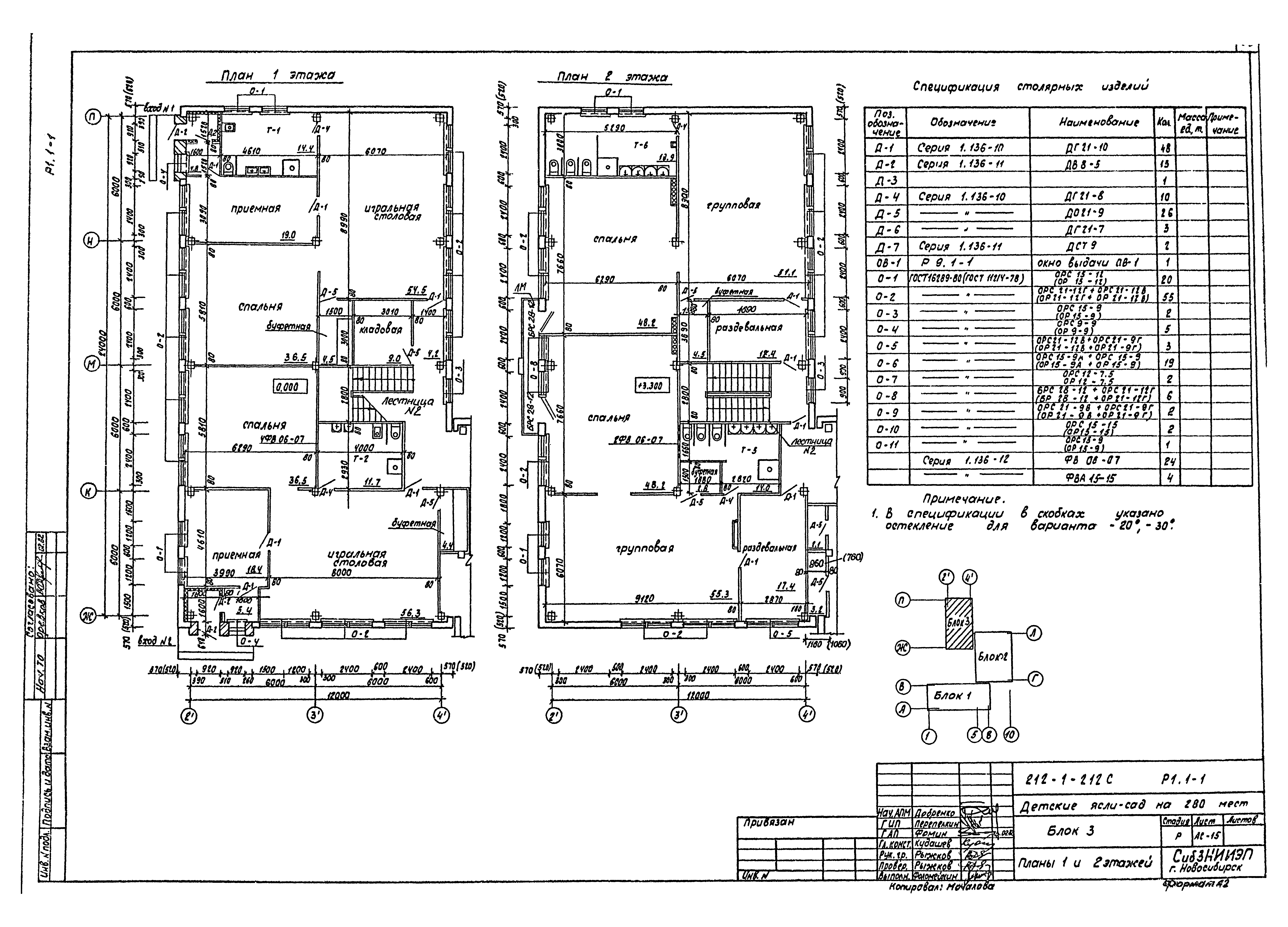
Скачать Типовой проект 212-1-212с Альбом I. Раздел 1.1-1. Архитектурно строительная часть. Радел 4.1-1. ТехнологияДата актуализации: 10.08.2017 Типовой проект 212-1-212с
Альбом I. Раздел 1.1-1. Архитектурно строительная часть. Радел 4.1-1. ТехнологияОбозначение: | Типовой проект 212-1-212с | Обозначение англ: | 212-1-212с | Статус: | действует | Название рус.: | Альбом I. Раздел 1.1-1. Архитектурно строительная часть. Радел 4.1-1. Технология | Дата добавления в базу: | 05.05.2017 | Дата актуализации: | 05.05.2017 | Разработан: | СибЗНИИЭП
| Утверждён: | 13.03.1981 Госгражданстрой (Gosgrazhdanstroy 109)
| Издан: | ЦИТП Госстроя СССР (CITP, Gosstroy (USSR) 1982 г. )
| Расположен в: |
|
                                                              
|