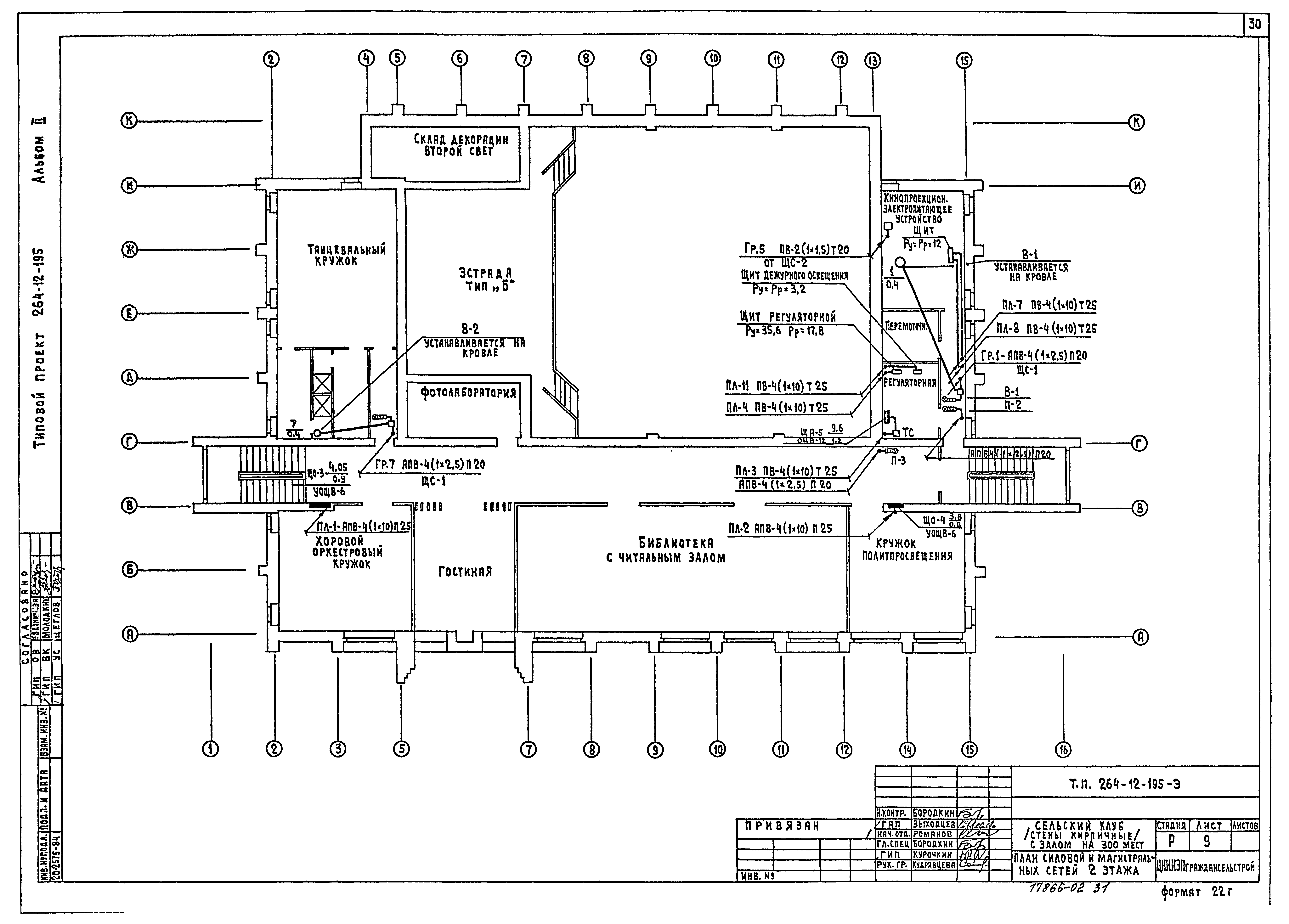
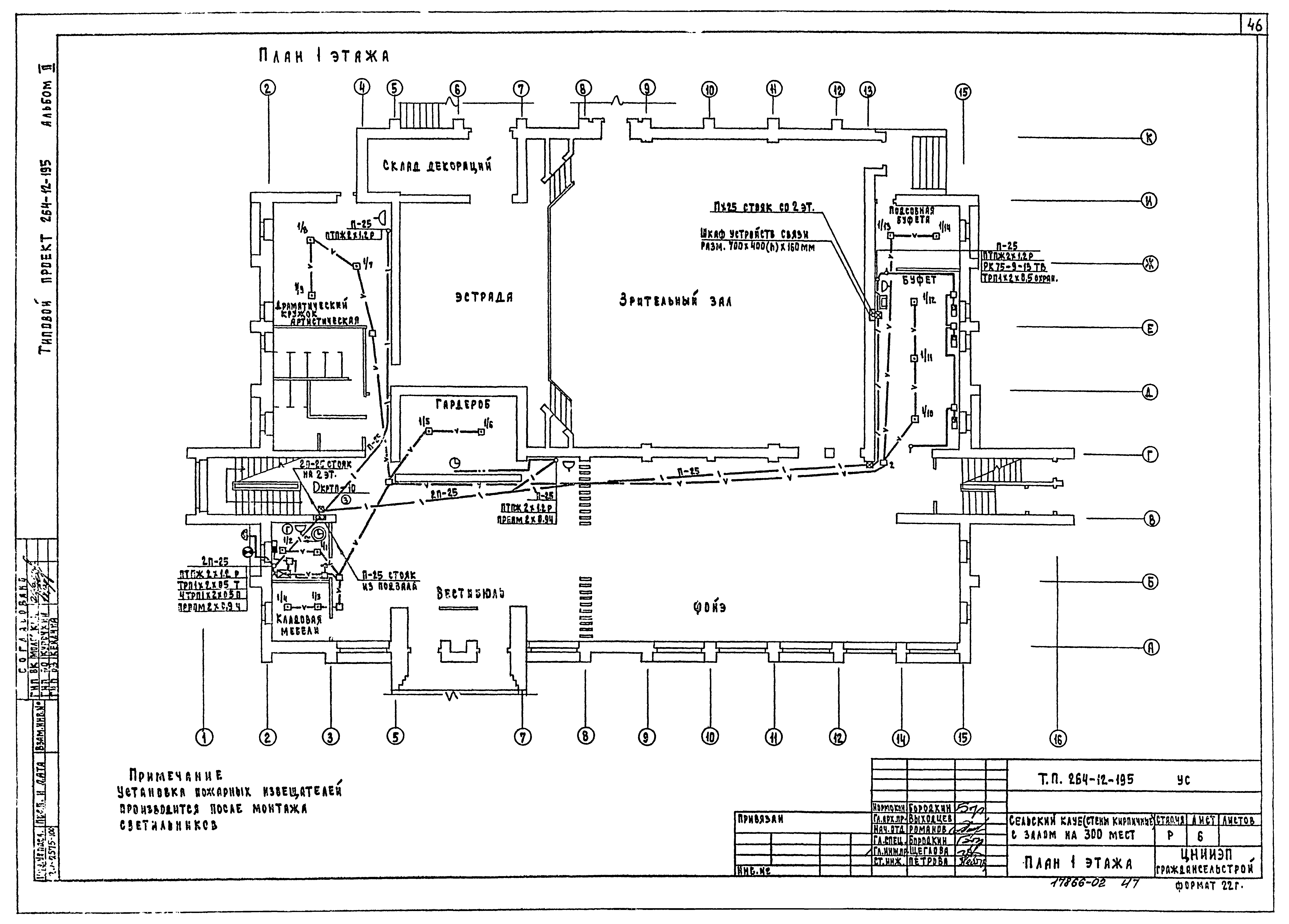
Скачать Типовой проект 264-12-195 Альбом II. Чертежи санитарно-технические, электрооборудования, автоматизации и устройство связиДата актуализации: 10.08.2017 Типовой проект 264-12-195
Альбом II. Чертежи санитарно-технические, электрооборудования, автоматизации и устройство связиОбозначение: | Типовой проект 264-12-195 | Обозначение англ: | 264-12-195 | Статус: | действует | Название рус.: | Альбом II. Чертежи санитарно-технические, электрооборудования, автоматизации и устройство связи | Дата добавления в базу: | 05.05.2017 | Дата актуализации: | 05.05.2017 | Разработан: | ЦНИИЭП граждансельстрой
| Утверждён: | 19.10.1979 Госгражданстрой (Gosgrazhdanstroy 218)
| Издан: | ЦИТП Госстроя СССР (CITP, Gosstroy (USSR) 1987 г. )
| Расположен в: |
|
                                                
|