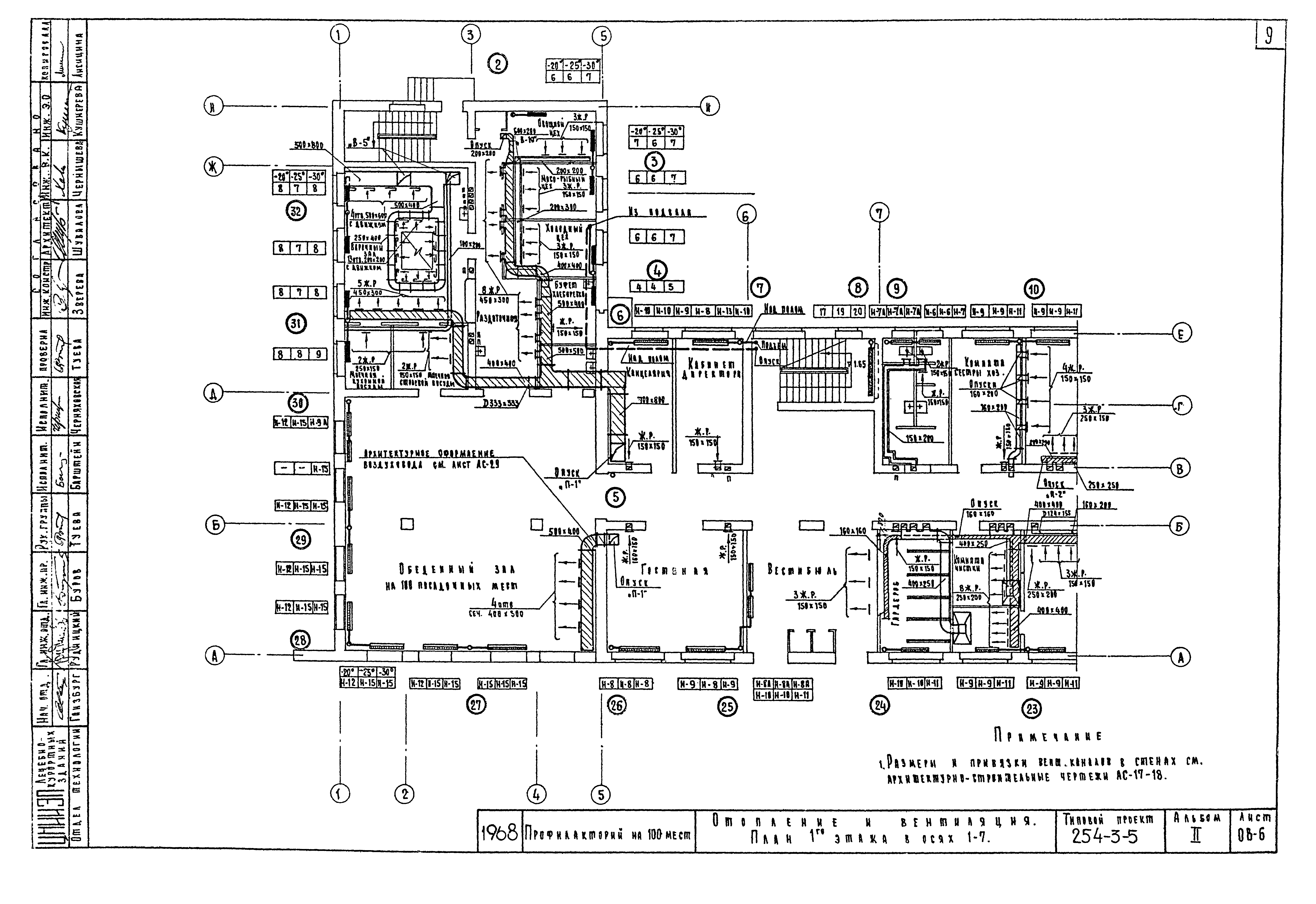
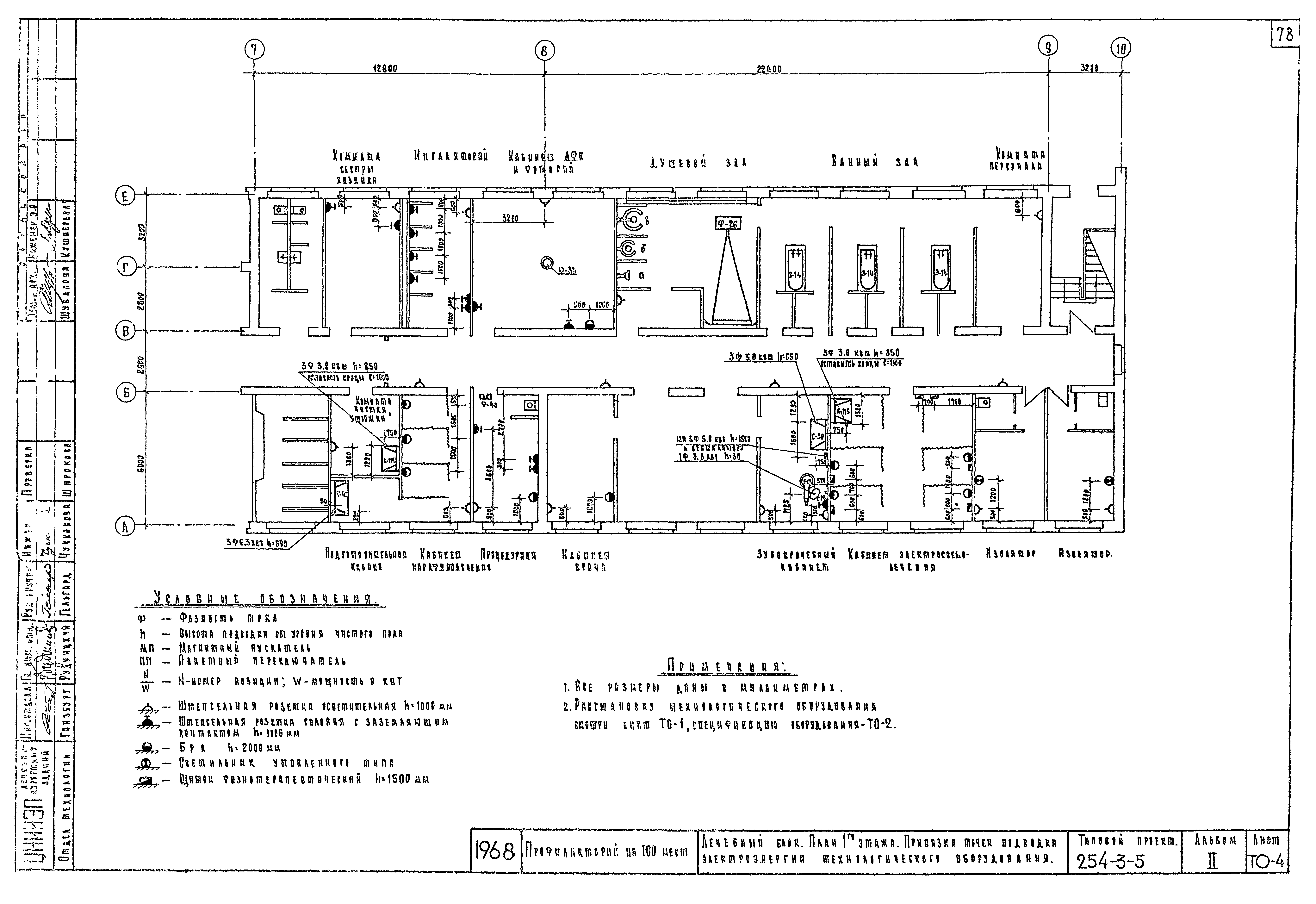
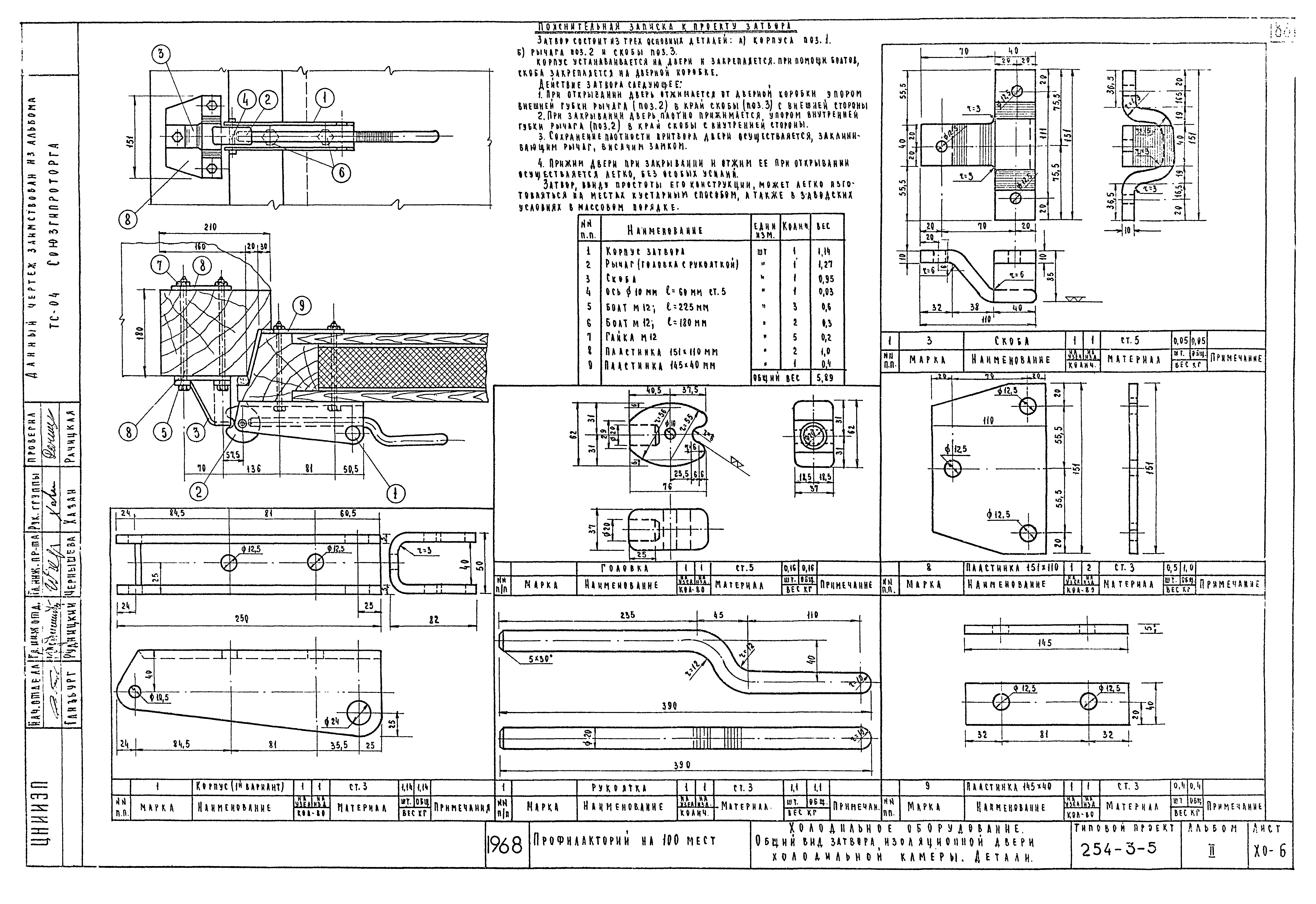
Скачать Типовой проект 254-3-5 Альбом II. Инженерное оборудование (технологическая, санитарно-техническая и электротехническая части, слаботочные устройства и холодильное оборудование)Дата актуализации: 10.08.2017 Типовой проект 254-3-5
Альбом II. Инженерное оборудование (технологическая, санитарно-техническая и электротехническая части, слаботочные устройства и холодильное оборудование)Обозначение: | Типовой проект 254-3-5 | Обозначение англ: | 254-3-5 | Статус: | действует | Название рус.: | Альбом II. Инженерное оборудование (технологическая, санитарно-техническая и электротехническая части, слаботочные устройства и холодильное оборудование) | Дата добавления в базу: | 05.05.2017 | Дата актуализации: | 05.05.2017 | Разработан: | ЦНИИЭП лечебно-курортных зданий
| Утверждён: | 18.10.1968 ЦНИИЭП лечебно-курортных зданий Госгражданстроя (245)
| Издан: | ЦИТП Госстроя СССР (CITP, Gosstroy (USSR) 1978 г. )
| Расположен в: |
|
                                                                                          
|