Информационная система
«Ёшкин Кот»

Скачать базу одним архивом
Скачать обновления
История создания базы
Карта сайта

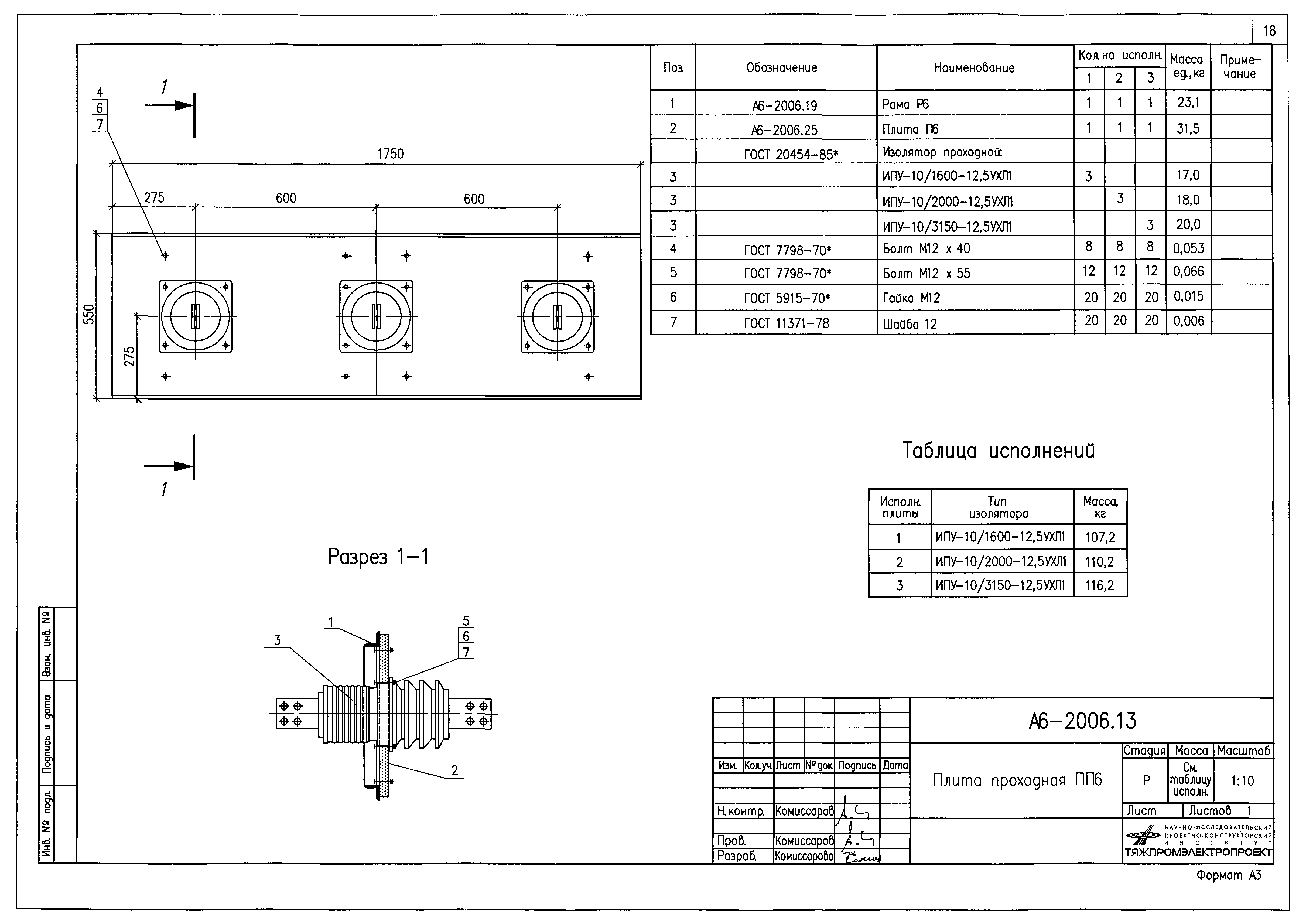
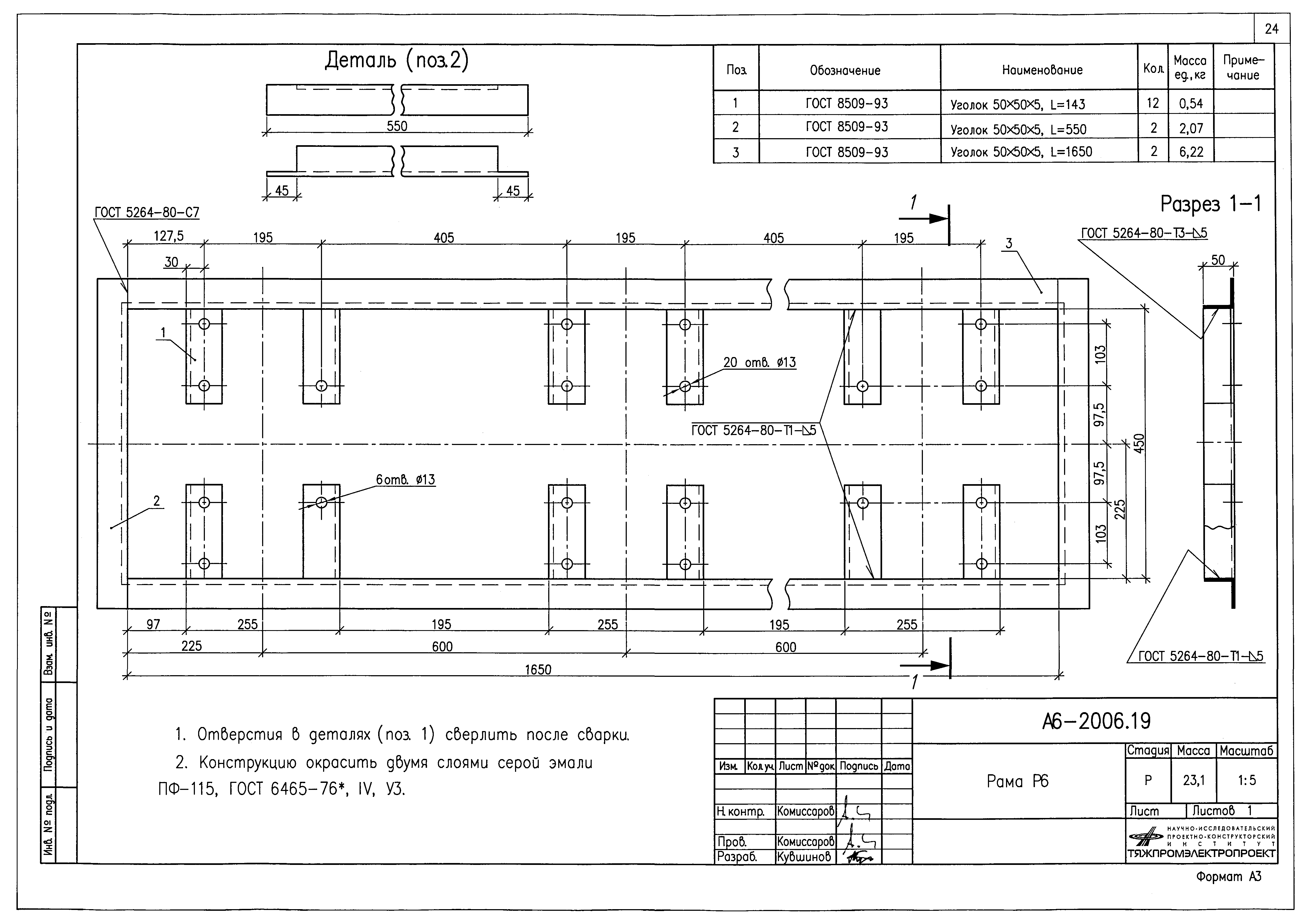
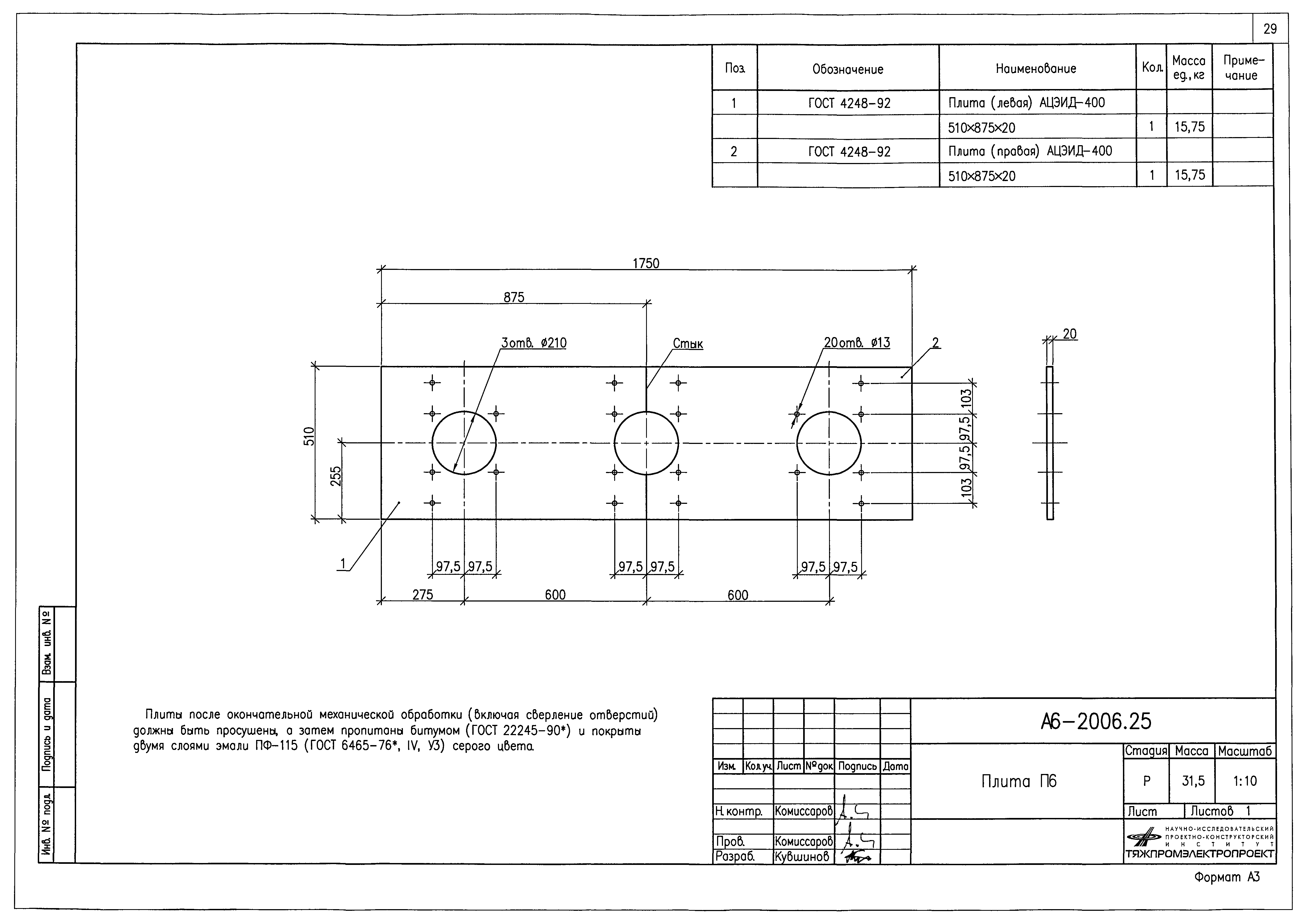
Скачать Альбом А6-2006 Плиты с проходными изоляторами на напряжение 10 кВ для наружно-внутренних установок. Материалы для проектирования и рабочие чертежи

Дата актуализации: 10.08.2017

Альбом А6-2006

Плиты с проходными изоляторами на напряжение 10 кВ для наружно-внутренних установок. Материалы для проектирования и рабочие чертежи

Обозначение: Альбом А6-2006
Обозначение англ: А6-2006
Статус:организационно-ограниченного применения
Название рус.:Плиты с проходными изоляторами на напряжение 10 кВ для наружно-внутренних установок. Материалы для проектирования и рабочие чертежи
Дата добавления в базу:05.05.2017
Дата актуализации:05.05.2017
Дата введения:27.04.2006
Область применения:Проходные плиты предназначены для прохода через наружные стены зданий электрических цепей напряжением 10 кВ, выполненных шинами или неизолированными проводами
Разработан: Тяжпромэлектропроект
Утверждён:27.04.2006 Ассоциация Росэлектромонтаж (15)
Расположен в:Техническая документация Строительство Справочные документы Типовые строительные конструкции, изделия и узлы Разработанные другими министерствами, ведомствами и организациями
Нормативные ссылки:
Альбом А6-2006Альбом А6-2006Альбом А6-2006Альбом А6-2006Альбом А6-2006Альбом А6-2006Альбом А6-2006Альбом А6-2006Альбом А6-2006Альбом А6-2006Альбом А6-2006Альбом А6-2006Альбом А6-2006Альбом А6-2006Альбом А6-2006Альбом А6-2006Альбом А6-2006Альбом А6-2006Альбом А6-2006Альбом А6-2006Альбом А6-2006Альбом А6-2006Альбом А6-2006Альбом А6-2006Альбом А6-2006Альбом А6-2006Альбом А6-2006Альбом А6-2006Альбом А6-2006Альбом А6-2006Альбом А6-2006

© 2013 Ёшкин Кот :-) Карта сайта