| ||||||||||||||||||||||
Скачать Методическое пособие. Разработка методических указаний по проектированию типовых технических решений ограждающих звукоизолирующих конструкцийДата актуализации: 10.08.2017 |
| Статус: | действует |
| Название рус.: | Методическое пособие. Разработка методических указаний по проектированию типовых технических решений ограждающих звукоизолирующих конструкций |
| Дата добавления в базу: | 05.05.2017 |
| Дата актуализации: | 05.05.2017 |
| Область применения: | Содержащиеся в Методическом пособии типовые инженерные решения рекомендованы для применения при проектировании и строительстве, в том числе при реконструкции и реставрации жилых, общественных и производственных зданий и сооружений любого назначения, с целью улучшения звукоизоляции ограждающих конструкций. |
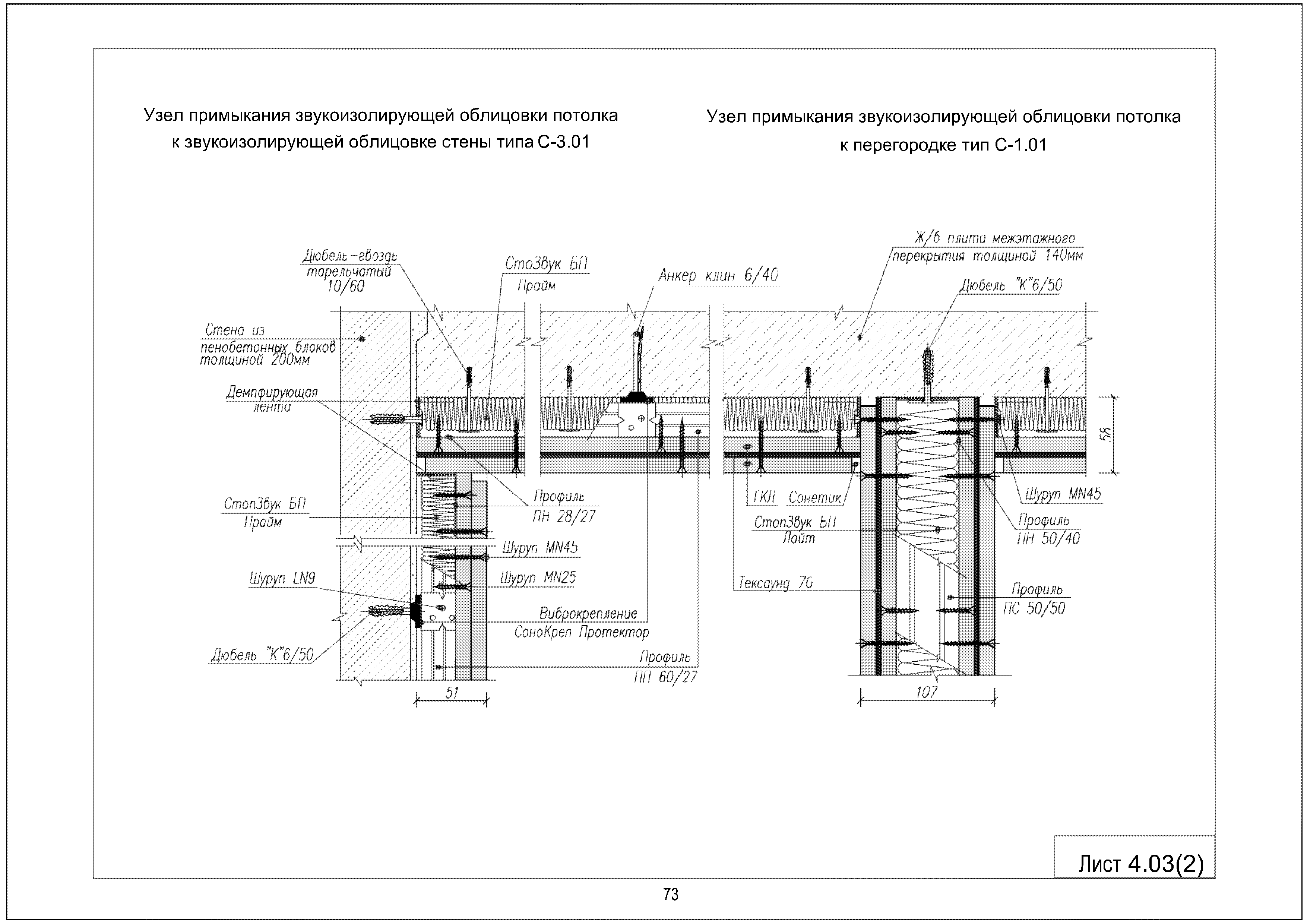
| Оглавление: | Введение Область применения Раздел 1. Общие положения. Нормативы и методики Общие положения Нормативы и методики Перечень схем ограждающих конструкций и помещений для возможного применения Раздел 2. Звукоизолирующие каркасные перегородки Перегородки на одинарном каркасе Перегородки на двойном каркасе Перегородки на специальном каркасе Раздел 3. Бескаркасные перегородки и межквартирные стены Звукоизолирующие межквартирные стены с облицовкой Звукоизолирующие перегородки и межквартирные стены без облицовки Раздел 4. Звукоизолирующие обшивки стен Раздел 5. Звукоизолирующие обшивки потолков Раздел 6. Звукоизолирующие конструкции полов Приложение А. Перечень акустических материалов и конструктивных элементов Приложение Б. Нормативные данные (выписка из СП 51.13330.2011 "СНиП 23-03-2003 "Защита от шума") Приложение В. Методика расчета звукоизоляции внутренних ограждающих конструкций жилых и общественных зданий |
| Разработан: | НИИСФ РАА и СН АО Гипрогеолстрой ФГБОУ ВО НИУ МГСУ |
| Расположен в: | |
| Нормативные ссылки: |
|












































































































