Информационная система
«Ёшкин Кот»

Скачать базу одним архивом
Скачать обновления
История создания базы
Карта сайта

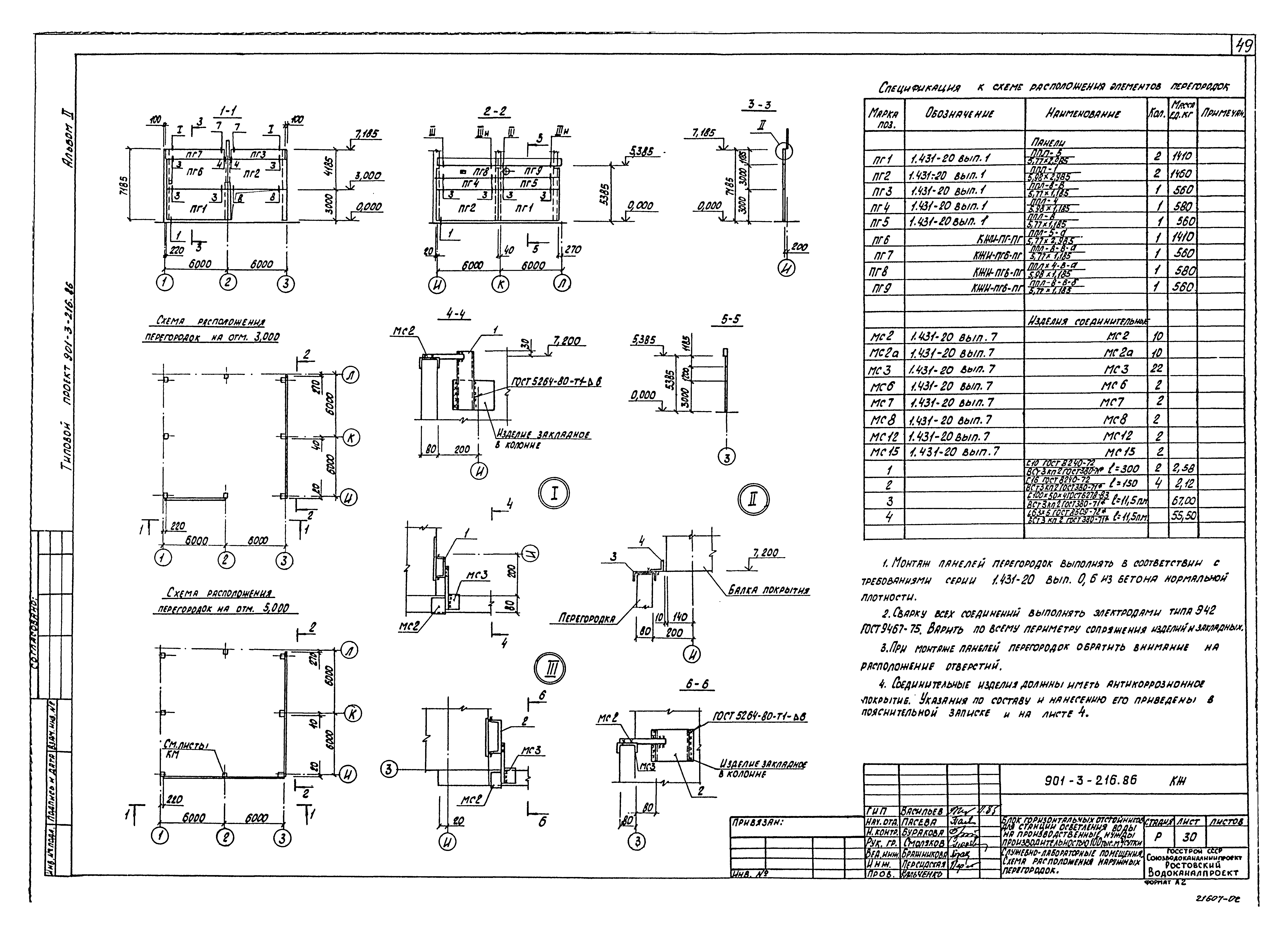
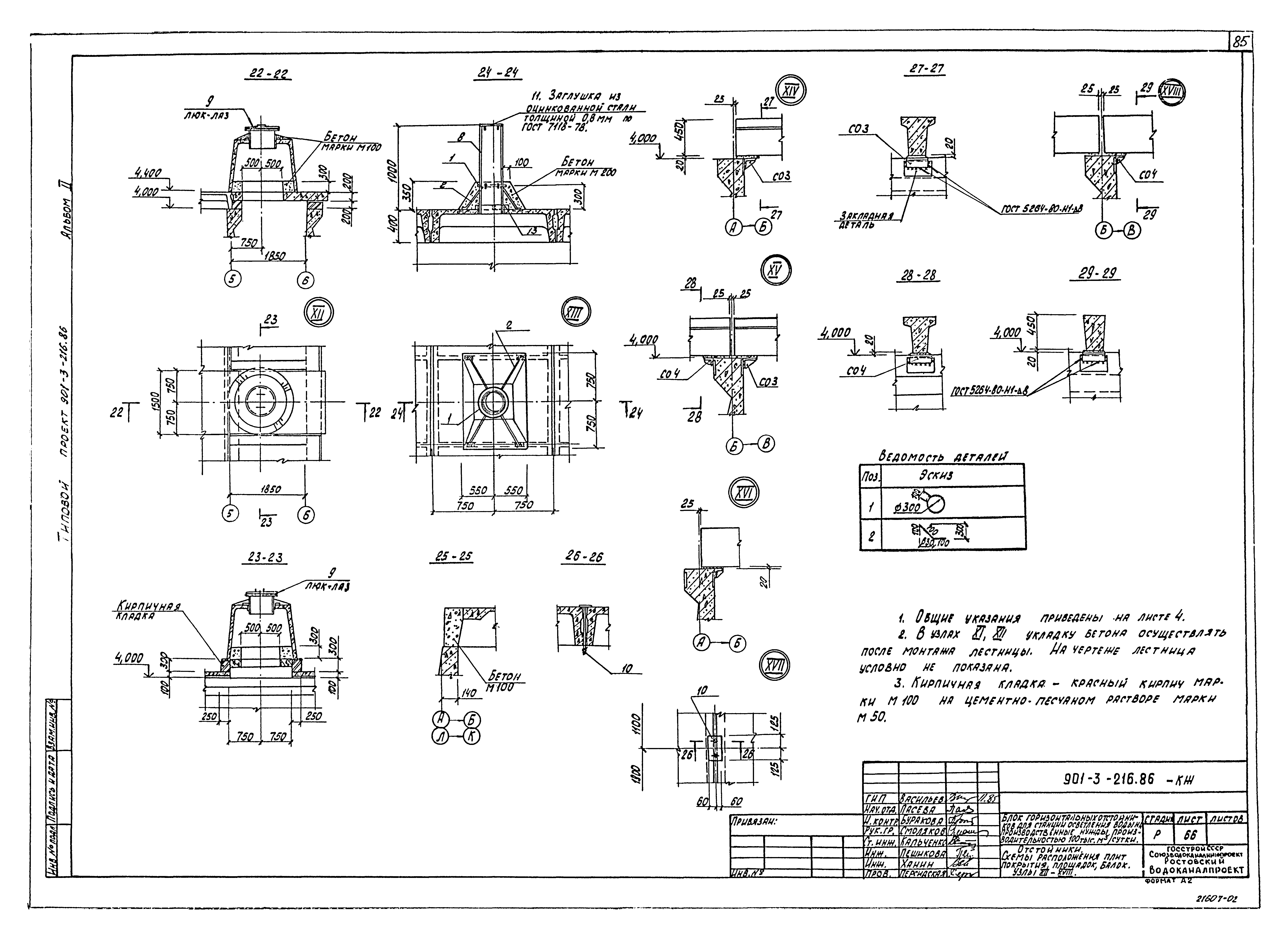
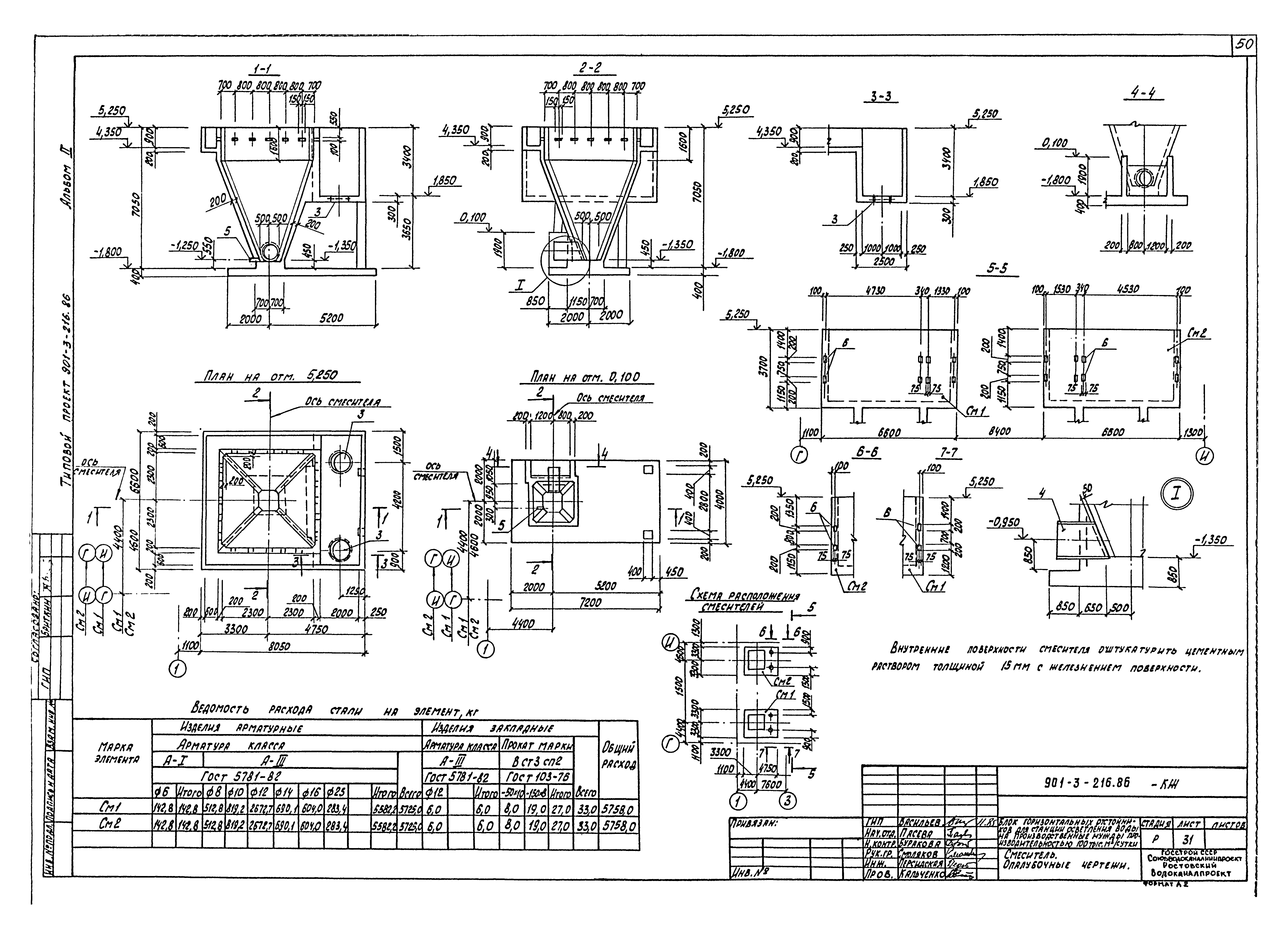
Скачать Типовой проект 901-3-216.86 Альбом II. Часть 1. Архитектурно-строительные решения

Дата актуализации: 10.08.2017

Типовой проект 901-3-216.86

Альбом II. Часть 1. Архитектурно-строительные решения

Обозначение: Типовой проект 901-3-216.86
Обозначение англ: 901-3-216.86
Статус:не действует
Название рус.:Альбом II. Часть 1. Архитектурно-строительные решения
Дата добавления в базу:01.02.2017
Дата актуализации:05.05.2017
Дата введения:01.12.1994
Разработан: Союзводоканалпроект
Ростовский Водоканалпроект
Утверждён:29.12.1985 Главстройпроект Госстроя СССР (19/5-3567)
Издан: ЦИТП Госстроя СССР (CITP, Gosstroy (USSR) 1987 г. )
Расположен в:Техническая документация Строительство Справочные документы Типовые строительные конструкции, изделия и узлы Общероссийский строительный каталог Промышленные предприятия, здания и сооружения Здания и сооружения санитарно-технические Водоснабжение Очистные сооружения Станции очистки воды
Заменяет собой:
  • Типовой проект 901-3-126
Нормативные ссылки:
Типовой проект 901-3-216.86Типовой проект 901-3-216.86Типовой проект 901-3-216.86Типовой проект 901-3-216.86Типовой проект 901-3-216.86Типовой проект 901-3-216.86Типовой проект 901-3-216.86Типовой проект 901-3-216.86Типовой проект 901-3-216.86Типовой проект 901-3-216.86Типовой проект 901-3-216.86Типовой проект 901-3-216.86Типовой проект 901-3-216.86Типовой проект 901-3-216.86Типовой проект 901-3-216.86Типовой проект 901-3-216.86Типовой проект 901-3-216.86Типовой проект 901-3-216.86Типовой проект 901-3-216.86Типовой проект 901-3-216.86Типовой проект 901-3-216.86Типовой проект 901-3-216.86Типовой проект 901-3-216.86Типовой проект 901-3-216.86Типовой проект 901-3-216.86Типовой проект 901-3-216.86Типовой проект 901-3-216.86Типовой проект 901-3-216.86Типовой проект 901-3-216.86Типовой проект 901-3-216.86Типовой проект 901-3-216.86Типовой проект 901-3-216.86Типовой проект 901-3-216.86Типовой проект 901-3-216.86Типовой проект 901-3-216.86Типовой проект 901-3-216.86Типовой проект 901-3-216.86Типовой проект 901-3-216.86Типовой проект 901-3-216.86Типовой проект 901-3-216.86Типовой проект 901-3-216.86Типовой проект 901-3-216.86Типовой проект 901-3-216.86Типовой проект 901-3-216.86Типовой проект 901-3-216.86Типовой проект 901-3-216.86Типовой проект 901-3-216.86Типовой проект 901-3-216.86Типовой проект 901-3-216.86Типовой проект 901-3-216.86Типовой проект 901-3-216.86Типовой проект 901-3-216.86Типовой проект 901-3-216.86Типовой проект 901-3-216.86Типовой проект 901-3-216.86Типовой проект 901-3-216.86Типовой проект 901-3-216.86Типовой проект 901-3-216.86Типовой проект 901-3-216.86Типовой проект 901-3-216.86Типовой проект 901-3-216.86Типовой проект 901-3-216.86Типовой проект 901-3-216.86Типовой проект 901-3-216.86Типовой проект 901-3-216.86Типовой проект 901-3-216.86Типовой проект 901-3-216.86Типовой проект 901-3-216.86Типовой проект 901-3-216.86Типовой проект 901-3-216.86Типовой проект 901-3-216.86Типовой проект 901-3-216.86Типовой проект 901-3-216.86Типовой проект 901-3-216.86Типовой проект 901-3-216.86Типовой проект 901-3-216.86Типовой проект 901-3-216.86Типовой проект 901-3-216.86Типовой проект 901-3-216.86Типовой проект 901-3-216.86Типовой проект 901-3-216.86Типовой проект 901-3-216.86Типовой проект 901-3-216.86Типовой проект 901-3-216.86Типовой проект 901-3-216.86Типовой проект 901-3-216.86Типовой проект 901-3-216.86Типовой проект 901-3-216.86Типовой проект 901-3-216.86

© 2013 Ёшкин Кот :-) Карта сайта