Информационная система
«Ёшкин Кот»

Скачать базу одним архивом
Скачать обновления
История создания базы
Карта сайта

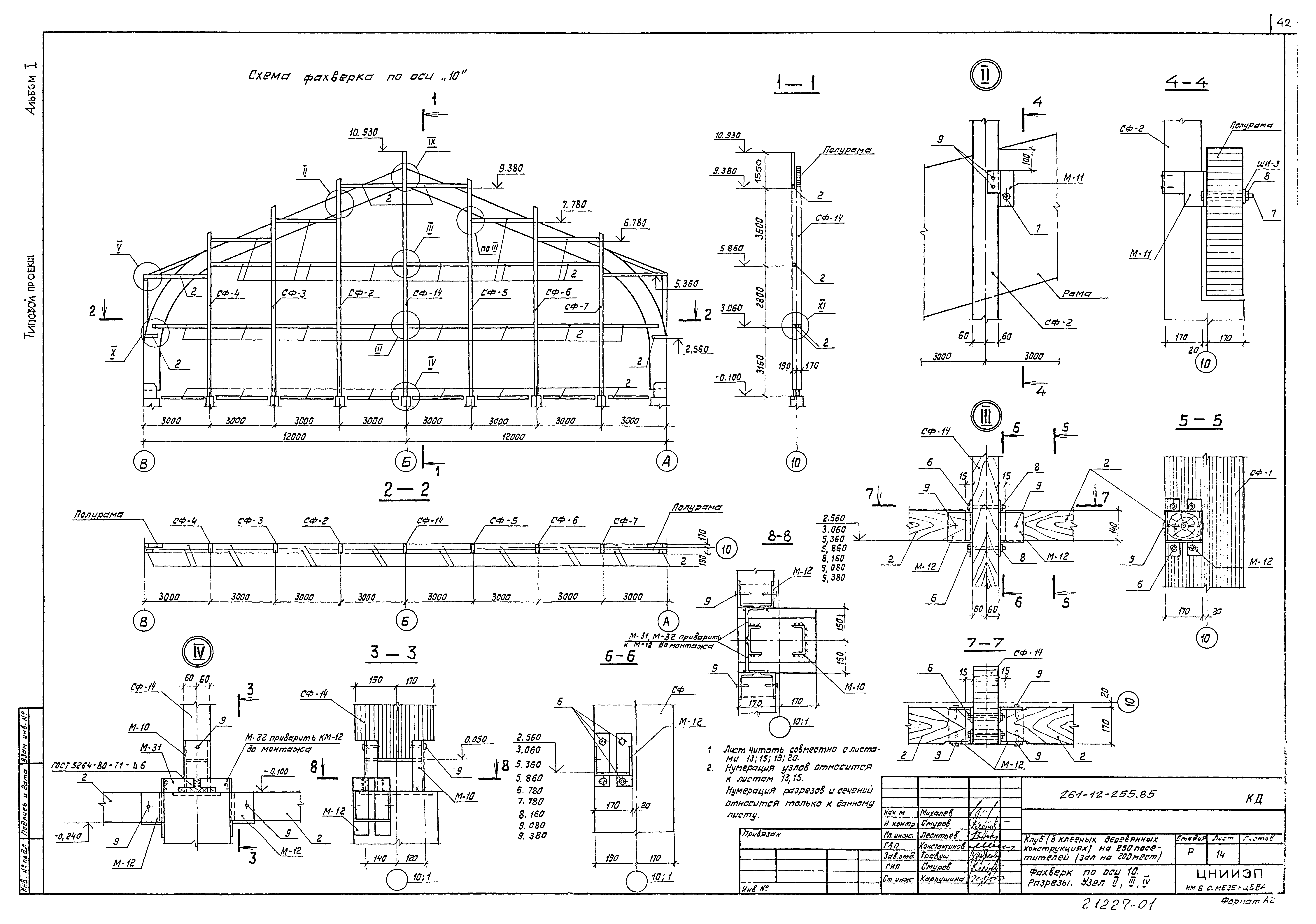
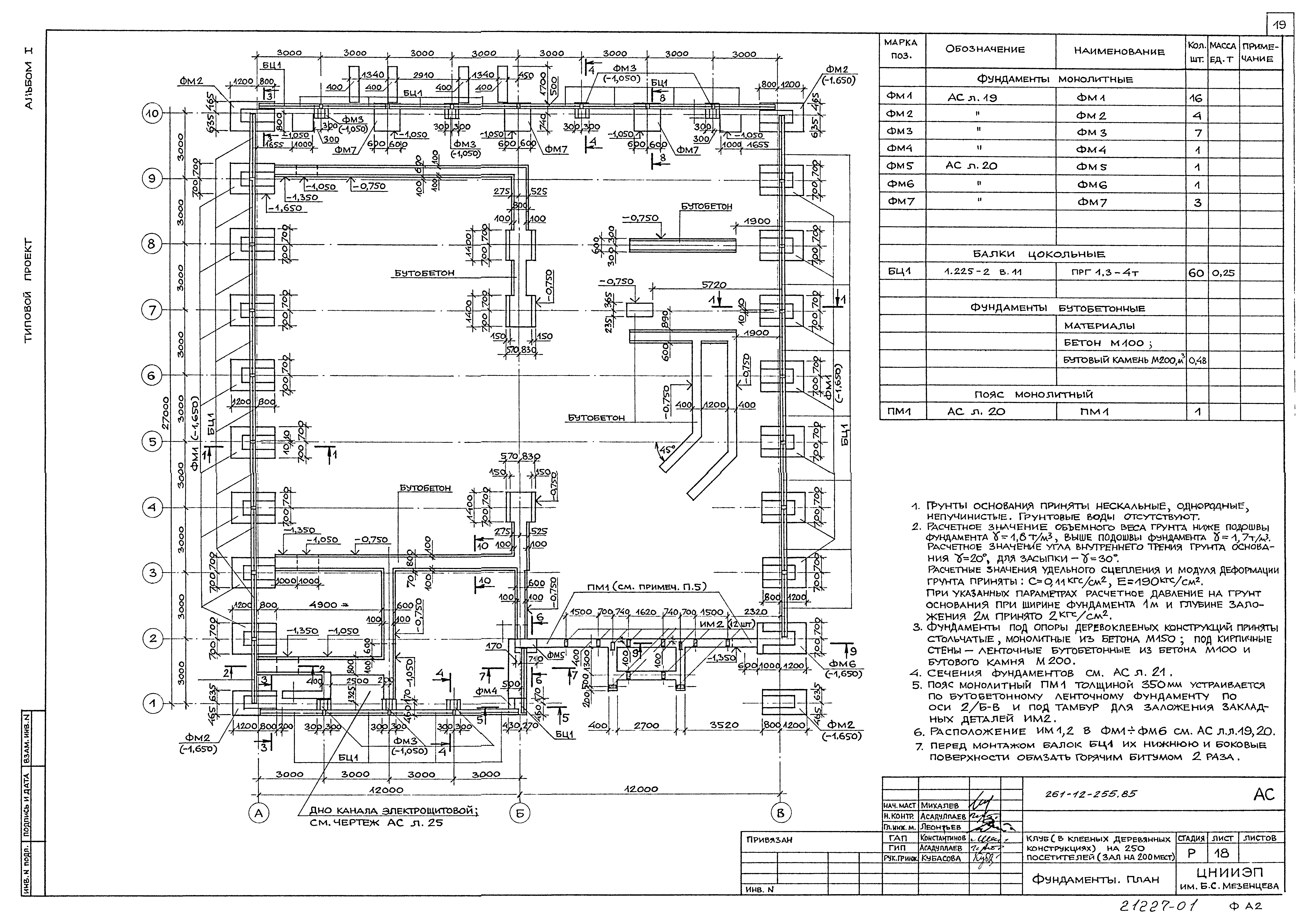
Скачать Типовой проект 261-12-255.85 Альбом I. Архитектурно-строительные чертежи

Дата актуализации: 10.08.2017

Типовой проект 261-12-255.85

Альбом I. Архитектурно-строительные чертежи

Обозначение: Типовой проект 261-12-255.85
Обозначение англ: 261-12-255.85
Статус:действует
Название рус.:Альбом I. Архитектурно-строительные чертежи
Дата добавления в базу:01.02.2017
Дата актуализации:05.05.2017
Разработан: ЦНИИЭП им. Б.С. Мезенцева Госгражданстроя
Утверждён:27.12.1984 Госгражданстрой (Gosgrazhdanstroy 407)
Расположен в:Техническая документация Строительство Справочные документы Типовые строительные конструкции, изделия и узлы Общероссийский строительный каталог Общественные здания в городах и поселках городского типа Зрелищные и культурно-просветительские учреждения. Здания для органов управления и общественных организаций Зрелищные и культурно-просветительские учреждения Клубы, дома культуры, центры досуга, залы танцевальные, залы игровых автоматов
Типовой проект 261-12-255.85Типовой проект 261-12-255.85Типовой проект 261-12-255.85Типовой проект 261-12-255.85Типовой проект 261-12-255.85Типовой проект 261-12-255.85Типовой проект 261-12-255.85Типовой проект 261-12-255.85Типовой проект 261-12-255.85Типовой проект 261-12-255.85Типовой проект 261-12-255.85Типовой проект 261-12-255.85Типовой проект 261-12-255.85Типовой проект 261-12-255.85Типовой проект 261-12-255.85Типовой проект 261-12-255.85Типовой проект 261-12-255.85Типовой проект 261-12-255.85Типовой проект 261-12-255.85Типовой проект 261-12-255.85Типовой проект 261-12-255.85Типовой проект 261-12-255.85Типовой проект 261-12-255.85Типовой проект 261-12-255.85Типовой проект 261-12-255.85Типовой проект 261-12-255.85Типовой проект 261-12-255.85Типовой проект 261-12-255.85Типовой проект 261-12-255.85Типовой проект 261-12-255.85Типовой проект 261-12-255.85Типовой проект 261-12-255.85Типовой проект 261-12-255.85Типовой проект 261-12-255.85Типовой проект 261-12-255.85Типовой проект 261-12-255.85Типовой проект 261-12-255.85Типовой проект 261-12-255.85Типовой проект 261-12-255.85Типовой проект 261-12-255.85Типовой проект 261-12-255.85Типовой проект 261-12-255.85Типовой проект 261-12-255.85Типовой проект 261-12-255.85Типовой проект 261-12-255.85Типовой проект 261-12-255.85Типовой проект 261-12-255.85Типовой проект 261-12-255.85Типовой проект 261-12-255.85Типовой проект 261-12-255.85Типовой проект 261-12-255.85Типовой проект 261-12-255.85Типовой проект 261-12-255.85Типовой проект 261-12-255.85Типовой проект 261-12-255.85Типовой проект 261-12-255.85

© 2013 Ёшкин Кот :-) Карта сайта