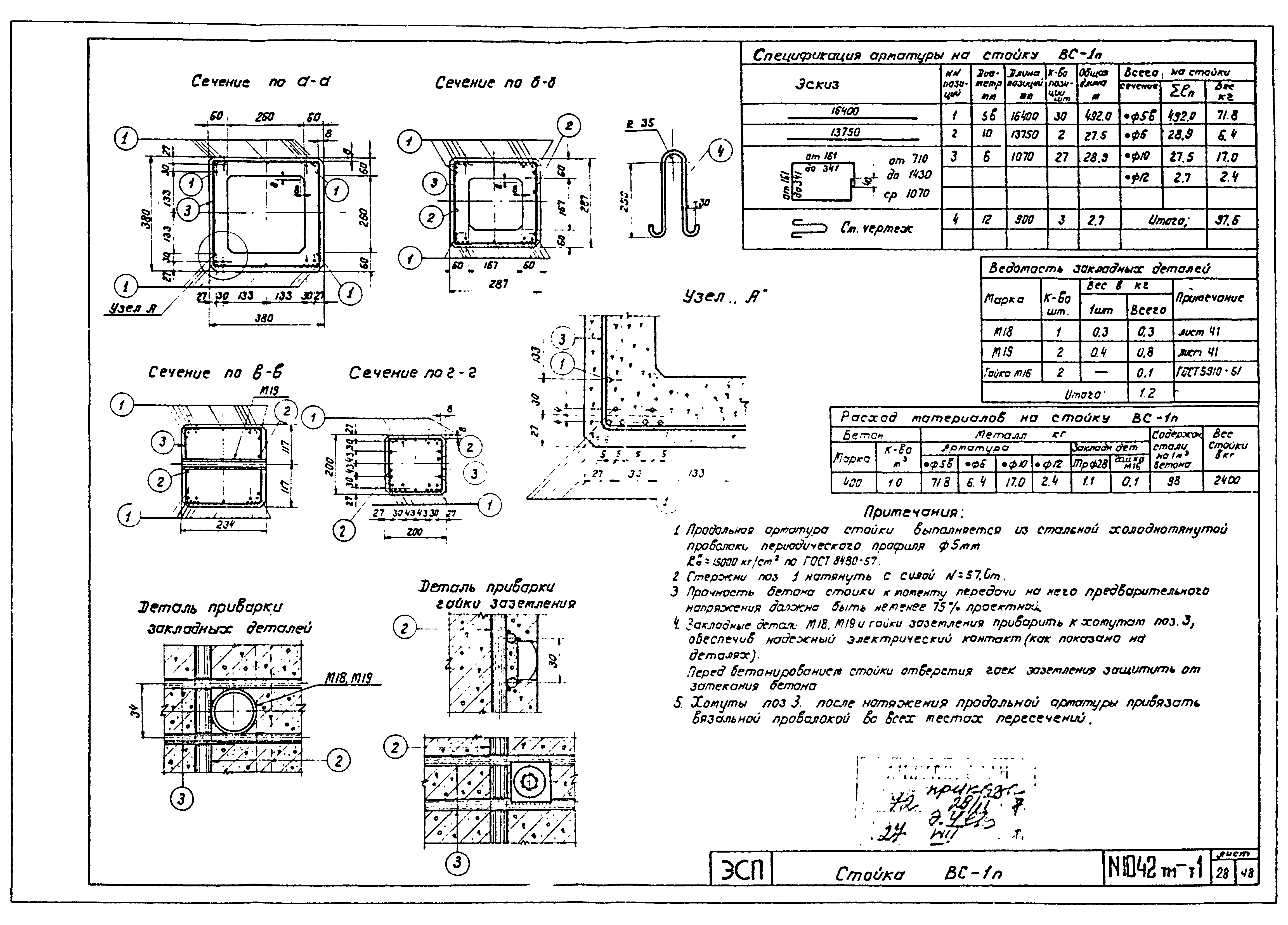
Скачать Типовой проект 1042тм Альбом рабочих чертежей железобетонных вибрированных опор с подвесными изоляторами для ВЛ 35 кВ. Промежуточные опорыДата актуализации: 10.08.2017 Типовой проект 1042тм
Альбом рабочих чертежей железобетонных вибрированных опор с подвесными изоляторами для ВЛ 35 кВ. Промежуточные опорыОбозначение: | Типовой проект 1042тм | Обозначение англ: | 1042тм | Статус: | отменен | Название рус.: | Альбом рабочих чертежей железобетонных вибрированных опор с подвесными изоляторами для ВЛ 35 кВ. Промежуточные опоры | Дата добавления в базу: | 01.02.2017 | Дата актуализации: | 05.05.2017 | Дата введения: | 29.04.1967 | Разработан: | Энергосетьпроект
| Утверждён: | 01.01.1964 Энергосетьпроект (Energosetproject )
| Расположен в: |
|
                                               
|