Информационная система
«Ёшкин Кот»

Скачать базу одним архивом
Скачать обновления
История создания базы
Карта сайта

Скачать Типовой проект 705-1-190.85 Альбом I. Пояснительная записка. Технология производства. Архитектурно-строительные решения. Конструкции металлические. Отопление и вентиляция. Силовое электрооборудование. Связь и сигнализация

Дата актуализации: 10.08.2017

Типовой проект 705-1-190.85

Альбом I. Пояснительная записка. Технология производства. Архитектурно-строительные решения. Конструкции металлические. Отопление и вентиляция. Силовое электрооборудование. Связь и сигнализация

Обозначение: Типовой проект 705-1-190.85
Обозначение англ: 705-1-190.85
Статус:не определен законодательством
Название рус.:Альбом I. Пояснительная записка. Технология производства. Архитектурно-строительные решения. Конструкции металлические. Отопление и вентиляция. Силовое электрооборудование. Связь и сигнализация
Дата добавления в базу:01.02.2017
Дата актуализации:05.05.2017
Дата введения:30.06.2003
Разработан: ЦИТЭПсельстрой
Утверждён:29.05.1985 Минсельхоз СССР (USSR Minselkhoz 33-ЭГ)
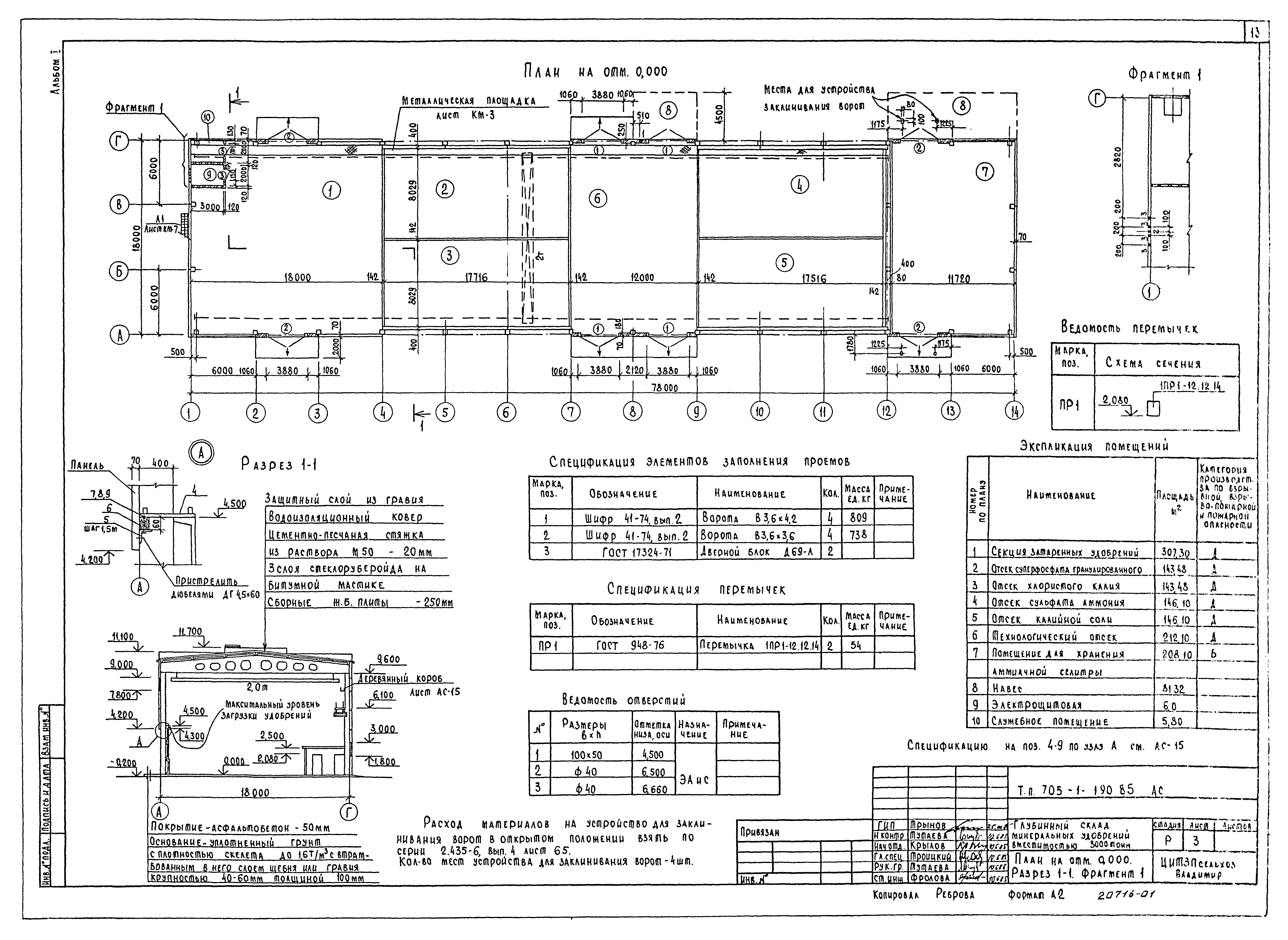
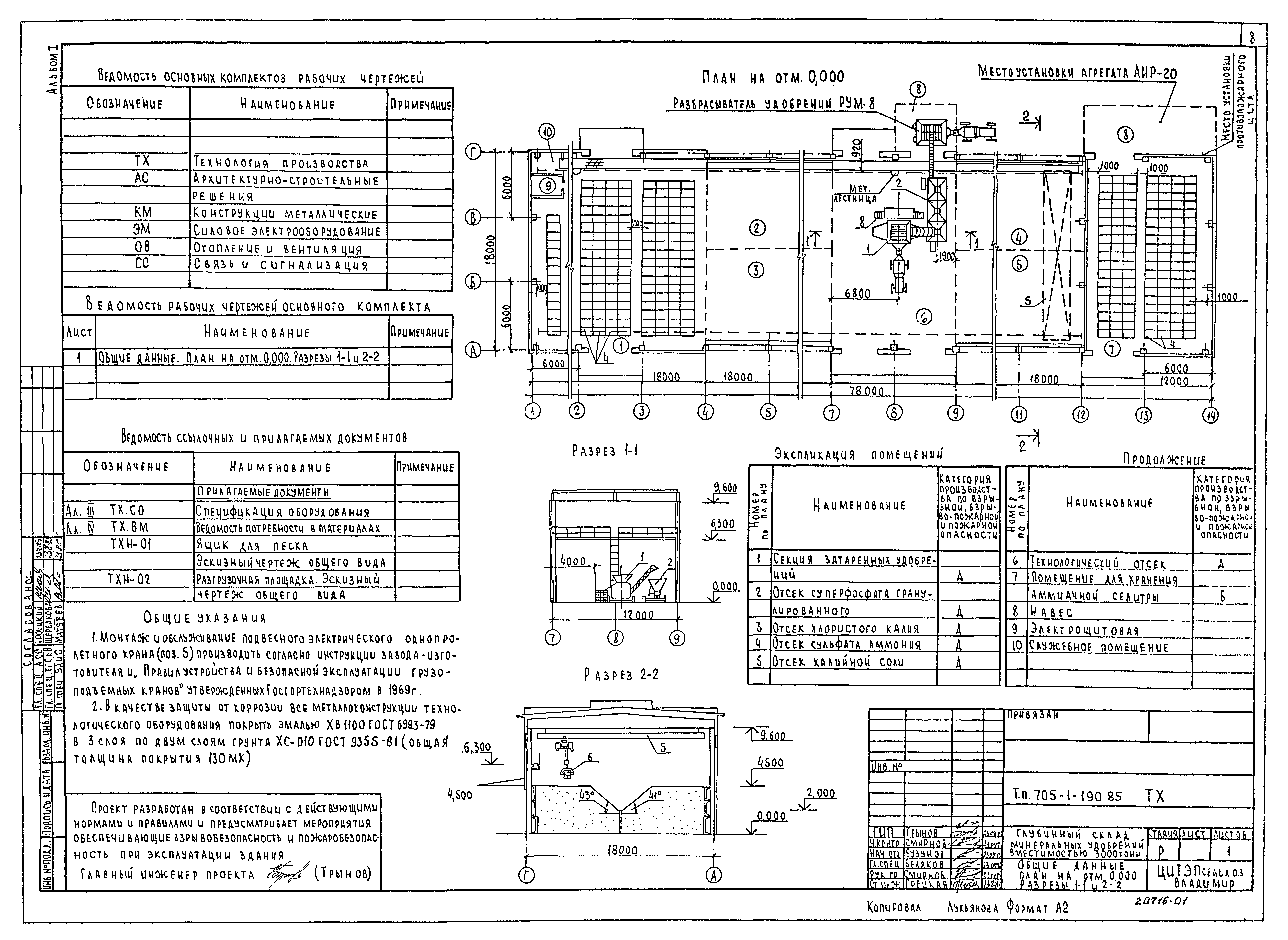
Расположен в:Техническая документация Строительство Справочные документы Типовые строительные конструкции, изделия и узлы Общероссийский строительный каталог Сельскохозяйственные предприятия, здания и сооружения Предприятия, здания и сооружения по ремонту, техническому обслуживанию, хранению и обеспечению горюче-смазочными материалами сельхозтехники Склады сухих пожаровзрывобезопасных удобрений
Типовой проект 705-1-190.85Типовой проект 705-1-190.85Типовой проект 705-1-190.85Типовой проект 705-1-190.85Типовой проект 705-1-190.85Типовой проект 705-1-190.85Типовой проект 705-1-190.85Типовой проект 705-1-190.85Типовой проект 705-1-190.85Типовой проект 705-1-190.85Типовой проект 705-1-190.85Типовой проект 705-1-190.85Типовой проект 705-1-190.85Типовой проект 705-1-190.85Типовой проект 705-1-190.85Типовой проект 705-1-190.85Типовой проект 705-1-190.85Типовой проект 705-1-190.85Типовой проект 705-1-190.85Типовой проект 705-1-190.85Типовой проект 705-1-190.85Типовой проект 705-1-190.85Типовой проект 705-1-190.85Типовой проект 705-1-190.85Типовой проект 705-1-190.85Типовой проект 705-1-190.85Типовой проект 705-1-190.85Типовой проект 705-1-190.85Типовой проект 705-1-190.85Типовой проект 705-1-190.85Типовой проект 705-1-190.85Типовой проект 705-1-190.85Типовой проект 705-1-190.85Типовой проект 705-1-190.85Типовой проект 705-1-190.85Типовой проект 705-1-190.85Типовой проект 705-1-190.85Типовой проект 705-1-190.85Типовой проект 705-1-190.85Типовой проект 705-1-190.85

© 2013 Ёшкин Кот :-) Карта сайта