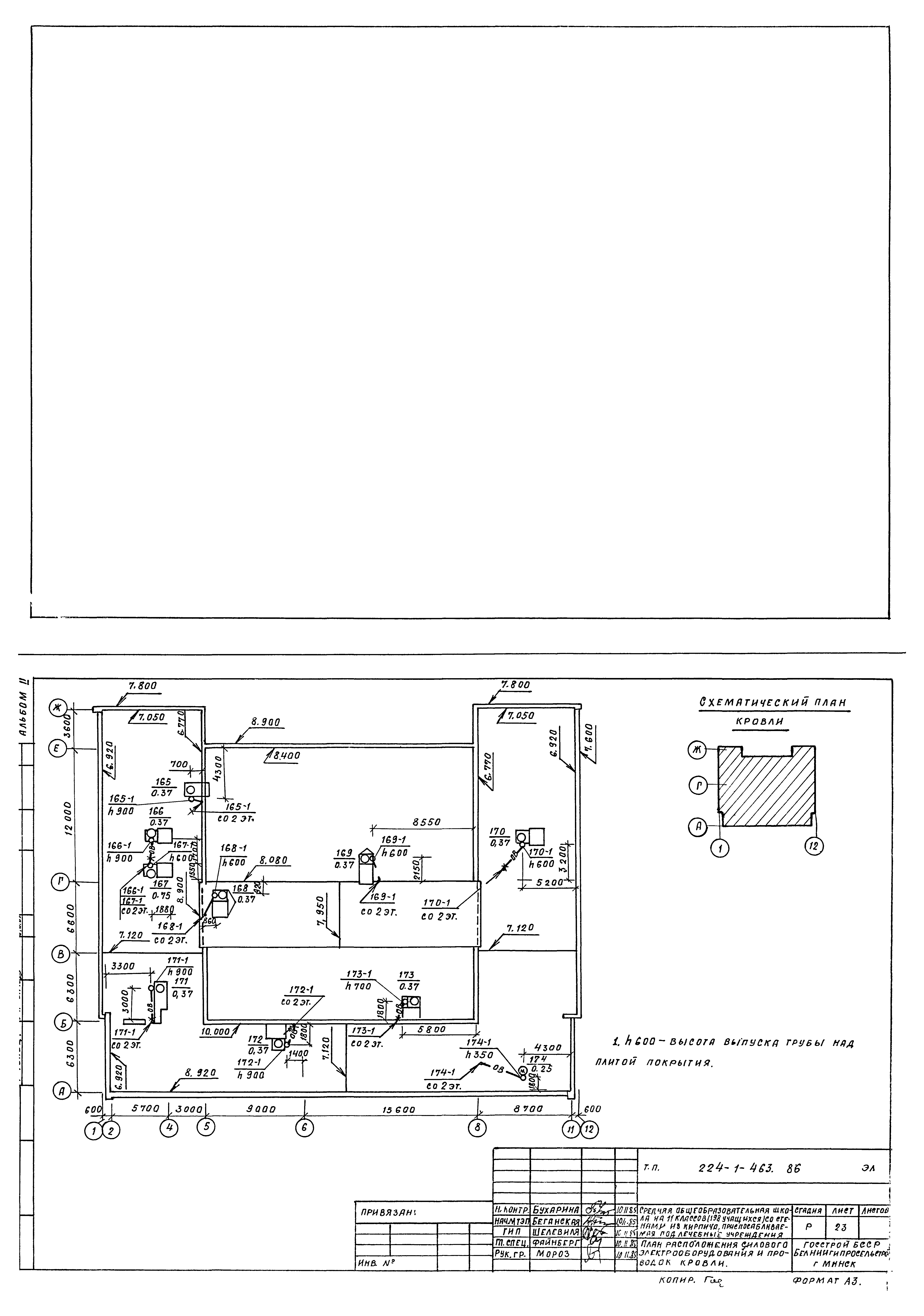
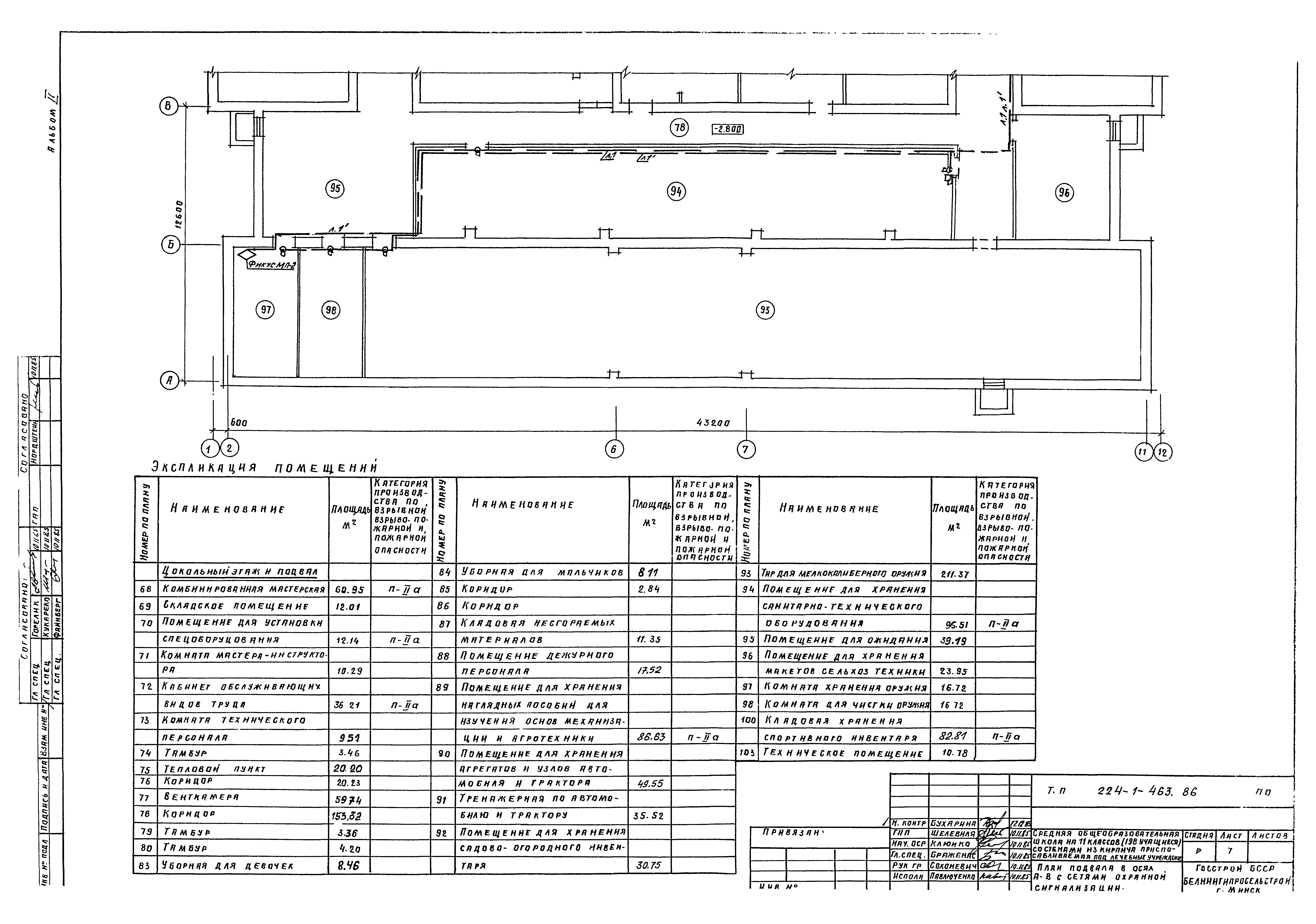
Скачать Типовой проект 224-1-463.86 Альбом II. Отопление и вентиляция, внутренний водопровод и канализация, электротехническая часть, кинотехнология устройства связиДата актуализации: 10.08.2017 Типовой проект 224-1-463.86
Альбом II. Отопление и вентиляция, внутренний водопровод и канализация, электротехническая часть, кинотехнология устройства связиОбозначение: | Типовой проект 224-1-463.86 | Обозначение англ: | 224-1-463.86 | Статус: | действует | Название рус.: | Альбом II. Отопление и вентиляция, внутренний водопровод и канализация, электротехническая часть, кинотехнология устройства связи | Дата добавления в базу: | 01.02.2017 | Дата актуализации: | 05.05.2017 | Разработан: | БелНИИгипросельстрой
| Утверждён: | 29.12.1985 Госстрой БССР (BSSR Gosstroy 225)
| Издан: | ЦИТП Госстроя СССР (CITP, Gosstroy (USSR) 1987 г. )
| Расположен в: |
|
                                                                                                           
|