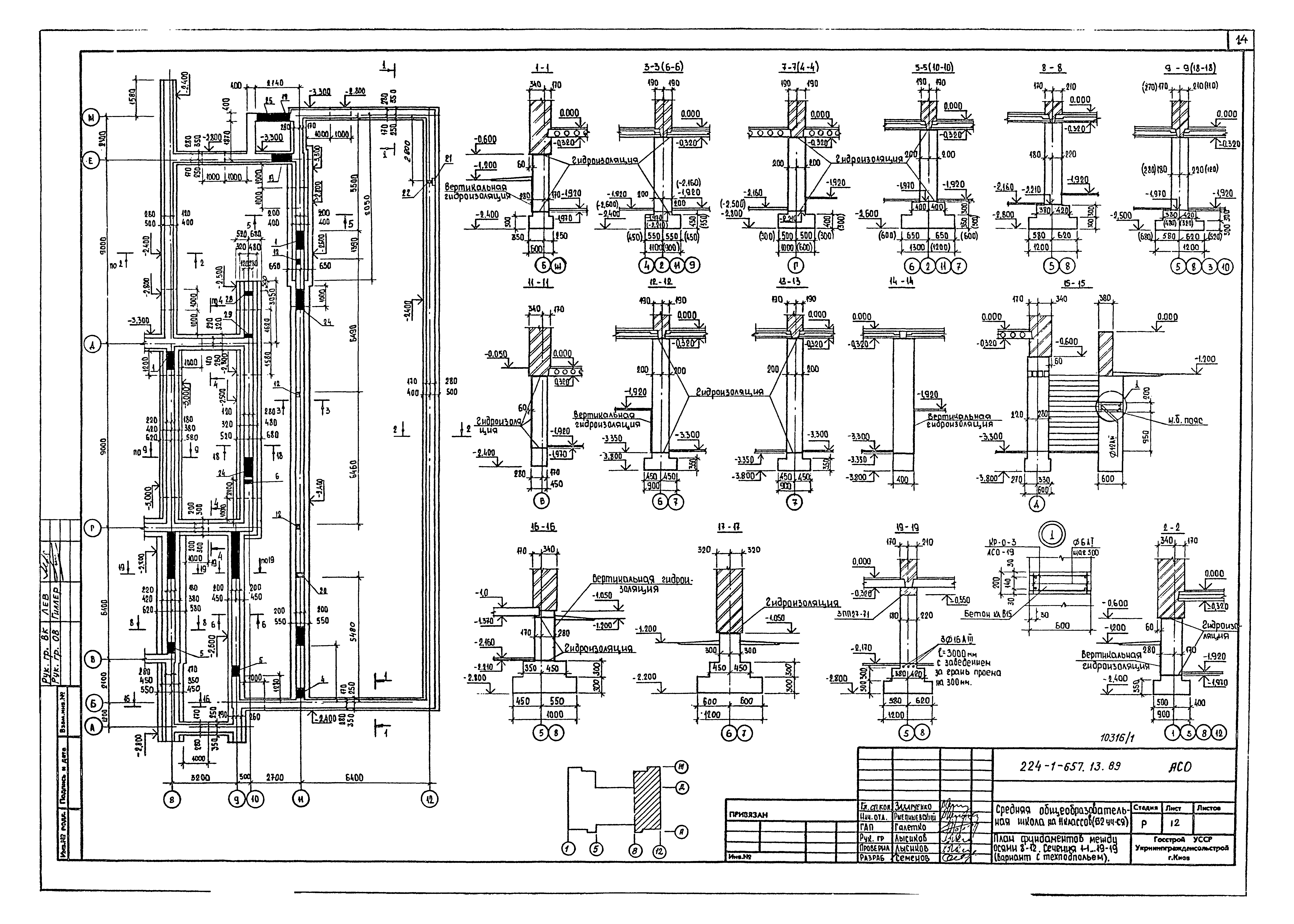
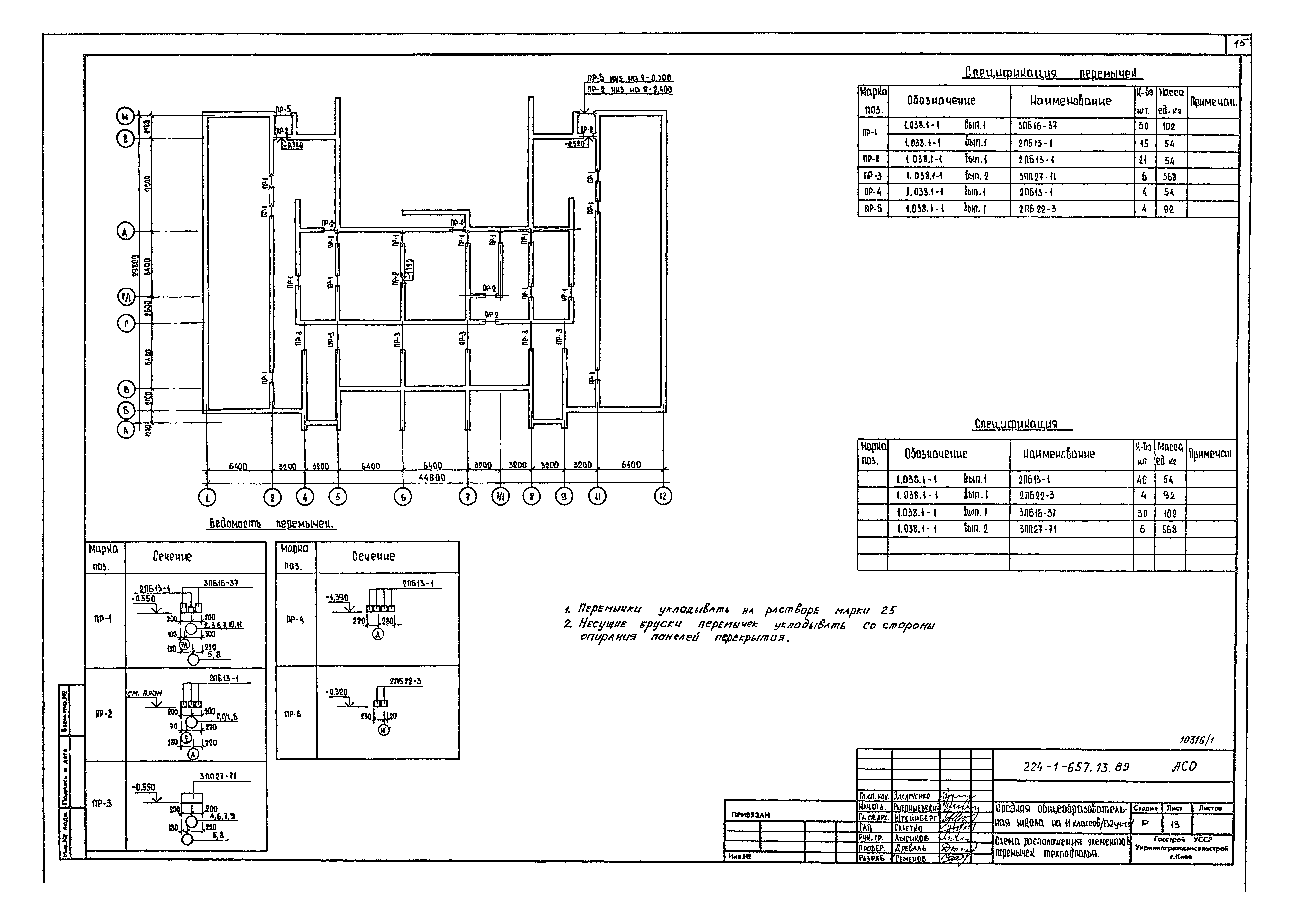
Скачать Типовой проект 224-1-657.13.89 Альбом 0. Архитектурно-строительные чертежи нулевого цикла работДата актуализации: 10.08.2017 Типовой проект 224-1-657.13.89
Альбом 0. Архитектурно-строительные чертежи нулевого цикла работОбозначение: | Типовой проект 224-1-657.13.89 | Обозначение англ: | 224-1-657.13.89 | Статус: | действует | Название рус.: | Альбом 0. Архитектурно-строительные чертежи нулевого цикла работ | Дата добавления в базу: | 01.02.2017 | Дата актуализации: | 05.05.2017 | Разработан: | УкрНИИПграждансельстроя
| Утверждён: | 29.12.1987 Госстрой УССР (UkrSSR Gosstroy 151)
| Издан: | ЦИТП Госстроя СССР (CITP, Gosstroy (USSR) 1990 г. )
| Расположен в: |
|
                     
|