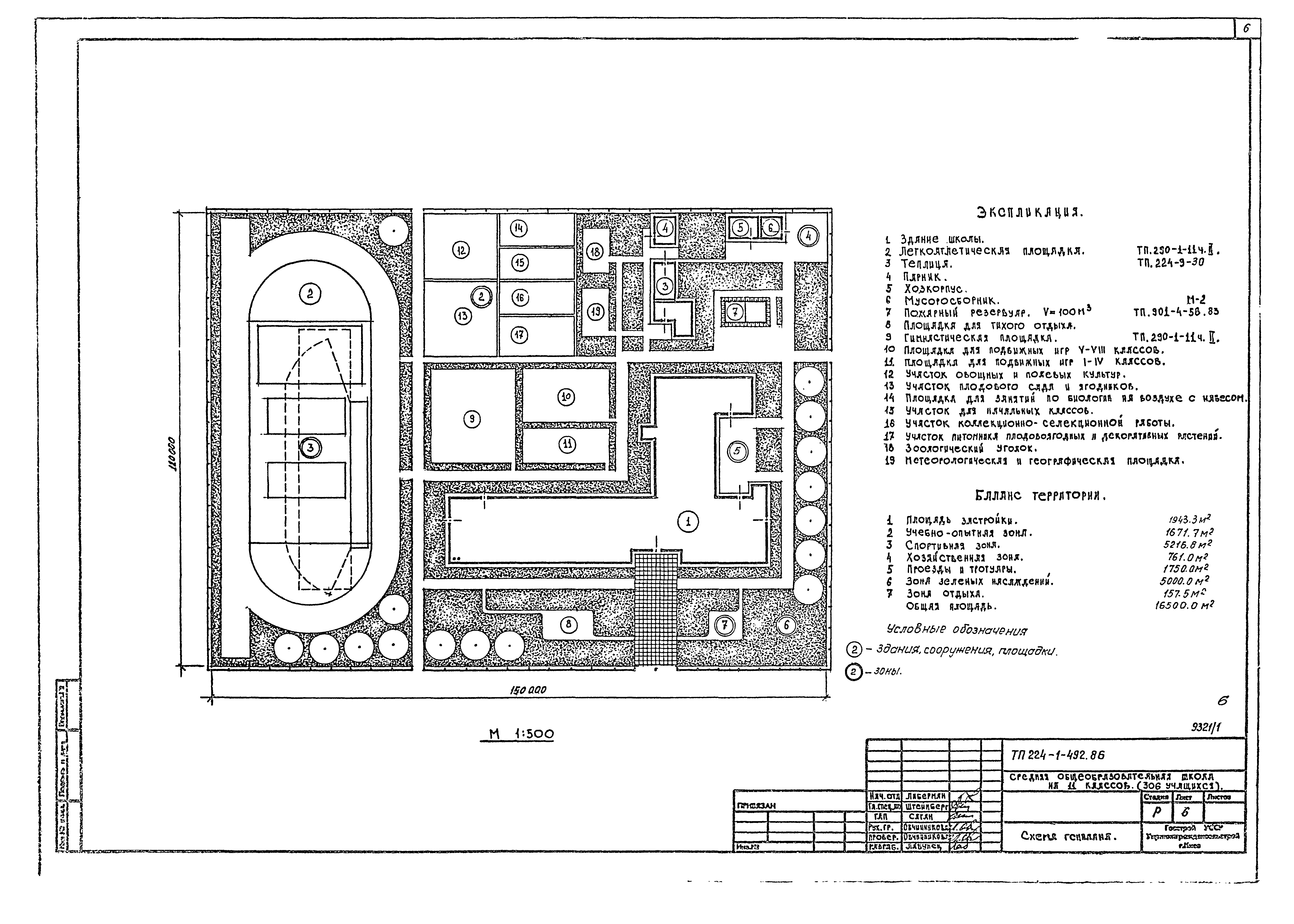
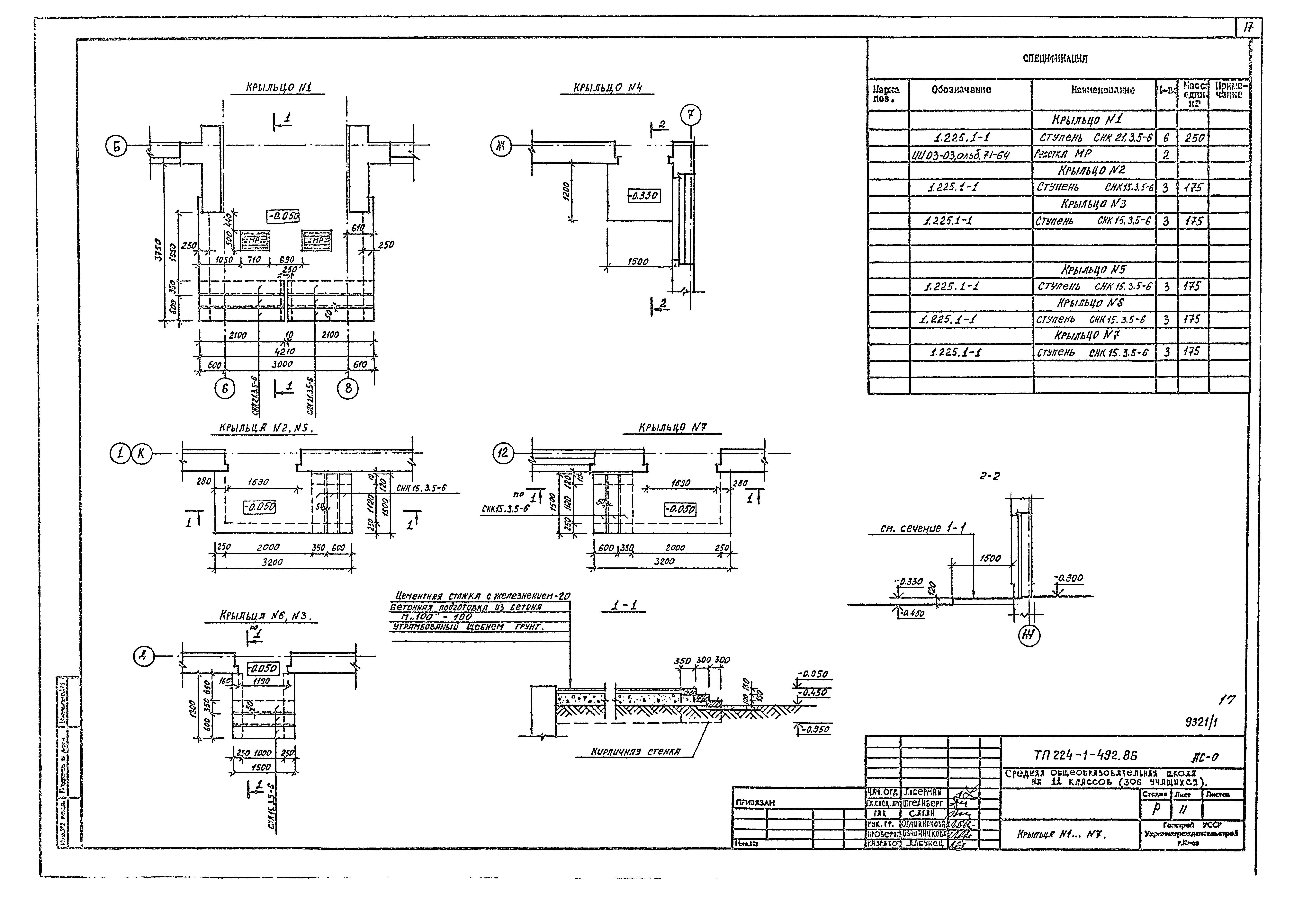
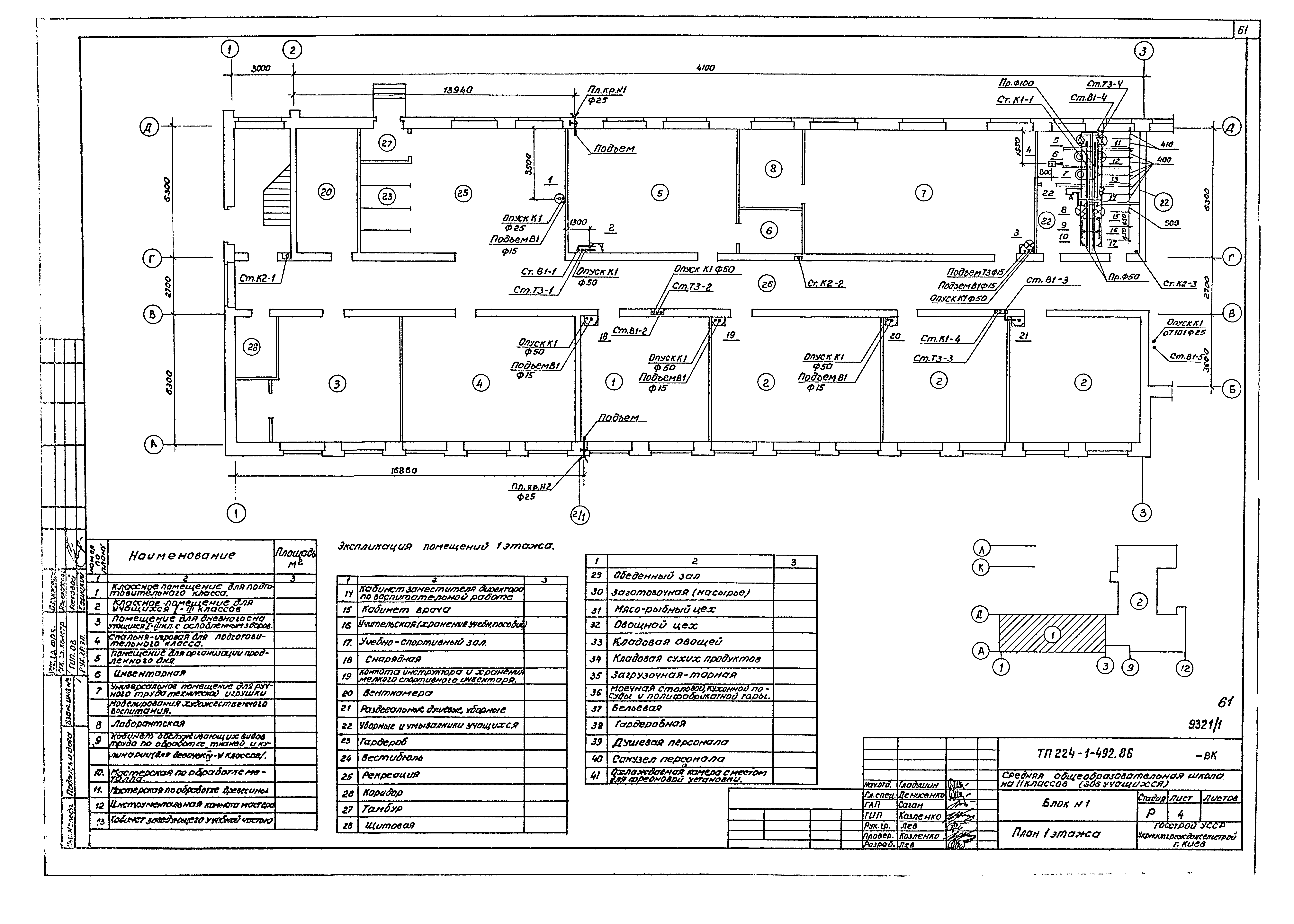
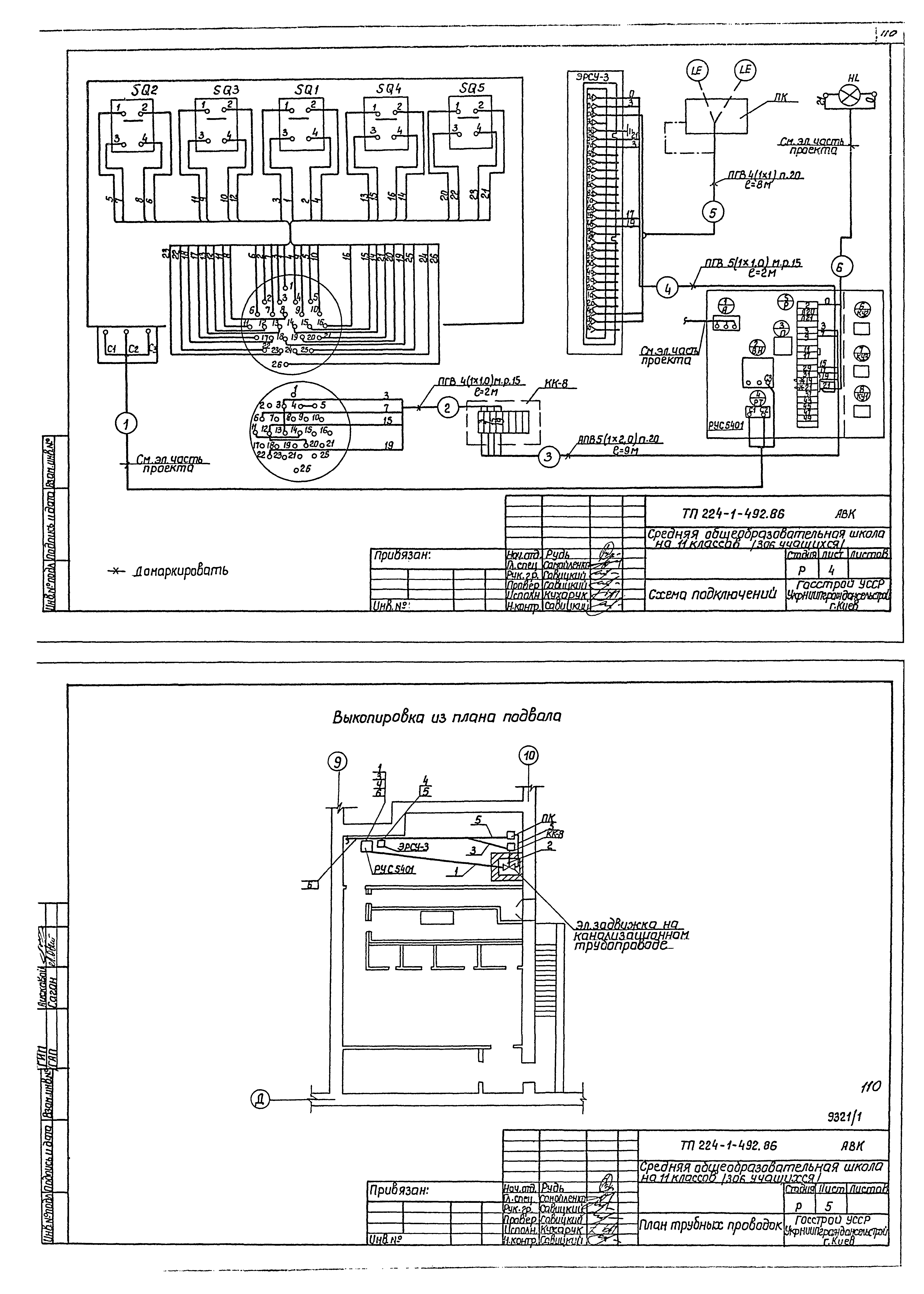
Скачать Типовой проект 224-1-492.86 Альбом I. Архитектурно-строительные, санитарно-технические и электротехнические чертежиДата актуализации: 10.08.2017 Типовой проект 224-1-492.86
Альбом I. Архитектурно-строительные, санитарно-технические и электротехнические чертежиОбозначение: | Типовой проект 224-1-492.86 | Обозначение англ: | 224-1-492.86 | Статус: | действует | Название рус.: | Альбом I. Архитектурно-строительные, санитарно-технические и электротехнические чертежи | Дата добавления в базу: | 01.02.2017 | Дата актуализации: | 05.05.2017 | Разработан: | УкрНИИграждансельстрой
| Утверждён: | 10.11.1984 Госстрой УССР (UkrSSR Gosstroy 101)
| Издан: | ЦИТП Госстроя СССР (CITP, Gosstroy (USSR) 1990 г. )
| Расположен в: |
|
                                                                                                                      
|