Информационная система
«Ёшкин Кот»

Скачать базу одним архивом
Скачать обновления
История создания базы
Карта сайта

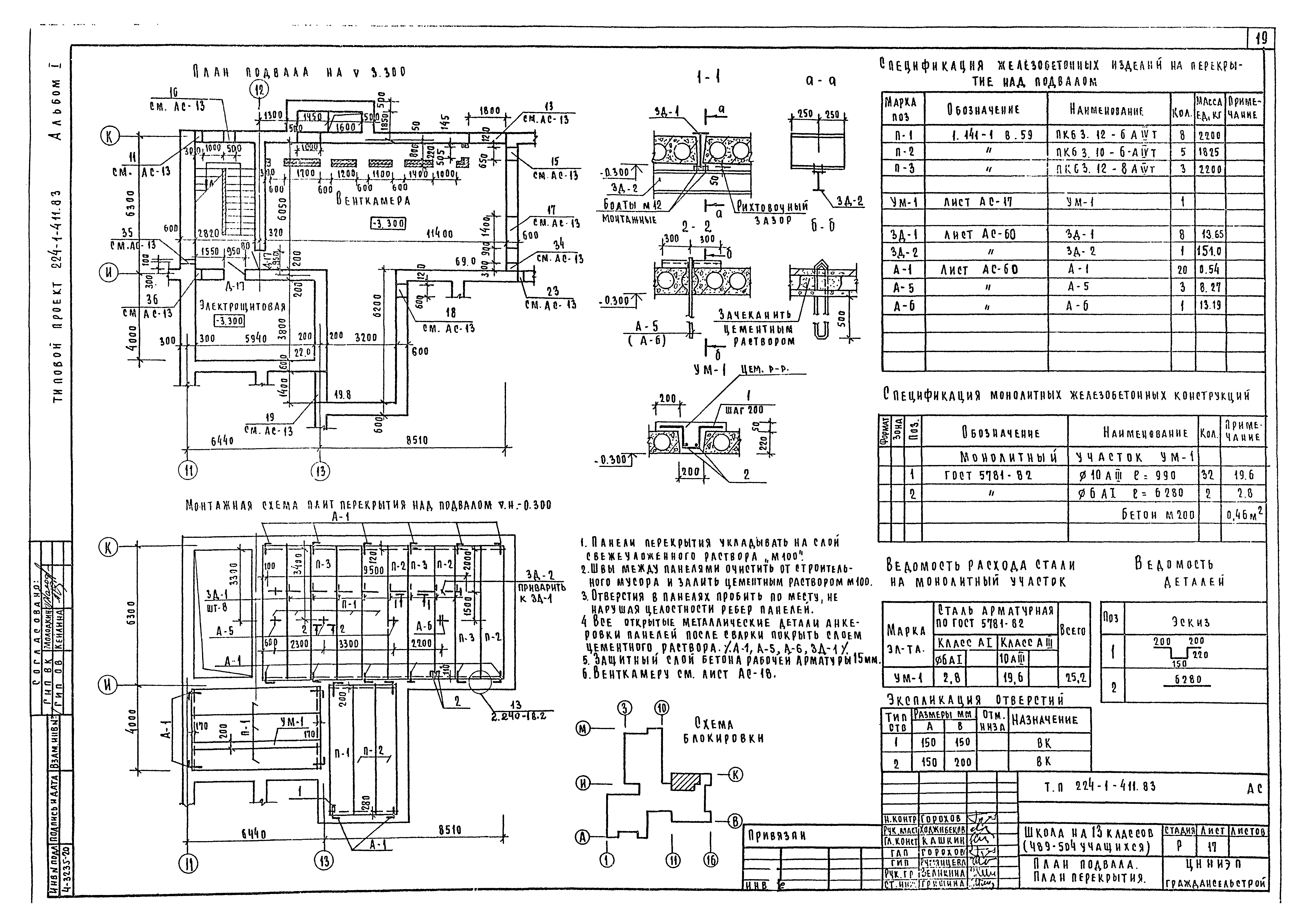
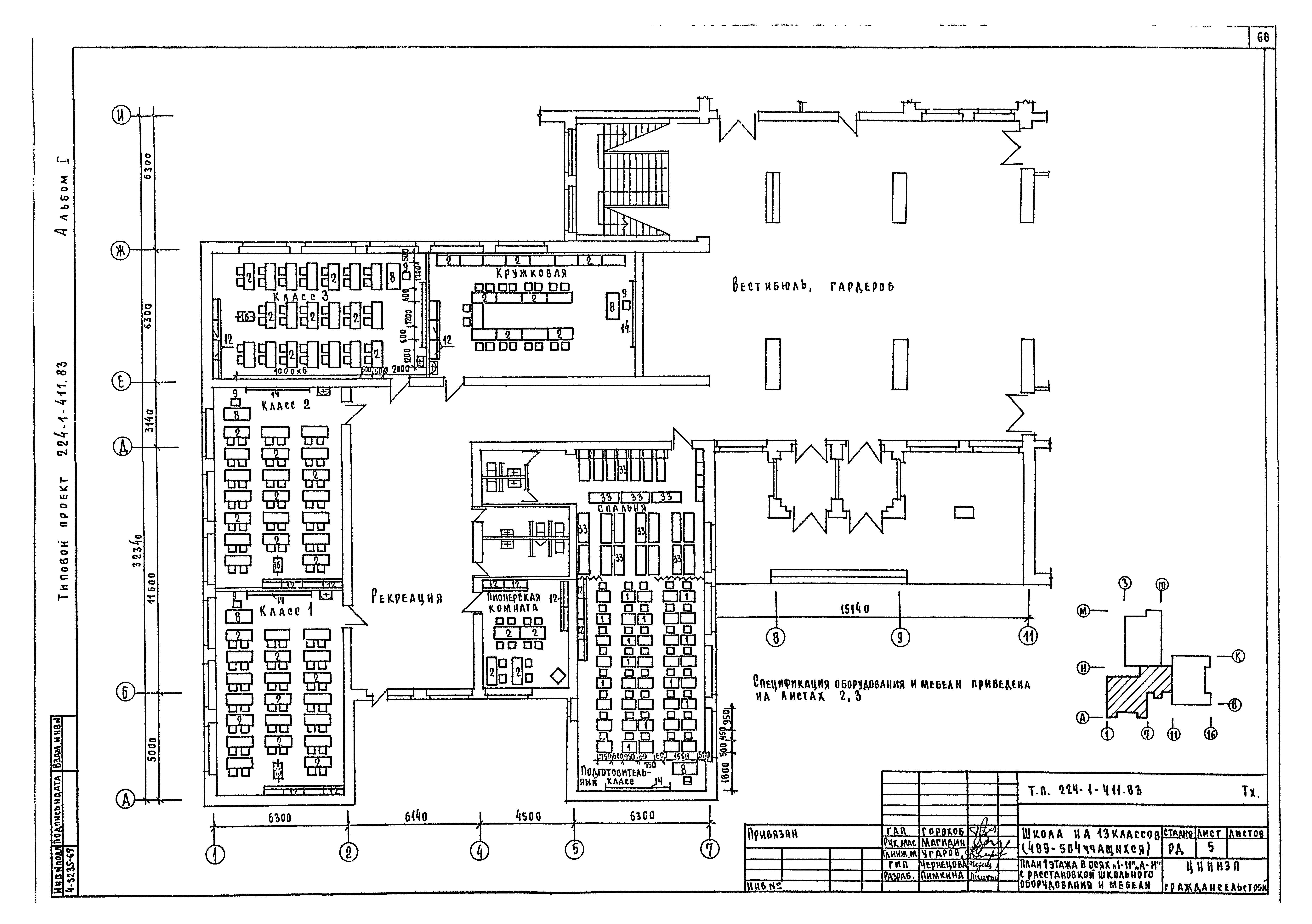
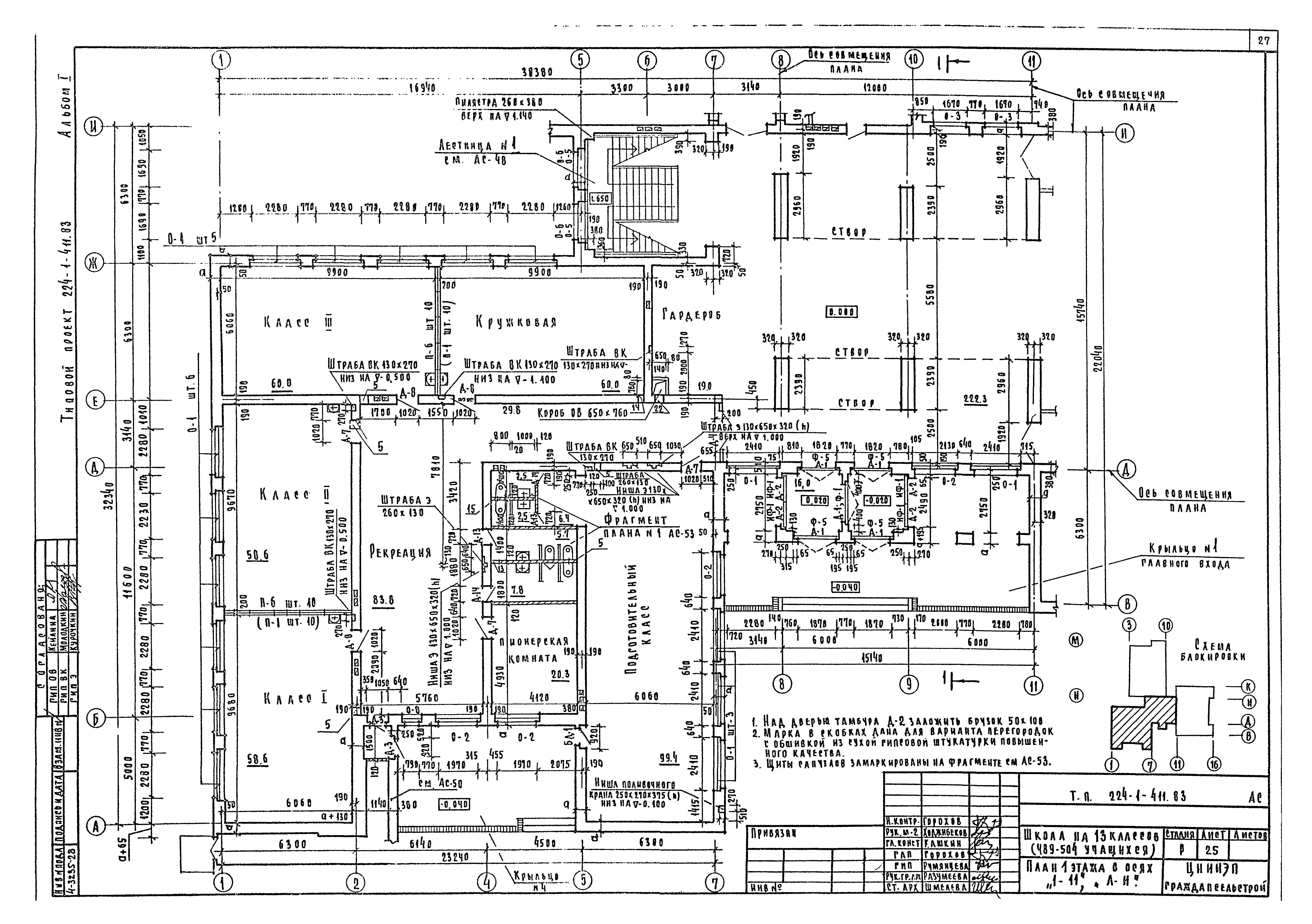
Скачать Типовой проект 224-1-411.83 Альбом I. Архитектурно-строительные решения. Технологические решения

Дата актуализации: 10.08.2017

Типовой проект 224-1-411.83

Альбом I. Архитектурно-строительные решения. Технологические решения

Обозначение: Типовой проект 224-1-411.83
Обозначение англ: 224-1-411.83
Статус:не определен законодательством
Название рус.:Альбом I. Архитектурно-строительные решения. Технологические решения
Дата добавления в базу:01.02.2017
Дата актуализации:05.05.2017
Дата введения:18.02.1985
Разработан: ЦНИИЭП граждансельстрой
Утверждён:27.05.1983 Госгражданстрой (Gosgrazhdanstroy 164)
Издан: ЦИТП Госстроя СССР (CITP, Gosstroy (USSR) 1987 г. )
Расположен в:Техническая документация Строительство Справочные документы Типовые строительные конструкции, изделия и узлы Общероссийский строительный каталог Защитные сооружения гражданской обороны Типовые проекты защитных сооружений гражданской обороны для жилищно-гражданского строительства Для строительства в сельской местности Встроенные помещения, приспосабливаемые под противорадиационные укрытия в общественных зданиях Противорадиационные укрытия в школах и внешкольных учреждениях Общественные здания для строительства в сельской местности Школы и внешкольные учреждения Общеобразовательные школы
Типовой проект 224-1-411.83Типовой проект 224-1-411.83Типовой проект 224-1-411.83Типовой проект 224-1-411.83Типовой проект 224-1-411.83Типовой проект 224-1-411.83Типовой проект 224-1-411.83Типовой проект 224-1-411.83Типовой проект 224-1-411.83Типовой проект 224-1-411.83Типовой проект 224-1-411.83Типовой проект 224-1-411.83Типовой проект 224-1-411.83Типовой проект 224-1-411.83Типовой проект 224-1-411.83Типовой проект 224-1-411.83Типовой проект 224-1-411.83Типовой проект 224-1-411.83Типовой проект 224-1-411.83Типовой проект 224-1-411.83Типовой проект 224-1-411.83Типовой проект 224-1-411.83Типовой проект 224-1-411.83Типовой проект 224-1-411.83Типовой проект 224-1-411.83Типовой проект 224-1-411.83Типовой проект 224-1-411.83Типовой проект 224-1-411.83Типовой проект 224-1-411.83Типовой проект 224-1-411.83Типовой проект 224-1-411.83Типовой проект 224-1-411.83Типовой проект 224-1-411.83Типовой проект 224-1-411.83Типовой проект 224-1-411.83Типовой проект 224-1-411.83Типовой проект 224-1-411.83Типовой проект 224-1-411.83Типовой проект 224-1-411.83Типовой проект 224-1-411.83Типовой проект 224-1-411.83Типовой проект 224-1-411.83Типовой проект 224-1-411.83Типовой проект 224-1-411.83Типовой проект 224-1-411.83Типовой проект 224-1-411.83Типовой проект 224-1-411.83Типовой проект 224-1-411.83Типовой проект 224-1-411.83Типовой проект 224-1-411.83Типовой проект 224-1-411.83Типовой проект 224-1-411.83Типовой проект 224-1-411.83Типовой проект 224-1-411.83Типовой проект 224-1-411.83Типовой проект 224-1-411.83Типовой проект 224-1-411.83Типовой проект 224-1-411.83Типовой проект 224-1-411.83Типовой проект 224-1-411.83Типовой проект 224-1-411.83Типовой проект 224-1-411.83Типовой проект 224-1-411.83Типовой проект 224-1-411.83Типовой проект 224-1-411.83Типовой проект 224-1-411.83Типовой проект 224-1-411.83Типовой проект 224-1-411.83Типовой проект 224-1-411.83Типовой проект 224-1-411.83Типовой проект 224-1-411.83Типовой проект 224-1-411.83Типовой проект 224-1-411.83Типовой проект 224-1-411.83Типовой проект 224-1-411.83

© 2013 Ёшкин Кот :-) Карта сайта