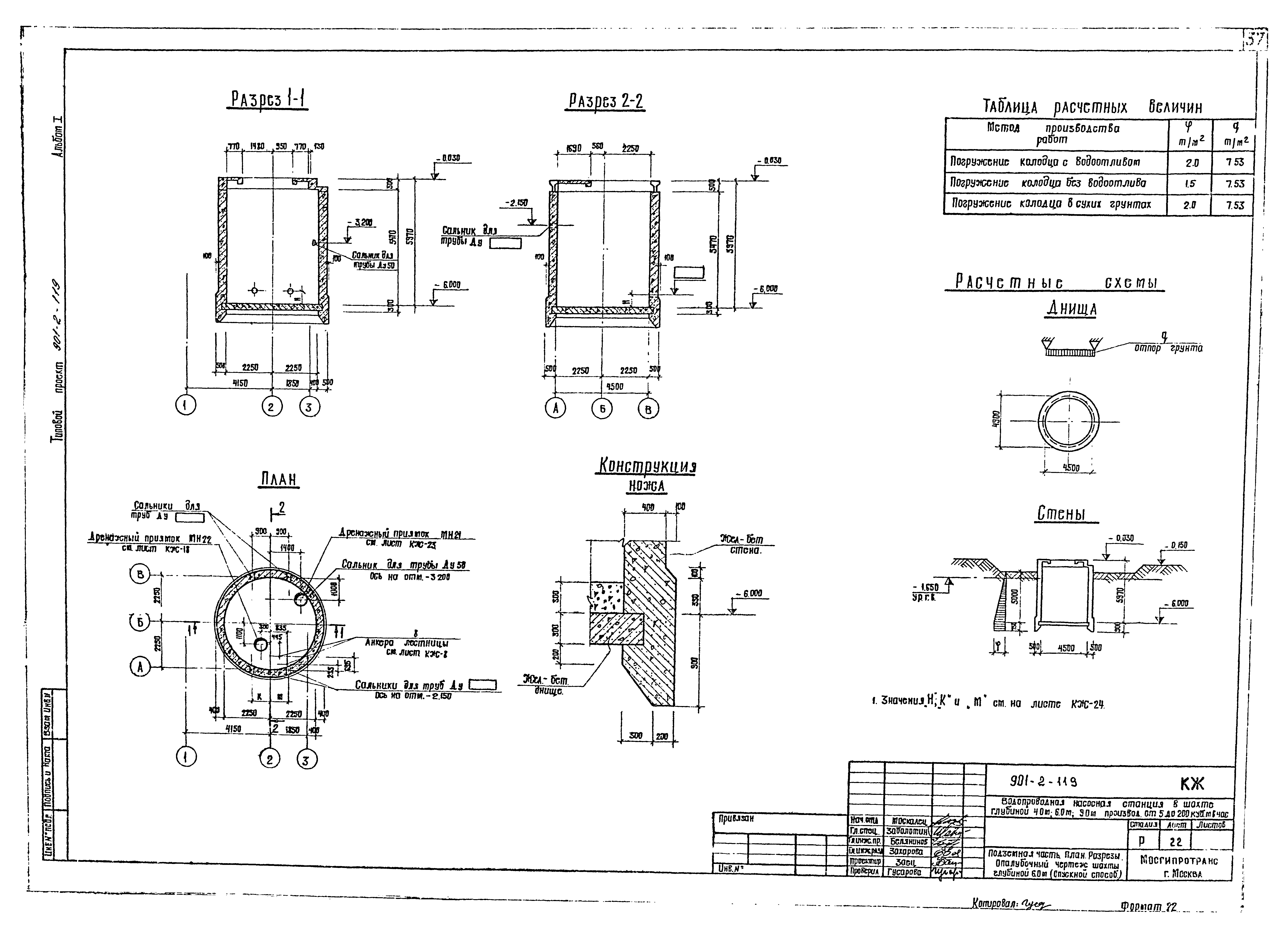
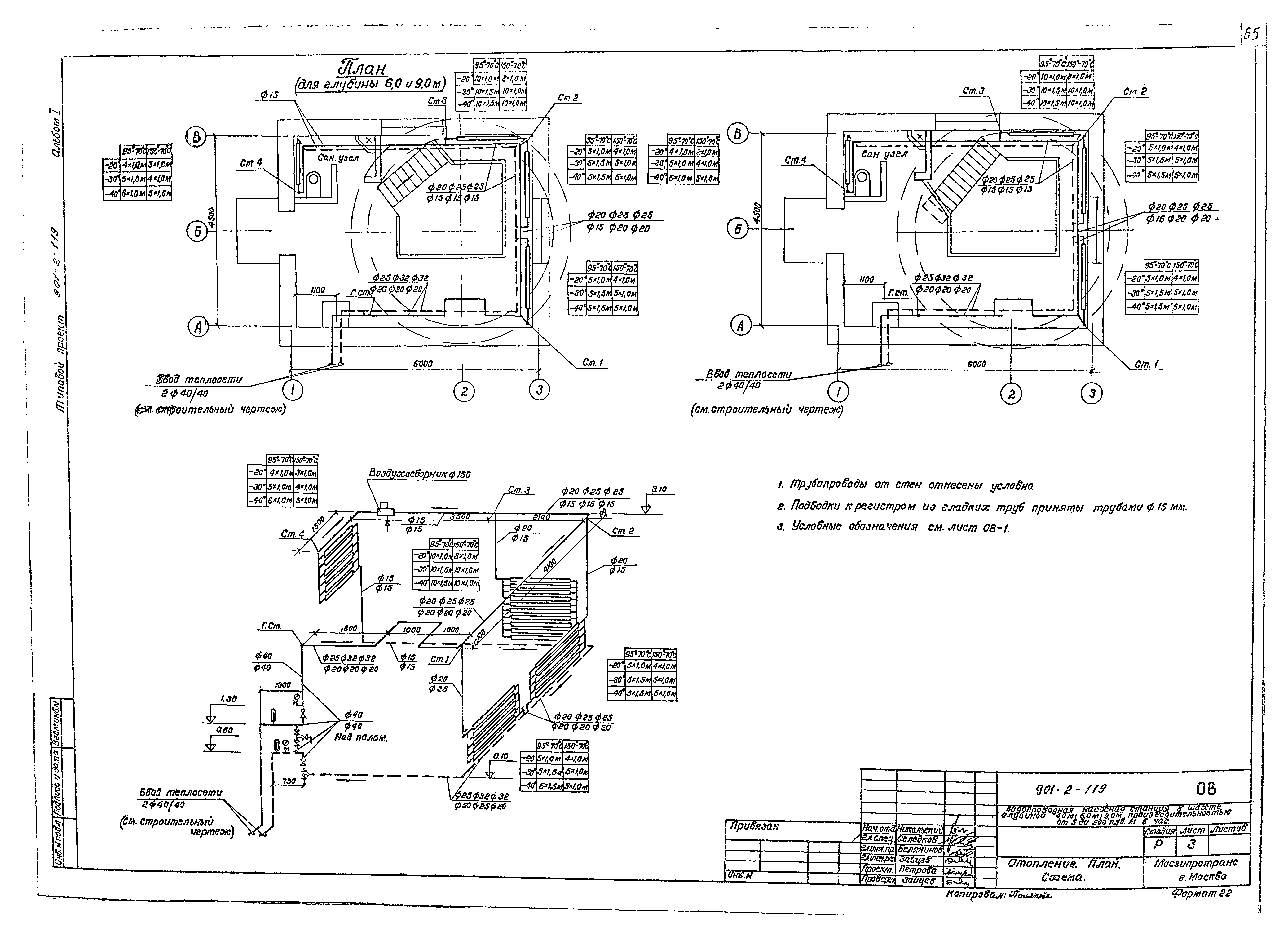
Скачать Типовой проект 901-2-119 Альбом I. Архитектурно-строительная, технологическая, санитарно-техническая и электротехническая частиДата актуализации: 10.08.2017 Типовой проект 901-2-119
Альбом I. Архитектурно-строительная, технологическая, санитарно-техническая и электротехническая частиОбозначение: | Типовой проект 901-2-119 | Обозначение англ: | 901-2-119 | Статус: | заменен | Название рус.: | Альбом I. Архитектурно-строительная, технологическая, санитарно-техническая и электротехническая части | Дата добавления в базу: | 01.02.2017 | Дата актуализации: | 05.05.2017 | Дата введения: | 01.06.1989 | Разработан: | Мосгипротранс
| Утверждён: | 08.09.1980 Министерство транспортного строительства СССР (USSR Ministry of Transport Construction Л-1204)
| Издан: | ЦИТП Госстроя СССР (CITP, Gosstroy (USSR) 1981 г. )
| Расположен в: |
| Заменяет собой: | | Чем заменён: | |
                                                                                                 
|