| ||||||||||||||||||||||||
Скачать Временное руководство и типовые схемы извлечения металлической крепи из погашенных выработокДата актуализации: 10.08.2017 |
| Статус: | cправочные материалы, мп, тпр |
| Название рус.: | Временное руководство и типовые схемы извлечения металлической крепи из погашенных выработок |
| Дата добавления в базу: | 01.02.2017 |
| Дата актуализации: | 05.05.2017 |
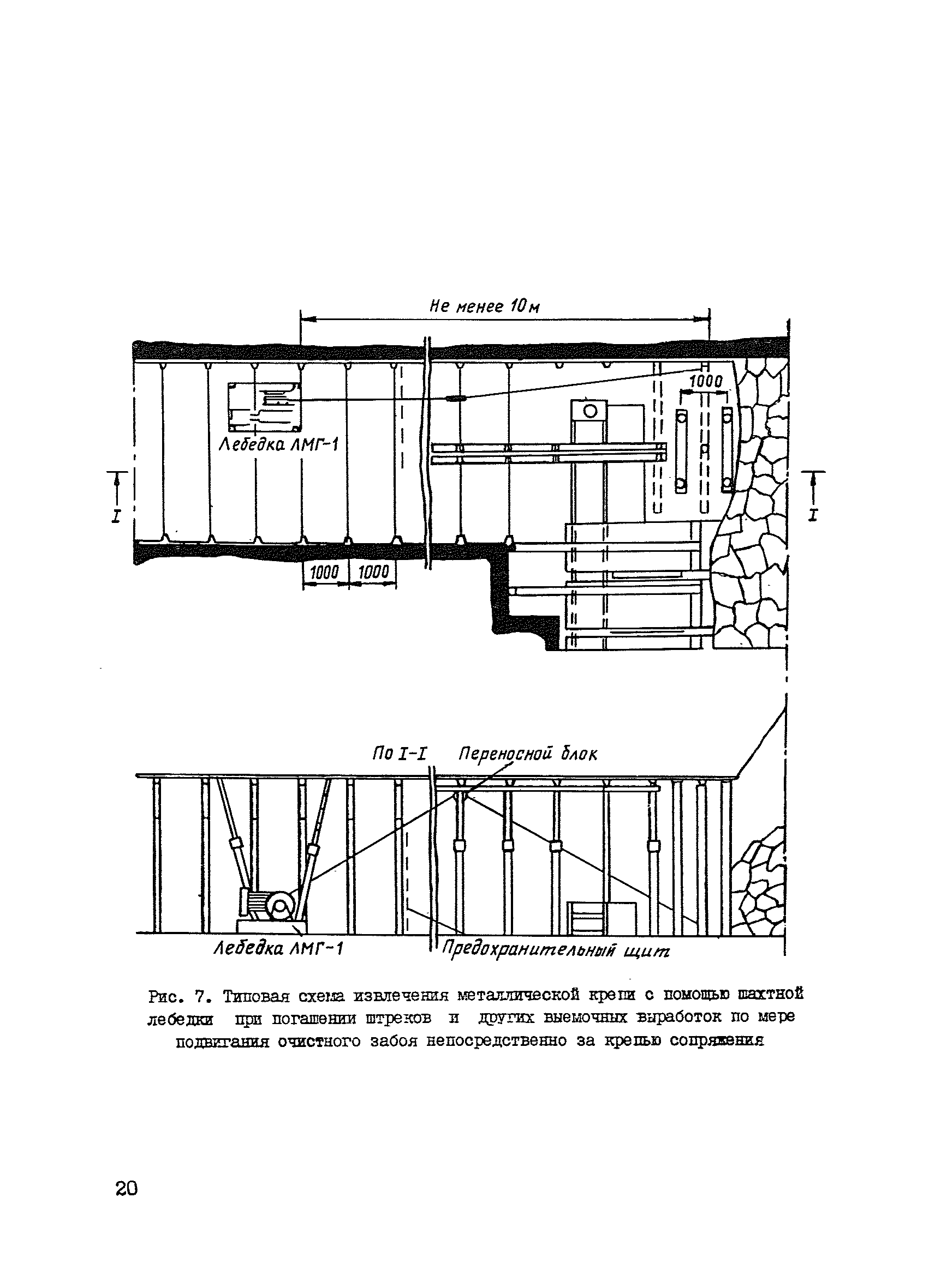
| Область применения: | В руководстве приведены типовые схемы извлечения металлической крепи из погашаемых выработок, описан порядок восстановления и учета крепи, а также техника безопасности при производстве этих работ. Временное руководство предназначено для работников шахт, производственных объединений и организаций Минуглепрома СССР, а также для научно-исследовательских и проектных организаций. |
| Оглавление: | Введение 1. Общие положения 2. Извлечение металлической крепи из погашаемых выработок 2.1. Типовые схемы извлечения металлической крепи из выработок погашаемых после отработки выемочного участка 2.2. Типовые схемы извлечения металлической крепи из выемочных выработок, погашаемых по мере продвигания очистного забоя 3. Восстановление деформированной металлической крепи 4. Учет извлеченной и восстановленной металлической крепи 5. Техника безопасности Приложение 1. Акт инвентаризации металлической крепи и других материалов, находящихся в выработке, подлежащей погашению Приложение 2. Техническая характеристика машины МИК-3, предназначенной для извлечения металлической крепи Приложение 3. Лебедки шахтные, применяемые для извлечения металлической крепи из погашаемых выработок Приложение 4. Крепь сопряжений Т6К Приложение 5. Суточный рапорт на извлечение металлической крепи и метизов Приложение 6. Техническая характеристика правильно-гибочной машины МПГ Приложение 7. Техническая характеристика гидравлического пресса ПАК-150 Приложение 8. Техническая характеристика гидравлического пресса ПАК-250 Приложение 9. Виды наиболее часто встречающихся дефектов металлической арочной крепи из спецпрофиля, способы их устранения и условия выбраковки Приложение 10. Акт выбраковки деформированной крепи и метизов, не поддающихся восстановлению Приложение 11. Суточный рапорт на восстановление металлической крепи и метизов Приложение 12. Ведомость (книга) учета извлеченной и повторно используемой металлической крепи и других материалов из погашаемых выработок Литература |
| Разработан: | Министерство угольной промышленности СССР ИГД им. А.А. Скочинского |
| Утверждён: | 27.12.1982 Заместитель начальника Технического управления Минуглепрома СССР |
| Издан: | ИГД им. А.А. Скочинского (1983 г. ) |
| Расположен в: |





















































