Информационная система
«Ёшкин Кот»

Скачать базу одним архивом
Скачать обновления
История создания базы
Карта сайта

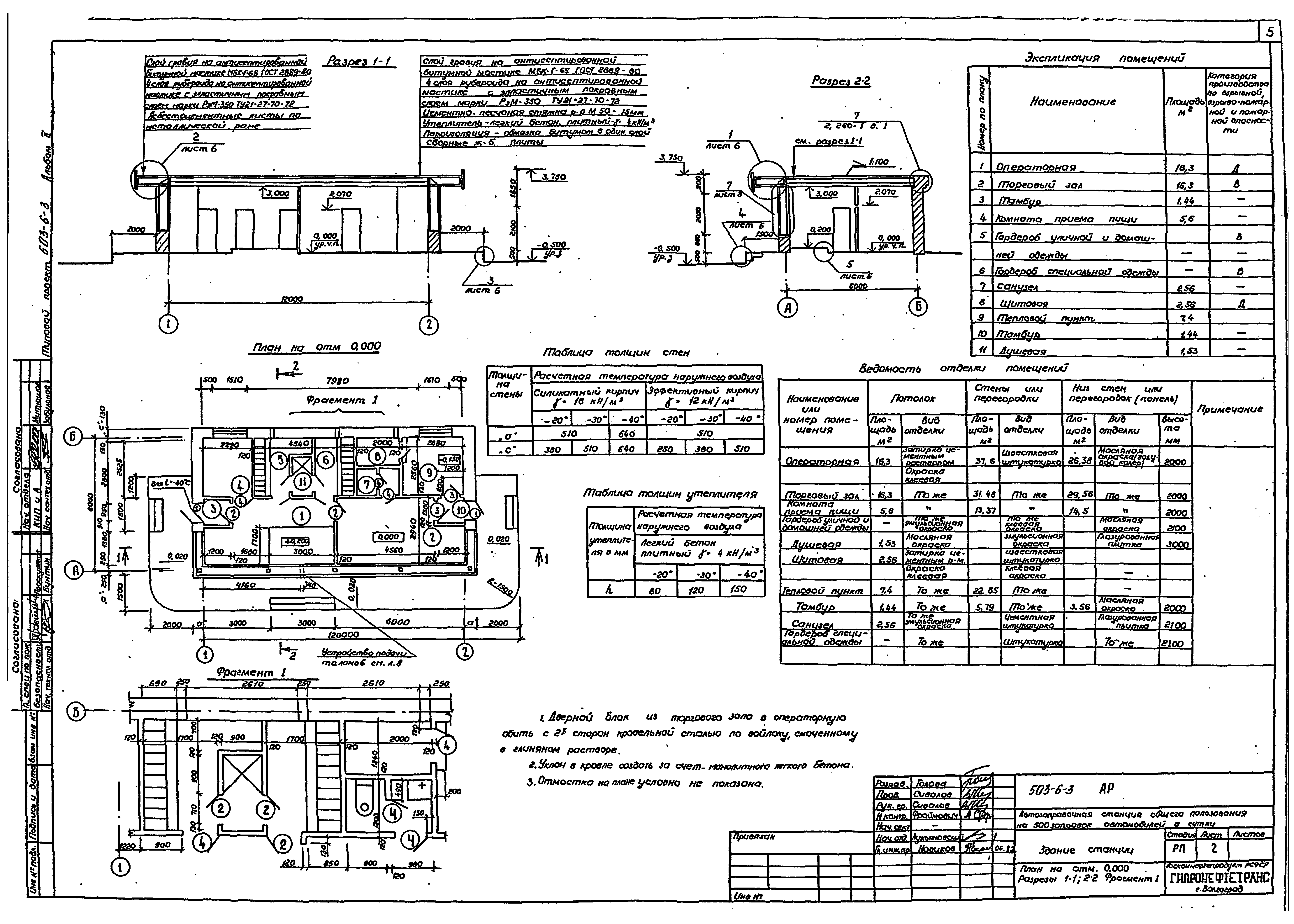
Скачать Типовой проект 503-6-5 Альбом V. Нестандартизированное оборудование. Вертикальный резервуар емкостью 25 куб. м. Стальные конструкции. Оборудование резервуара (из ТП 503-6-3)

Дата актуализации: 10.08.2017

Типовой проект 503-6-5

Альбом V. Нестандартизированное оборудование. Вертикальный резервуар емкостью 25 куб. м. Стальные конструкции. Оборудование резервуара (из ТП 503-6-3)

Обозначение: Типовой проект 503-6-5
Обозначение англ: 503-6-5
Статус:не определен законодательством
Название рус.:Альбом V. Нестандартизированное оборудование. Вертикальный резервуар емкостью 25 куб. м. Стальные конструкции. Оборудование резервуара (из ТП 503-6-3)
Дата добавления в базу:01.02.2017
Дата актуализации:05.05.2017
Дата введения:18.03.1981
Разработан: Гипронефтетранс
Утверждён:26.02.1981 Госкомнефтепродукт РСФСР (Russian Federation Goskomnefteprodukt 63)
Издан: ЦИТП Госстроя СССР (CITP, Gosstroy (USSR) 1983 г. )
Расположен в:Техническая документация Строительство Справочные документы Типовые строительные конструкции, изделия и узлы Общероссийский строительный каталог Промышленные предприятия, здания и сооружения Предприятия, здания и сооружения транспорта Транспорт автомобильный Станции и пункты автозаправочные
Типовой проект 503-6-5Типовой проект 503-6-5Типовой проект 503-6-5Типовой проект 503-6-5Типовой проект 503-6-5Типовой проект 503-6-5Типовой проект 503-6-5Типовой проект 503-6-5Типовой проект 503-6-5Типовой проект 503-6-5Типовой проект 503-6-5Типовой проект 503-6-5Типовой проект 503-6-5Типовой проект 503-6-5Типовой проект 503-6-5Типовой проект 503-6-5Типовой проект 503-6-5Типовой проект 503-6-5Типовой проект 503-6-5Типовой проект 503-6-5Типовой проект 503-6-5Типовой проект 503-6-5Типовой проект 503-6-5Типовой проект 503-6-5Типовой проект 503-6-5Типовой проект 503-6-5Типовой проект 503-6-5Типовой проект 503-6-5Типовой проект 503-6-5Типовой проект 503-6-5Типовой проект 503-6-5Типовой проект 503-6-5Типовой проект 503-6-5Типовой проект 503-6-5Типовой проект 503-6-5Типовой проект 503-6-5Типовой проект 503-6-5Типовой проект 503-6-5Типовой проект 503-6-5Типовой проект 503-6-5Типовой проект 503-6-5Типовой проект 503-6-5Типовой проект 503-6-5Типовой проект 503-6-5Типовой проект 503-6-5Типовой проект 503-6-5Типовой проект 503-6-5Типовой проект 503-6-5Типовой проект 503-6-5

© 2013 Ёшкин Кот :-) Карта сайта