| ||||||||||||||||||||||||||||||||||
Скачать ГОСТ 24940-2016 Здания и сооружения. Методы измерения освещенностиДата актуализации: 10.08.2017
|
| Обозначение: | ГОСТ 24940-2016 |
| Обозначение англ: | GOST 24940-2016 |
| Статус: | введен впервые |
| Название рус.: | Здания и сооружения. Методы измерения освещенности |
| Название англ.: | Buildings and structures. Methods for measuring the illuminance |
| Дата добавления в базу: | 01.02.2017 |
| Дата актуализации: | 05.05.2017 |
| Дата введения: | 01.04.2017 |
| Область применения: | Стандарт устанавливает методы определения минимальной, средней и цилиндрической освещенностей, коэффициента естественной освещенности (КЕО) в помещениях зданий и сооружений и на рабочих местах, минимальной освещенности мест производства работ вне зданий, средней освещенности улиц, дорог, площадей, полуцилиндрической освещенности пешеходных зон. |
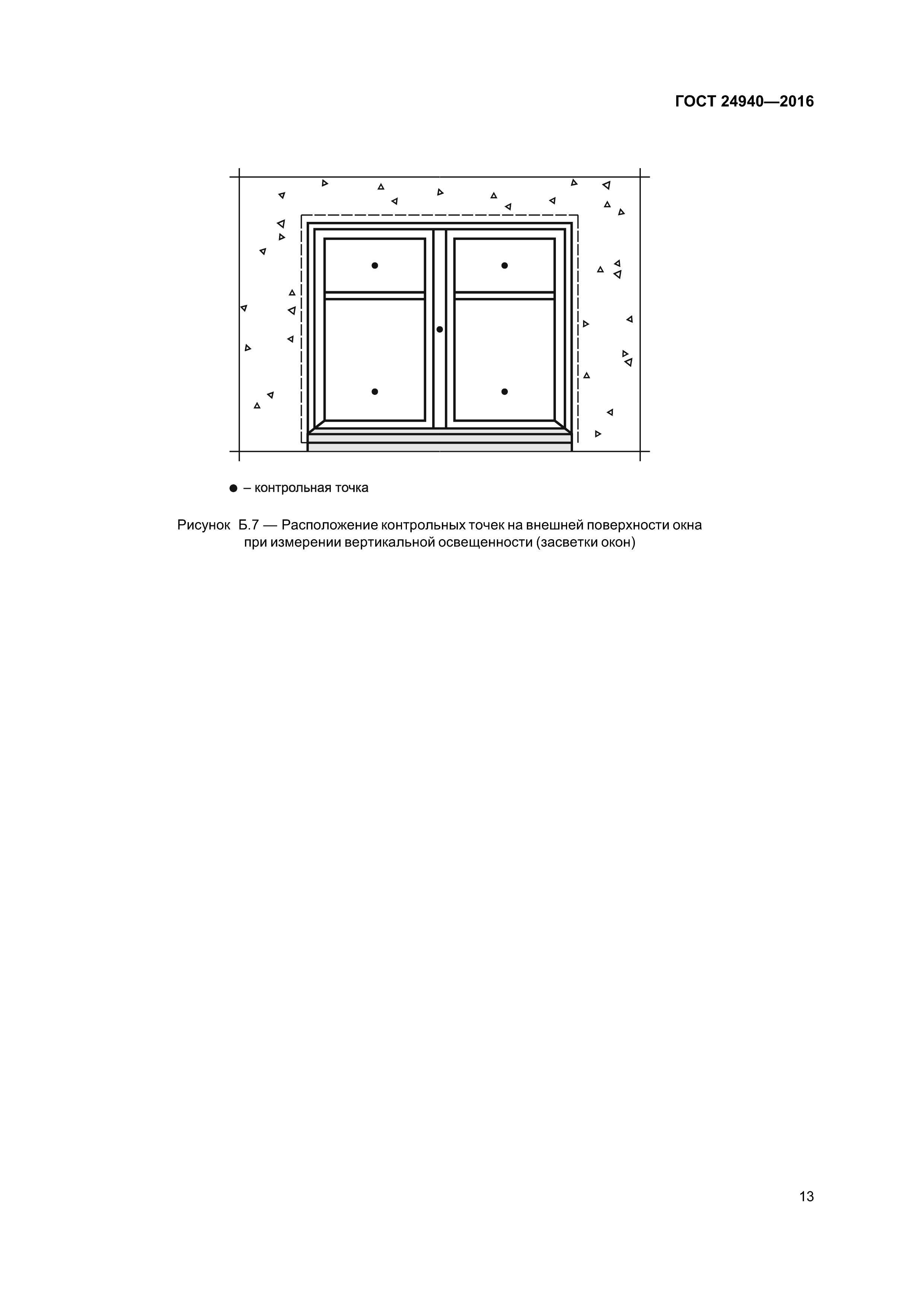
| Оглавление: | 1 Область применения 2 Нормативные ссылки 3 Термины и определения 4 Средства измерений 5 Подготовка к измерениям 6 Проведение измерений 7 Обработка результатов измерений 8 Оценка результатов измерений Приложение А (справочное) Перечень рекомендуемых средств измерений Приложение Б (рекомендуемое) Расположение контрольных точек при проведении измерений Приложение В (рекомендуемое) Протоколы измерений Библиография |
| Разработан: | НИИСФ РААСН ООО ЦЕРЕРА-ЭКСПЕРТ |
| Утверждён: | 31.08.2016 Межгосударственный Совет по стандартизации, метрологии и сертификации (Inter-Governmental Council on Standardization, Metrology, and Certification 90-П) 20.10.2016 Федеральное агентство по техническому регулированию и метрологии (1442-ст) |
| Издан: | Стандартинформ (2016 г. ) |
| Расположен в: | |
| Нормативные ссылки: |
|























