| ||||||||||||||||||||||||
Скачать Технологические схемы очистных и подготовительных работ на угольных шахтах. Части I и IIДата актуализации: 10.08.2017 |
| Статус: | cправочные материалы, мп, тпр |
| Название рус.: | Технологические схемы очистных и подготовительных работ на угольных шахтах. Части I и II |
| Дата добавления в базу: | 01.02.2017 |
| Дата актуализации: | 05.05.2017 |
| Область применения: | Технологические схемы очистных и подготовительных работ предназначены для широкого применения в угольных шахтах в целях достижения более высоких технико-экономических показателей. |
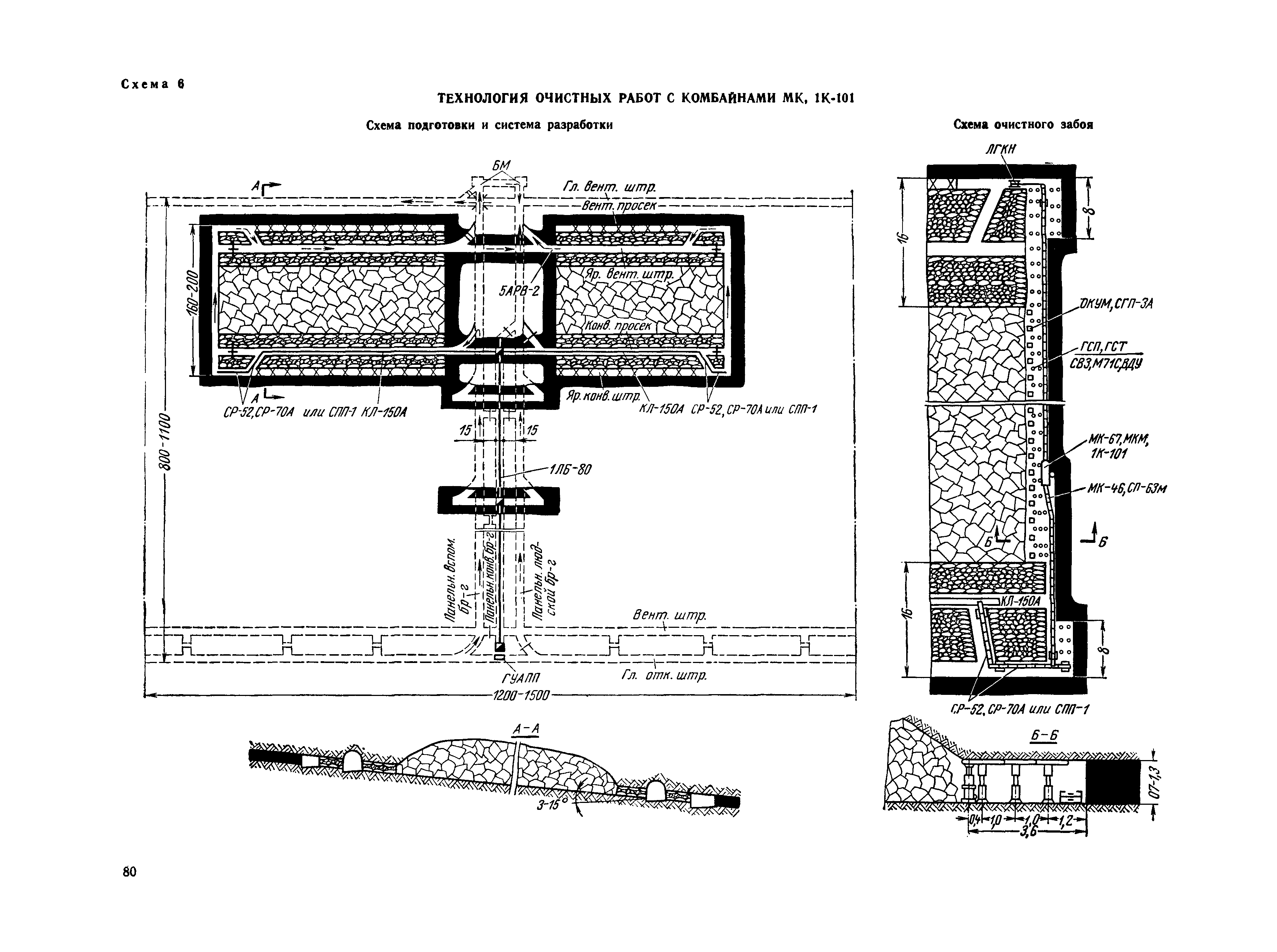
| Оглавление: | Часть I. Очистные работы Введение Современное состояние и пути совершенствования технологии очистных работ на угольных шахтах СССР Геологические и горнотехнические условия разработки Развитие технологии подземной добычи угля Пути совершенствования технологии очистных работ Основные принципы разработки технологических схем Средства механизации очистных работ и участковый транспорт Механизированные комплексы Монтаж и демонтаж механизированных комплексов Угольные комбайны и струговые установки Скребковые забойные конвейеры Индивидуальная крепь Участковый транспорт Методика определения производительности комбайнов по сопротивляемости угля резанию Вопросы вентиляции, борьбы с газом, пылью, внезапными выбросами угля и газа Расчет количества воздуха для проветривания выемочного участка Определение допустимой нагрузки на очистной забой по газовому фактору Дегазация при очистной выемке Автоматическая газовая защита на выемочных участках Автоматическая газовая защита на выемочных участках Борьба с внезапными выбросами угля или газа в очистных выработках Мероприятия по борьбе с угольной пылью Мероприятия по уменьшению опасности самовозгорания угля Средства связи и сигнализации Энергоснабжение сжатым воздухом Производственная эстетика и культура труда на подземных участках угольных шахт Научная организация труда в очистных забоях Экономическая эффективность технологических схем Как пользоваться технологическими схемами очистных работ Заключение Технологические схемы очистных работ на тонких угольных пластах (схемы 1—15) Технологические схемы очистных работ на пластах средней мощности (схемы 14-43) Технологические схемы очистных работ на мощных угольных пластах (схемы 44—64) Часть II. Подготовительные работы Основные принципы разработки технологических схем Методические положения разработки оптимальных технологических схем Определение оптимальных технологических параметров проведения подготовительных выработок буровзрывным способом Выбор оптимальных вариантов комплексов горнопроходческого оборудования Определение экономически целесообразных скоростей проходки Выбор рациональных параметров организации работ Определение оптимальных технологических параметров проведения подготовительных выработок комбайновым способом Определение экономически целесообразных скоростей проходки Выбор рациональных параметров организации работ Расчет количества воздуха и способы борьбы с газом в подготовительных выработках Мероприятия по борьбе с пылью при проведении горных выработок Борьба с внезапными выбросами угля и газа при проведении подготовительных выработок Рекомендации по проведению подготовительных выработок на глубоких горизонтах Как пользоваться технологическими схемами Технологические схемы проведения подготовительных выработок буровзрывным способом (схемы 1—22) Технологические схемы проведения подготовительных выработок комбайновым способом (схемы 23—28) Технологические схемы проведения нарезных выработок буро-сбоечными машинами (схемы 30—32) |
| Разработан: | Институт горного дела им. А.А. Скочинского |
| Утверждён: | Министерство угольной промышленности СССР (USSR Ministry of the Coal Industry ) |
| Издан: | Издательство Недра (1971 г. ) |
| Расположен в: |
































































































































































































































































































