| ||||||||||||||||||||||||||||
Скачать ВНТП 5-76 Временная инструкция о составе и оформлении технологических рабочих чертежей угольной промышленности. Раздел 3. Подземное электроснабжение. Механическое и электрическое оборудование подземных выработокДата актуализации: 10.08.2017
|
| Обозначение: | ВНТП 5-76 |
| Обозначение англ: | VNTP 5-76 |
| Статус: | действует |
| Название рус.: | Временная инструкция о составе и оформлении технологических рабочих чертежей угольной промышленности. Раздел 3. Подземное электроснабжение. Механическое и электрическое оборудование подземных выработок |
| Дата добавления в базу: | 01.02.2017 |
| Дата актуализации: | 05.05.2017 |
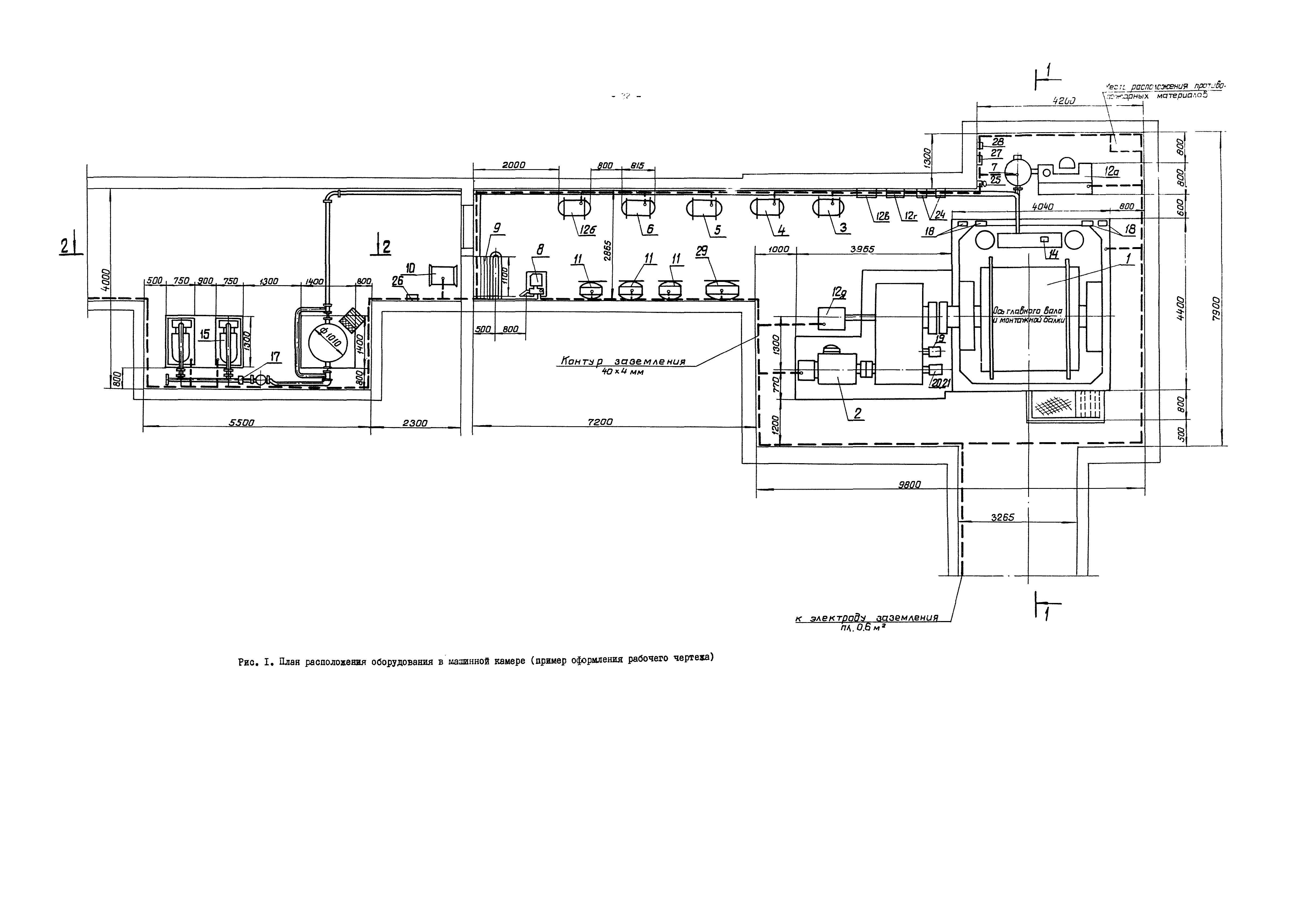
| Оглавление: | 1. Состав основного комплекта рабочих чертежей 2. Масштабы 3. Общие данные(заглавный лист) 4. Планы и разрезы расположения механического и электрического оборудования 5. Схемы электроснабжения и электрооборудования очистных и подготовительных работ и подземного транспорта 6. Разводки кабельной сети 7. Кабельные журналы 8, Схемы электроснабжения и разводки контактной сети 9. Принципиальные электрические схемы управления. Схемы подключения 10. Схемы подключения центральных, распределительных, участковых и передвижных подстанций. Дистанционное управление высоковольтными ячейками. Заземление ц.п.п. 11. Схемы и разводки комплексных сетей связи и контроля работы механизмов 12. Схемы управления и контроля за работой подземных объектов. 13. Схемы подземного транспорта. 14. Схемы подземных установок 15. Планы и схемы разводки трубопроводов по горным выработкам и околоствольным дворам 16. Схемы (чертежи) прокладки трубопроводов по стволу Приложение 1. Формы таблиц Приложение 2. Примеры оформления рабочих чертежей |
| Разработан: | Институт Центрогипрошахт |
| Утверждён: | 16.06.1976 Минуглепром СССР (USSR Minugleprom ) |
| Принят: | 01.03.1976 Госстрой СССР (2/2-74) |
| Расположен в: | |
| Нормативные ссылки: |












































