Информационная система
«Ёшкин Кот»

Скачать базу одним архивом
Скачать обновления
История создания базы
Карта сайта

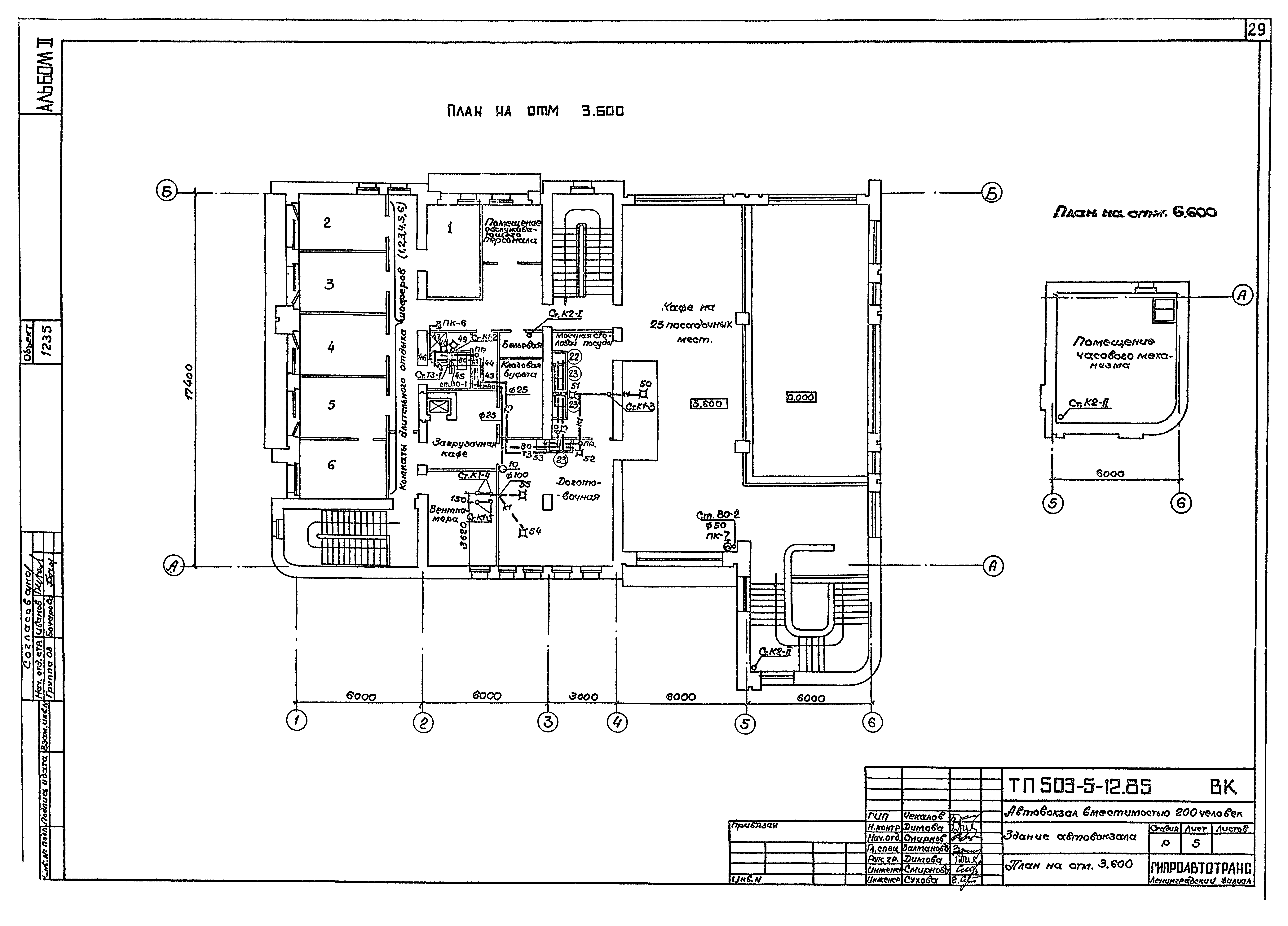
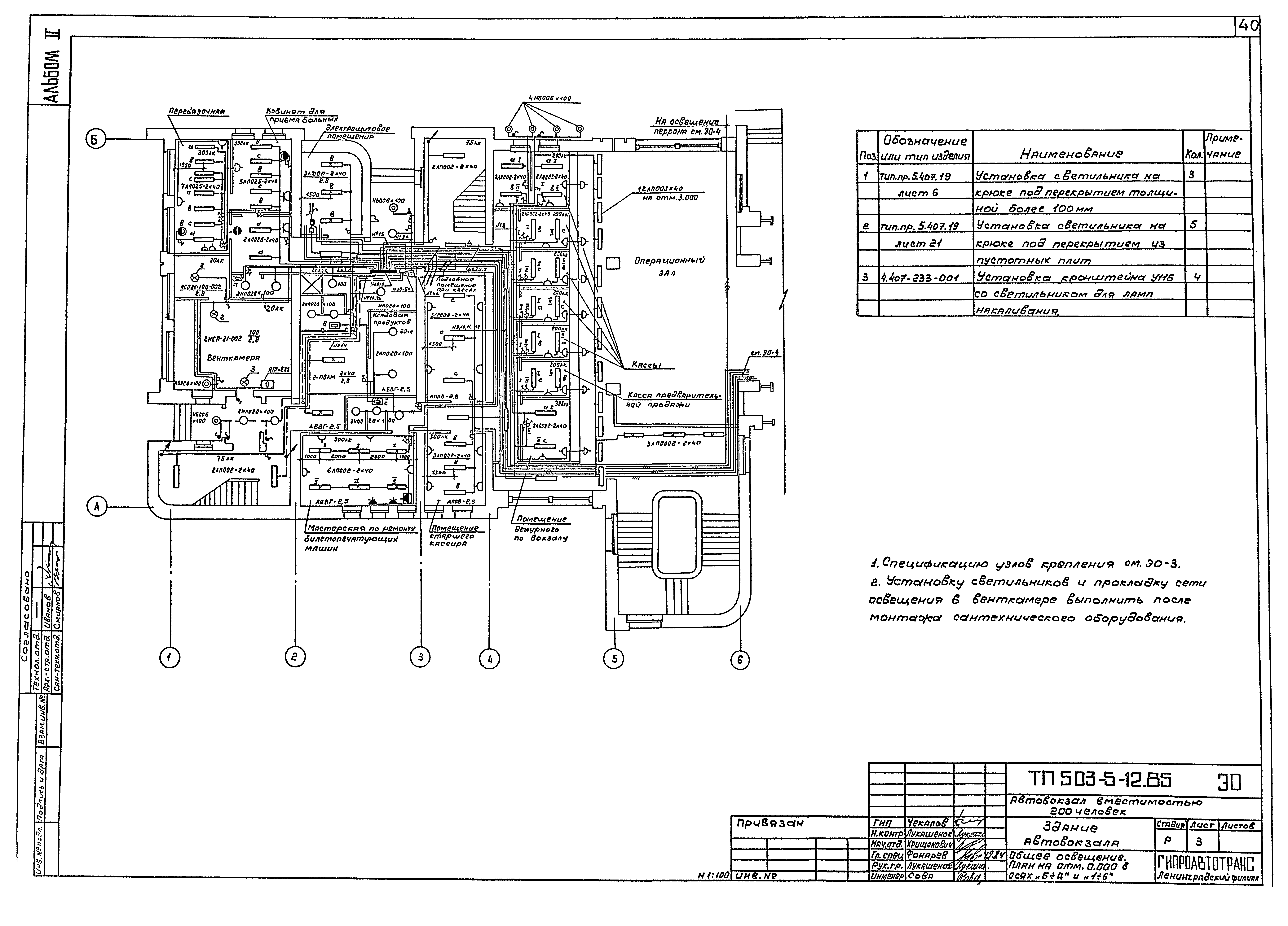
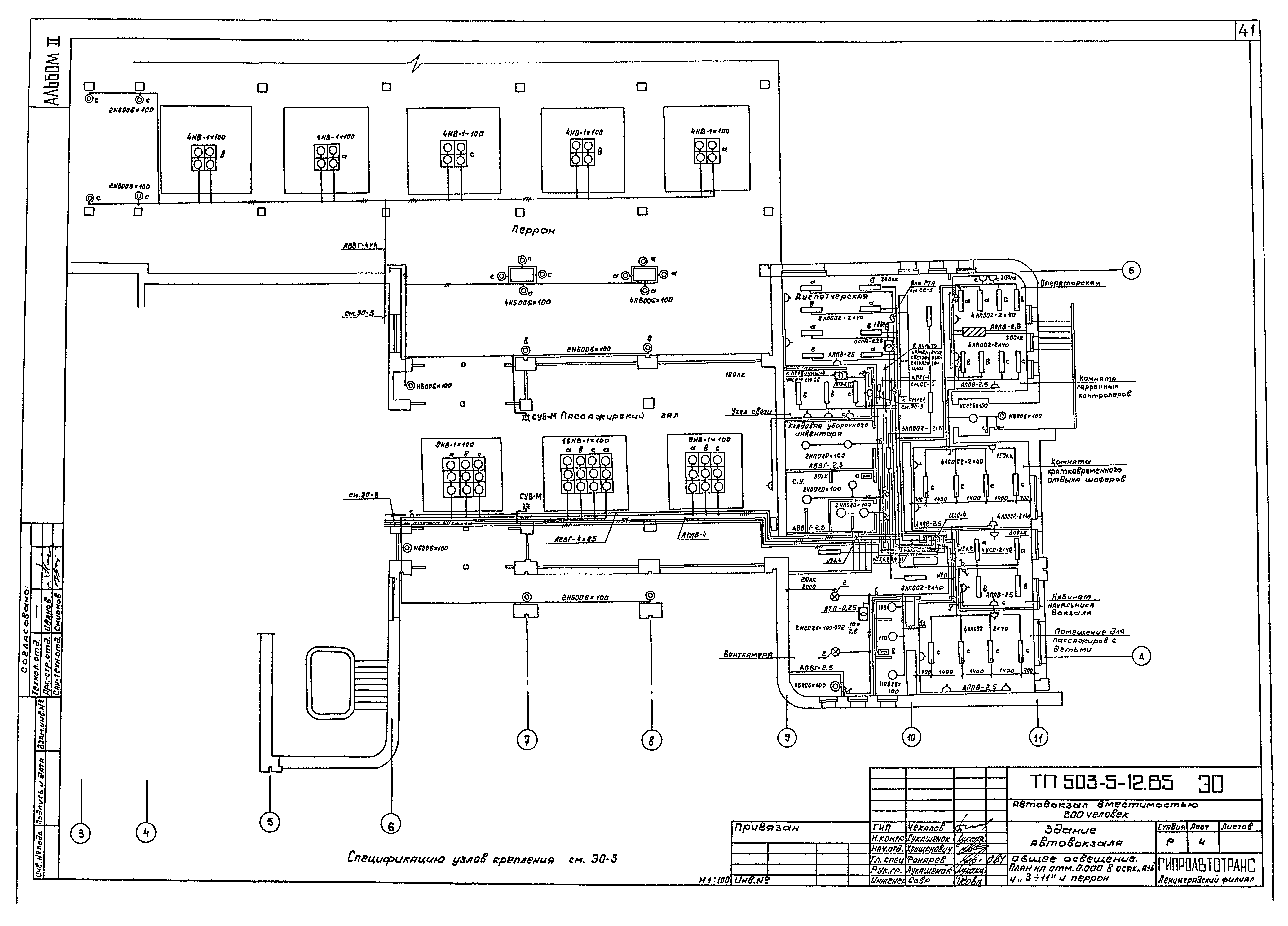
Скачать Типовой проект 503-5-12.85 Альбом II. Отопление и вентиляция. Водоснабжение и канализация. Электрическое освещение. Силовое электрооборудование. Связь и сигнализация. Автоматизация

Дата актуализации: 10.08.2017

Типовой проект 503-5-12.85

Альбом II. Отопление и вентиляция. Водоснабжение и канализация. Электрическое освещение. Силовое электрооборудование. Связь и сигнализация. Автоматизация

Обозначение: Типовой проект 503-5-12.85
Обозначение англ: 503-5-12.85
Статус:не определен законодательством
Название рус.:Альбом II. Отопление и вентиляция. Водоснабжение и канализация. Электрическое освещение. Силовое электрооборудование. Связь и сигнализация. Автоматизация
Дата добавления в базу:01.02.2017
Дата актуализации:05.05.2017
Дата введения:27.08.1985
Разработан: Ленинградский филиал Гипроавтотранс
Утверждён:19.07.1984 Минавтотранс РСФСР (Russian Federation Minavtotrans 48)
Издан: ЦИТП Госстроя СССР (CITP, Gosstroy (USSR) 1986 г. )
Расположен в:Техническая документация Строительство Справочные документы Типовые строительные конструкции, изделия и узлы Общероссийский строительный каталог Защитные сооружения гражданской обороны Типовые проекты защитных сооружений гражданской обороны для объектов промышленности, электроэнергетики, транспорта, связи и складского хозяйства Встроенные помещения, приспосабливаемые под противорадиационные укрытия Противорадиационные укрытия в зданиях и сооружениях транспорта Промышленные предприятия, здания и сооружения Предприятия, здания и сооружения транспорта Транспорт автомобильный Здания и сооружения по обслуживанию пассажиров
Заменяет собой:
  • Типовой проект 503-224
Нормативные ссылки:
Типовой проект 503-5-12.85Типовой проект 503-5-12.85Типовой проект 503-5-12.85Типовой проект 503-5-12.85Типовой проект 503-5-12.85Типовой проект 503-5-12.85Типовой проект 503-5-12.85Типовой проект 503-5-12.85Типовой проект 503-5-12.85Типовой проект 503-5-12.85Типовой проект 503-5-12.85Типовой проект 503-5-12.85Типовой проект 503-5-12.85Типовой проект 503-5-12.85Типовой проект 503-5-12.85Типовой проект 503-5-12.85Типовой проект 503-5-12.85Типовой проект 503-5-12.85Типовой проект 503-5-12.85Типовой проект 503-5-12.85Типовой проект 503-5-12.85Типовой проект 503-5-12.85Типовой проект 503-5-12.85Типовой проект 503-5-12.85Типовой проект 503-5-12.85Типовой проект 503-5-12.85Типовой проект 503-5-12.85Типовой проект 503-5-12.85Типовой проект 503-5-12.85Типовой проект 503-5-12.85Типовой проект 503-5-12.85Типовой проект 503-5-12.85Типовой проект 503-5-12.85Типовой проект 503-5-12.85Типовой проект 503-5-12.85Типовой проект 503-5-12.85Типовой проект 503-5-12.85Типовой проект 503-5-12.85Типовой проект 503-5-12.85Типовой проект 503-5-12.85Типовой проект 503-5-12.85Типовой проект 503-5-12.85Типовой проект 503-5-12.85Типовой проект 503-5-12.85Типовой проект 503-5-12.85Типовой проект 503-5-12.85Типовой проект 503-5-12.85Типовой проект 503-5-12.85Типовой проект 503-5-12.85Типовой проект 503-5-12.85Типовой проект 503-5-12.85Типовой проект 503-5-12.85Типовой проект 503-5-12.85Типовой проект 503-5-12.85Типовой проект 503-5-12.85Типовой проект 503-5-12.85Типовой проект 503-5-12.85Типовой проект 503-5-12.85Типовой проект 503-5-12.85Типовой проект 503-5-12.85Типовой проект 503-5-12.85Типовой проект 503-5-12.85Типовой проект 503-5-12.85Типовой проект 503-5-12.85Типовой проект 503-5-12.85Типовой проект 503-5-12.85Типовой проект 503-5-12.85Типовой проект 503-5-12.85Типовой проект 503-5-12.85Типовой проект 503-5-12.85Типовой проект 503-5-12.85Типовой проект 503-5-12.85Типовой проект 503-5-12.85Типовой проект 503-5-12.85Типовой проект 503-5-12.85Типовой проект 503-5-12.85Типовой проект 503-5-12.85

© 2013 Ёшкин Кот :-) Карта сайта