Информационная система
«Ёшкин Кот»

Скачать базу одним архивом
Скачать обновления
История создания базы
Карта сайта

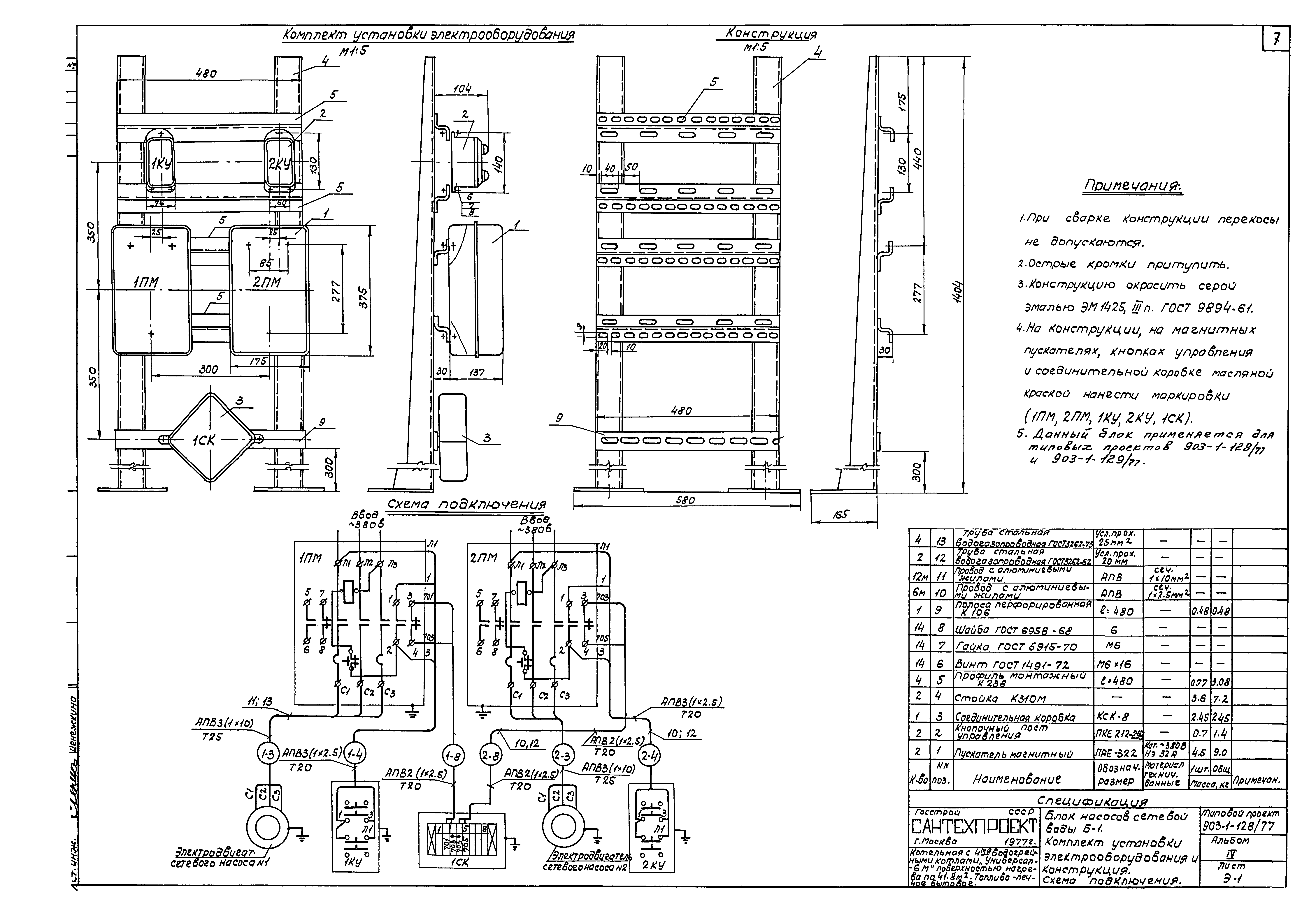
Скачать Типовой проект 903-1-128/77 Альбом IV. Строительно-монтажные блоки тепломеханического оборудования

Дата актуализации: 10.08.2017

Типовой проект 903-1-128/77

Альбом IV. Строительно-монтажные блоки тепломеханического оборудования

Обозначение: Типовой проект 903-1-128/77
Обозначение англ: 903-1-128/77
Статус:отменен
Название рус.:Альбом IV. Строительно-монтажные блоки тепломеханического оборудования
Дата добавления в базу:01.02.2017
Дата актуализации:05.05.2017
Дата введения:01.02.1984
Разработан: ГПИ Сантехпроект Госстроя СССР
Утверждён:21.03.1978 ГПИ Сантехпроект Госстроя СССР (35)
Издан: ЦИТП Госстроя СССР (CITP, Gosstroy (USSR) 1979 г. )
Расположен в:Техническая документация Строительство Справочные документы Типовые строительные конструкции, изделия и узлы Общероссийский строительный каталог Промышленные предприятия, здания и сооружения Здания и сооружения санитарно-технические Теплоснабжение Котельные установки Закрытые системы теплоснабжения Топливо - газ
Заменяет собой:
Типовой проект 903-1-128/77Типовой проект 903-1-128/77Типовой проект 903-1-128/77Типовой проект 903-1-128/77Типовой проект 903-1-128/77Типовой проект 903-1-128/77Типовой проект 903-1-128/77Типовой проект 903-1-128/77Типовой проект 903-1-128/77Типовой проект 903-1-128/77Типовой проект 903-1-128/77Типовой проект 903-1-128/77Типовой проект 903-1-128/77Типовой проект 903-1-128/77Типовой проект 903-1-128/77Типовой проект 903-1-128/77Типовой проект 903-1-128/77Типовой проект 903-1-128/77Типовой проект 903-1-128/77Типовой проект 903-1-128/77Типовой проект 903-1-128/77Типовой проект 903-1-128/77Типовой проект 903-1-128/77Типовой проект 903-1-128/77Типовой проект 903-1-128/77Типовой проект 903-1-128/77Типовой проект 903-1-128/77Типовой проект 903-1-128/77Типовой проект 903-1-128/77Типовой проект 903-1-128/77Типовой проект 903-1-128/77Типовой проект 903-1-128/77Типовой проект 903-1-128/77Типовой проект 903-1-128/77Типовой проект 903-1-128/77Типовой проект 903-1-128/77

© 2013 Ёшкин Кот :-) Карта сайта