Информационная система
«Ёшкин Кот»

Скачать базу одним архивом
Скачать обновления
История создания базы
Карта сайта

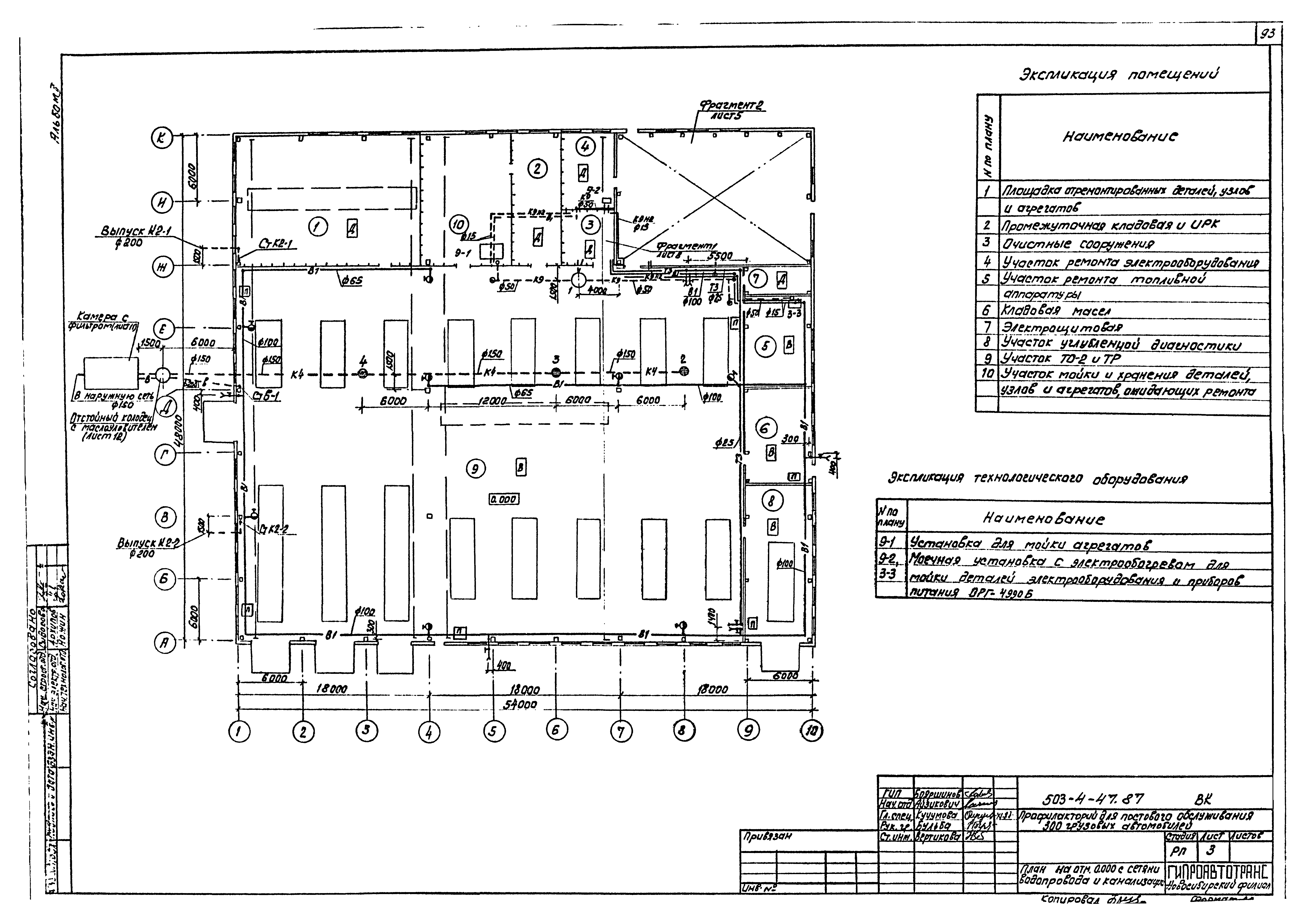
Скачать Типовой проект 503-4-47.87 Альбом II. Конструкции железобетонные. Конструкции металлические. Отопление, вентиляция. Внутренние водопровод и канализация

Дата актуализации: 10.08.2017

Типовой проект 503-4-47.87

Альбом II. Конструкции железобетонные. Конструкции металлические. Отопление, вентиляция. Внутренние водопровод и канализация

Обозначение: Типовой проект 503-4-47.87
Обозначение англ: 503-4-47.87
Статус:не определен законодательством
Название рус.:Альбом II. Конструкции железобетонные. Конструкции металлические. Отопление, вентиляция. Внутренние водопровод и канализация
Дата добавления в базу:01.02.2017
Дата актуализации:05.05.2017
Дата введения:15.09.1987
Разработан: Новосибирский филиал Гипроавтотранса
Утверждён:15.09.1987 Минавтотранс РСФСР (Russian Federation Minavtotrans 13)
Издан: ЦИТП Госстроя СССР (CITP, Gosstroy (USSR) 1988 г. )
Расположен в:Техническая документация Строительство Справочные документы Типовые строительные конструкции, изделия и узлы Общероссийский строительный каталог Защитные сооружения гражданской обороны Типовые проекты защитных сооружений гражданской обороны для объектов промышленности, электроэнергетики, транспорта, связи и складского хозяйства Встроенные помещения, приспосабливаемые под противорадиационные укрытия Противорадиационные укрытия в зданиях и сооружениях транспорта Промышленные предприятия, здания и сооружения Предприятия, здания и сооружения транспорта Транспорт автомобильный Мойки и профилактории для грузовых и легковых автомобилей и автобусов
Заменяет собой:
  • Типовой проект 503-287
Типовой проект 503-4-47.87Типовой проект 503-4-47.87Типовой проект 503-4-47.87Типовой проект 503-4-47.87Типовой проект 503-4-47.87Типовой проект 503-4-47.87Типовой проект 503-4-47.87Типовой проект 503-4-47.87Типовой проект 503-4-47.87Типовой проект 503-4-47.87Типовой проект 503-4-47.87Типовой проект 503-4-47.87Типовой проект 503-4-47.87Типовой проект 503-4-47.87Типовой проект 503-4-47.87Типовой проект 503-4-47.87Типовой проект 503-4-47.87Типовой проект 503-4-47.87Типовой проект 503-4-47.87Типовой проект 503-4-47.87Типовой проект 503-4-47.87Типовой проект 503-4-47.87Типовой проект 503-4-47.87Типовой проект 503-4-47.87Типовой проект 503-4-47.87Типовой проект 503-4-47.87Типовой проект 503-4-47.87Типовой проект 503-4-47.87Типовой проект 503-4-47.87Типовой проект 503-4-47.87Типовой проект 503-4-47.87Типовой проект 503-4-47.87Типовой проект 503-4-47.87Типовой проект 503-4-47.87Типовой проект 503-4-47.87Типовой проект 503-4-47.87Типовой проект 503-4-47.87Типовой проект 503-4-47.87Типовой проект 503-4-47.87Типовой проект 503-4-47.87Типовой проект 503-4-47.87Типовой проект 503-4-47.87Типовой проект 503-4-47.87Типовой проект 503-4-47.87Типовой проект 503-4-47.87Типовой проект 503-4-47.87Типовой проект 503-4-47.87Типовой проект 503-4-47.87Типовой проект 503-4-47.87Типовой проект 503-4-47.87Типовой проект 503-4-47.87Типовой проект 503-4-47.87Типовой проект 503-4-47.87Типовой проект 503-4-47.87Типовой проект 503-4-47.87Типовой проект 503-4-47.87Типовой проект 503-4-47.87Типовой проект 503-4-47.87Типовой проект 503-4-47.87Типовой проект 503-4-47.87Типовой проект 503-4-47.87Типовой проект 503-4-47.87Типовой проект 503-4-47.87Типовой проект 503-4-47.87Типовой проект 503-4-47.87Типовой проект 503-4-47.87Типовой проект 503-4-47.87Типовой проект 503-4-47.87Типовой проект 503-4-47.87Типовой проект 503-4-47.87Типовой проект 503-4-47.87Типовой проект 503-4-47.87Типовой проект 503-4-47.87Типовой проект 503-4-47.87Типовой проект 503-4-47.87Типовой проект 503-4-47.87Типовой проект 503-4-47.87Типовой проект 503-4-47.87Типовой проект 503-4-47.87Типовой проект 503-4-47.87Типовой проект 503-4-47.87Типовой проект 503-4-47.87Типовой проект 503-4-47.87Типовой проект 503-4-47.87Типовой проект 503-4-47.87Типовой проект 503-4-47.87Типовой проект 503-4-47.87Типовой проект 503-4-47.87Типовой проект 503-4-47.87Типовой проект 503-4-47.87Типовой проект 503-4-47.87Типовой проект 503-4-47.87Типовой проект 503-4-47.87Типовой проект 503-4-47.87Типовой проект 503-4-47.87Типовой проект 503-4-47.87Типовой проект 503-4-47.87Типовой проект 503-4-47.87Типовой проект 503-4-47.87Типовой проект 503-4-47.87Типовой проект 503-4-47.87Типовой проект 503-4-47.87Типовой проект 503-4-47.87Типовой проект 503-4-47.87

© 2013 Ёшкин Кот :-) Карта сайта