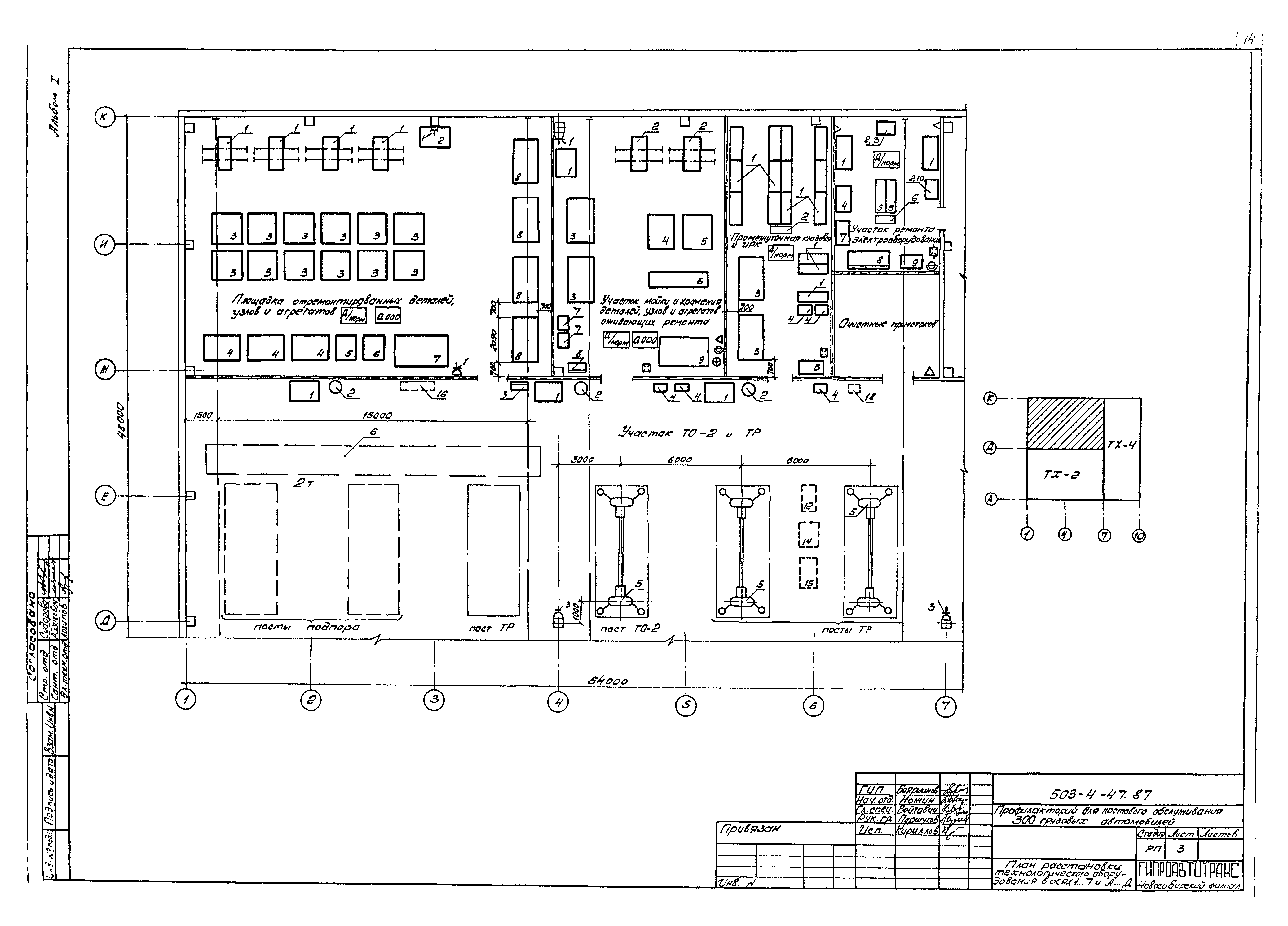
Скачать Типовой проект 503-4-47.87 Альбом I. Пояснительная записка, технология производства, силовое электрооборудование, электрическое освещение, автоматизация санитарно-технических систем, связь и сигнализация, архитектурные решенияДата актуализации: 10.08.2017 Типовой проект 503-4-47.87
Альбом I. Пояснительная записка, технология производства, силовое электрооборудование, электрическое освещение, автоматизация санитарно-технических систем, связь и сигнализация, архитектурные решенияОбозначение: | Типовой проект 503-4-47.87 | Обозначение англ: | 503-4-47.87 | Статус: | не определен законодательством | Название рус.: | Альбом I. Пояснительная записка, технология производства, силовое электрооборудование, электрическое освещение, автоматизация санитарно-технических систем, связь и сигнализация, архитектурные решения | Дата добавления в базу: | 01.02.2017 | Дата актуализации: | 05.05.2017 | Дата введения: | 15.09.1987 | Разработан: | Новосибирский филиал Гипроавтотранса
| Утверждён: | 15.09.1987 Минавтотранс РСФСР (Russian Federation Minavtotrans 13)
| Издан: | ЦИТП Госстроя СССР (CITP, Gosstroy (USSR) 1988 г. )
| Расположен в: |
| Заменяет собой: | |
                                                                                       
|