Информационная система
«Ёшкин Кот»

Скачать базу одним архивом
Скачать обновления
История создания базы
Карта сайта

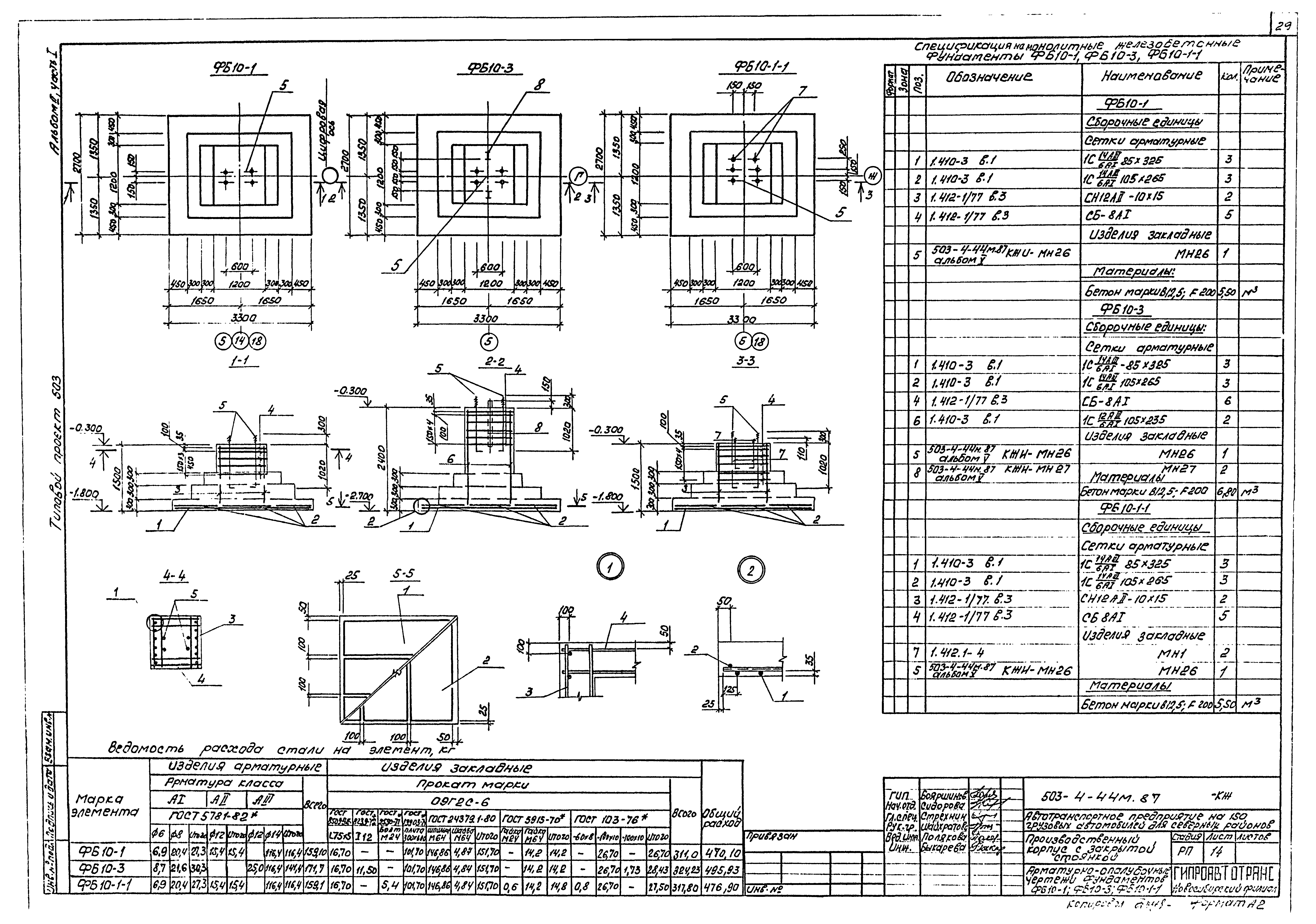
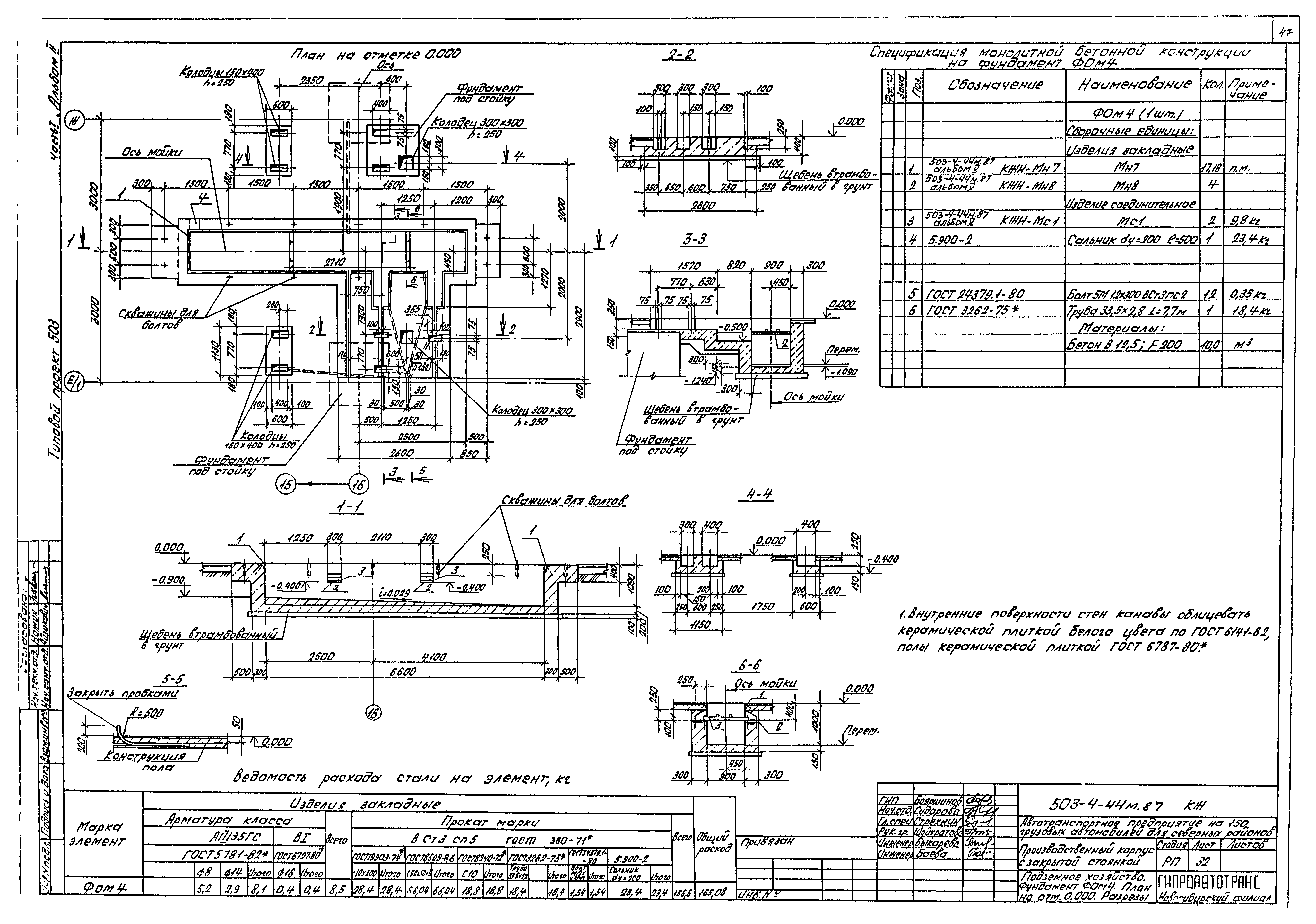
Скачать Типовой проект 503-4-44м.87 Альбом II. Часть I. Архитектурные решения, конструкции железобетонные

Дата актуализации: 10.08.2017

Типовой проект 503-4-44м.87

Альбом II. Часть I. Архитектурные решения, конструкции железобетонные

Обозначение: Типовой проект 503-4-44м.87
Обозначение англ: 503-4-44м.87
Статус:не определен законодательством
Название рус.:Альбом II. Часть I. Архитектурные решения, конструкции железобетонные
Дата добавления в базу:01.02.2017
Дата актуализации:05.05.2017
Дата введения:30.12.1986
Разработан: Новосибирский филиал Гипроавтотранса
Утверждён:30.12.1986 Минавтотранс РСФСР (Russian Federation Minavtotrans 24)
Издан: ЦИТП Госстроя СССР (CITP, Gosstroy (USSR) 1988 г. )
Расположен в:Техническая документация Строительство Справочные документы Типовые строительные конструкции, изделия и узлы Общероссийский строительный каталог Промышленные предприятия, здания и сооружения Предприятия, здания и сооружения транспорта Транспорт автомобильный Предприятия автотранспортные, гаражи и стоянки для грузовых автомобилей и механизмов
Типовой проект 503-4-44м.87Типовой проект 503-4-44м.87Типовой проект 503-4-44м.87Типовой проект 503-4-44м.87Типовой проект 503-4-44м.87Типовой проект 503-4-44м.87Типовой проект 503-4-44м.87Типовой проект 503-4-44м.87Типовой проект 503-4-44м.87Типовой проект 503-4-44м.87Типовой проект 503-4-44м.87Типовой проект 503-4-44м.87Типовой проект 503-4-44м.87Типовой проект 503-4-44м.87Типовой проект 503-4-44м.87Типовой проект 503-4-44м.87Типовой проект 503-4-44м.87Типовой проект 503-4-44м.87Типовой проект 503-4-44м.87Типовой проект 503-4-44м.87Типовой проект 503-4-44м.87Типовой проект 503-4-44м.87Типовой проект 503-4-44м.87Типовой проект 503-4-44м.87Типовой проект 503-4-44м.87Типовой проект 503-4-44м.87Типовой проект 503-4-44м.87Типовой проект 503-4-44м.87Типовой проект 503-4-44м.87Типовой проект 503-4-44м.87Типовой проект 503-4-44м.87Типовой проект 503-4-44м.87Типовой проект 503-4-44м.87Типовой проект 503-4-44м.87Типовой проект 503-4-44м.87Типовой проект 503-4-44м.87Типовой проект 503-4-44м.87Типовой проект 503-4-44м.87Типовой проект 503-4-44м.87Типовой проект 503-4-44м.87Типовой проект 503-4-44м.87Типовой проект 503-4-44м.87Типовой проект 503-4-44м.87Типовой проект 503-4-44м.87Типовой проект 503-4-44м.87Типовой проект 503-4-44м.87Типовой проект 503-4-44м.87Типовой проект 503-4-44м.87Типовой проект 503-4-44м.87Типовой проект 503-4-44м.87Типовой проект 503-4-44м.87Типовой проект 503-4-44м.87Типовой проект 503-4-44м.87Типовой проект 503-4-44м.87Типовой проект 503-4-44м.87Типовой проект 503-4-44м.87Типовой проект 503-4-44м.87Типовой проект 503-4-44м.87Типовой проект 503-4-44м.87Типовой проект 503-4-44м.87Типовой проект 503-4-44м.87Типовой проект 503-4-44м.87Типовой проект 503-4-44м.87Типовой проект 503-4-44м.87Типовой проект 503-4-44м.87Типовой проект 503-4-44м.87Типовой проект 503-4-44м.87Типовой проект 503-4-44м.87Типовой проект 503-4-44м.87Типовой проект 503-4-44м.87Типовой проект 503-4-44м.87Типовой проект 503-4-44м.87Типовой проект 503-4-44м.87

© 2013 Ёшкин Кот :-) Карта сайта