Информационная система
«Ёшкин Кот»

Скачать базу одним архивом
Скачать обновления
История создания базы
Карта сайта

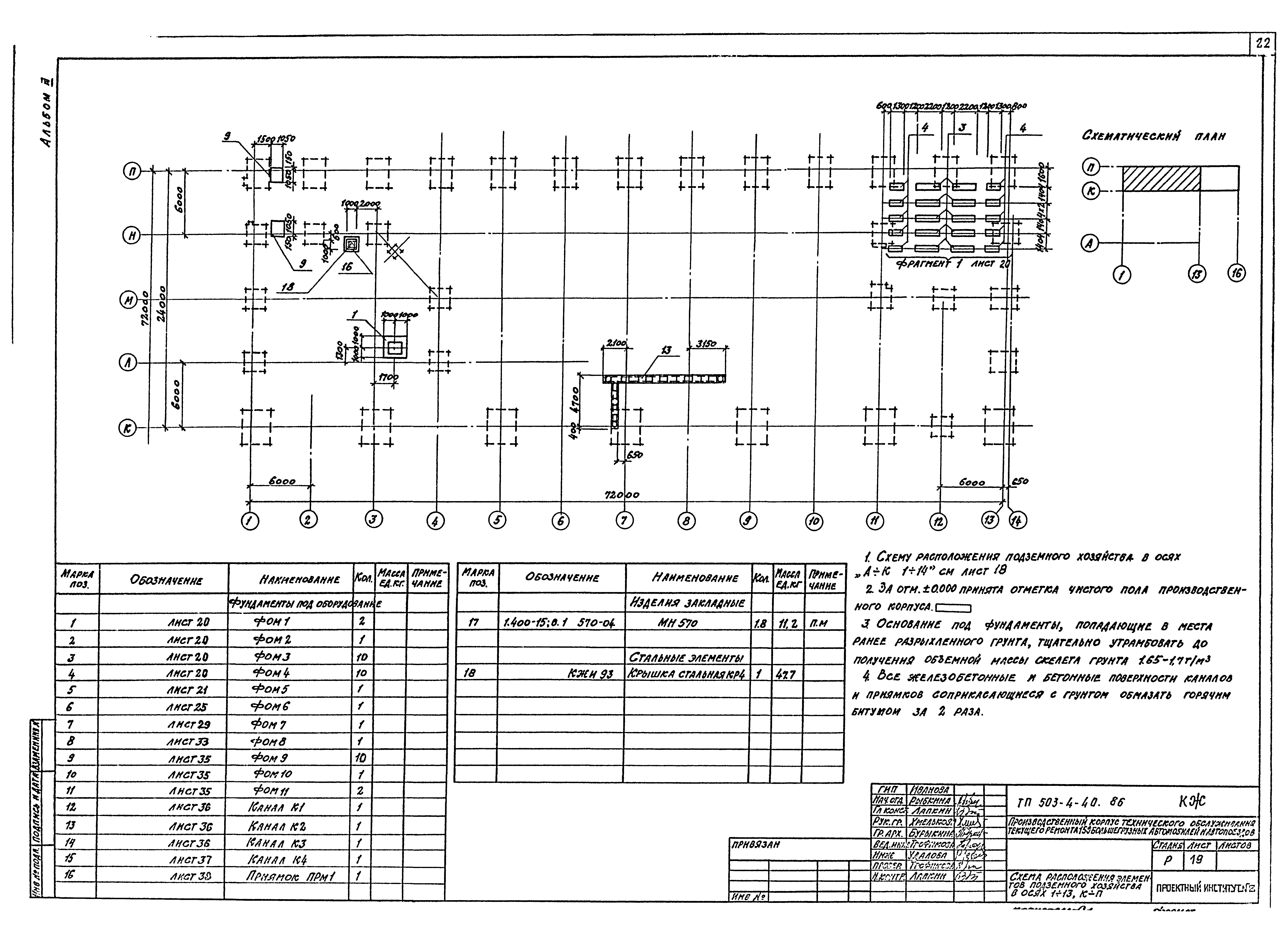
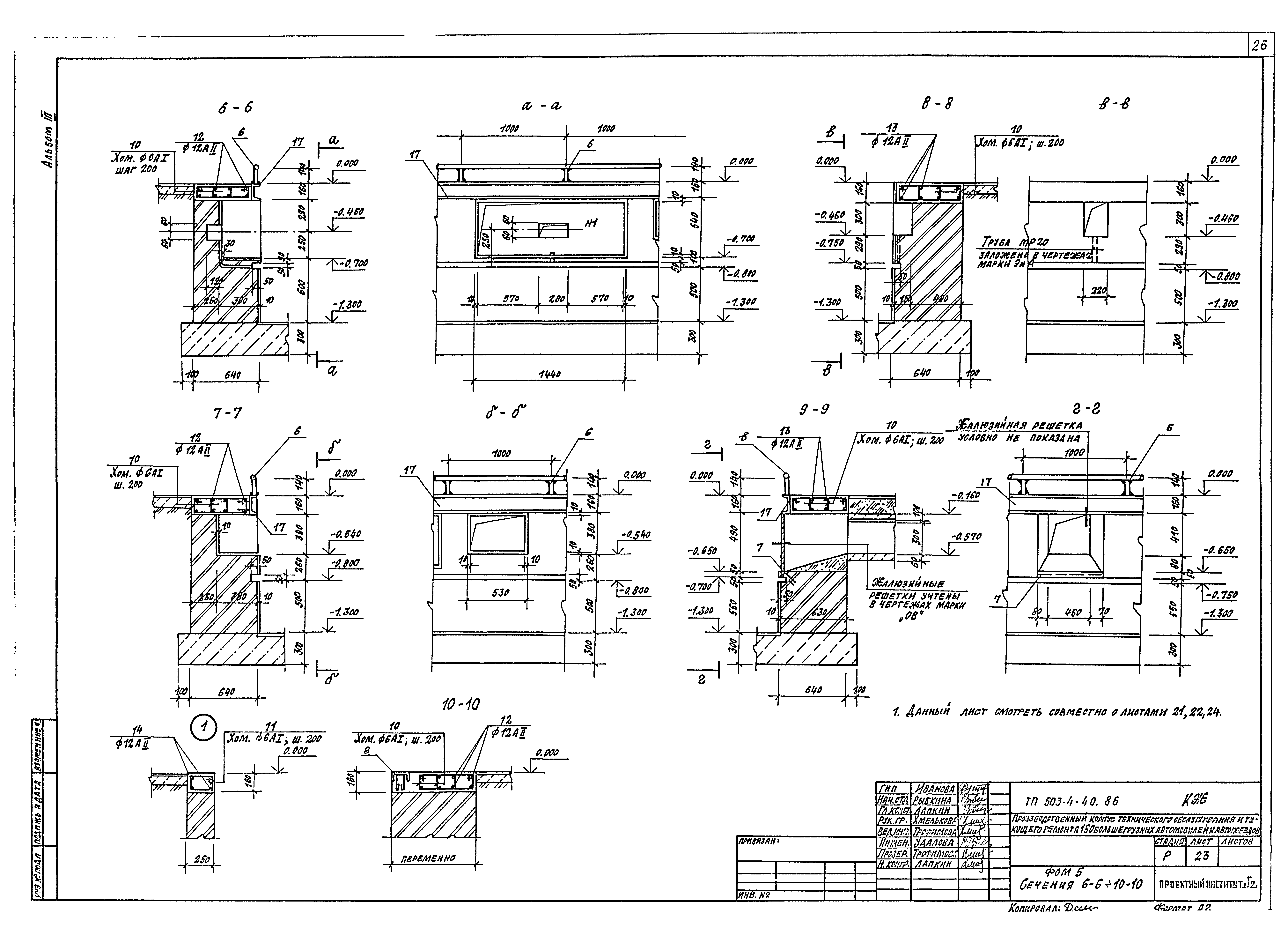
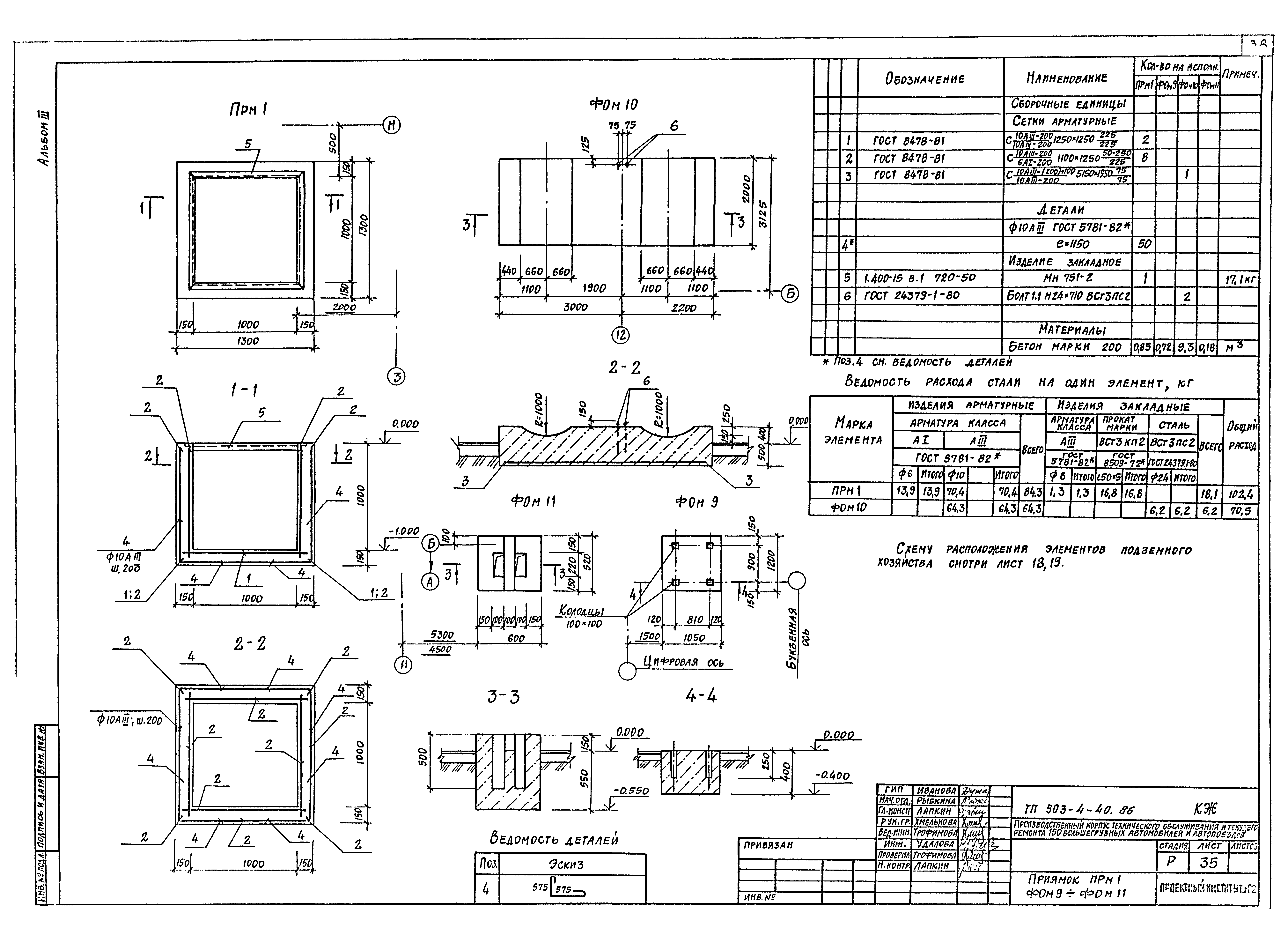
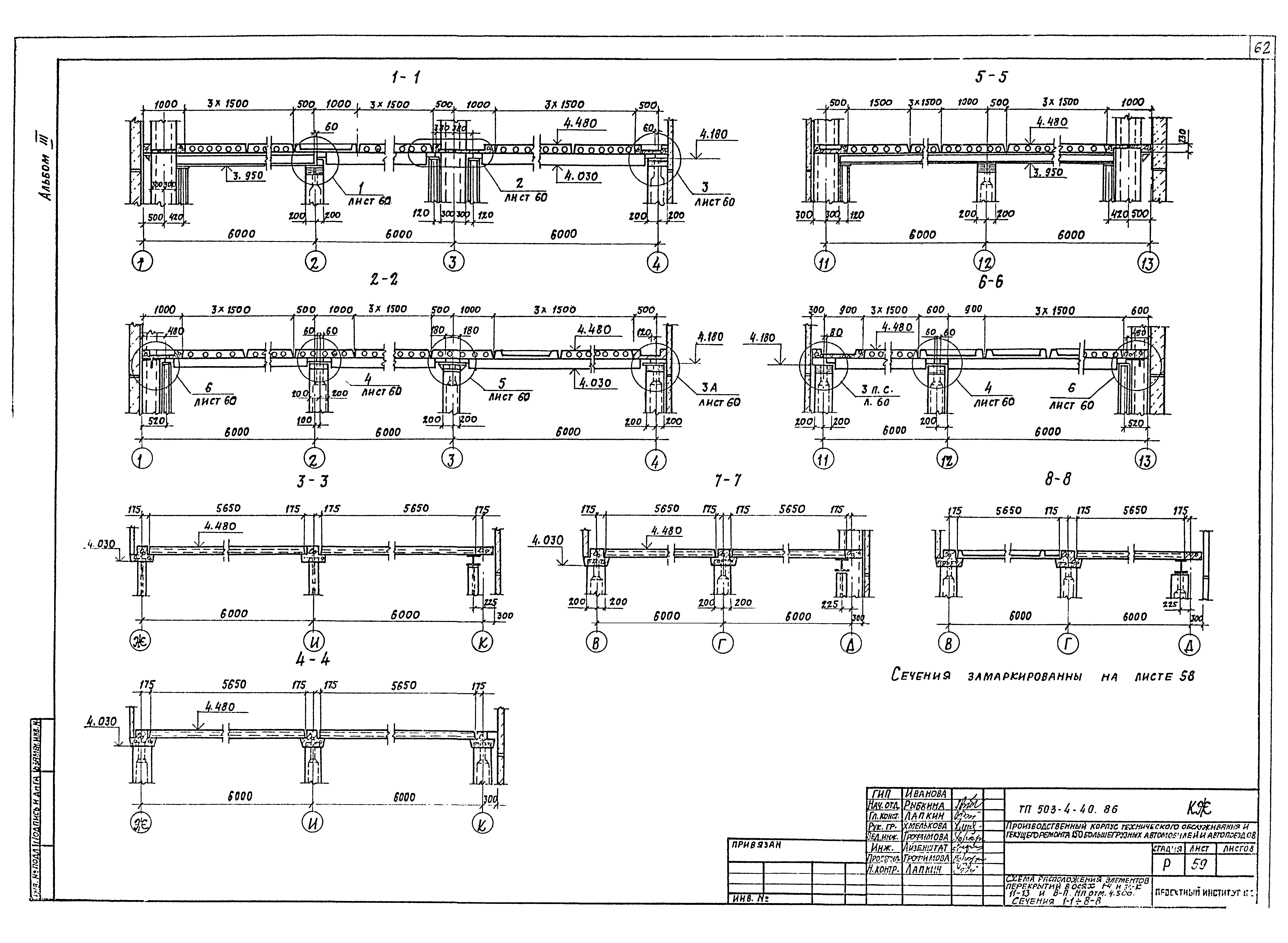
Скачать Типовой проект 503-4-40.86 Альбом III. Конструкции железобетонные. Конструкции металлические

Дата актуализации: 10.08.2017

Типовой проект 503-4-40.86

Альбом III. Конструкции железобетонные. Конструкции металлические

Обозначение: Типовой проект 503-4-40.86
Обозначение англ: 503-4-40.86
Статус:не определен законодательством
Название рус.:Альбом III. Конструкции железобетонные. Конструкции металлические
Дата добавления в базу:01.02.2017
Дата актуализации:05.05.2017
Дата введения:23.01.1986
Разработан: Проектный институт №2
Утверждён:15.01.1986 Госстрой СССР (АЧ-1)
Издан: ЦИТП Госстроя СССР (CITP, Gosstroy (USSR) 1987 г. )
Расположен в:Техническая документация Строительство Справочные документы Типовые строительные конструкции, изделия и узлы Общероссийский строительный каталог Промышленные предприятия, здания и сооружения Предприятия, здания и сооружения транспорта Транспорт автомобильный Корпуса производственные, станции технического обслуживания и ремонта грузовых и легковых автомобилей и автобусов
Типовой проект 503-4-40.86Типовой проект 503-4-40.86Типовой проект 503-4-40.86Типовой проект 503-4-40.86Типовой проект 503-4-40.86Типовой проект 503-4-40.86Типовой проект 503-4-40.86Типовой проект 503-4-40.86Типовой проект 503-4-40.86Типовой проект 503-4-40.86Типовой проект 503-4-40.86Типовой проект 503-4-40.86Типовой проект 503-4-40.86Типовой проект 503-4-40.86Типовой проект 503-4-40.86Типовой проект 503-4-40.86Типовой проект 503-4-40.86Типовой проект 503-4-40.86Типовой проект 503-4-40.86Типовой проект 503-4-40.86Типовой проект 503-4-40.86Типовой проект 503-4-40.86Типовой проект 503-4-40.86Типовой проект 503-4-40.86Типовой проект 503-4-40.86Типовой проект 503-4-40.86Типовой проект 503-4-40.86Типовой проект 503-4-40.86Типовой проект 503-4-40.86Типовой проект 503-4-40.86Типовой проект 503-4-40.86Типовой проект 503-4-40.86Типовой проект 503-4-40.86Типовой проект 503-4-40.86Типовой проект 503-4-40.86Типовой проект 503-4-40.86Типовой проект 503-4-40.86Типовой проект 503-4-40.86Типовой проект 503-4-40.86Типовой проект 503-4-40.86Типовой проект 503-4-40.86Типовой проект 503-4-40.86Типовой проект 503-4-40.86Типовой проект 503-4-40.86Типовой проект 503-4-40.86Типовой проект 503-4-40.86Типовой проект 503-4-40.86Типовой проект 503-4-40.86Типовой проект 503-4-40.86Типовой проект 503-4-40.86Типовой проект 503-4-40.86Типовой проект 503-4-40.86Типовой проект 503-4-40.86Типовой проект 503-4-40.86Типовой проект 503-4-40.86Типовой проект 503-4-40.86Типовой проект 503-4-40.86Типовой проект 503-4-40.86Типовой проект 503-4-40.86Типовой проект 503-4-40.86Типовой проект 503-4-40.86Типовой проект 503-4-40.86Типовой проект 503-4-40.86Типовой проект 503-4-40.86Типовой проект 503-4-40.86Типовой проект 503-4-40.86Типовой проект 503-4-40.86Типовой проект 503-4-40.86Типовой проект 503-4-40.86Типовой проект 503-4-40.86Типовой проект 503-4-40.86Типовой проект 503-4-40.86Типовой проект 503-4-40.86Типовой проект 503-4-40.86Типовой проект 503-4-40.86Типовой проект 503-4-40.86Типовой проект 503-4-40.86Типовой проект 503-4-40.86Типовой проект 503-4-40.86Типовой проект 503-4-40.86Типовой проект 503-4-40.86Типовой проект 503-4-40.86Типовой проект 503-4-40.86Типовой проект 503-4-40.86Типовой проект 503-4-40.86Типовой проект 503-4-40.86Типовой проект 503-4-40.86Типовой проект 503-4-40.86Типовой проект 503-4-40.86Типовой проект 503-4-40.86Типовой проект 503-4-40.86Типовой проект 503-4-40.86Типовой проект 503-4-40.86Типовой проект 503-4-40.86Типовой проект 503-4-40.86Типовой проект 503-4-40.86Типовой проект 503-4-40.86Типовой проект 503-4-40.86Типовой проект 503-4-40.86Типовой проект 503-4-40.86Типовой проект 503-4-40.86

© 2013 Ёшкин Кот :-) Карта сайта