Информационная система
«Ёшкин Кот»

Скачать базу одним архивом
Скачать обновления
История создания базы
Карта сайта

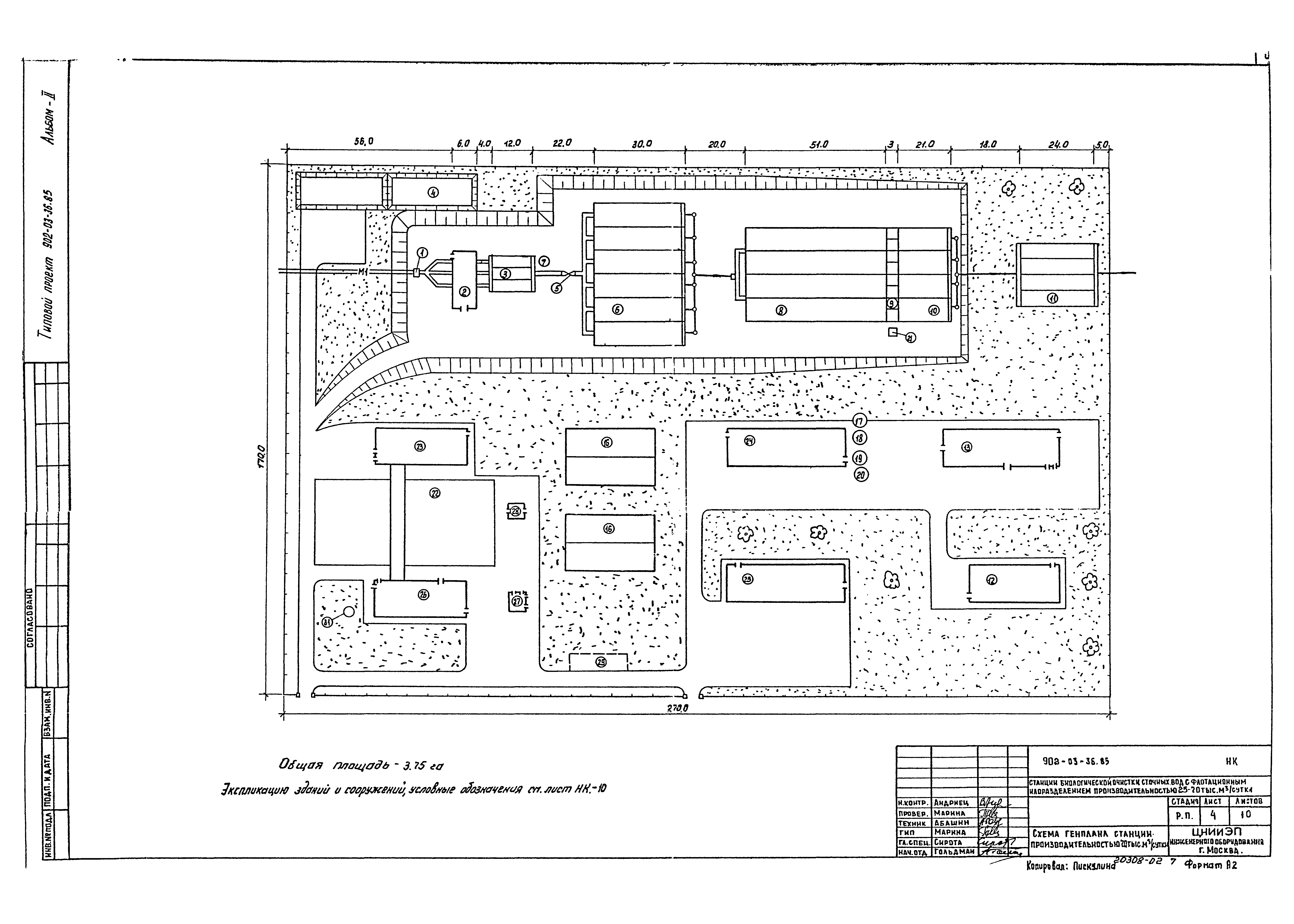
Скачать Типовой проект 902-03-36.85 Альбом II. Чертежи

Дата актуализации: 10.08.2017

Типовой проект 902-03-36.85

Альбом II. Чертежи

Обозначение: Типовой проект 902-03-36.85
Обозначение англ: 902-03-36.85
Статус:не определен законодательством
Название рус.:Альбом II. Чертежи
Дата добавления в базу:01.02.2017
Дата актуализации:05.05.2017
Дата введения:27.12.1984
Разработан: ЦНИИЭП иженерного оборудования
Утверждён:19.08.1982 ЦНИИЭП инженерного оборудования (TsNIIEP of Building Service Equipment 224)
Издан: ЦИТП Госстроя СССР (CITP, Gosstroy (USSR) 1986 г. )
Расположен в:Техническая документация Строительство Справочные документы Типовые строительные конструкции, изделия и узлы Общероссийский строительный каталог Промышленные предприятия, здания и сооружения Здания и сооружения санитарно-технические Канализация Сооружения биологической (биохимической) очистки Станции биологической очистки сточных вод
Типовой проект 902-03-36.85Типовой проект 902-03-36.85Типовой проект 902-03-36.85Типовой проект 902-03-36.85Типовой проект 902-03-36.85Типовой проект 902-03-36.85Типовой проект 902-03-36.85Типовой проект 902-03-36.85Типовой проект 902-03-36.85Типовой проект 902-03-36.85Типовой проект 902-03-36.85Типовой проект 902-03-36.85Типовой проект 902-03-36.85Типовой проект 902-03-36.85

© 2013 Ёшкин Кот :-) Карта сайта